Скачать Типовой проект 901-3-267.89 Альбом 7. АвтоматизацияДата актуализации: 01.01.2021
|
| Обозначение: | Типовой проект 901-3-267.89 |
| Обозначение англ: | 901-3-267.89 |
| Статус: | не определен законодательством |
| Название рус.: | Альбом 7. Автоматизация |
| Дата добавления в базу: | 01.09.2013 |
| Дата актуализации: | 01.01.2021 |
| Дата введения: | 16.06.1989 |
| Дата окончания срока действия: | 30.06.2003 |
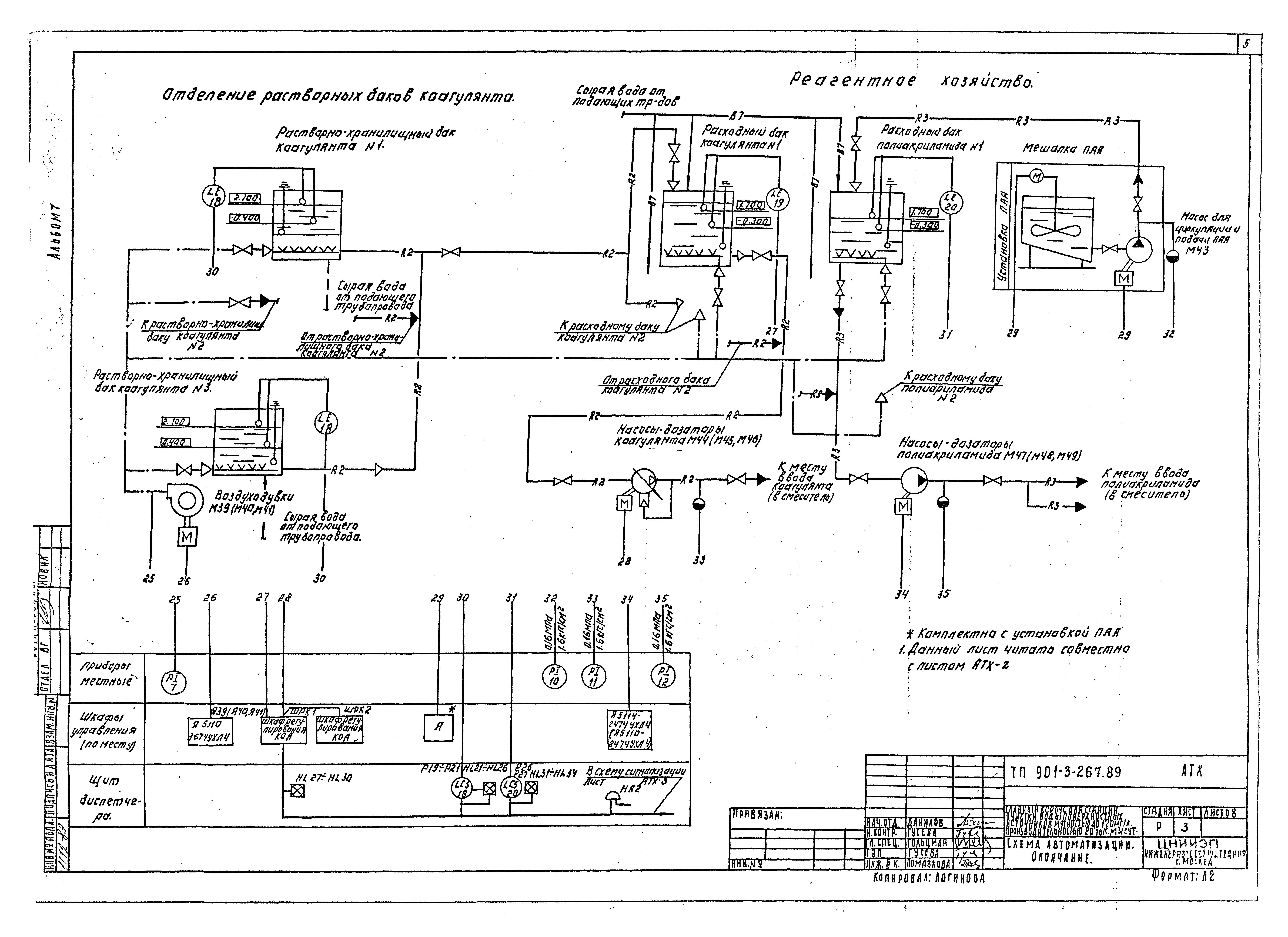
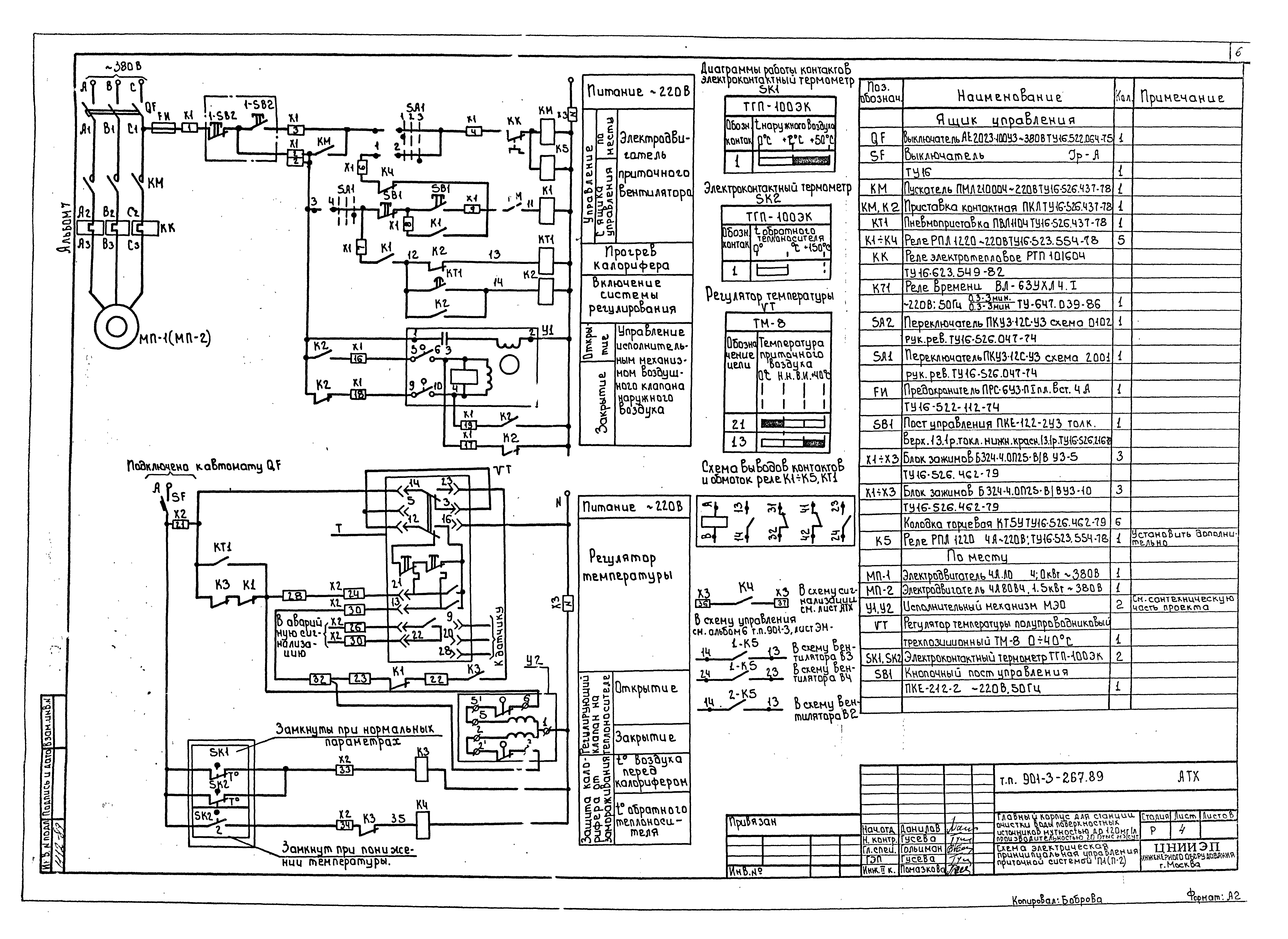
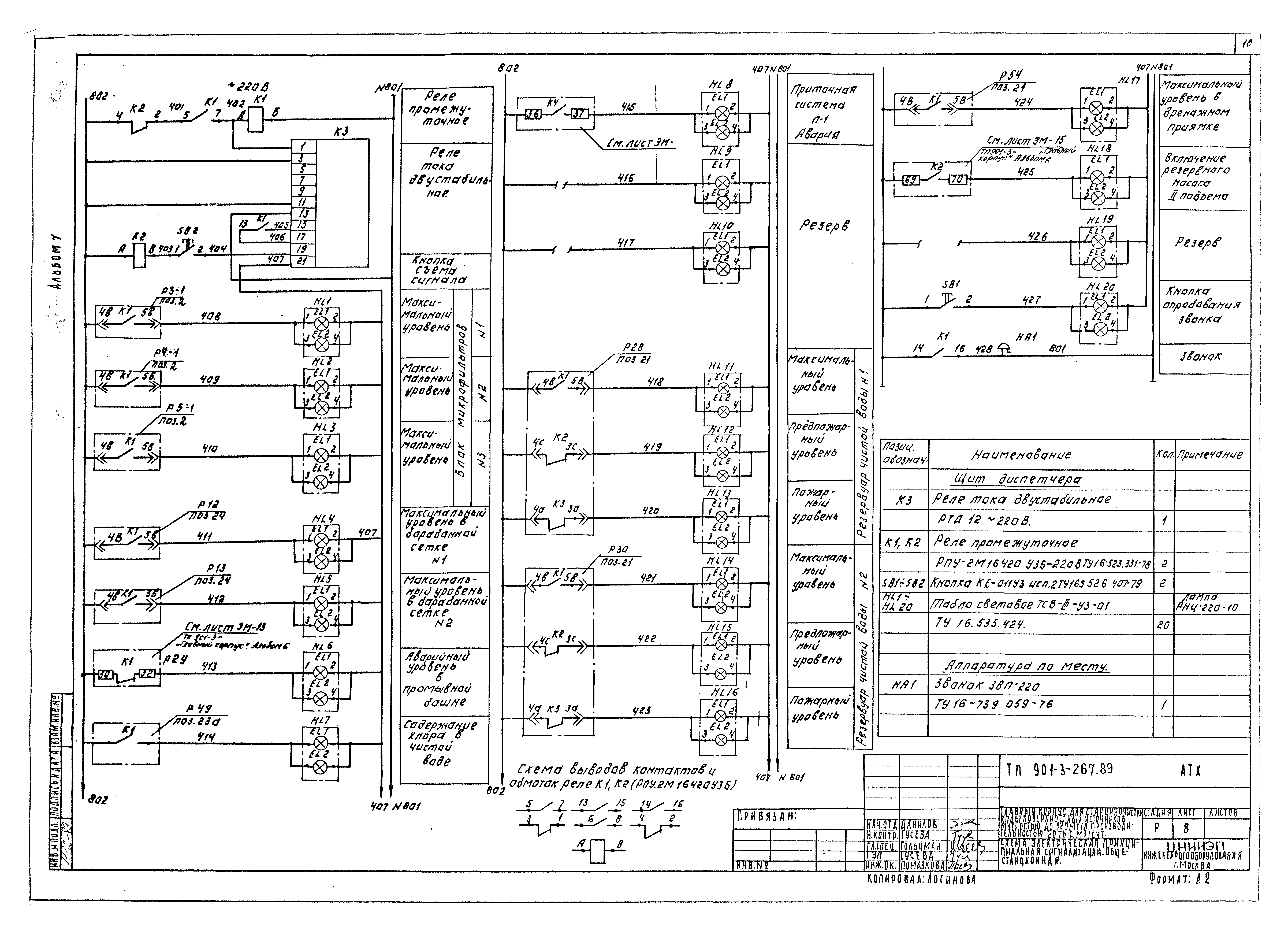
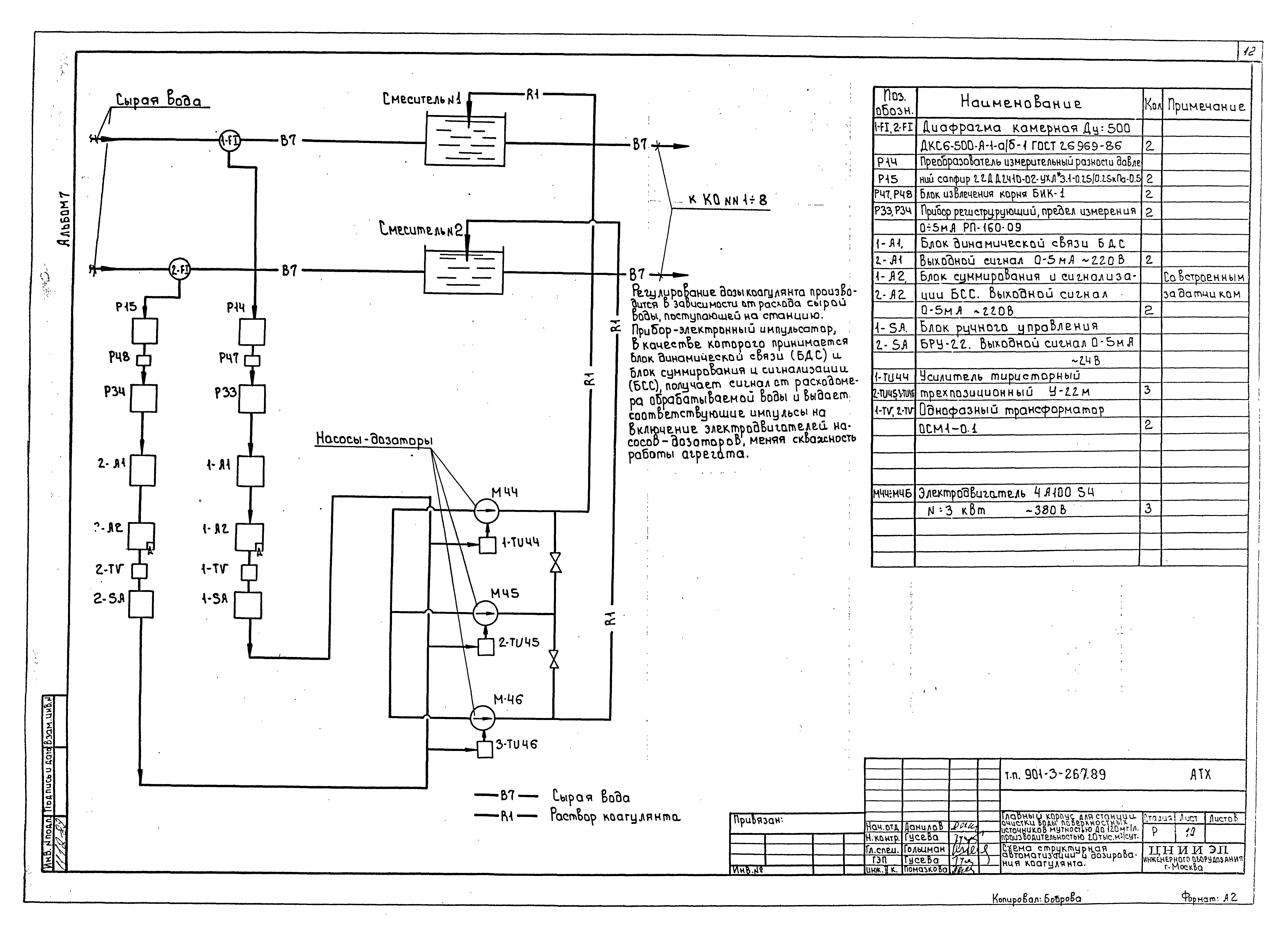
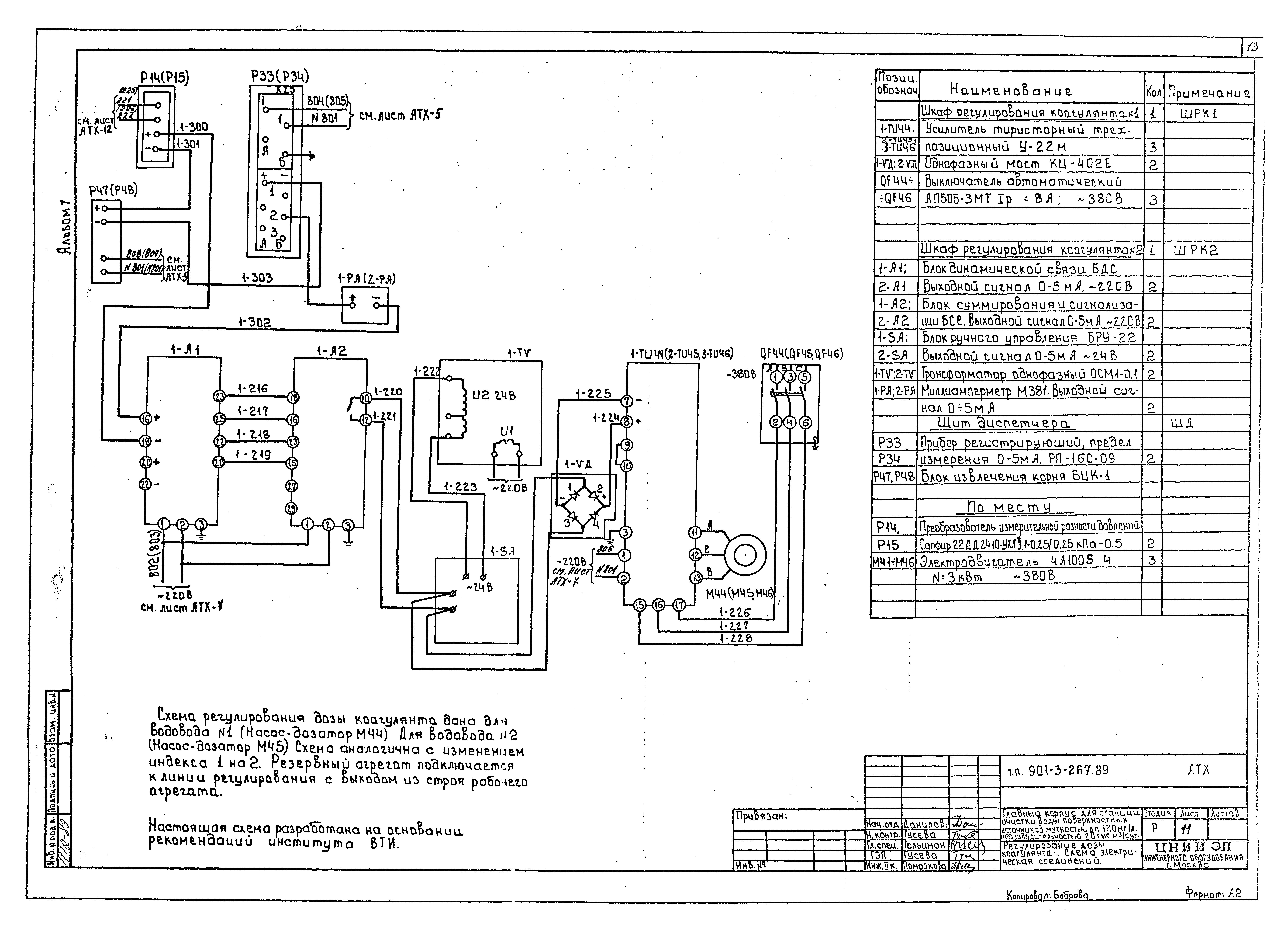
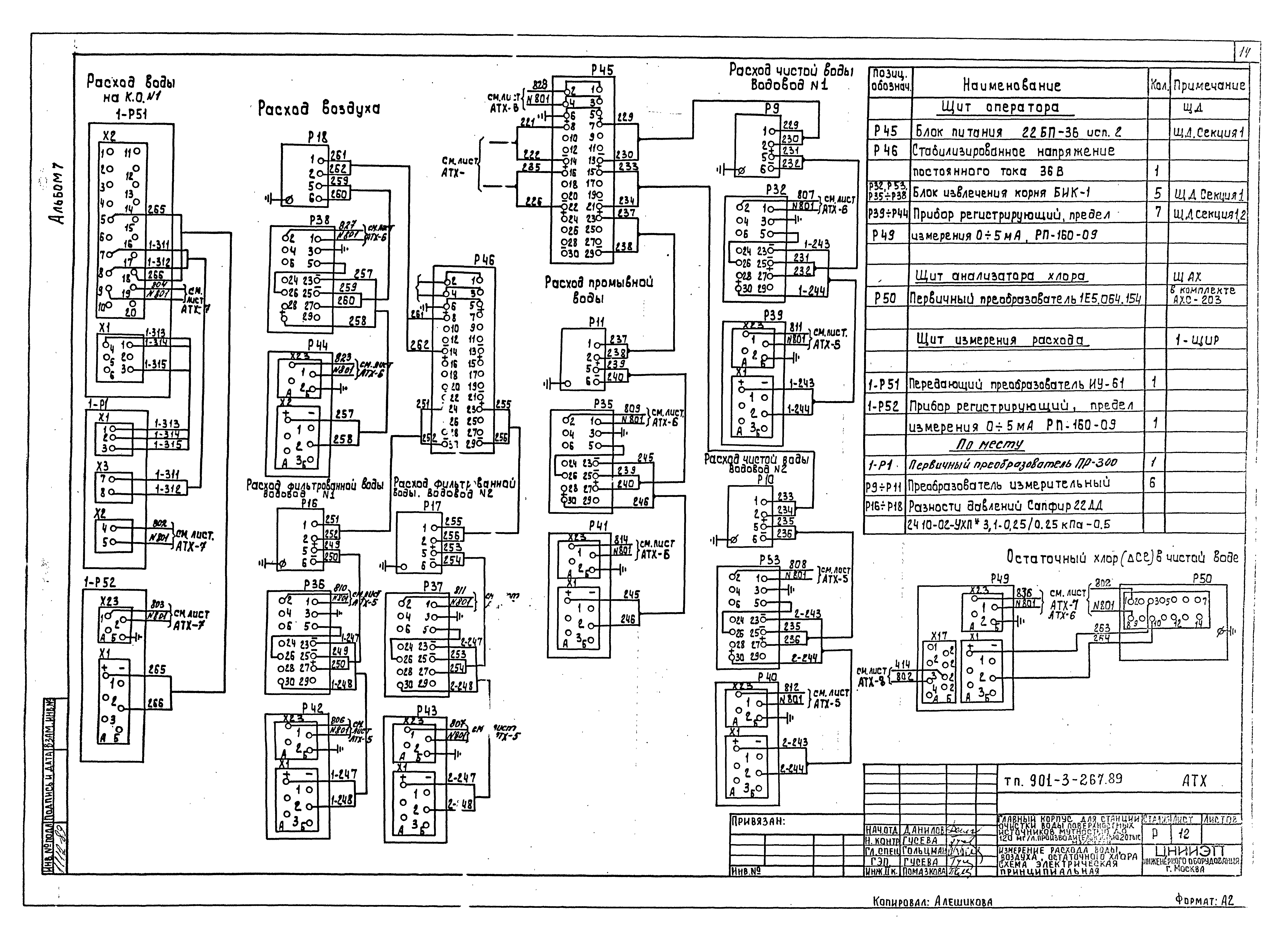
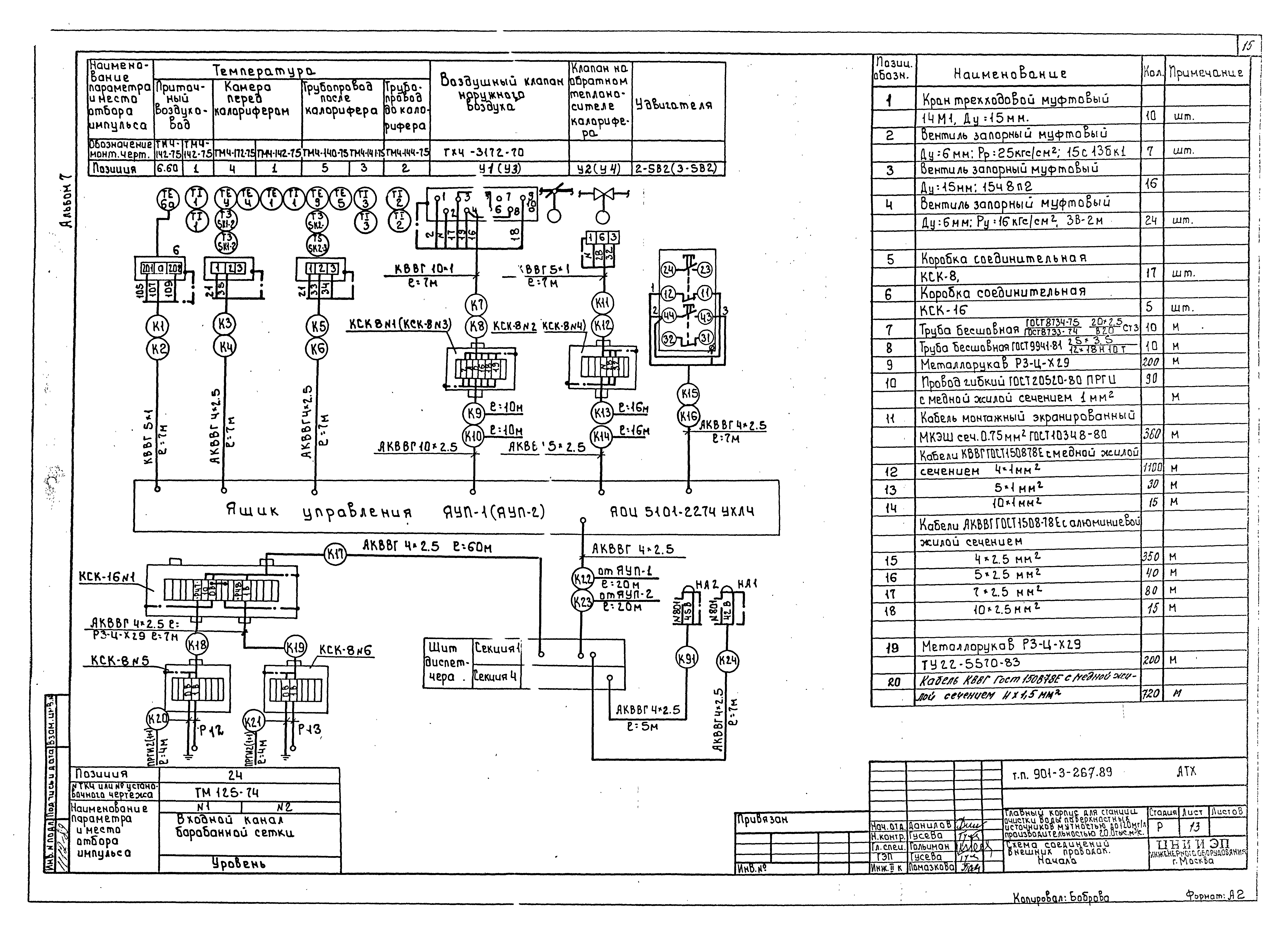
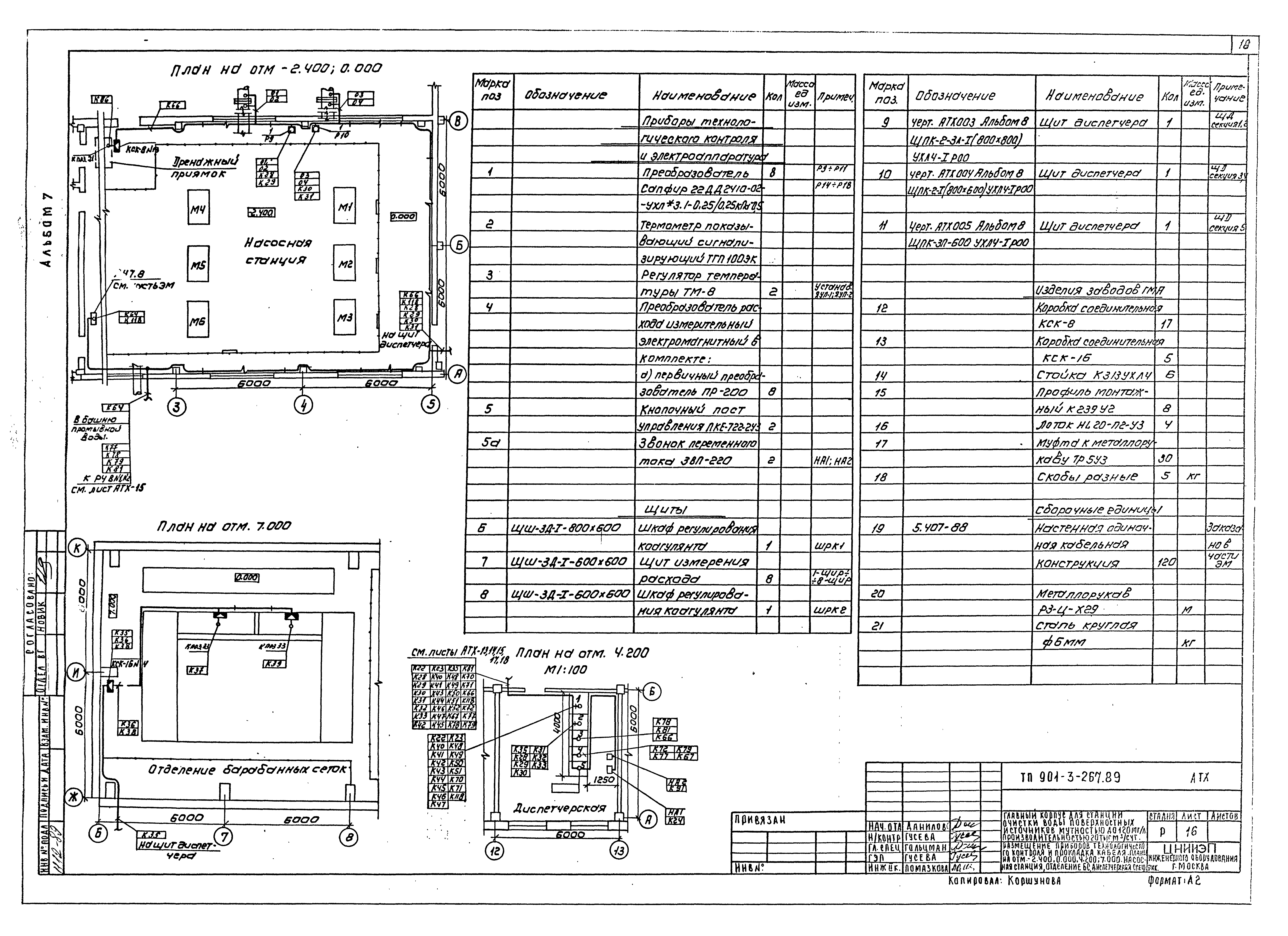
| Оглавление: | Схема автоматизации Схема электрическая принципиальная управления приточной системой П1 (П2) Схема электрическая принципиальная питания приборов и сетей управления щитов и цепей ЩА, ЩРК1, ЩРК2, ЩАК, ЩИР Схема автоматизации приточной системы П-1, П-2 Схема электрическая принципиальная сигнализации. Общестанционная Схема электрическая принципиальная сигнализации. Основные реагенты Схема структурная автоматизации и дозирования коагулянта Регулирование дозы коагулянта. Схема электрическая соединений Измерение расхода воды, воздуха, остаточного хлора. Схема электрическая принципиальная Схема соединений внешних проводок Размещение приборов технологического контроля и прокладка кабеля. Планы на отм. - 2.400; 0.000; 4.200; 7.000. Насосная станция, отделение БС, диспетчерская спецификация Размещение приборов технологического контроля и прокладка кабеля. Планы на отм. 0.000; -1.200; 1.200. Венткамеры. Отделение растворных баков. Дозаторная Размещение приборов технологического контроля и прокладка кабеля. Планы на отм. 0.000; 3.600. Зал контактных осветлителей Щиты диспетчера ЩД, регулирования коагулянта ЩРК1, ЩРК2, анализатора хлора ЩАХ, измерения расхода ЩИР. Схема подключения |
| Разработан: | ЦНИИЭП |
| Утверждён: | 29.07.1986 Госгражданстрой (Gosgrazhdanstroy 242) |
| Заменяет собой: |
|




















