Скачать Типовые проектные решения 820-1-088.88 Альбом 2. Конструкции железобетонныеДата актуализации: 01.01.2021
|
| Обозначение: | Типовые проектные решения 820-1-088.88 |
| Обозначение англ: | 820-1-088.88 |
| Статус: | справочные материалы, мп, тпр |
| Название рус.: | Альбом 2. Конструкции железобетонные |
| Дата добавления в базу: | 01.09.2013 |
| Дата актуализации: | 01.01.2021 |
| Дата окончания срока действия: | 05.05.1988 |
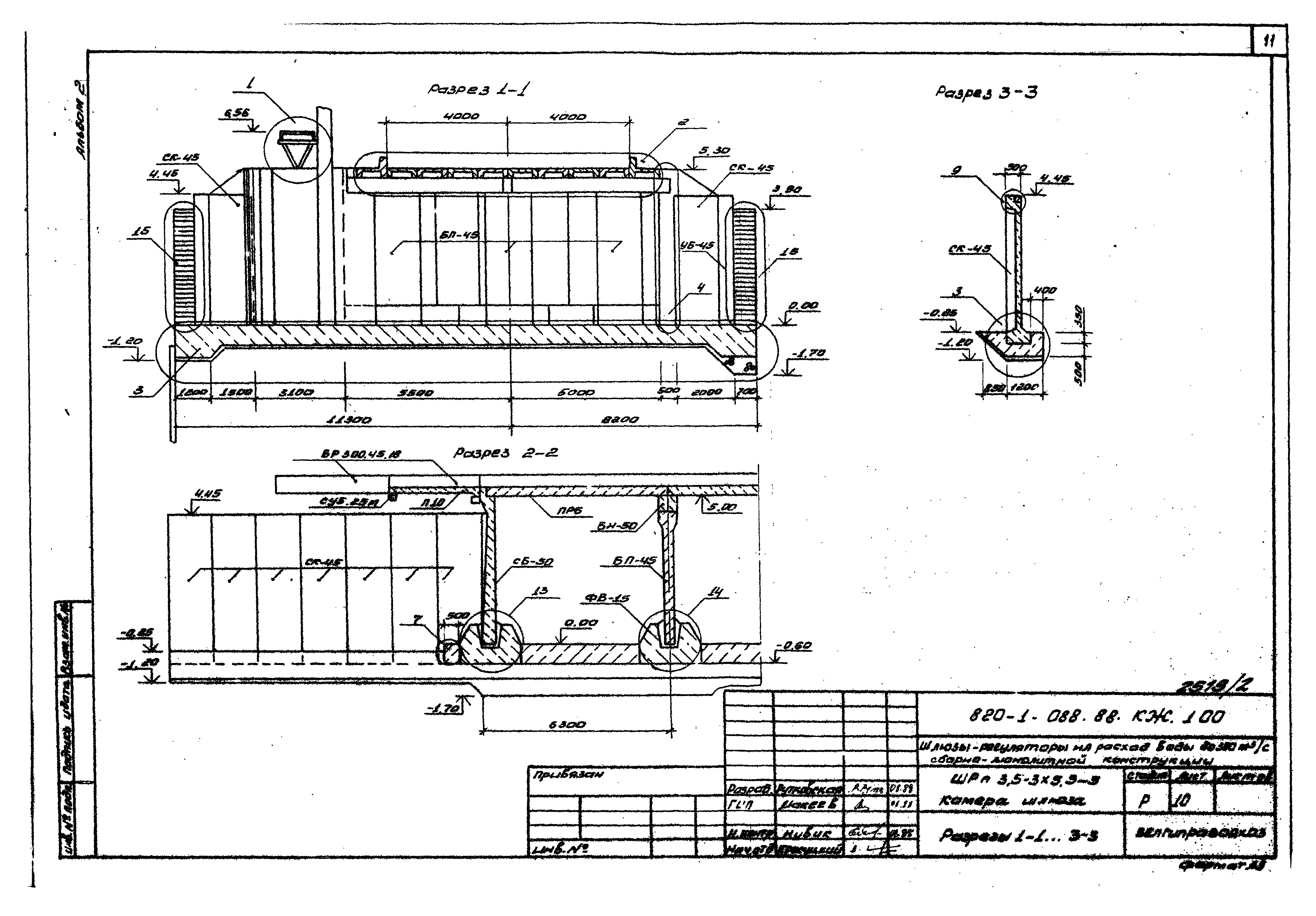
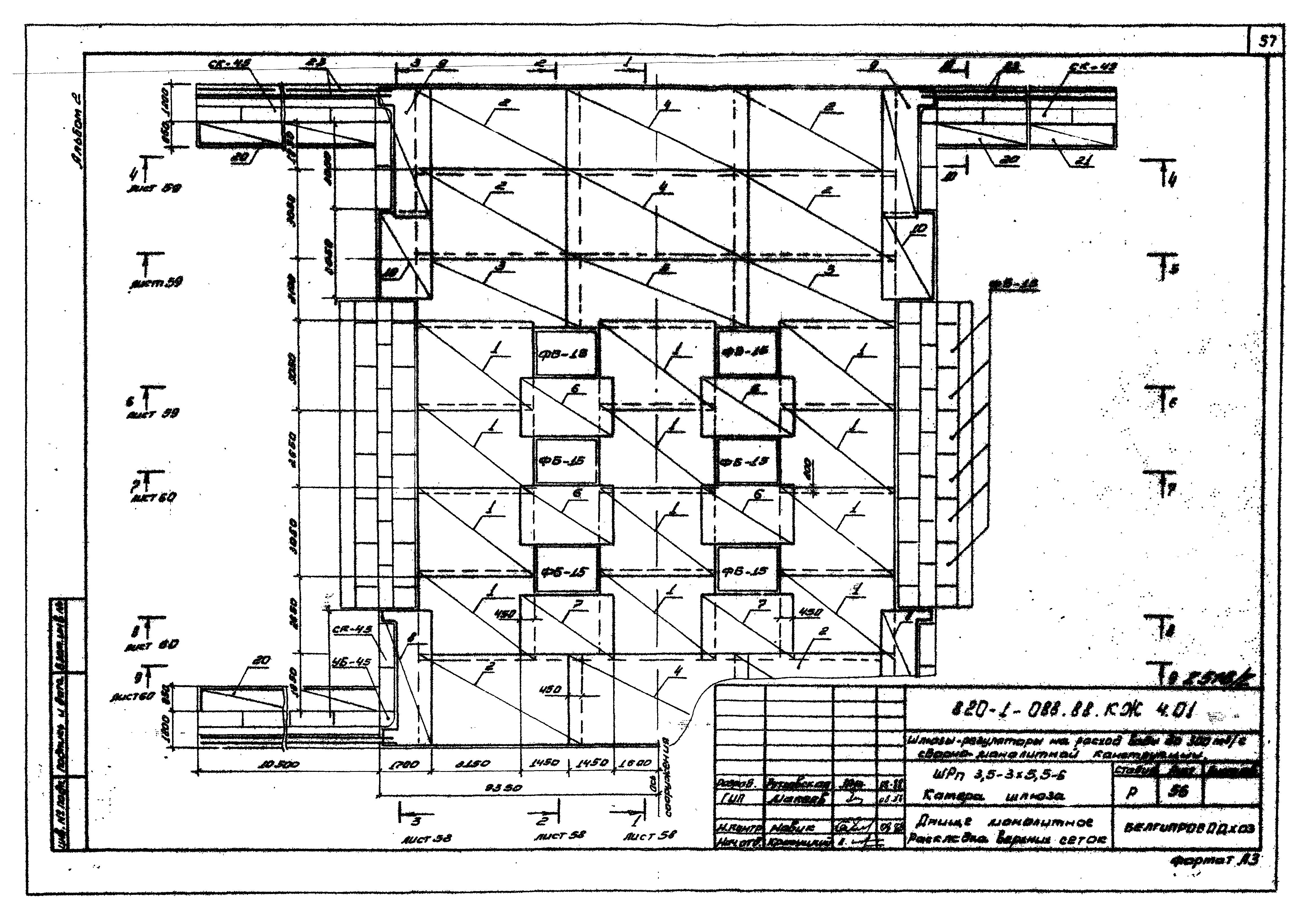
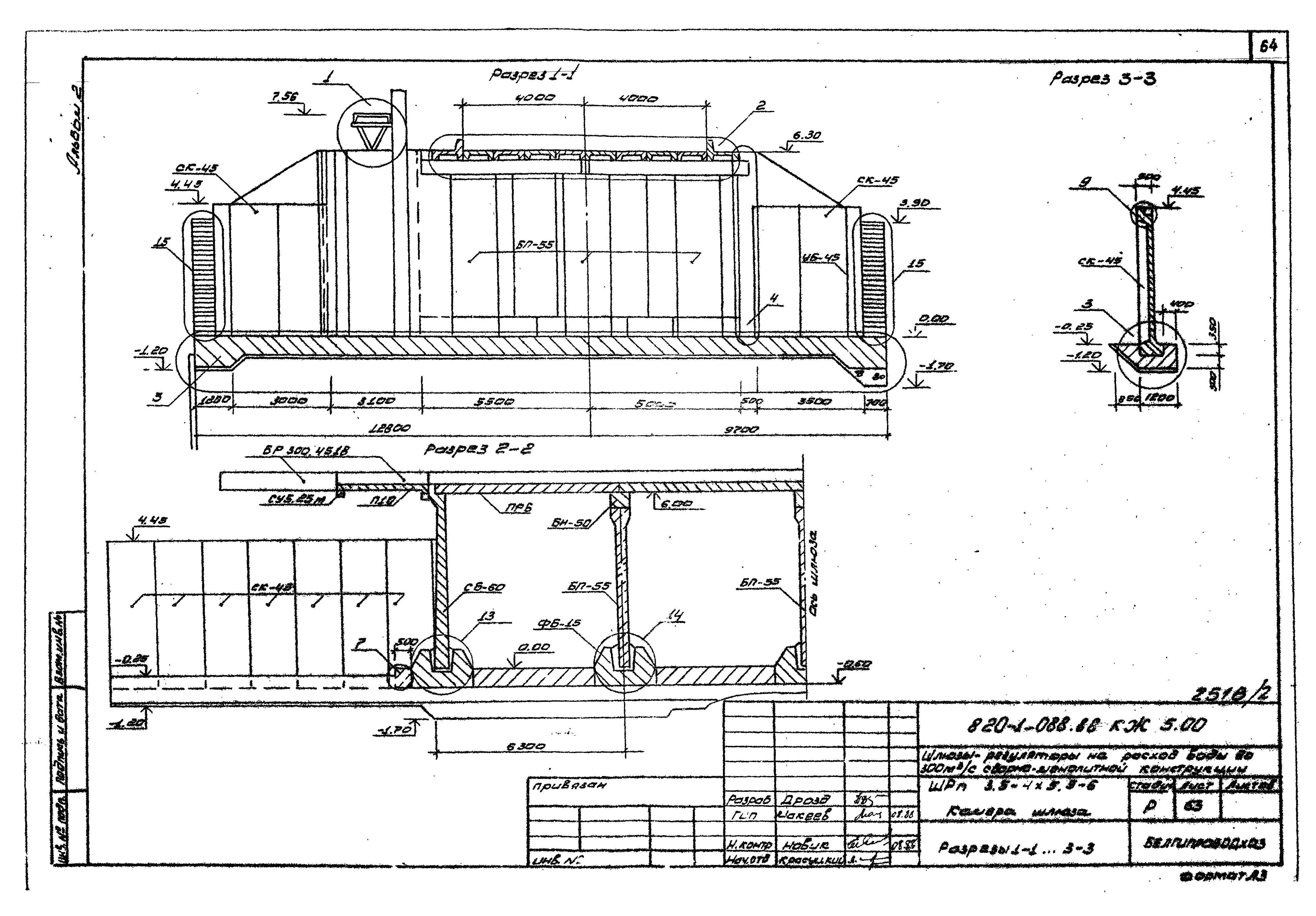
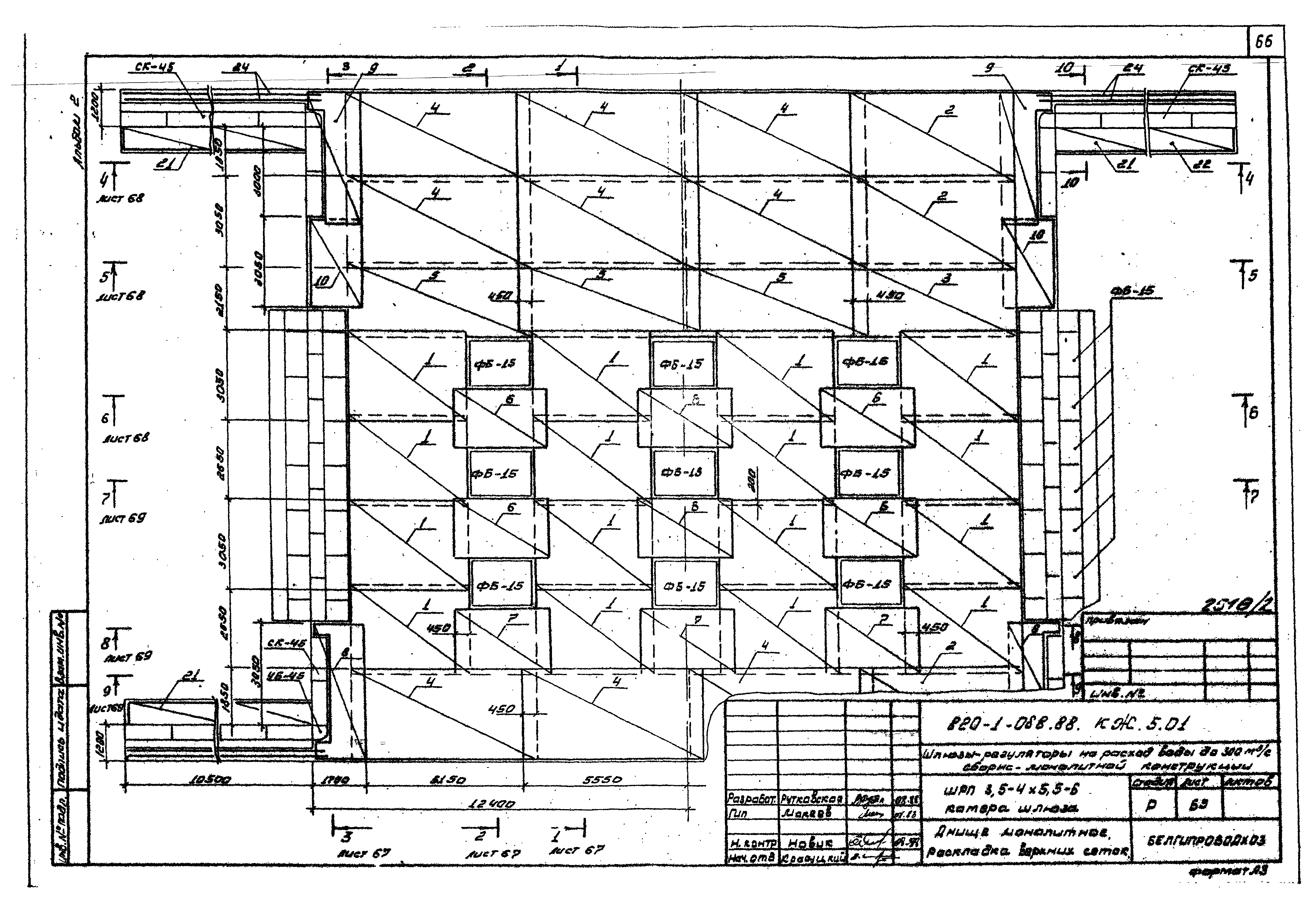
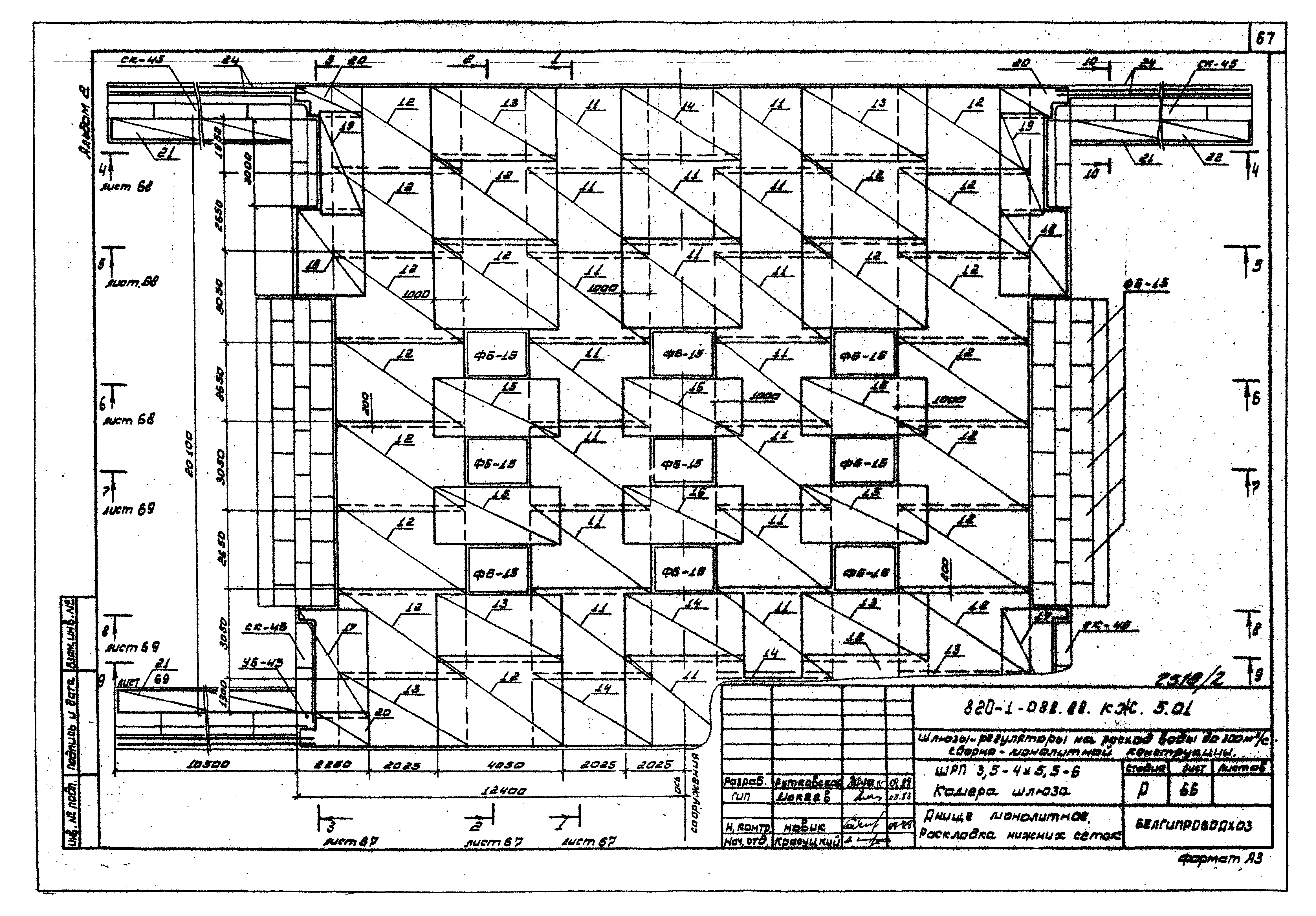
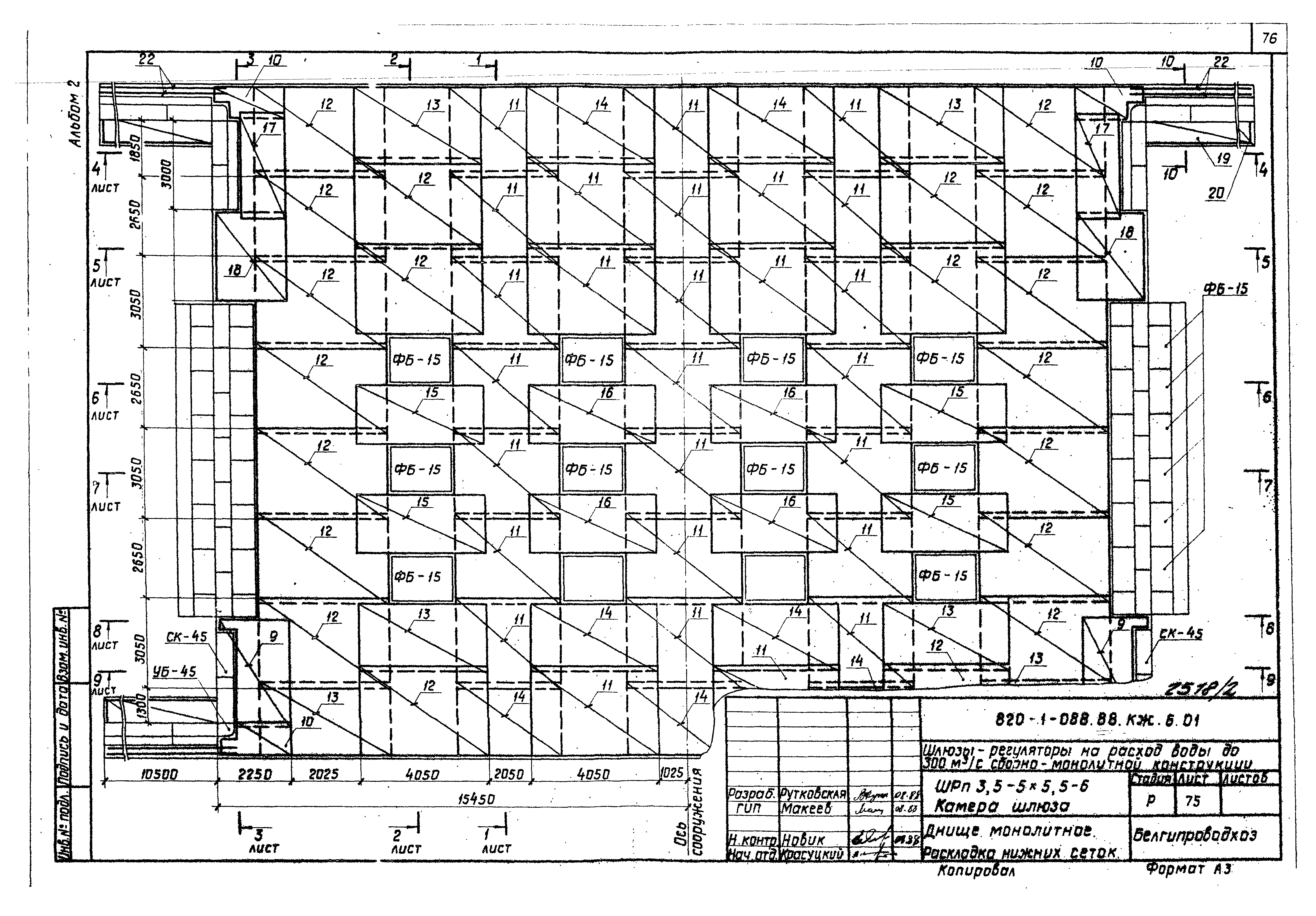
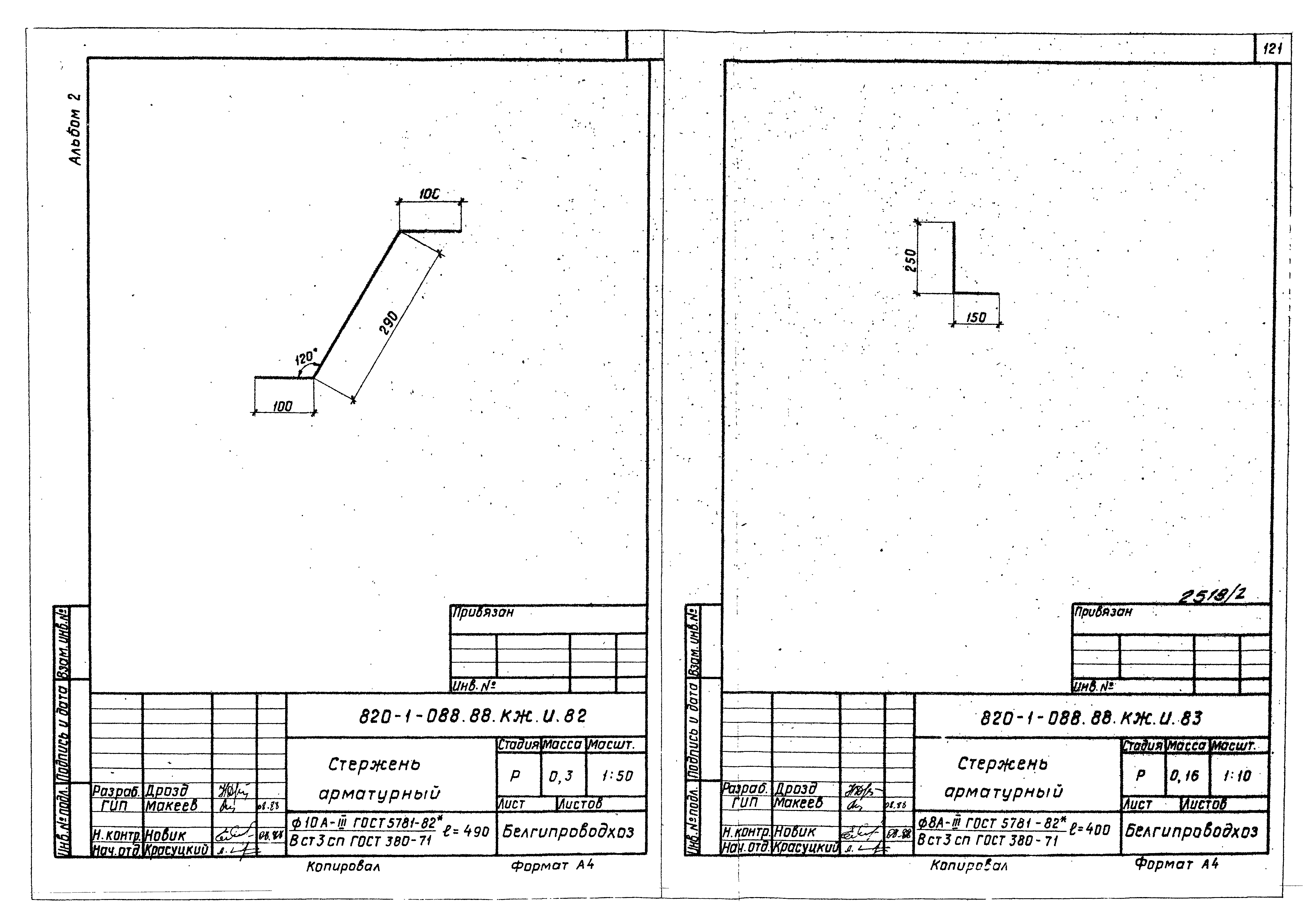
| Оглавление: | Общие данные ШРп 3,5-3х5,5-5. Камера шлюза. Сборочная спецификация ШРп 3,5-3х5,5-5. Камера шлюза. План ШРп 3,5-3х5,5-5. Камера шлюза. Разрезы 1-1…3-3 ШРп 3,5- х5,5- . Камера шлюза. Пролетное строение. Монтаж сборных ж/б конструкций. Спецификация ШРп 3,5- х5,5- . Камера шлюза. Пролетное строение. Монтаж сборных ж/б конструкций. Разрез 1-1. Узел 1 ШРп 3,5-3х5,5-5. Камера шлюза. Спецификация. Ведомость расхода стали ШРп 3,5-3х5,5-5. Камера шлюза. Днище монолитное. Раскладка верхних сеток ШРп 3,5-3х5,5-5. Камера шлюза. Днище монолитное. Раскладка нижних сеток ШРп 3,5-3х5,5-5. Камера шлюза. Днище монолитное. Разрезы 1-1…3-3 ШРп 3,5-3х5,5-5. Камера шлюза. Днище монолитное. Разрезы 4-4…6-6 ШРп 3,5-3х5,5-5. Камера шлюза. Днище монолитное. Разрезы 7-7…10-10 ШРп 3,5- х5,5-5. Камера шлюза. Участок монолитный УМ-1. Схема армирования ШРп 3,5- х5,5-5. Камера шлюза. Участок монолитный УМ-2. Спецификация. Схема армирования ШРп 3,5- . Камера шлюза. Участок монолитный УМ-3. Спецификация. Схема армирования ШРп 3,5- . Камера шлюза. Омоноличивание блоков СБ, СБ и ФБ, УМ-4 ШРп 3,5- х5,5-5. Камера шлюза. Участок монолитный УМ-5. Спецификация. Схема армирования ШРп 3,5- . Камера шлюза. Пояс омоноличивания открылков ШРп 3,5- . Камера шлюза. Монтаж блоков СК-45 ШРп 3,5- . Омоноличивание блоков СК-45, СК-45 и УБ-45 ШРп 3,5- . Омоноличивание блоков БП и ФБ ШРп 3,5- . Камера шлюза. Лестница Л1 ШРп 3,5- . Лестница 2Л ШРп 3,5-4х5,5-5. Камера шлюза. Сборочная спецификация ШРп 3,5-4х5,5-5. Камера шлюза. План ШРп 3,5-4х5,5-5. Камера шлюза. Разрезы 1-1…3-3 ШРп 3,5-4х5,5-5. Камера шлюза. Спецификация. Ведомость расхода стали ШРп 3,5-4х5,5-5. Камера шлюза. Днище монолитное. Раскладка верхних сеток ШРп 3,5-4х5,5-5. Камера шлюза. Днище монолитное. Раскладка нижних сеток ШРп 3,5-4х5,5-5. Камера шлюза. Днище монолитное. Разрезы 1-1…3-3 ШРп 3,5-4х5,5-5. Камера шлюза. Днище монолитное. Разрезы 4-4…6-6 ШРп 3,5-4х5,5-5. Камера шлюза. Днище монолитное. Разрезы 7-7…10-10 ШРп 3,5-2х5,5-6. Камера шлюза. Сборочная спецификация ШРп 3,5-2х5,5-6. Камера шлюза. План ШРп 3,5-2х5,5-6. Камера шлюза. Разрезы 1-1…3-3 ШРп 3,5-2х5,5-6. Камера шлюза. Спецификация. Ведомость расхода стали ШРп 3,5-2х5,5-6. Камера шлюза. Днище монолитное. Раскладка верхних сеток ШРп 3,5-2х5,5-6. Камера шлюза. Днище монолитное. Раскладка нижних сеток ШРп 3,5-2х5,5-6. Камера шлюза. Днище монолитное. Разрезы 1-1…3-3 ШРп 3,5-2х5,5-6. Камера шлюза. Днище монолитное. Разрезы 4-4…6-6 ШРп 3,5-2х5,5-6. Камера шлюза. Днище монолитное. Разрезы 7-7…10-10 ШРп 3,5- х5,5-6. Камера шлюза. Участок монолитный УМ-1. Схема армирования ШРп 3,5- х5,5-6. Камера шлюза. Участок монолитный УМ-2. Спецификация. Схема армирования ШРп 3,5- х5,5-6. Камера шлюза. Участок монолитный УМ-3. Схема армирования ШРп 3,5- . Лестница 3Л ШРп 3,5-3х5,5-6. Камера шлюза. Сборочная спецификация ШРп 3,5-3х5,5-6. Камера шлюза. План ШРп 3,5-3х5,5-6. Камера шлюза. Разрезы 1-1…3-3 ШРп 3,5-3х5,5-6. Камера шлюза. Спецификация. Ведомость расхода стали ШРп 3,5-3х5,5-6. Камера шлюза. Днище монолитное. Раскладка верхних сеток ШРп 3,5-3х5,5-6. Камера шлюза. Днище монолитное. Раскладка нижних сеток ШРп 3,5-3х5,5-6. Камера шлюза. Днище монолитное. Разрезы 1-1…3-3 ШРп 3,5-3х5,5-6. Камера шлюза. Днище монолитное. Разрезы 4-4…6-6 ШРп 3,5-3х5,5-6. Камера шлюза. Днище монолитное. Разрезы 7-7…10-10 ШРп 3,5-4х5,5-6. Камера шлюза. Сборочная спецификация ШРп 3,5-4х5,5-6. Камера шлюза. План ШРп 3,5-4х5,5-6. Камера шлюза. Разрезы 1-1…3-3 ШРп 3,5-4х5,5-6. Камера шлюза. Спецификация. Ведомость расхода стали ШРп 3,5-4х5,5-6. Камера шлюза. Днище монолитное. Раскладка верхних сеток ШРп 3,5-4х5,5-6. Камера шлюза. Днище монолитное. Раскладка нижних сеток ШРп 3,5-4х5,5-6. Камера шлюза. Днище монолитное. Разрезы 1-1…3-3 ШРп 3,5-4х5,5-6. Камера шлюза. Днище монолитное. Разрезы 4-4…6-6 ШРп 3,5-4х5,5-6. Камера шлюза. Днище монолитное. Разрезы 7-7…10-10 ШРп 3,5-5х5,5-6. Камера шлюза. Сборочная спецификация ШРп 3,5-5х5,5-6. Камера шлюза. План ШРп 3,5-5х5,5-6. Камера шлюза. Разрезы 1-1…3-3 ШРп 3,5-5х5,5-6. Камера шлюза. Спецификация. Ведомость расхода стали ШРп 3,5-5х5,5-6. Камера шлюза. Днище монолитное. Раскладка верхних сеток ШРп 3,5-5х5,5-6. Камера шлюза. Днище монолитное. Раскладка нижних сеток ШРп 3,5-5х5,5-6. Камера шлюза. Днище монолитное. Разрезы 1-1…3-3 ШРп 3,5-5х5,5-6. Камера шлюза. Днище монолитное. Разрезы 4-4…6-6 ШРп 3,5-5х5,5-6. Камера шлюза. Днище монолитное. Разрезы 7-7…10-10 Сетка арматурная С1 Сетка арматурная С2 Сетка арматурная С3 Сетка арматурная С4 Сетка арматурная С5 Сетка арматурная С6 Сетка арматурная С7 Сетка арматурная С8 Сетка арматурная С9 Сетка арматурная С10 Сетка арматурная С11 Сетка арматурная С12 Сетка арматурная С13 Сетка арматурная С14 Сетка арматурная С15 Сетка арматурная С16 Сетка арматурная С17 Сетка арматурная С18 Сетка арматурная С19 Сетка арматурная С20 Сетка арматурная С21 Сетка арматурная С22 Сетка арматурная С23 Сетка арматурная С24 Сетка арматурная С25 Сетка арматурная С26 Сетка арматурная С27 Сетка арматурная С28 Сетка арматурная С29 Сетка арматурная С30 Сетка арматурная С31 Сетка арматурная С32 Сетка арматурная С33 Сетка арматурная С34 Сетка арматурная С35 Сетка арматурная С36 Сетка арматурная С37 Сетка арматурная С38 Сетка арматурная С39 Сетка арматурная С40 Сетка арматурная С41 Сетка арматурная С42 Сетка арматурная С43 Сетка арматурная С44 Сетка арматурная С45 Сетка арматурная С46 Сетка арматурная С47 Сетка арматурная С48 Сетка арматурная С49 Сетка арматурная С50 Сетка арматурная С51 Сетка арматурная С52 Сетка арматурная С53 Сетка арматурная С54 Сетка арматурная С55 Сетка арматурная С56 Сетка арматурная С57 Сетка арматурная С58 Сетка арматурная С59 Сетка арматурная С60 Сетка арматурная С61 Спецификация Сетка арматурная С62 Сетка арматурная С63 Сетка арматурная С64 Сетка арматурная С65 Сетка арматурная С66 Сетка арматурная С67 Сетка арматурная С68 Сетка арматурная С69 Сетка арматурная С70 Сетка арматурная С71 Сетка арматурная С72 Сетка арматурная С73 Сетка арматурная С74 Сетка арматурная С75 Каркас плоский КР1 Каркас плоский КР2 Каркас плоский КР3 Каркас плоский КР4 Каркас плоский КР5 Каркас плоский КР6 Стержень арматурный Спираль 1СП Спираль 2СП Изделие закладное ЗД-1 Изделие закладное ЗД-2 Компенсатор 1КЛ Изделие закладное ЗД-3 |
| Разработан: | Белгипроводхоз Минводхоза СССР |
| Утверждён: | 05.05.1988 Минводхоз СССР (USSR Minvodkhoz 760) |
| Принят: | Союзводпроект |
| Издан: | ЦИТП Госстроя СССР (CITP, Gosstroy (USSR) 1989 г. ) |






























































































































