Скачать Типовые проектные решения 407-03-364.85 Альбом I. Пояснительная записка и чертежиДата актуализации: 01.01.2021
|
| Обозначение: | Типовые проектные решения 407-03-364.85 |
| Обозначение англ: | 407-03-364.85 |
| Статус: | заменен |
| Название рус.: | Альбом I. Пояснительная записка и чертежи |
| Дата добавления в базу: | 01.09.2013 |
| Дата актуализации: | 01.01.2021 |
| Дата окончания срока действия: | 25.10.1990 |
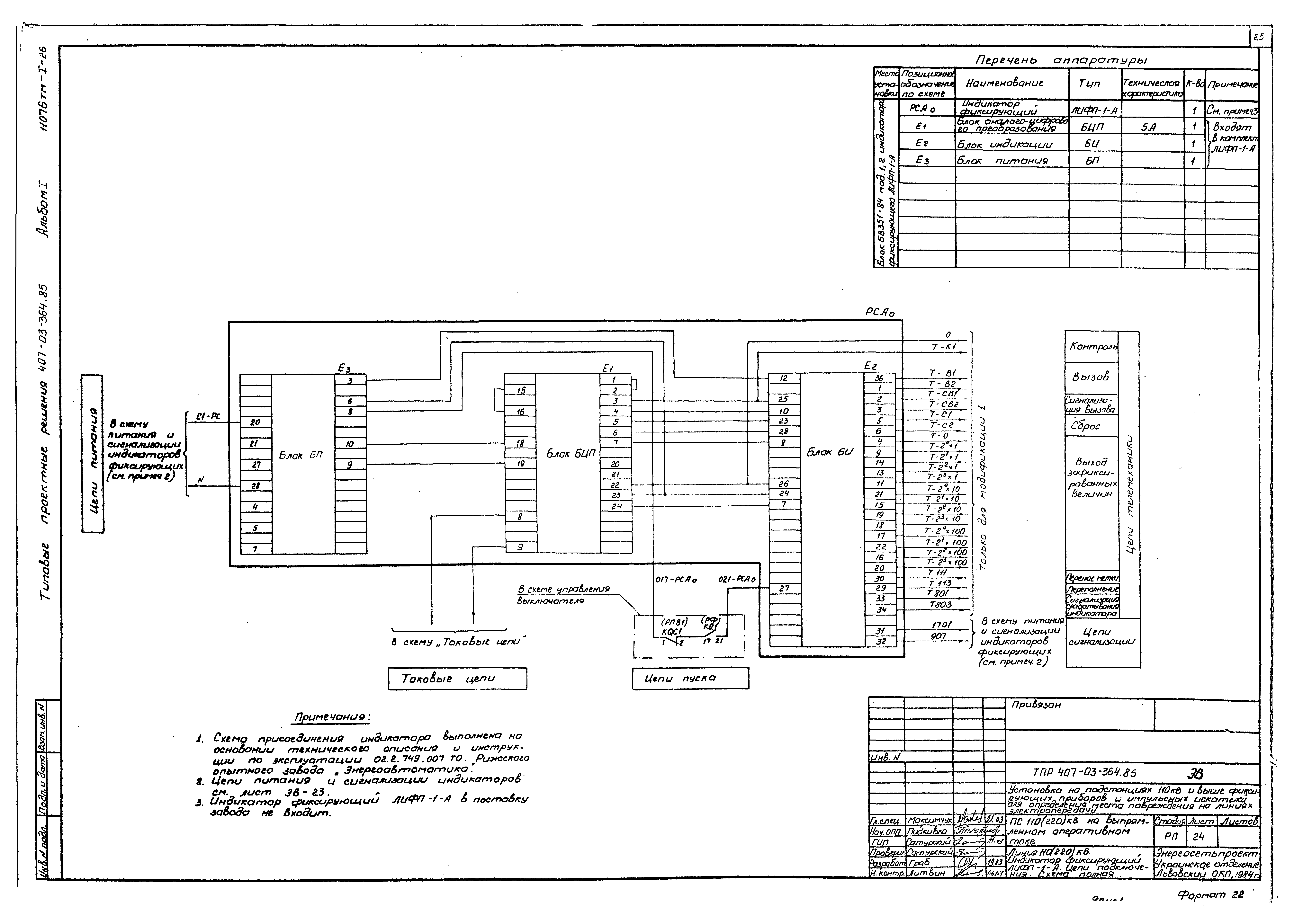
| Оглавление: | Перечень чертежей Пояснительная записка Таблицы выбора чертежей и щитовых устройств Индикаторы фиксирующие. Полные схемы и НКУ Подстанция 330 - 500 кВ. Цепи питания и сигнализации индикаторов фиксирующих линий 330 - 500 кВ. Схема полная Линия 330 - 500 кВ. Индикаторы фиксирующие. Цепи подключения. Схема полная Подстанция 330 - 500 кВ. Цепи питания и сигнализации индикаторов фиксирующих линий 110 (220) кВ. Схема полная Подстанция 110 (220) кВ на постоянном оперативном токе. Цепи питания и сигнализации индикаторов фиксирующих линий. Схема полная Подстанция 110 - 500 кВ. Индикатор фиксирующий ЛИФП-2-А. Цепи подключения. Схема полная Подстанция 110 - 500 кВ. Шины 110 (220) кВ. Индикатор фиксирующий ЛИФП-2-В. Цепи подключения. Схема полная Подстанция 110 - 500 кВ. Линия 110 (220) кВ. Индикатор фиксирующий ФПТ-2. Цепи подключения. Схема полная Подстанция 110 - 500 кВ. Шины 110 (220) кВ. Индикатор фиксирующий ФПН-2. Цепи подключения. Схема полная Подстанция 110 - 500 кВ. Линия 110 (220) кВ. Индикатор фиксирующий ФИС-2. Цепи подключения. Схема полная Подстанция 110 (220) кВ на выпрямленном оперативном токе. Цепи питания и сигнализации индикаторов фиксирующих линий. Схема полная Подстанция 110 (220) кВ на выпрямленном оперативном токе. Линия 110 (220) кВ. Индикатор фиксирующий ЛИФП-1-А. Цепи подключения. Схема полная Подстанция 110 (220) кВ на выпрямленном оперативном токе. Линия 110 (220) кВ. Индикатор фиксирующий ЛИФП-1-В. Цепи подключения. Схема полная Подстанция 110 (220) кВ на выпрямленном оперативном токе. Линия 110 (220) кВ. Индикатор фиксирующий ФПТ-1. Цепи подключения. Схема полная Подстанция 110 (220) кВ на выпрямленном оперативном токе. Линия 110 (220) кВ. Индикатор фиксирующий ФПН-1. Цепи подключения. Схема полная Подстанция 110 (220) кВ на выпрямленном оперативном токе. Линия 110 (220) кВ. Индикатор фиксирующий ФИС-1. Цепи подключения. Схема полная Подстанция 110 (220) кВ на переменном оперативном токе. Цепи питания и сигнализации индикаторов фиксирующих линий. Схема полная Подстанция 110 (220) кВ на переменном оперативном токе. Трансформатор. Индикатор фиксирующий ЛИФП-1-А. Цепи подключения. Схема полная Блок БВ342-84 питания и сигнализации индикаторов фиксирующих. Схема полная, соединений рядов зажимов и общий вид Блок БВ343-84 питания и сигнализации индикаторов фиксирующих. Схема полная, соединений рядов зажимов и общий вид Блок БВ344-84 питания и сигнализации индикаторов фиксирующих. Схема полная, соединений рядов зажимов и общий вид Блок БВ632-84 питания и сигнализации индикаторов фиксирующих. Схема полная, соединений рядов зажимов и общий вид Блок БВ345-84 индикаторов фиксирующих ЛИФП-2-А. Электрическая схема соединений (монтажная) и общий вид Блок БВ346-84 индикаторов фиксирующих ЛИФП-2-А и ЛИФП-2-В. Электрическая схема соединений (монтажная) и общий вид Блок БВ347-84 индикаторов фиксирующих ЛИФП-2-В. Электрическая схема соединений (монтажная) и общий вид Блок БВ348-84 индикатора фиксирующего ФПТ-2. Электрическая схема соединений (монтажная) и общий вид Блок БВ349-84 индикатора фиксирующего ФПН-2. Электрическая схема соединений (монтажная) и общий вид Блок БВ350-84 индикатора фиксирующего ФИС-2. Электрическая схема соединений (монтажная) и общий вид Блок БВ351-84 мод. 1 и 2 индикатора фиксирующего ЛИФП-1-А. Электрическая схема соединений (монтажная) и общий вид Блок БВ352-84 мод. 1 и 2 индикатора фиксирующего ЛИФП-1-В. Электрическая схема соединений (монтажная) и общий вид Блок БВ353-84 мод. 1 и 2 индикатора фиксирующего ФПТ-1. Электрическая схема соединений (монтажная) и общий вид Блок БВ354-84 мод. 1 и 2 индикатора фиксирующего ФПН-1. Электрическая схема соединений (монтажная) и общий вид Блок БВ355-84 мод. 1 и 2 индикатора фиксирующего ФИС-1. Электрическая схема соединений (монтажная) и общий вид Индикаторы фиксирующие типов ЛИФП, ФПТ, ФПН и ФИС. Основание и установочные размеры функциональных блоков Индикаторы фиксирующие типов ФПТ и ФПН. Основание и установочные размеры функциональных блоков Измеритель неоднородностей линий Р5-10/1. Полные схемы и НКУ Измеритель неоднородностей линий Р5-10/1. Схема присоединения и соединений ряда зажимов панели ЭПО1086-84 Измеритель неоднородностей линий Р5-10/1. Панель ЭПО1086-84. Схема полная, соединений ряда зажимов и общий вид Монтажные чертежи защитного устройства и шинки ИИЛ Измеритель неоднородностей линий Р5-10/1. Защитное устройство и шинка ИИЛ в ОРУ 110 - 220 кВ (в железобетоне). Поясняющая схема, планы и разрезы Измеритель неоднородностей линий Р5-10/1. Защитное устройство и шинка ИИЛ в ОРУ 110 - 220 кВ (в металле). Поясняющая схема, планы и разрезы Измеритель неоднородностей линий Р5-10/1. Установка защитного устройства Строительные чертежи Измеритель неоднородностей линий Р5-10/1. Защитное устройство. Опора типа ТО-110п-1 под конденсатор связи СМП-66/V3 и фильтр присоединения ФПУ Измеритель неоднородностей линий Р5-10/1. Защитное устройство. Типы закреплений опоры в грунте Стальные изделия Марка ТМО-450 Марка МП (МП-1; МП-2) Марка МП (МП-3; МП-4) Марка МП (МП-5; МП-6) Марка МП (МП-7; МП-8) |
| Разработан: | Украинское отделение института Энергосетьпроект Минэнерго СССР |
| Утверждён: | 19.07.1984 Минэнерго СССР (USSR Minenergo 27) |
| Чем заменён: |


























































