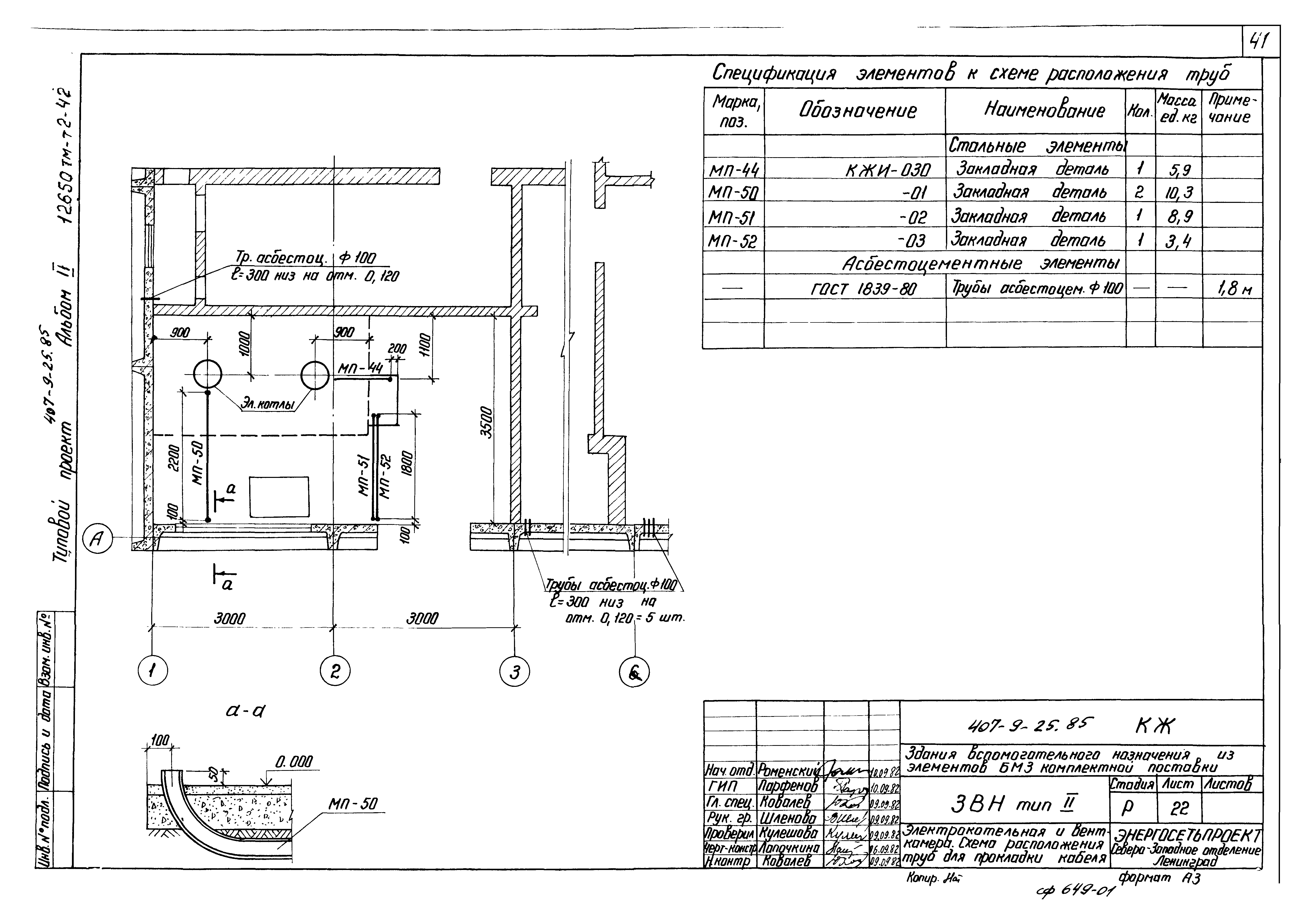
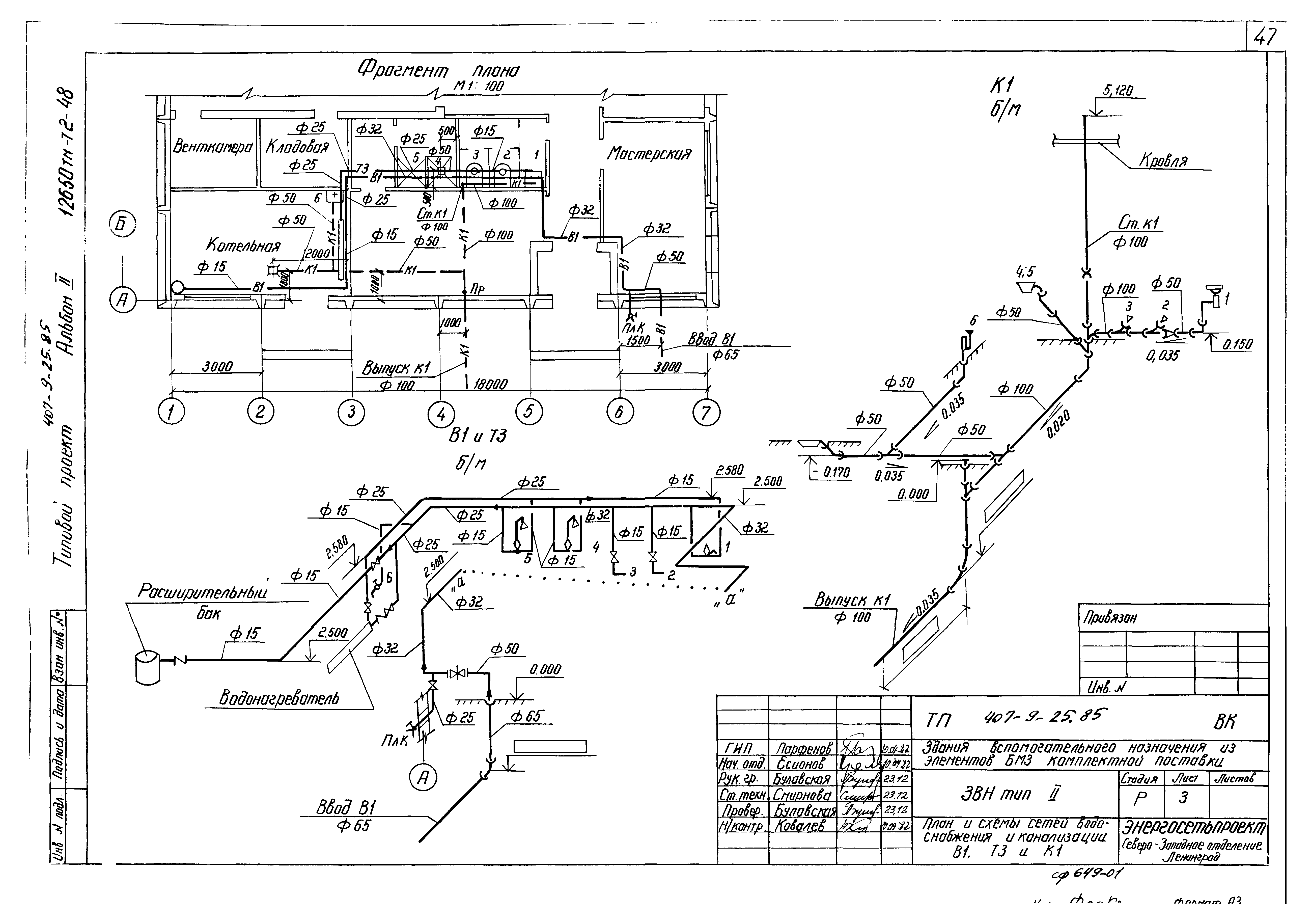
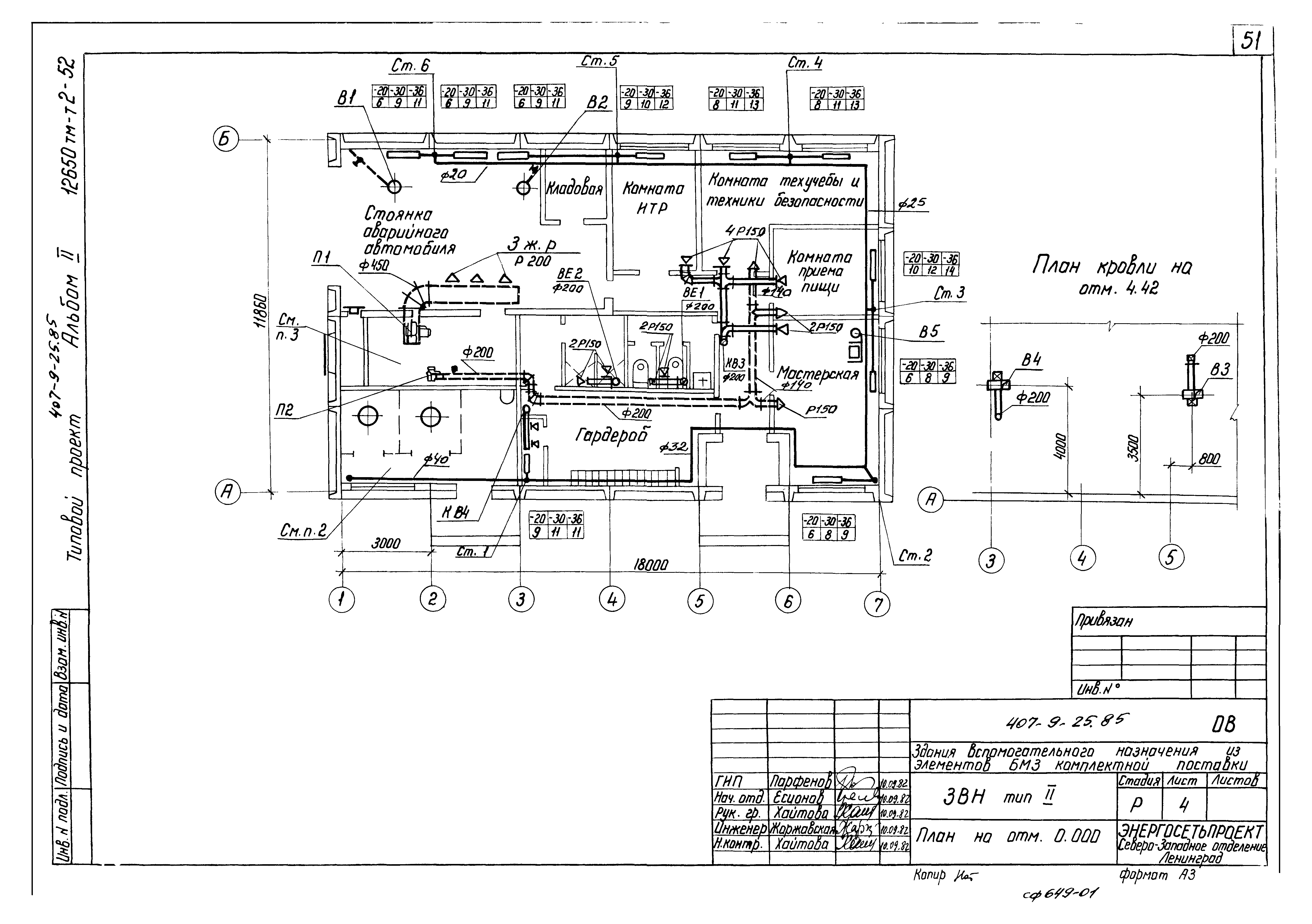
Скачать Типовой проект 407-9-25.85 Альбом II. Архитектурно-строительные и санитарно-технические решенияДата актуализации: 01.01.2021
|
| Обозначение: | Типовой проект 407-9-25.85 |
| Обозначение англ: | 407-9-25.85 |
| Статус: | заменен |
| Название рус.: | Альбом II. Архитектурно-строительные и санитарно-технические решения |
| Дата добавления в базу: | 01.01.2019 |
| Дата актуализации: | 01.01.2021 |
| Дата введения: | 14.12.1982 |
| Дата окончания срока действия: | 01.12.1990 |
| Разработан: | Северо-западное отделение института Энергосетьпроект |
| Утверждён: | 14.12.1982 Минэнерго СССР (USSR Minenergo 39) |
| Издан: | ЦИТП Госстроя СССР (CITP, Gosstroy (USSR) 1987 г. ) |
| Чем заменён: |


























































