Скачать Типовой проект 407-3-454.87 Альбом 1. Пояснительная записка. Схемы первичных электрических соединений и конструктивно-монтажные чертежи. Спецификации оборудования. Архитектурно-строительные решения. Ведомости потребности материаловДата актуализации: 01.01.2021
|
| Обозначение: | Типовой проект 407-3-454.87 |
| Обозначение англ: | 407-3-454.87 |
| Статус: | не определен законодательством |
| Название рус.: | Альбом 1. Пояснительная записка. Схемы первичных электрических соединений и конструктивно-монтажные чертежи. Спецификации оборудования. Архитектурно-строительные решения. Ведомости потребности материалов |
| Дата добавления в базу: | 01.10.2014 |
| Дата актуализации: | 01.01.2021 |
| Дата введения: | 03.03.1987 |
| Дата окончания срока действия: | 30.06.2003 |
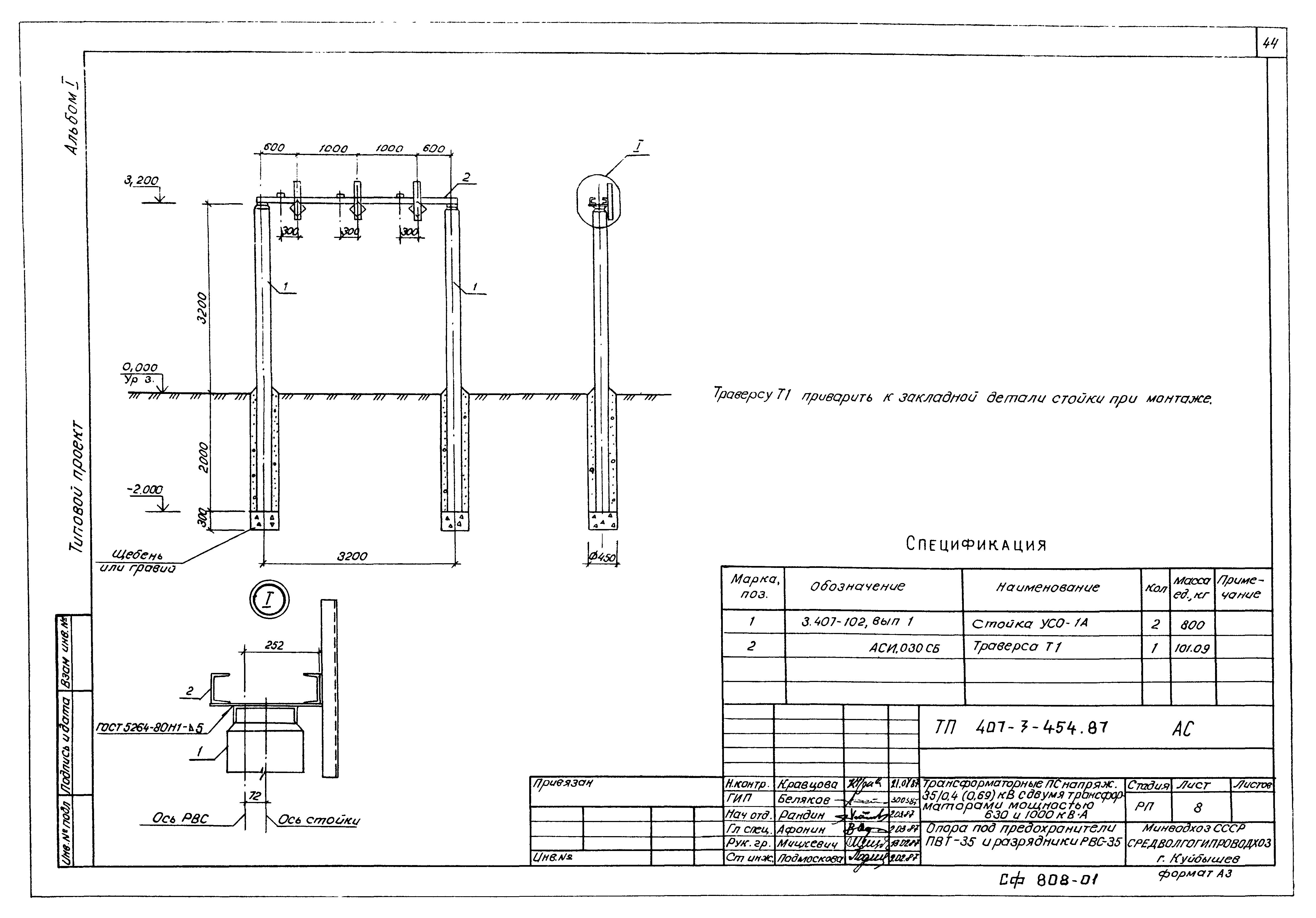
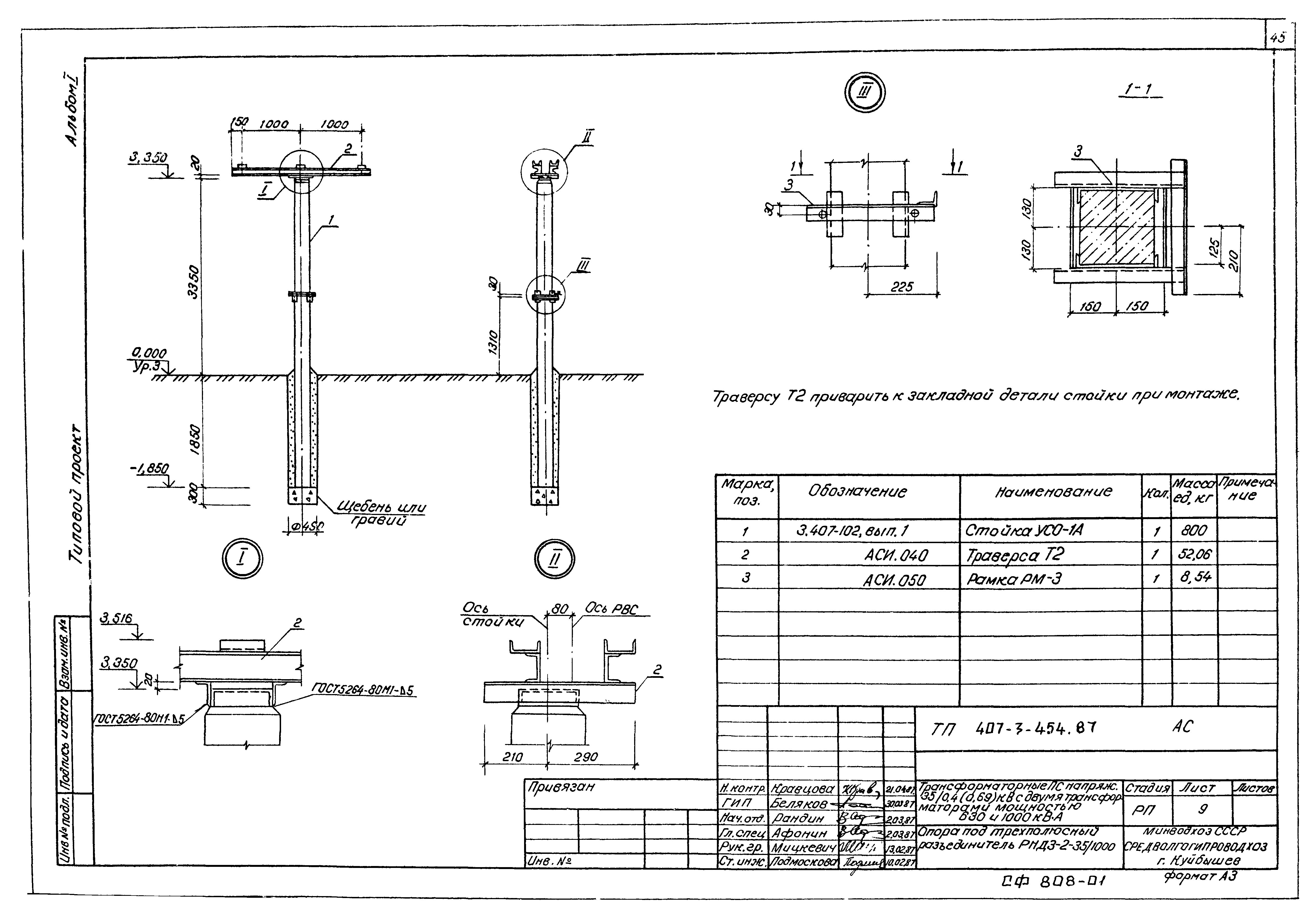
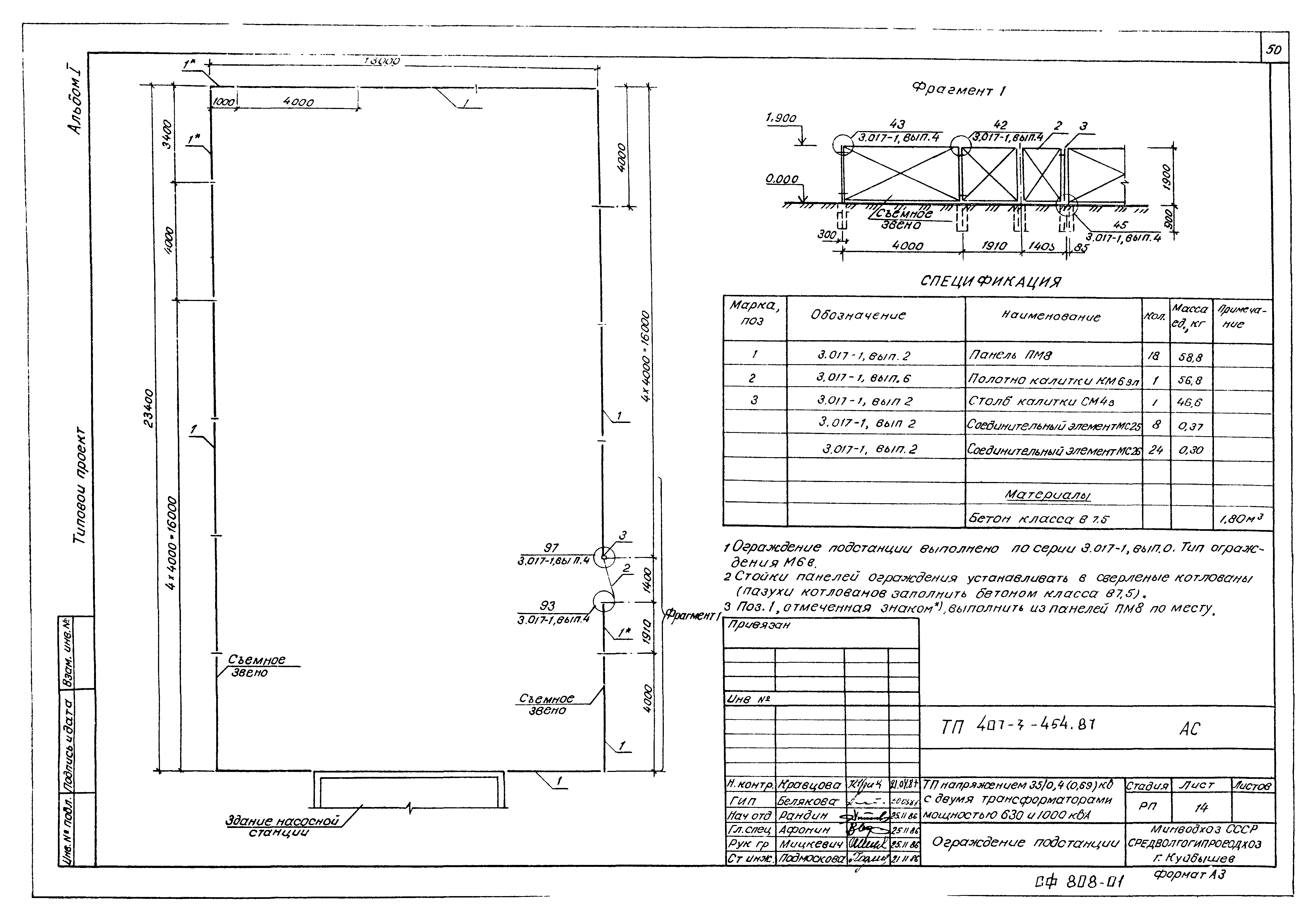
| Оглавление: | Пояснительная записка Электротехническая часть Общие данные Схема электрических соединений План Разрез 1-1 Узел А. Разрез Б-Б Раскладка кабелей. Принципиальная схема сигнализации. Кабельный журнал Схема блокировки Заземляющее устройство и наружное освещение подстанции Блок приема ВЛ 35 кВ Спецификация к листу 10 Установка трехполюсного разъединителя РНД3.2-35/1000У1 Установка опорных изоляторов ИОС-35-100УХЛ1 Узел I Установка механического блокировочного замка на приводе ПР-0,2-2УХЛ1 Установка механического блокировочного замка на калитке внутреннего ограждения Установка предохранителей ПВТ104-35-100-3241 и разрядников РВС-35У1 Спецификация к листу 17 Спецификация оборудования Ведомость потребности в материалах Архитектурно-строительные решения Общие данные План подстанции Разрез 1-1 Фундамент под трансформатор мощностью 630 кВА Фундамент под трансформатор мощностью 1000 кВА Опора под опорные изоляторы ОНШ-10 и разрядники РВН-0,5У1 Опора под предохранители ПВТ-35 и разрядники РВС-35 Опора под трехполюсный разъединитель РНДЗ-2-25/1000 Опора под блок изоляторов ИОС-35-500 с узлом крепления ошиновки Опора под блок изоляторов ИОС-35-500 Опора под блок приема ВЛ 35 кВ. Опора под шкаф противопожарного и эксплуатационного инвентаря Колодец-маслосборник Ограждение подстанции Внутреннее ограждение Ведомость потребности в материалах |
| Разработан: | Институт Средволгогипроводхоз |
| Утверждён: | 03.03.1987 Минводхоз СССР (USSR Minvodkhoz 529) |
























































