Скачать Типовой проект 407-3-398м.86 Альбом III. Электротехнические и санитарно-технические решенияДата актуализации: 01.01.2021
|
| Обозначение: | Типовой проект 407-3-398м.86 |
| Обозначение англ: | 407-3-398м.86 |
| Статус: | не определен законодательством |
| Название рус.: | Альбом III. Электротехнические и санитарно-технические решения |
| Дата добавления в базу: | 01.10.2014 |
| Дата актуализации: | 01.01.2021 |
| Дата введения: | 21.05.1984 |
| Дата окончания срока действия: | 30.06.2003 |
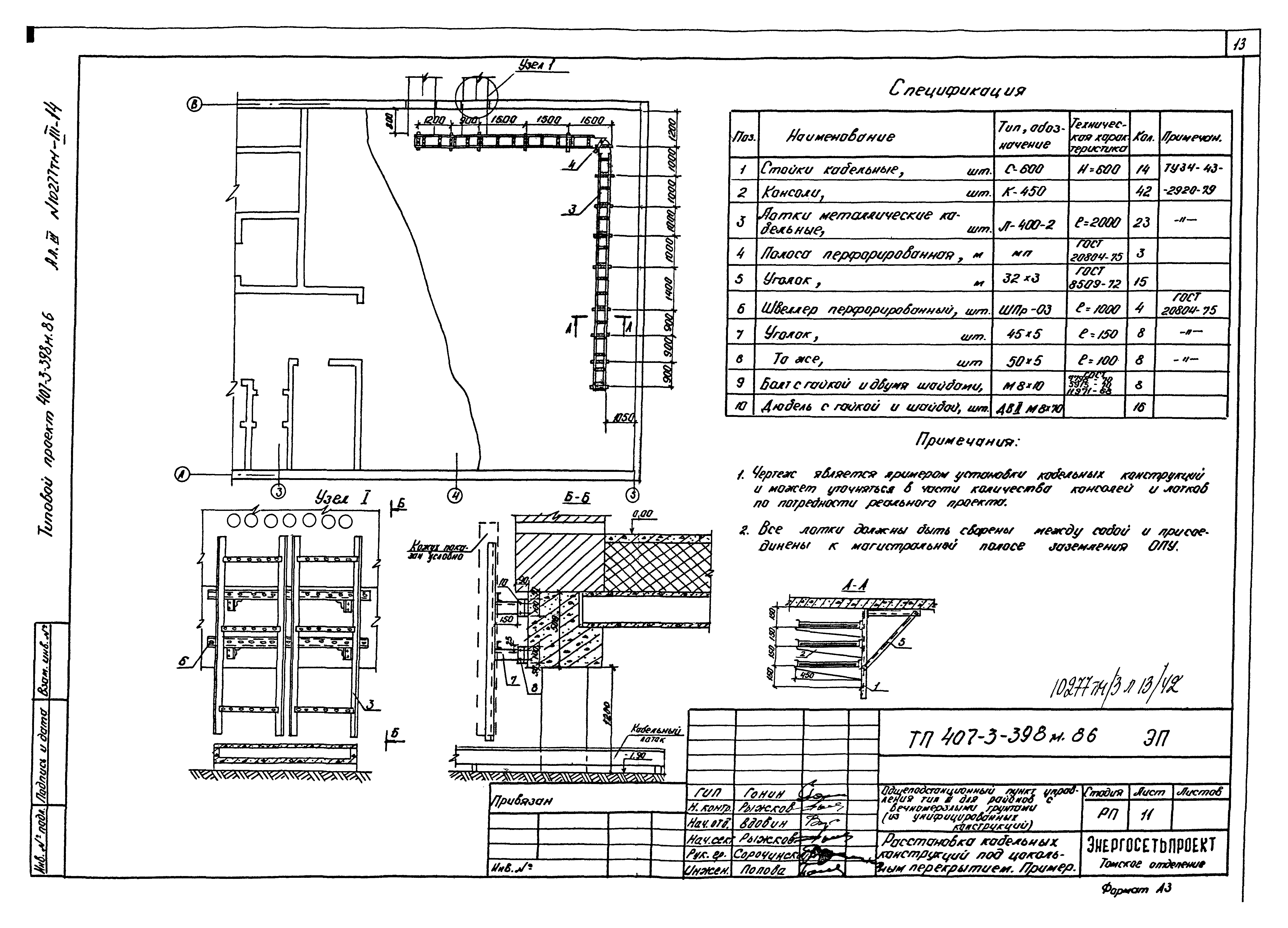
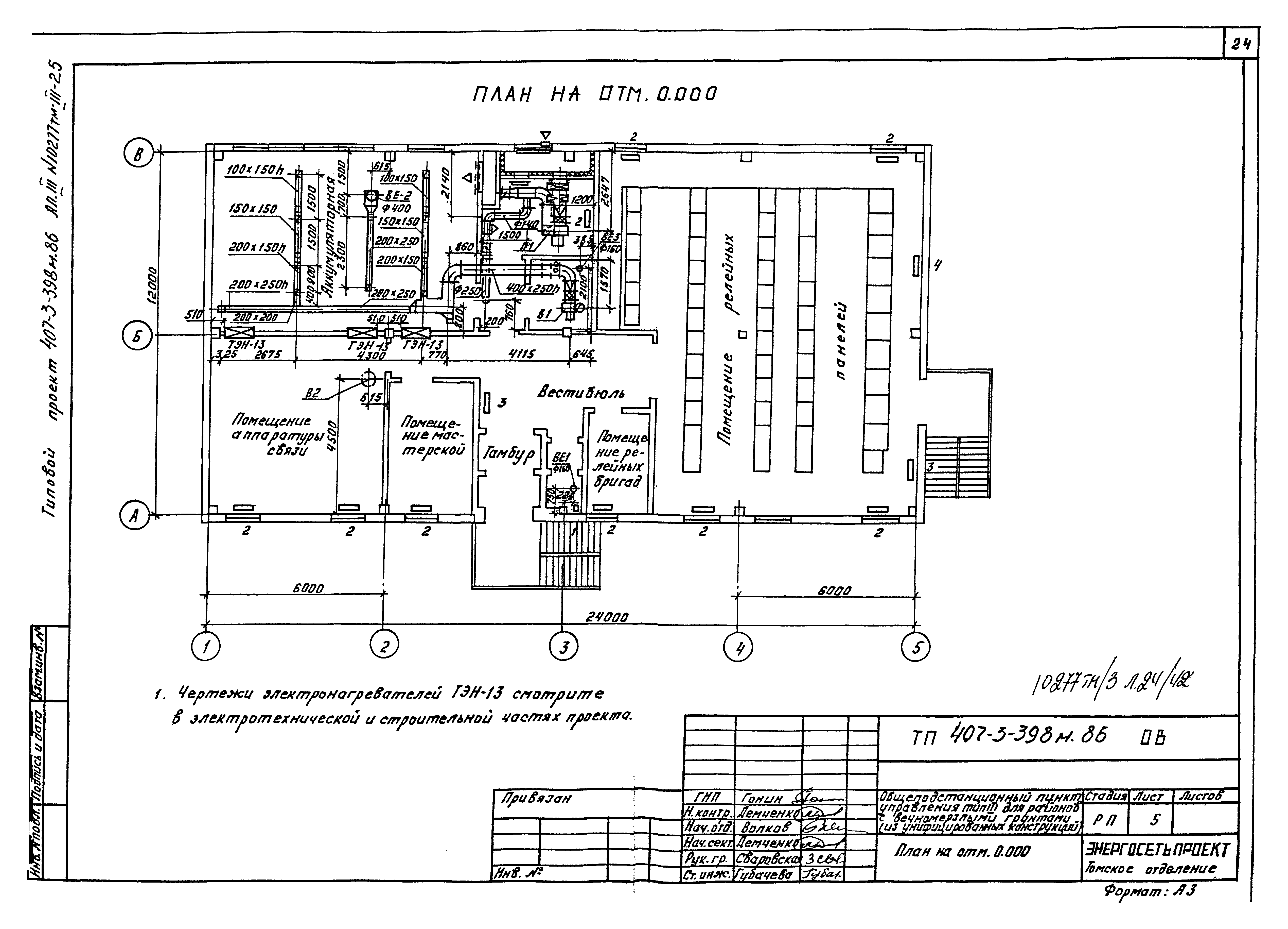
| Оглавление: | Содержание альбома Чертежи основного комплекта марки ЭП Общие данные Расположение электрического и технологического оборудования Перечень основного оборудования Электрическое освещение. План Электрическое освещение. Спецификация Электрическое освещение. Расчетная схема Силовое электрооборудование и электроотопление. План сети Силовое электрооборудование и электроотопление. Расчетная схема. Спецификация. Заземление План раскладки кабельных лотков. Пример План раскладки кабельных лотков. Узлы, разрезы Расстановка кабельных конструкций под цокольным перекрытием. Пример Установка электронагревателей для помещения аккумуляторной. Спецификация Установка электронагревателей для помещения аккумуляторной. Разрезы Спецификация оборудования Ведомость потребности в материалах Чертежи основного комплекта марки ОВ Общие данные План на отм. 0.000 Установка системы П1. План. Разрез 1-1, 2-2 Установка системы П1. Спецификация Установка системы В1. План. Разрез 1-1. Спецификация Схемы систем П1, В1, ВЕ1 - ВЕ3 Установка 1-ой, 2-х, 3-х электрических печей типа ПЭТ-4 Установка 4-х электрических печей типа ПЭТ-4. Спецификация Спецификация оборудования Чертежи основного комплекта марки ВК Общие данные План систем В-I и К-I. Установка поливочного крана Схема систем В-I и К-I Спецификация оборудования |
| Разработан: | Томское отделение Энергосетьпроекта |
| Утверждён: | 21.05.1984 Минэнерго СССР (USSR Minenergo 19) |










































