Скачать Серия 1.424-2 Выпуск 1. Колонны при шаге стропильных ферм 6 м для зданий, возводимых в несейсмических районах с расчетными температурами выше минус 40 градусов Цельсия. Чертежи КМДата актуализации: 01.01.2021
|
| Обозначение: | Серия 1.424-2 |
| Обозначение англ: | Series 1.424-2 |
| Статус: | заменен |
| Название рус.: | Выпуск 1. Колонны при шаге стропильных ферм 6 м для зданий, возводимых в несейсмических районах с расчетными температурами выше минус 40 градусов Цельсия. Чертежи КМ |
| Дата добавления в базу: | 01.09.2013 |
| Дата актуализации: | 01.01.2021 |
| Дата введения: | 01.03.1971 |
| Дата окончания срока действия: | 01.06.1975 |
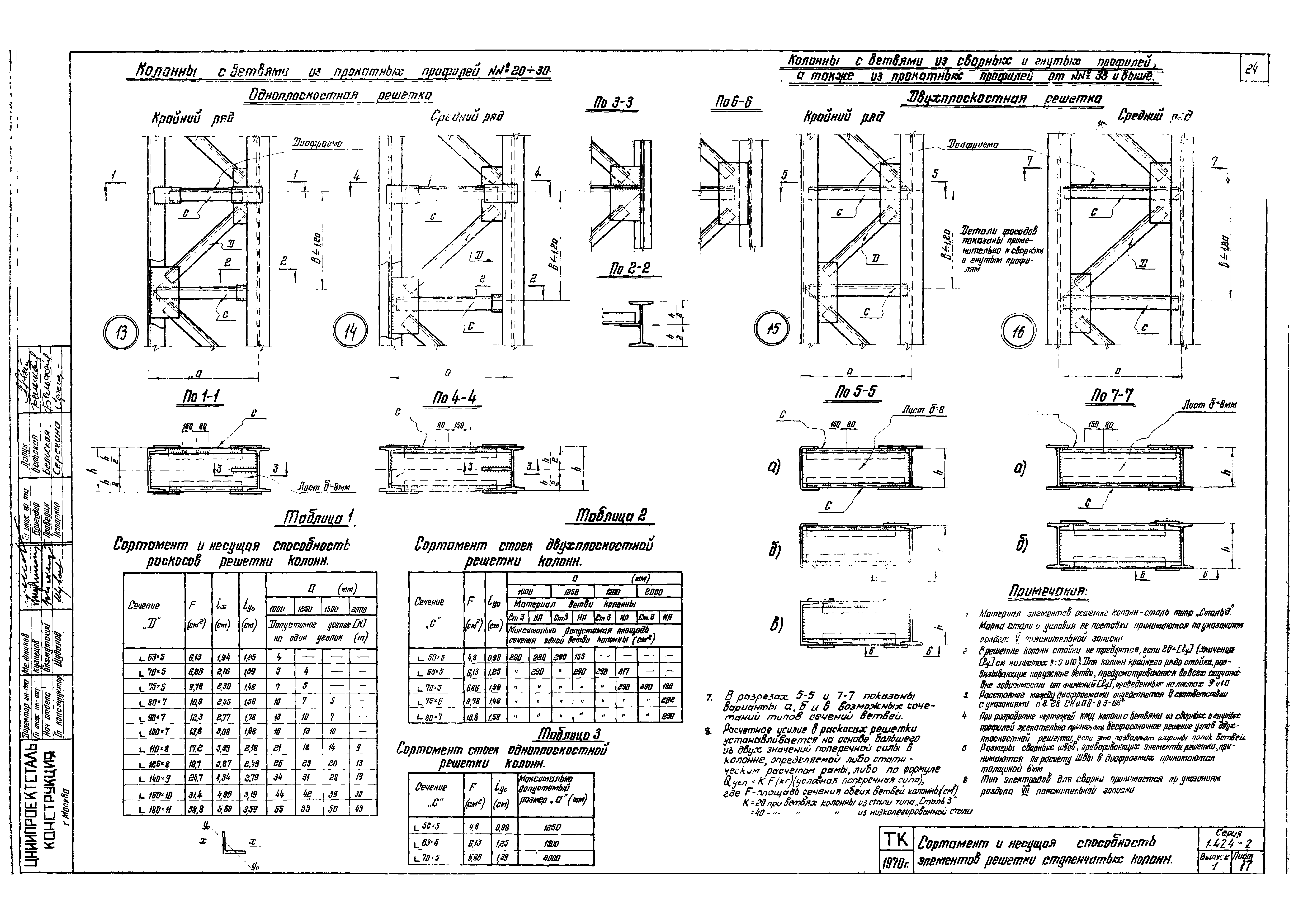
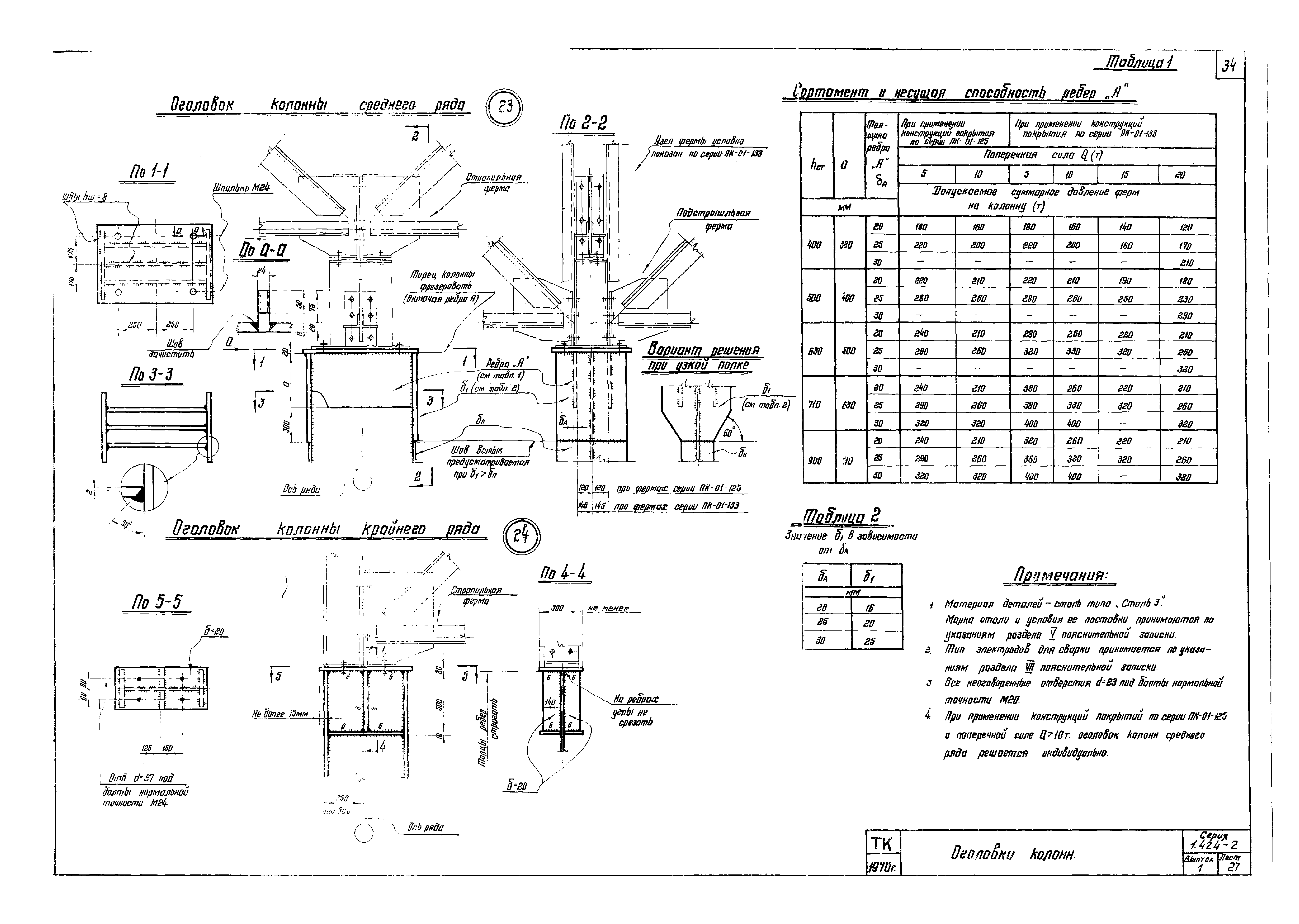
| Оглавление: | Пояснительная записка Габариты колонн при отсутствии проходов вдоль подкрановых путей Габариты колонн при наличии проходов вдоль подкрановых путей Схемы связей по ступенчатым колоннам Схемы связей по колоннам постоянного сечения Сортамент сварных двутавров с высотой стенки до 710 мм Сортамент сварных двутавров с высотой стенки 900 мм Сортамент гнутых швеллеров Таблица несущей способности сварных двутавров для подкрановых ветвей ступенчатых колонн Таблица несущей способности гнутых швеллеров для наружных ветвей ступенчатых колонн крайнего ряда Таблица несущей способности прокатных двутавров и швеллеров для ветвей ступенчатых колонн Таблица несущей способности сварных двутавров с высотой стенки до 710 мм для надкрановой части ступенчатых колонн. Сталь 3 Таблица несущей способности сварных двутавров с высотой стенки до 710 мм для надкрановой части ступенчатых колонн. Сталь низколегированная Таблица несущей способности сварных двутавров с высотой стенки 900 мм для надкрановой части ступенчатых колонн. Сталь 3 Таблица несущей способности сварных двутавров с высотой стенки 900 мм для надкрановой части ступенчатых колонн. Сталь низколегированная Таблица несущей способности сварных двутавров с высотой стенки до 710 мм для колонн постоянного сечения Таблица несущей способности сварных двутавров с высотой стенки 900 мм для колонн постоянного сечения Сортамент и несущая способность элементов решетки ступенчатых колонн Базы ступенчатых колонн с ветвями из сварных двутавров и гнутых швеллеров Базы ступенчатых колонн с ветвями из прокатных двутавров и прокатных или гнутых швеллеров Базы ступенчатых колонн у температурного шва Базы колонн постоянного сечения Сортамент анкерных плиток для баз колонн Подкрановые траверсы ступенчатых колонн Проемы в стенах колонн для проходов вдоль подкрановых путей и подкрановые консоли для колонн постоянного сечения Оголовки колонн Сортамент и несущая способность связей по колоннам Узлы связей по колоннам |
| Разработан: | ЦНИИпроектстальконструкция |
| Утверждён: | 15.12.1970 Госстрой СССР (Государственный комитет Совета Министров СССР по делам строительства) (USSR Gosstroy 158) |
| Чем заменён: |





































