Скачать Серия 1.424-2 Выпуск 2. Колонны при шаге стропильных ферм 12 м для зданий, возводимых в несейсмических районах с расчетными температурами выше минус 40 градусов Цельсия. Чертежи КМДата актуализации: 01.01.2021
|
| Обозначение: | Серия 1.424-2 |
| Обозначение англ: | Series 1.424-2 |
| Статус: | заменен |
| Название рус.: | Выпуск 2. Колонны при шаге стропильных ферм 12 м для зданий, возводимых в несейсмических районах с расчетными температурами выше минус 40 градусов Цельсия. Чертежи КМ |
| Дата добавления в базу: | 01.09.2013 |
| Дата актуализации: | 01.01.2021 |
| Дата введения: | 01.04.1972 |
| Дата окончания срока действия: | 01.06.1975 |
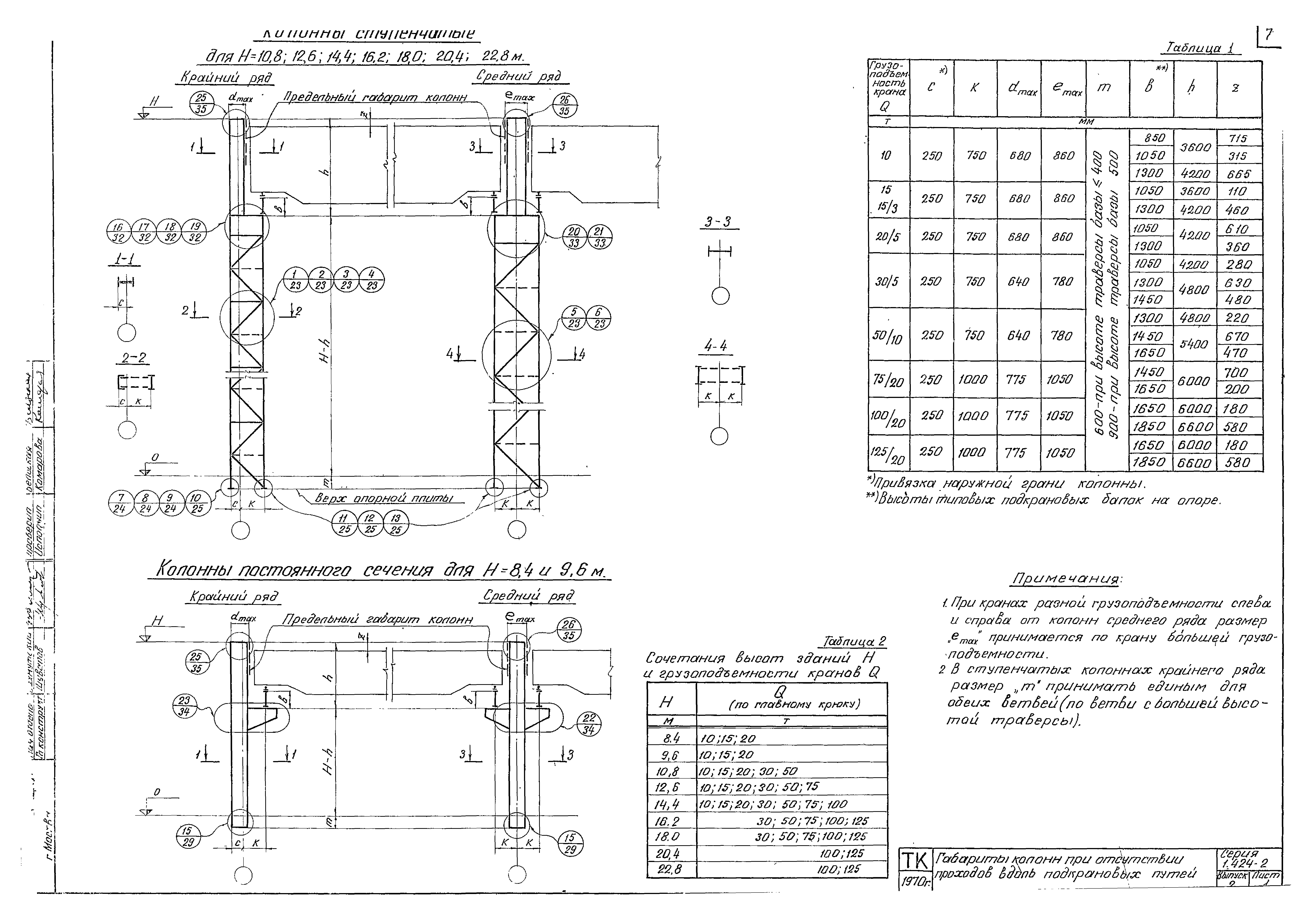
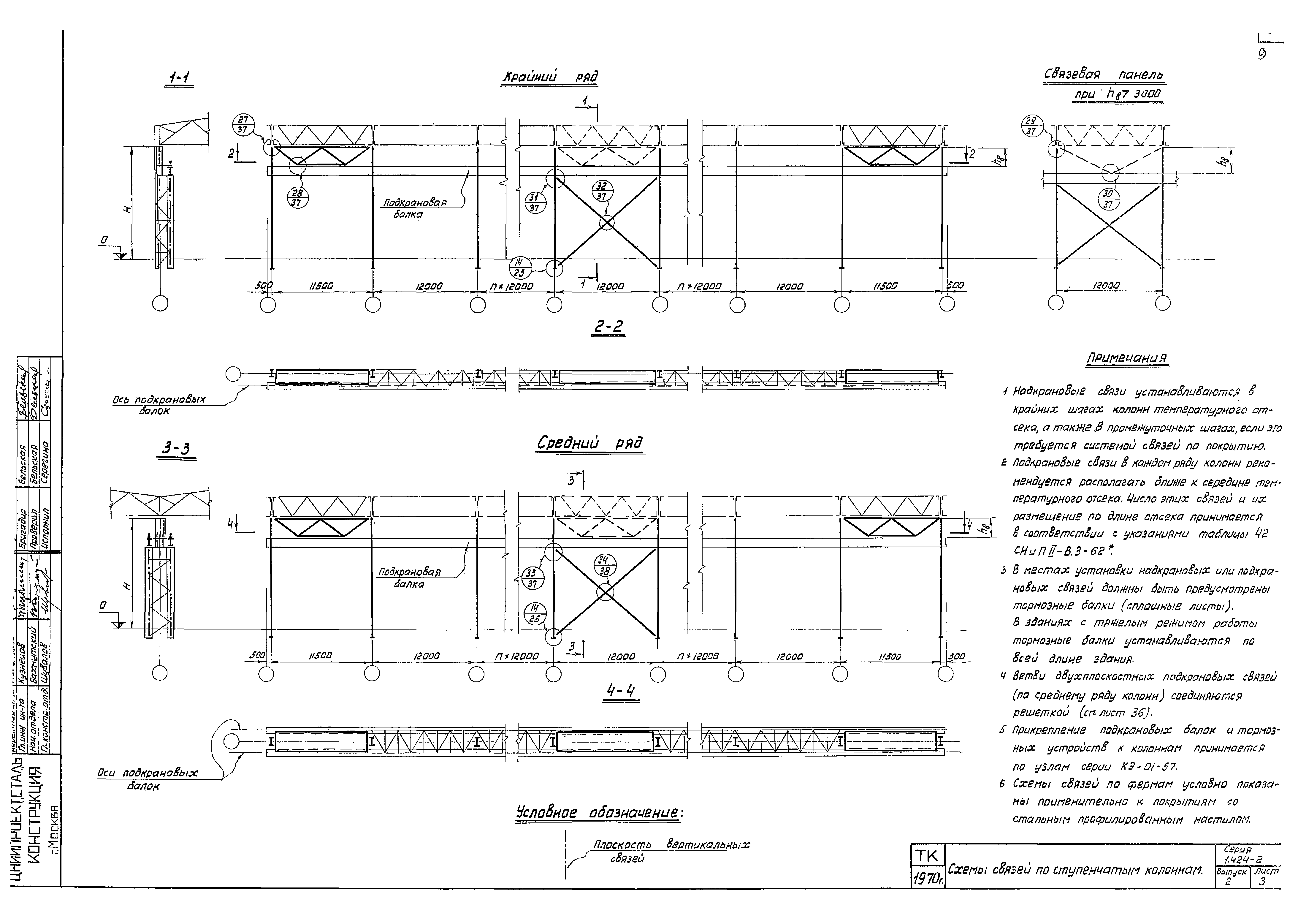
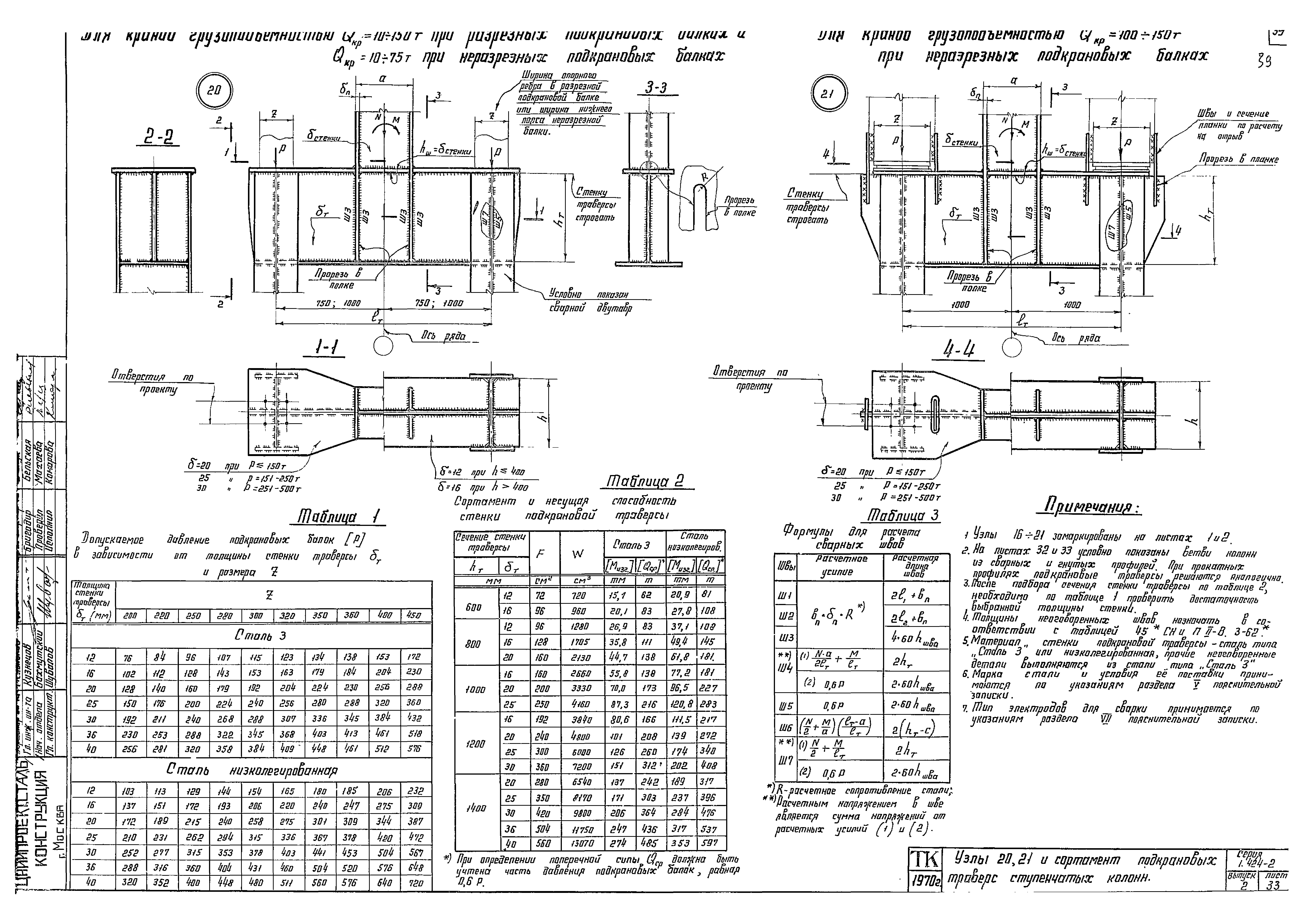
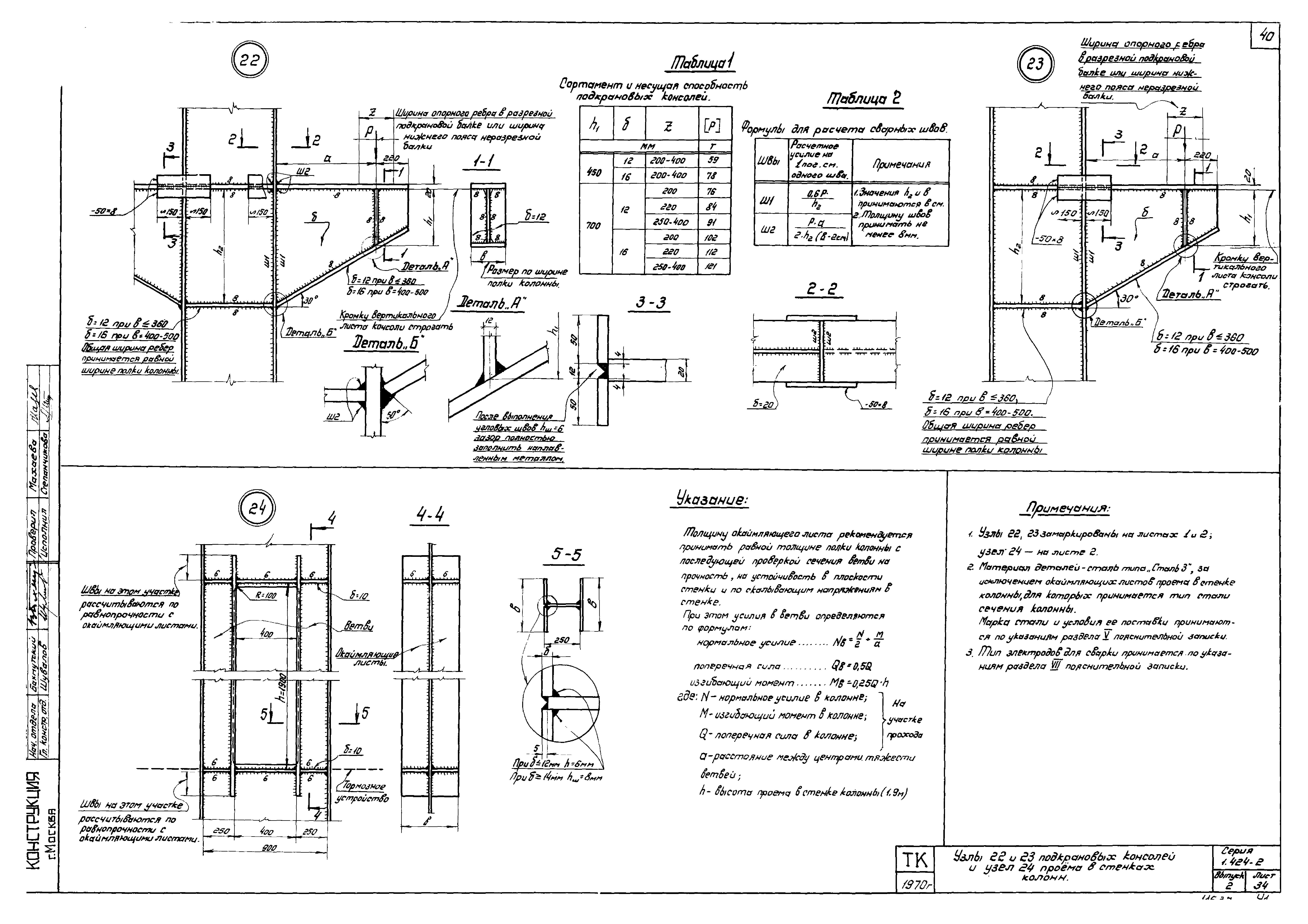
| Оглавление: | Пояснительная записка Габариты колонн при отсутствии проходов вдоль подкрановых путей Габариты колонн при наличии проходов вдоль подкрановых путей Схемы связей по ступенчатым колоннам Схемы связей по колоннам постоянного сечения Сортамент сварных двутавров с высотой стенки до 710 мм Сортамент сварных двутавров с высотой стенки 900 мм Сортамент гнутых швеллеров Сортамент сварных швеллеров Таблица несущей способности сварных двутавров для подкрановых ветвей ступенчатых колонн Таблица несущей способности гнутых швеллеров для наружных ветвей ступенчатых колонн крайнего ряда Таблица несущей способности сварных швеллеров для наружных ветвей ступенчатых колонн крайнего ряда Таблица несущей способности прокатных двутавров и швеллеров для ветвей ступенчатых колонн Таблица несущей способности сварных двутавров с высотой стенки до 710 мм для надкрановой части ступенчатых колонн. Сталь 3 Таблица несущей способности сварных двутавров с высотой стенки до 710 мм для надкрановой части ступенчатых колонн. Сталь низколегированная Таблица несущей способности сварных двутавров с высотой стенки 900 мм для надкрановой части ступенчатых колонн. Сталь 3 Таблица несущей способности сварных двутавров с высотой стенки 900 мм для надкрановой части ступенчатых колонн. Сталь низколегированная Таблица несущей способности сварных двутавров с высотой стенки до 710 мм для колонн постоянного сечения Таблица несущей способности сварных двутавров с высотой стенки 900 мм для колонн постоянного сечения Узлы 1 - 6 решетки ступенчатых колонн, сортамент и несущая способность элементов решетки Узлы 7 - 9 баз ступенчатых колонн Узлы 10 - 13 баз ступенчатых колонн и узел 14 связи Таблица размеров деталей баз наружных ветвей ступенчатых колонн крайнего ряда Таблица размеров деталей баз подкрановых ветвей ступенчатых колонн Базы ступенчатых колонн у температурного шва Узел 15 баз колонн постоянного сечения и таблица размеров деталей баз Сортамент анкерных плиток для баз колонн Узлы 16 - 19 подкрановых траверс ступенчатых колонн Узлы 20, 21 и сортамент подкрановых траверс ступенчатых колонн Узлы 22 и 23 подкрановых консолей и узел 24 проема в стенках колонн Узлы 25 и 26 оголовков колонн Сортамент и несущая способность связей по колоннам Узлы 27 - 35 и 42 связей по колоннам Узлы 34 - 37 связей по колоннам Узлы 38 - 41 крепления стеновых панелей Пример пользования выпуском |
| Разработан: | ЦНИИпроектстальконструкция Укрпроектстальконструкция |
| Утверждён: | 01.03.1972 Госстрой СССР (Государственный комитет Совета Министров СССР по делам строительства) (USSR Gosstroy 32) |
| Чем заменён: |

















































