Скачать Типовой проект 407-3-596.90 Альбом 2. Часть 2. Электротехнические решения. Схемы, компоновочные и конструктивно-монтажные чертежиДата актуализации: 01.01.2021
|
| Обозначение: | Типовой проект 407-3-596.90 |
| Обозначение англ: | 407-3-596.90 |
| Статус: | не определен законодательством |
| Название рус.: | Альбом 2. Часть 2. Электротехнические решения. Схемы, компоновочные и конструктивно-монтажные чертежи |
| Дата добавления в базу: | 01.09.2013 |
| Дата актуализации: | 01.01.2021 |
| Дата введения: | 01.02.1991 |
| Дата окончания срока действия: | 30.06.2003 |
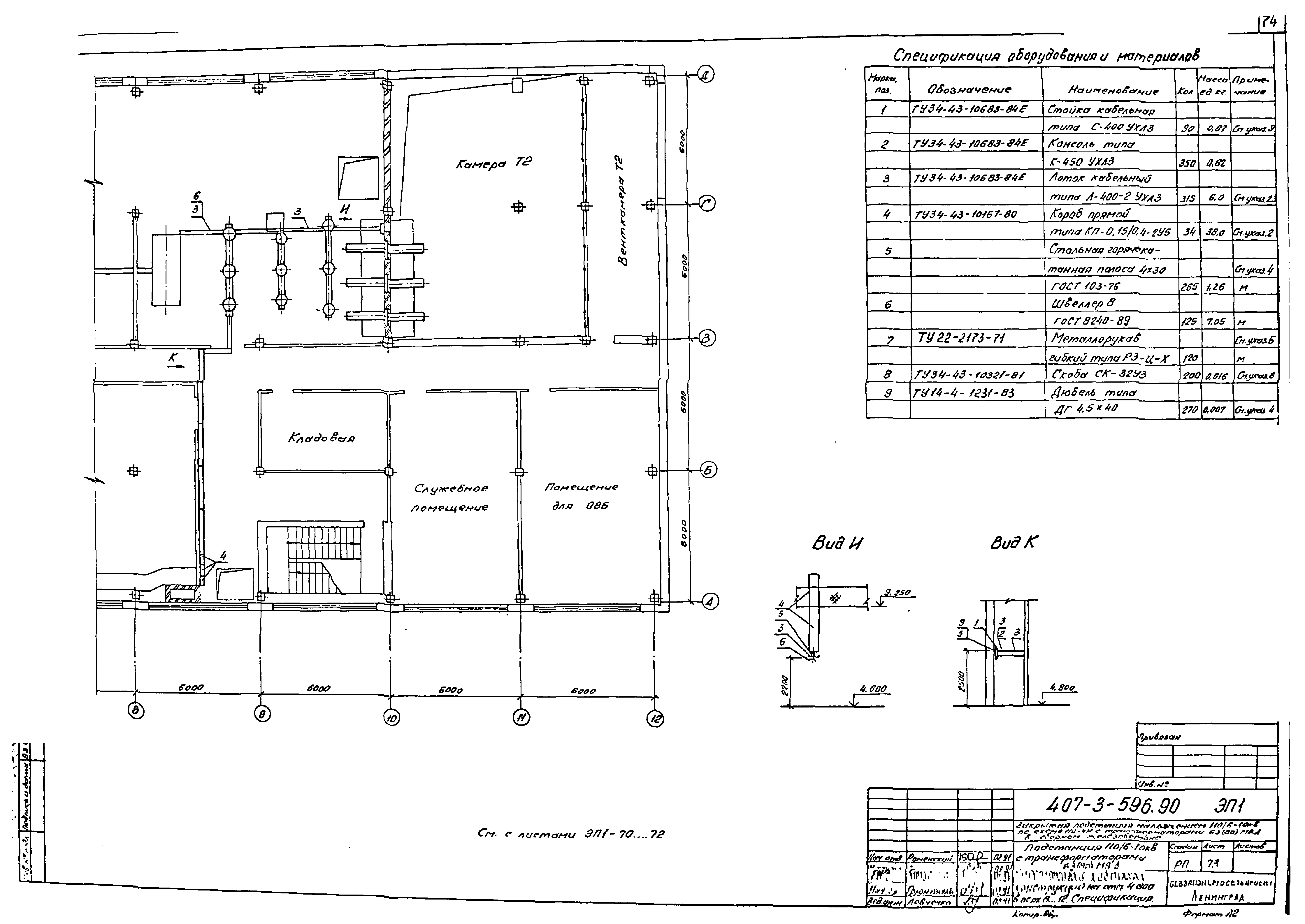
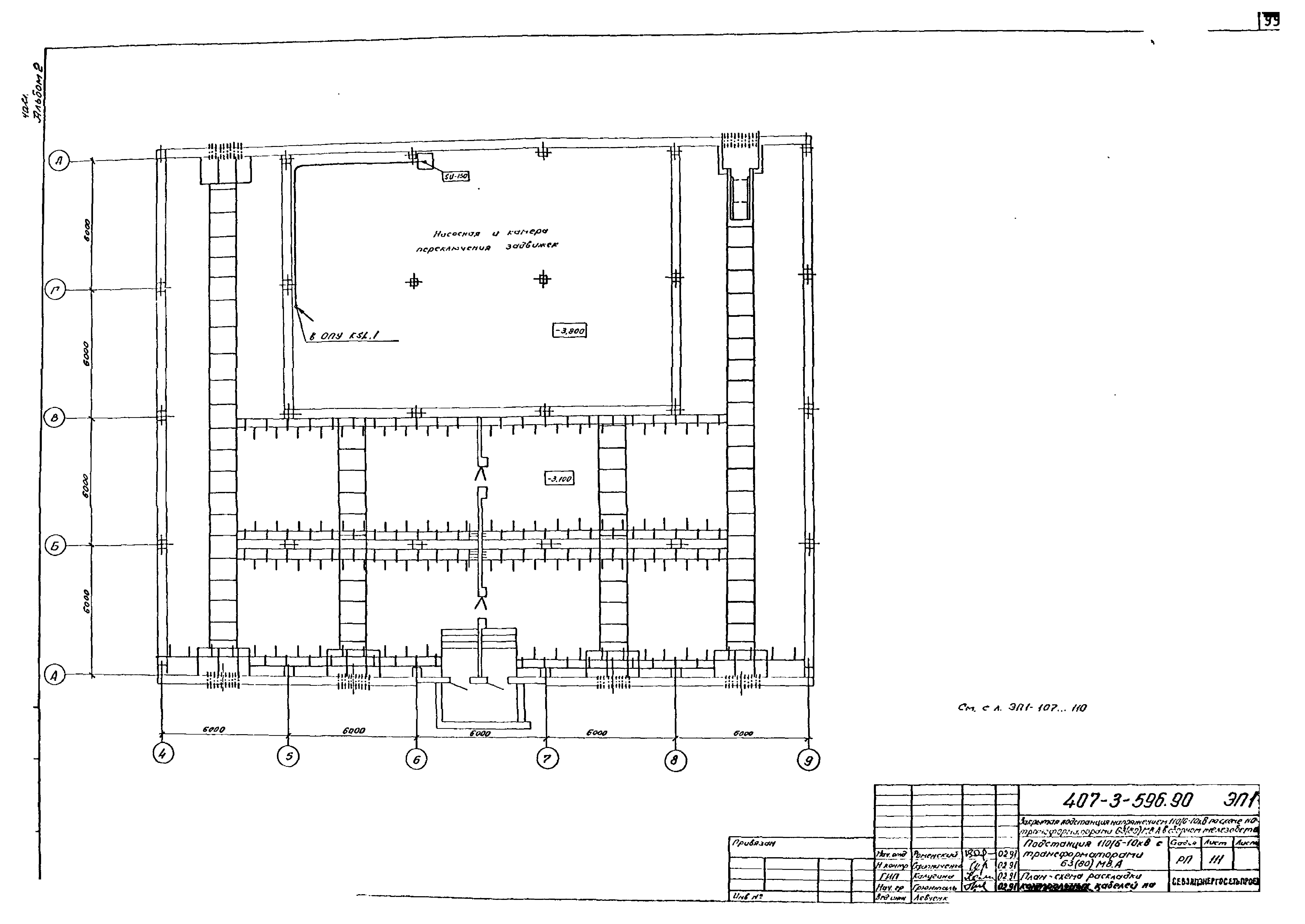
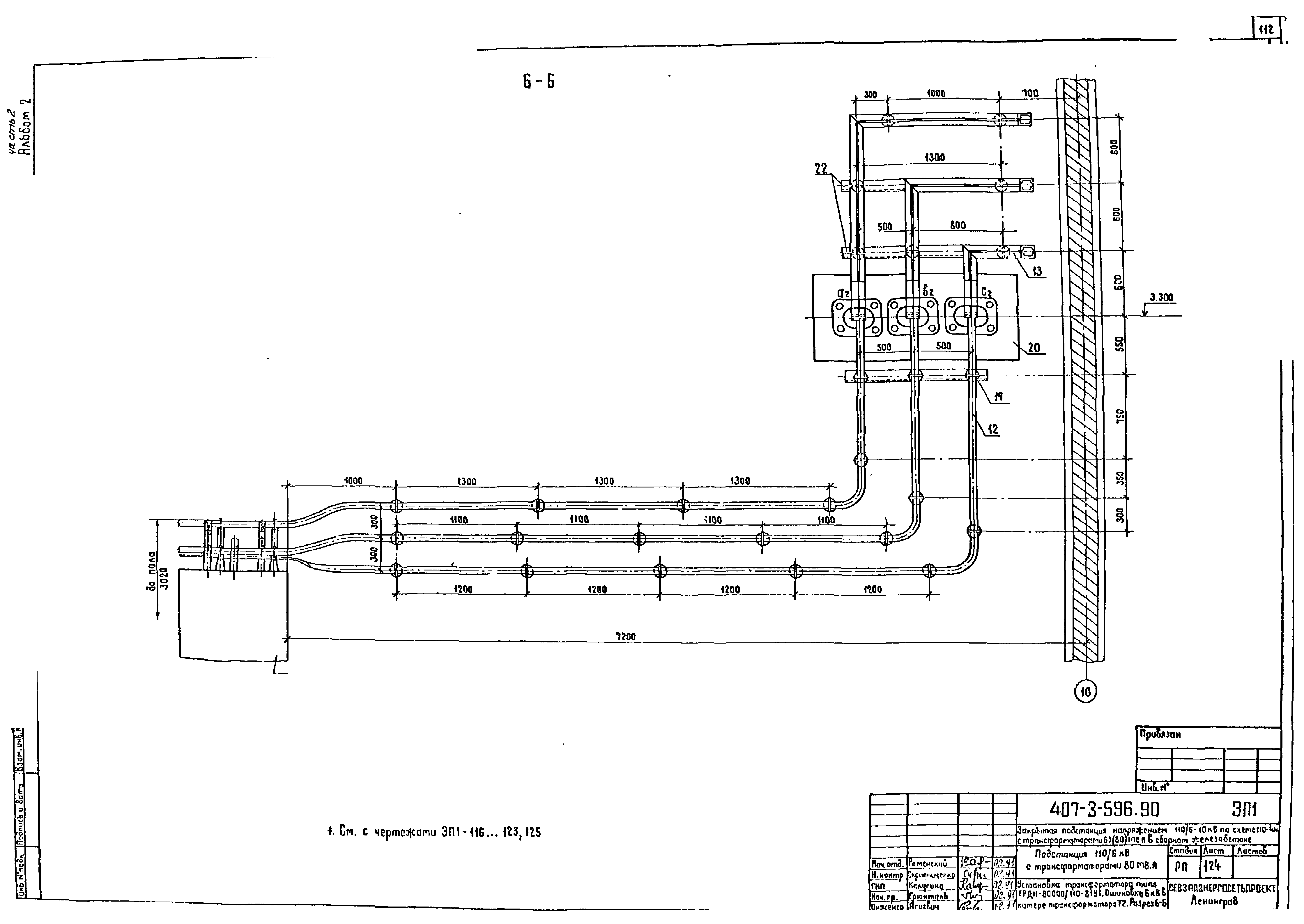
| Оглавление: | План сети отопления и вентиляции на отм. 4.800 в осях 1…8 План сети отопления и вентиляции на отм. 4.800 в осях 8…12. Схемы сети вентиляции План сети отопления и вентиляции на отм. 0.000 в осях 1…8 План сети отопления и вентиляции на отм. 0.000 в осях 8…12. Спецификация План сети отопления на отм. - 3.800. Схемы сети отопления План сети заземления подстанции на отм. 4.800 в осях 1…8 План сети заземления подстанции на отм. 4.800 в осях 8…12 План сети заземления подстанции на отм. 0.000 в осях 1…8 План сети заземления подстанции на отм. 0.000 в осях 8…12 План сети заземления подстанции на отм. - 3.100; - 3.800 в осях 4…9 Расстановка кабельных конструкций на отм. 0.000 в осях 1…8 Расстановка кабельных конструкций на отм. 0.000 в осях 8…12 Расстановка кабельных конструкций на отм. 4.800 в осях 1…8 Расстановка кабельных конструкций на отм. 4.800 в осях 8…12. Спецификация Расстановка кабельных конструкций на отм. - 3.100; - 3.800. План Расстановка кабельных конструкций на отм. - 3.100; - 3.800. Разрезы А-А и Б-Б. Вид В Журнал силовых кабелей Мастерская. План расположения технологического оборудования План-схема раскладки силовых кабелей на отм. 4.800 в осях 1…8 План-схема раскладки силовых кабелей на отм. 4.800 в осях 8…12 План-схема раскладки силовых кабелей на отм. 0.000 в осях 1…8 План-схема раскладки силовых кабелей на отм. 0.000 в осях 8…12 План-схема раскладки силовых кабелей на отм. - 3.100; - 3.800 Журнал контрольных кабелей План-схема раскладки контрольных кабелей на отм. 4.800 в осях 1…8 План-схема раскладки контрольных кабелей на отм. 4.800 в осях 8…12 План-схема раскладки контрольных кабелей на отм. 0.000 в осях 1…8 План-схема раскладки контрольных кабелей на отм. 0.000 в осях 8…12 План-схема раскладки контрольных кабелей на отм. - 3.800 Фрагменты плана подстанции для варианта с кабельными вводами на отм. 0.000; - 3.100; - 3.800. Разрез План ЗРУ110 кВ. Разрез 1-1. Вариант с кабельными вводами ЗРУ110 кВ. Разрез 2-2. Вариант с кабельными вводами Спецификация оборудования и материалов к листам ЭП1-113, 114 Установка трансформаторов типа ТРДН-80000/110У1 Т1 и Т2. Планы Установка трансформаторов типа ТРДН-60000/110У1 Т1 и Т2. Разрезы А-А и В-В Установка трансформаторов типа ТРДН-80000/110У1 Т1 и Т2. Разрезы Б-Б и Г-Г Установка трансформатора типа ТРДН-80000/110-80У1. Ошиновка 6 кВ в камере трансформатора Т1. План Установка трансформатора типа ТРДН-80000/110-80У1. Ошиновка 6 кВ в камере трансформатора Т1. Разрез А-А Установка трансформатора типа ТРДН-80000/110-80У1. Ошиновка 6 кВ в камере трансформатора Т1. Разрез Б-Б Установка трансформатора типа ТРДН-80000/110-80У1. Ошиновка 6 кВ в камере трансформатора Т2. План Установка трансформатора типа ТРДН-80000/110-80У1. Ошиновка 6 кВ в камере трансформатора Т2. Разрез А-А Установка трансформатора типа ТРДН-80000/110-80У1. Ошиновка 6 кВ в камере трансформатора Т2. Разрез Б-Б Установка трансформатора типа ТРДН-80000/110-80У1. Узлы. Разрезы. Спецификация План размещения концевых муфт на ПС. Разрез. Спецификация Фрагменты плана подстанции для варианта с кабельными вводами на отм. 0.000; - 3.100. Отопление. Освещение ЗРУ10 кВ по схеме 10(6)-3 со шкафами серии К-104 на ток до 2600 А. План. Разрез. Спецификация ЗРУ10 кВ по схеме 10(6)-2 со шкафами серии К-104 на ток до 2600 А. План. Разрез. Спецификация ЗРУ10 кВ по схеме 10(6)-2 со шкафами серии КМ-1 (КМ-1Ф) на ток до 3150 А. План. Разрез. Спецификация |
| Разработан: | Севзапэнергосетьпроект |
| Утверждён: | 01.02.1991 Минэнерго СССР (USSR Minenergo 1) |
| Издан: | Севзапэнергосетьпроект (1991 г. ) |


























































