Скачать Типовой проект 407-3-596.90 Альбом 5. Архитектурно-строительные решенияДата актуализации: 01.01.2021
|
| Обозначение: | Типовой проект 407-3-596.90 |
| Обозначение англ: | 407-3-596.90 |
| Статус: | не определен законодательством |
| Название рус.: | Альбом 5. Архитектурно-строительные решения |
| Дата добавления в базу: | 01.09.2013 |
| Дата актуализации: | 01.01.2021 |
| Дата введения: | 01.02.1991 |
| Дата окончания срока действия: | 30.06.2003 |
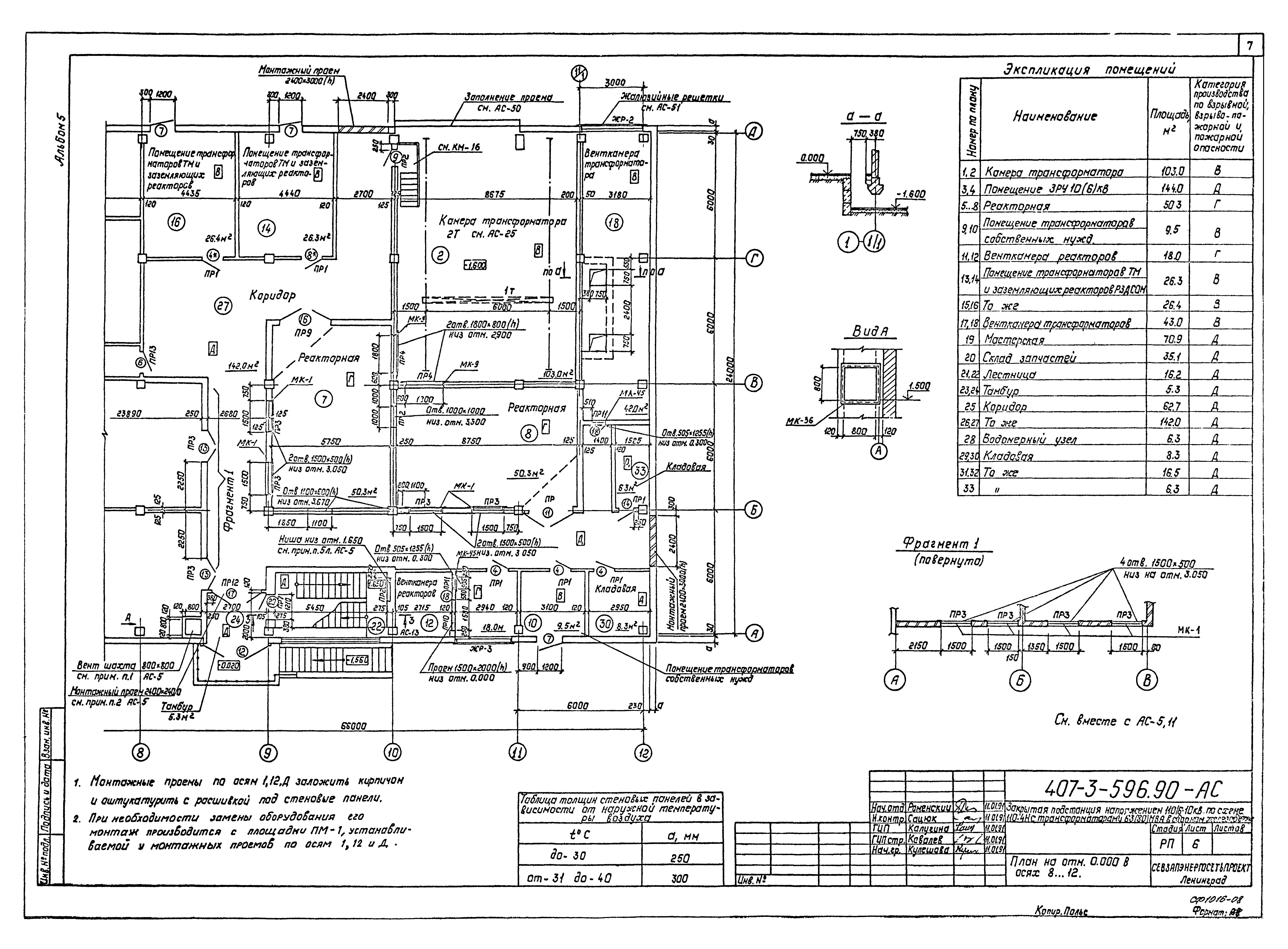
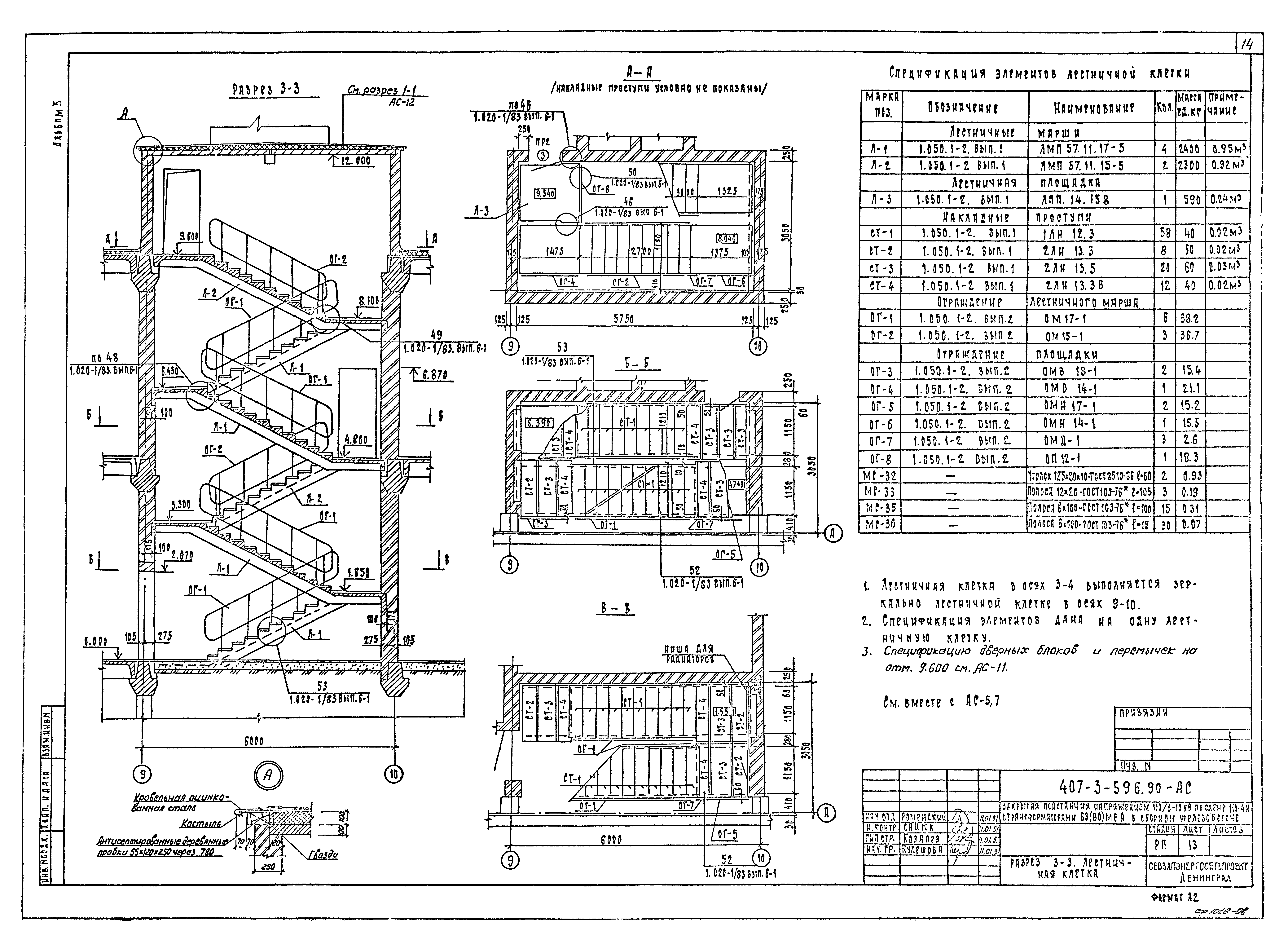
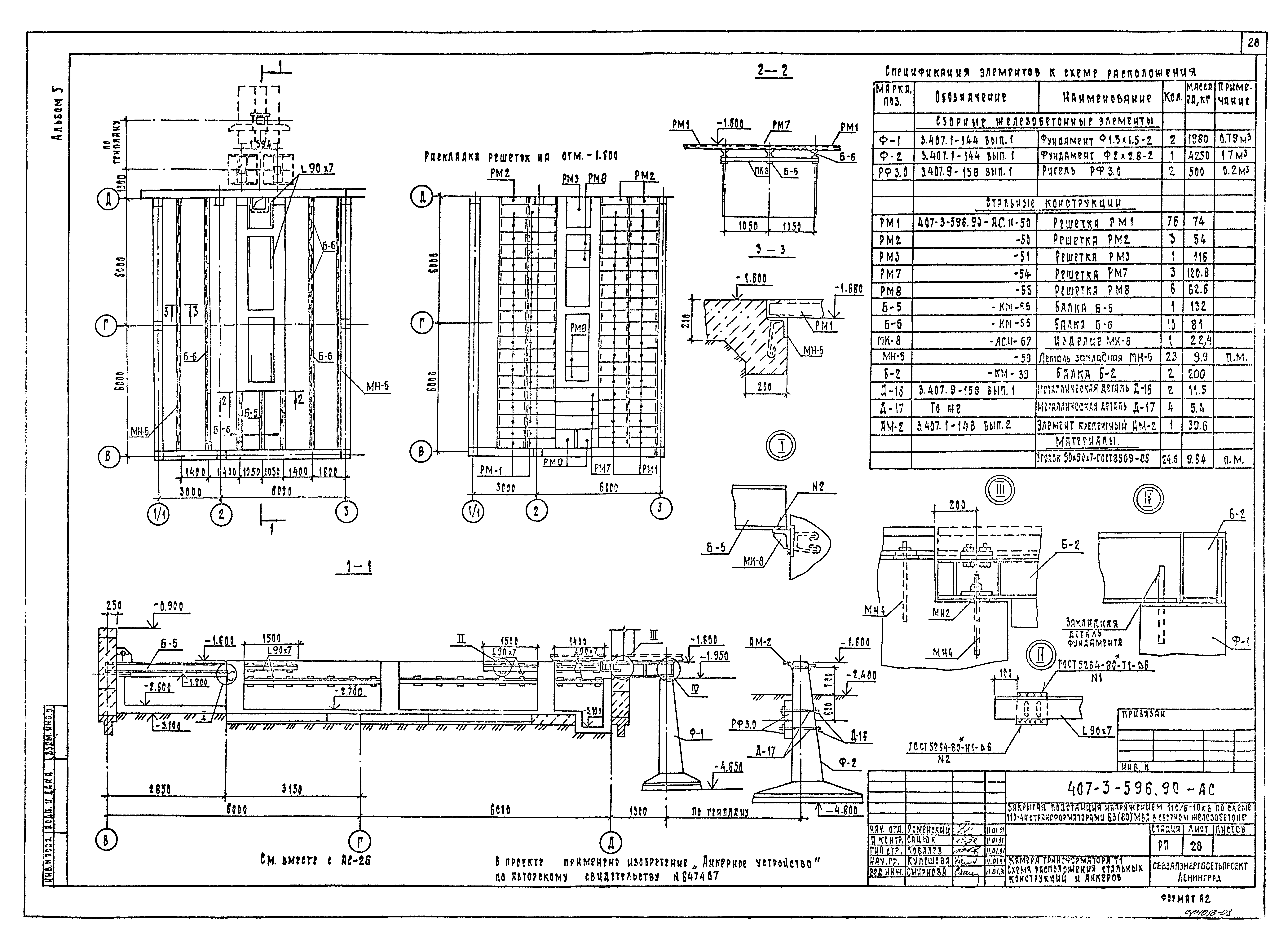
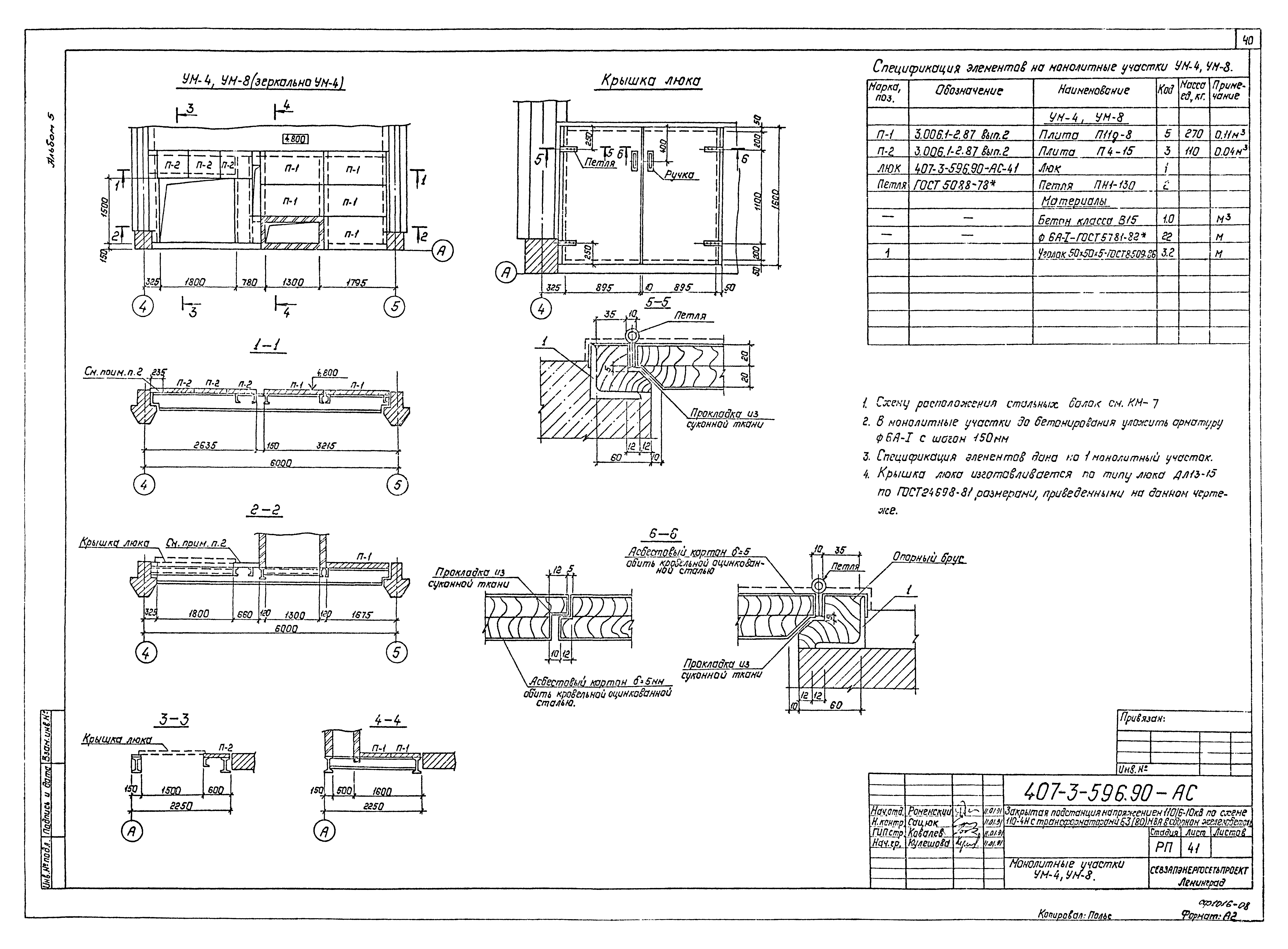
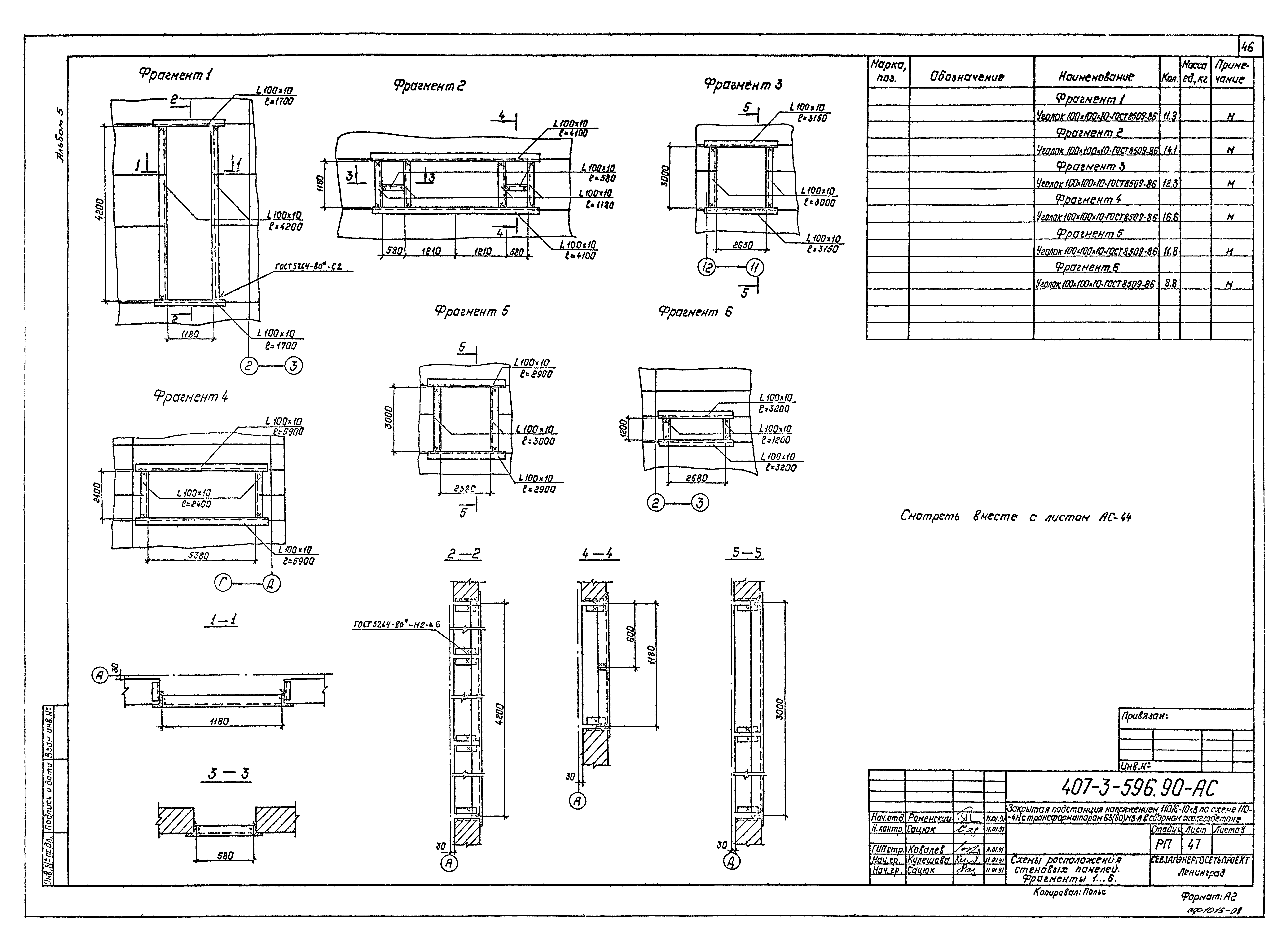
| Оглавление: | Общие данные План на отм. 0.000 в осях 1…8 План на отм. 0.000 в осях 8…12 План на отм. 4.800 в осях 1…8 План на отм. 4.800 в осях 8…12 План на отм. - 3.100 и - 3.800 План на отм. - 3.100 и - 3.800. Сечения и узлы Ведомости проемов ворот, дверей и перемычек. Спецификации перемычек, элементов проемов Разрезы 1-1, 2-2 Разрез 3-3. Лестничная клетка Фасады План полов План кровли Архитектурные детали 1…5 Фрагмент фасада 1 Фрагмент фасада 2 Фрагменты фасадов 3 и 4 Схемы заполнения оконных проемов ОК-1…ОК-4 Схема расположения фундаментов. Разрез 1-1 Схема расположения фундаментов. Разрезы 2-2…6-6 Схема расположения фундаментов. Разрезы 7-7…14-14 Камера трансформатора Т1. Схема расположения фундамента под трансформатор Фундамент под трансформатор Фм1. Геометрические размеры. Армирование. Сечения 1-1…5-5 Камера трансформатора Т1. План маслоприемника. Схема расположения решеток на отм. - 1.980 Камера трансформатора Т1. План маслоприемника. Схема расположения стальных конструкций и анкеров Крыльцо входа Камеры реакторов. Схемы расположения фундаментов, сетчатого ограждения Камеры реакторов. Схемы расположения каналов и асбестоцементных досок Фундамент под трансформатор Фм1. Армирование. Сечения 6-6, 7-7. Ведомости деталей, расхода стали Фундаменты под реакторы ФОм-1, ФОм-2 Каркас здания. Схемы расположения колонн и ригелей на отм. 0.000; 4.800; 9.600 и балок покрытия Каркас здания. Сечения, узлы Каркас здания. Спецификация Схемы расположения плит перекрытия на отм. 0.000 и 4.800 Схемы расположения плит покрытия на отм. 9.600; 14.700 и 12.100 Монолитные участки Ум-1, Ум-2 Монолитные участки Ум-3, Ум-10 Монолитные участки Ум-4, Ум-8 Монолитные участки Ум-5, Ум-6, Ум-7, Ум-9 Схема расположения закладных элементов в перекрытии на отм. 0.000 Схемы расположения стеновых панелей по осям А, Д, 12, 1 Схемы расположения стеновых панелей по осям А, Д, 12, 1. Спецификация элементов Схемы расположения стеновых панелей по оси В Схемы расположения стеновых панелей. Фрагменты 1…6 Схемы расположения стеновых панелей. Узлы 1…9 Схемы расположения стеновых панелей. Узлы 10…17 Схема расположения панелей монтажного проема Схемы расположения жалюзийных решеток в наружных стенах Схема элементов козырька входа Камера трансформатора собственных нужд. План, схема сетчатого ограждения Камера трансформатора ТМ и заземляющего реактора РЗДСОМ. Схема расположения металлоконструкций Камера трансформатора ТМ и заземляющего реактора РЗДСОМ. Схема сетчатого ограждения План ЗРУ 10(6) кВ на 8 секций со шкафами КМ-1ф на ток 1600 А Помещение релейных панелей. Схема расположения металлоконструкций Помещение релейных панелей. Схема расположения асбестоцементных досок Схема расположения закладных элементов в перекрытии в ЗРУ 110 кВ Схема расположения стальных элементов в кабельном помещении Помещение насосной и камеры переключения задвижек. Схема расположения монорельса, фундамента ФОм-3 Устройство для создания уклона трансформаторов Схемы расположения закладных элементов в перекрытии над камерами реакторов Установочный чертеж дверей ПД-1, ПД-2 Фрагменты планов на отм. 0.000 и 4.800. Разрез 1-1 (вариант с кабельными вводами) План на отм. -3.100 и - 3.800 (вариант с кабельными вводами) План на отм. -3.100 и - 3.800. Сечения. Узлы (вариант с кабельными вводами) |
| Разработан: | Севзапэнергосетьпроект |
| Утверждён: | 01.02.1991 Минэнерго СССР (USSR Minenergo 1) |
| Издан: | Севзапэнергосетьпроект (1991 г. ) |

































































