Скачать Типовой проект 407-3-596.90 Альбом 6. Конструкции металлическиеДата актуализации: 01.01.2021
|
| Обозначение: | Типовой проект 407-3-596.90 |
| Обозначение англ: | 407-3-596.90 |
| Статус: | не определен законодательством |
| Название рус.: | Альбом 6. Конструкции металлические |
| Дата добавления в базу: | 01.09.2013 |
| Дата актуализации: | 01.01.2021 |
| Дата введения: | 01.02.1991 |
| Дата окончания срока действия: | 30.06.2003 |
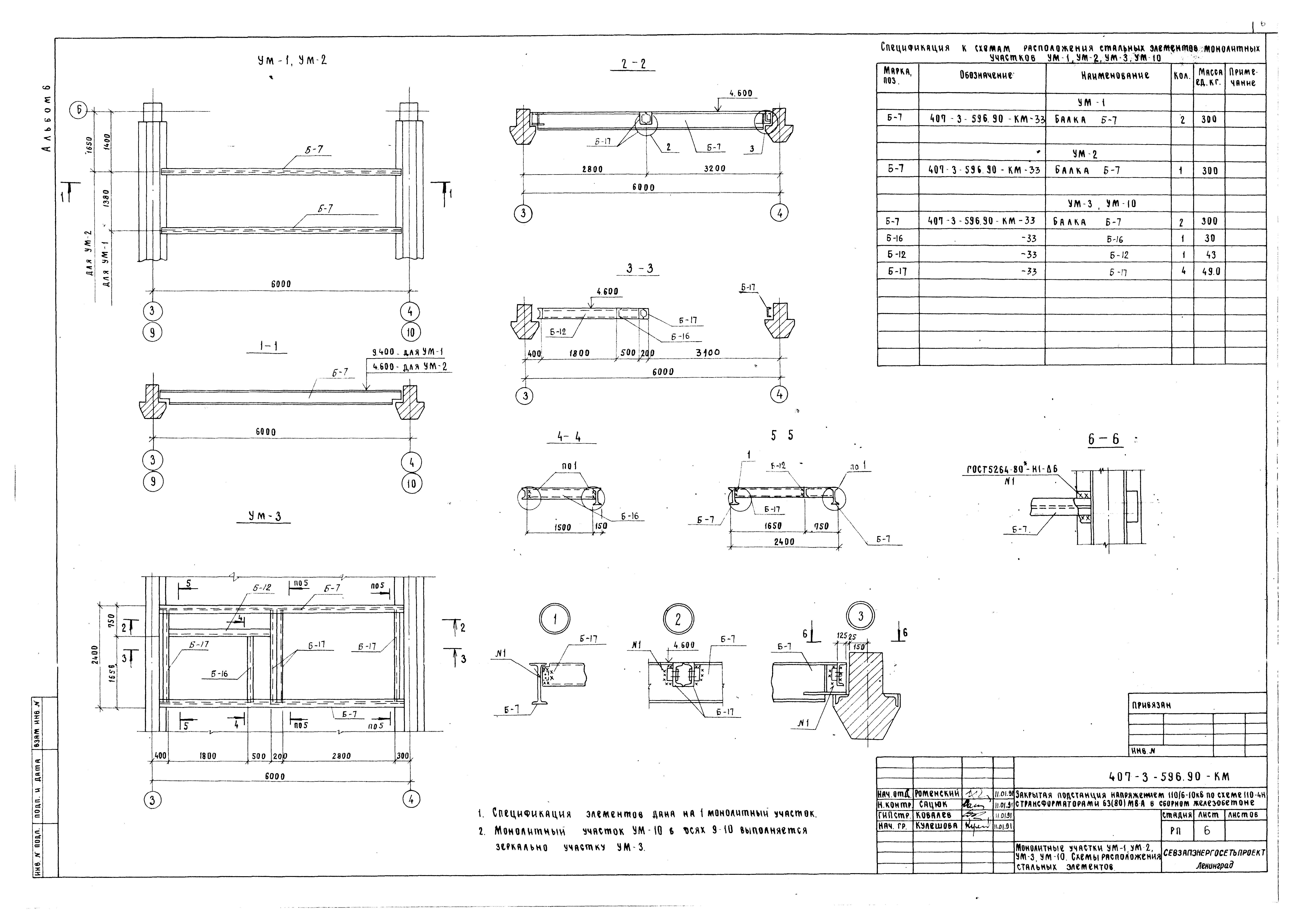
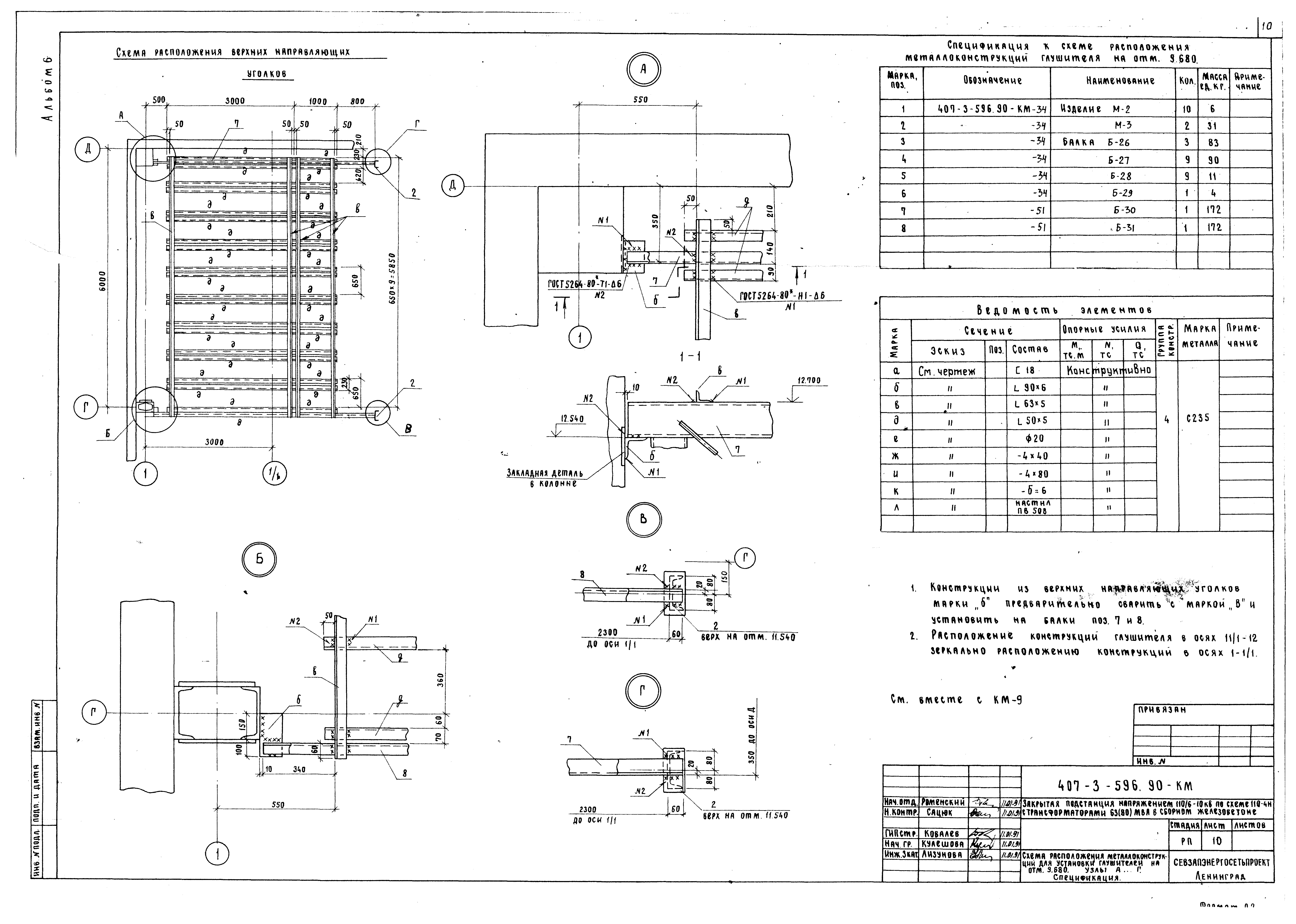
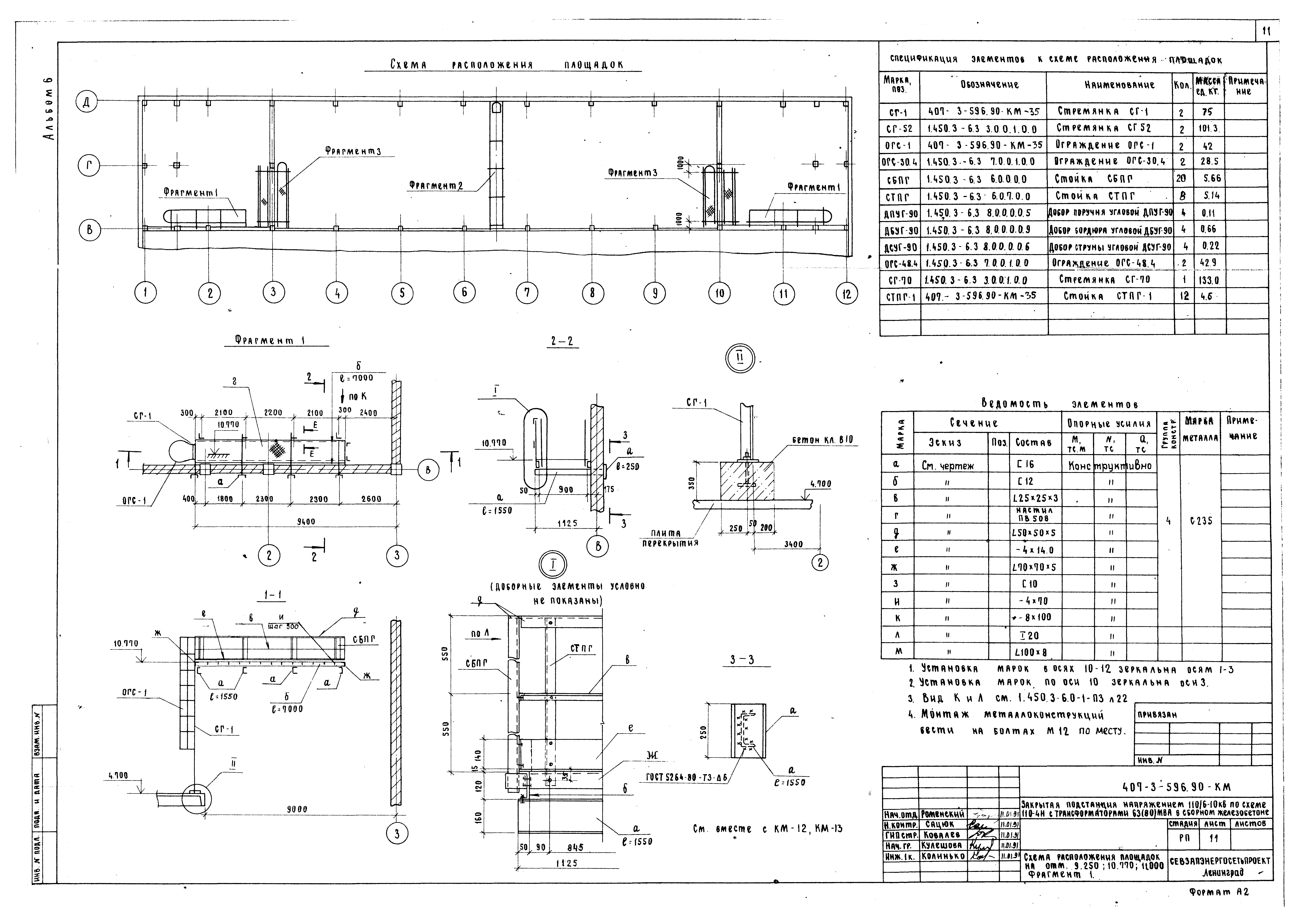
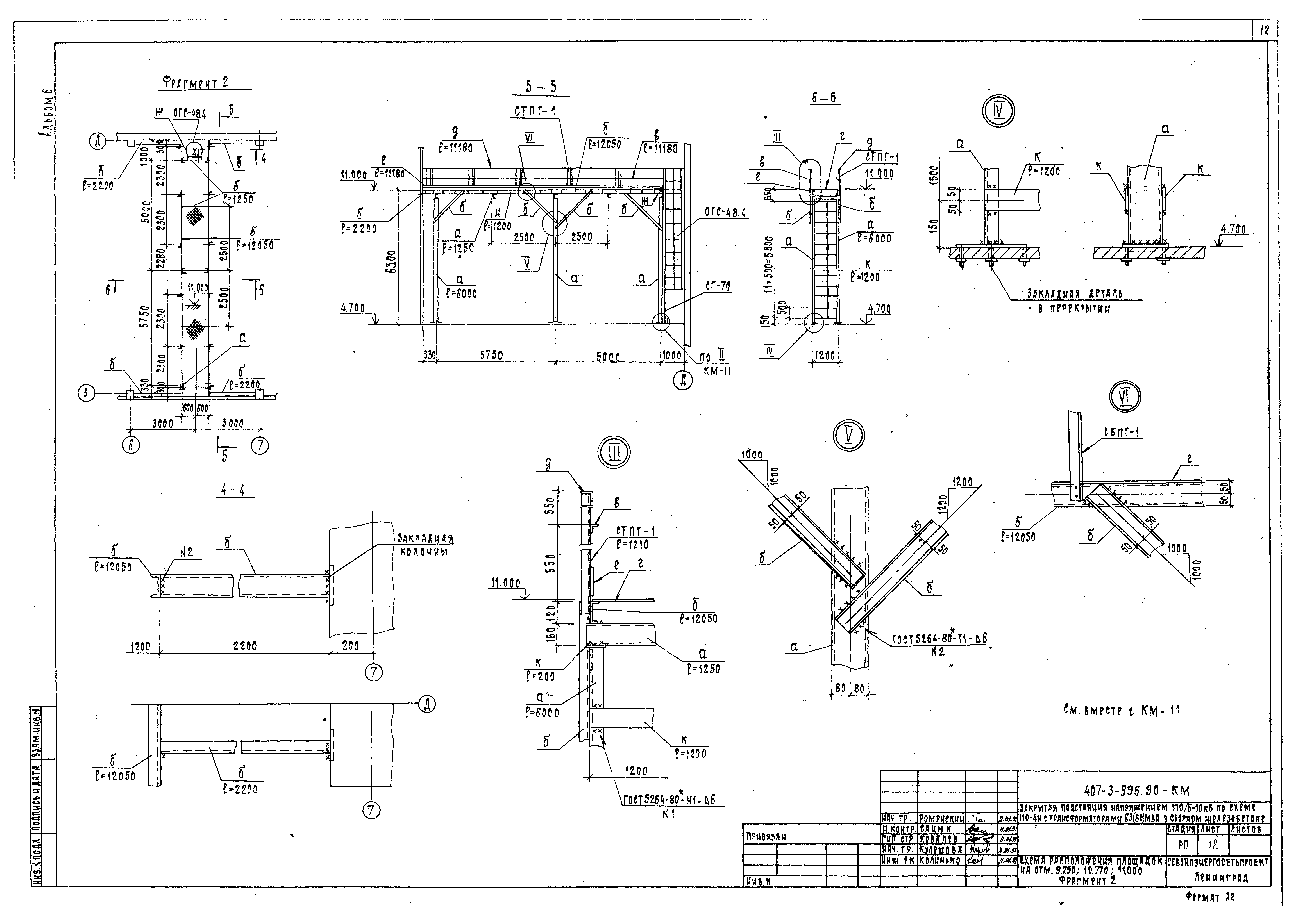
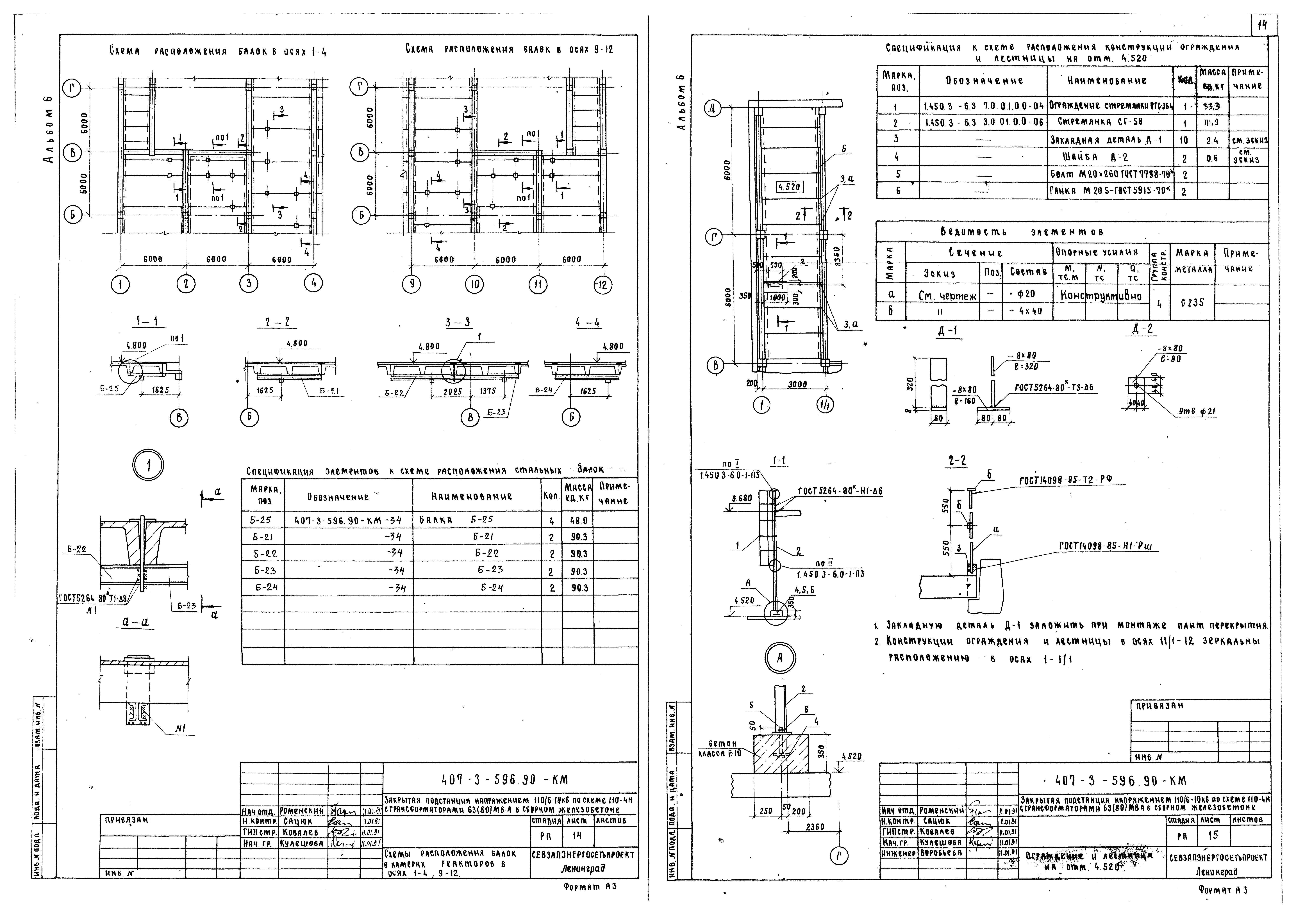
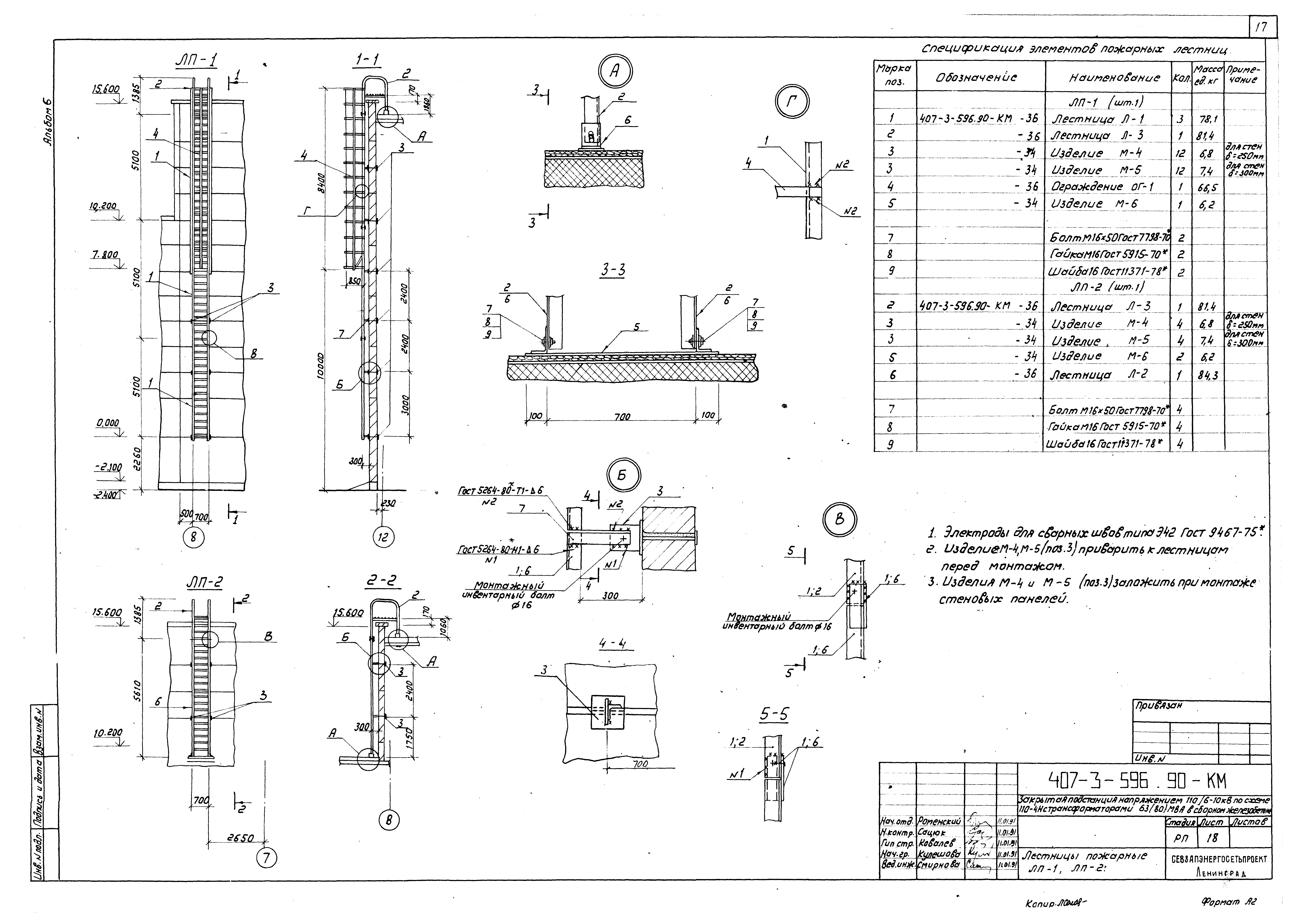
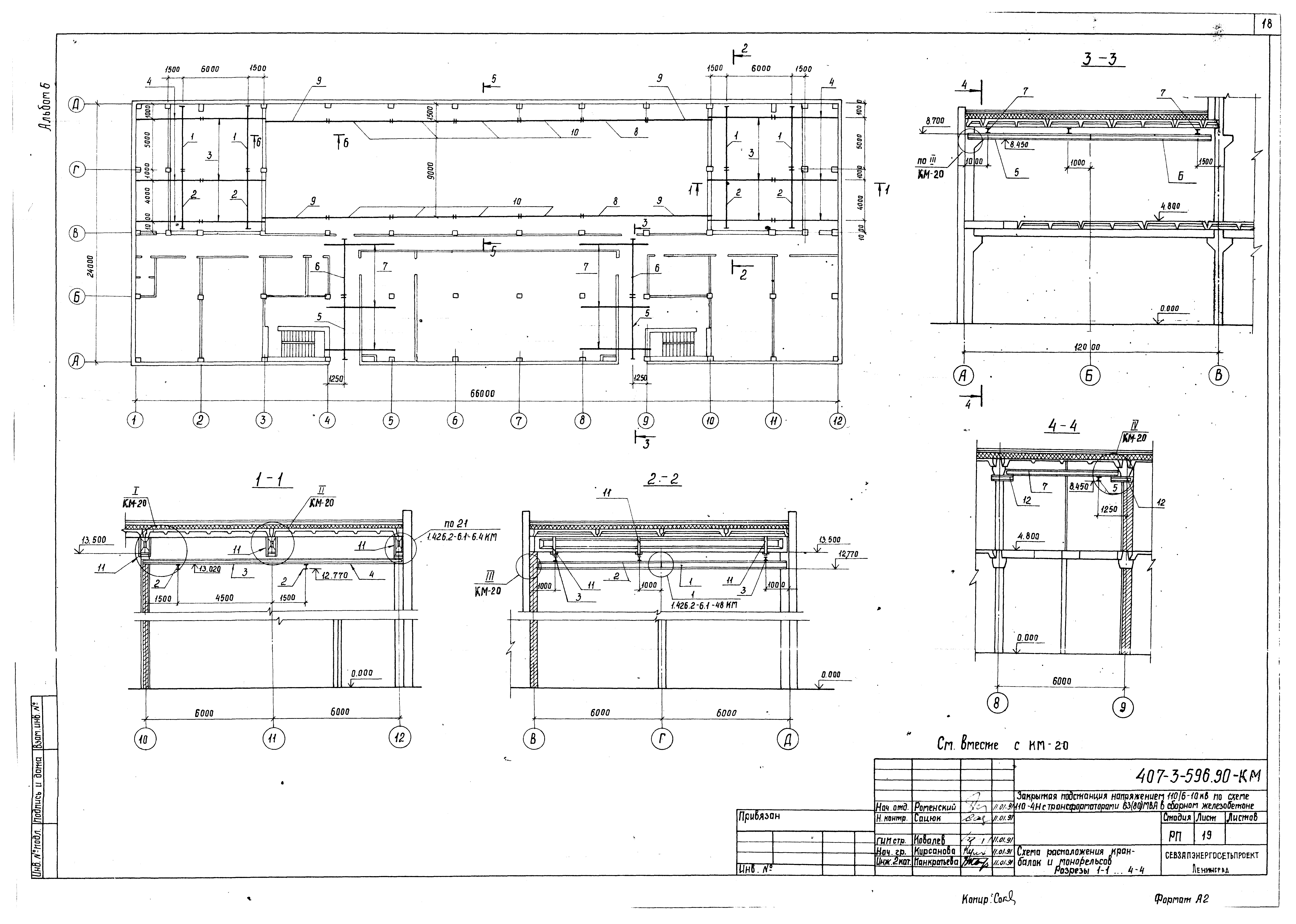
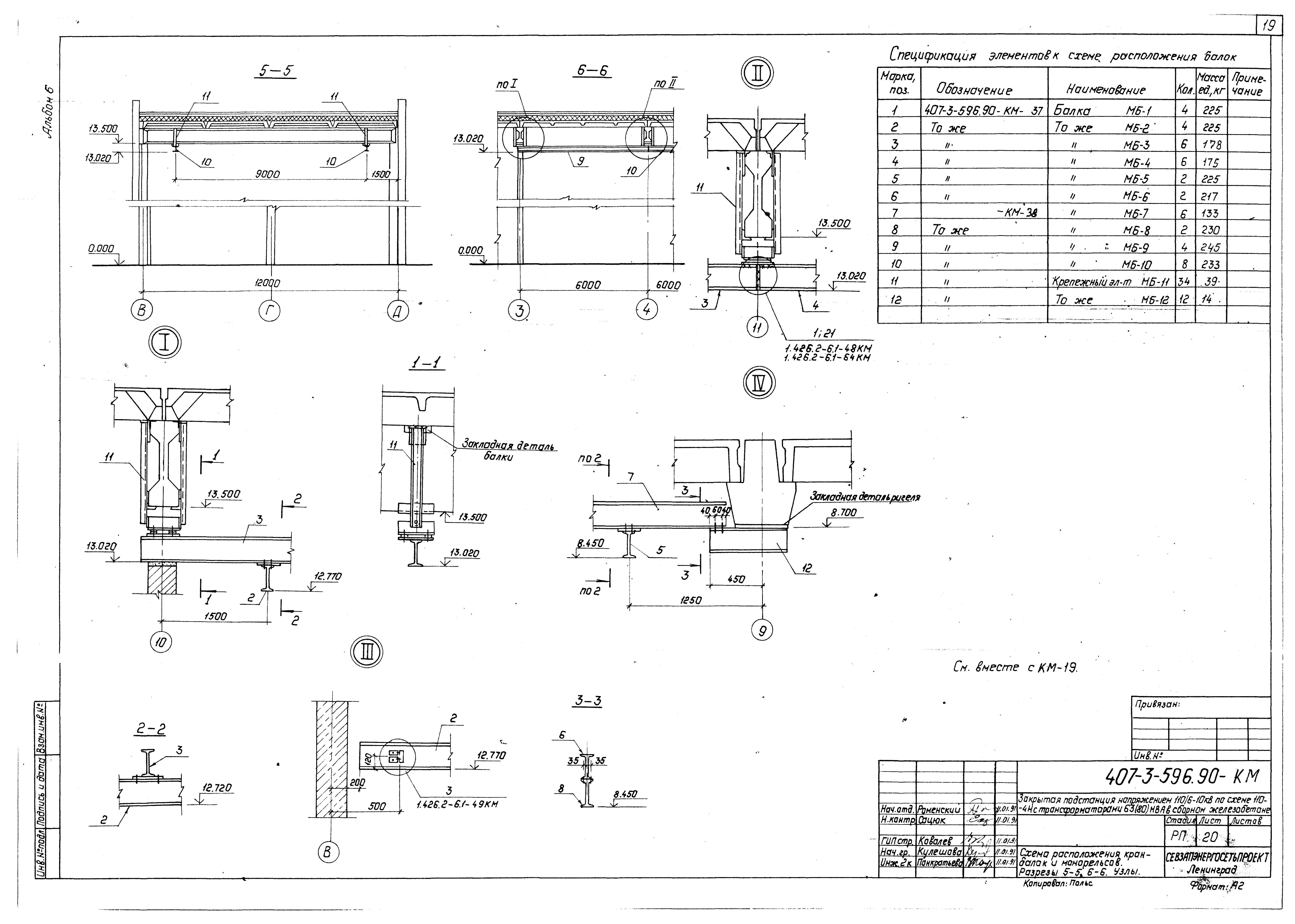
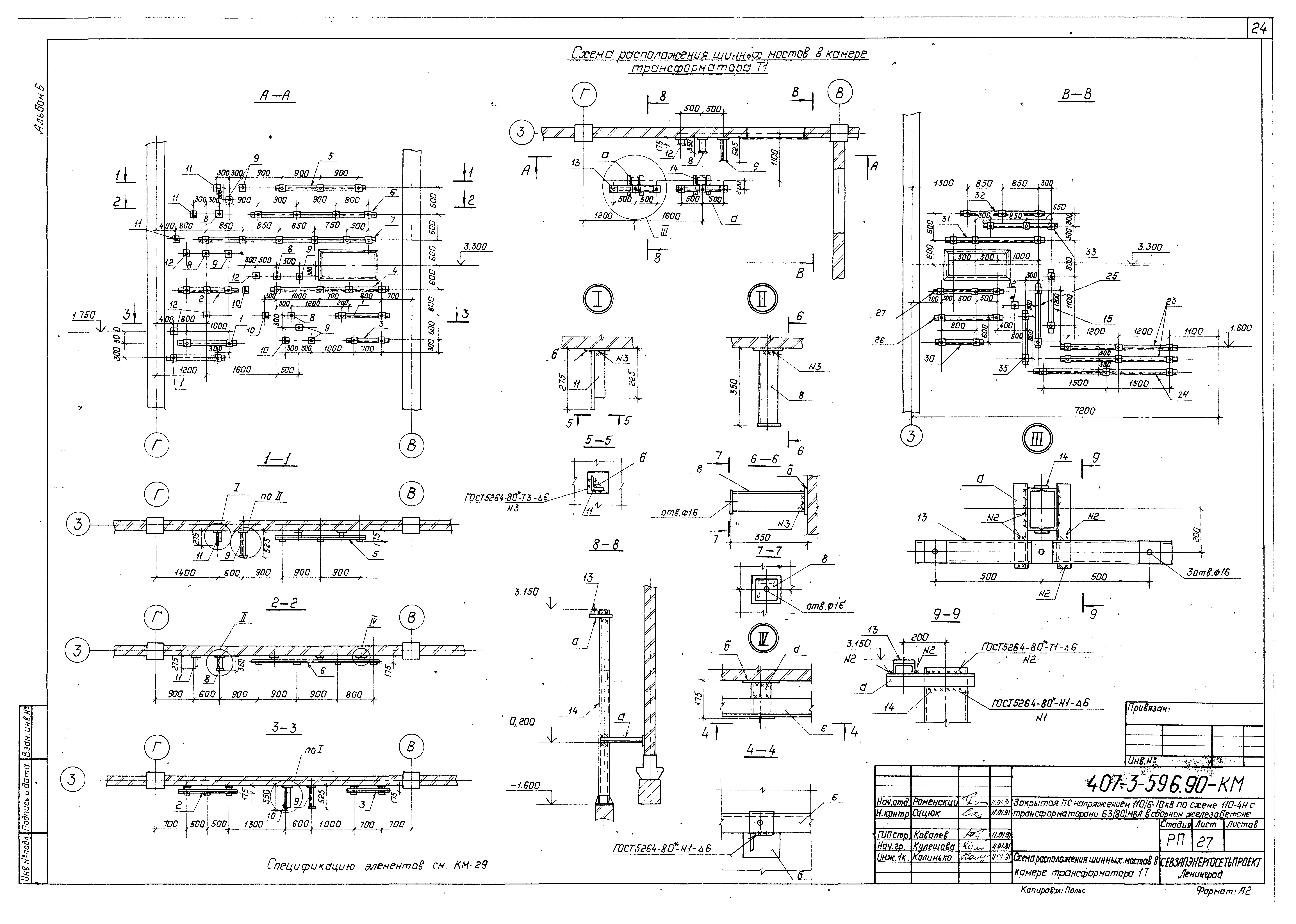
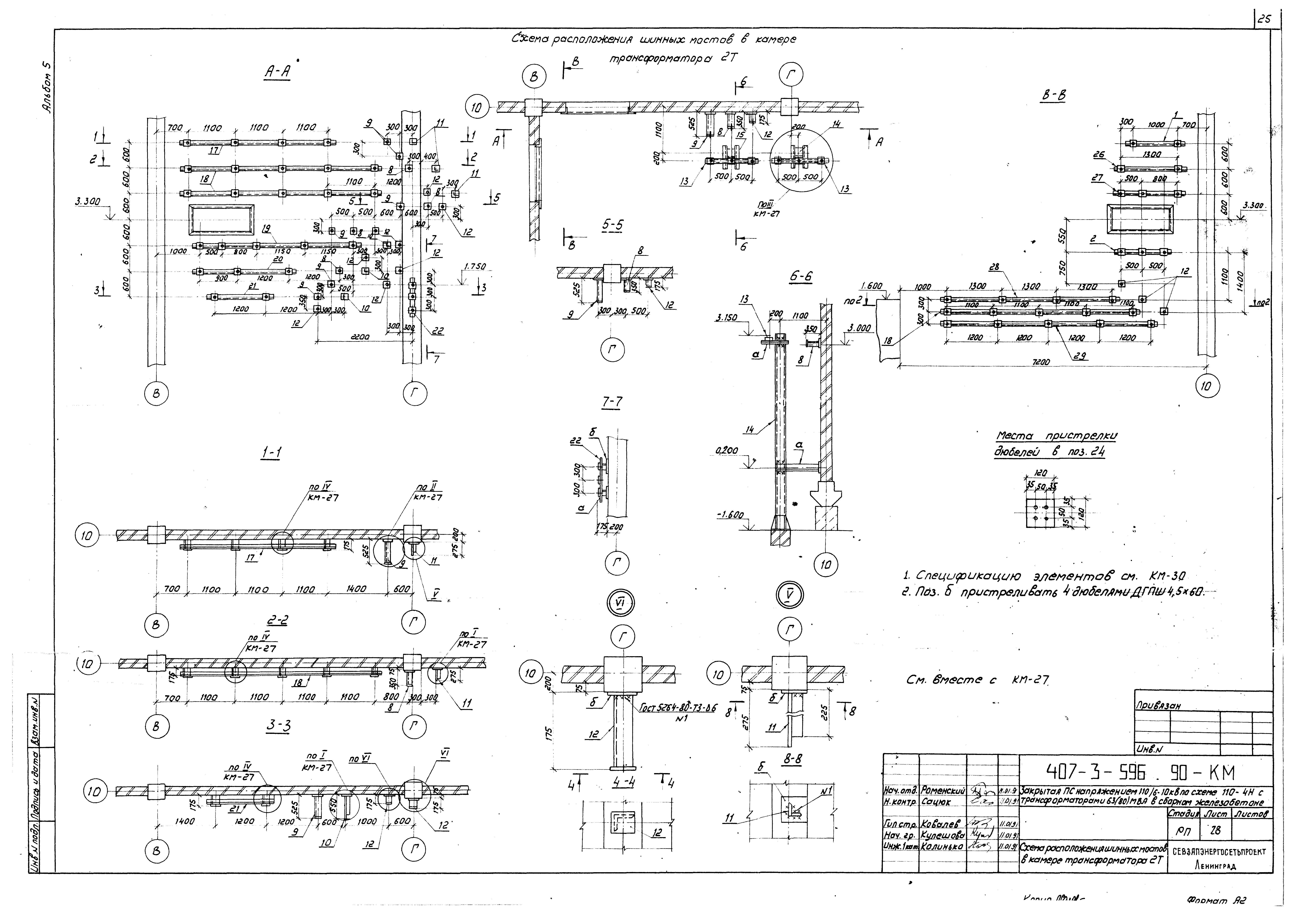
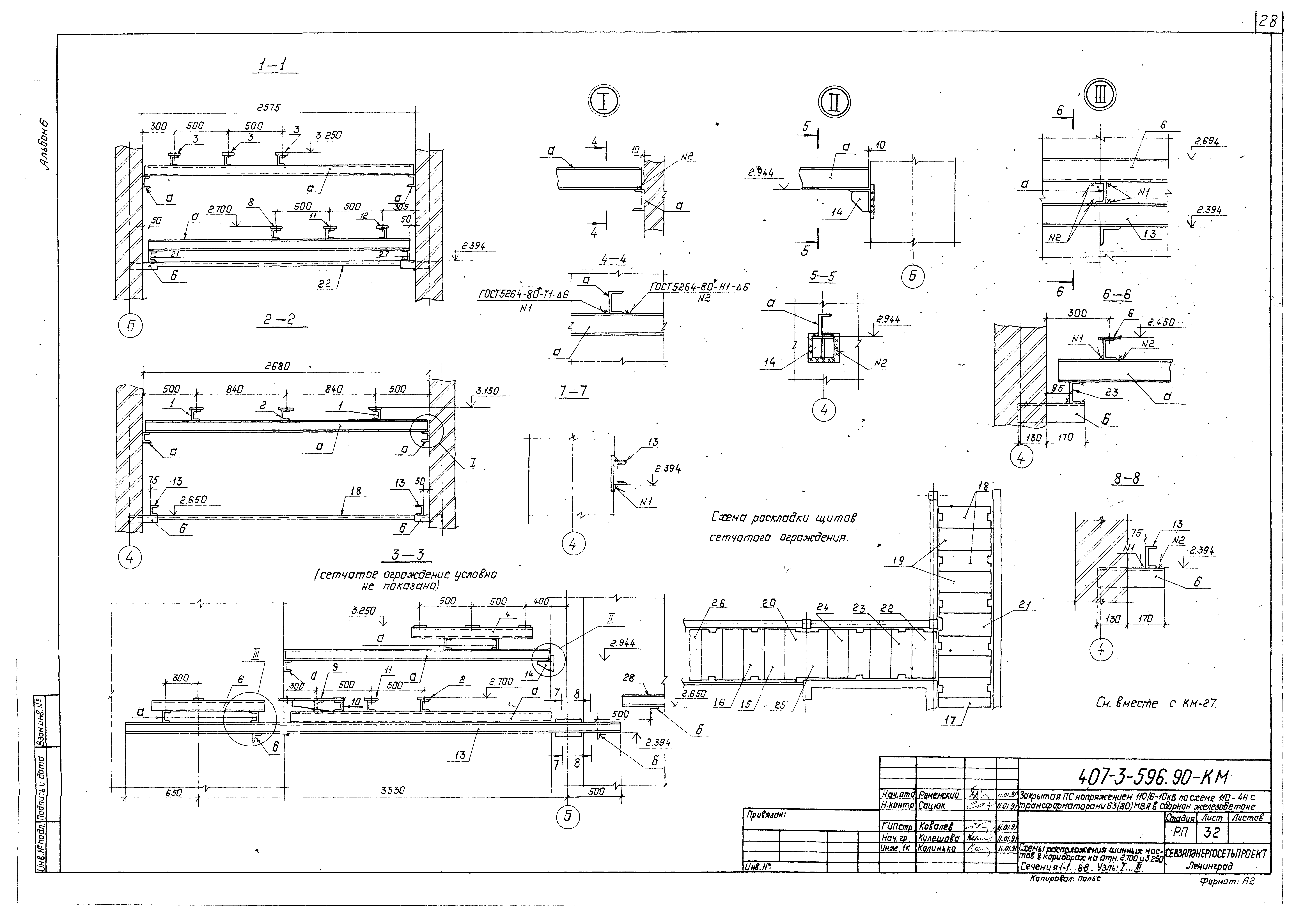
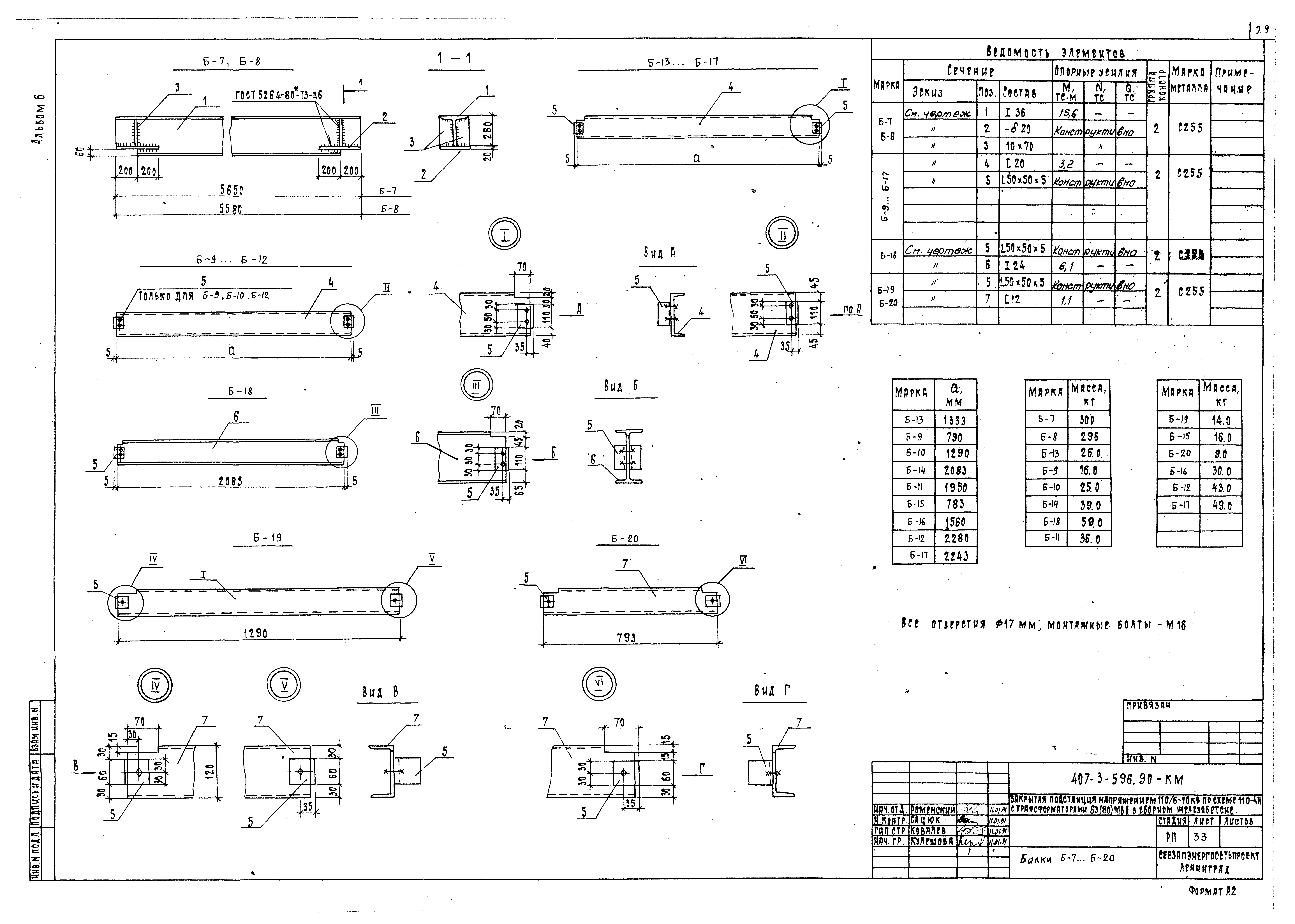
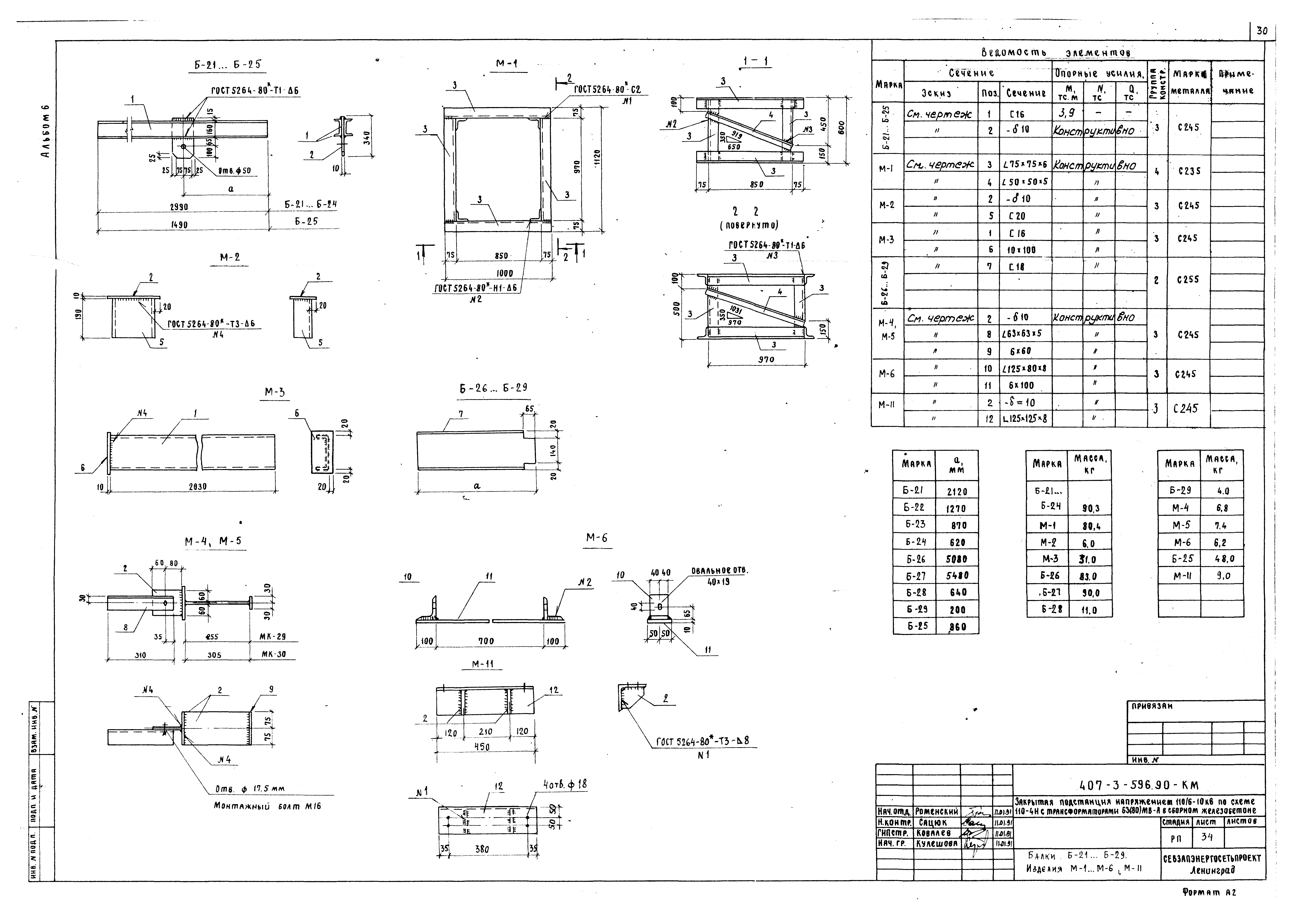
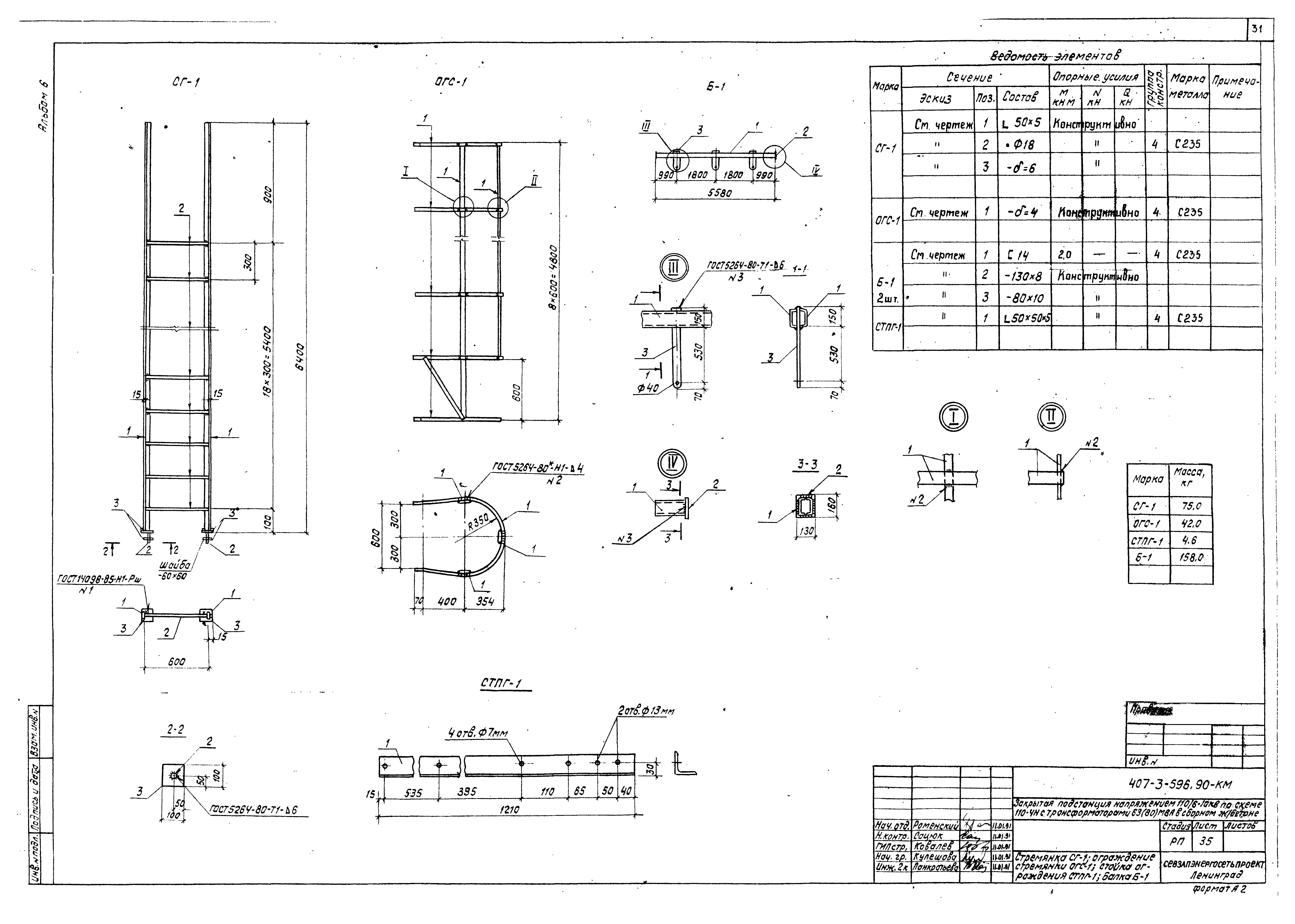
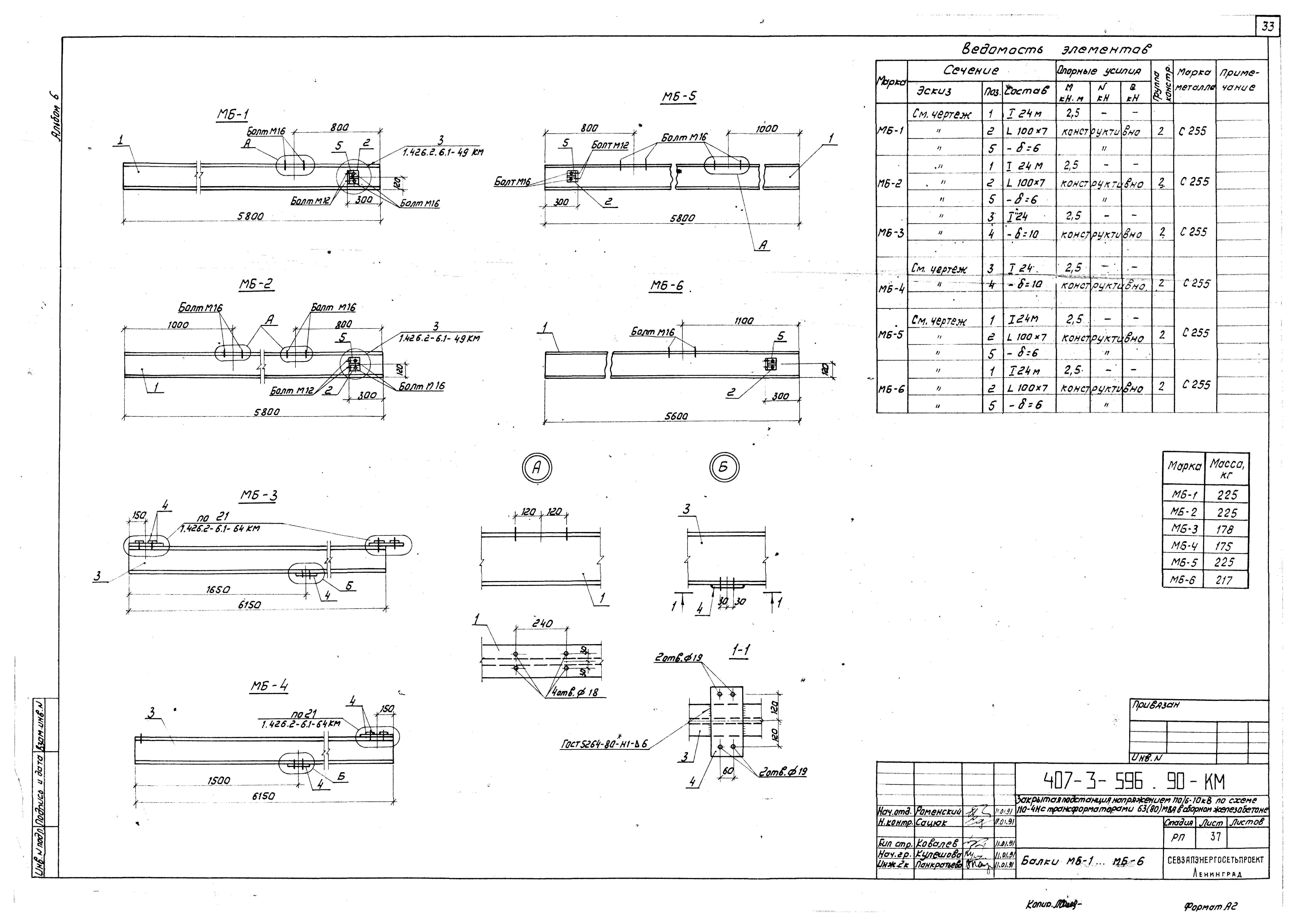
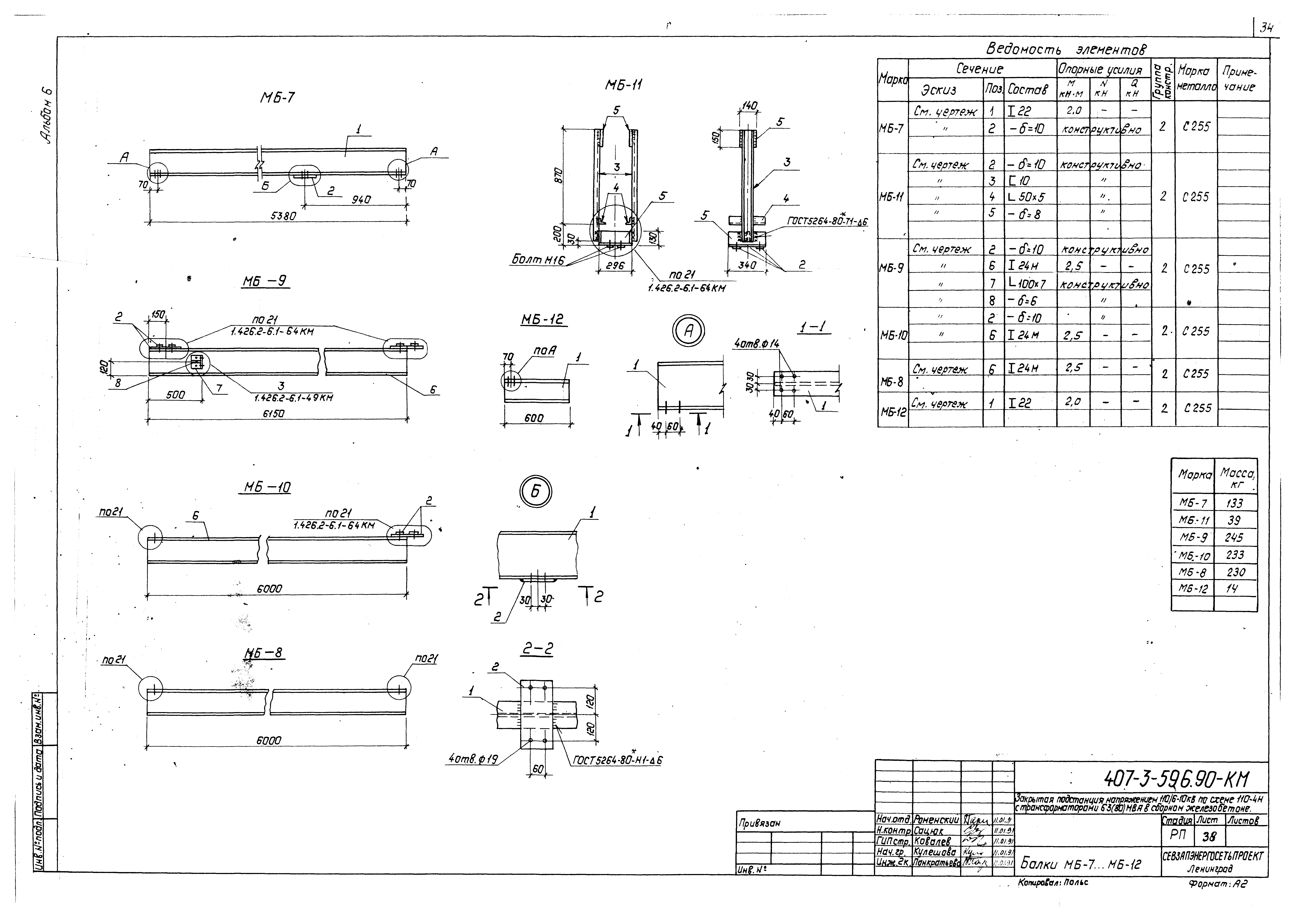
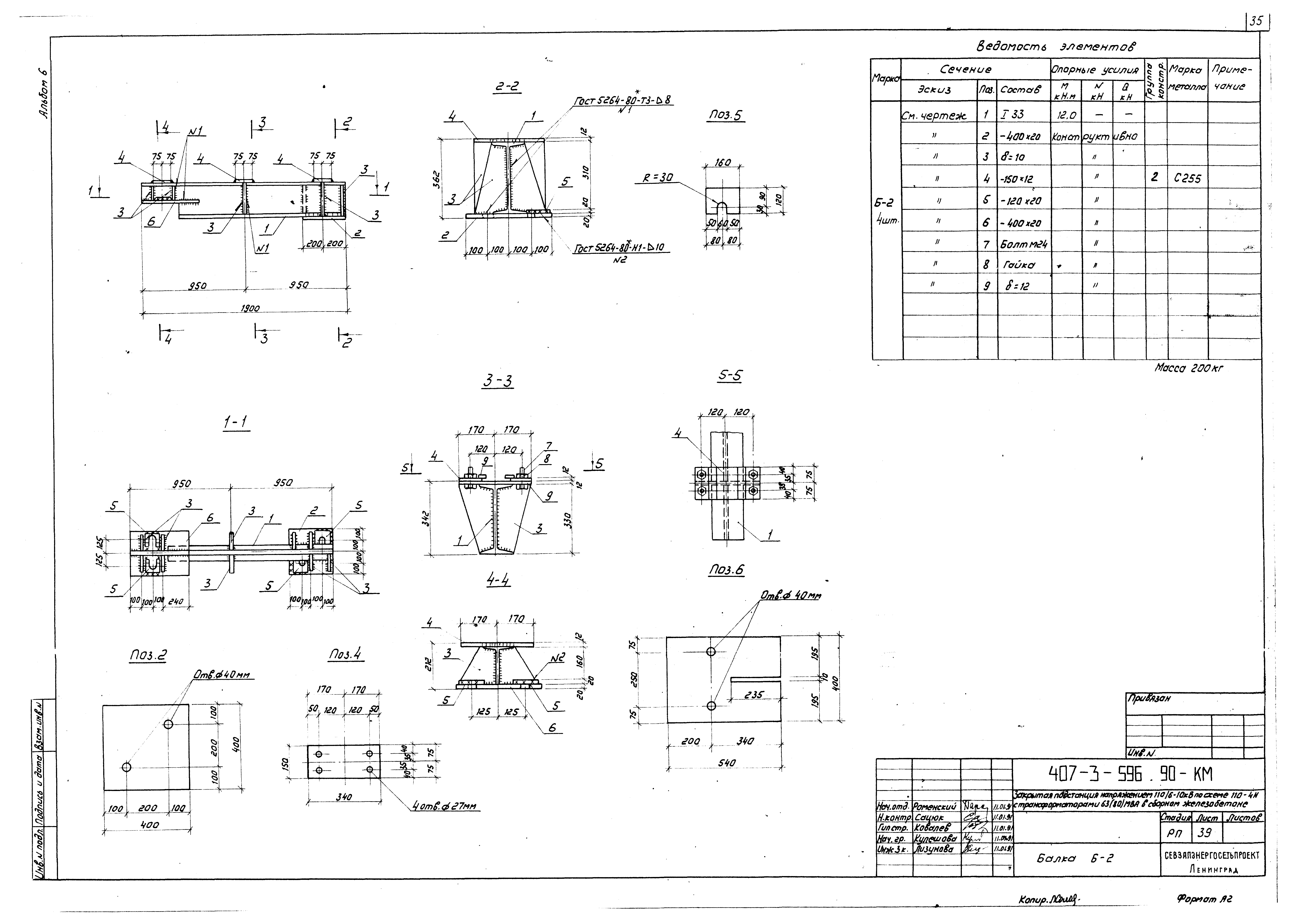
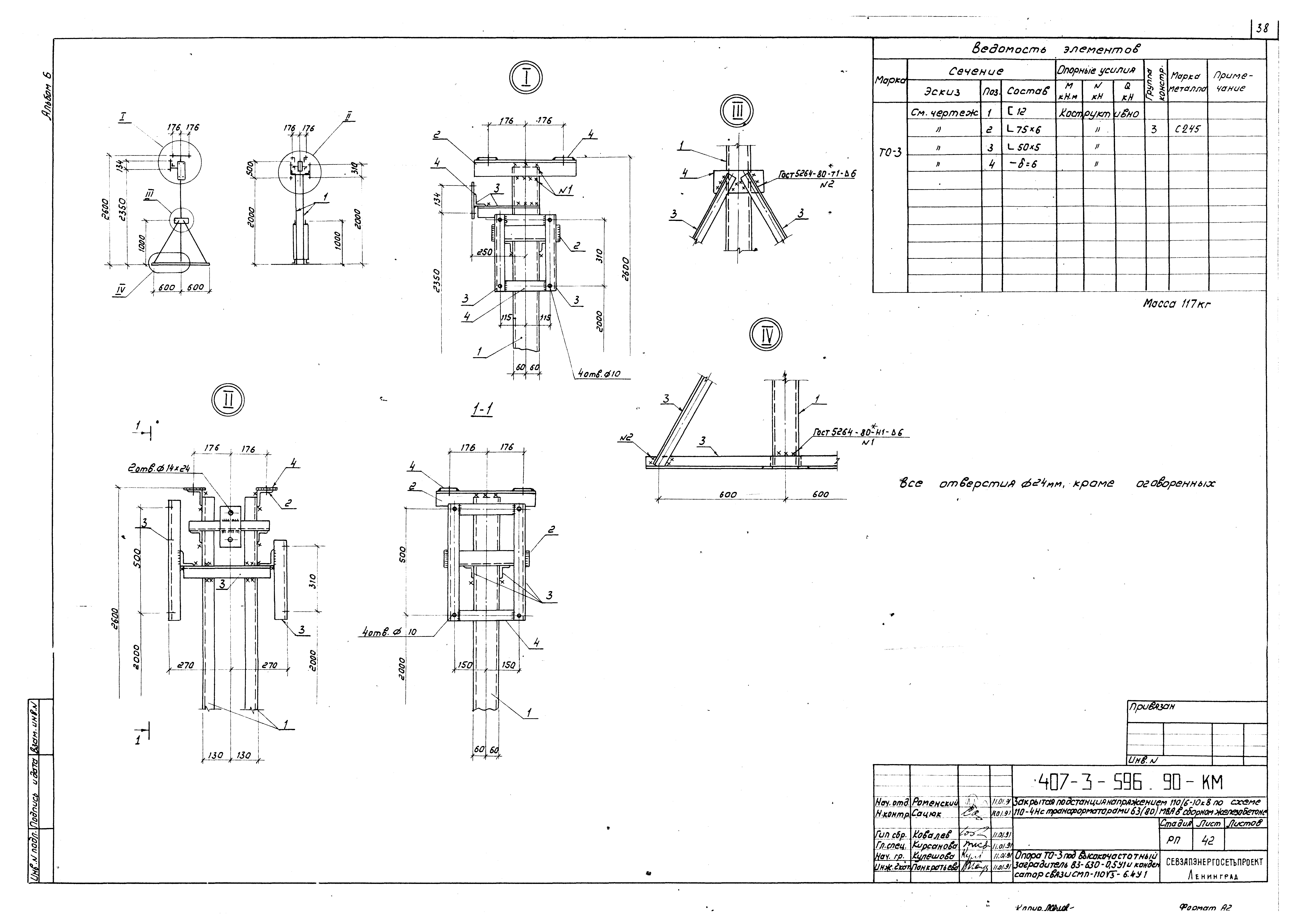
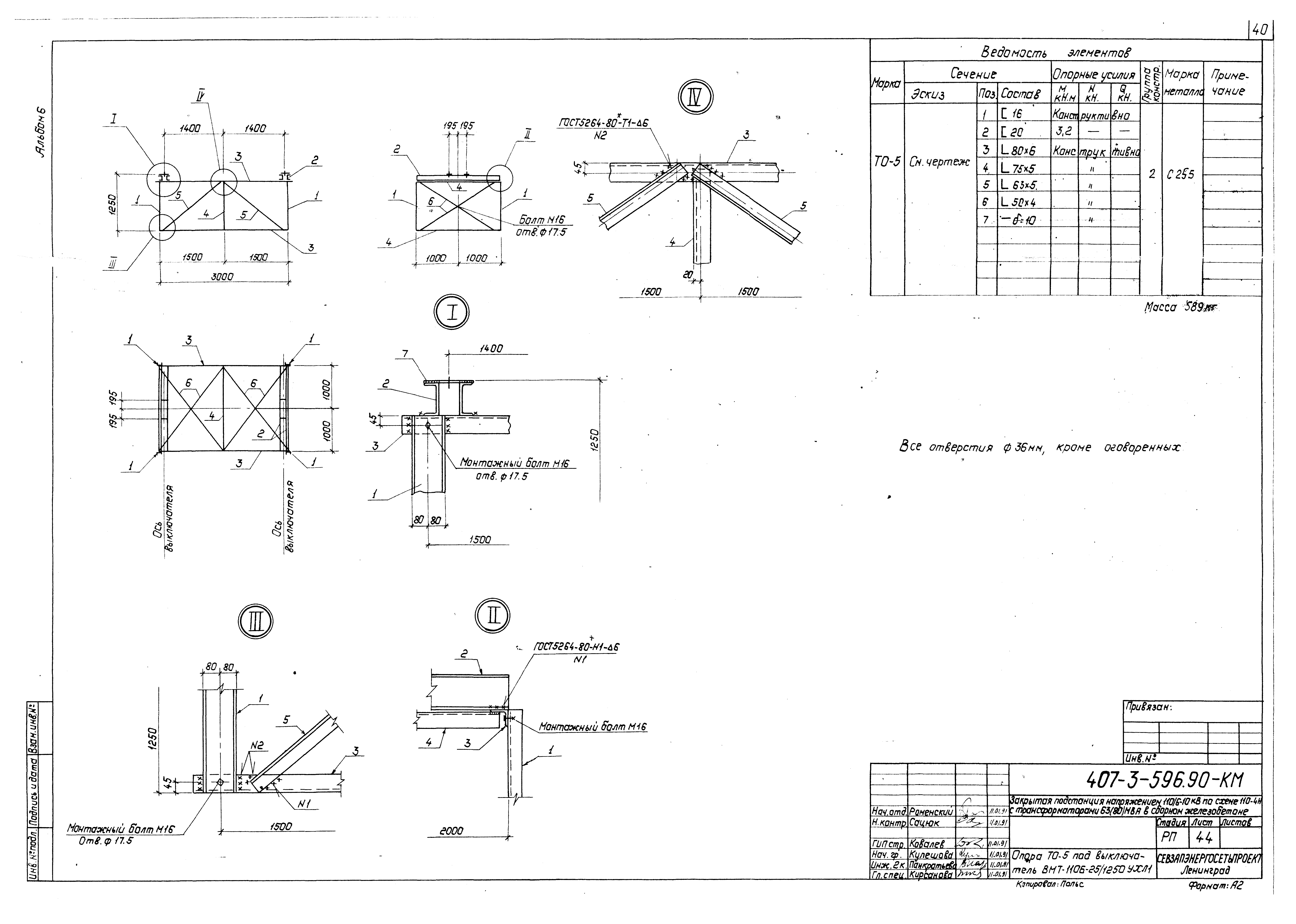
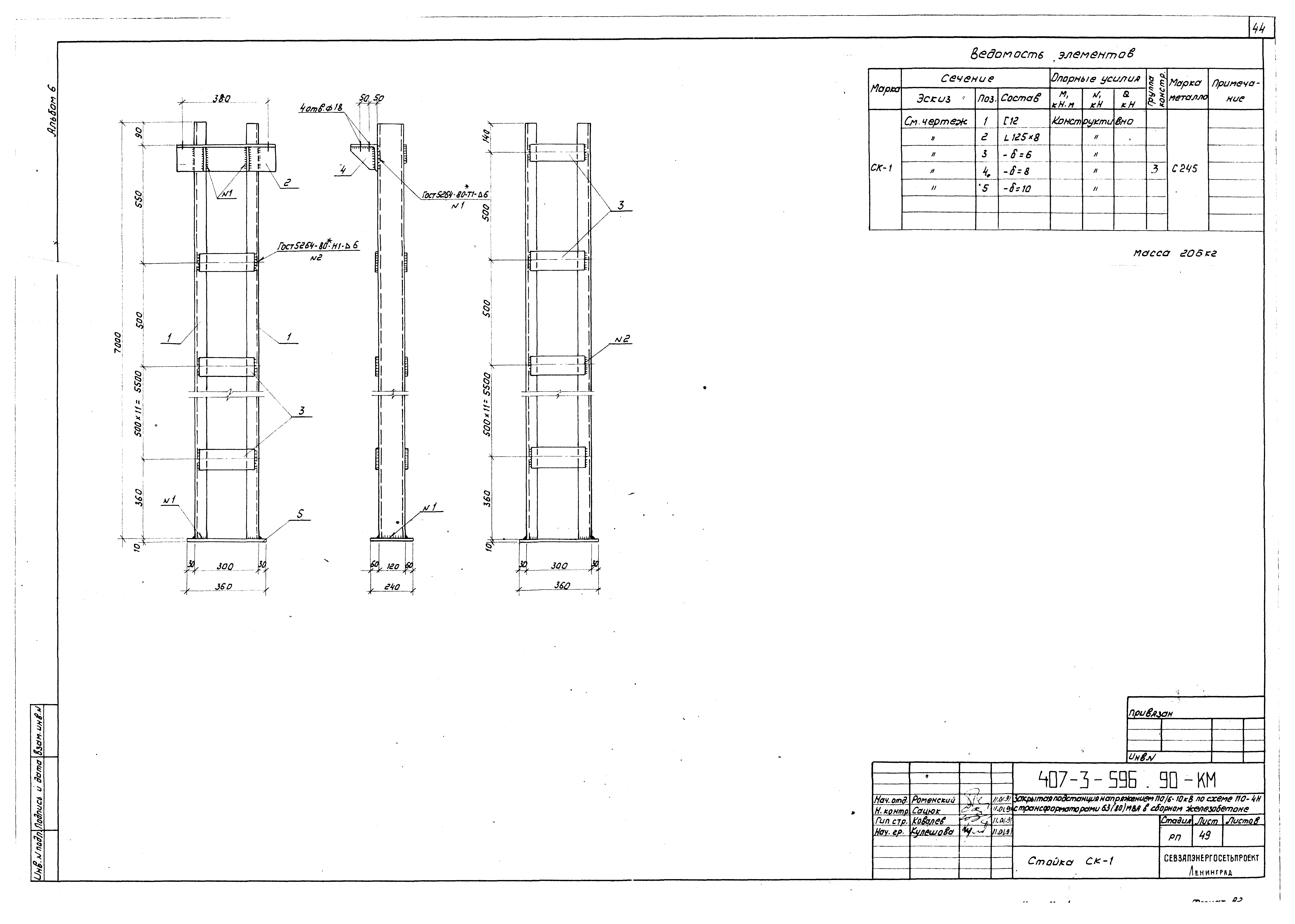
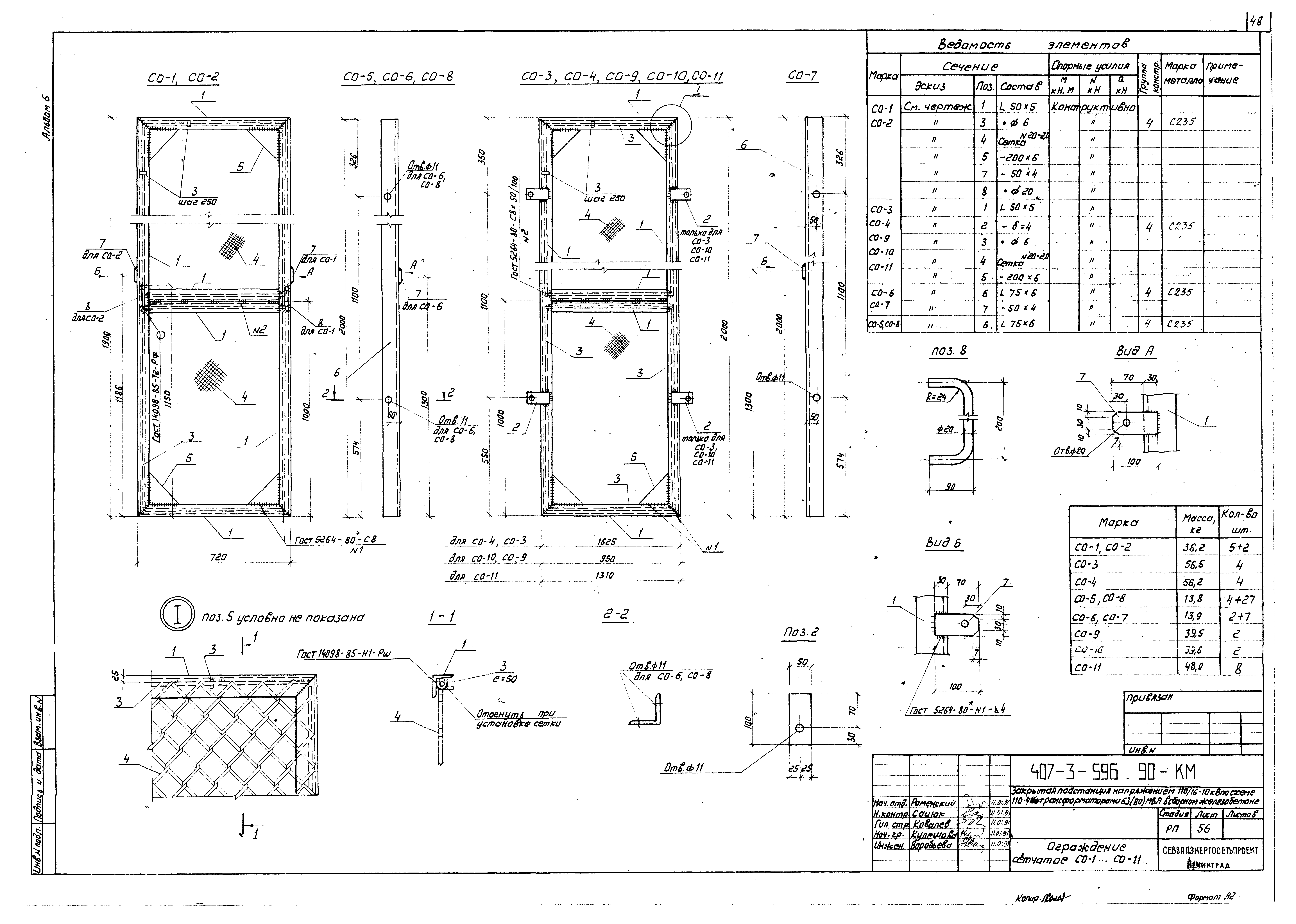
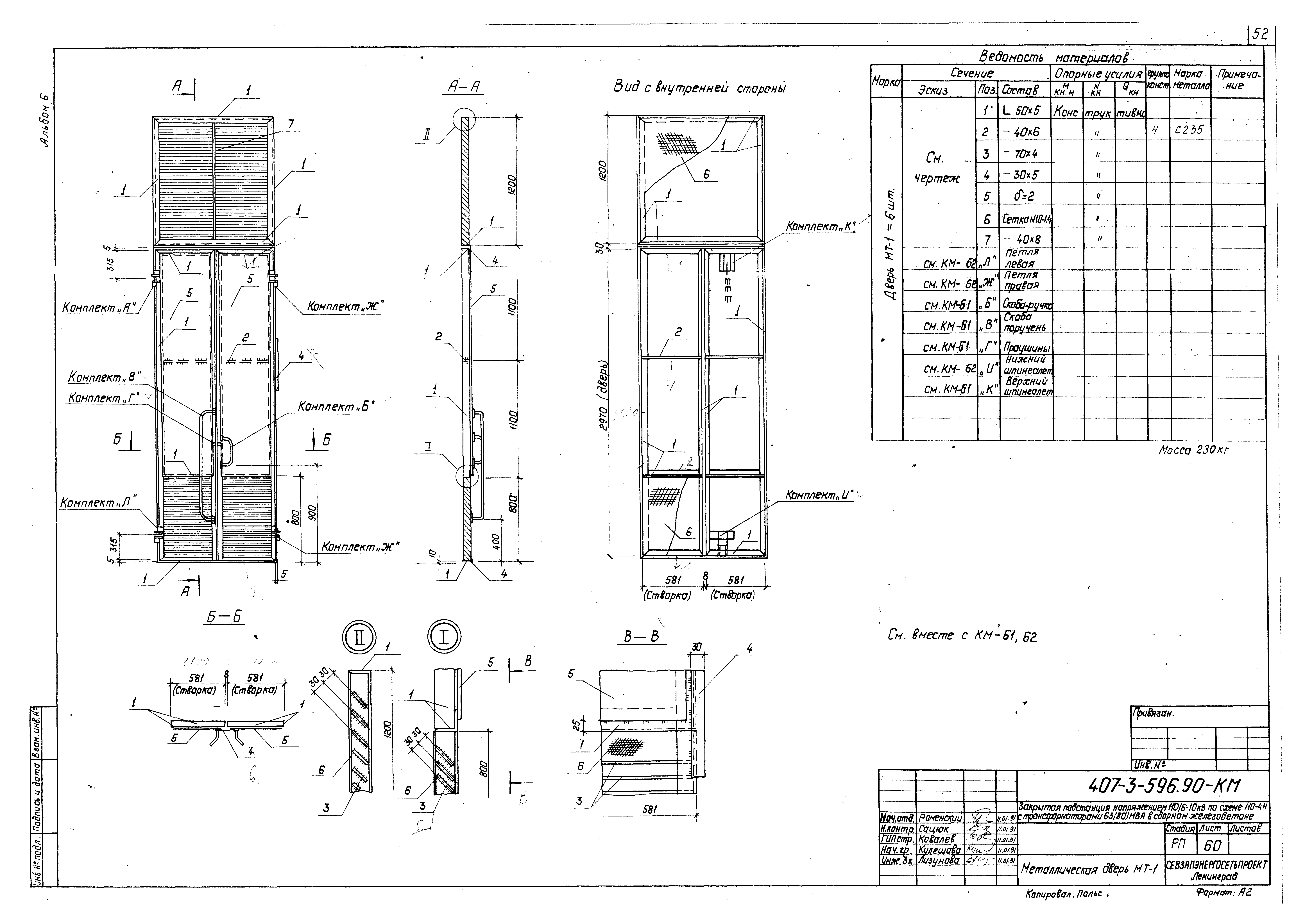
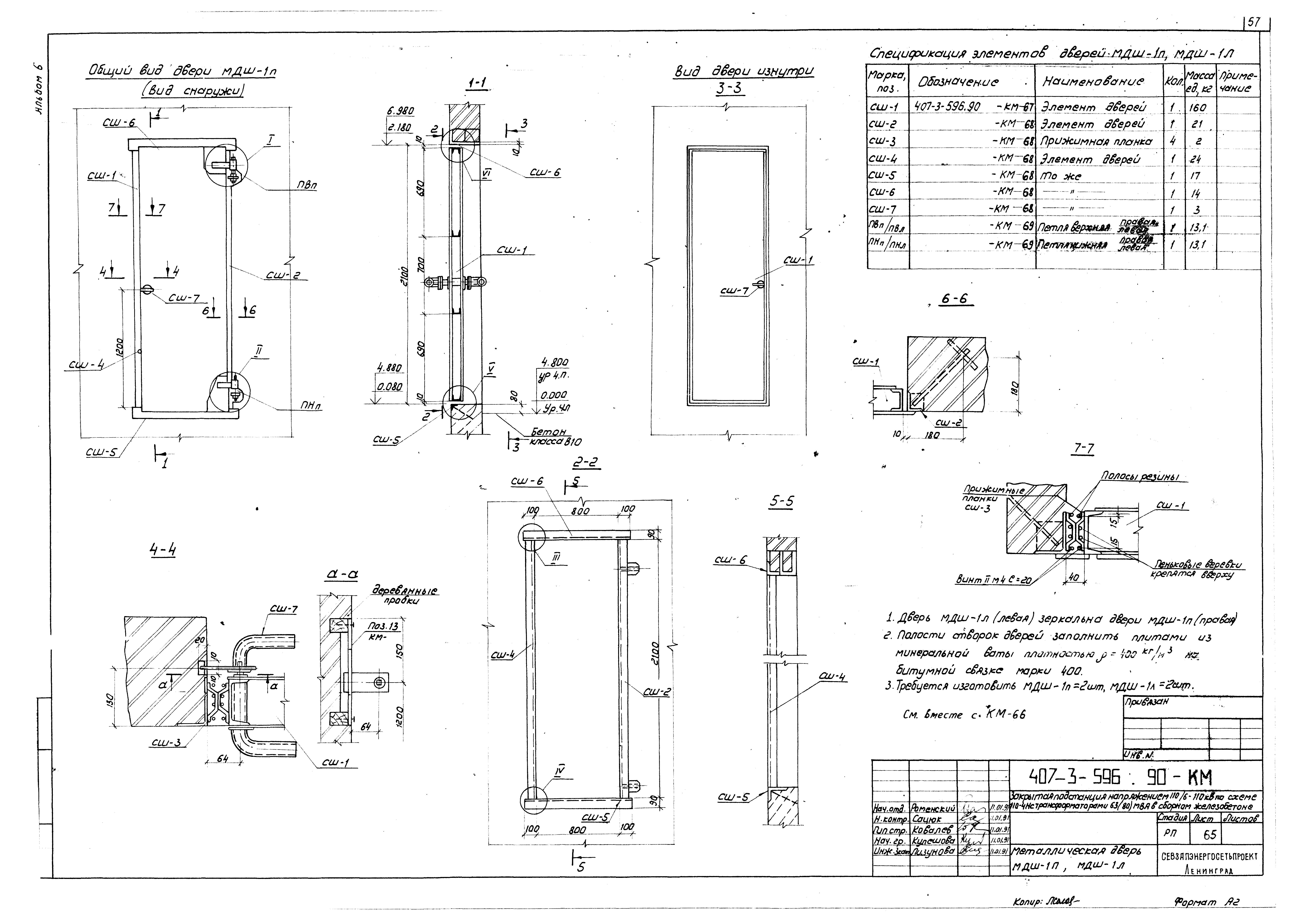
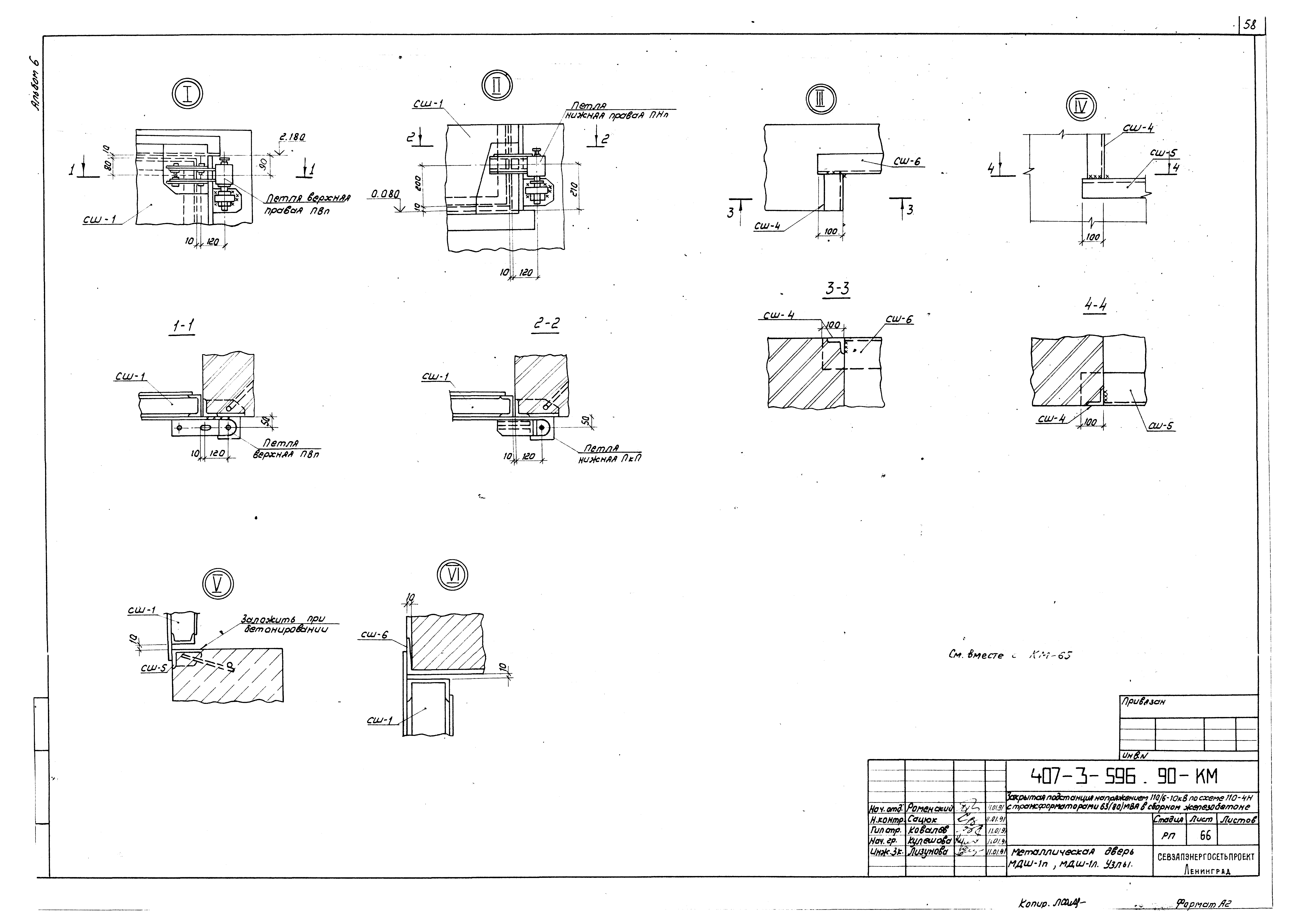
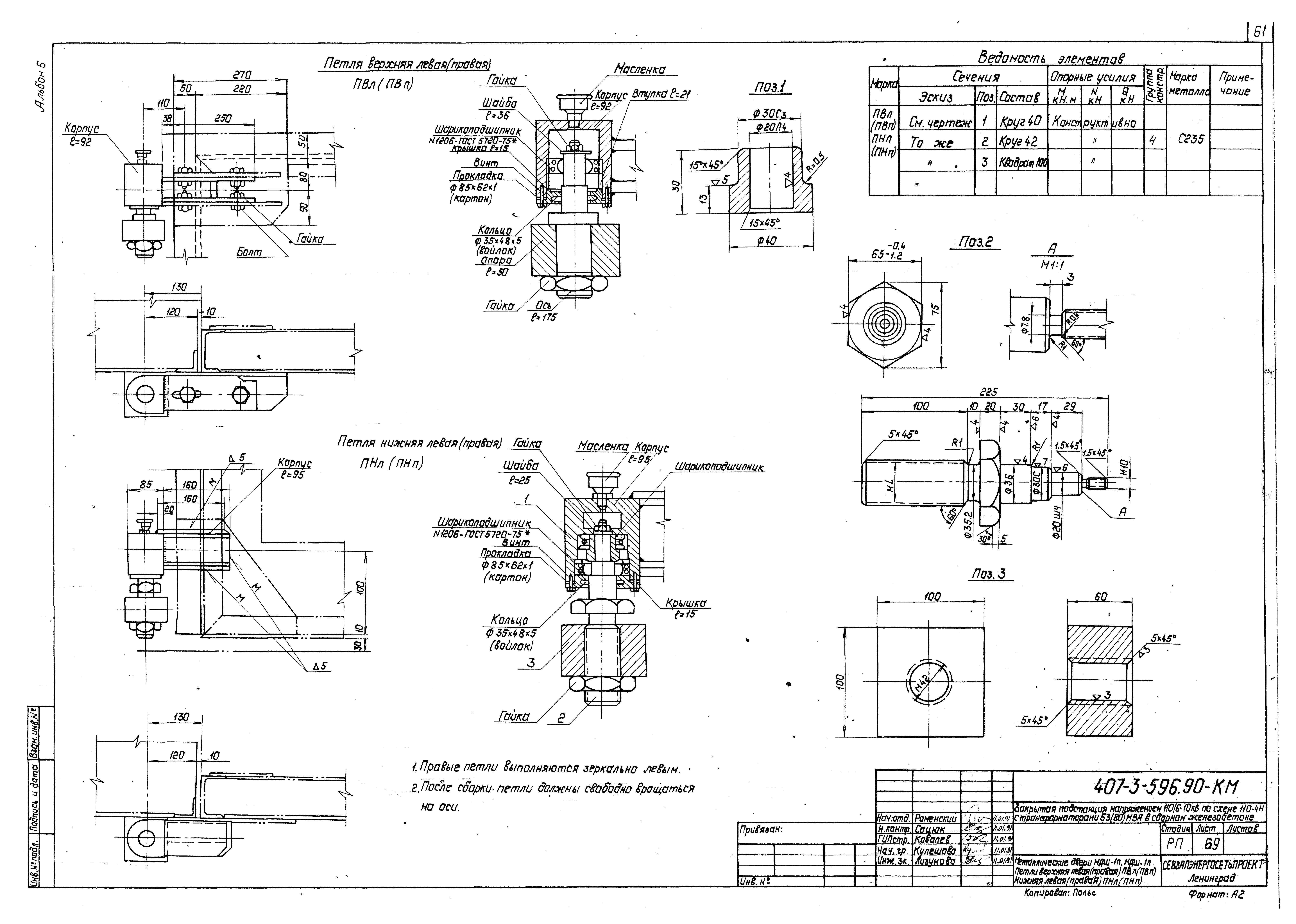
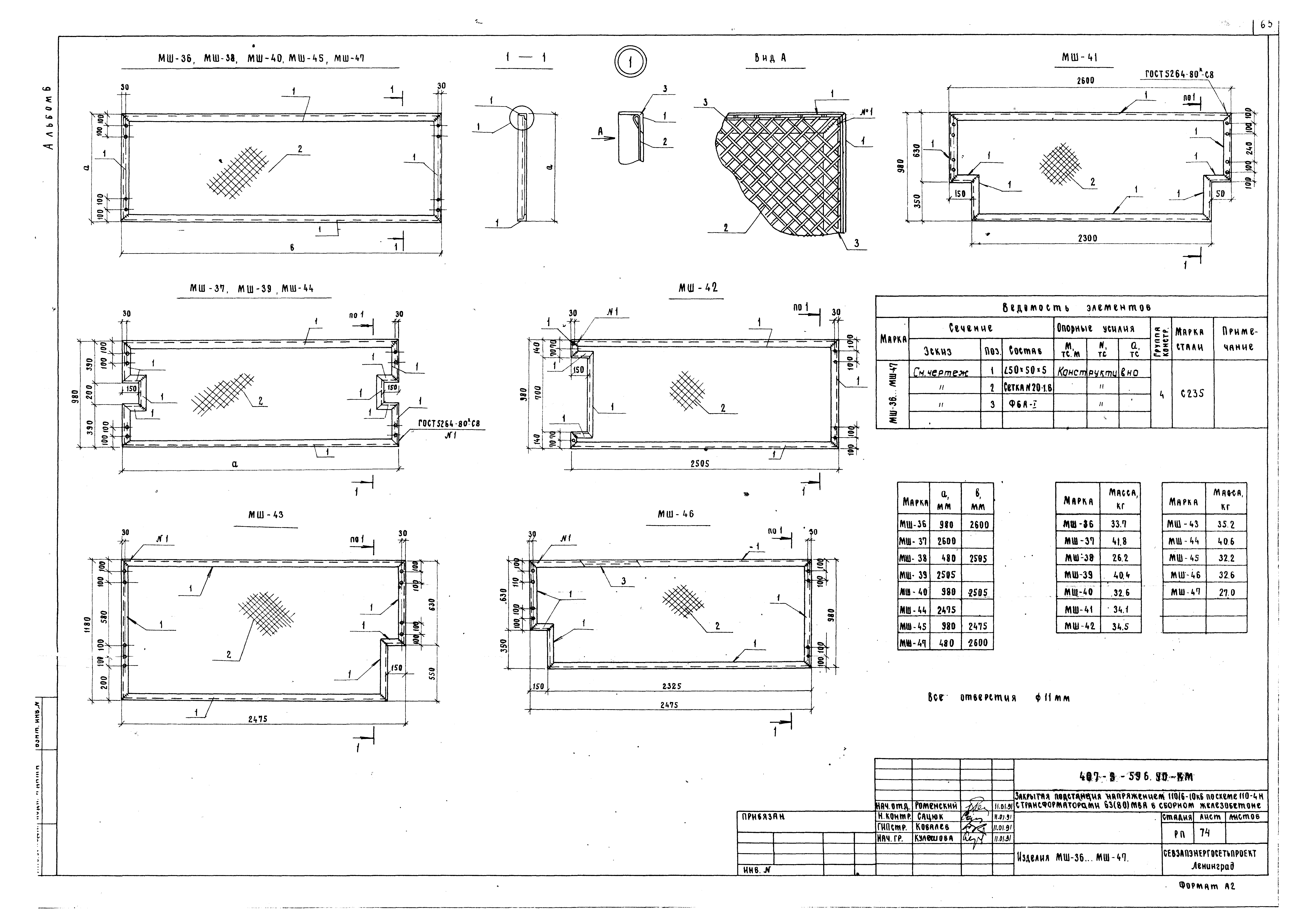
| Оглавление: | Общие данные Схемы установки стремянок в камеры трансформаторов по осям А и Д Монолитные участки УМ-1, УМ-2, УМ-3, УМ-10. Схемы расположения стальных элементов Монолитные участки УМ-4…УМ-9. Схемы расположения стальных элементов Схемы расположения металлоконструкций для установки глушителей на отм. 0.000 в осях 1 - 1/1; 2 - 3 Схемы расположения металлоконструкций для установки глушителей на отм. 9.680 Схемы расположения металлоконструкций для установки глушителей на отм. 9.680. Узлы А…Г. Спецификация Схема расположения площадок на отм. 9.250; 10.770; 11.000. Фрагмент 1 Схема расположения площадок на отм. 9.250; 10.770; 11.000. Фрагмент 2 Схема расположения площадок на отм. 9.250; 10.770; 11.000. Фрагмент 3 Схемы расположения балок в камерах реакторов в осях 1 - 4; 9 - 12 Ограждение и лестница на отм. 4.520 Лестница ЛМ-1 в камерах трансформаторов Т1, Т2 Лестница ЛМ-2 в помещении насосной Лестницы пожарные ЛП-1, ЛП-2 Схема расположения кранбалок и монорельсов. Разрезы 1-1…4-4 Схема расположения кранбалок и монорельсов. Разрезы 5-5, 6-6. Узлы Схема расположения опор под оборудование в ЗРУ110 кВ Камеры трансформаторов Т1, Т2. Схемы расположения опор под оборудование Установочный чертеж дверей МТ-2, МТ-3 Схема расположения элементов портала в ЗРУ110 кВ Схемы расположения защитных козырьков над входами в камеры ТСН, ТМ и РЗДСОМ Металлическая дверь МТ-2, МТ-3. Ведомость элементов Схема расположения шинных мостов в камере трансформатора Т1 Схема расположения шинных мостов в камере трансформатора Т2 Спецификация элементов к схеме расположения шинных мостов в камере трансформатора Т1 Спецификация элементов к схеме расположения шинных мостов в камере трансформатора Т2 Схемы расположения шинных мостов в коридорах на отм. 2.700 и 3.250 Схемы расположения шинных мостов в коридорах на отм. 2.700 и 3.250. Сечения 1-1…8-8. Узлы I…III Балки Б-7…Б-20 Балки Б-21…Б-29. Изделия М-1…М-6, М-11 Стремянка СГ-1, ограждение стремянки ОГС-1, стойка ограждения стремянки СТПГ-1. Балка Б-1 Лестницы Л-1…Л-3. Ограждение ОГ-1, стремянка СГ-2 Балки МБ-1…МБ-6 Балки МБ-7…МБ-12 Балка Б-2 Опора ТО-1 под разъединитель РДЗ-1(2)-110/1000УХЛ1 Опора ТО-2 под трансформатор напряжения НКФ-110-83У1 Опора ТО-3 под высокочастотный заградитель ВЗ-630-0,5У1 и конденсатор связи СМП-110V3-6,4У1 Опора ТО-4 под разрядник вентильного типа РВС-110М Опора ТО-5 под выключатель ВМТ-110Б-25/1250УХЛ1 Опора ТО-6 под трансформатор тока ТФЗМ-110Б-IVУ1 Опора ТО-7 под шинную опору ШО-110-УХЛ1 Металлическая дверь МТ-4. Ведомость элементов Траверса Т-1 Стойка СК-1 Ограждение ЛО-1, ЛО-2 Балки Б-30, Б-31 Балки Б-3, Б-4 Ограждение сетчатое СО-12 Изделия М-7…М-10 Балки Б-5, Б-6 Ограждение сетчатое СО-1…СО-11 Связи СП1, СП2 Стойка СФ-10А Панель П1, П2 Металлическая дверь МТ-1 Металлическая дверь МТ-1. Комплекты "Б", "В", "Г", "К" Металлическая дверь МТ-1. Комплекты "Ж", "И", "Л" Металлическая дверь МТ-2, МТ-3. Общий вид Металлическая дверь МТ-4. Общий вид Металлическая дверь МДШ-1п, МДШ-1л Металлическая дверь МДШ-1п, МДШ-1л. Узлы Металлическая дверь МДШ-1п, МДШ-1л. Марка СШ-1 Металлическая дверь МДШ-1п, МДШ-1л. Марки СШ-2…СШ-7 Металлическая дверь МДШ-1п, МДШ-1л. Петля левая (правая) ПВл (ПВп), нижняя левая (правая) ПНл (ПНп) Изделия МШ-1…МШ-13, МШ-16…МШ-21 Опора МШ-14 Изделия МШ-22…МШ-25, МШ-63 Изделия МШ-26…МШ-35 Изделия МШ-36…МШ-47 Изделия МШ-48…МШ-62 Площадка монтажная ПМ-1 |
| Разработан: | Севзапэнергосетьпроект |
| Утверждён: | 01.02.1991 Минэнерго СССР (USSR Minenergo 1) |
| Издан: | Севзапэнергосетьпроект (1991 г. ) |



































































