Скачать Типовой проект 407-3-596.90 Альбом 8. Отопление и вентиляция. Внутренние водопровод и канализацияДата актуализации: 01.01.2021
|
| Обозначение: | Типовой проект 407-3-596.90 |
| Обозначение англ: | 407-3-596.90 |
| Статус: | не определен законодательством |
| Название рус.: | Альбом 8. Отопление и вентиляция. Внутренние водопровод и канализация |
| Дата добавления в базу: | 01.09.2013 |
| Дата актуализации: | 01.01.2021 |
| Дата введения: | 01.02.1991 |
| Дата окончания срока действия: | 30.06.2003 |
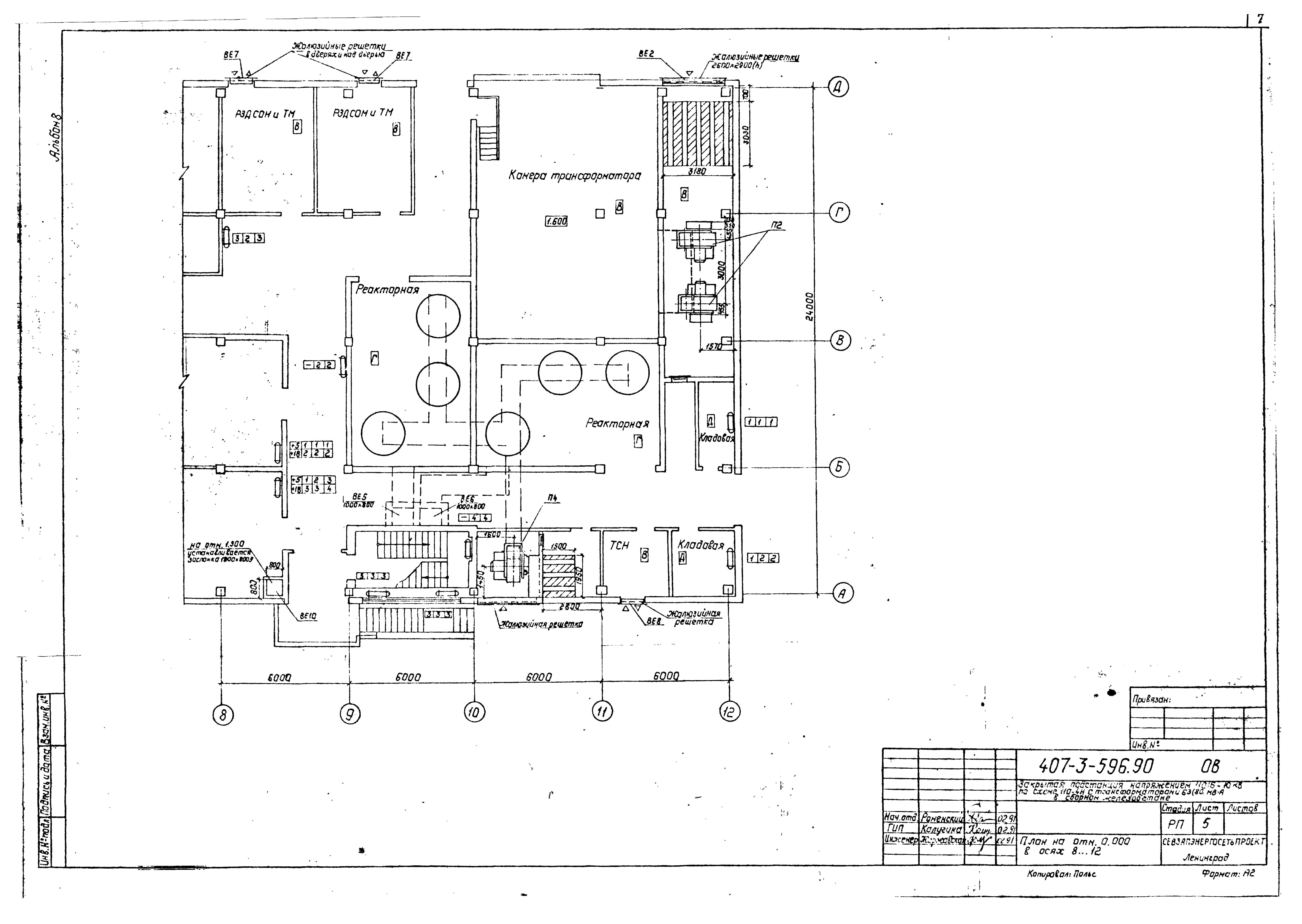
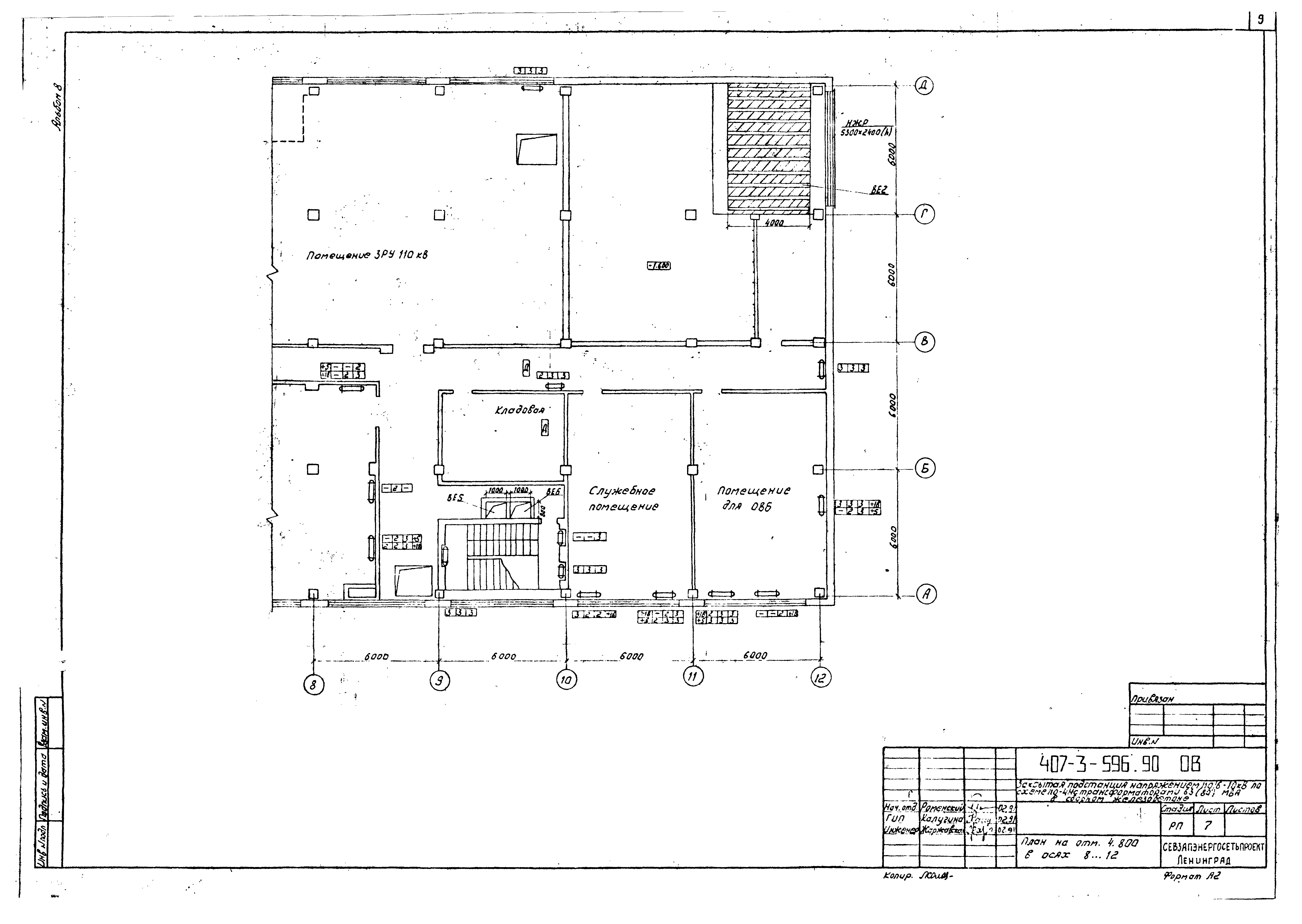
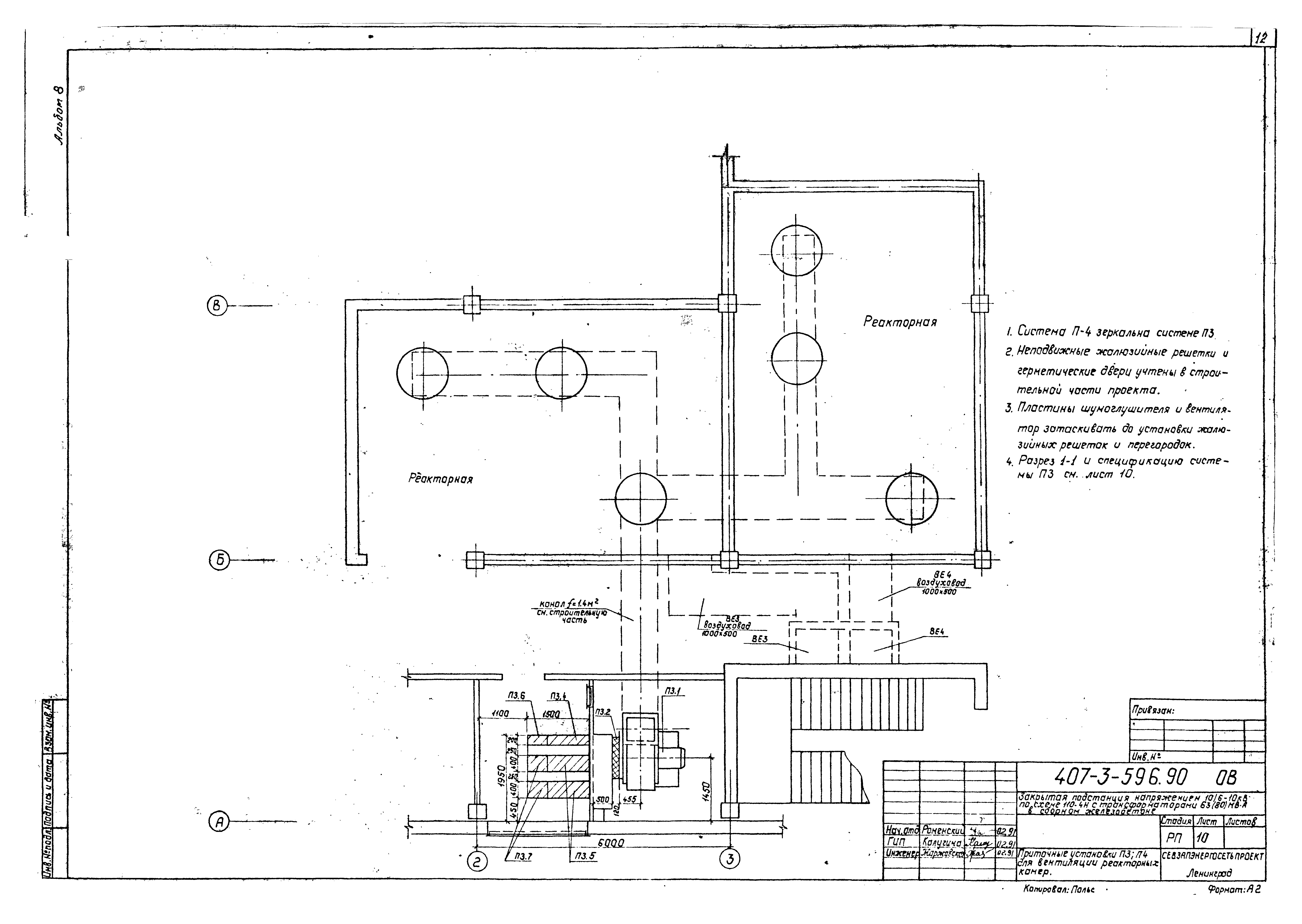
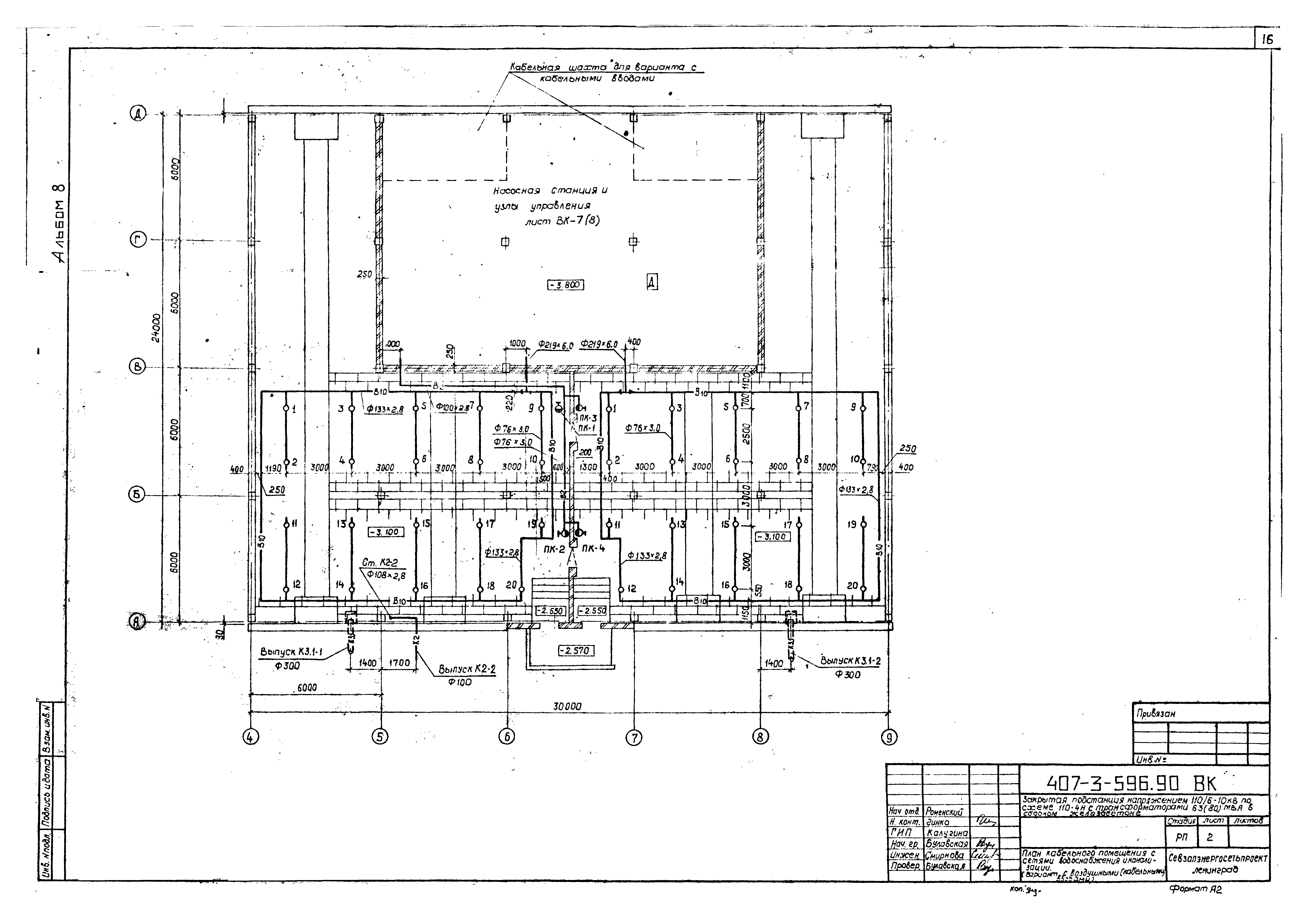
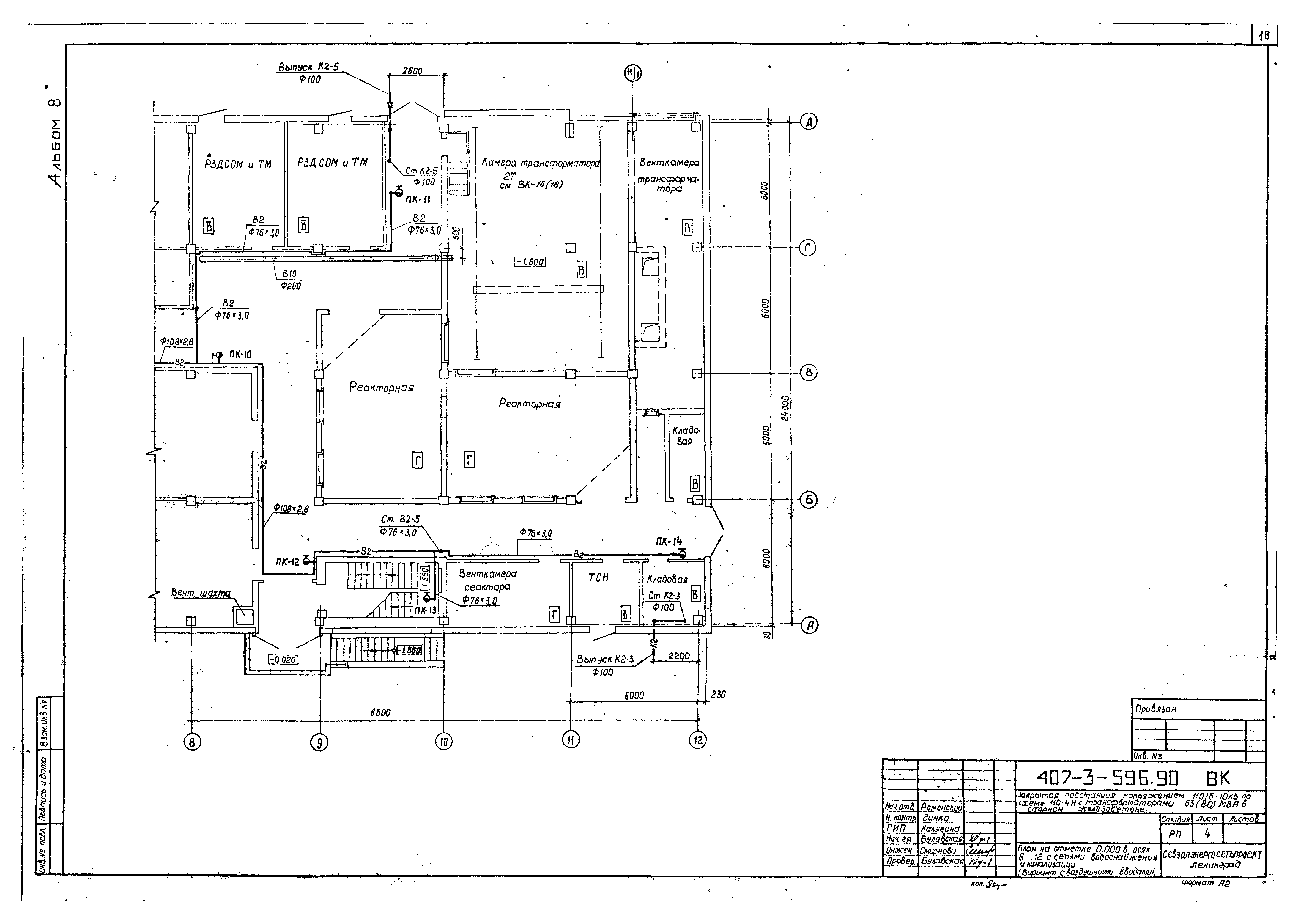
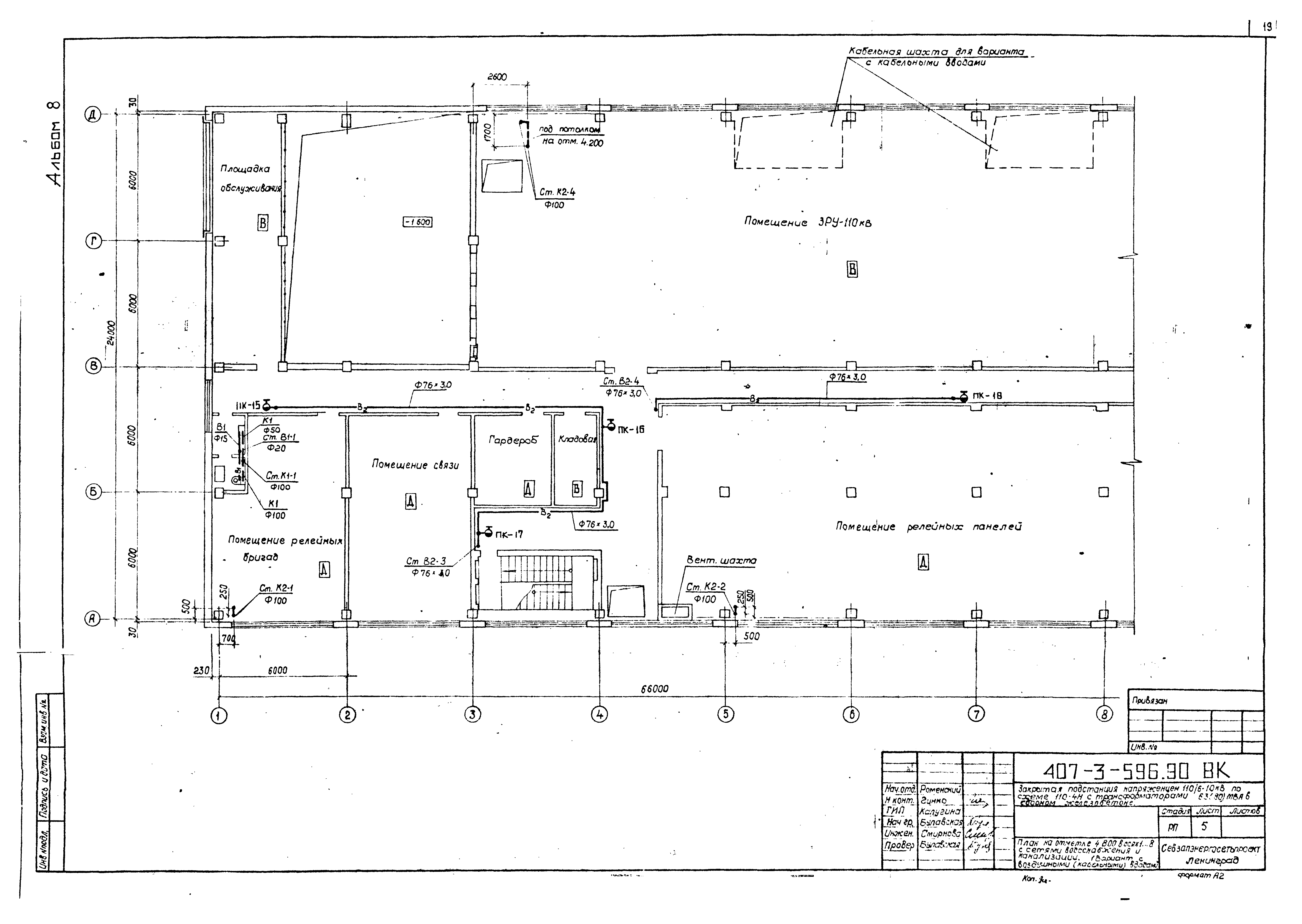
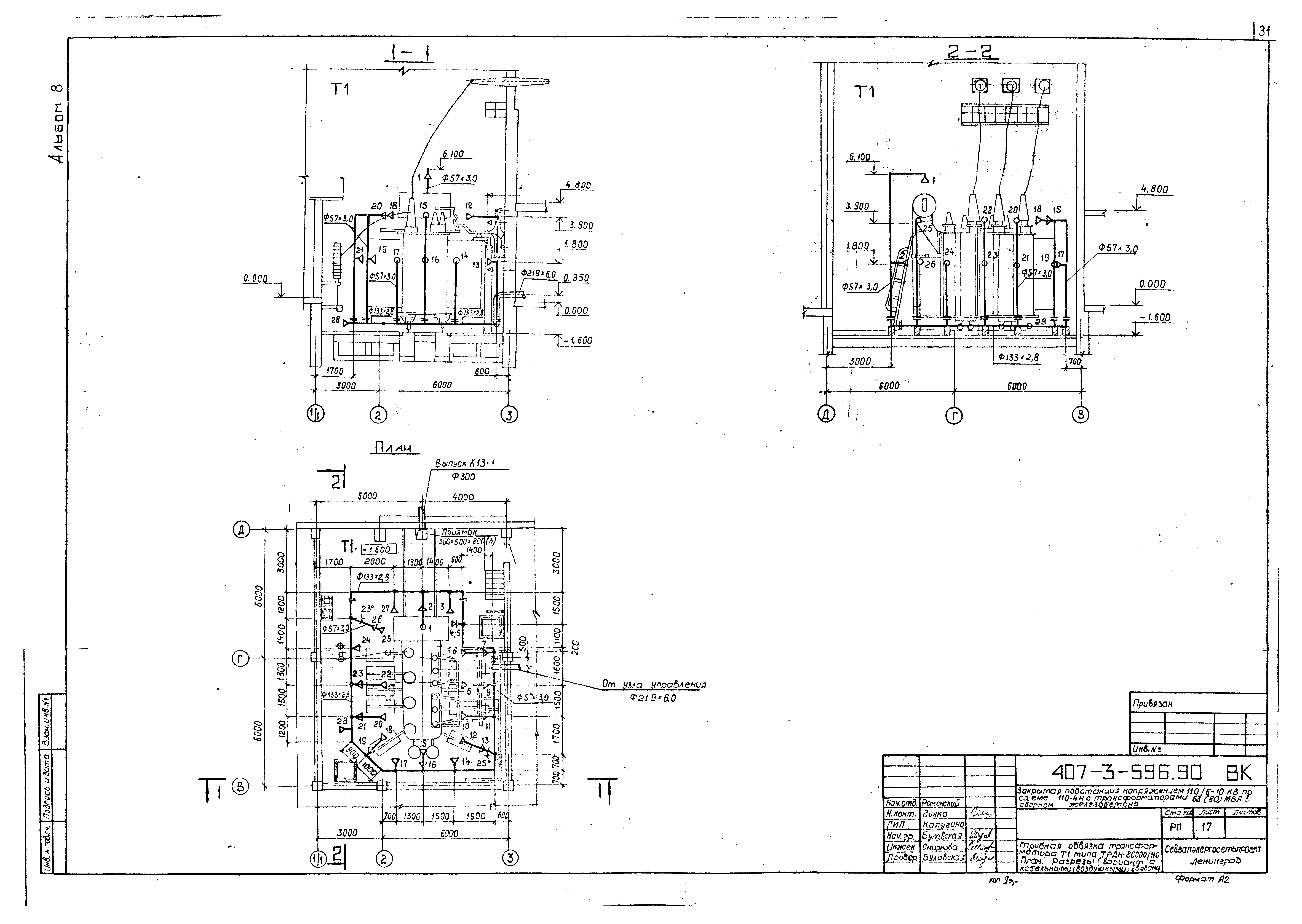
| Оглавление: | Отопление и вентиляция Общие данные План кабельного помещения на отм. - 3.100 План на отм. 0.000 в осях 1…8 План на отм. 0.000 в осях 8…12 План на отм. 4.800 в осях 1…8 План на отм. 4.800 в осях 8…12 Приточные установки П1, П2 для вентиляции трансформаторов Камера шумоглушения в осях 1.2, 11.12 на отм. 4.800. Установка ВЕ1, ВЕ2 для трансформаторов Приточные установки П3, П4 для вентиляции реакторных камер Схемы вентиляционных систем Установка двух и трех электропечей Водоснабжение и канализация Общие данные План кабельного помещения с сетями водоснабжения и канализации (вариант с воздушными (кабельными) вводами) План на отм. 0.000 в осях 1…8 с сетями водоснабжения и канализации (вариант с воздушными вводами) План на отм. 0.000 в осях 8…12 с сетями водоснабжения и канализации (вариант с воздушными вводами) План на отм. 4.800 в осях 1…8 с сетями водоснабжения и канализации (вариант с воздушными (кабельными) вводами) План на отм. 4.800 в осях 8…12 с сетями водоснабжения и канализации (вариант с воздушными (кабельными) вводами) Насосная станция пожаротушения и узлы управления. План на отм. - 3.800. Разрезы (вариант с воздушными вводами) Насосная станция пожаротушения и узлы управления. План на отм. - 3.800. Разрезы (вариант с кабельными вводами) Насосная станция пожаротушения и узлы управления. Аксонометрическая схема (вариант с воздушными вводами) Насосная станция пожаротушения и узлы управления. Аксонометрическая схема (вариант с кабельными вводами) Фрагмент плана на отм. 0.000. Схема системы В10 в кабельных помещениях и помещениях для кабельных муфт (вариант с воздушными (кабельными) вводами) Схемы систем В1, В10 (вариант с воздушными (кабельными) вводами) План кровли с водосточными воронками. Схемы системы К2 (вариант с воздушными (кабельными) вводами) Схемы систем К1, К3.1, К13 (вариант с воздушными (кабельными) вводами) Трубная обвязка трансформатора Т1 типа ТРДН-63000/110. План. Разрезы (с кабельными (воздушными) вводами) Трубная обвязка трансформатора Т2 типа ТРДН-63000/110. План. Разрезы (с кабельными (воздушными) вводами) Трубная обвязка трансформатора Т1 типа ТРДН-80000/110. План. Разрезы (с кабельными (воздушными) вводами) Трубная обвязка трансформатора Т2 типа ТРДН-80000/110. План. Разрезы (с кабельными (воздушными) вводами) Трубная обвязка трансформаторов 63(80) МВА. Аксонометрическая схема (с кабельными (воздушными) вводами) |
| Разработан: | Севзапэнергосетьпроект |
| Утверждён: | 01.02.1991 Минэнерго СССР (USSR Minenergo 1) |
| Издан: | Севзапэнергосетьпроект (1991 г. ) |

































