Скачать Типовой проект 294-3-33.83 Альбом 0. Материалы для привязки и чертежи нулевого цикла работДата актуализации: 01.01.2021
|
| Обозначение: | Типовой проект 294-3-33.83 |
| Обозначение англ: | 294-3-33.83 |
| Статус: | не определен законодательством |
| Название рус.: | Альбом 0. Материалы для привязки и чертежи нулевого цикла работ |
| Дата добавления в базу: | 01.09.2013 |
| Дата актуализации: | 01.01.2021 |
| Дата введения: | 13.05.1983 |
| Дата окончания срока действия: | 30.06.2003 |
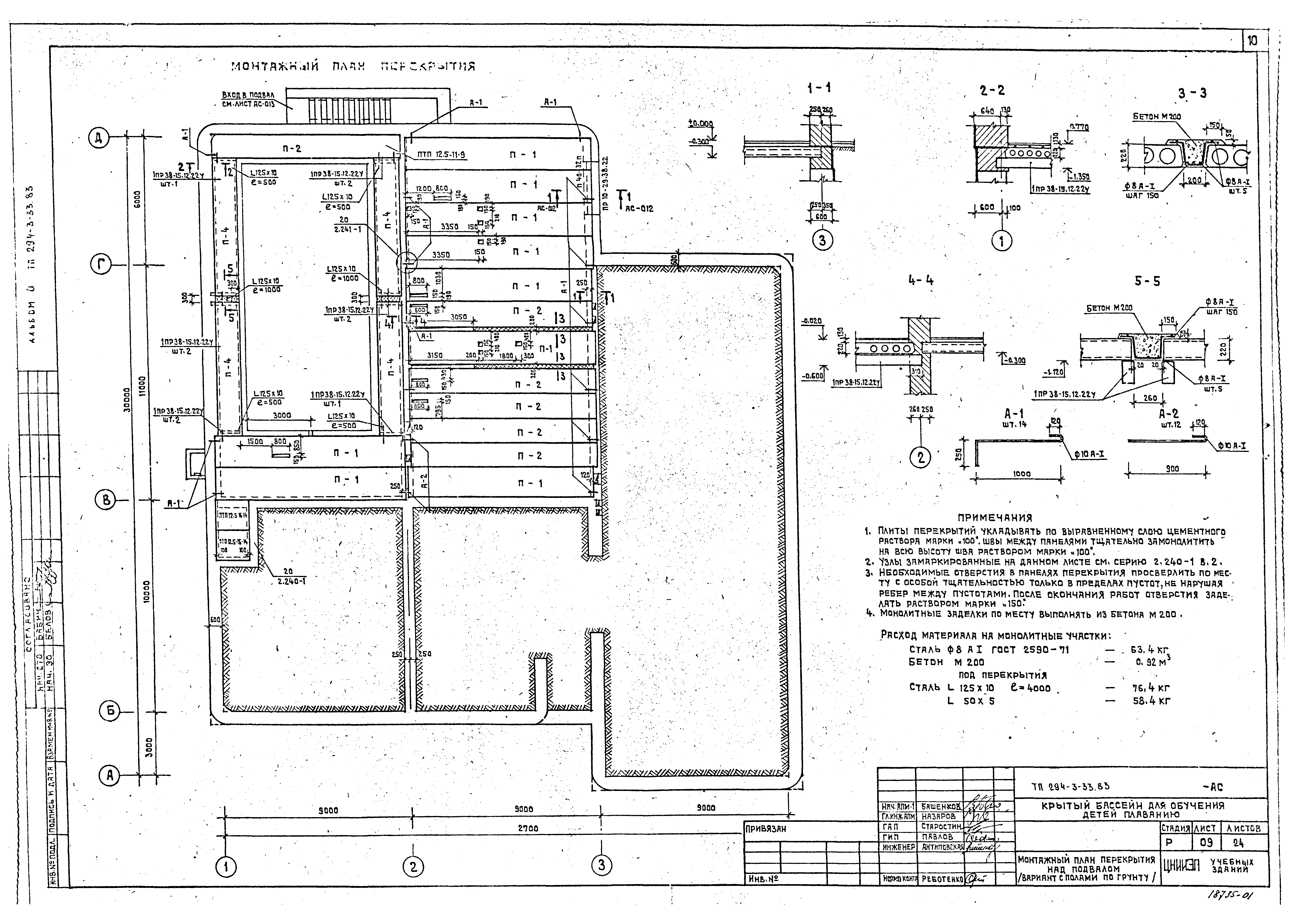
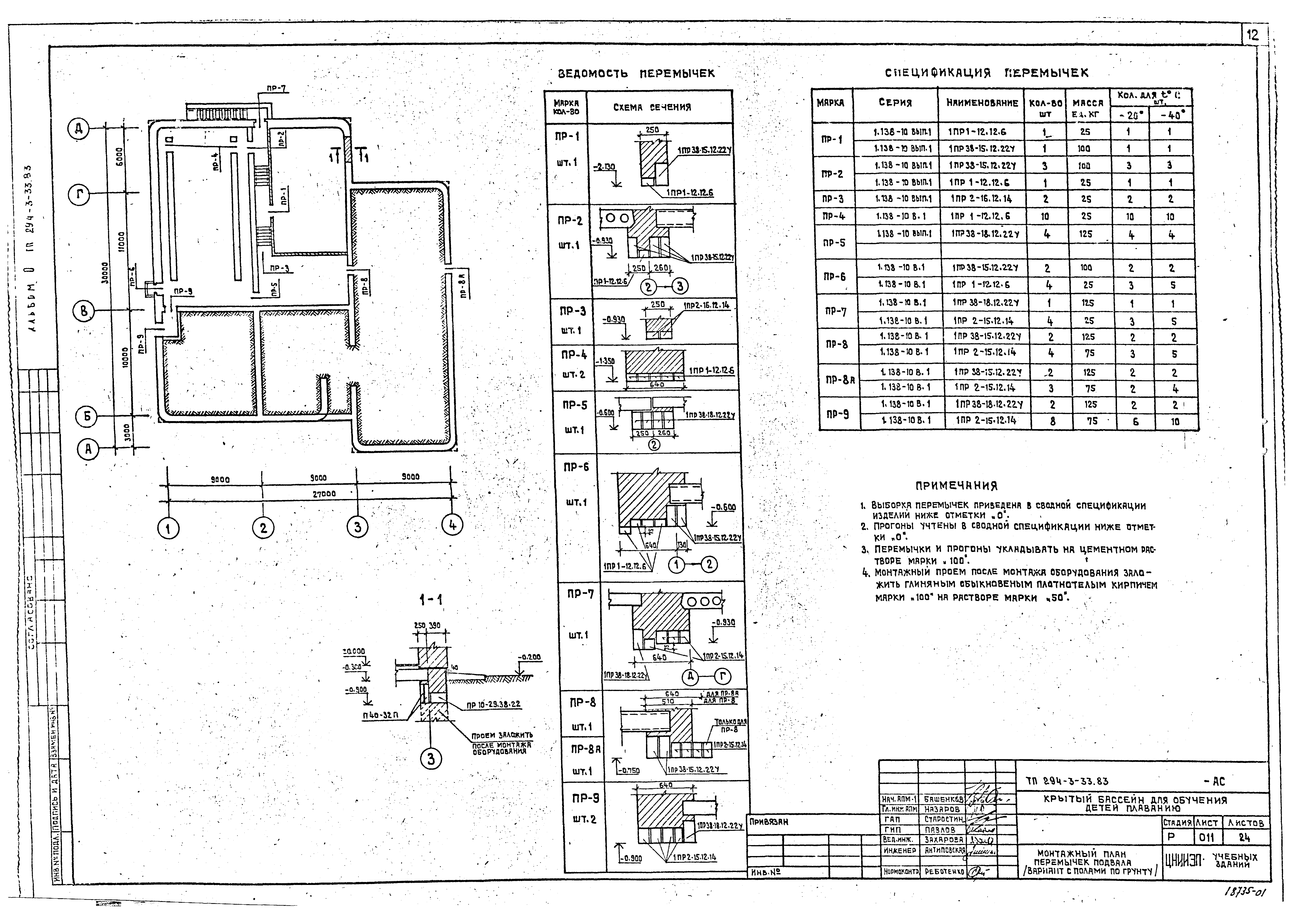
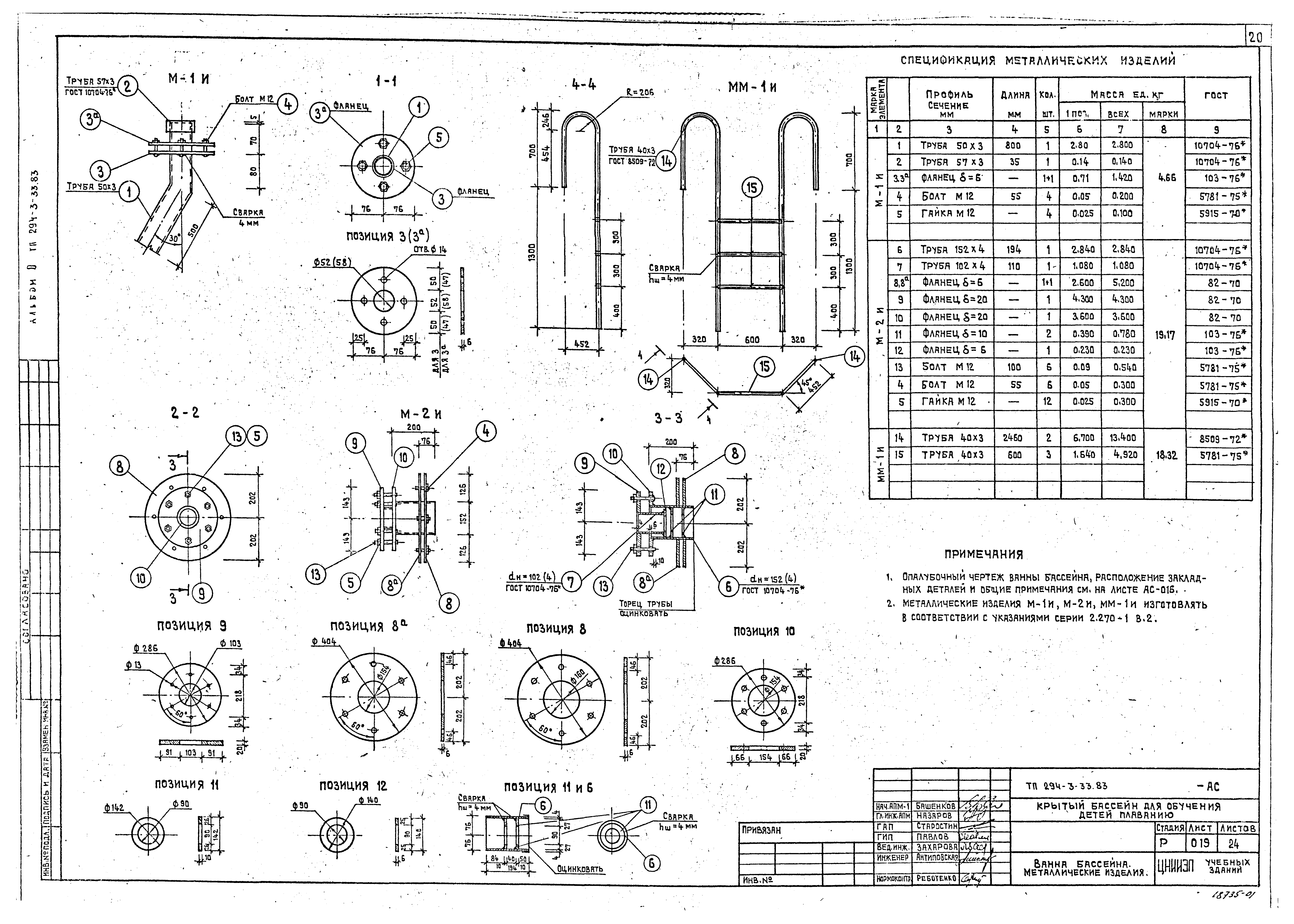
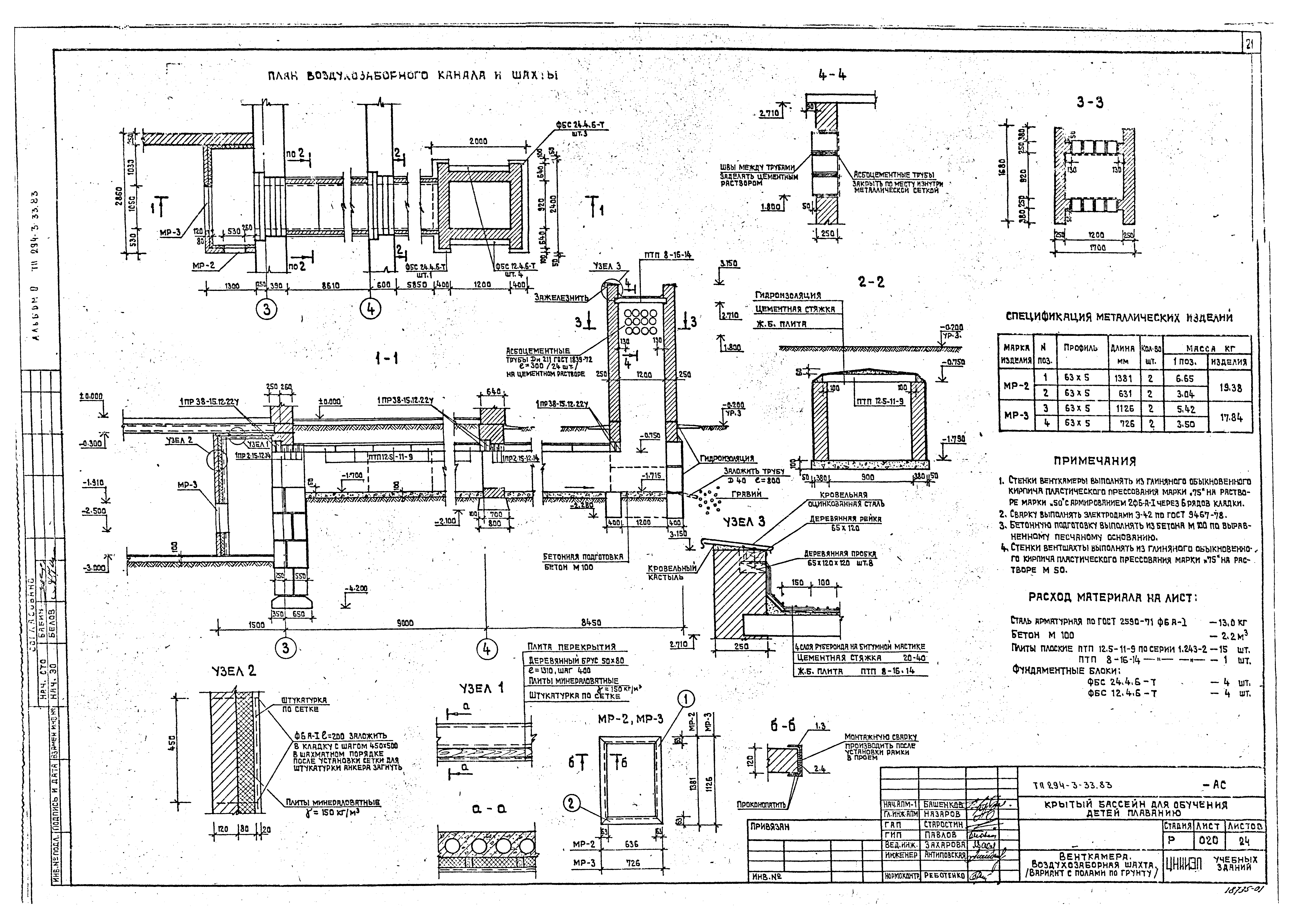
| Оглавление: | Общие данные План подвала (вариант с полами по грунту) План подвала техподполья. Крыльцо №№2, 3 (вариант с техподпольем). Стремянка ЛМ-1 План фундаментов. Таблицы нагрузок на фундаменты. Пример решения (вариант с полами по грунту) Сечения фундаментов. Пример решения (вариант с полами по грунту) Сечения фундаментов. Пример решения (вариант с техподпольем) Монтажный план перекрытия над подвалом (вариант с полами по грунту) Монтажный план перекрытия над подвалом и техподпольем (вариант с техподпольем) Монтажный план перемычек подвала (вариант с полами по грунту) Монтажный план перемычек подвала и техподполья (вариант с техподпольем) Вход в подвал. Приямок (вариант с полами по грунту) Вход в подвал. Приямок. Крыльцо №1 (вариант с техподпольем) Лестницы. Приямок №2 Ванна бассейна. Опалубка Ванна бассейна. Армирование Ванна бассейна. Спецификация арматуры Ванна бассейна. Металлические изделия Венткамера. Воздухозаборная шахта (вариант с полами по грунту) Венткамера. Воздухозаборная шахта (вариант с техподпольем) Сводная спецификация строительных изделий ниже отметки "0" (вариант с полами по грунту) Сводная спецификация строительных изделий ниже отметки "0" (вариант с техподпольем) Сводная спецификация строительных изделий выше отметки "0" |
| Разработан: | ЦНИИЭП учебных зданий |
| Утверждён: | 21.07.1978 Госгражданстрой (Gosgrazhdanstroy 155) |

























