Скачать Типовой проект 294-3-33.83 Альбом I. Архитектурно-строительные и технологические чертежиДата актуализации: 01.01.2021
|
| Обозначение: | Типовой проект 294-3-33.83 |
| Обозначение англ: | 294-3-33.83 |
| Статус: | не определен законодательством |
| Название рус.: | Альбом I. Архитектурно-строительные и технологические чертежи |
| Дата добавления в базу: | 01.09.2013 |
| Дата актуализации: | 01.01.2021 |
| Дата введения: | 13.05.1983 |
| Дата окончания срока действия: | 30.06.2003 |
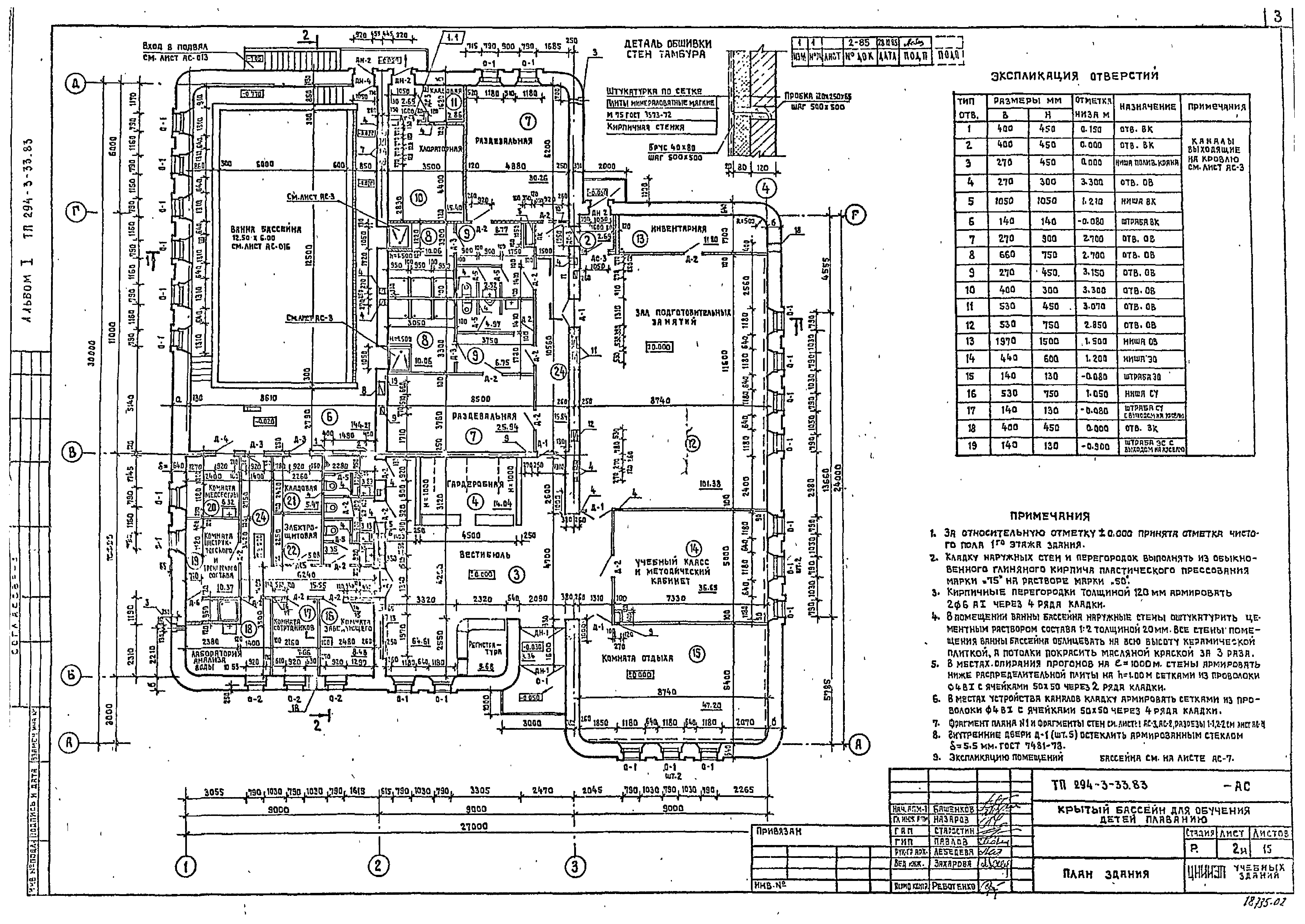
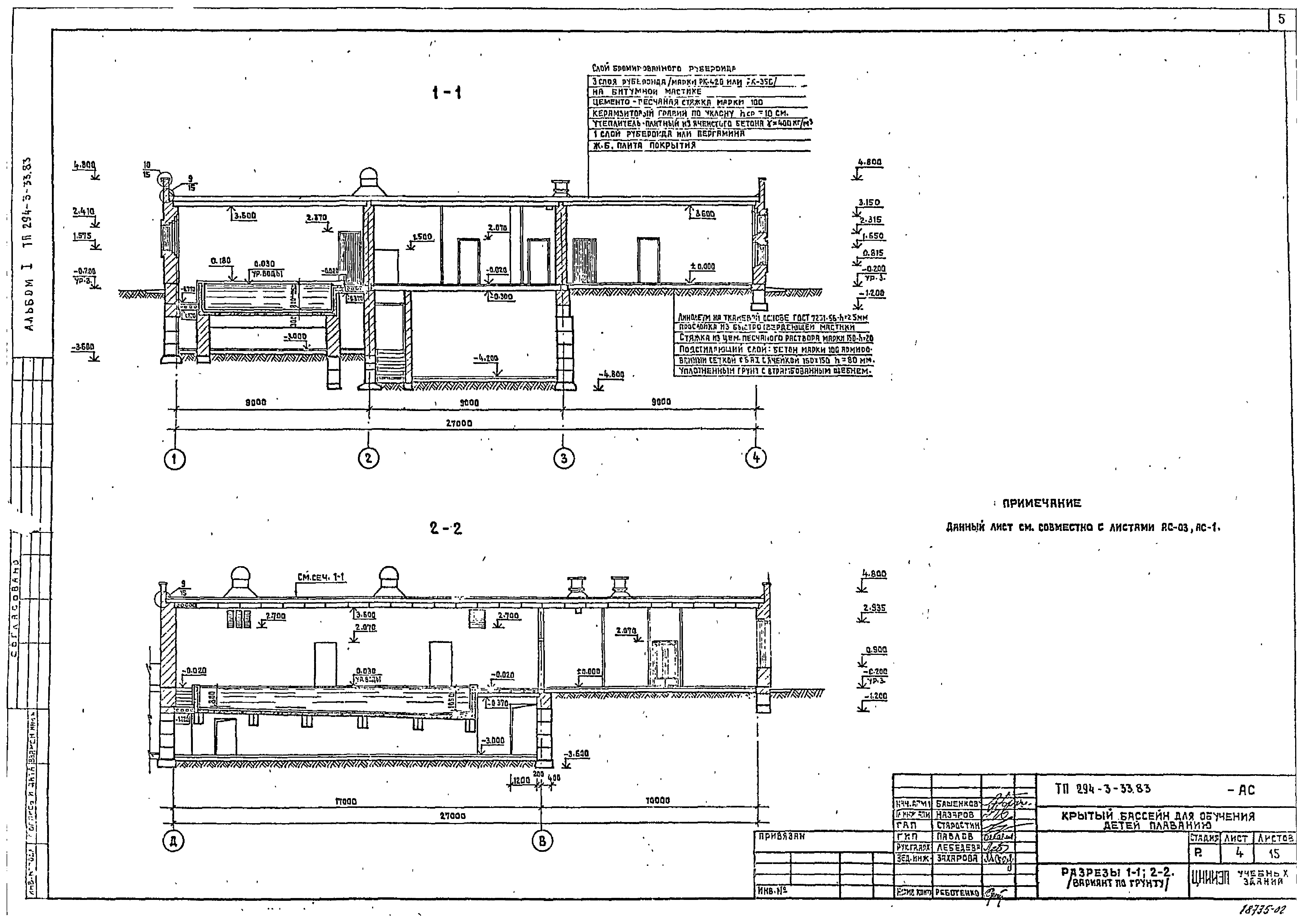
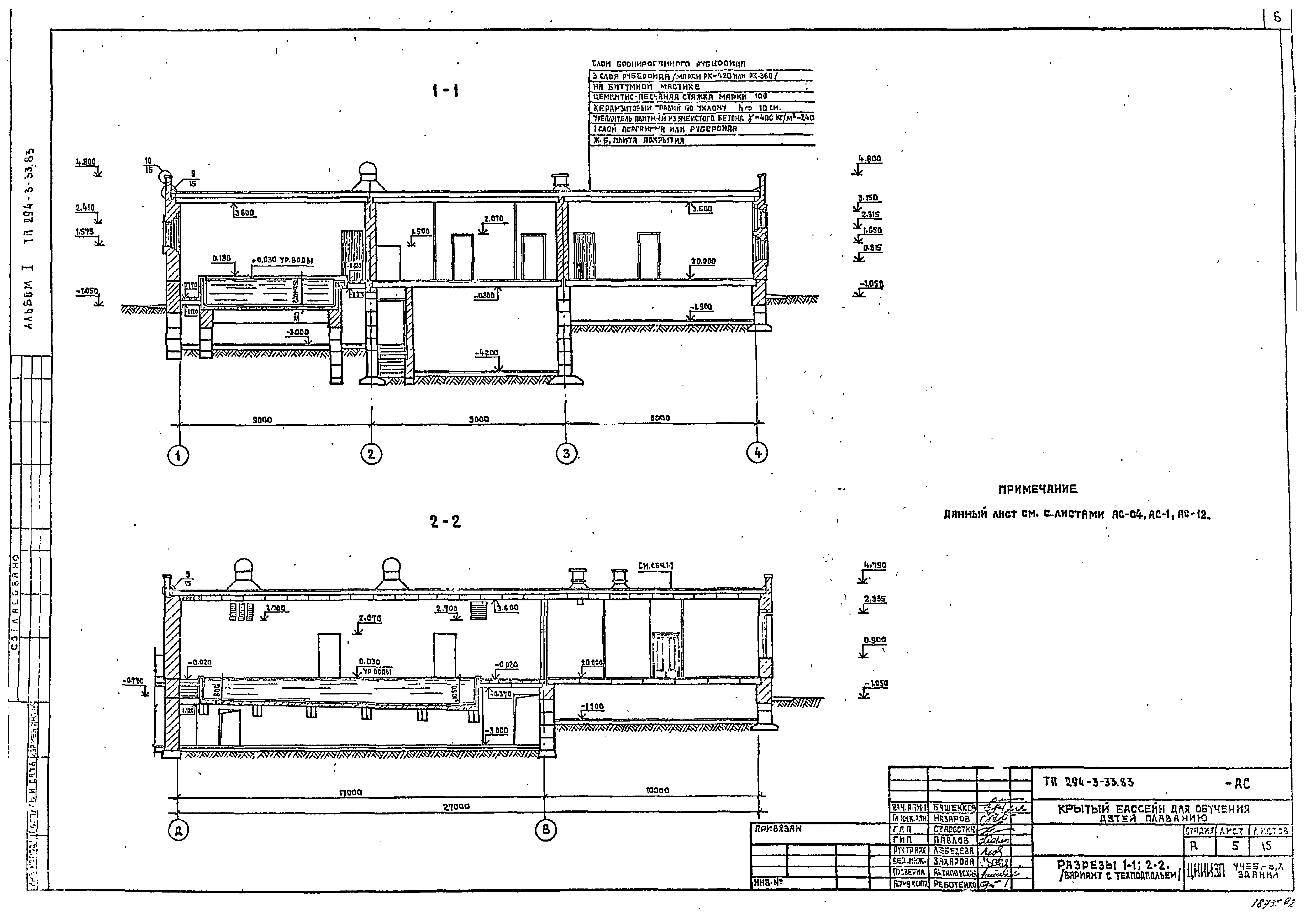
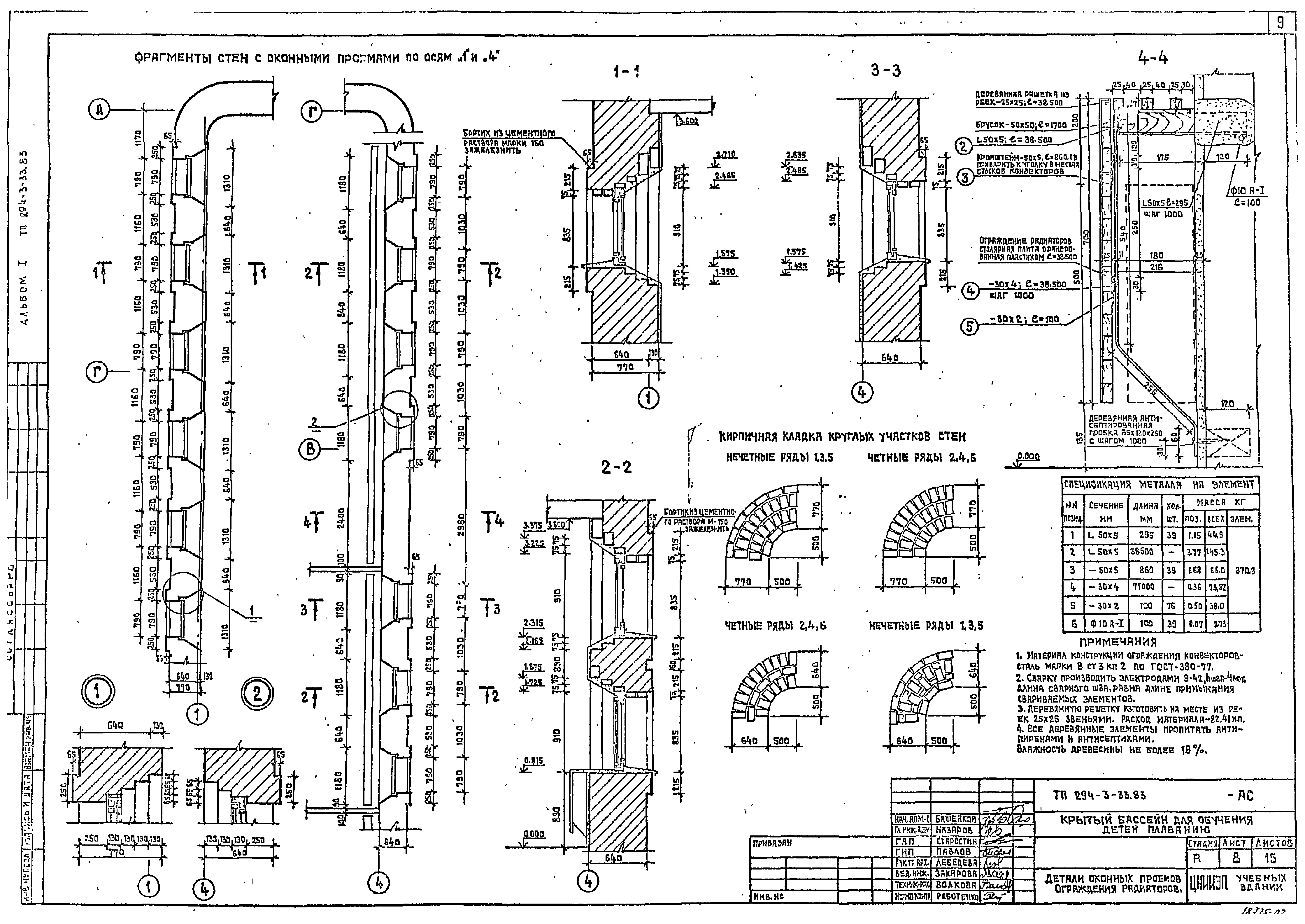
| Оглавление: | Содержание альбома. Пояснительная записка План здания Фрагменты плана здания. Ножная ванна, душевой поддон Разрезы по зданию (вариант с полами по грунту) Разрезы по зданию (вариант с техподпольем) Фасады (вариант с полами по грунту) Ведомость отделки помещений, наружная отделка Детали оконных проемов. Ограждение радиаторов Монтажный план покрытия Монтажный план перегородок и перемычек Ведомость и спецификация перемычек План кровли, детали Пример решения интерьеров План. Расстановка технологического оборудования Спецификация технологического оборудования |
| Разработан: | ЦНИИЭП учебных зданий |
| Утверждён: | 21.07.1978 Госгражданстрой (Gosgrazhdanstroy 155) |
















