Скачать Типовой проект 902-1-164.90 Альбом 5. Подземная часть. Конструкции железобетонные. Конструкции металлические. ИзделияДата актуализации: 01.01.2021
|
| Обозначение: | Типовой проект 902-1-164.90 |
| Обозначение англ: | 902-1-164.90 |
| Статус: | не определен законодательством |
| Название рус.: | Альбом 5. Подземная часть. Конструкции железобетонные. Конструкции металлические. Изделия |
| Дата добавления в базу: | 01.09.2013 |
| Дата актуализации: | 01.01.2021 |
| Дата введения: | 15.05.1990 |
| Дата окончания срока действия: | 30.06.2003 |
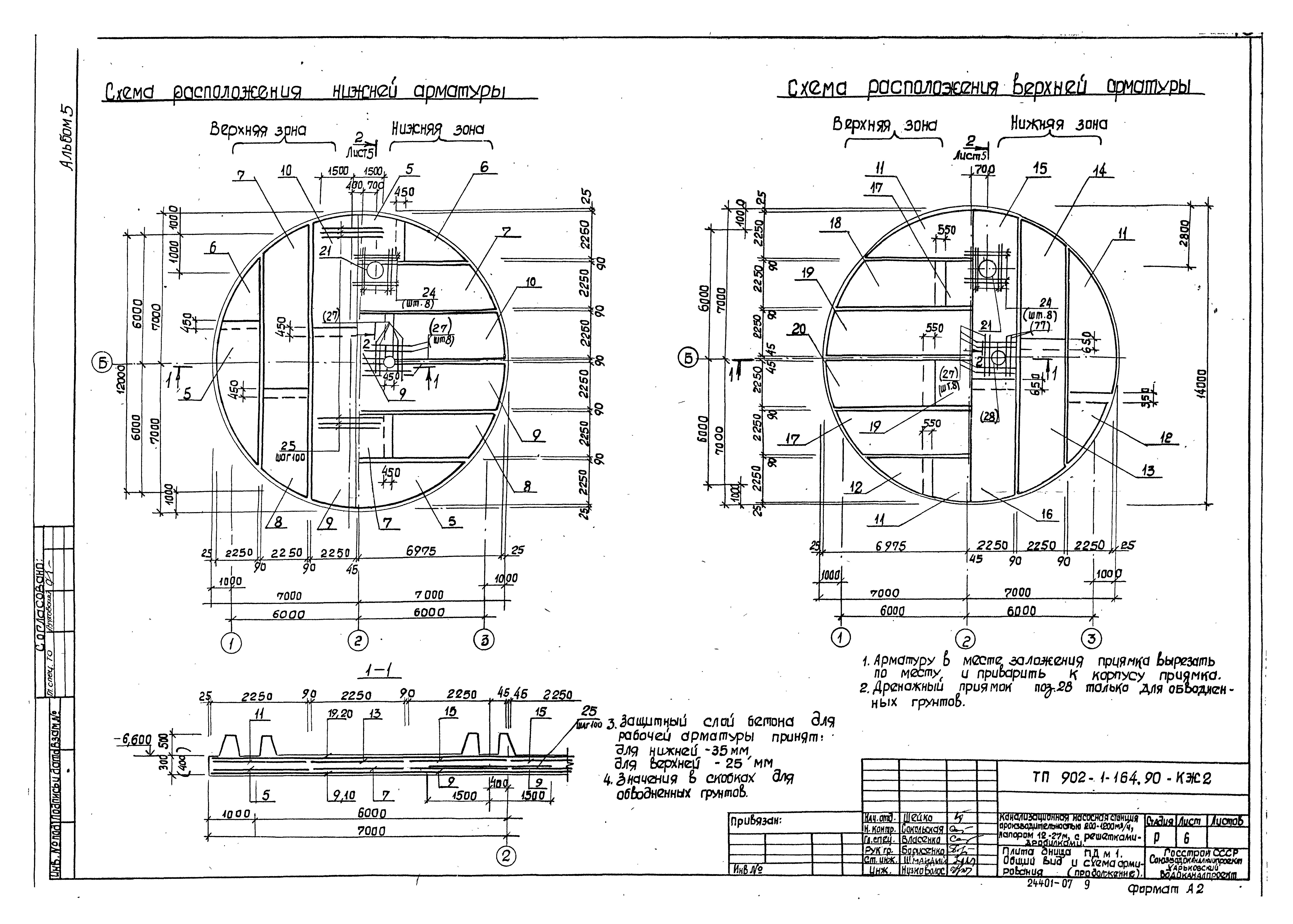
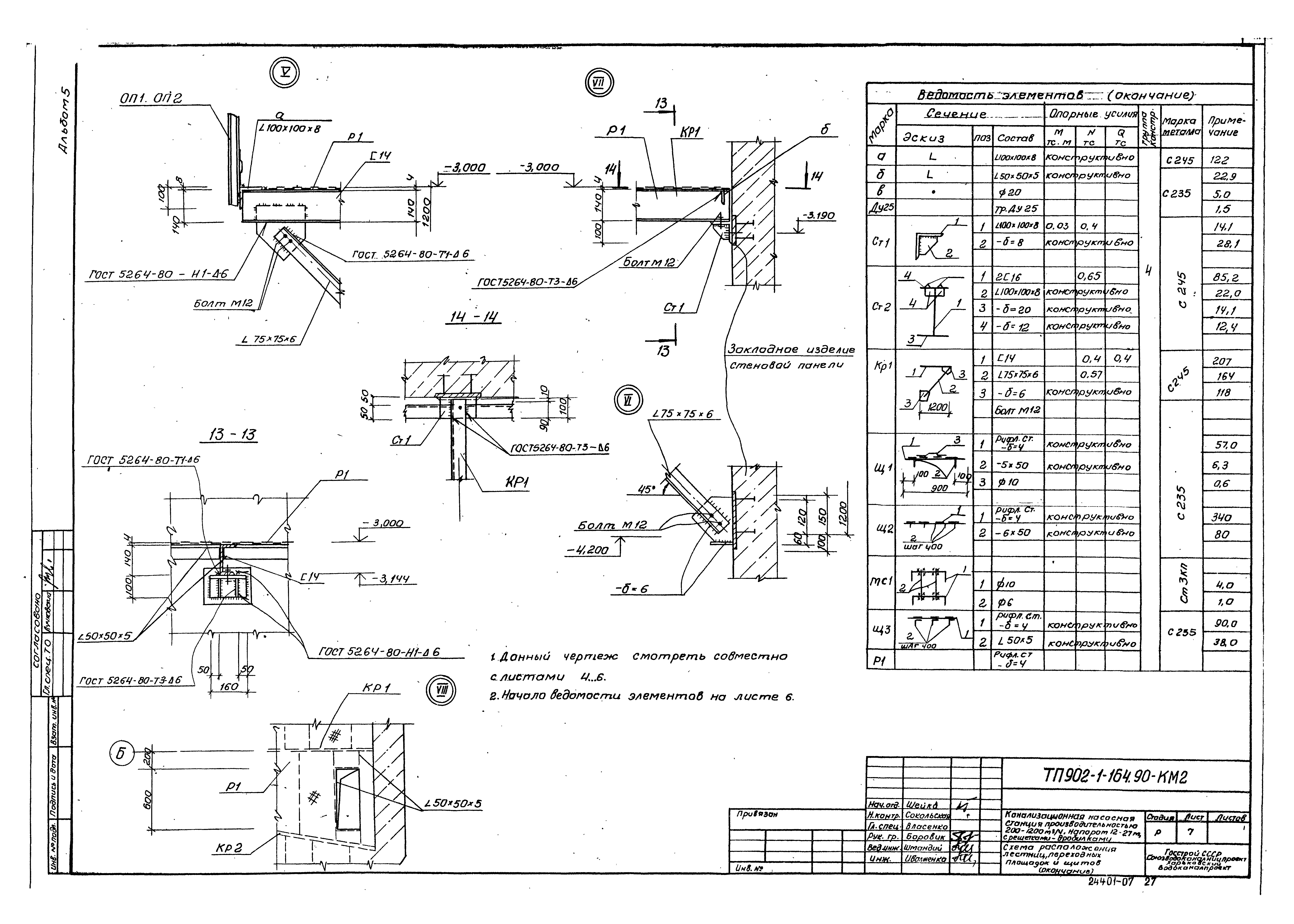
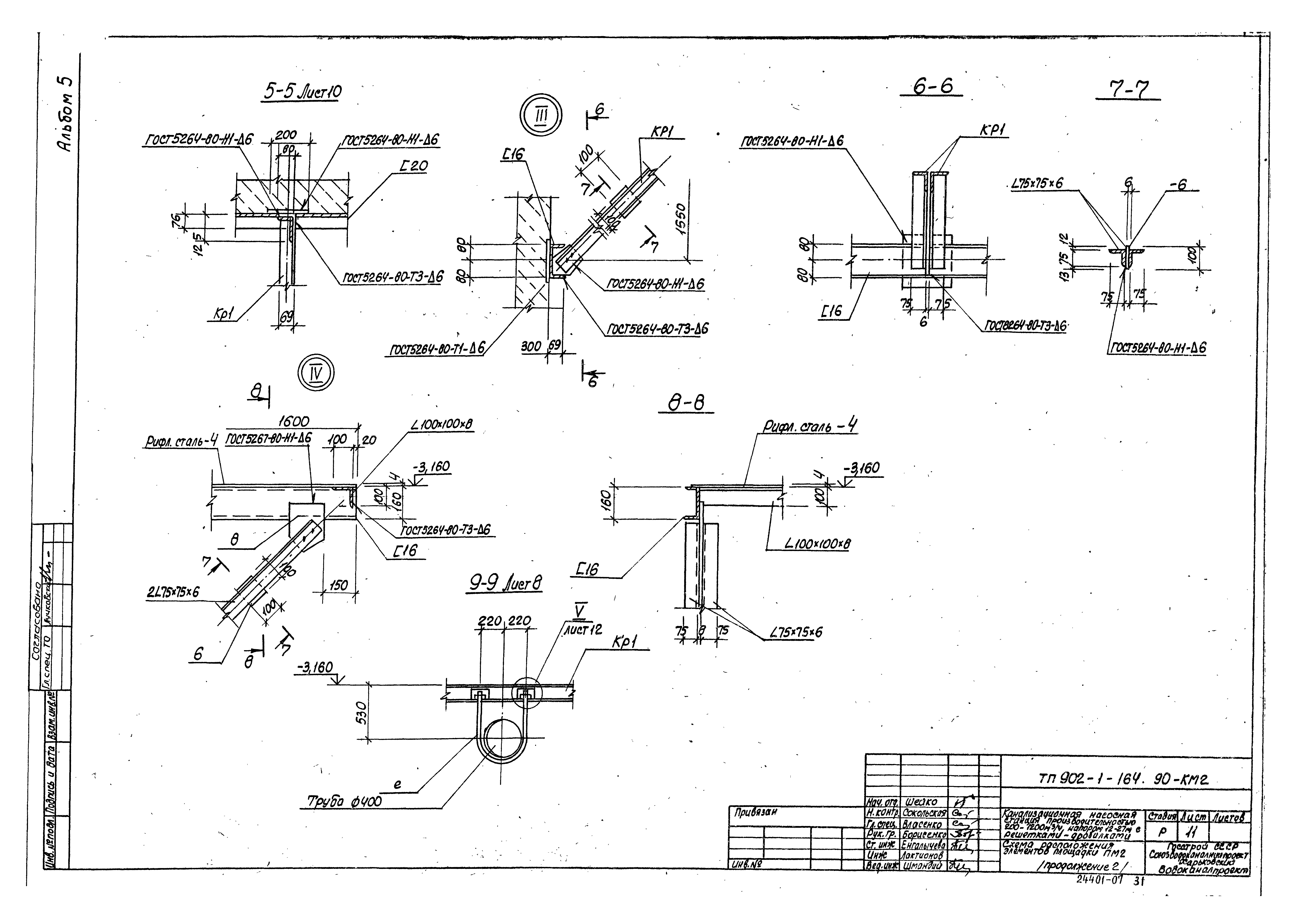
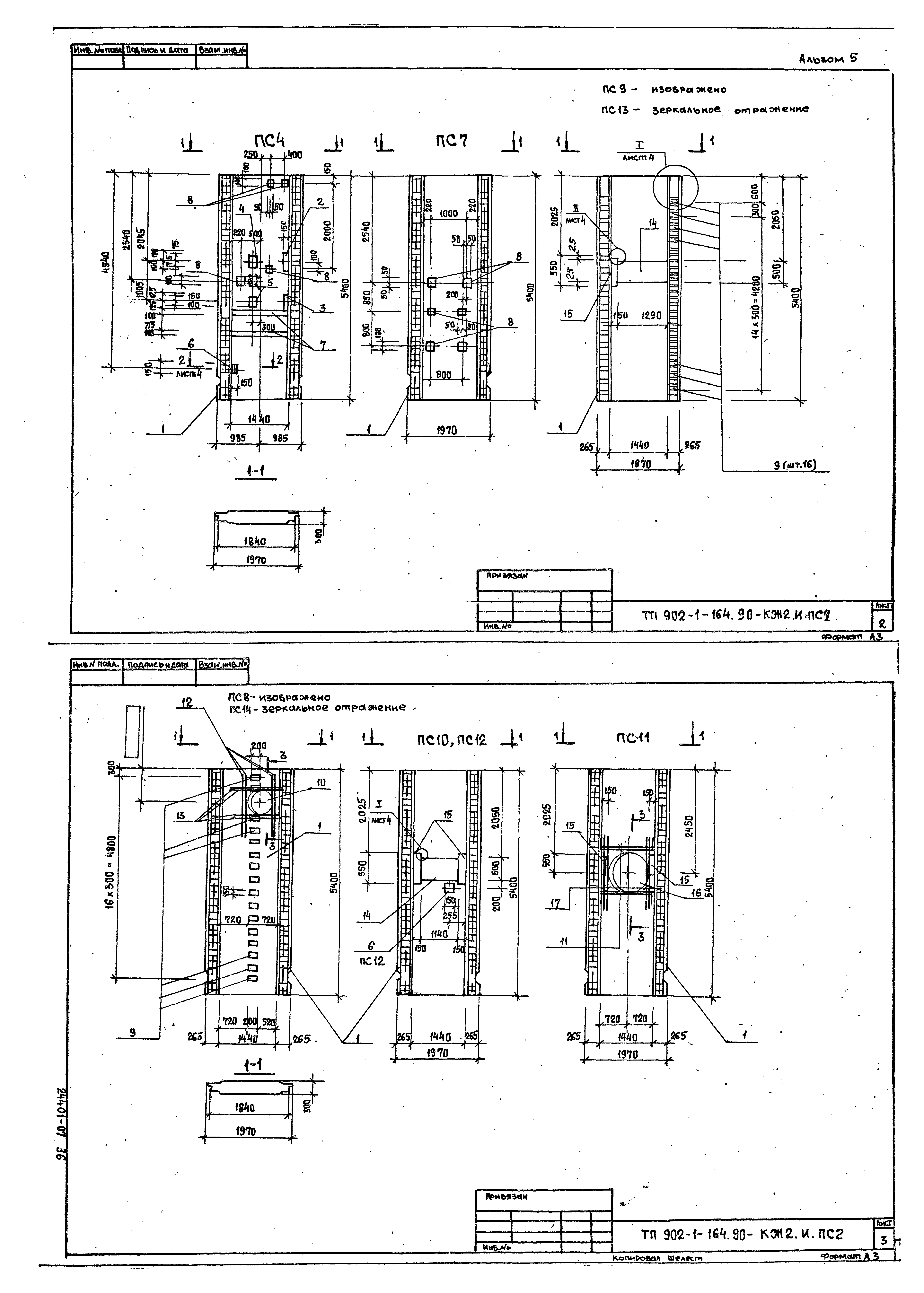
| Оглавление: | Содержание Основной комплект чертежей марки КЖ2 Общие данные Планы на отм. - 6.190; - 3.200. Разрез 1-1 Схема расположения конструкций подземной части Плита днища ПДм1. Общий вид и схема армирования Плита днища ПДм1. Спецификация (для сухих грунтов) Плита днища ПДм1. Спецификация (для обводненных грунтов) Схема расположения стеновых панелей Участок монолитный Ум1, Ум2. Общий вид и схема армирования Основной комплект чертежей марки КМ2 Общие данные Схема расположения лестниц, переходных площадок и щитов Схема расположения переходной съемной площадки ПМ1 Схема расположения элементов площадки ПМ2 Изделия Технические требования Панель стеновая ПС1 Ведомость расхода стали РС1 Панель стеновая ПС2 (ПС2…ПС14) Ведомость расхода стали Панель перегородочная ПГ1 (ПГ1…ПГ4) Ведомость расхода стали РС3 Сетка арматурная С1, С2 Сетка арматурная С3 Каркас плоский Кр1, Кр2 Каркас плоский Кр3, Кр4 Каркас плоский Кр5 Каркас плоский Кр6, Кр7 Изделие закладное МН1, МН2, МН3 Изделие закладное МН4, МН5, МС1, МС2 Изделие соединительное МС5 (МС5, МС6, МС7, МС8) Изделие соединительное МС9 (МС9, МС10) |
| Разработан: | Харьковский Водоканалпроект |
| Утверждён: | 15.05.1990 СоюзводоканалНИИпроект (SoyuzvodokanalNIIproject 9) |
| Издан: | ЦИТП Госстроя СССР (CITP, Gosstroy (USSR) 1990 г. ) |
| Заменяет собой: |














































