Скачать Типовой проект 902-1-167.2.90 Альбом 3. Часть 2. Надземная часть и общие чертежи подземной части. Перекрытие в помещении решеток-дробилок КРД 40М. Конструкции железобетонные (из ТП 902-1-164.90)Дата актуализации: 01.01.2021
|
| Обозначение: | Типовой проект 902-1-167.2.90 |
| Обозначение англ: | 902-1-167.2.90 |
| Статус: | не определен законодательством |
| Название рус.: | Альбом 3. Часть 2. Надземная часть и общие чертежи подземной части. Перекрытие в помещении решеток-дробилок КРД 40М. Конструкции железобетонные (из ТП 902-1-164.90) |
| Дата добавления в базу: | 01.09.2013 |
| Дата актуализации: | 01.01.2021 |
| Дата введения: | 15.05.1990 |
| Дата окончания срока действия: | 30.06.2003 |
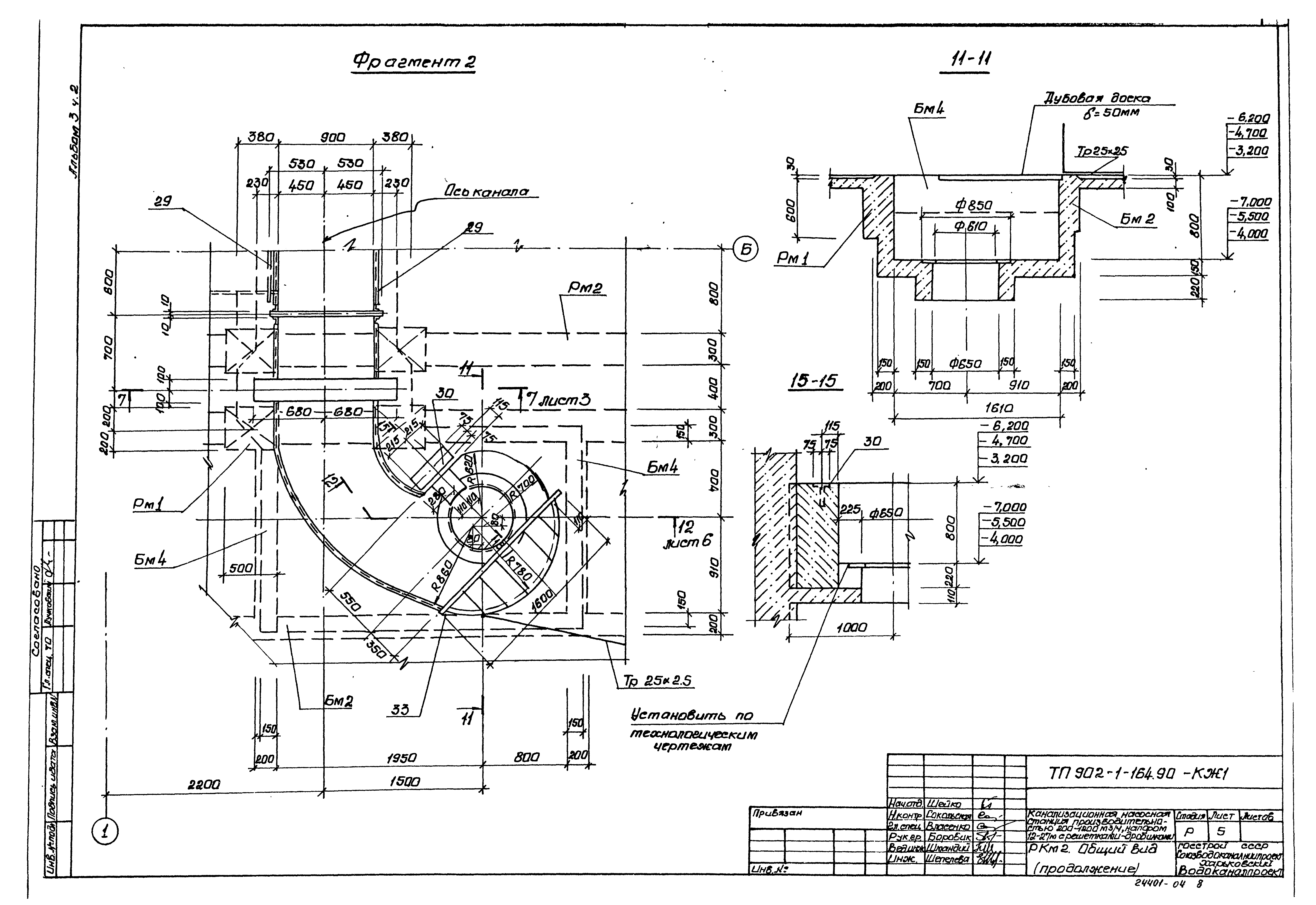
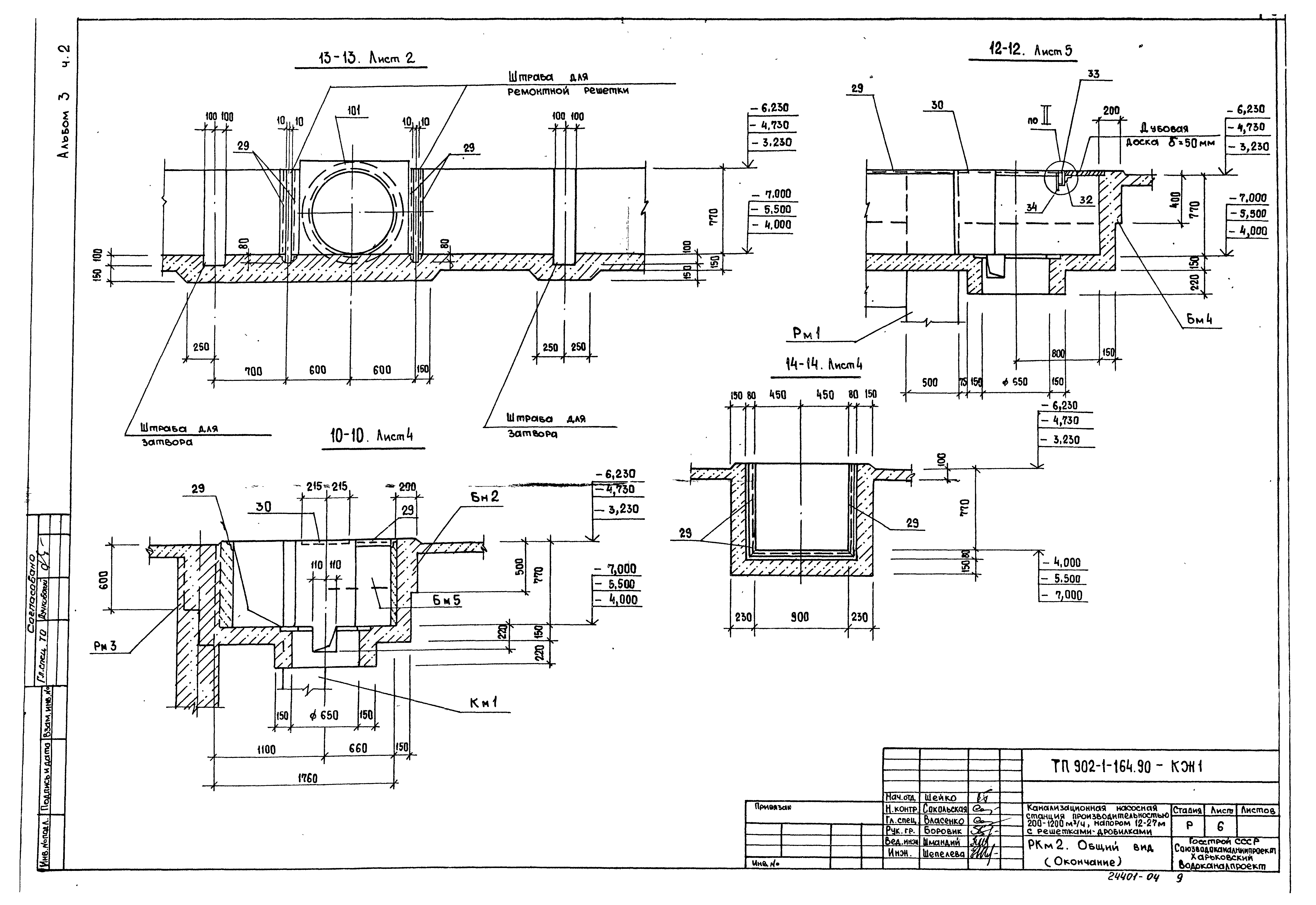
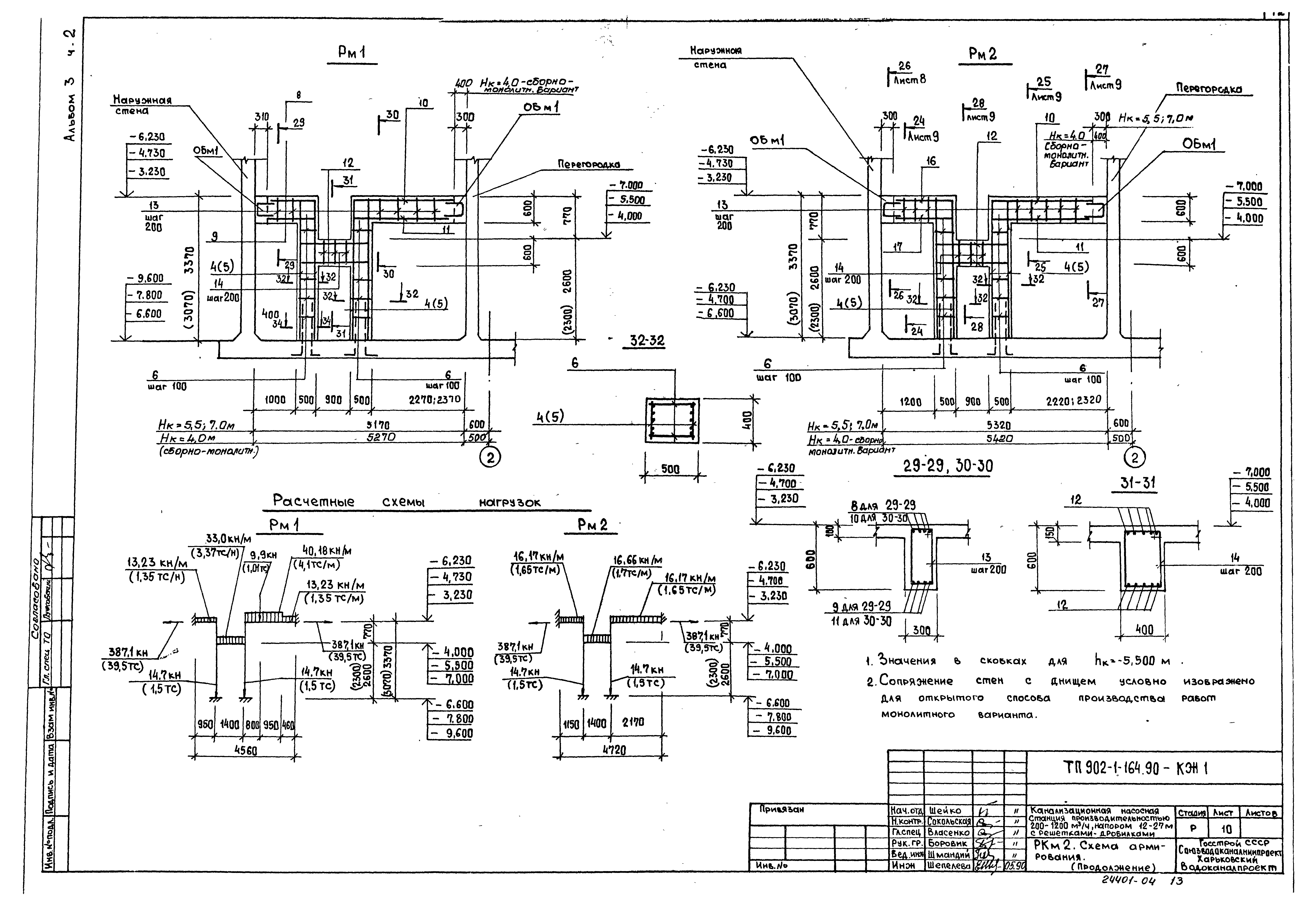
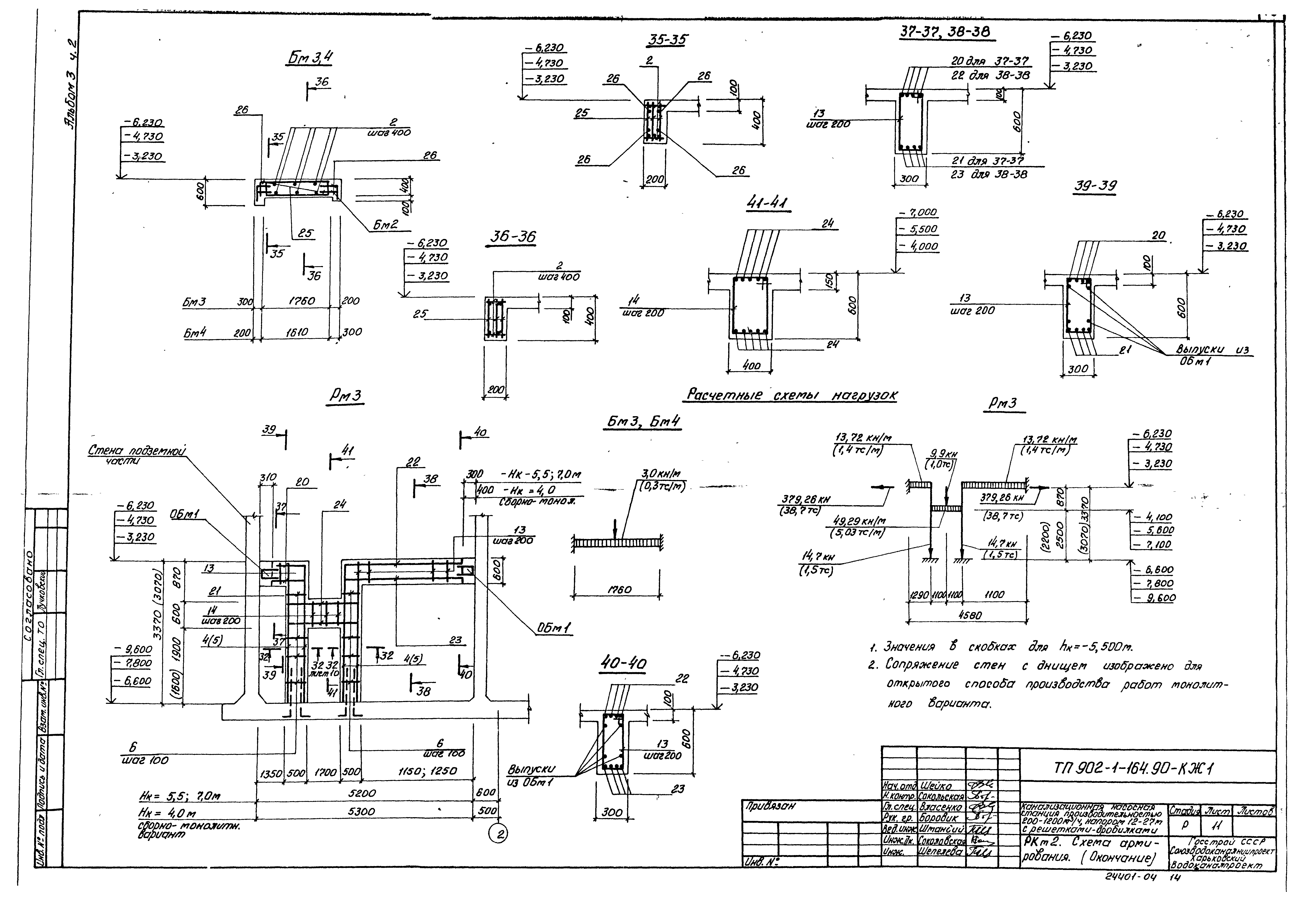
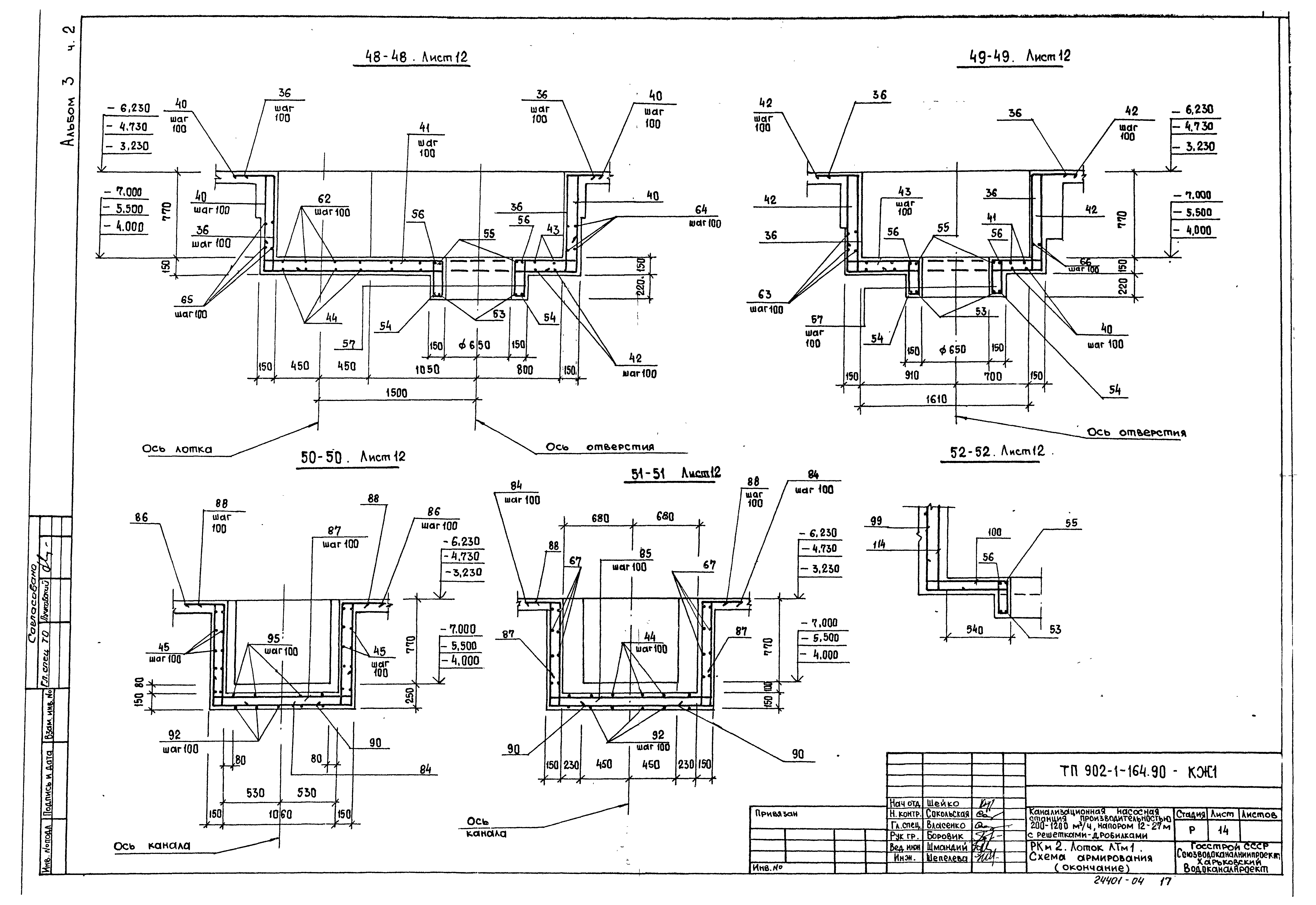
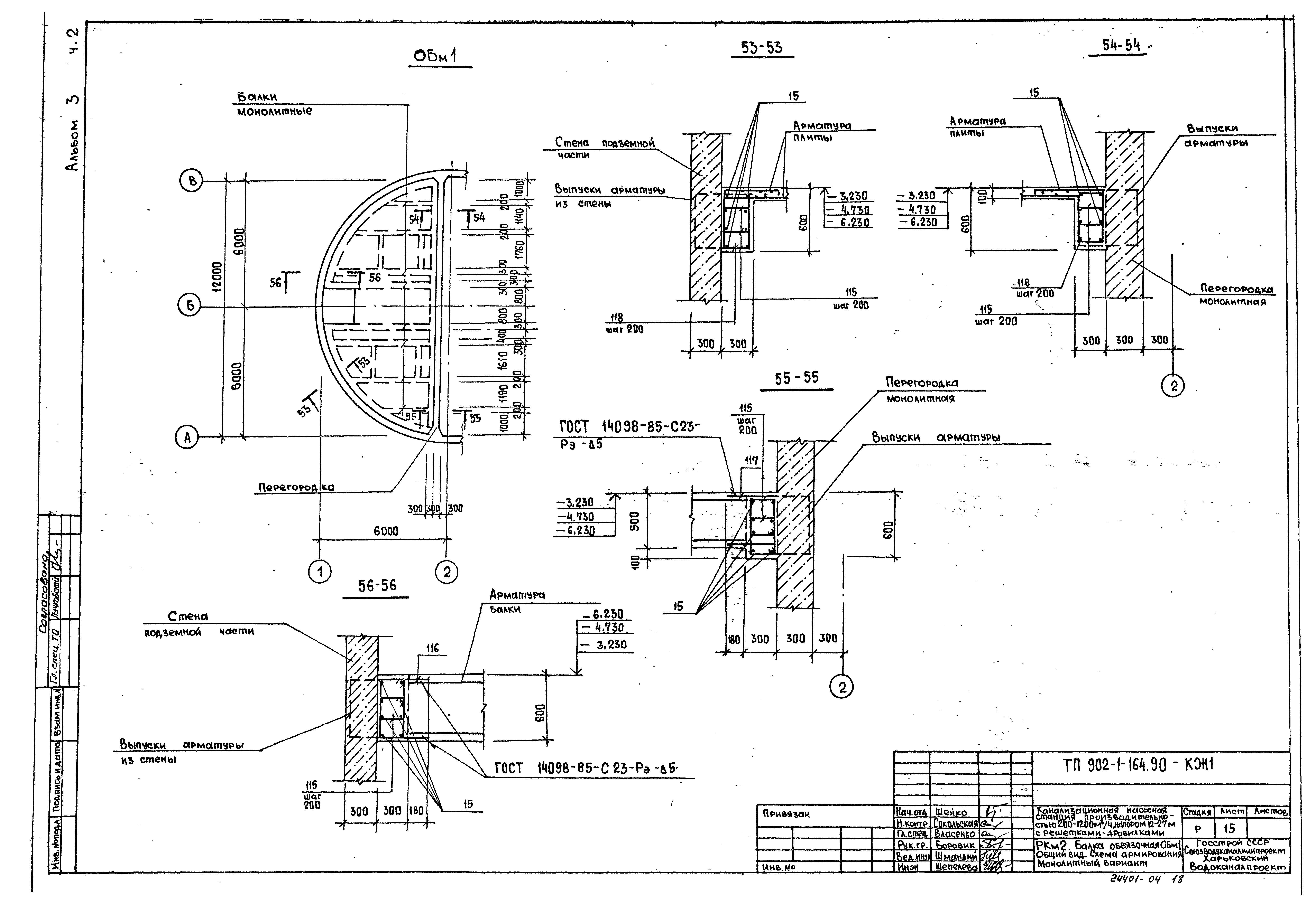
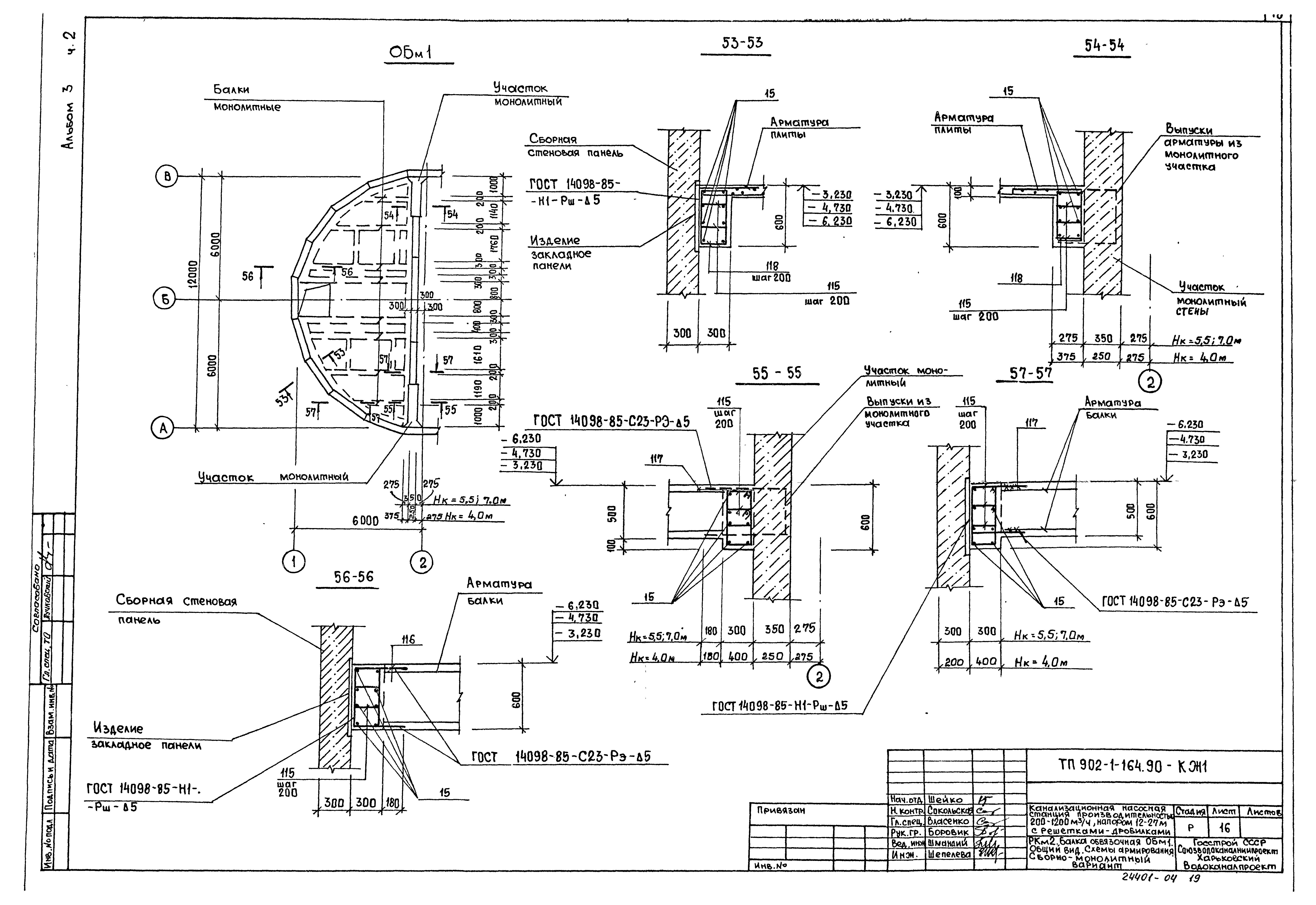
| Оглавление: | Содержание альбома Общие данные РКм2. Общий вид РКм2. Схема армирования. Монолитный вариант РКм2. Схема армирования. Сборно-монолитный вариант РКм2. Лоток ЛТм1. Схема армирования РКм2. Балка обвязочная ОБм1. Общий вид. Схемы армирования. Монолитный вариант РКм2. Балка обвязочная ОБм1. Общий вид. Схемы армирования. Сборно-монолитный вариант РКм2. Спецификация РКм2. Ведомость деталей. Ведомость расхода стали на элемент |
| Разработан: | Харьковский Водоканалпроект |
| Утверждён: | 15.05.1990 СоюзводоканалНИИпроект (SoyuzvodokanalNIIproject 9) |
| Издан: | ЦИТП Госстроя СССР (CITP, Gosstroy (USSR) 1990 г. ) |























