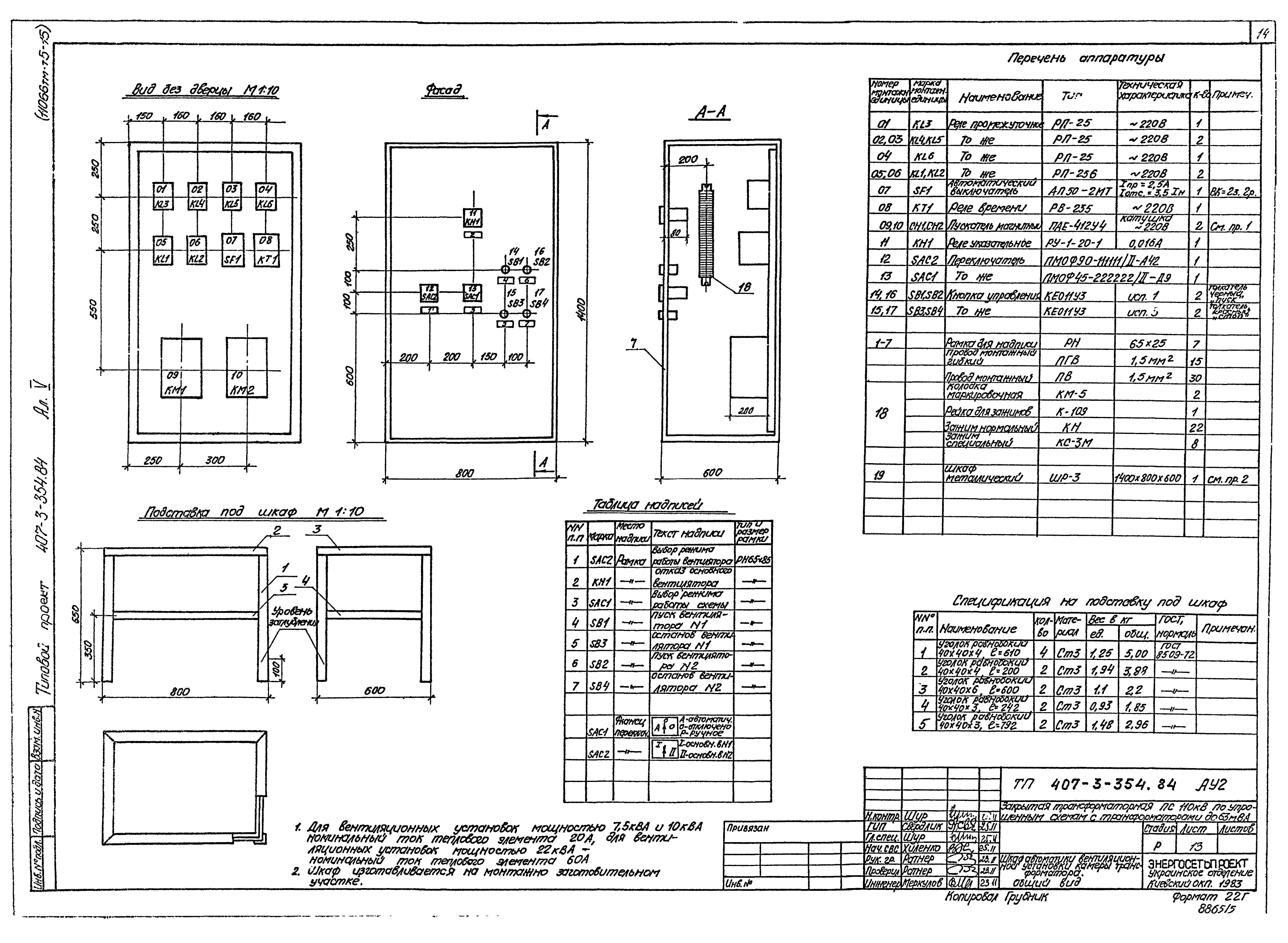
Скачать Типовой проект 407-3-354.84 Альбом V. Задание заводам на изготовление комплектного оборудования, панелей реле и управленияДата актуализации: 01.01.2021 Типовой проект 407-3-354.84
Альбом V. Задание заводам на изготовление комплектного оборудования, панелей реле и управления| Обозначение: | Типовой проект 407-3-354.84 | | Обозначение англ: | 407-3-354.84 | | Статус: | не действует | | Название рус.: | Альбом V. Задание заводам на изготовление комплектного оборудования, панелей реле и управления | | Дата добавления в базу: | 05.05.2017 | | Дата актуализации: | 01.01.2021 | | Дата введения: | 07.02.1984 | | Дата окончания срока действия: | 01.01.1988 | | Разработан: | Украинское отделение института Энергосетьпроект Киевский отдел комплексного проектирования
| | Утверждён: | 07.02.1984 Минэнерго СССР (USSR Minenergo 8)
| | Заменяет собой: | |
                
|