Скачать Типовой проект 902-1-167.1.90 Альбом 3. Часть 1. Надземная часть и общие чертежи подземной части. Надземная часть и перекрытие на отм. 0.000. Архитектурные решения. Конструкции железобетонные. Конструкции металлические (из ТП 902-1-164.90)Дата актуализации: 01.01.2021
|
| Обозначение: | Типовой проект 902-1-167.1.90 |
| Обозначение англ: | 902-1-167.1.90 |
| Статус: | не определен законодательством |
| Название рус.: | Альбом 3. Часть 1. Надземная часть и общие чертежи подземной части. Надземная часть и перекрытие на отм. 0.000. Архитектурные решения. Конструкции железобетонные. Конструкции металлические (из ТП 902-1-164.90) |
| Дата добавления в базу: | 01.09.2013 |
| Дата актуализации: | 01.01.2021 |
| Дата введения: | 15.05.1990 |
| Дата окончания срока действия: | 30.06.2003 |
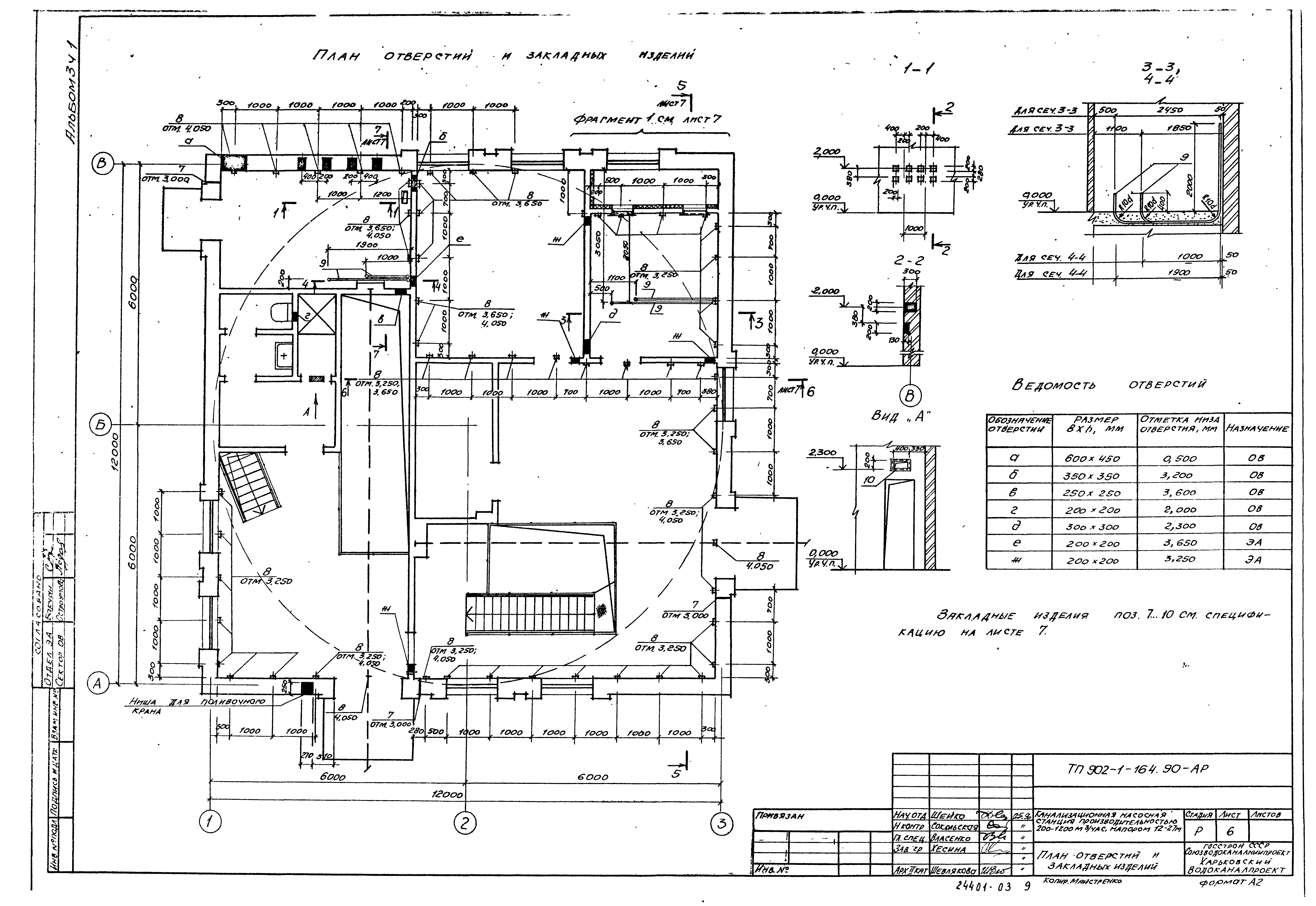
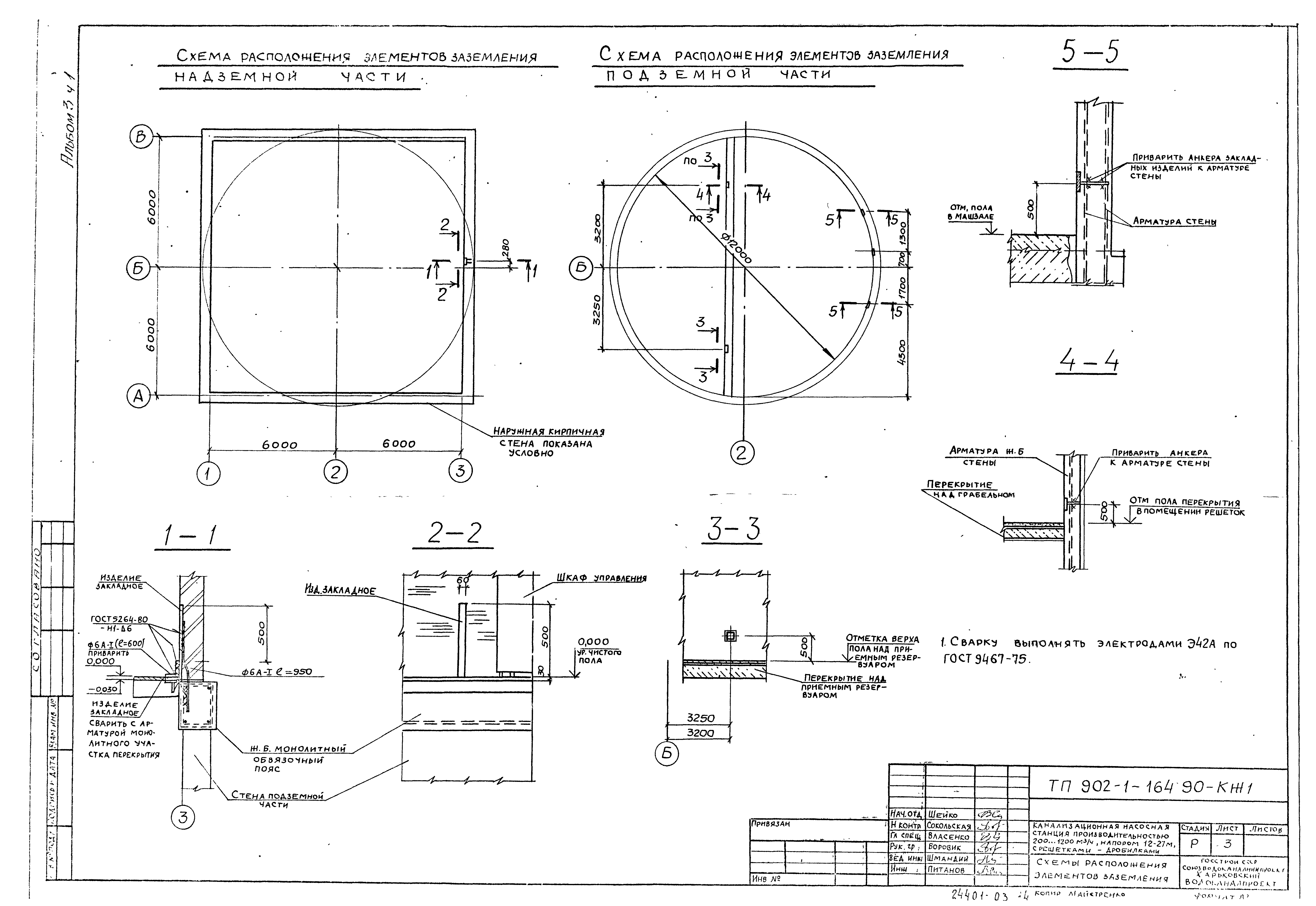
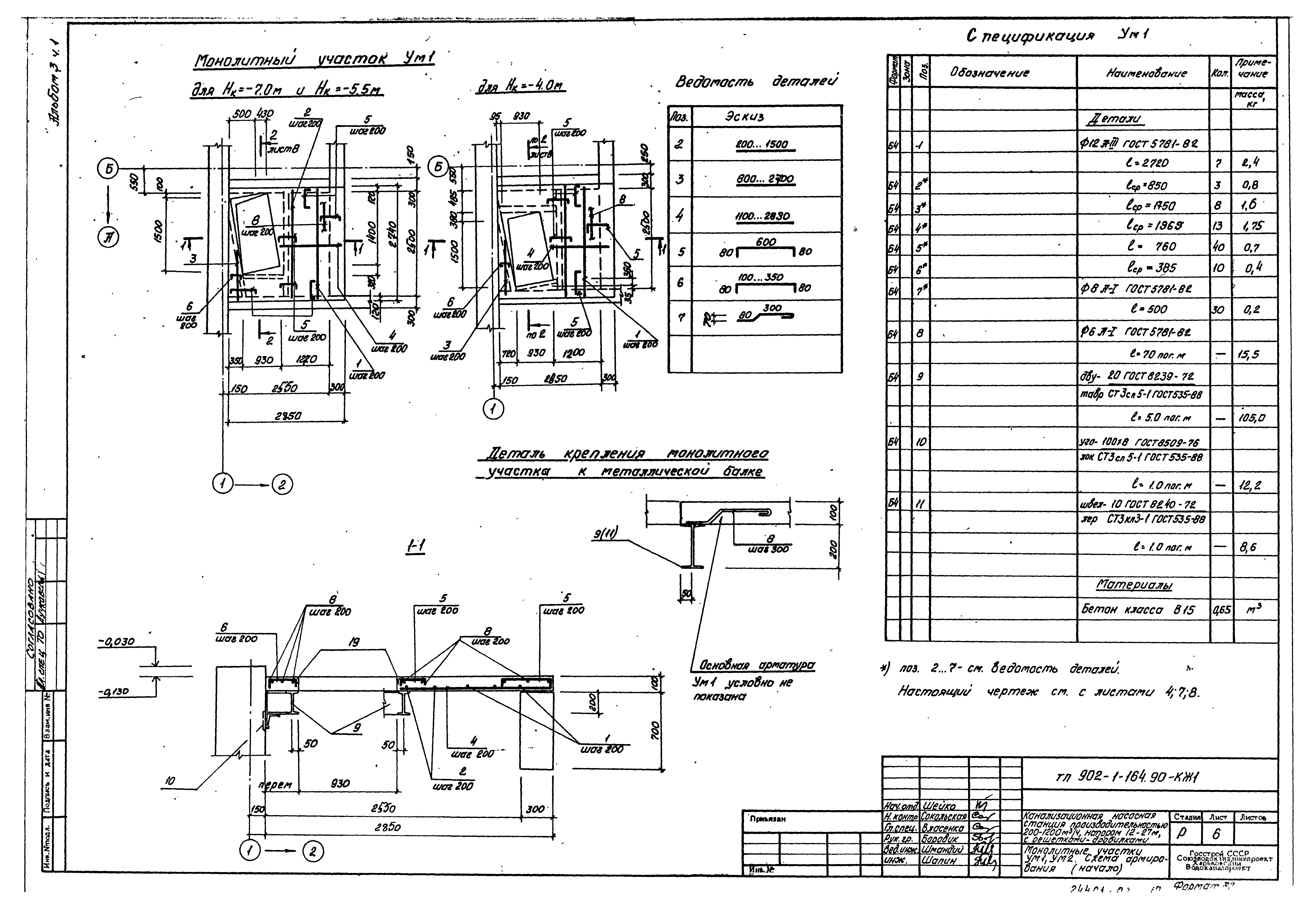
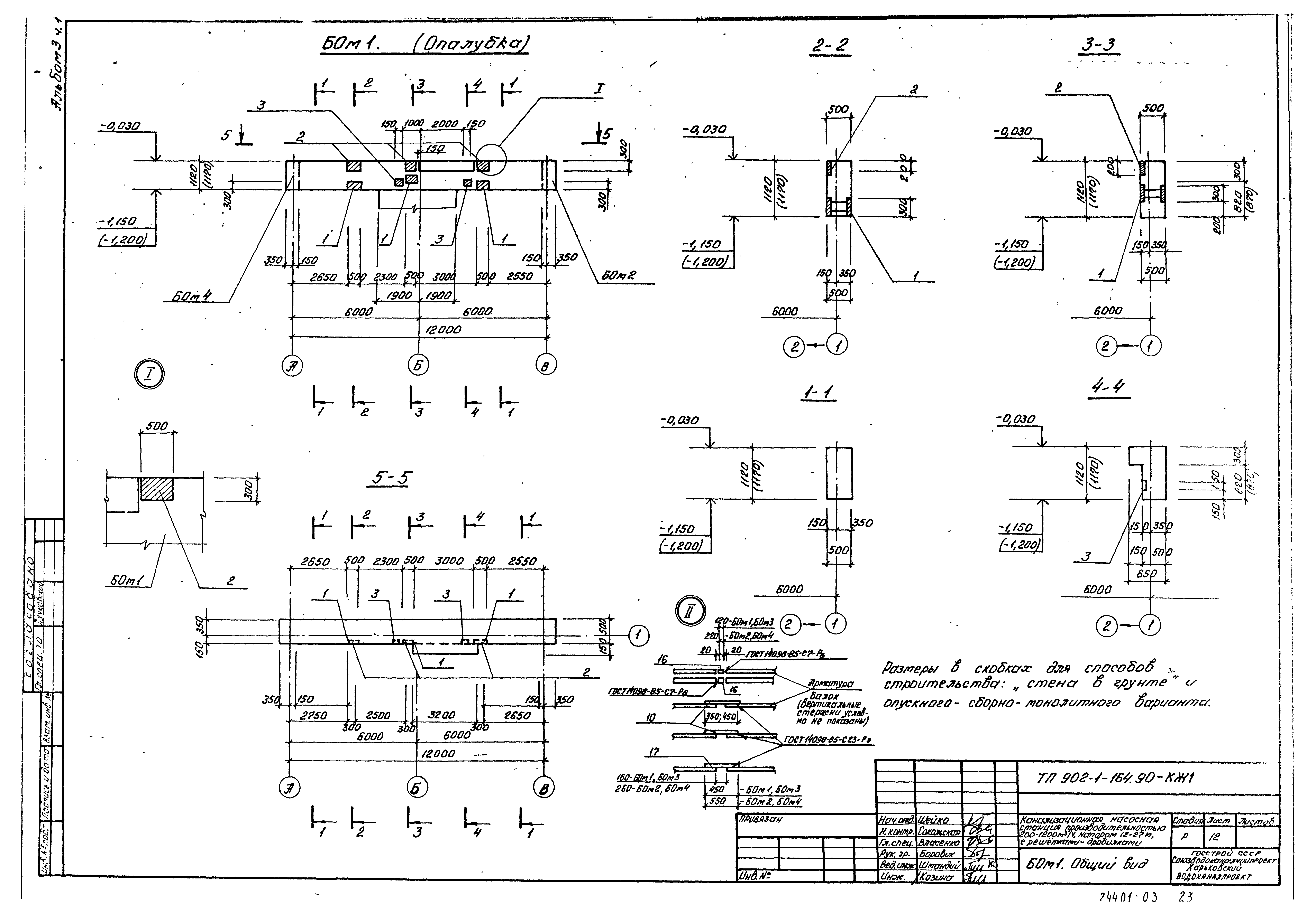
| Оглавление: | Содержание Основной комплект чертежей марки АР Общие данные План на отм. 0.000 Разрезы 1-1, 2-2 Фасады План кровли. Планы полов. Экспликация полов План отверстий и закладных изделий Фрагмент 1. Сечения. Узлы Детали I - IX Основной комплект чертежей марки КЖ1 Общие данные Схема расположения плит покрытия Схема расположения элементов заземления Схема расположения плит перекрытия и монолитных участков на отм. 0.000 Монолитные участки Ум1, Ум2. Схема армирования РКм1. Схема расположения балок БОм1. Общий вид БОм1. Схема армирования БОм3. Общий вид БОм3. Схема армирования БОм2, БОм4. Общий вид и схема армирования БОм1 - БОм4. Спецификация БОм1 - БОм4. Ведомость расхода стали Схема расположения ОКм1 Схема расположения фундаментов под оборудование и опор под трубопроводы Схема расположения наружных фундаментов под опоры Схема расположения труб для укладки электрокабеля Детали гидроизоляции. Деталь устройства дренажного приямка Основной комплект чертежей марки КМ1 Общие данные Схема расположения путей подвесного транспорта в надземной части Схема расположения путей подвесного транспорта в подземной части Схема расположения ограждений проемов на отм. 0.000 Схема расположения наружной лестницы и ограждения кровли |
| Разработан: | Харьковский Водоканалпроект |
| Утверждён: | 15.05.1990 СоюзводоканалНИИпроект (SoyuzvodokanalNIIproject 9) |

























































