Скачать Типовой проект 902-1-167.1.90 Альбом 3. Часть 3. Надземная часть и общие чертежи подземной части. Перекрытие в помещении решеток-дробилок РД-600. Конструкции железобетонные (из ТП 902-1-164.90)Дата актуализации: 01.01.2021
|
| Обозначение: | Типовой проект 902-1-167.1.90 |
| Обозначение англ: | 902-1-167.1.90 |
| Статус: | не определен законодательством |
| Название рус.: | Альбом 3. Часть 3. Надземная часть и общие чертежи подземной части. Перекрытие в помещении решеток-дробилок РД-600. Конструкции железобетонные (из ТП 902-1-164.90) |
| Дата добавления в базу: | 01.09.2013 |
| Дата актуализации: | 01.01.2021 |
| Дата введения: | 15.05.1990 |
| Дата окончания срока действия: | 30.06.2003 |
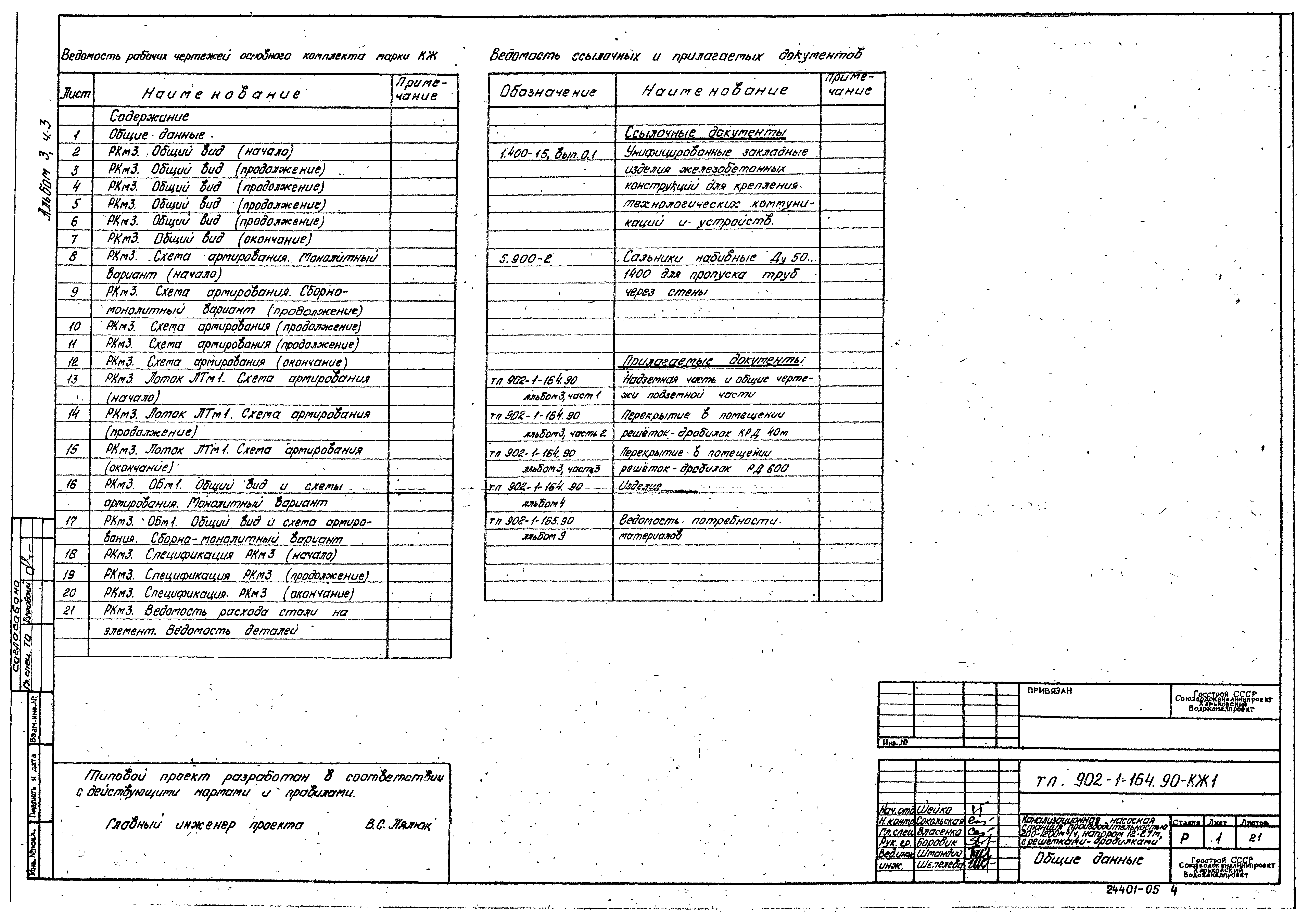
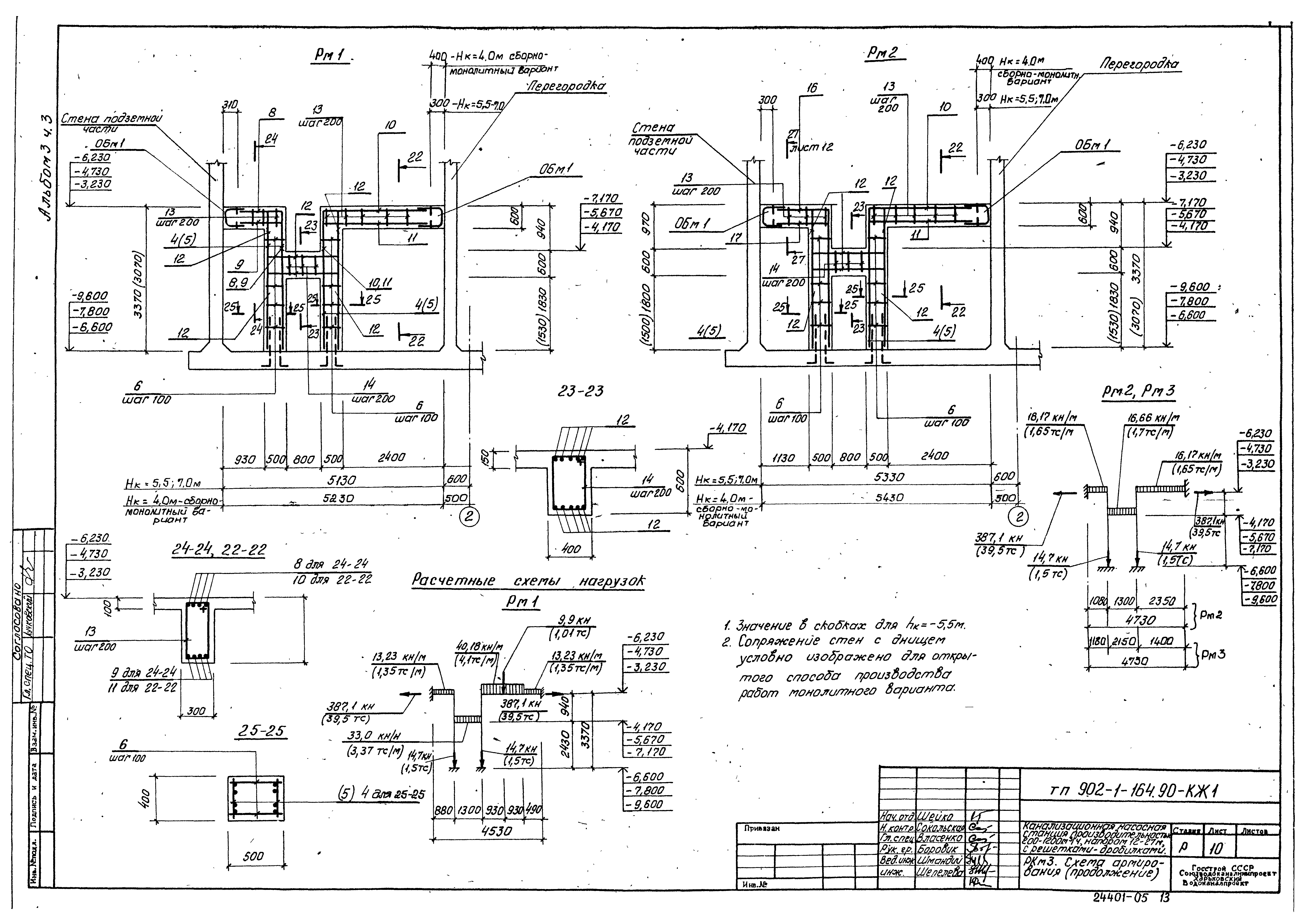
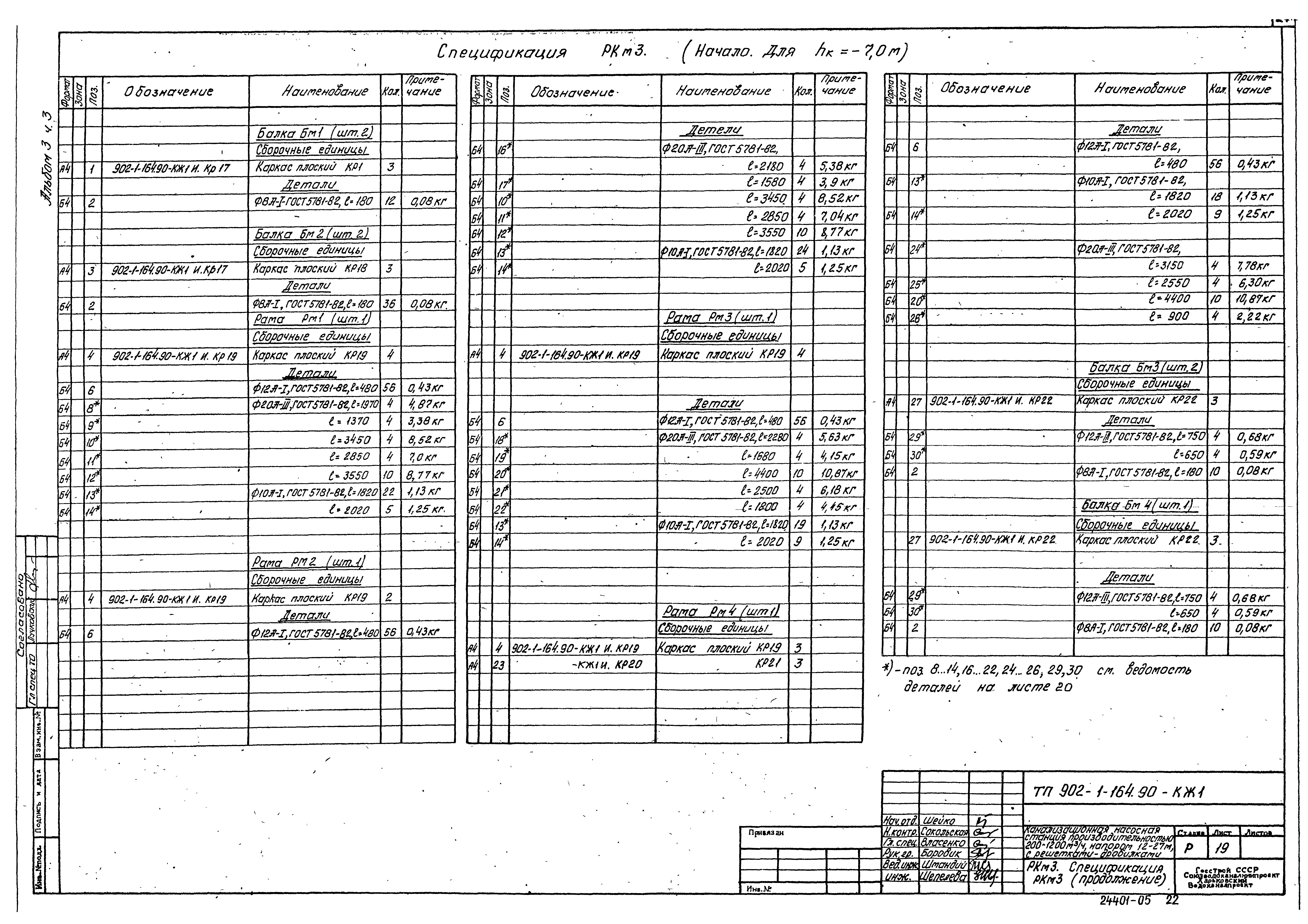
| Оглавление: | Содержание Общие данные РКм3. Общий вид РКм3. Схема армирования. Монолитный вариант РКм3. Схема армирования. Сборно-монолитный вариант РКм3. Лоток ЛТм1. Схема армирования РКм3. ОБм1. Общий вид и схема армирования. Монолитный вариант РКм3. ОБм1. Общий вид и схема армирования. Сборно-монолитный вариант РКм3. Спецификация РКм3 РКм3. Ведомость расхода стали на элемент. Ведомость деталей |
| Разработан: | Харьковский Водоканалпроект |
| Утверждён: | 15.05.1990 СоюзводоканалНИИпроект (SoyuzvodokanalNIIproject 9) |
























