Скачать Типовые проектные решения 820-01-19с Альбом I. Пояснительная записка, строительно-монтажные чертежиДата актуализации: 01.01.2021
|
| Обозначение: | Типовые проектные решения 820-01-19с |
| Обозначение англ: | 820-01-19с |
| Статус: | справочные материалы, мп, тпр |
| Название рус.: | Альбом I. Пояснительная записка, строительно-монтажные чертежи |
| Дата добавления в базу: | 01.09.2013 |
| Дата актуализации: | 01.01.2021 |
| Дата введения: | 07.06.1982 |
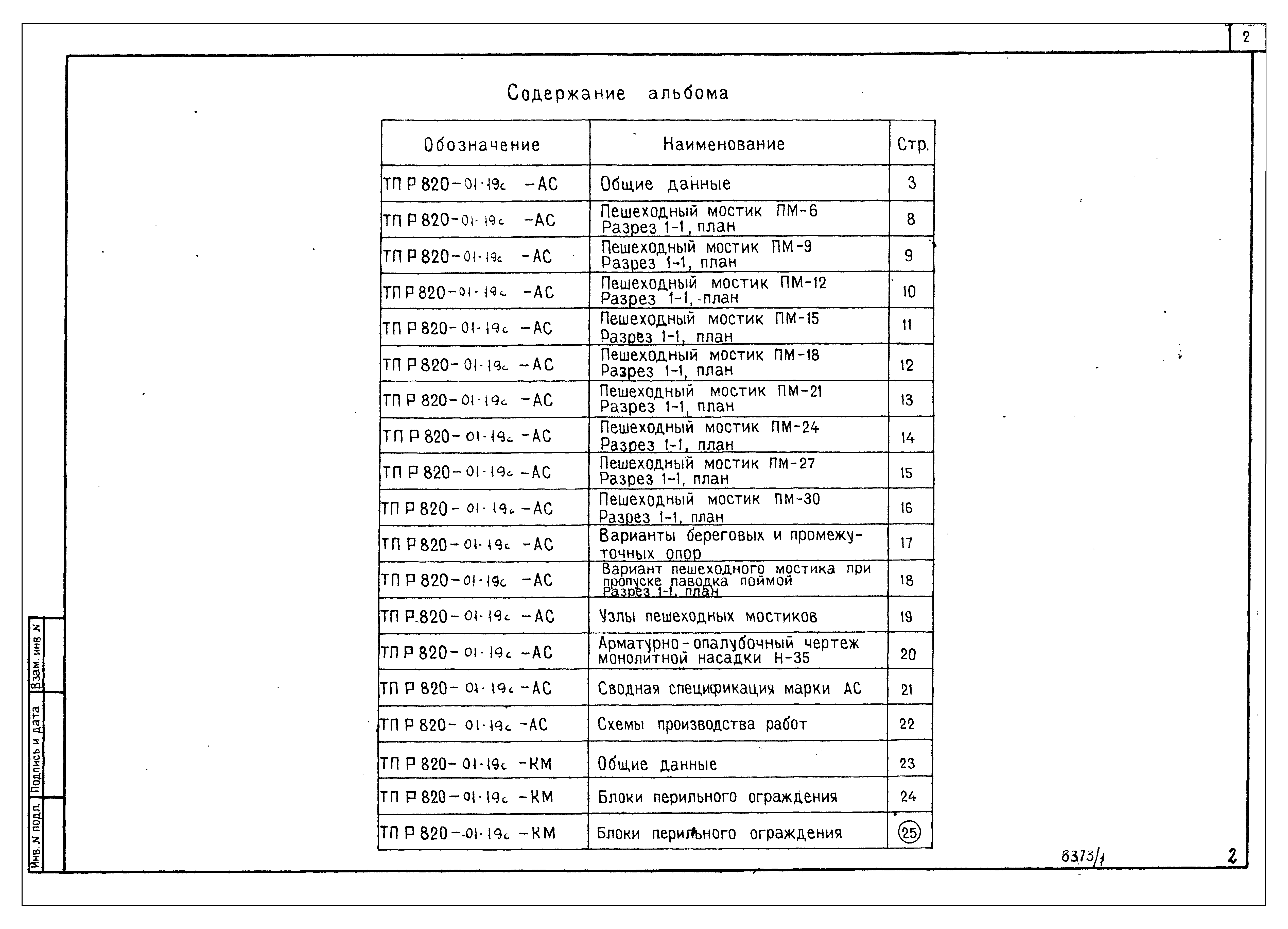
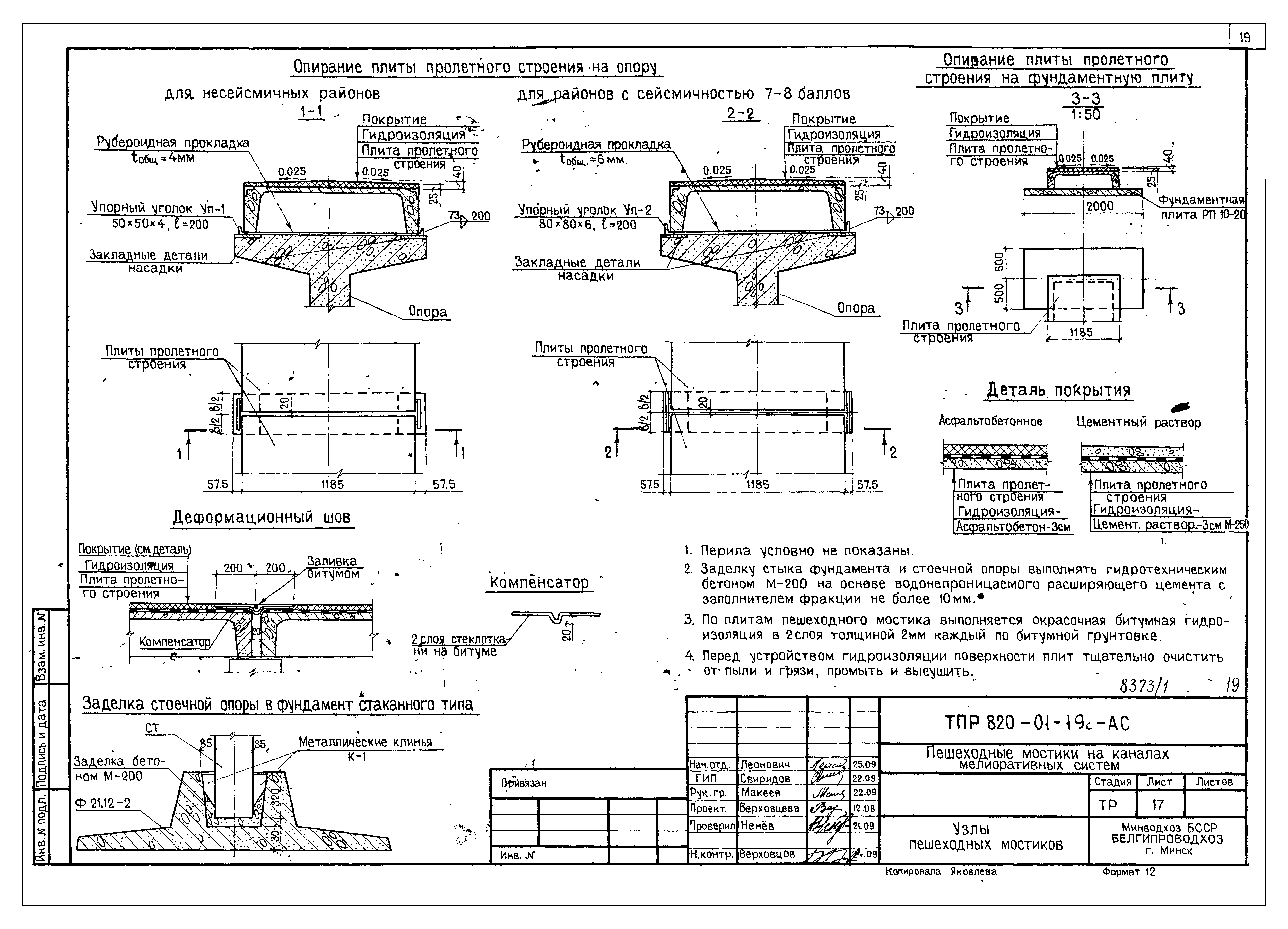
| Оглавление: | Чертежи основного комплекта марки АС Общие данные Номенклатура и основные показатели жесткости конструкции Пешеходный мостик ПМ-6. Разрез 1-1. План Пешеходный мостик ПМ-9. Разрез 1-1. План Пешеходный мостик ПМ-12. Разрез 1-1. План Пешеходный мостик ПМ-15. Разрез 1-1. План Пешеходный мостик ПМ-18. Разрез 1-1. План Пешеходный мостик ПМ-21. Разрез 1-1. План Пешеходный мостик ПМ-24. Разрез 1-1. План Пешеходный мостик ПМ-27. Разрез 1-1. План Пешеходный мостик ПМ-30. Разрез 1-1. План Варианты береговых и промежуточных опор Вариант пешеходного мостика при пропуске паводка поймой. Разрез 1-1. План Узлы пешеходных мостиков Арматурно-опалубочный чертеж монолитной насадки Н-35 Сводная спецификация марки АС Схемы производства работ Чертежи основного комплекта марки КМ Общие данные Блоки перильного ограждения |
| Разработан: | Белгипроводхоз Минводхоза СССР |
| Утверждён: | 19.02.1981 Минводхоз СССР (USSR Minvodkhoz 455) |
| Издан: | ЦИТП Госстроя СССР (CITP, Gosstroy (USSR) 1988 г. ) |
| Заменяет собой: |
|

























