Скачать Типовой проект 409-29-83.87 Альбом 1. Пояснительная записка. Технология производства. Общие виды нестандартизированного оборудования. Силовое электрооборудование. Внутреннее электрическое освещение. Связь и сигнализация. Отопление и вентиляция. Внутренние водопровод и канализацияДата актуализации: 01.01.2021
|
| Обозначение: | Типовой проект 409-29-83.87 |
| Обозначение англ: | 409-29-83.87 |
| Статус: | не определен законодательством |
| Название рус.: | Альбом 1. Пояснительная записка. Технология производства. Общие виды нестандартизированного оборудования. Силовое электрооборудование. Внутреннее электрическое освещение. Связь и сигнализация. Отопление и вентиляция. Внутренние водопровод и канализация |
| Дата добавления в базу: | 01.09.2013 |
| Дата актуализации: | 01.01.2021 |
| Дата введения: | 05.05.1988 |
| Дата окончания срока действия: | 30.06.2003 |
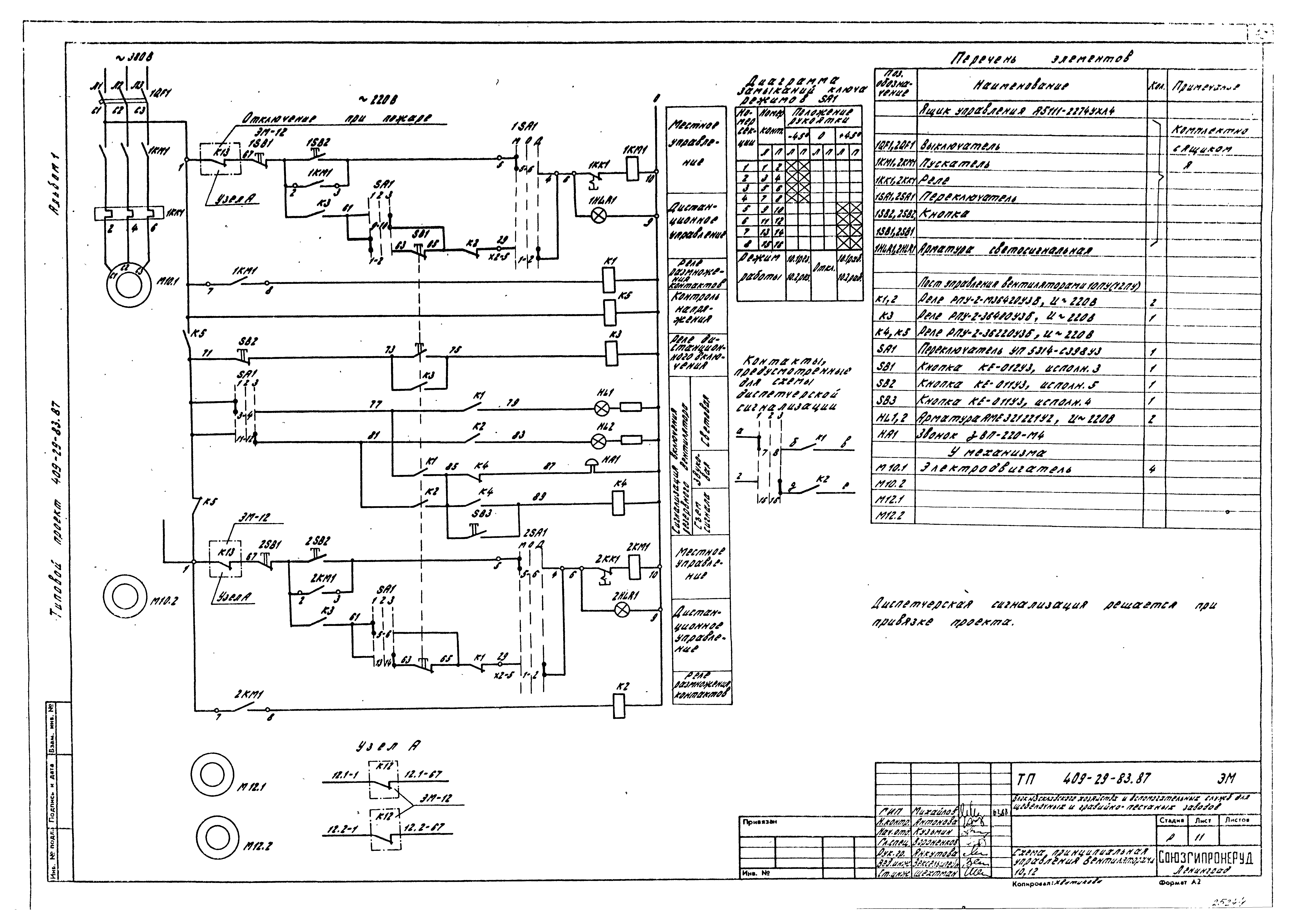
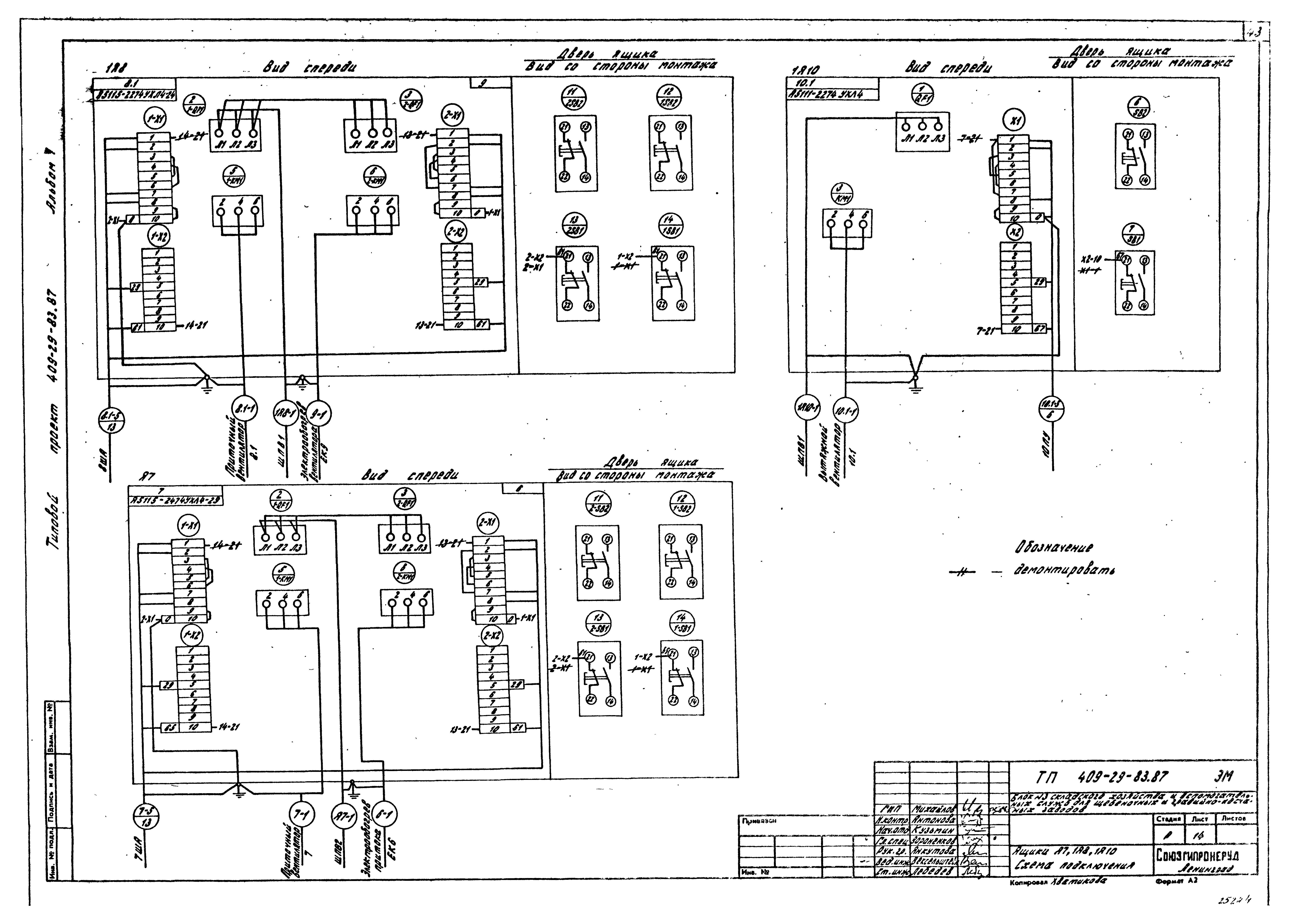
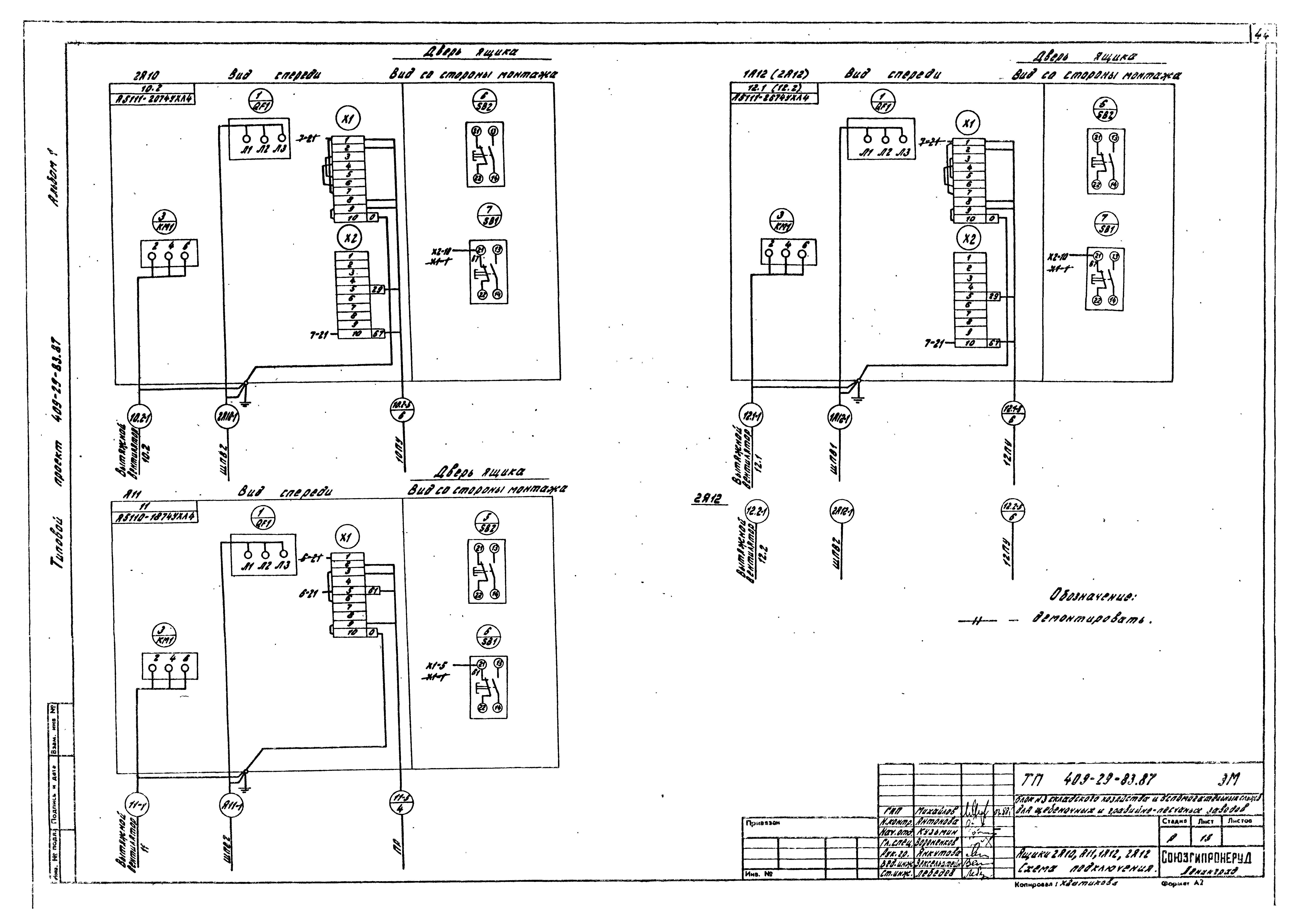
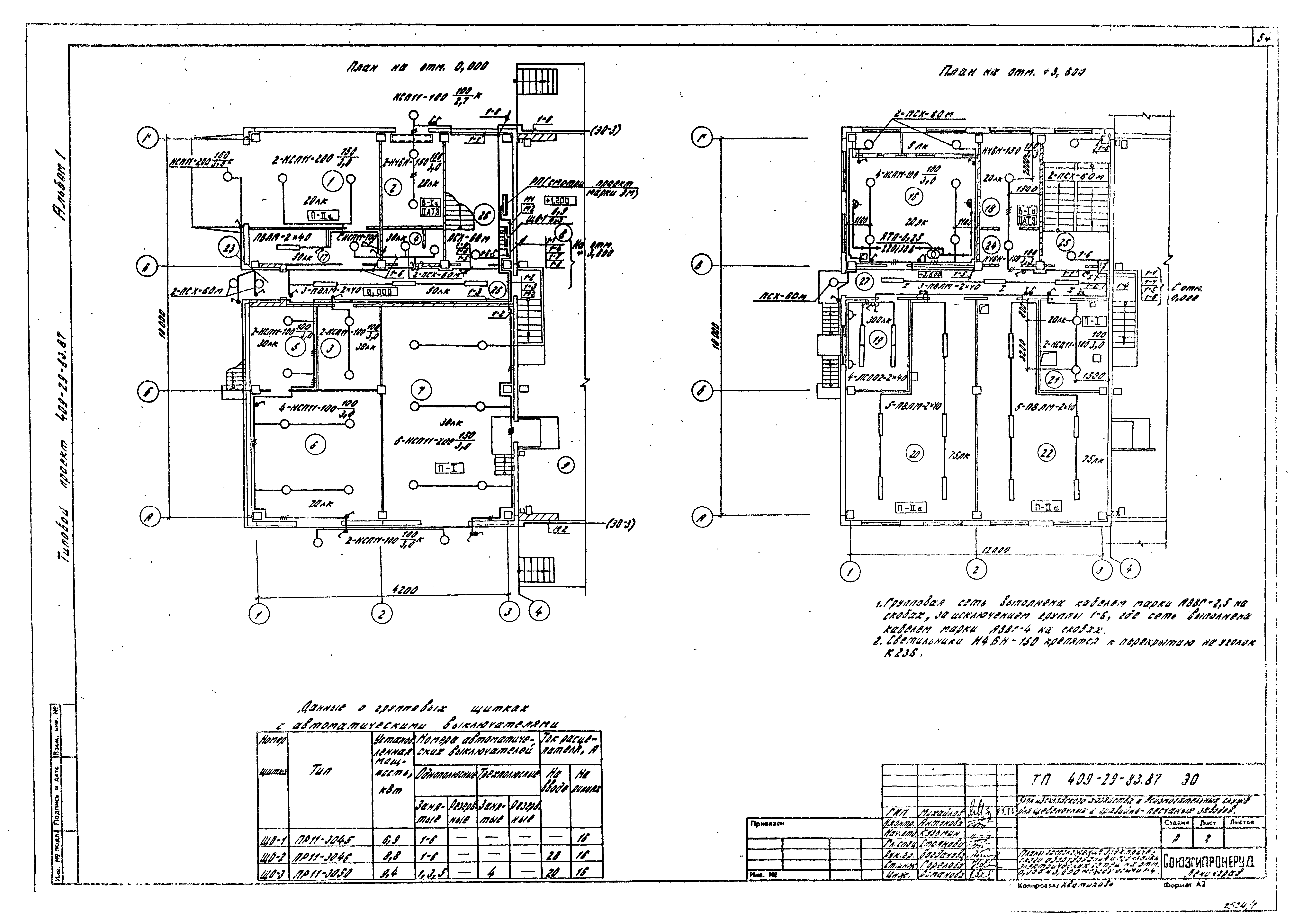
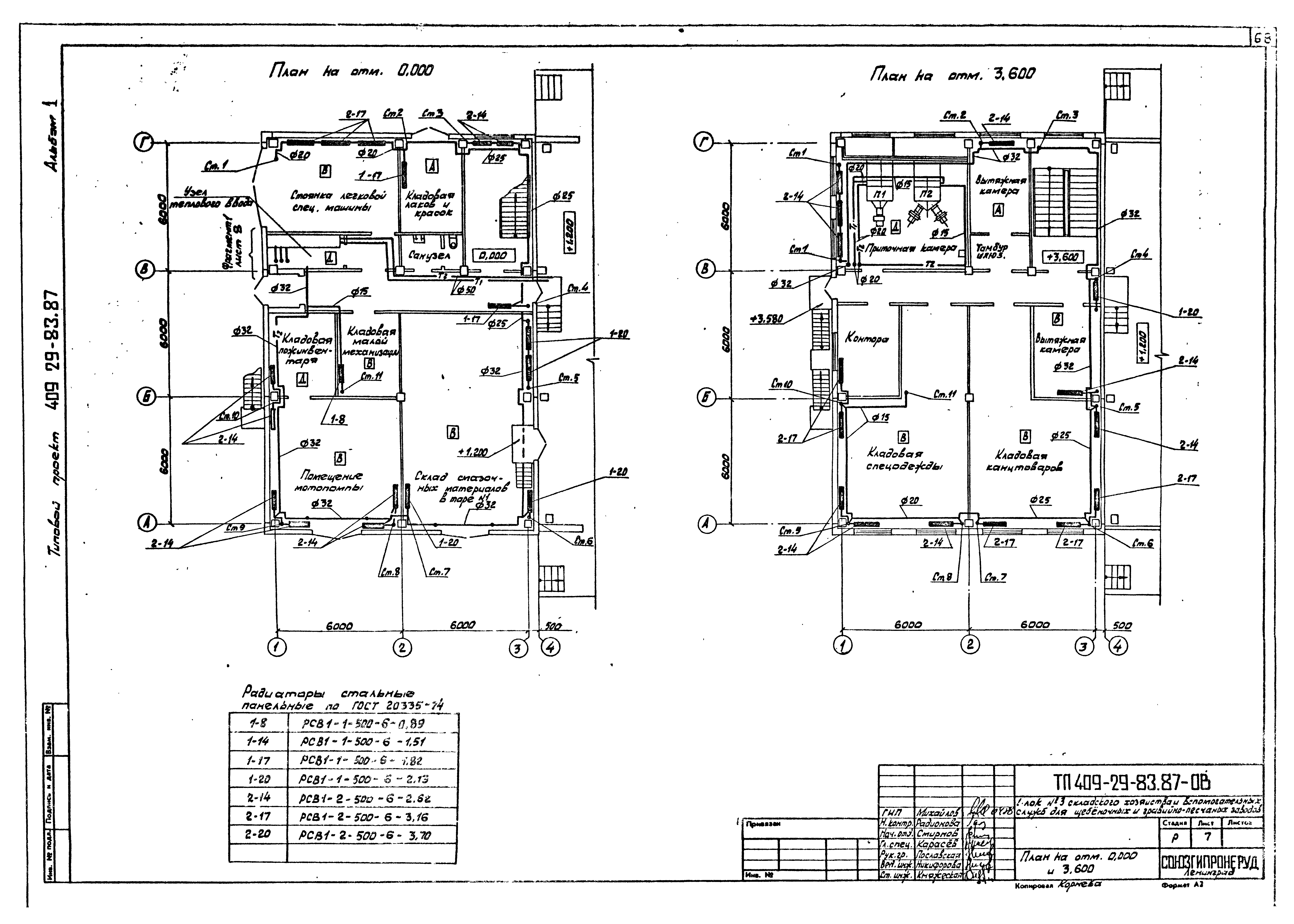
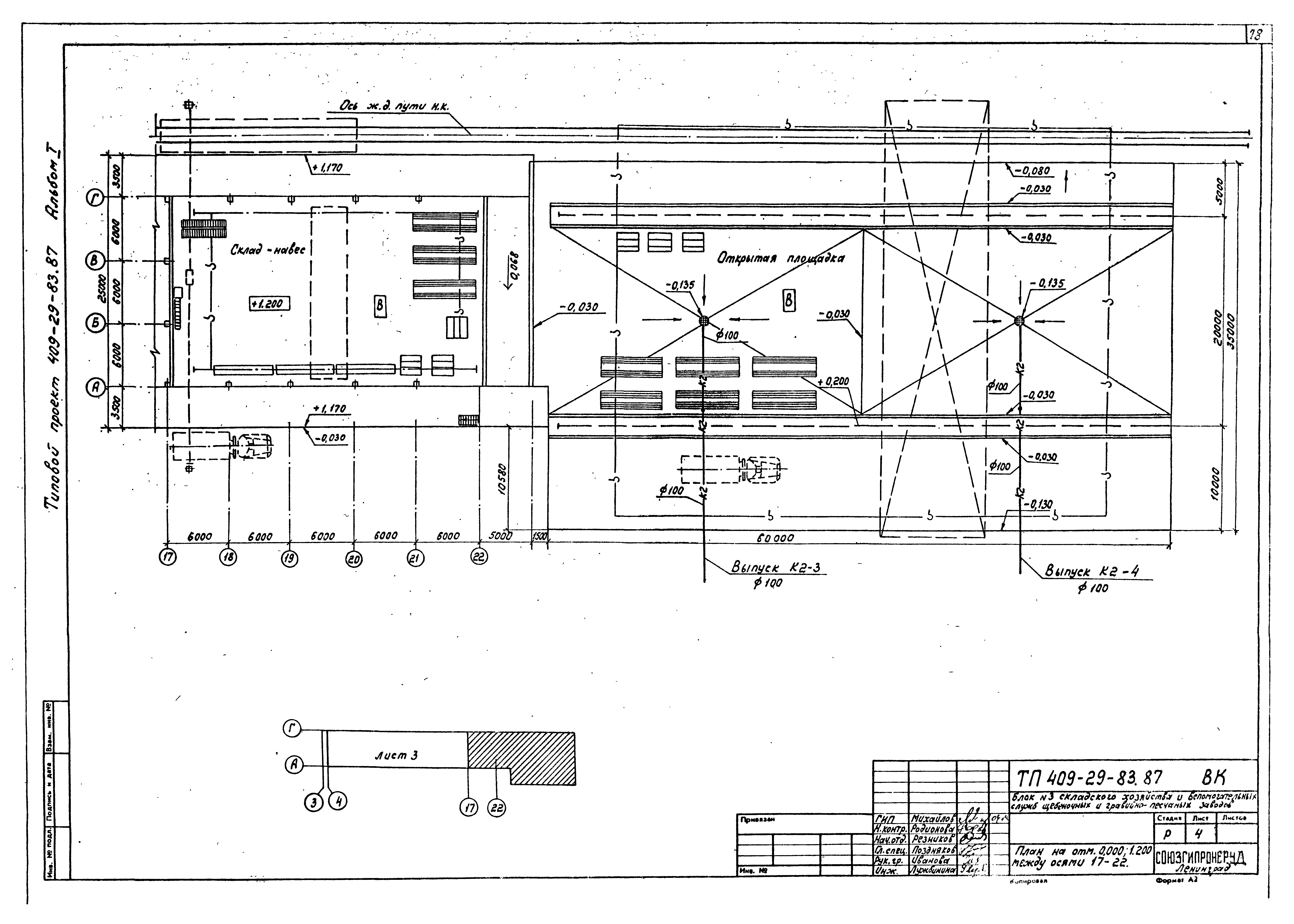
| Оглавление: | Пояснительная записка Технология производства Общие данные Монтажный чертеж. Планы на отм. 0.000; 1.200; 3.600 между осями 4 - 17 Монтажный чертеж. Планы на отм. 0.000; 1.200 между осями 17 - 22 Монтажный чертеж. Разрезы Монтажный чертеж. Спецификация Установка стеллажа сборно-разборного 2000х610х2400 Установка стеллажа сборно-разборного 3900х610х3000 Установка стеллажа сборно-разборного 5700х810х3000 Установка стеллажа сборно-разборного 5800х610х3000 Тележка для перевозки шин сечением 1605. Общий вид Стеллаж двухъярусный для шин. Общий вид Ларь емкостью 0,35 кв. м. Общий вид Ларь емкостью 0,35 кв. м с откидной передней стенкой. Общий вид Лом роликовый. Общий вид Ларь двухсекционный емкостью 1 куб. м. Общий вид Стеллаж для труб. Общий вид Стеллаж для тонколистового металла. Общий вид Конвейер роликовый. Общий вид Силовое электрооборудование Общие данные Распределительный пункт РП. Принципиальная однолинейная схема Распределительные пункты ЩПВ1, ЩПВ2. Принципиальная однолинейная схема Козловой кран. Принципиальная однолинейная схема. План расположения электрооборудования и прокладки силовых сетей и сетей заземления Схема принципиальная управления приточной системой 7 Схема принципиальная управления приточной системой 8 Схема принципиальная управления вентиляторами 10, 12 Схема принципиальная управления вентилятором 11 Схема принципиальная управления воротами 1, 2, 13, 14 Ящики Я7, 1Я8, 1Я10. Схема подключения Ящики 2Я10, Я11, 1Я12, 2Я12. Схема подключения Ящики Я1, Я2, 2Я8 (Я13, Я14). Схема подключения Кабельный журнал План расположения электрооборудования и прокладки электрических сетей на отм. 0.000 План расположения электрооборудования и прокладки электрических сетей на отм. 3.600 План расположения электрооборудования и прокладки электрических сетей на отм. 0.000; 3.600 План сети заземления. Молниезащита Ведомость электромонтажных конструкций и деталей, подлежащих изготовлению в МЭЗ Ведомость объемов строительных и монтажных работ Ведомость изделий и материалов для изготовления электромонтажных конструкций и деталей в МЭЗ Внутреннее электрическое освещение Общие данные Планы расположения электрического оборудования и прокладки электрических сетей на отм. 0.000 и 3.600 между осями 1 - 4 Планы расположения электрического оборудования и прокладки электрических сетей на отм. 1.200 между осями 4 - 22 Связь и сигнализация. Телефонная и радиотрансляционная сеть Общие данные План расположения слаботочных сетей на отм. 0.000; 3.600 Связь и сигнализация. Пожарная сигнализация Общие данные Схема принципиальная пожарной сигнализации План расположения устройств пожарной сигнализации на отм. 0.000 План расположения устройств пожарной сигнализации на отм. 0.000; 3.600 Отопление и вентиляция Общие данные План на отм. 0.000; 1.200; 3.600 Разрезы 1-1; 2-2; 3-3. Узлы 1, 2 Схемы систем П1, П2, В1 - В3, ВЕ1 - ВЕ8 План на отм. 1.200 между осями 4 - 11 План на отм. 0.000 и 3.600 Схемы систем отопления 1, теплоснабжения установок П1, П2. Фрагмент 1 Схемы системы отопления 2 Установка систем П1, П2 Спецификация систем П1, П2 Фильтр ФЯП Тепловая изоляция труб сечением до 45 Внутренние водопровод и канализация Общие данные Планы на отм. 0.000; 3.600 между осями 1 - 3 План на отм. 1.200 между осями 3 - 17. План кровли План на отм. 0.000; 1.200 между осями 17 - 22 Схема системы В1 Схемы систем К1, К2 |
| Разработан: | Союзгипронеруд |
| Утверждён: | 05.05.1988 Минстройматериалов СССР (USSR Minstroymaterialov 234) |
| Издан: | ЦИТП Госстроя СССР (CITP, Gosstroy (USSR) 1988 г. ) |
















































































