Скачать Типовой проект 407-3-232 Альбом II. Электротехническая часть. Чертежи задания заводу-изготовителюДата актуализации: 01.01.2021
|
| Обозначение: | Типовой проект 407-3-232 |
| Обозначение англ: | 407-3-232 |
| Статус: | не определен законодательством |
| Название рус.: | Альбом II. Электротехническая часть. Чертежи задания заводу-изготовителю |
| Дата добавления в базу: | 01.10.2014 |
| Дата актуализации: | 01.01.2021 |
| Дата введения: | 01.04.1977 |
| Дата окончания срока действия: | 30.06.2003 |
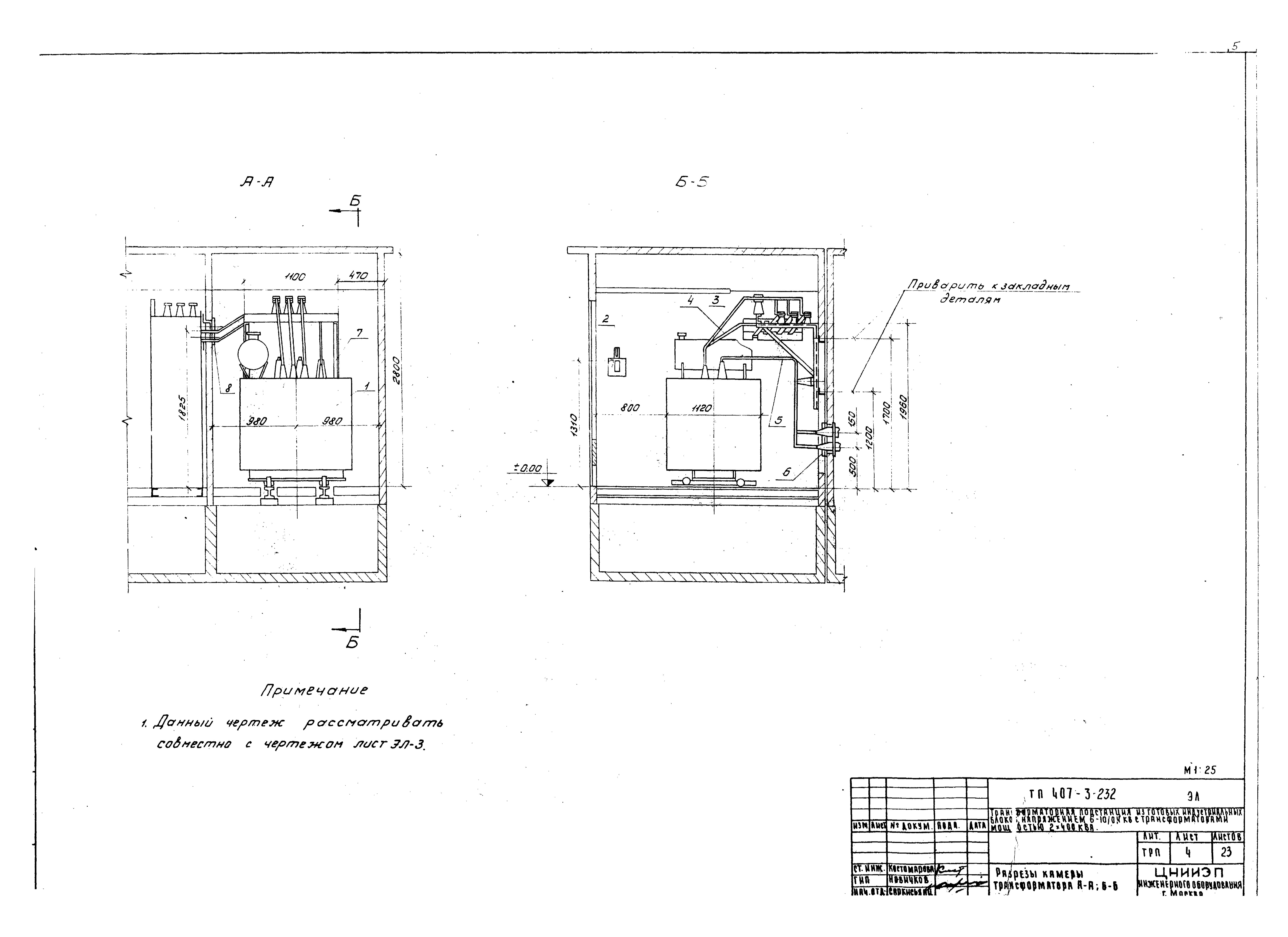
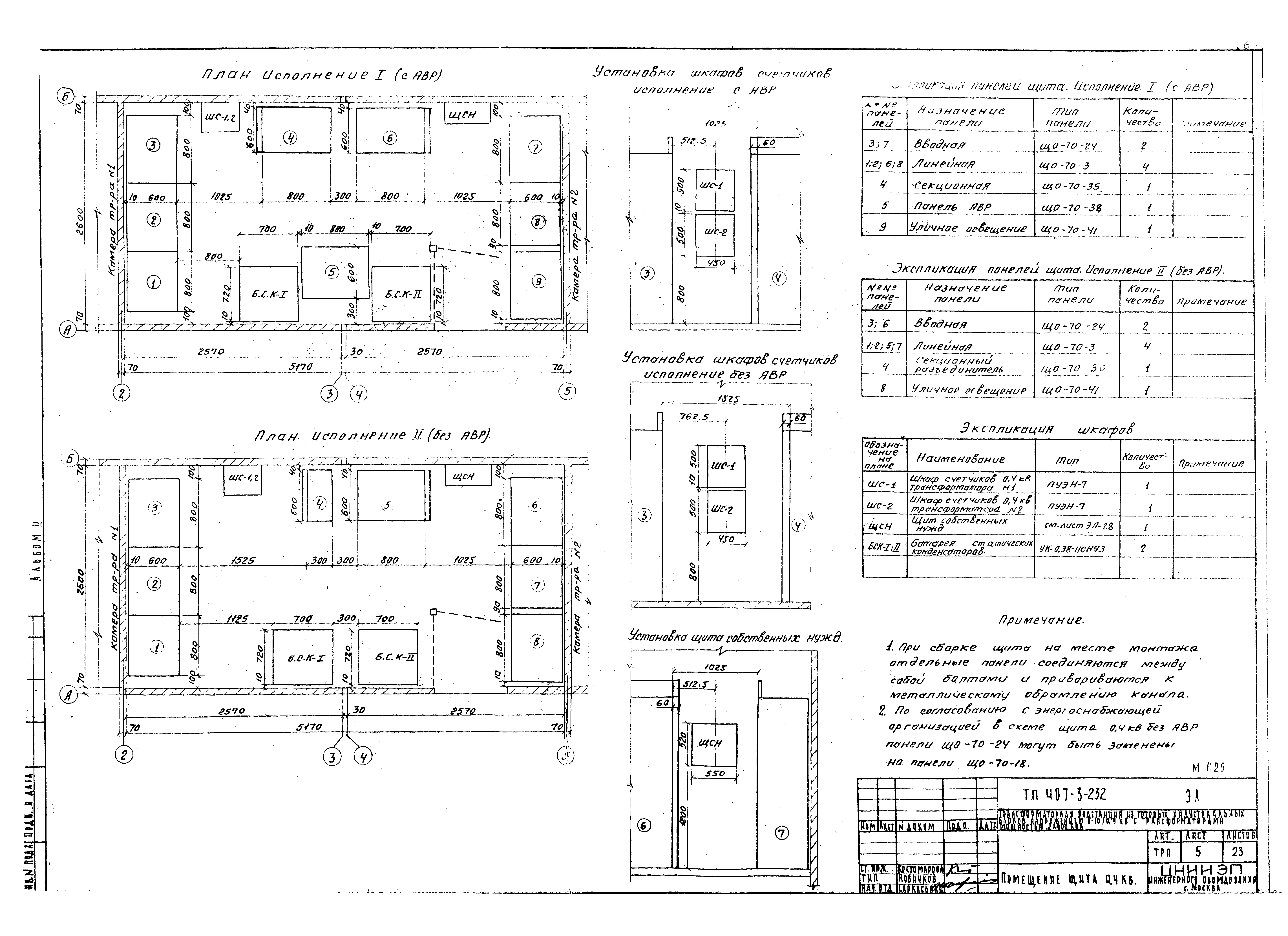
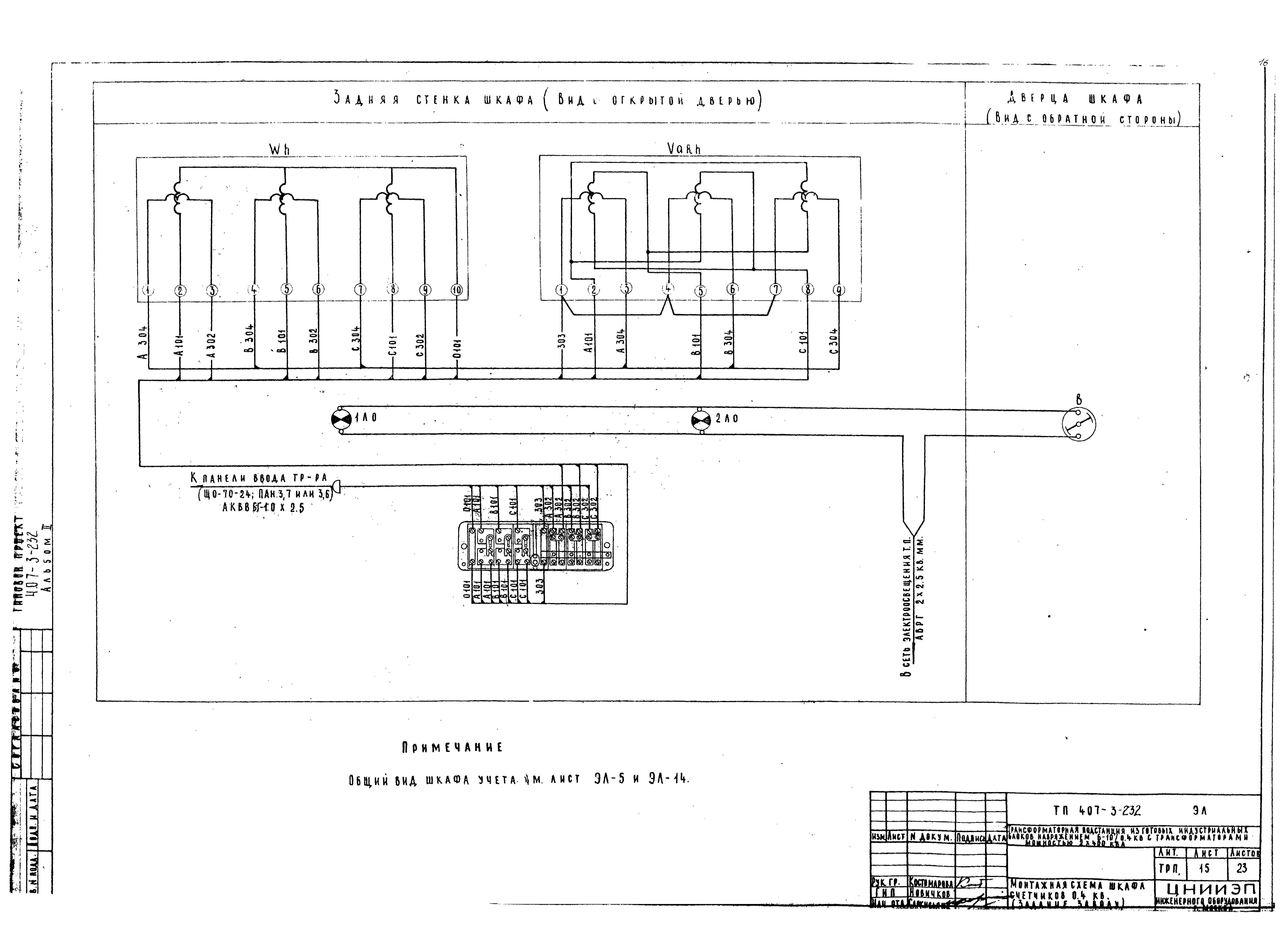
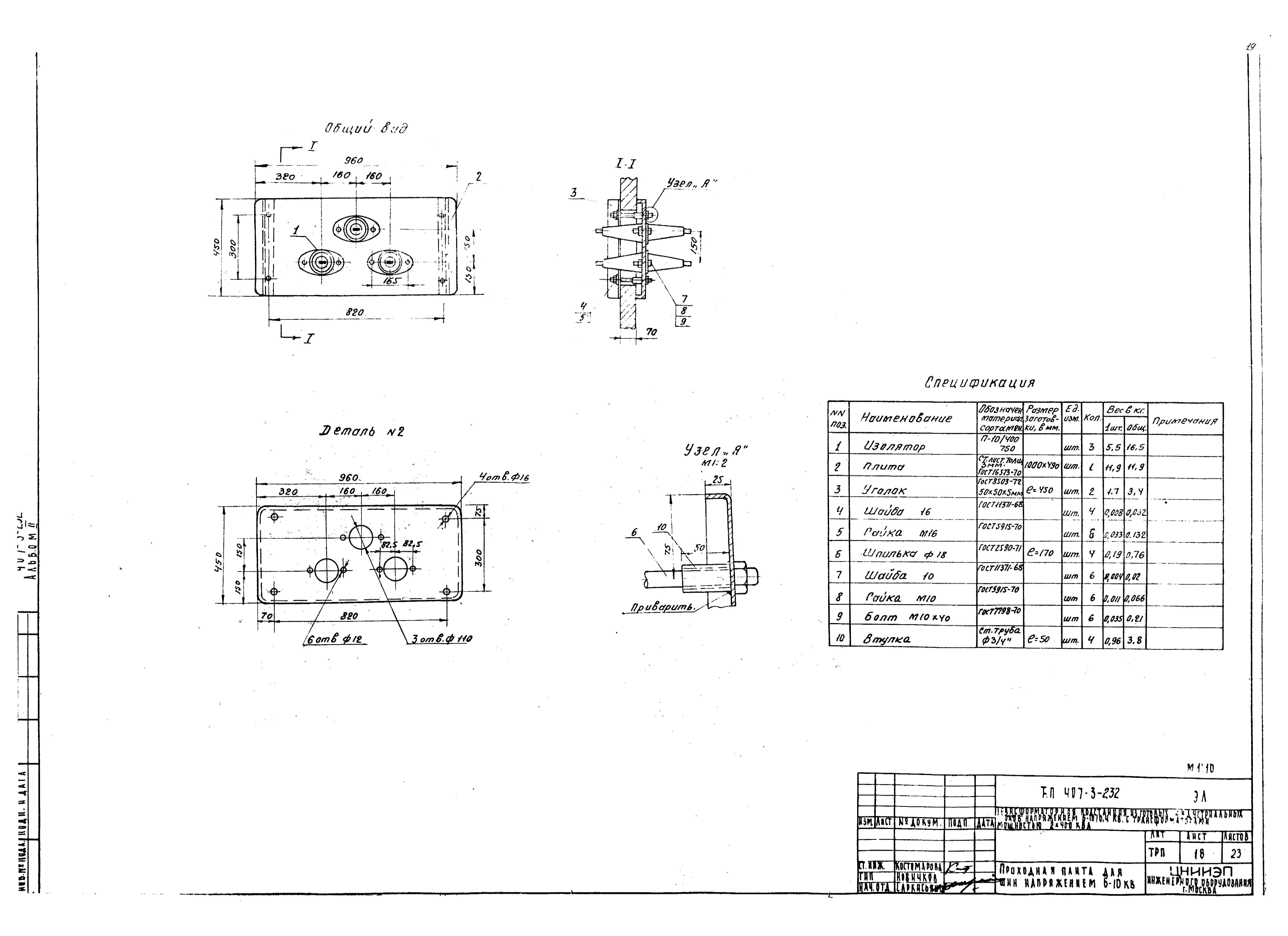
| Оглавление: | Перечень листов План трансформаторной подстанции. Разрезы А-А, Б-Б План камеры трансформатора Разрезы камеры трансформатора А-А, Б-Б Помещение щита 0,4 кВ Электроосвещение. План. Раскладка кабелей Кабельное расписание Заземление. План Элементные схемы камер трансформаторов и отходящих линий 6 - 10 кВ с защитой Линия 6 - 10 кВ с учетом электроэнергии. Элементная схема. Ряд зажимов камеры КСО Трансформатор наложения шин 6 - 10 кВ. Элементная схема. Ряд зажимов камеры КСО Схема электрическая принципиальная двух вводов с АВР и выключателями АВМ Рейки с наборными зажимами. Перечень аппаратуры Шкаф счетчиков. Общий вид Монтажная схема. Шкаф счетчиков 0,4 кВ Шкаф счетчиков линии 6 - 10 кВ. Монтажная схема Щит собственных нужд. Схема электрических соединений. Общий вид. Детали Проходная плита для шин напряжением 6 - 10 кВ Проходная плита для шин напряжением 0,4 кВ Конструкция с изоляторами. Детали Установка конструкций с изоляторами в помещении щита 0,4 кВ. Элементы заземления Изолирующая подставка Барьер в камере трансформатора. Детали |
| Разработан: | ЦНИИЭП инженерного оборудования Госгражданстроя |
| Утверждён: | 13.10.1976 Госгражданстрой (Gosgrazhdanstroy 227) |
























