Скачать Типовой проект 407-3-232 Альбом III. Архитектурно-строительная часть. Чертежи задания заводу-изготовителюДата актуализации: 01.01.2021
|
| Обозначение: | Типовой проект 407-3-232 |
| Обозначение англ: | 407-3-232 |
| Статус: | не определен законодательством |
| Название рус.: | Альбом III. Архитектурно-строительная часть. Чертежи задания заводу-изготовителю |
| Дата добавления в базу: | 01.10.2014 |
| Дата актуализации: | 01.01.2021 |
| Дата введения: | 01.04.1977 |
| Дата окончания срока действия: | 30.06.2003 |
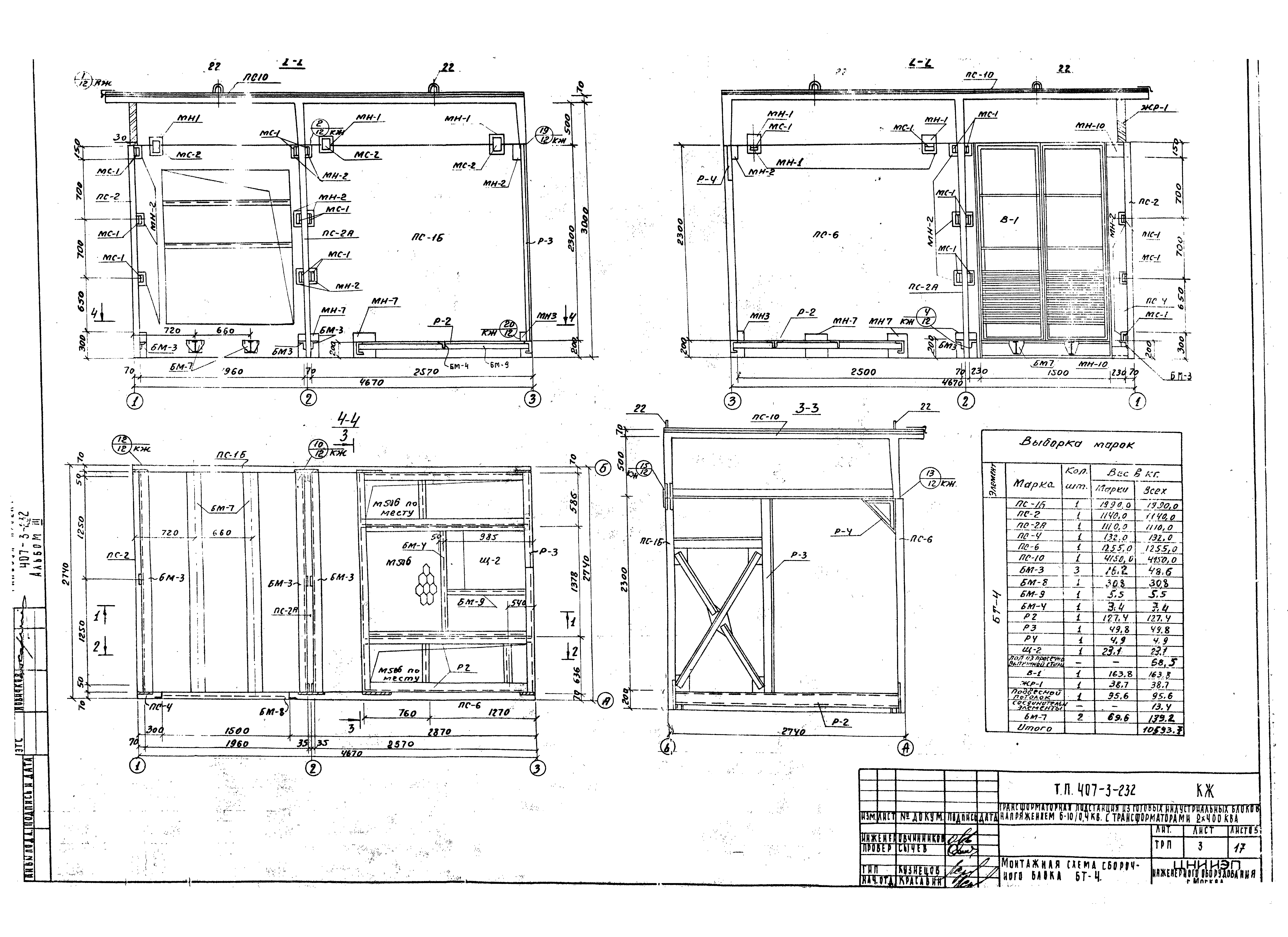
| Оглавление: | Содержание альбома Пояснительная записка Общие данные Монтажная схема сборочных блоков БТ-1, БТ-2 Монтажная схема сборочного блока БТ-3 Монтажная схема сборочного блока БТ-4 Блоки БТ-5, БТ-6. Опалубочный чертеж Блоки БТ-7, БТ-8. Опалубочный чертеж Панели ПС-1, ПС-1а, ПС-1б. Опалубочный и арматурный чертежи Панели ПС-2, ПС-2а, ПС-3, ПС-4. Опалубочный и арматурный чертежи Панели ПС-5, ПС-5а, ПС-6. Опалубочный и арматурный чертежи Панели ПС-7, ПС-8. Опалубочный чертеж Панели ПС-9, ПС-10. Опалубочный чертеж Подвесной потолок Узлы 1; 4; 10 - 15; 17 - 22 Армирование блоков БТ-5, БТ-6 Армирование блоков БТ-7, БТ-8 Армирование панелей ПС-7, ПС-8 Армирование панелей ПС-9, ПС-10 Арматурные сетки С-1 - С-14. Спецификация Рамы металлические Р-1, Р-2 Рамы металлические Р-3, Р-4 Стальные сетчатые перегородки. Монтажная схема. Узлы. Детали Стальные сетчатые перегородки. Рама Р-5. Щит С-1 Стальные сетчатые перегородки. Щит С-2. Стойки К-1, К-1а. Ручка-защелка Ворота В-1 Двери Д-1 и Д-2 Детали ворот. Жалюзийная решетка ЖР-1 Деталь крепления замка "Мосэнерго" Закладные детали МН-1 - МН-16. Спецификации Металлические балки БМ-14 - БМ-9; МС-1 - МС-3; щиты Щ-1, Щ-2 |
| Разработан: | ЦНИИЭП инженерного оборудования Госгражданстроя |
| Утверждён: | 13.10.1976 Госгражданстрой (Gosgrazhdanstroy 227) |
































