Скачать Типовой проект 804-2-55.88 Альбом 2. Технология производства. Архитектурно-строительные решения. Отопление и вентиляция. Внутренние водопровод и канализация. Силовое электрооборудование и электрическое освещение. Слаботочные устройства. Спецификации оборудованияДата актуализации: 01.01.2021
|
| Обозначение: | Типовой проект 804-2-55.88 |
| Обозначение англ: | 804-2-55.88 |
| Статус: | не определен законодательством |
| Название рус.: | Альбом 2. Технология производства. Архитектурно-строительные решения. Отопление и вентиляция. Внутренние водопровод и канализация. Силовое электрооборудование и электрическое освещение. Слаботочные устройства. Спецификации оборудования |
| Дата добавления в базу: | 01.09.2013 |
| Дата актуализации: | 01.01.2021 |
| Дата введения: | 01.12.1988 |
| Дата окончания срока действия: | 30.06.2003 |
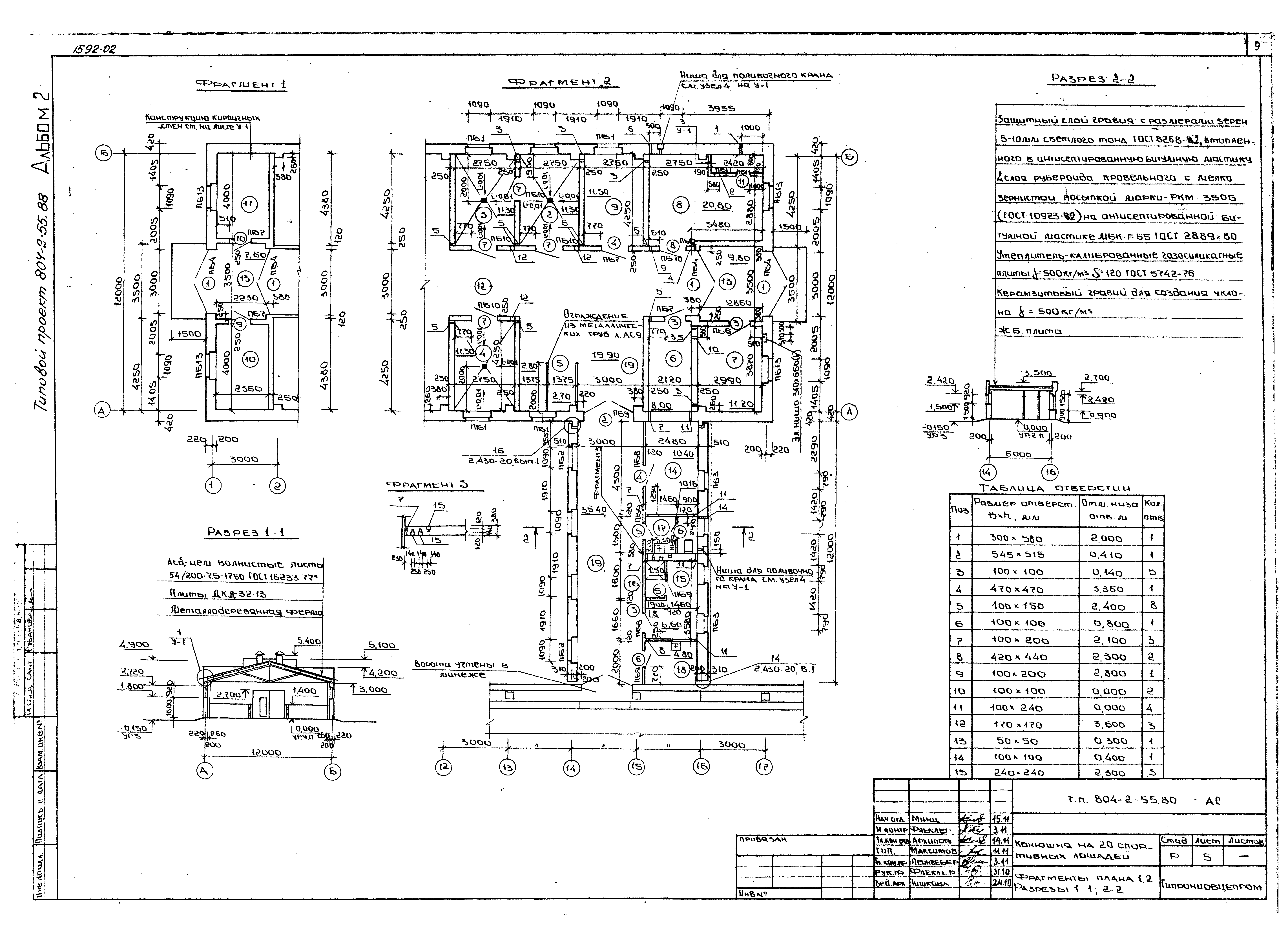
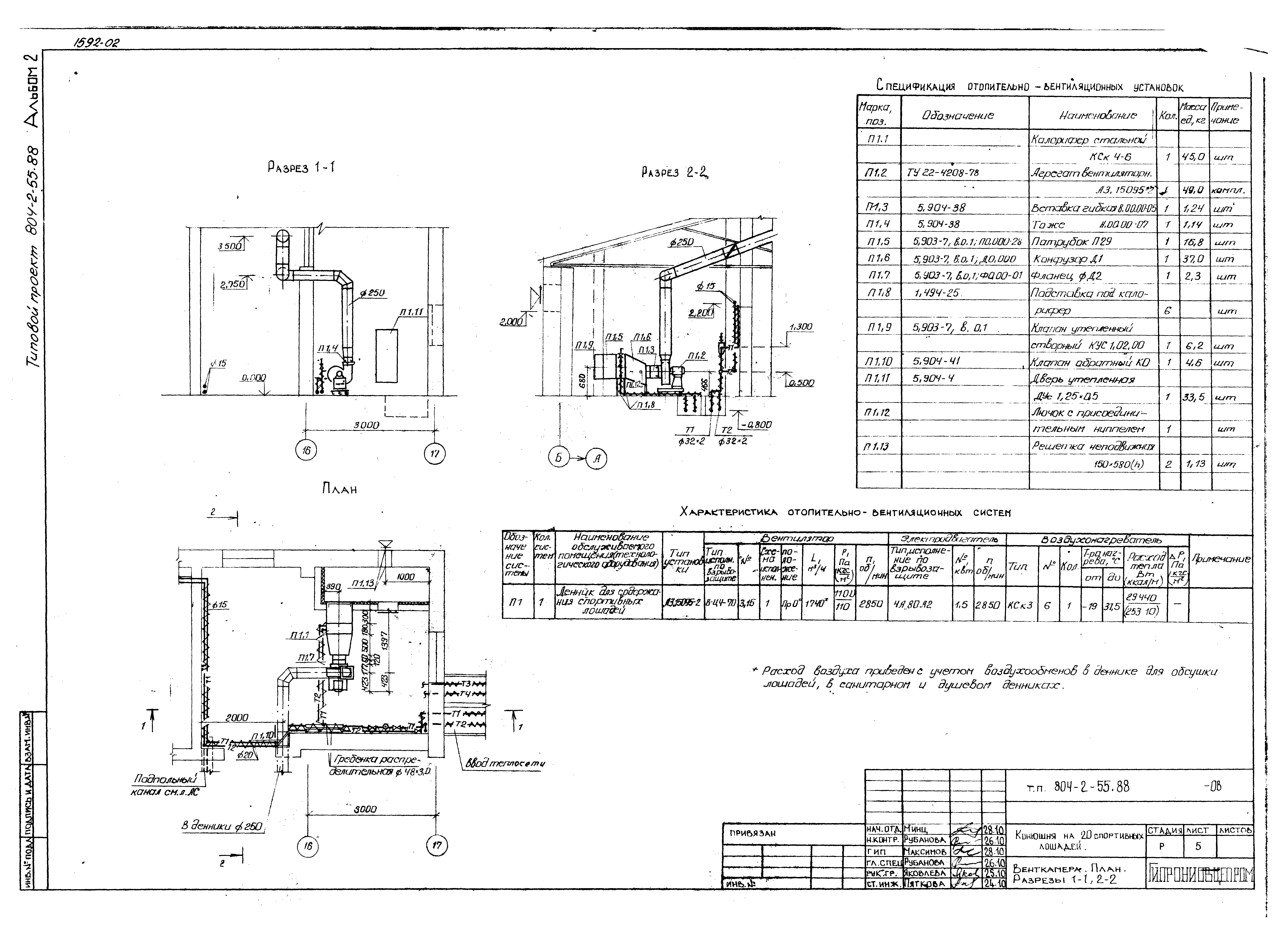
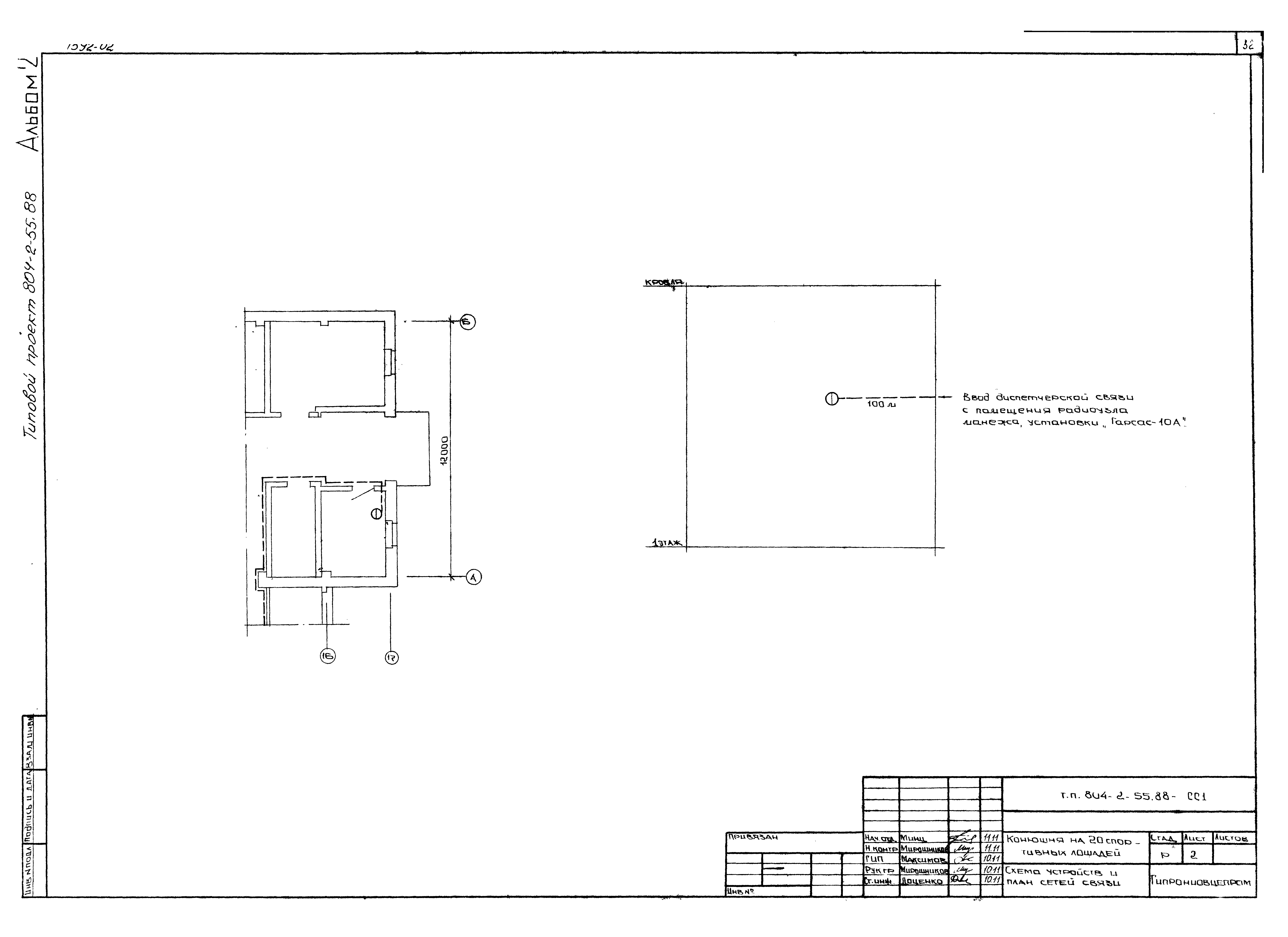
| Оглавление: | Чертежи основного комплекта марки ТХ Общие данные План расстановки технологического оборудования. Разрез А-А. Фрагмент I Чертежи основного комплекта марки АС Общие данные Фасады 1 - 17; 17 - 1; А - Б; Б - А План на отм. 0.000 Фрагменты плана 1, 2. Разрезы 1-1, 2-2 План кровли. План полов на отм. 0.000 Схема расположения фундаментов. Фрагмент 1 Схемы расположения опорных подушек, ферм, связей и плит покрытия Схема расположения решеток, кормушек, дверей Узлы 1 - 7. Детали Решетки металлические МР1 - МР3 Решетка металлическая МР4 Изделия стальные МС-1, МС-2 Решетка металлическая МР5 Изделия стальные РВ1, ЗД1, С1 Дверь ИД1 Чертежи основного комплекта марки ОВ Общие данные План на отм. 0.000. Разрезы 1-1. Схема системы вентиляции П1 Фрагмент 1. Схемы систем отопления, теплоснабжения установки П1, вентиляции ВЕ1 - ВЕ8 Венткамера. План, разрез 1-1, 2-2 Чертежи основного комплекта марки ВК Общие данные План на отм. 0.000. Схемы систем В3, Т3, Т4, К1, К3 Чертежи основного комплекта марки ЭМ Общие данные по рабочим чертежам Принципиальная схема распределительной сети Схема электрическая принципиальная управления приточным вентилятором План расположения силового электрооборудования и прокладка электросетей План расположения по электроосвещению. Прокладка электросетей Задание мастерской электромагнитных заготовок Чертежи основного комплекта марки СС1 Общие данные Схема устройств и план сетей связи Спецификации оборудования |
| Разработан: | Гипрониовцепром |
| Утверждён: | 24.11.1988 Госагропром СССР (USSR Gosagroprom 805-42/150) |
| Заменяет собой: |
|









































