Скачать Серия 5.904-71.93 Выпуск 1. Клапаны. Рабочие чертежиДата актуализации: 01.01.2021
|
| Обозначение: | Серия 5.904-71.93 |
| Обозначение англ: | Series 5.904-71.93 |
| Статус: | не определен законодательством |
| Название рус.: | Выпуск 1. Клапаны. Рабочие чертежи |
| Дата добавления в базу: | 01.09.2013 |
| Дата актуализации: | 01.01.2021 |
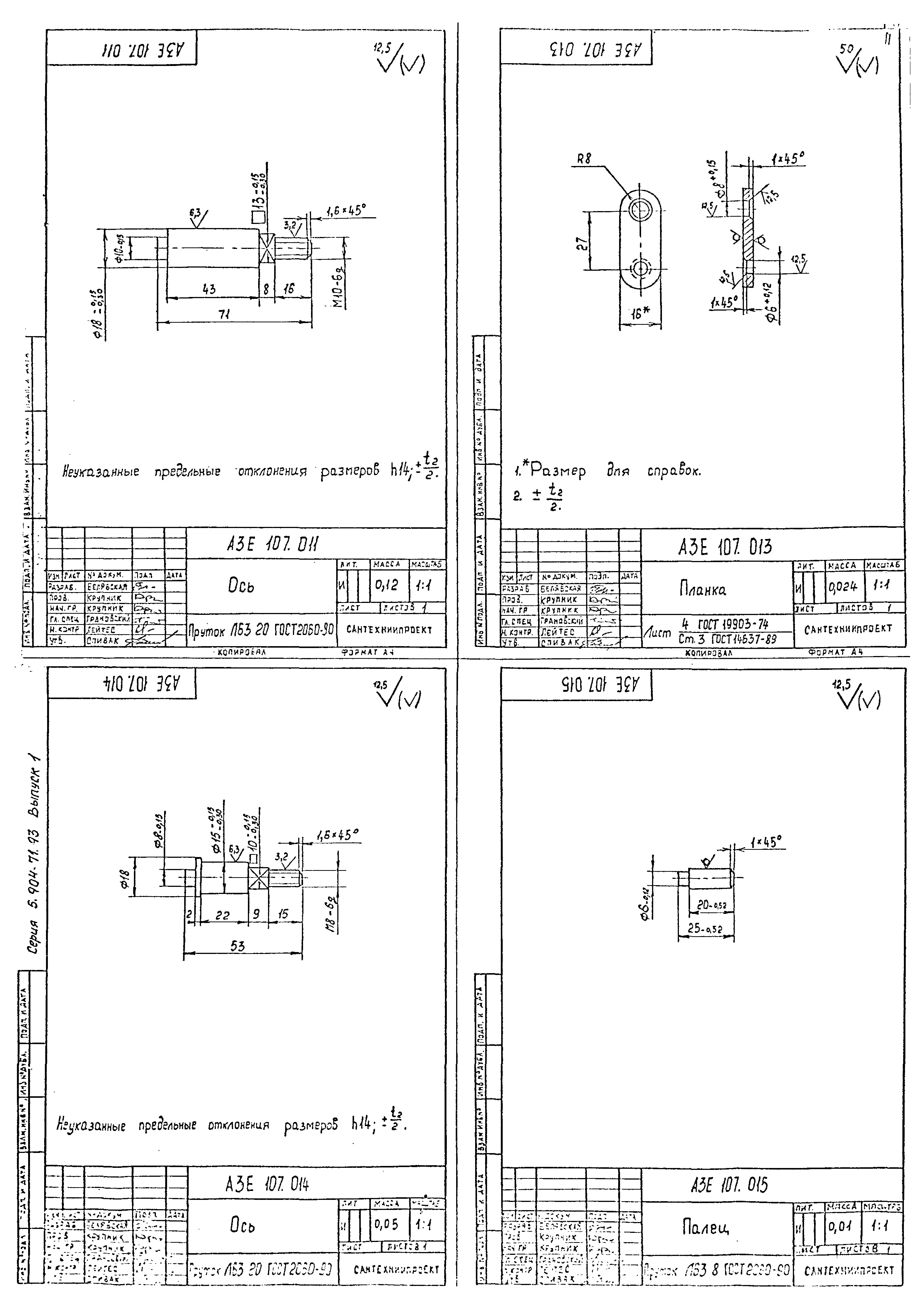
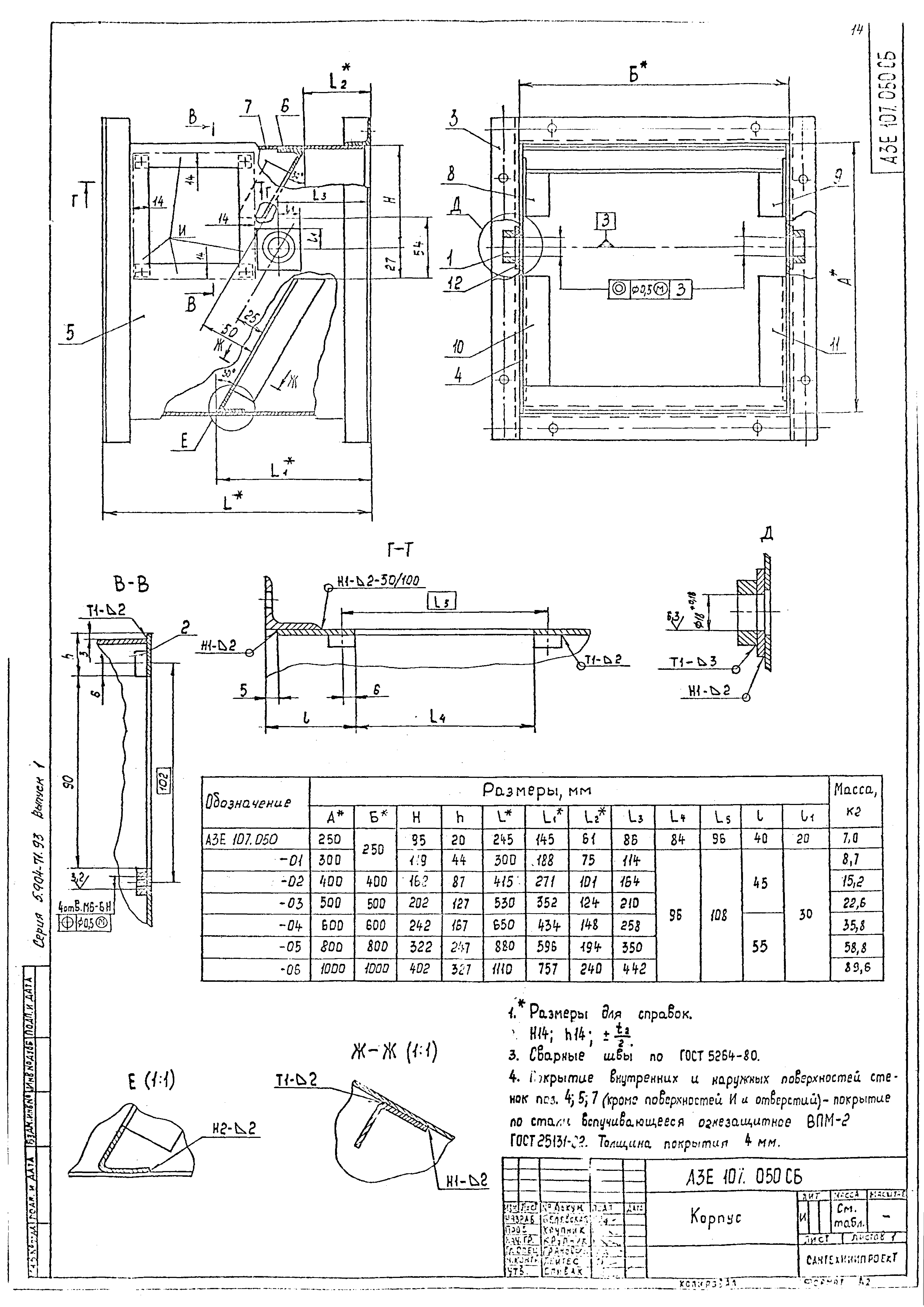
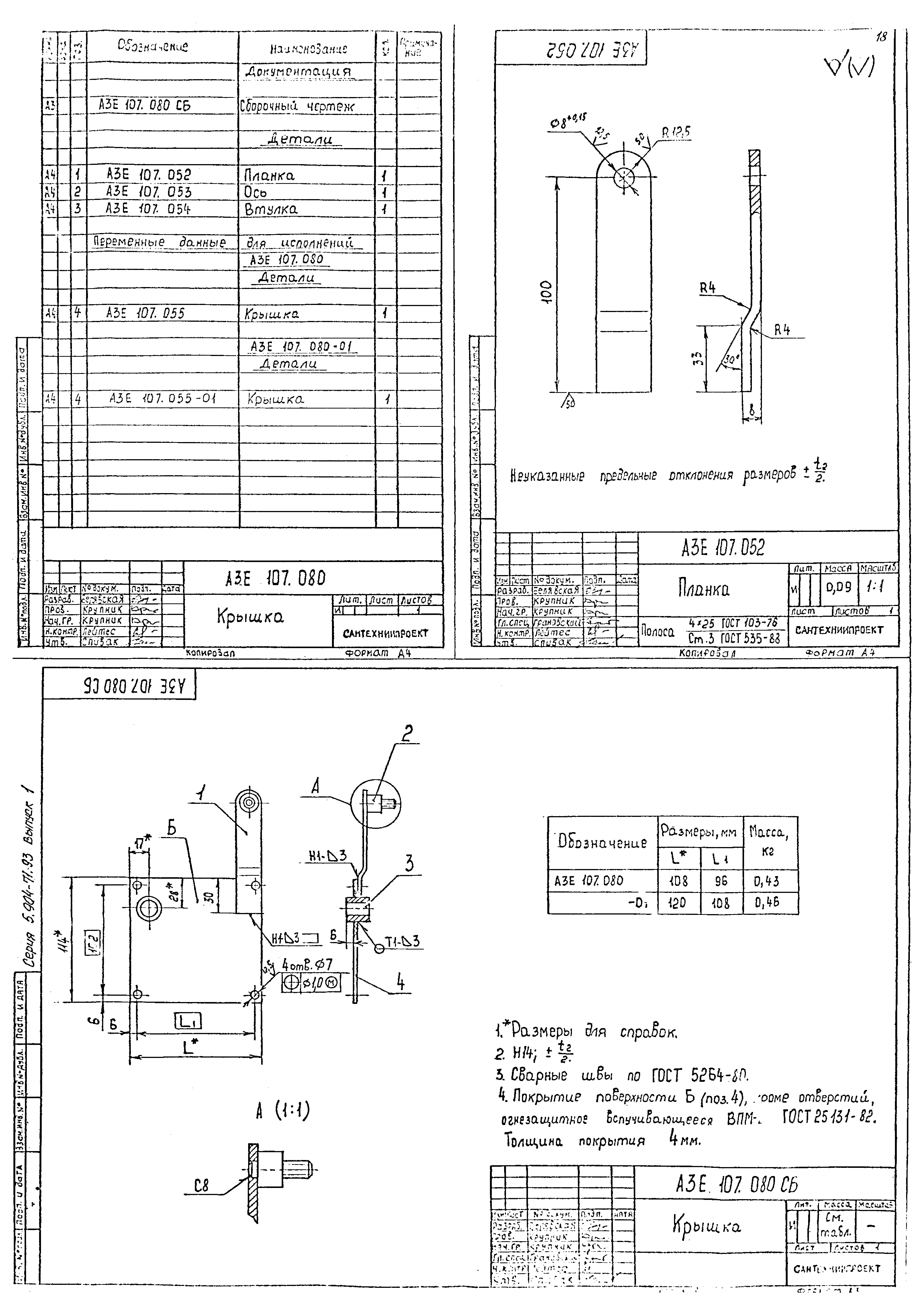
| Оглавление: | АЗЕ107.000ТТ Клапан огнезадерживающий взрывозащищенный с пределом огнестойкости 1ч. Технические требования АЗЕ107.000 Клапан огнезадерживающий взрывозащищенный с пределом огнестойкости 1ч АЗЕ107.002 Пружина АЗЕ107.000СБ Клапан огнезадерживающий взрывозащищенный с пределом огнестойкости 1ч АЗЕ107.001 Ручка АЗЕ107.003 Шайба АЗЕ107.010 Рычаг АЗЕ107.010СБ Рычаг АЗЕ107.005 Втулка АЗЕ107.006 Рычаг АЗЕ107.020 Ось АЗЕ107.020СБ Ось АЗЕ107.008 Ось АЗЕ107.009 Планка АЗЕ107.030 Ось АЗЕ107.030СБ Ось АЗЕ107.040 Фиксатор АЗЕ107.040СБ Фиксатор АЗЕ107.011 Ось АЗЕ107.013 Планка АЗЕ107.014 Ось АЗЕ107.015 Палец АЗЕ107.050 Корпус АЗЕ107.019 Стенка АЗЕ107.050СБ Корпус АЗЕ107.060 Фланец АЗЕ107.021 Упор АЗЕ107.023 Упор АЗЕ107.060СБ Фланец АЗЕ107.070 Рукоятка АЗЕ107.070СБ Рукоятка АЗЕ107.048 Штырь АЗЕ107.049 Рукоятка АЗЕ107.080 Крышка АЗЕ107.080СБ Крышка АЗЕ107.052 Планка АЗЕ107.053 Ось АЗЕ107.054 Втулка АЗЕ107.055 Крышка АЗЕ107.090 Крышка АЗЕ107.090СБ Крышка АЗЕ107.100 Полотно АЗЕ107.074 Планка АЗЕ107.100СБ Полотно АЗЕ107.072 Планка АЗЕ107.073 Перегородка АЗЕ107.075 Стенка АЗЕ107.076 Короб АЗЕ107.110 Замок АЗЕ107.110СБ Замок АЗЕ107.078 Планка АЗЕ107.079 Планка АЗЕ107.120 Замок АЗЕ107.120СБ Замок АЗЕ107.081 Планка АЗЕ107.082 Планка |
| Разработан: | Сантехниипроект Госстроя России |
| Утверждён: | 01.01.1993 Главпроект Госстроя России |
























