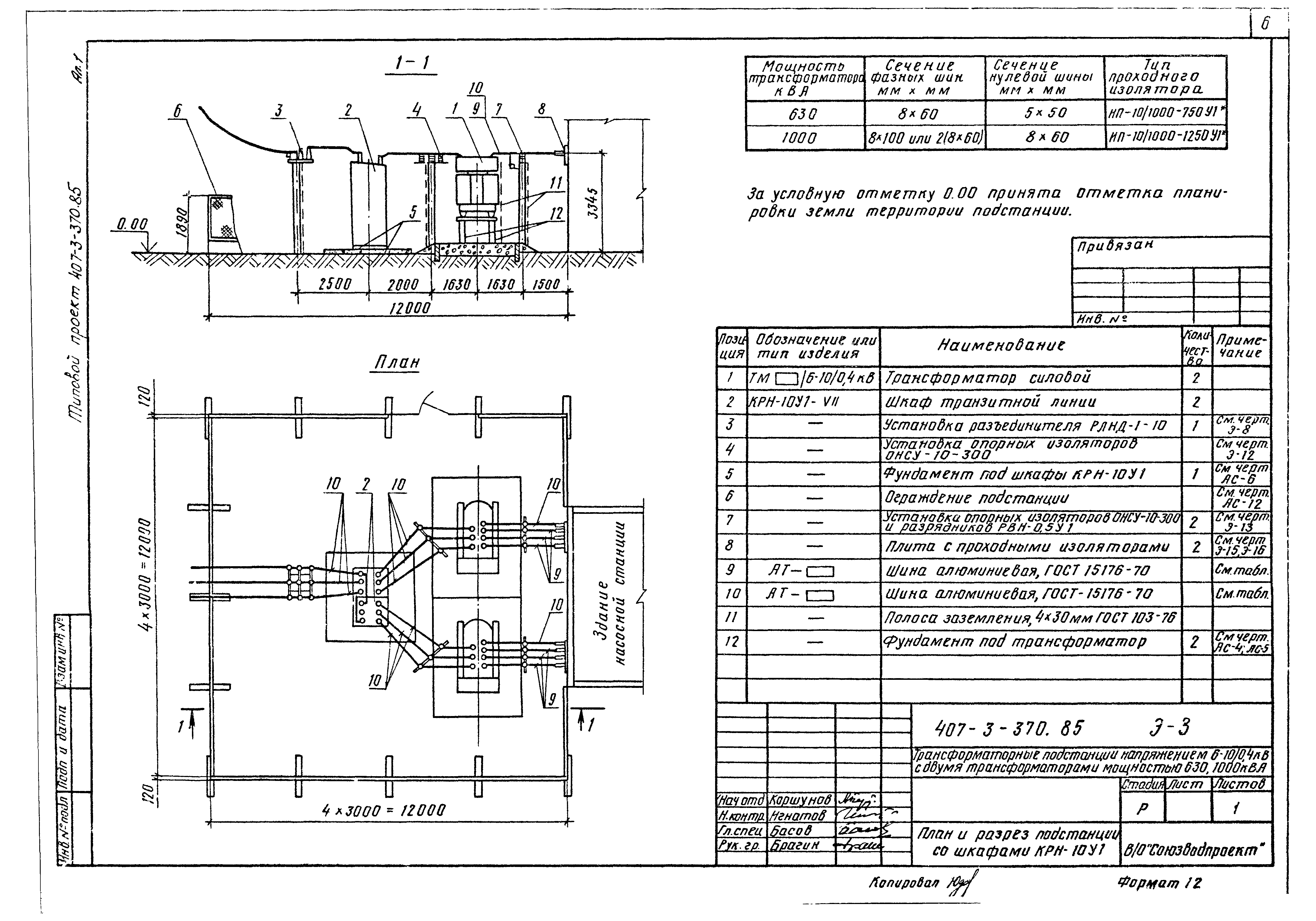
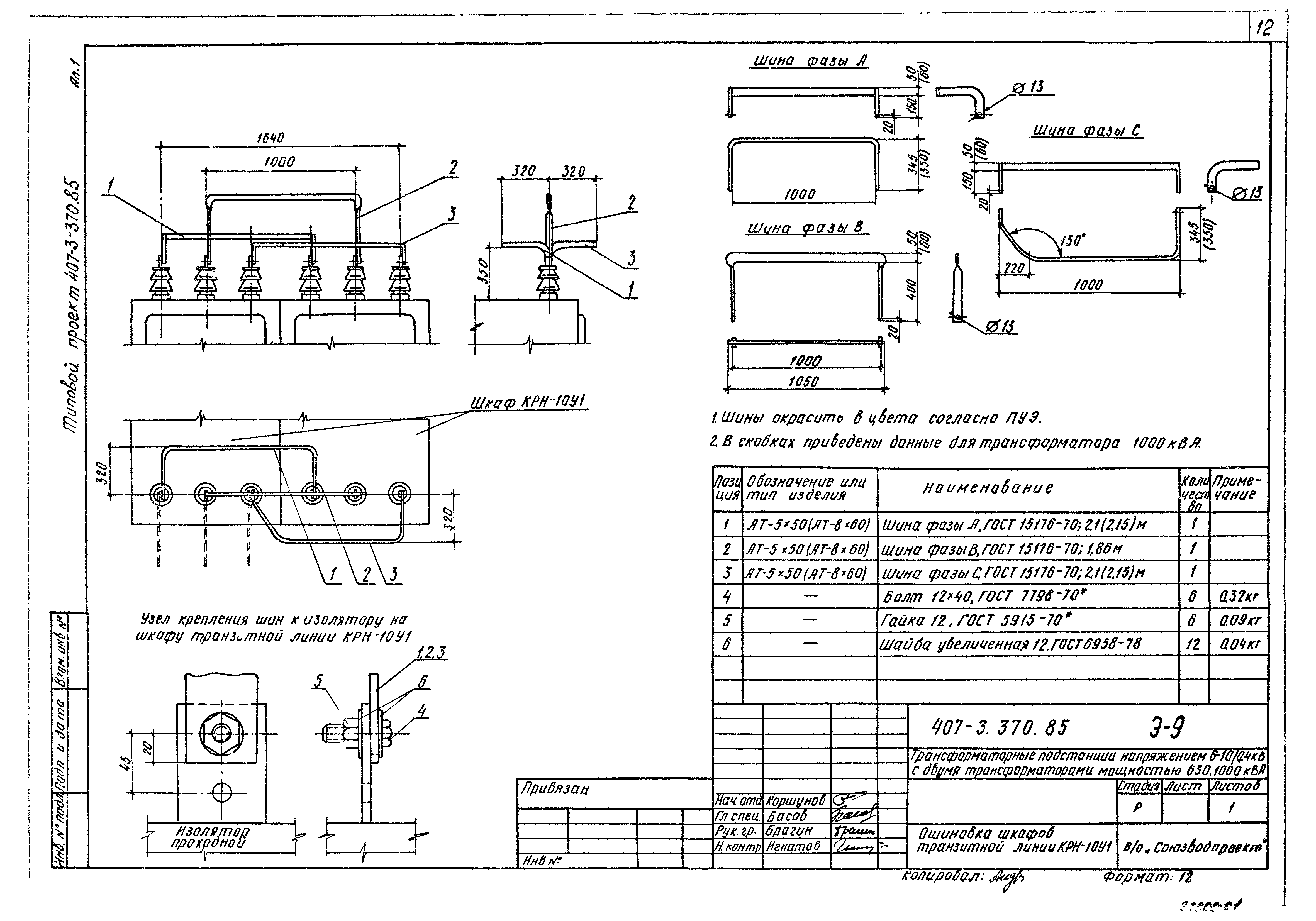
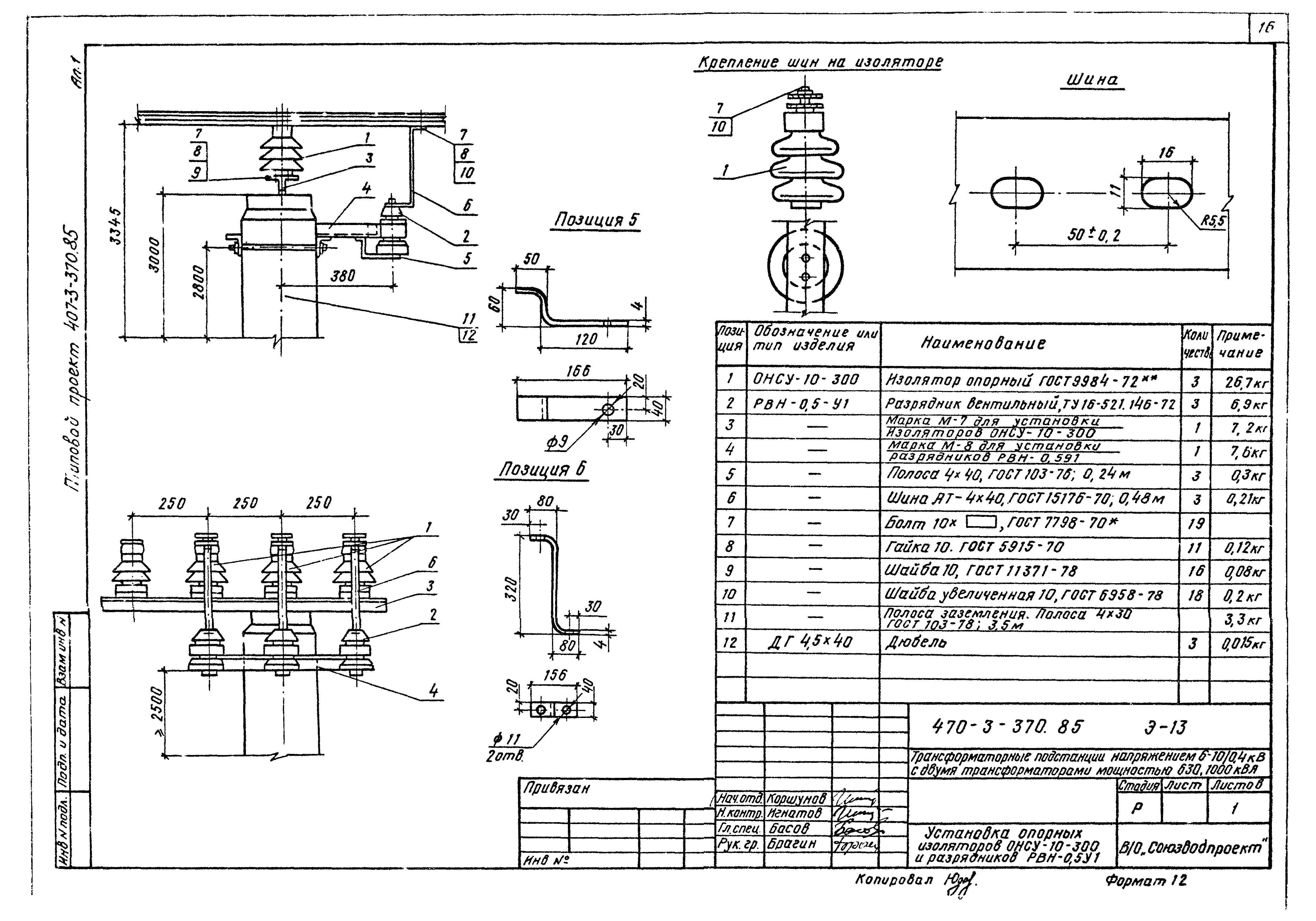
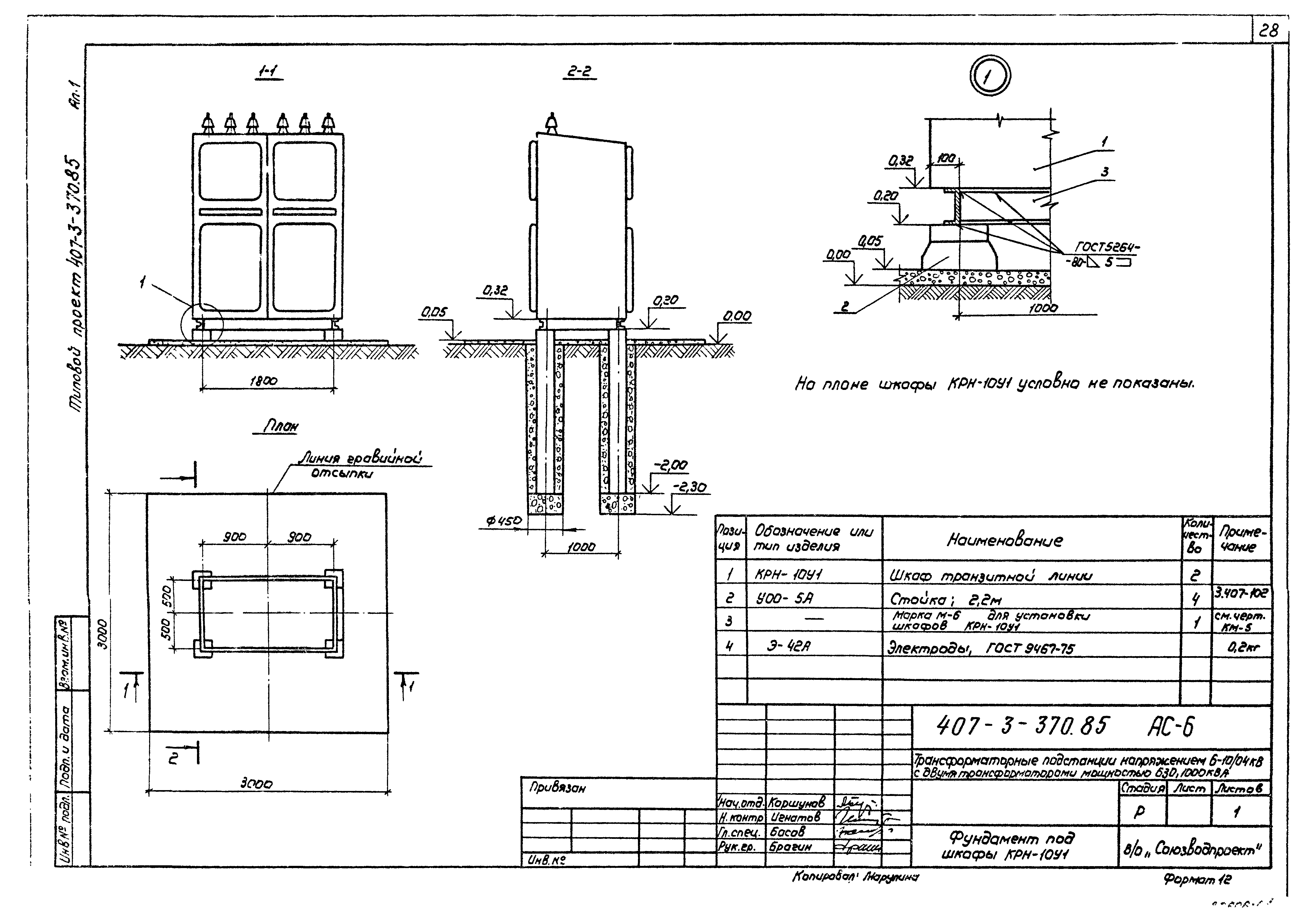
Скачать Типовой проект 407-3-370.85 Альбом 1. Электротехническая часть. Архитектурно-строительные решения. Конструкции металлическиеДата актуализации: 01.01.2021
|
| Обозначение: | Типовой проект 407-3-370.85 |
| Обозначение англ: | 407-3-370.85 |
| Статус: | не действует |
| Название рус.: | Альбом 1. Электротехническая часть. Архитектурно-строительные решения. Конструкции металлические |
| Дата добавления в базу: | 01.02.2020 |
| Дата актуализации: | 01.01.2021 |
| Дата введения: | 26.06.1985 |
| Дата окончания срока действия: | 01.01.1990 |
| Разработан: | Союзводпроект Минводхоза СССР |
| Утверждён: | 20.05.1982 Министерство мелиорации и водного хозяйства СССР (466) |
| Заменяет собой: |
|


















































