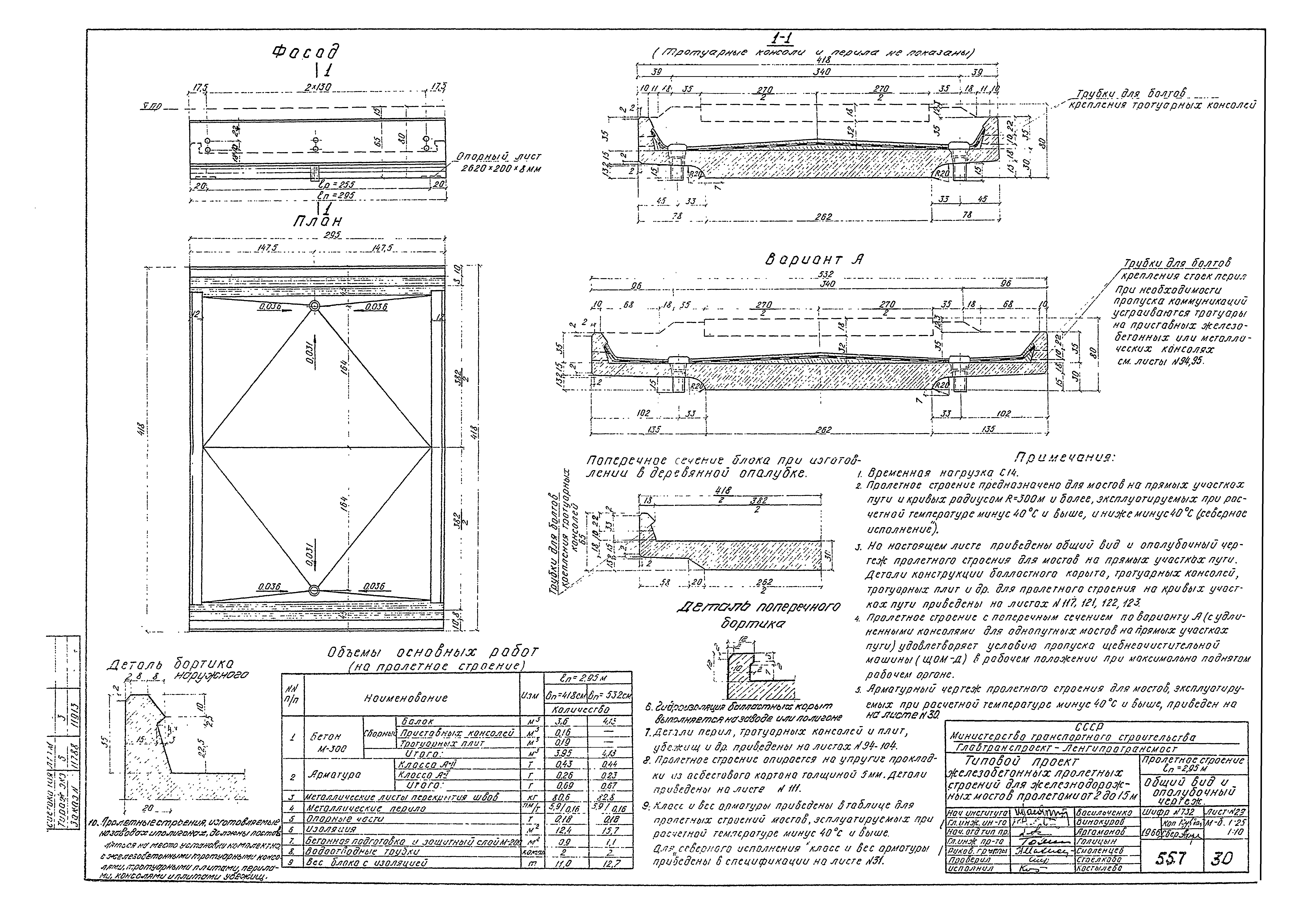
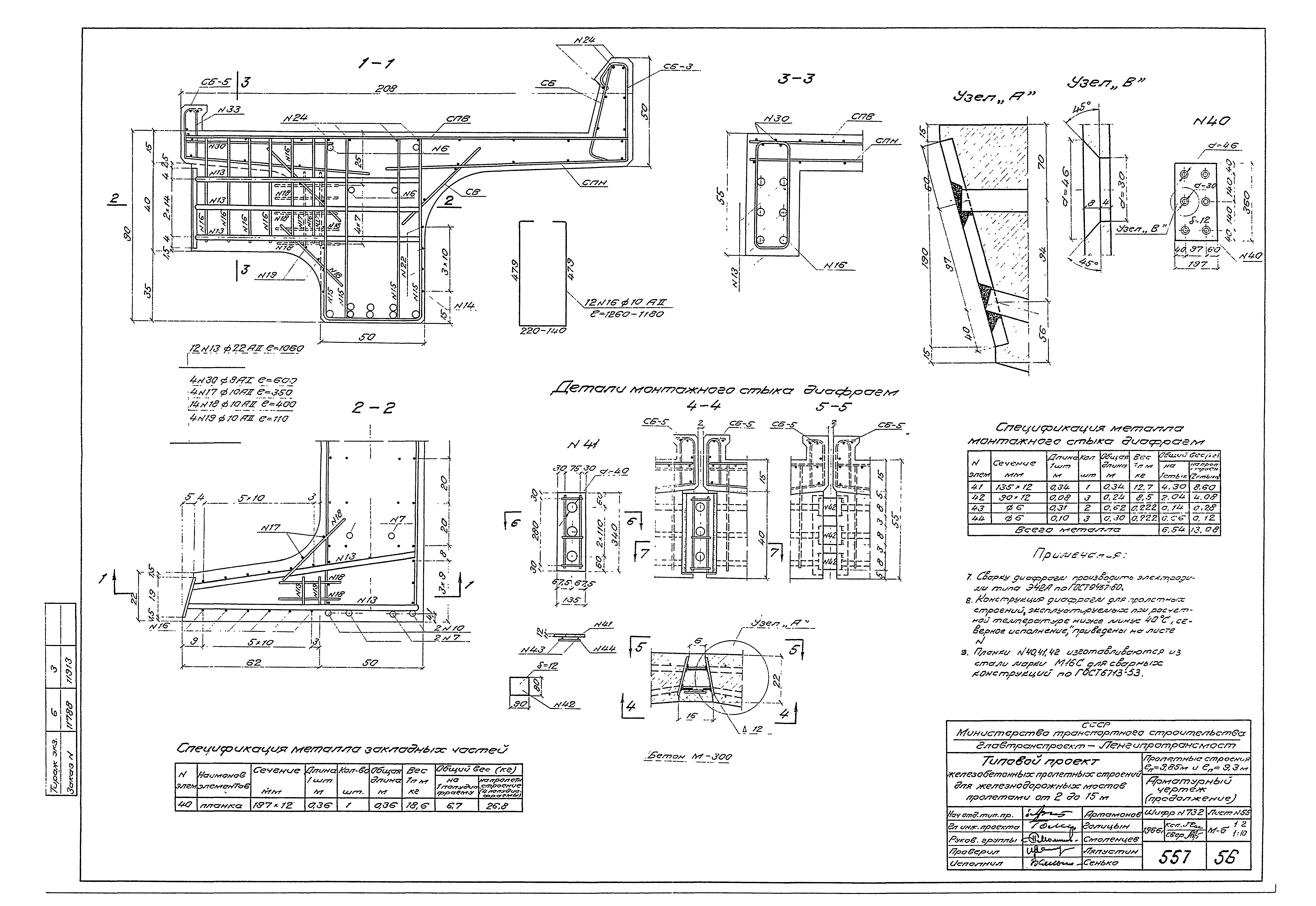
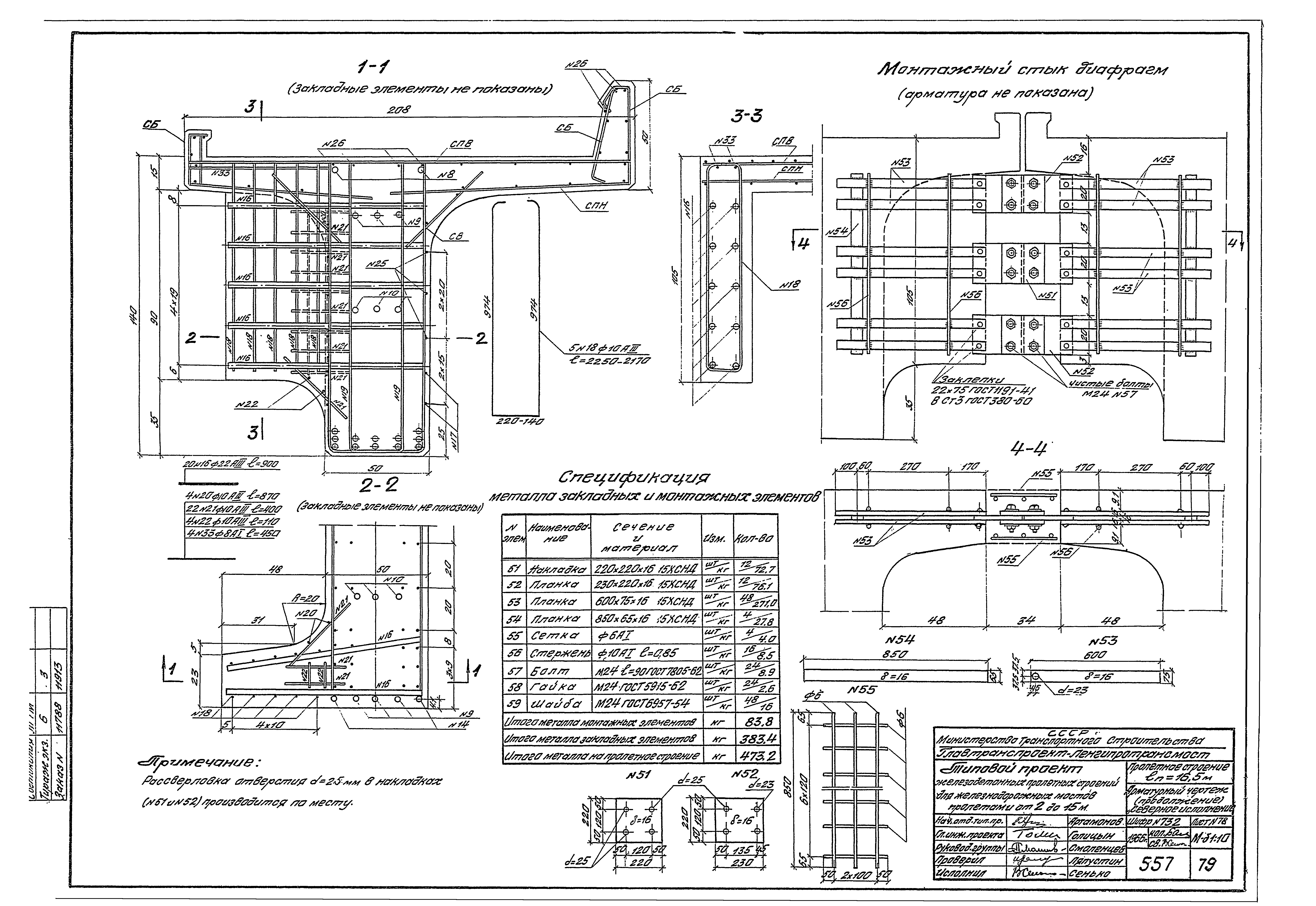
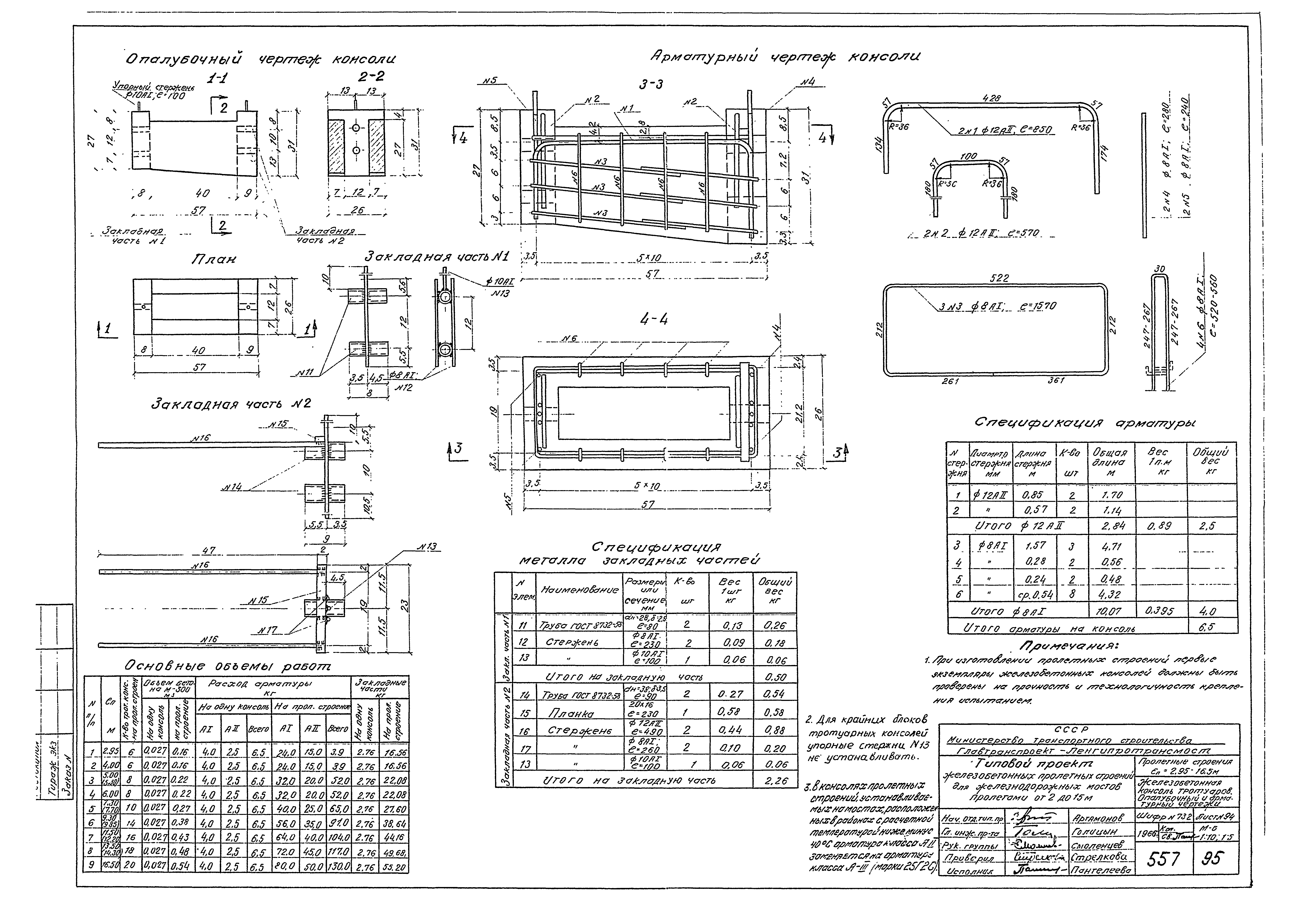
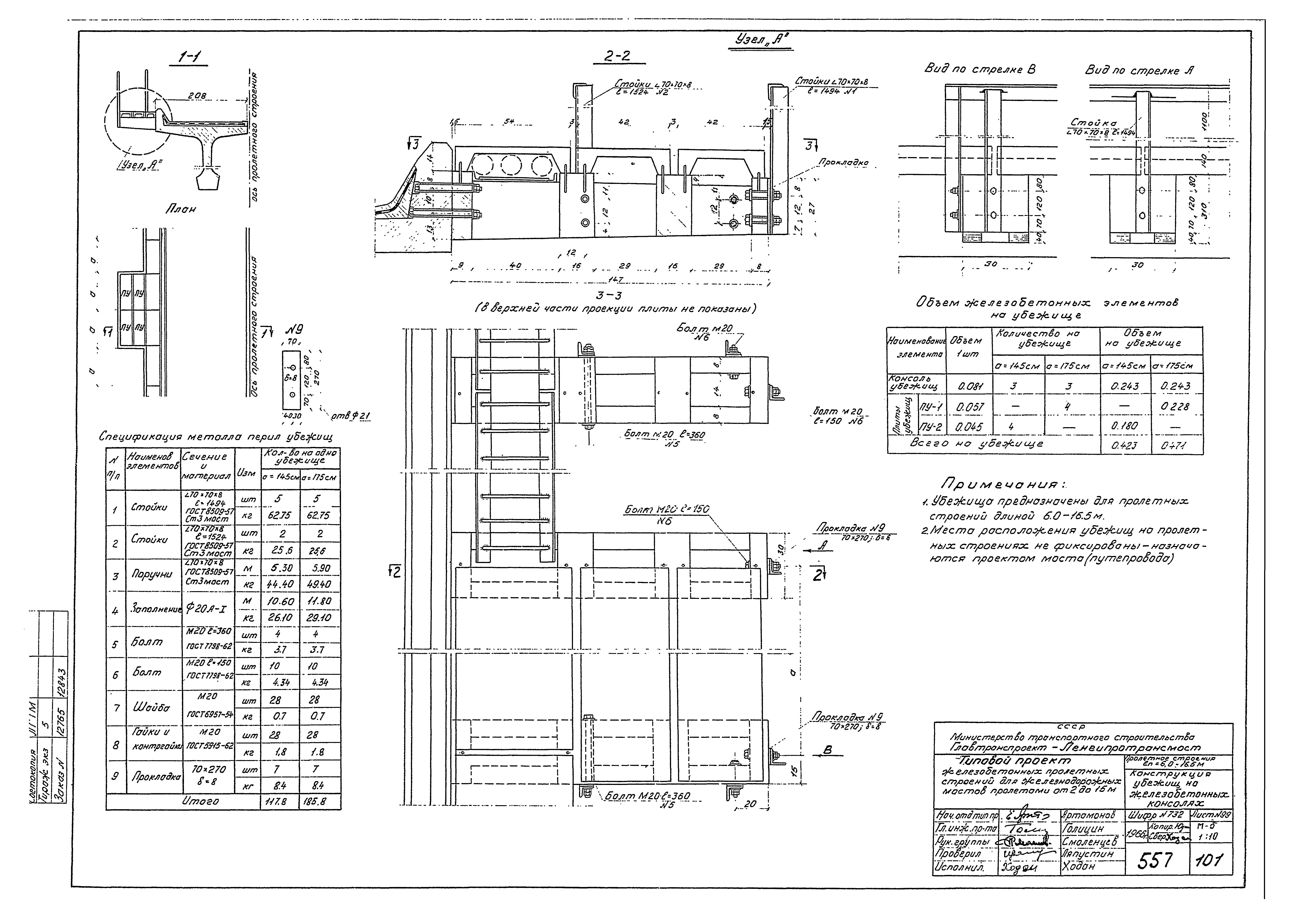
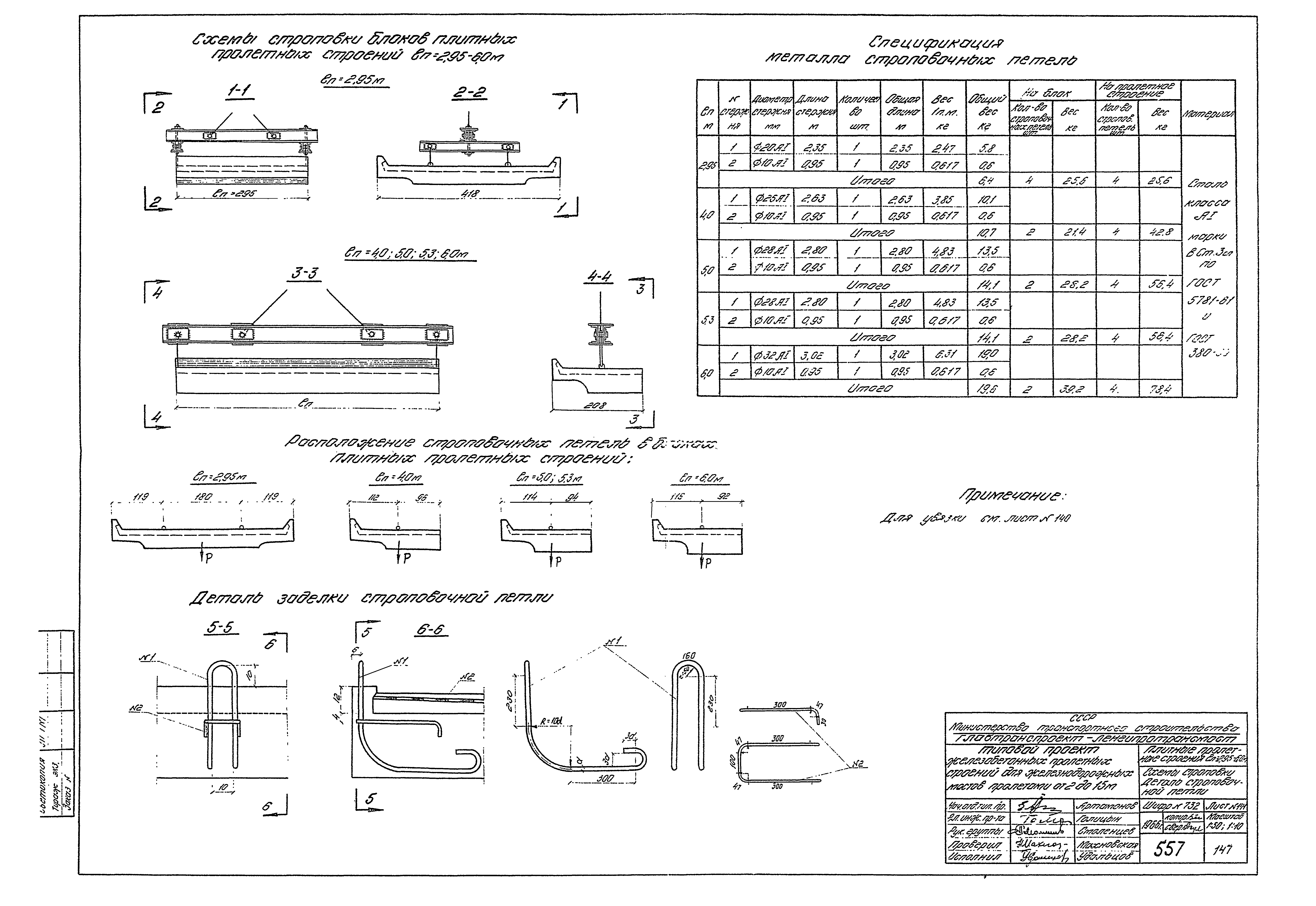
Скачать Типовой проект 3.501-54 Типовой проект железобетонных пролетных строений для железнодорожных мостов пролетами от 2 до 15 м. Рабочие чертежиДата актуализации: 01.01.2021
|
| Обозначение: | Типовой проект 3.501-54 |
| Обозначение англ: | 3.501-54 |
| Статус: | заменен |
| Название рус.: | Типовой проект железобетонных пролетных строений для железнодорожных мостов пролетами от 2 до 15 м. Рабочие чертежи |
| Дата добавления в базу: | 01.09.2013 |
| Дата актуализации: | 01.01.2021 |
| Дата введения: | 22.07.1967 |
| Дата окончания срока действия: | 01.01.1979 |
| Оглавление: | Пояснительная записка I. Общая часть II. Пролетные строения с нормальной строительной высотой III. Пролетные строения с пониженной строительной высотой IV. Детали V. Производство работ |
| Разработан: | Ленгипротрансмост |
| Утверждён: | 22.07.1967 МПС (Ministry of Railroads П-18684) |




























































































































































