Скачать Типовой проект 409-23-54.87 Альбом 1. Пояснительная записка. Технология производстваДата актуализации: 01.01.2021
|
| Обозначение: | Типовой проект 409-23-54.87 |
| Обозначение англ: | 409-23-54.87 |
| Статус: | не определен законодательством |
| Название рус.: | Альбом 1. Пояснительная записка. Технология производства |
| Дата добавления в базу: | 01.09.2013 |
| Дата актуализации: | 01.01.2021 |
| Дата введения: | 22.10.1987 |
| Дата окончания срока действия: | 30.06.2003 |
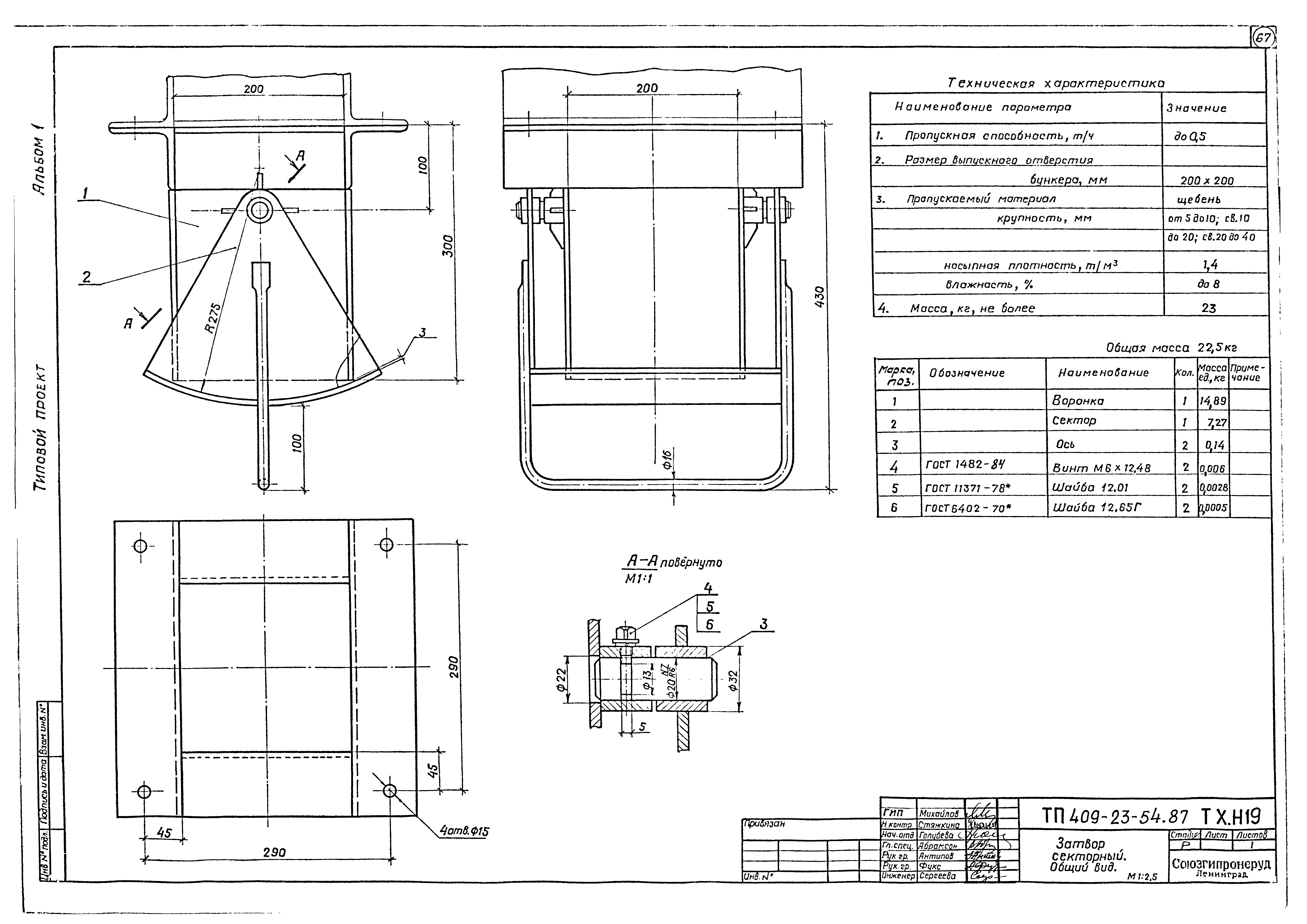
| Оглавление: | Пояснительная записка Общие данные Монтажный чертеж. План на отм. 0.000 Монтажный чертеж. План на отм. 4.800 Монтажный чертеж. План на отм. 9.600 Монтажный чертеж. План на отм. 14.400 Монтажный чертеж. Разрез 1-1 Монтажный чертеж. Разрез 2-2 Монтажный чертеж. Разрез 3-3 Лаборатория. План на отм. 0.000 Лаборатория. Спецификация Лаборатория. Установка для анализа зернового состава щебня и гравия Лаборатория. Установка пресса гидравлического П-50 Лаборатория. Установка барабана полочного Лаборатория. Установка дробилки щековой ДЛЩ80х150 Лаборатория. Установка стеллажа сборно-разборного 2000-610х2400 Установка пробоотборника №1 ПК1-8 Установка пробоотборника №2 ПК1-8 Установка пробоотборника №3 ПК1-8 Установка механизмов поворота затвора Установка конвейера №7 8063-100. Монтажная схема. Разрезы 1-1; 2-2 Установка конвейера №7 8063-100. План закладных частей. Узлы II, III Установка конвейера №7 8063-100. Узел I. Виды А, Б, В Установка конвейера №7 8063-100. Спецификация Установка конвейера №8 8080-120. Монтажная схема. Разрезы 1-1; 2-2 Установка конвейера №8 8080-120. План закладных частей. Виды А, Б. Узлы II, III Установка конвейера №8 8080-120. Узел I. Виды В, Г, Д Установка конвейера №8 8080-120. Спецификация Установка конвейера №9 8080-120. Монтажная схема. Разрезы 1-1; 2-2 Установка конвейера №9 8080-120. План закладных частей. Виды А, Б. Узлы II, III Установка конвейера №9 8080-120. Узел I. Виды В, Г, Д Установка конвейера №9 8080-120. Спецификация Установка конвейера №14 12080-160. Монтажная схема. Разрезы 1-1; 2-2 Установка конвейера №14 12080-160. План закладных частей. Узлы II, III Установка конвейера №14 12080-160. Узел I. Виды А, Б, В Установка конвейера №14 12080-160. Спецификация Установка конвейера №15 12080-160. Монтажная схема. Разрезы 1-1; 2-2 Установка конвейера №15 12080-160. План закладных частей. Узлы II, III Установка конвейера №15 12080-160. Узел I. Виды А, Б, В Установка конвейера №15 12080-160. Спецификация Механизм поворота затвора. Общий вид Узел перегрузки: конвейер №7, пробоотборник №1 - конвейер №13. Общий вид Узел перегрузки: конвейер №9, пробоотборник №2 - конвейер №12. Общий вид Узел перегрузки: конвейер №8, пробоотборник №3 - конвейер №11. Общий вид Узел перегрузки: конвейер №14 - конвейер №17. Общий вид Узел перегрузки: конвейер №15 - конвейеры №16, 17. Общий вид Узел перегрузки: пробоотборники №1, 2, 3 - бункер проб в лаборатории. Общий вид Опорная рама приводного барабана конвейеров №7, 8, 9. Общий вид Опорная рама приводного механизма конвейера №7. Общий вид Опорная рама приводного механизма конвейеров №8, 9. Общий вид Опорная конструкция грузового натяжного устройства конвейера №7. Общий вид Опорная конструкция грузового натяжного устройства конвейеров №8, 9. Общий вид Опорная рама неприводного барабана конвейеров №7, 8, 9, 14, 15. Общий вид Опорная рама средней части и нижней роликоопоры конвейеров №7, 8, 9, 14, 15. Общий вид Опорная рама средней части и нижней роликоопоры конвейеров №7, 8, 9. Общий вид Опорная рама приводного барабана конвейеров №14, 15. Общий вид Опорная рама приводного механизма конвейеров №14, 15. Общий вид Опорная конструкция грузового натяжного устройства конвейеров №14, 15. Общий вид Затвор секторный. Общий вид |
| Разработан: | Союзгипронеруд |
| Утверждён: | 19.07.1987 Минстройматериалов СССР (USSR Minstroymaterialov 28-15481) |
| Заменяет собой: |
|



































































