Скачать Типовой проект 409-23-54.87 Альбом 2. Обеспыливание и аспирацияДата актуализации: 01.01.2021
|
| Обозначение: | Типовой проект 409-23-54.87 |
| Обозначение англ: | 409-23-54.87 |
| Статус: | не определен законодательством |
| Название рус.: | Альбом 2. Обеспыливание и аспирация |
| Дата добавления в базу: | 01.10.2014 |
| Дата актуализации: | 01.01.2021 |
| Дата введения: | 22.10.1987 |
| Дата окончания срока действия: | 30.06.2003 |
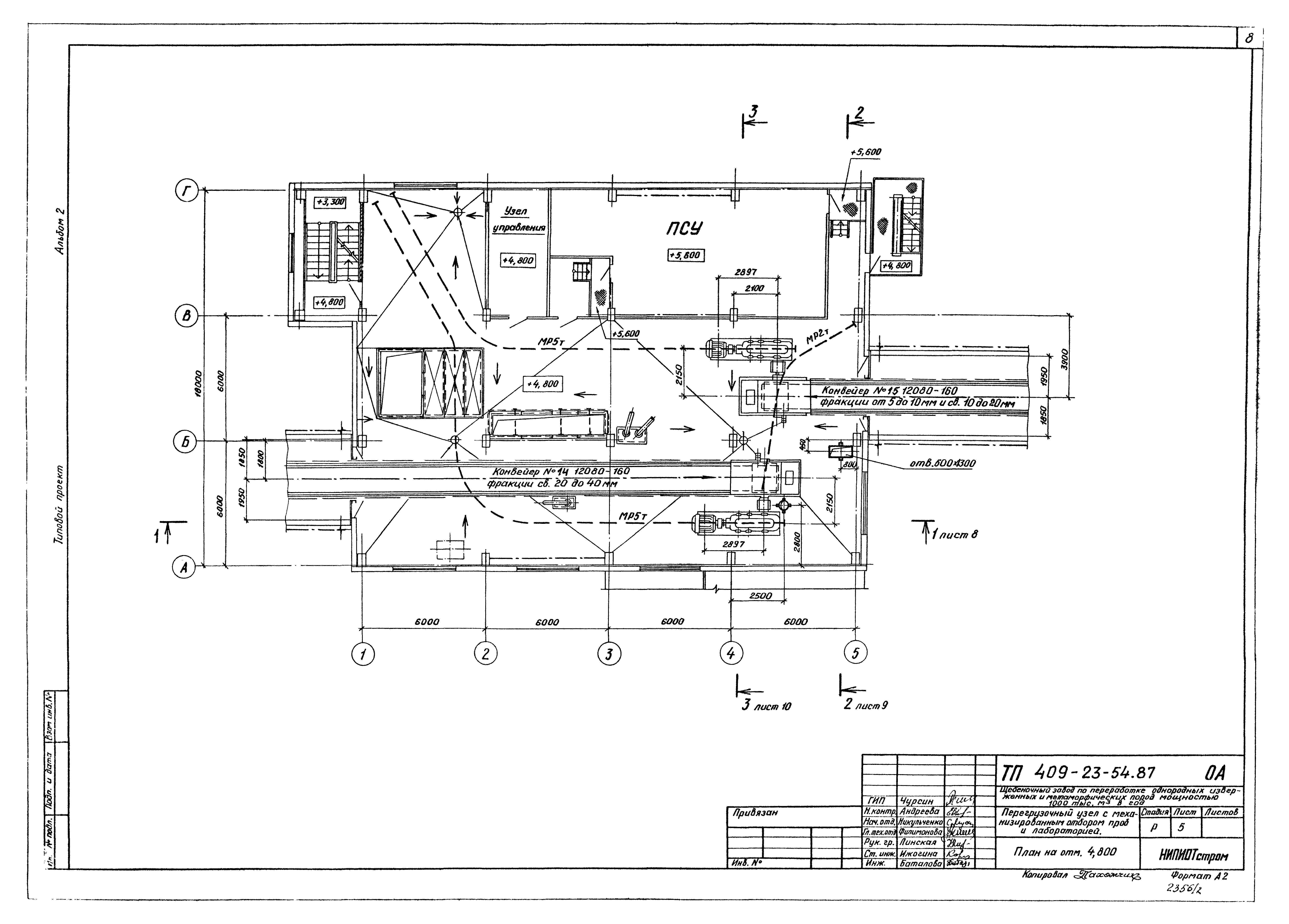
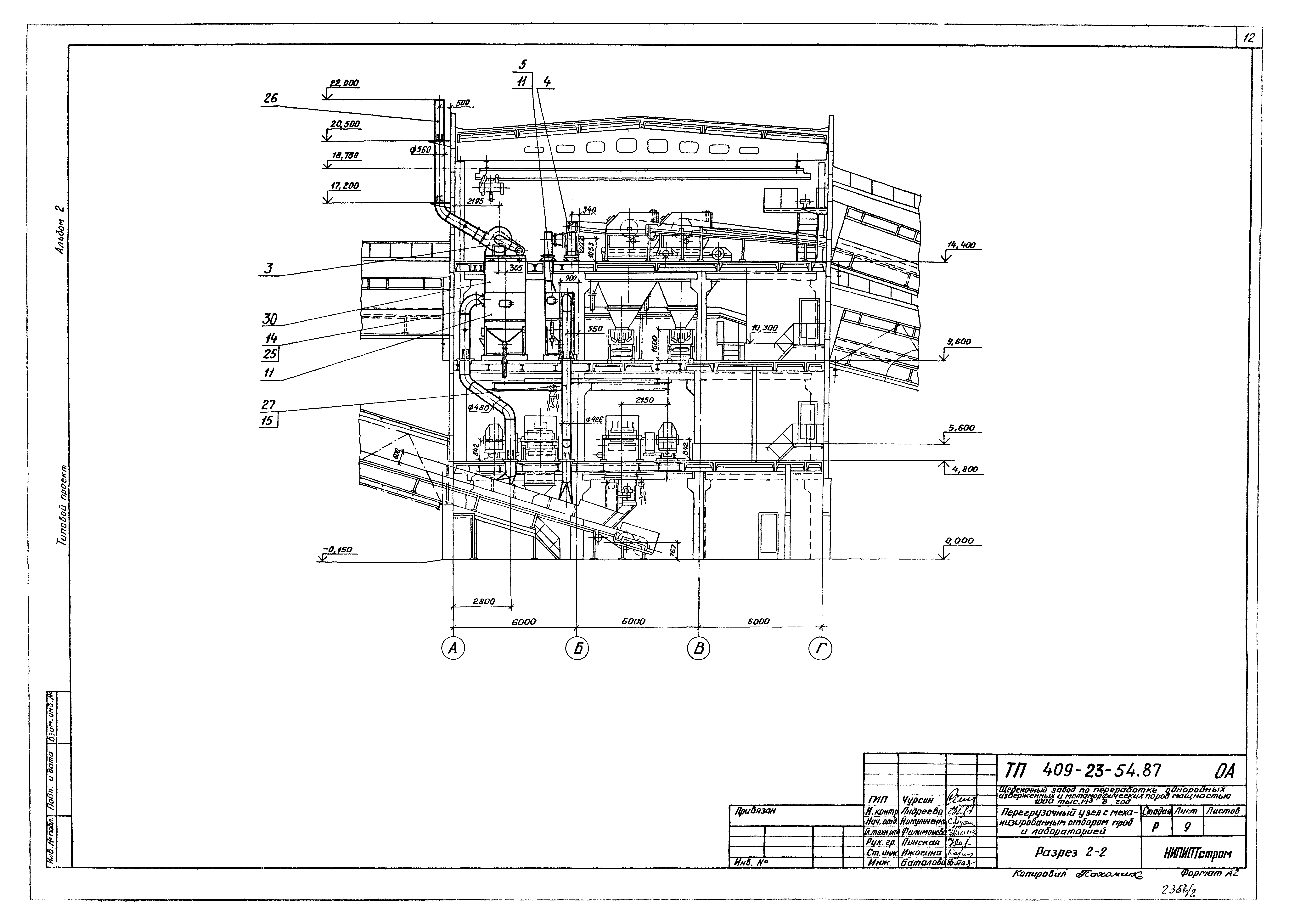
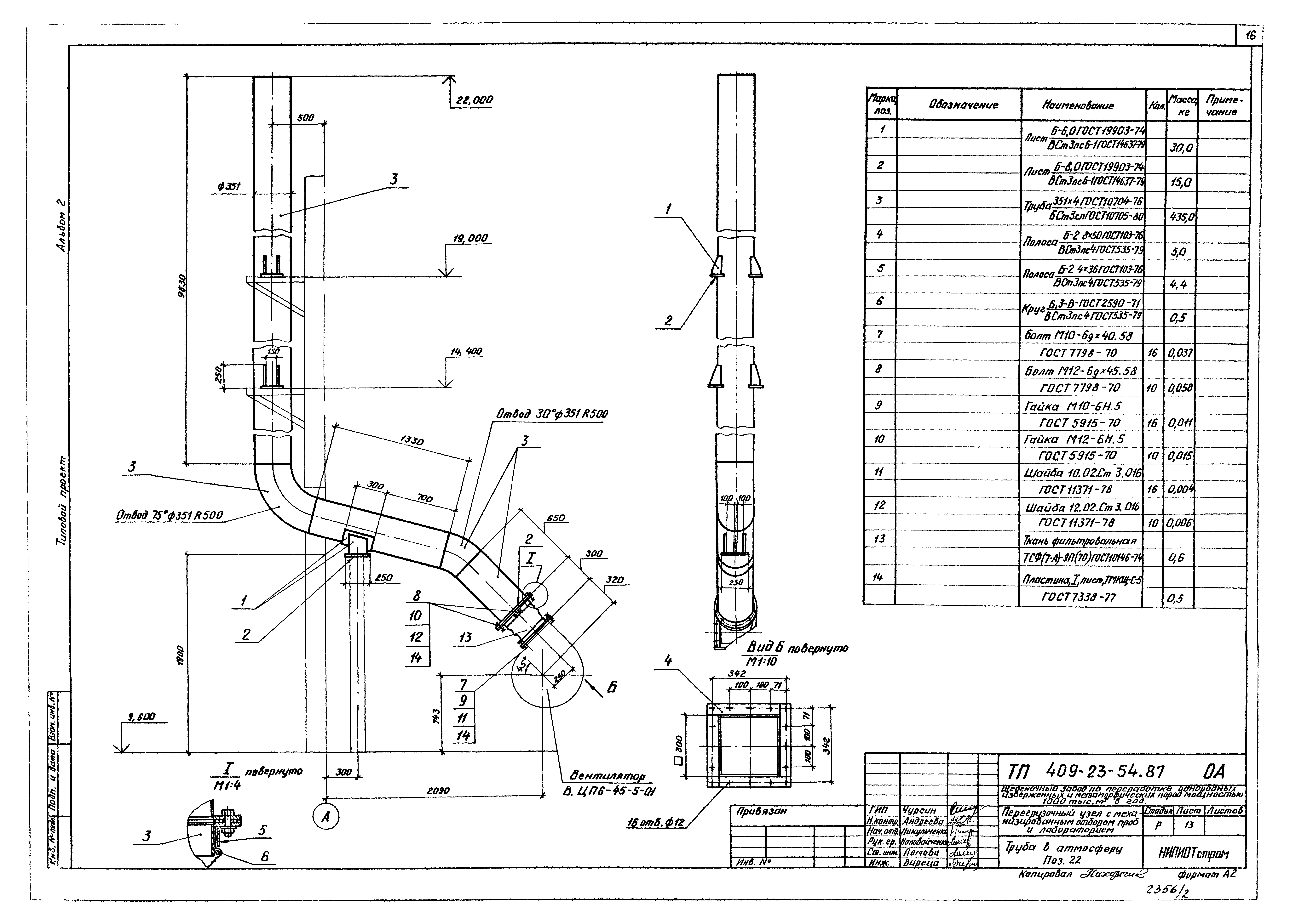
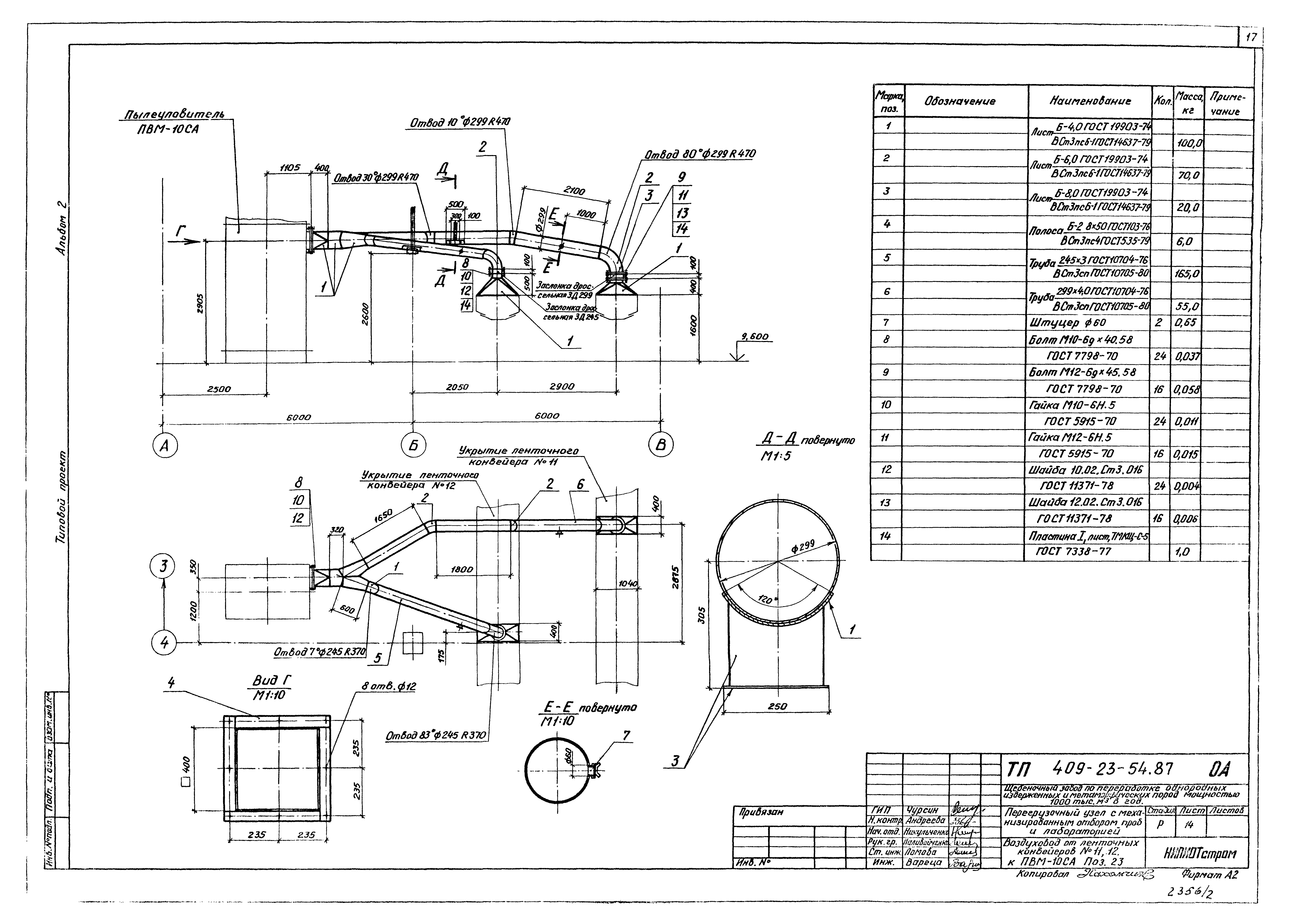
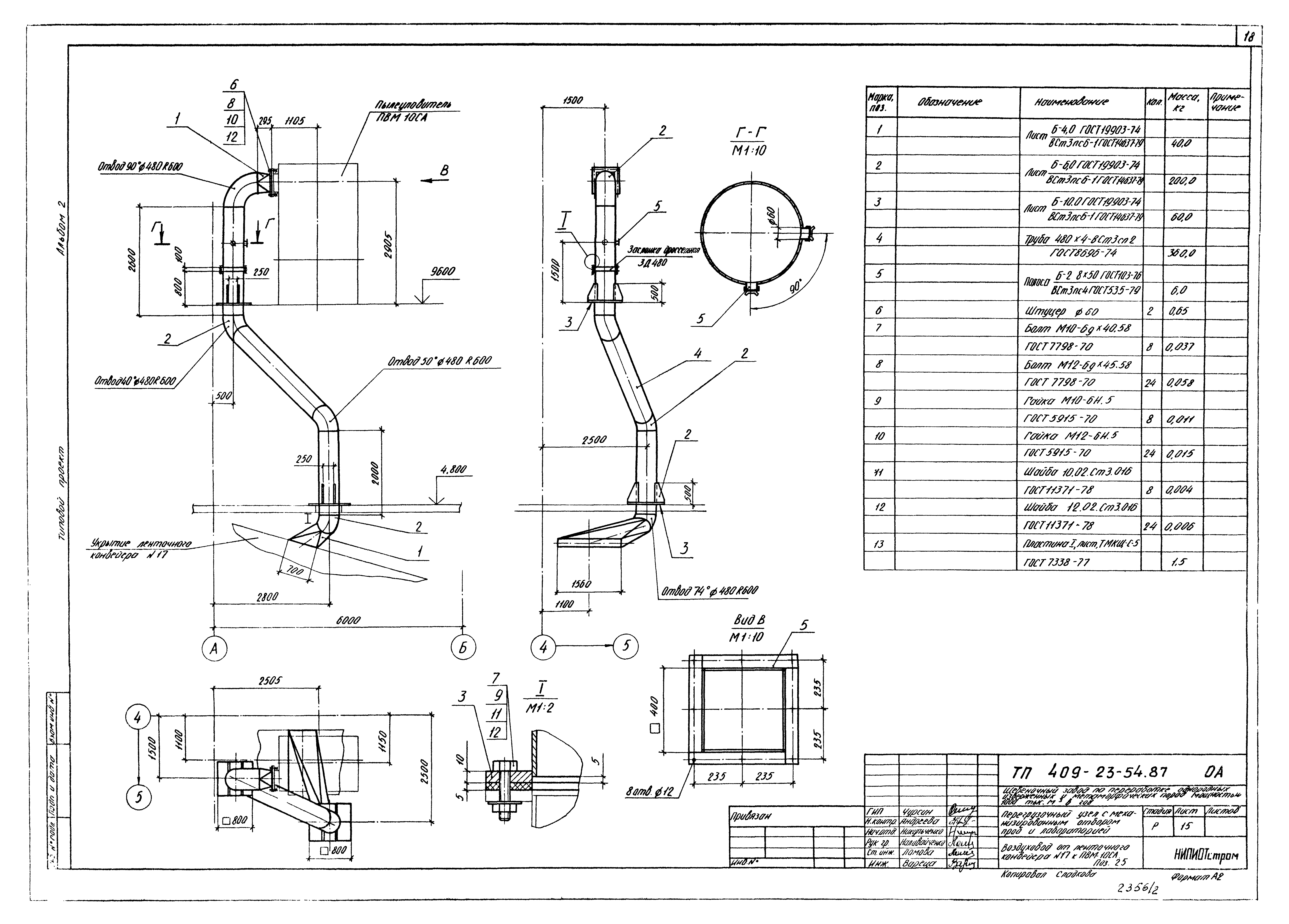
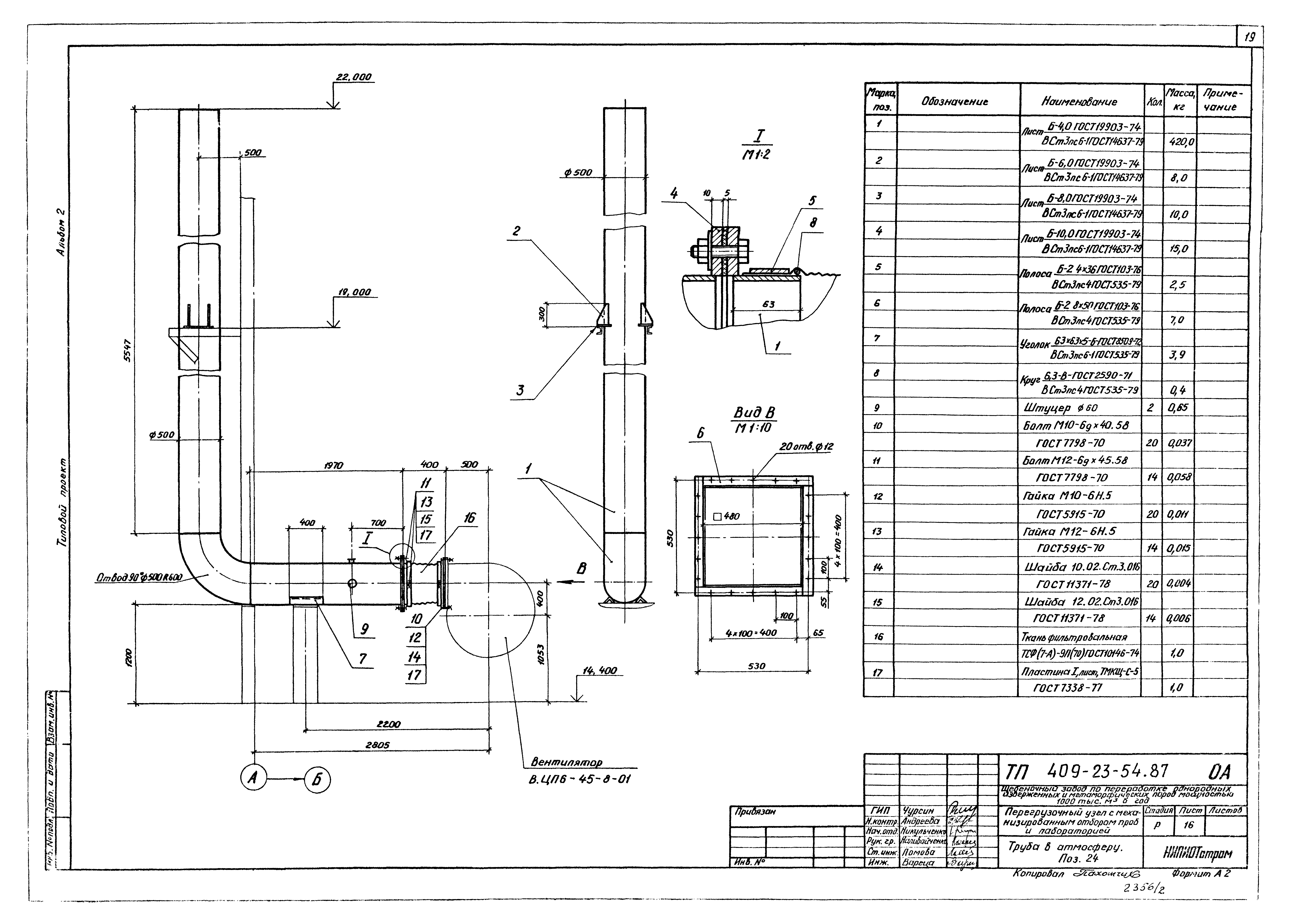
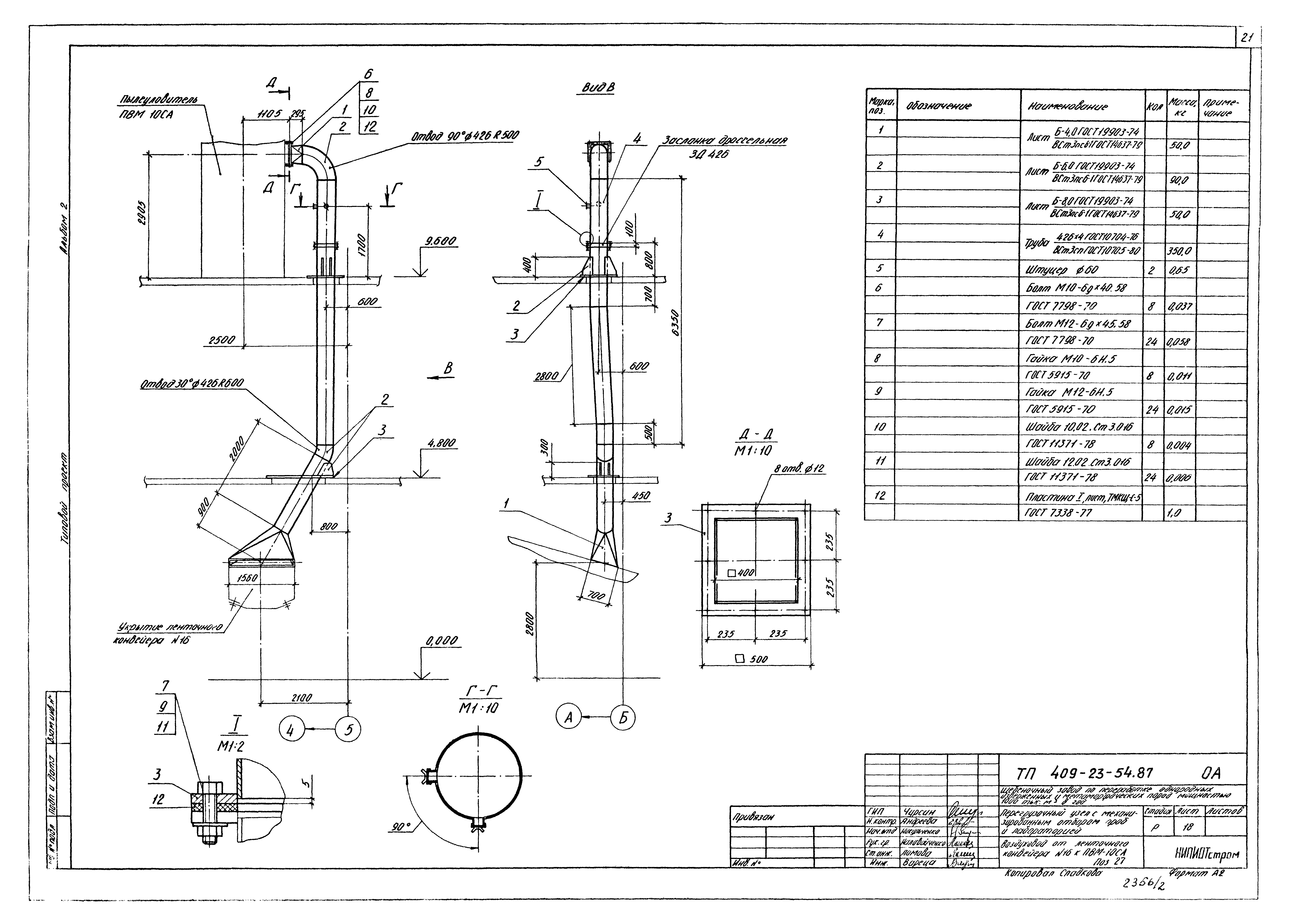
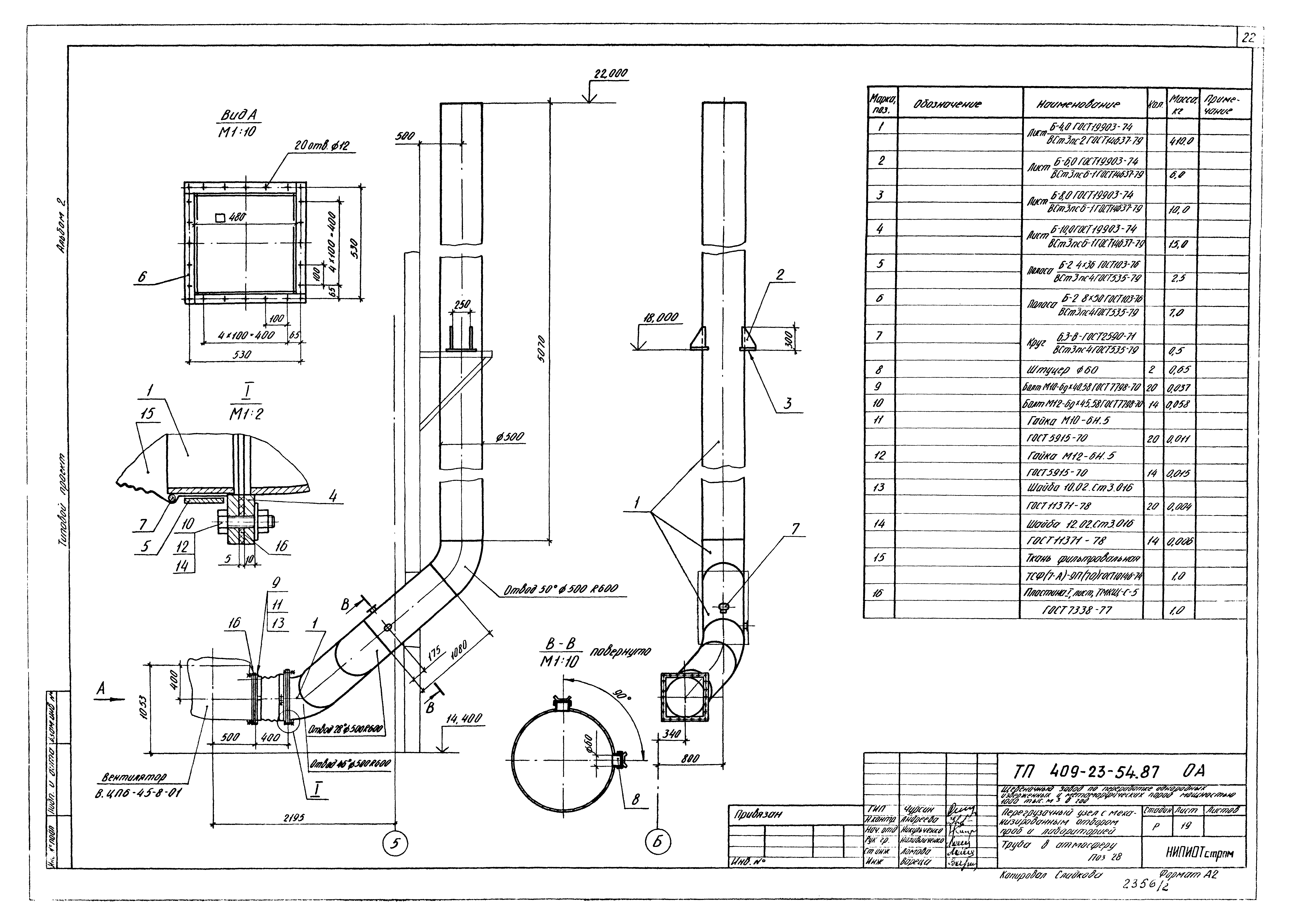
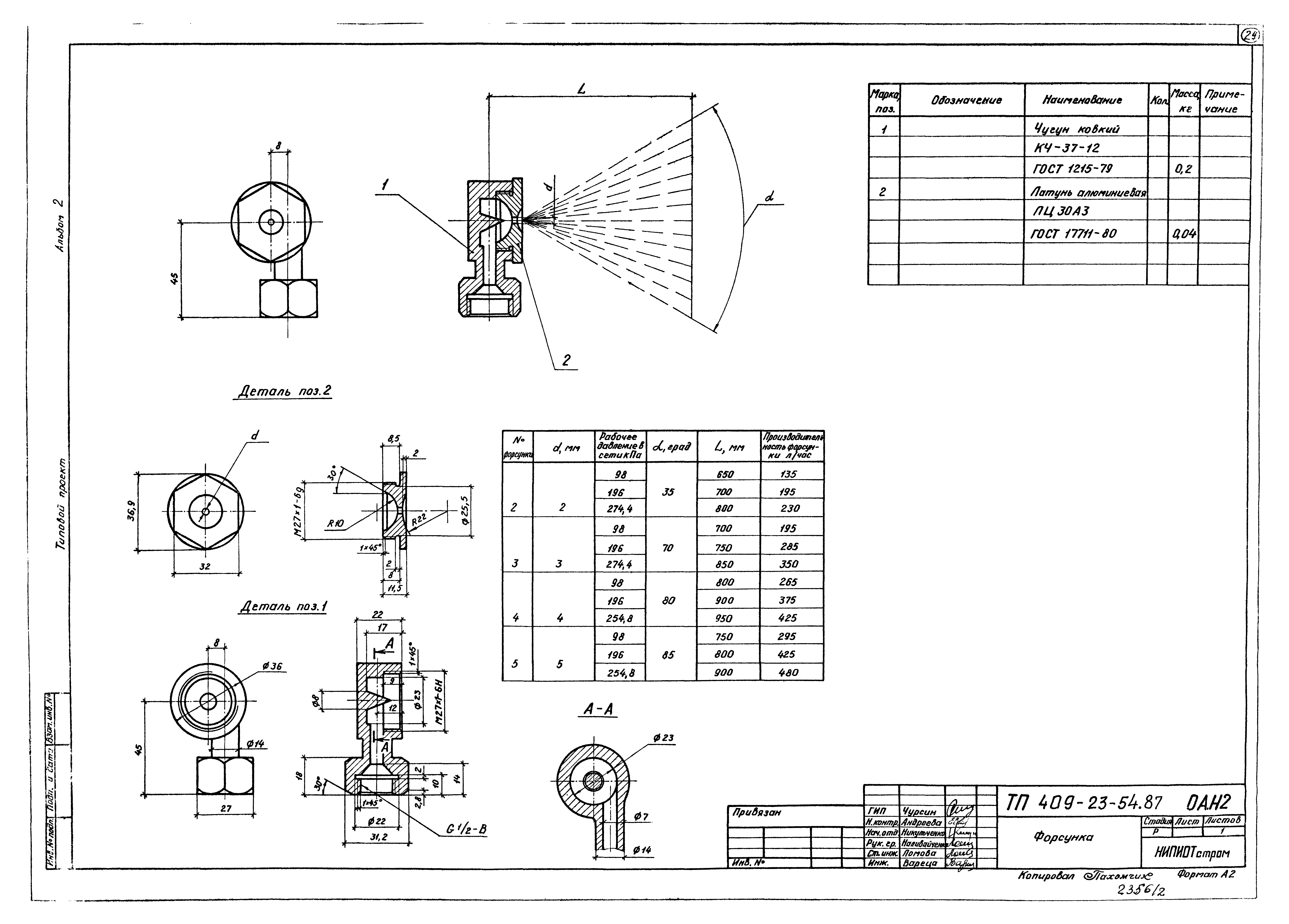
| Оглавление: | Содержание альбома Пояснительная записка Общие данные Характеристика работы систем аспирации и обеспыливания Спецификация к листам 4 - 22 Схема обеспыливающих и аспирационных систем План на отм. 4.800 План на отм. 9.600 План на отм. 14.400 Разрез 1-1 Разрез 2-2 Разрез 3-3. Сечения А-А, Б-Б Воздуховод от ленточного конвейера №13 к ПВМ-5СА. Поз. 20 Воздуховод к вентилятору. Поз. 21 Труба в атмосферу. Поз. 22 Воздуховод от ленточных конвейеров №11, 12 к ПВМ-10СА. Поз. 23 Воздуховод от ленточного конвейера №17 к ПВМ-10СА. Поз. 25 Труба в атмосферу. Поз. 24 Труба в атмосферу. Поз. 26 Воздуховод от ленточного конвейера №16 к ПВМ-10СА. Поз. 27 Труба в атмосферу. Поз. 28 Переходник от ПВМ-10СА к вентилятору. Поз. 29 Переходник от ПВМ-10СА к вентилятору. Поз. 30 Переходник от ПВМ-10СА к вентилятору. Поз. 31 Заслонка дроссельная Форсунка |
| Разработан: | Союзгипронеруд |
| Утверждён: | 19.07.1987 Минстройматериалов СССР (USSR Minstroymaterialov 28-15481) |
| Заменяет собой: |
|





























