Скачать Типовой проект 409-23-54.87 Альбом 4. Конструкции железобетонные. Конструкции металлическиеДата актуализации: 01.01.2021
|
| Обозначение: | Типовой проект 409-23-54.87 |
| Обозначение англ: | 409-23-54.87 |
| Статус: | не определен законодательством |
| Название рус.: | Альбом 4. Конструкции железобетонные. Конструкции металлические |
| Дата добавления в базу: | 01.09.2013 |
| Дата актуализации: | 01.01.2021 |
| Дата введения: | 22.10.1987 |
| Дата окончания срока действия: | 30.06.2003 |
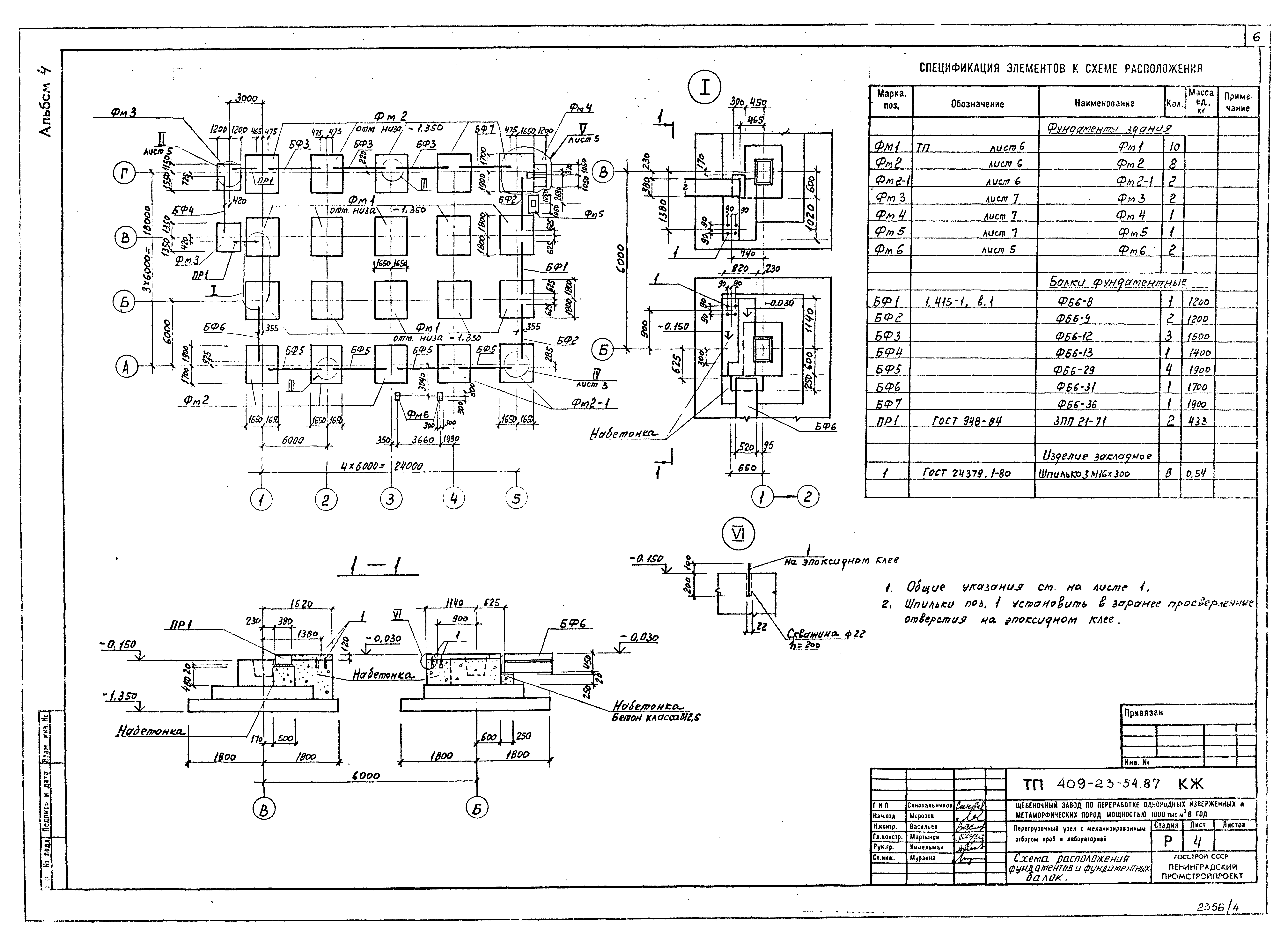
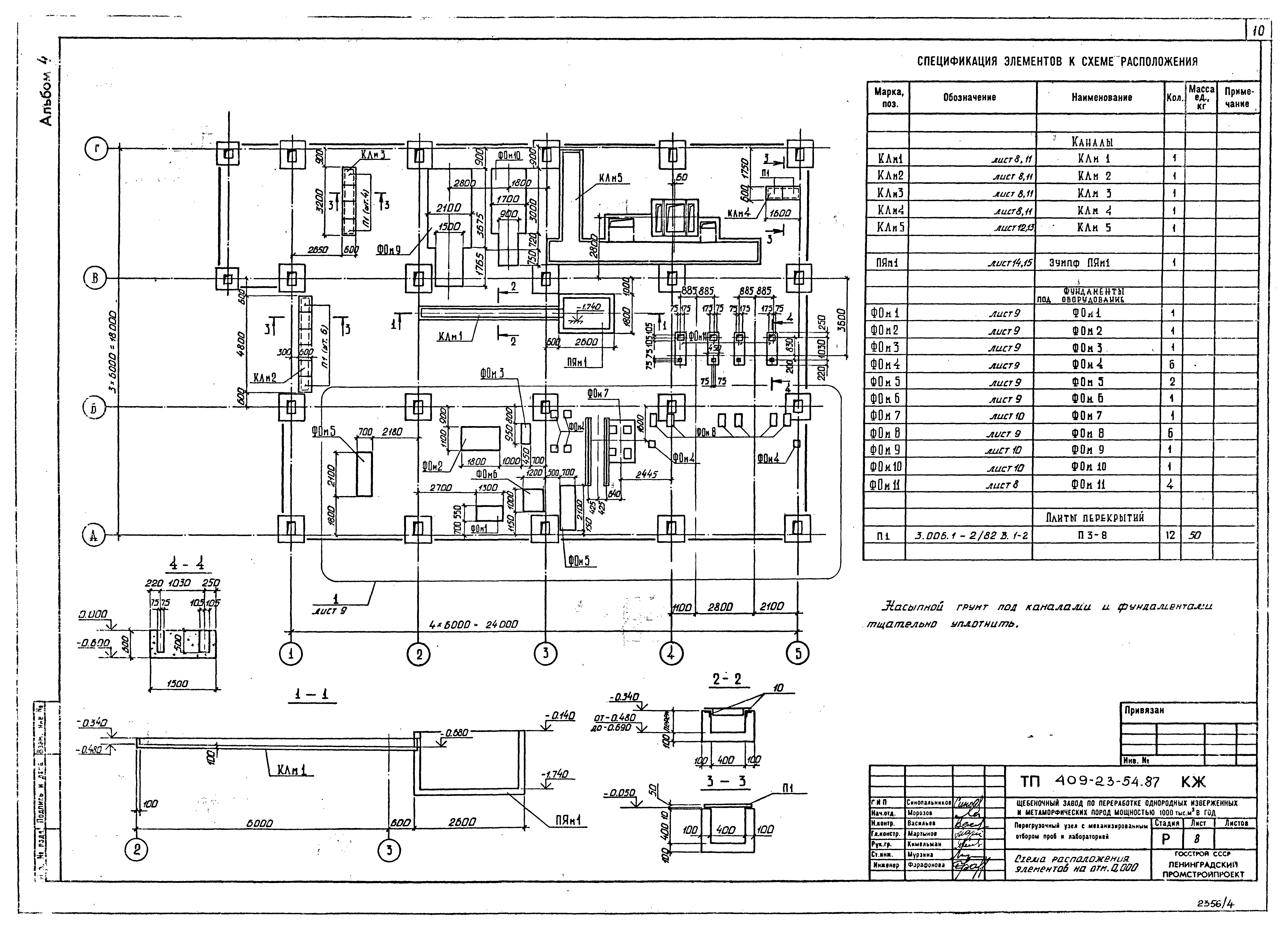
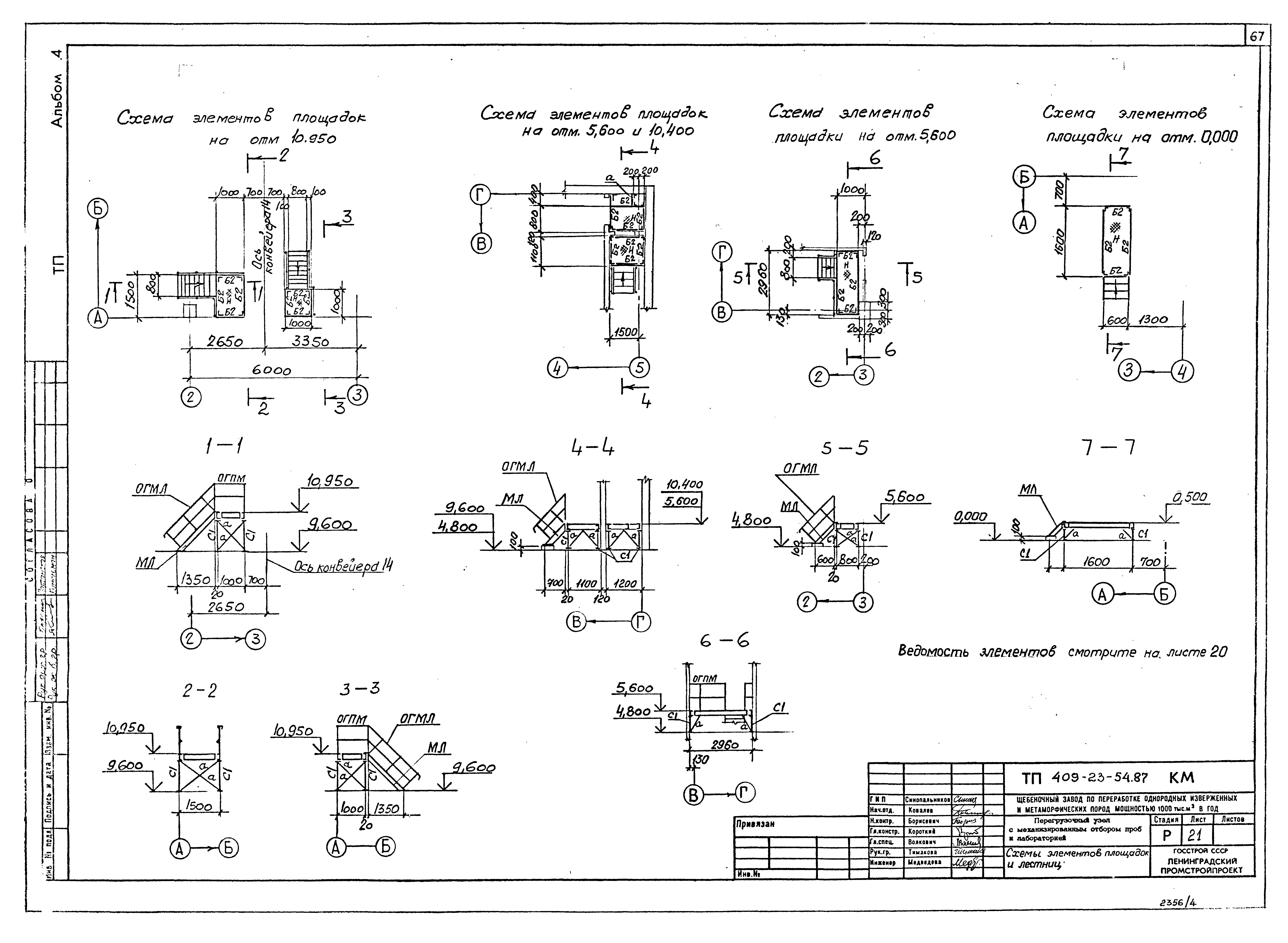
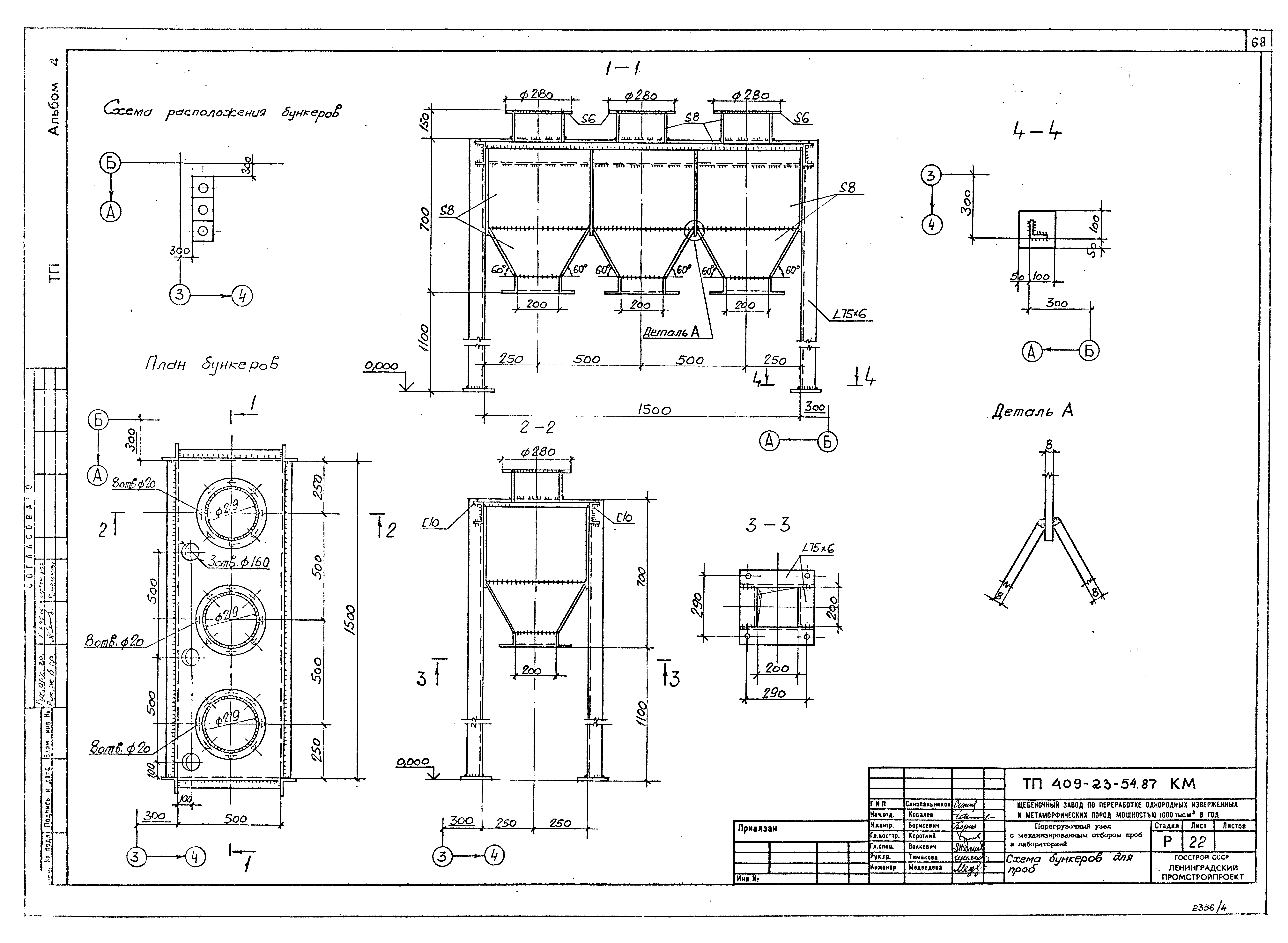
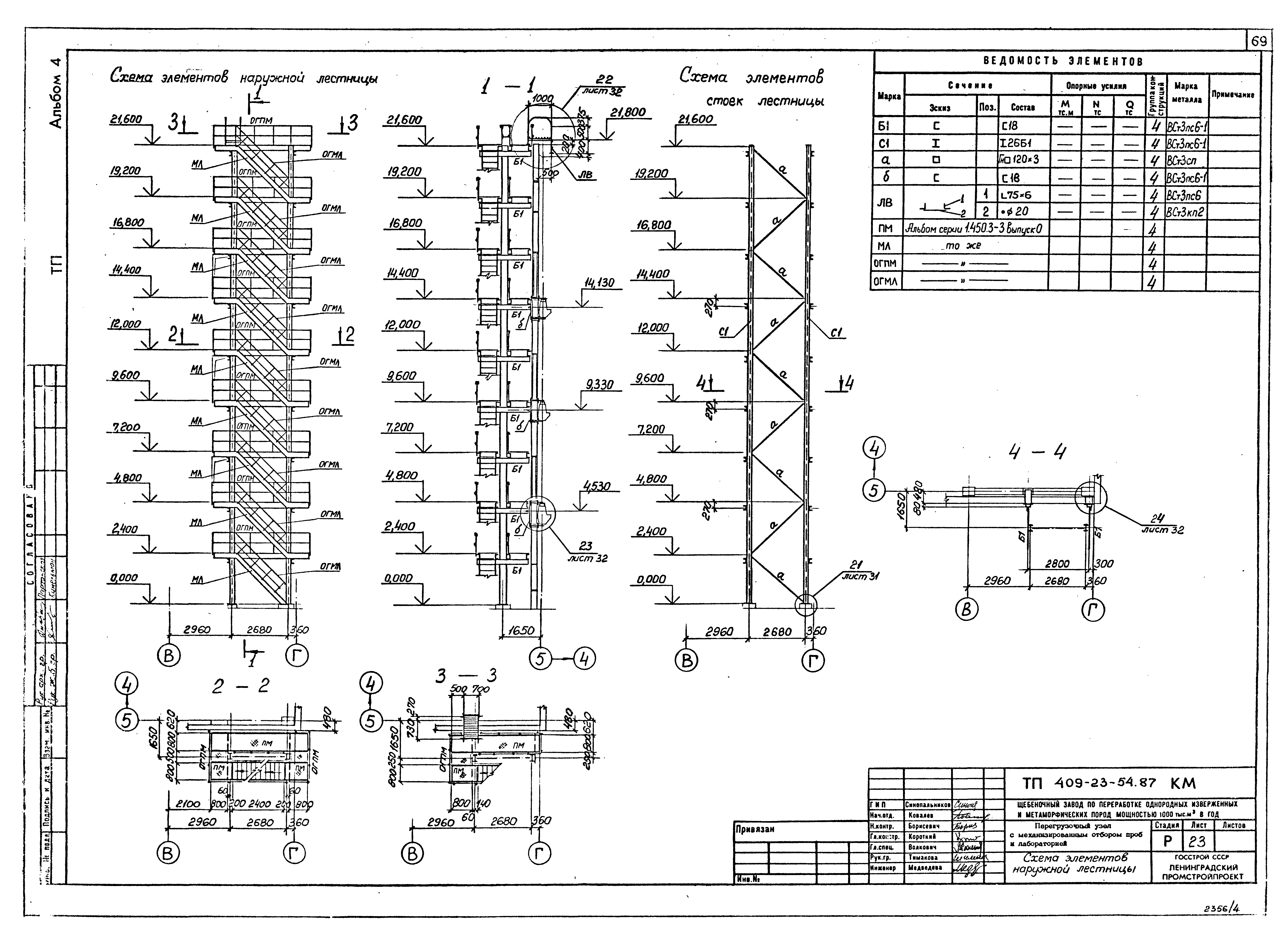
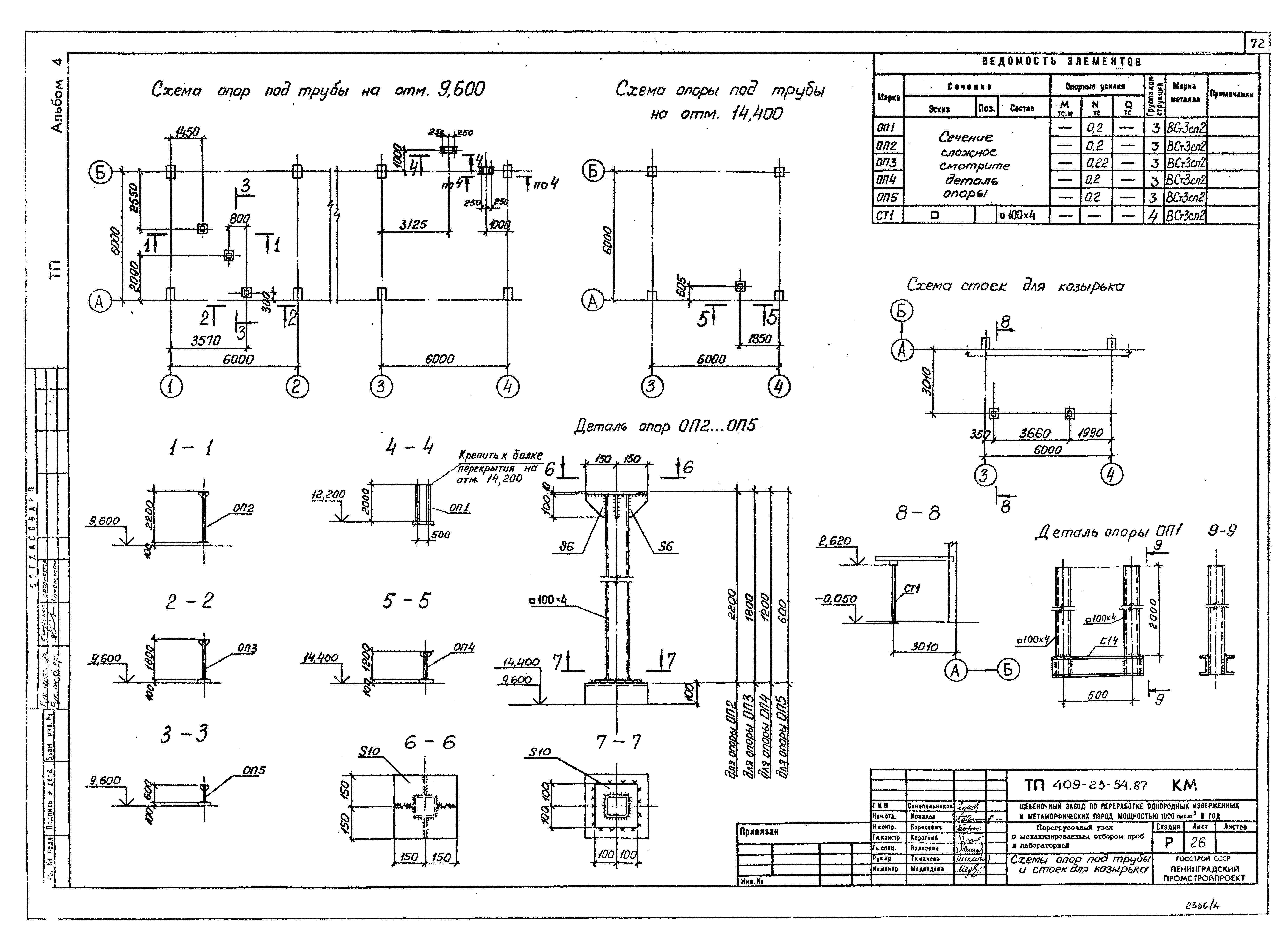
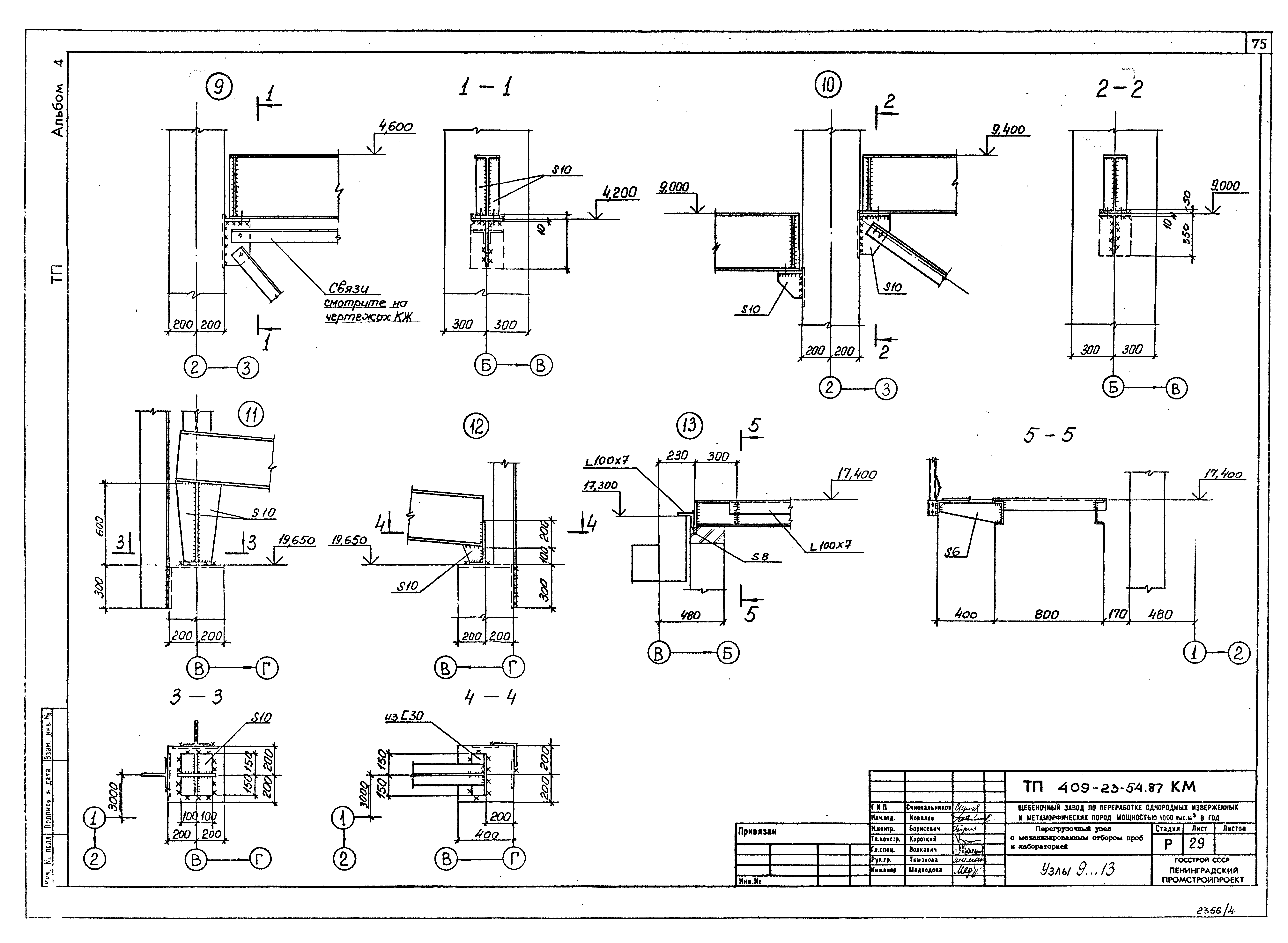
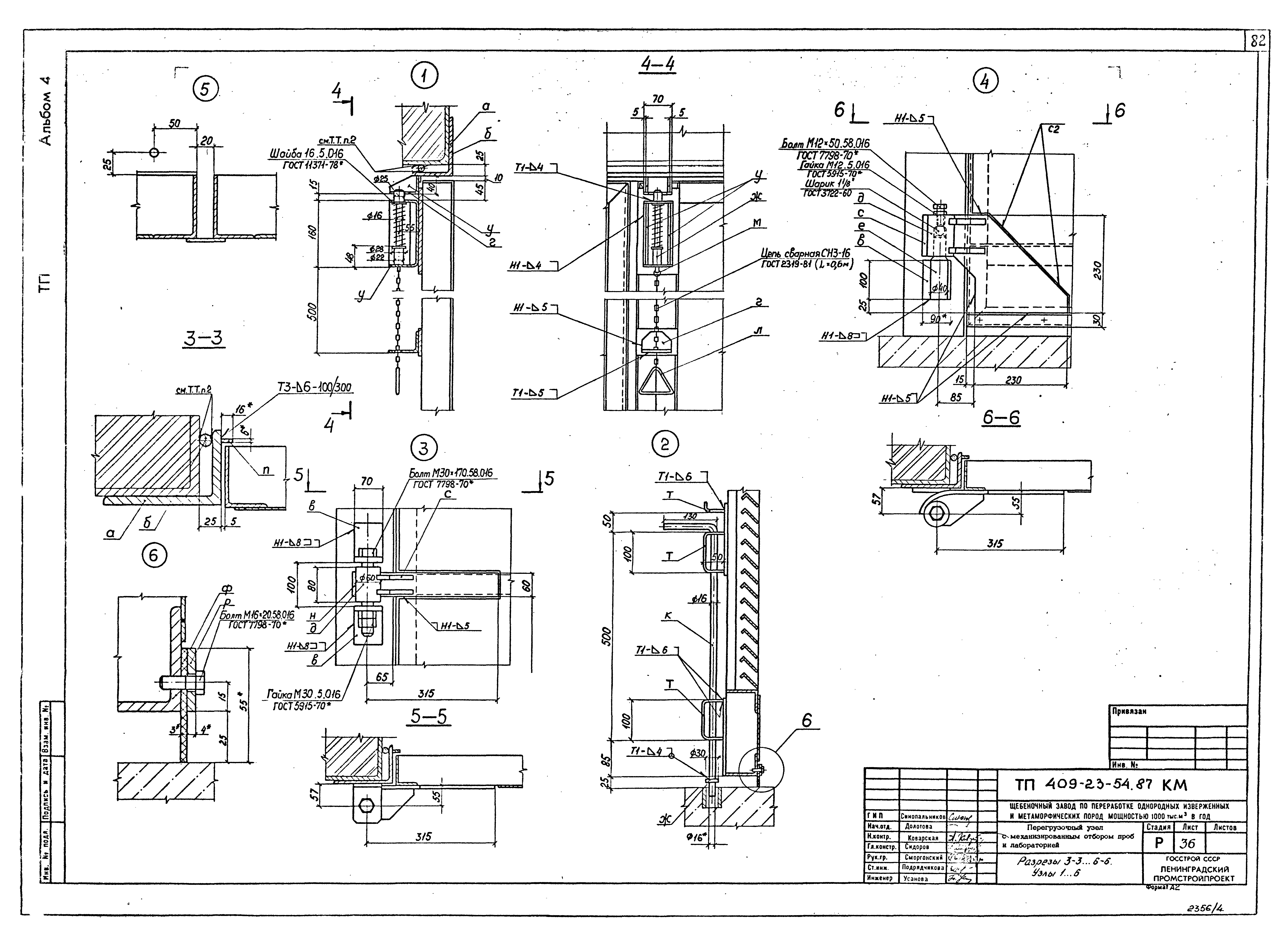
| Оглавление: | Железобетонные конструкции Общие данные Расчетные схемы Схема расположения фундаментов и фундаментных балок Схема расположения фундаментов. Узлы. Фундамент Фм6 Фундаменты Фм1, Фм2, Фм2-1 Фундаменты Фм3…Фм5 Схема расположения элементов на отм. 0.000 Схема расположения элементов на отм. 0.000. Узел I. Фундамент ФОм4 Схема расположения элементов на отм. 0.000. Фундаменты ФОм7, ФОм9, ФОм10 Схема расположения элементов на отм. 0.000. Спецификация Канал КЛм5 (трансформаторная) Зумпф ПЯм1 Схемы расположения колонн, связей, ригелей и балок покрытия Схемы расположения колонн, связей, ригелей и балок покрытия. Разрезы 1-1…6-6 Схемы расположения колонн, связей, ригелей и балок покрытия. Спецификация Схема расположения элементов лестницы по оси 1 между осями В - Г Плиты перекрытия Пм1…Пм4 Схема расположения монолитных участков и плит перекрытия на отм. 4.800. Сечения 1-1…3-3 Схема расположения монолитных участков и плит перекрытия на отм. 4.800. Узел 2. Сечения 1-1…5-5 Схема расположения монолитных участков и плит перекрытия на отм. 4.800. Узлы 1, 3. Сечения 4-4…9-9 Схема расположения монолитных участков и плит перекрытия на отм. 9.600 Схема расположения монолитных участков и плит перекрытия на отм. 9.600. Узел 1. Сечения 1-1…6-6 Схема расположения монолитных участков и плит перекрытия на отм. 9.600. Узлы 2, 4. Сечения 7-7…14-14 Схема расположения монолитных участков и плит перекрытия на отм. 14.400 Схема расположения монолитных участков и плит перекрытия на отм. 14.400. Узлы 1, 3. Сечения 1-1…5-5 Схема расположения монолитных участков и плит перекрытия на отм. 14.400. Узел 2. Сечения 6-6…11-11 Монолитные участки Ум1; Ум3 Монолитный участок Ум2 Монолитные участки Ум4 - Ум6 Монолитные участки Ум7 - Ум9 Монолитные участки Ум10 - Ум13 Монолитные участки Ум1 - Ум14. Ведомость расхода стали Схема расположения плит покрытия. Монолитный участок Ум14 Схема расположения опорных столбиков и балок на отм. 4.700 Схема расположения опорных столбиков и балок на отм. 9.500 Схемы расположения стеновых панелей по осям А, 5 Схема расположения стеновых панелей по оси Г. Узел 1 Схема расположения стеновых панелей по оси 1 Схемы расположения узлов крепления опорных консолей. Узлы II - VI Схемы расположения стеновых панелей. Спецификация Конструкции металлические Общие данные Техническая спецификация металла Ведомость металлоконструкций по видам профилей Схема путей подвесного крана на отм. 18.730 Схема ремонтной площадки на отм. 16.900 Схема балок на отм. 4.600, монорельсов и щитов Разрезы 1-1…5-5 к листу 10. Схема переносных ограждений на отм. 0.000 Схема балок на отм. 9.400 и монорельсов Разрезы 1-1…7-7 к листу 12 Схема балок на отм. 14.200 и монорельсов Разрезы 1-1…7-7 к листу 14 Схемы элементов фахверка и наружной лестницы Схема монорельсов и балок под натяжные тележные устройства Схемы ограждения натяжного устройства Схемы ограждений проемов и щитов Схемы элементов площадок для конвейеров и лестниц Схемы элементов площадок и лестниц Схемы бункеров для проб Схема элементов наружной лестницы Схемы элементов крепления труб Схемы щитов ПСУ на отм. 5.600 и 10.400 Схемы опор под трубы и стоек для козырька Узлы 1…5 Узлы 6…8 Узлы 9…13 Узлы 14…18 Узлы 19…21, 25, 26 Узлы 22…24 Узлы 27…29 Ворота трансформаторные для проема 1,7х2,5 м. Техническая спецификация металла Схема ворот трансформаторных для проема 1,7х2,5 м. Разрезы 1-1, 2-2, 7-7 Разрезы 3-3…6-6. Узлы 1…6 Схема створки левой. Разрезы 8-8…12-12. Узлы 7…12 Схема створки правой. Разрезы 13-13…17-17. Узлы 13, 14 |
| Разработан: | Союзгипронеруд |
| Утверждён: | 19.07.1987 Минстройматериалов СССР (USSR Minstroymaterialov 28-15481) |
| Заменяет собой: |
|


















































































