Скачать Типовой проект 707-2-19с.85 Альбом V. Тепловая изоляция. Проект производства работДата актуализации: 01.01.2021
|
| Обозначение: | Типовой проект 707-2-19с.85 |
| Обозначение англ: | 707-2-19с.85 |
| Статус: | заменен |
| Название рус.: | Альбом V. Тепловая изоляция. Проект производства работ |
| Дата добавления в базу: | 01.09.2013 |
| Дата актуализации: | 01.01.2021 |
| Дата введения: | 17.05.1984 |
| Дата окончания срока действия: | 16.12.1993 |
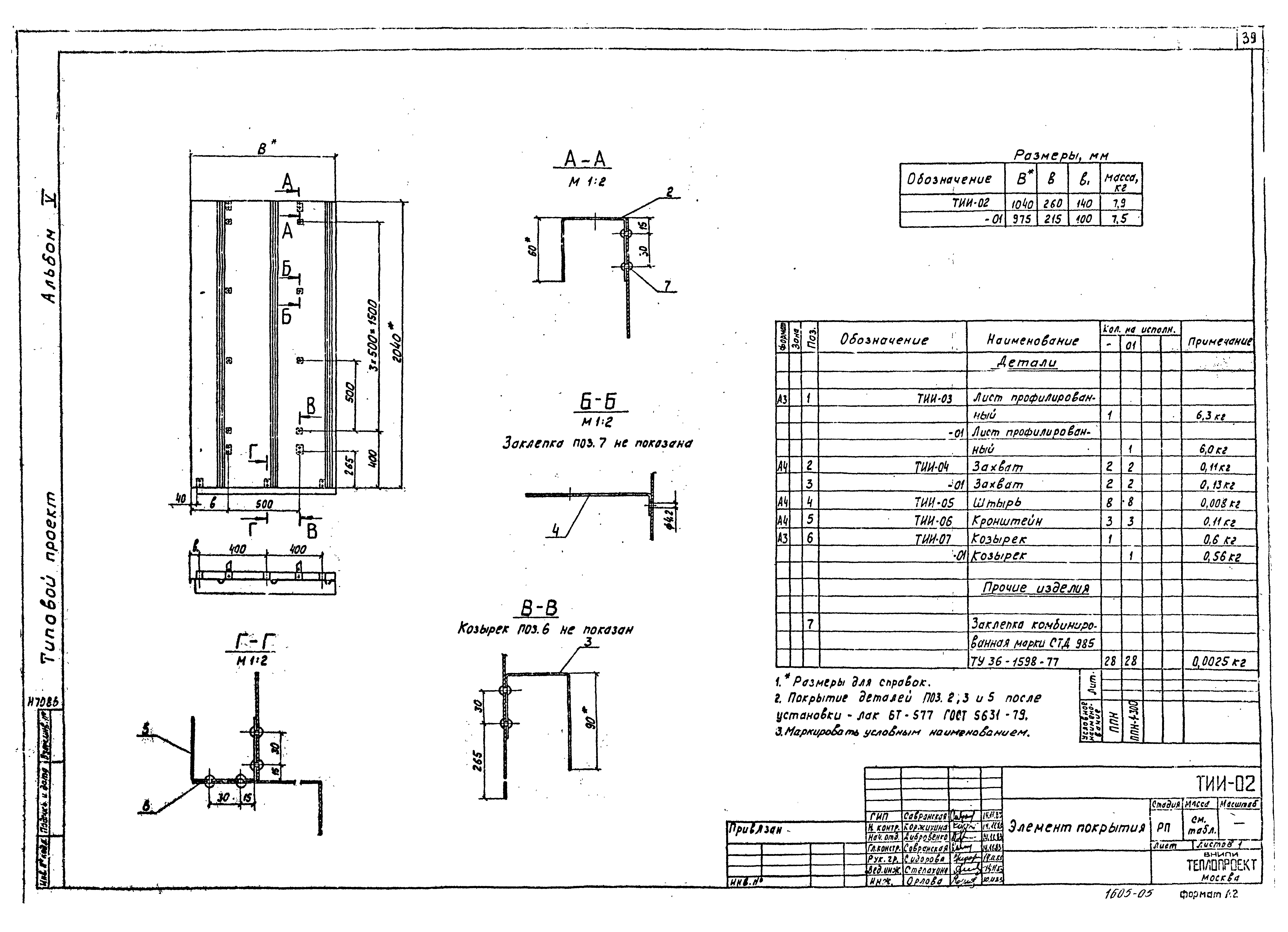
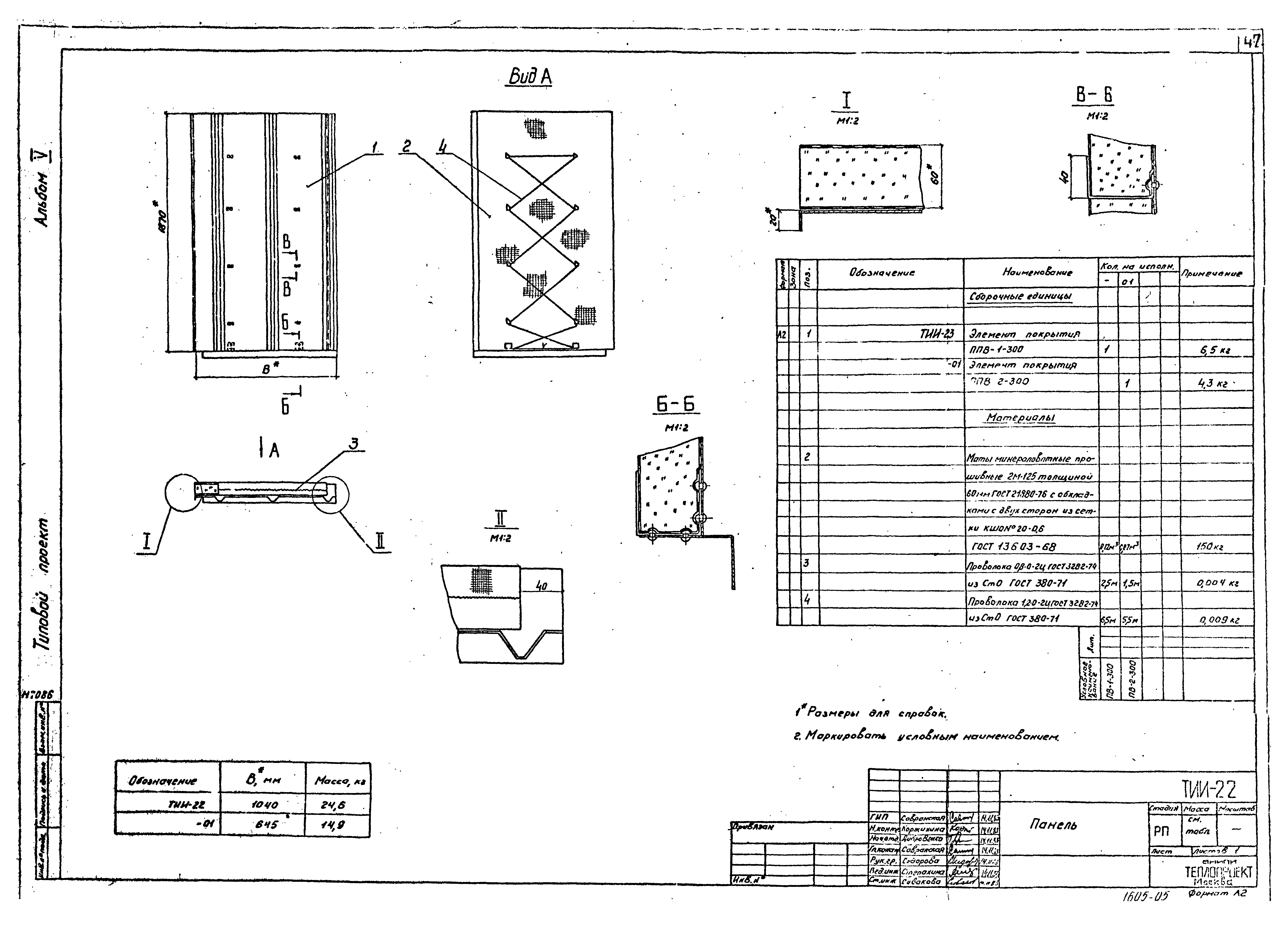
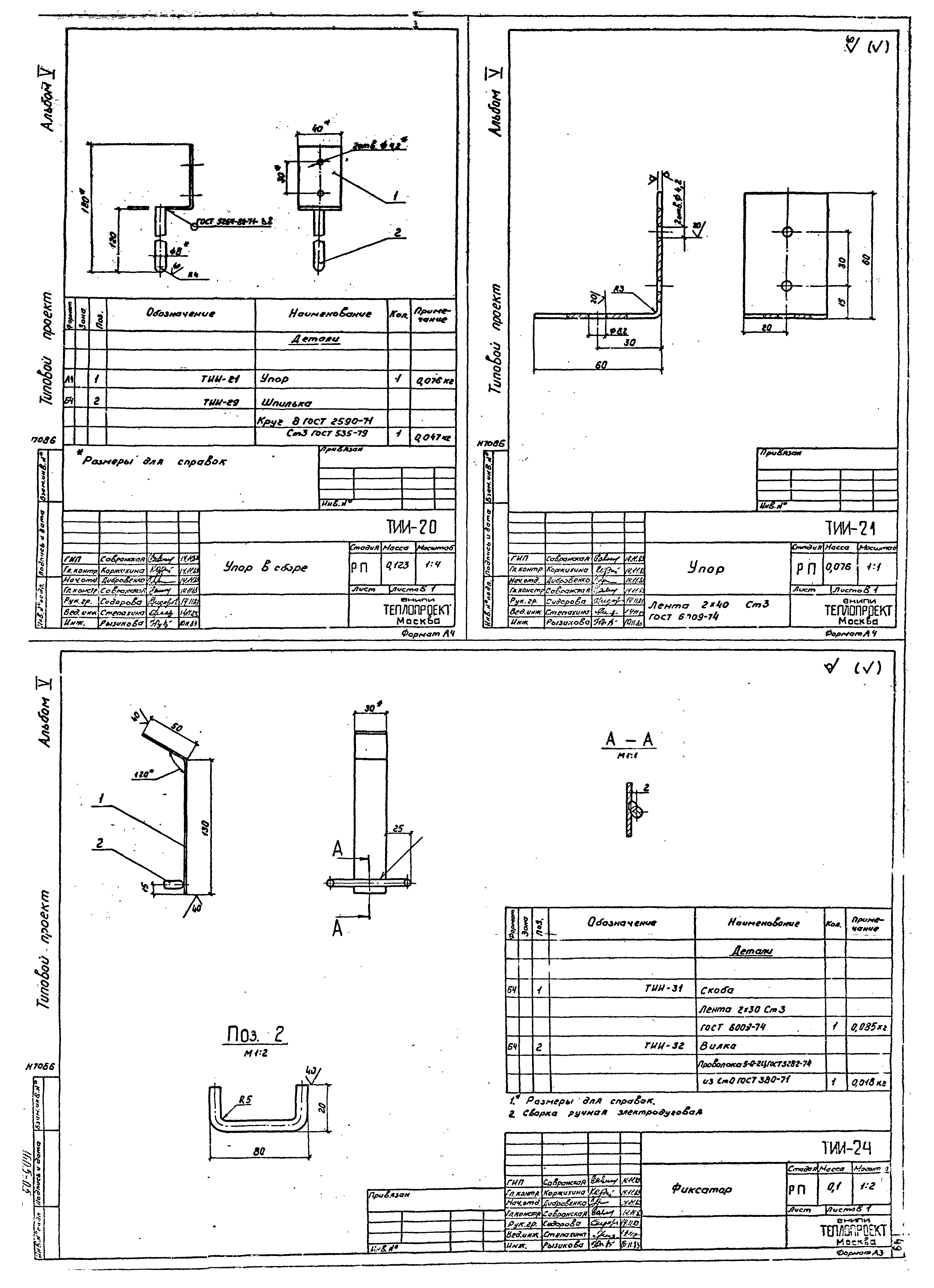
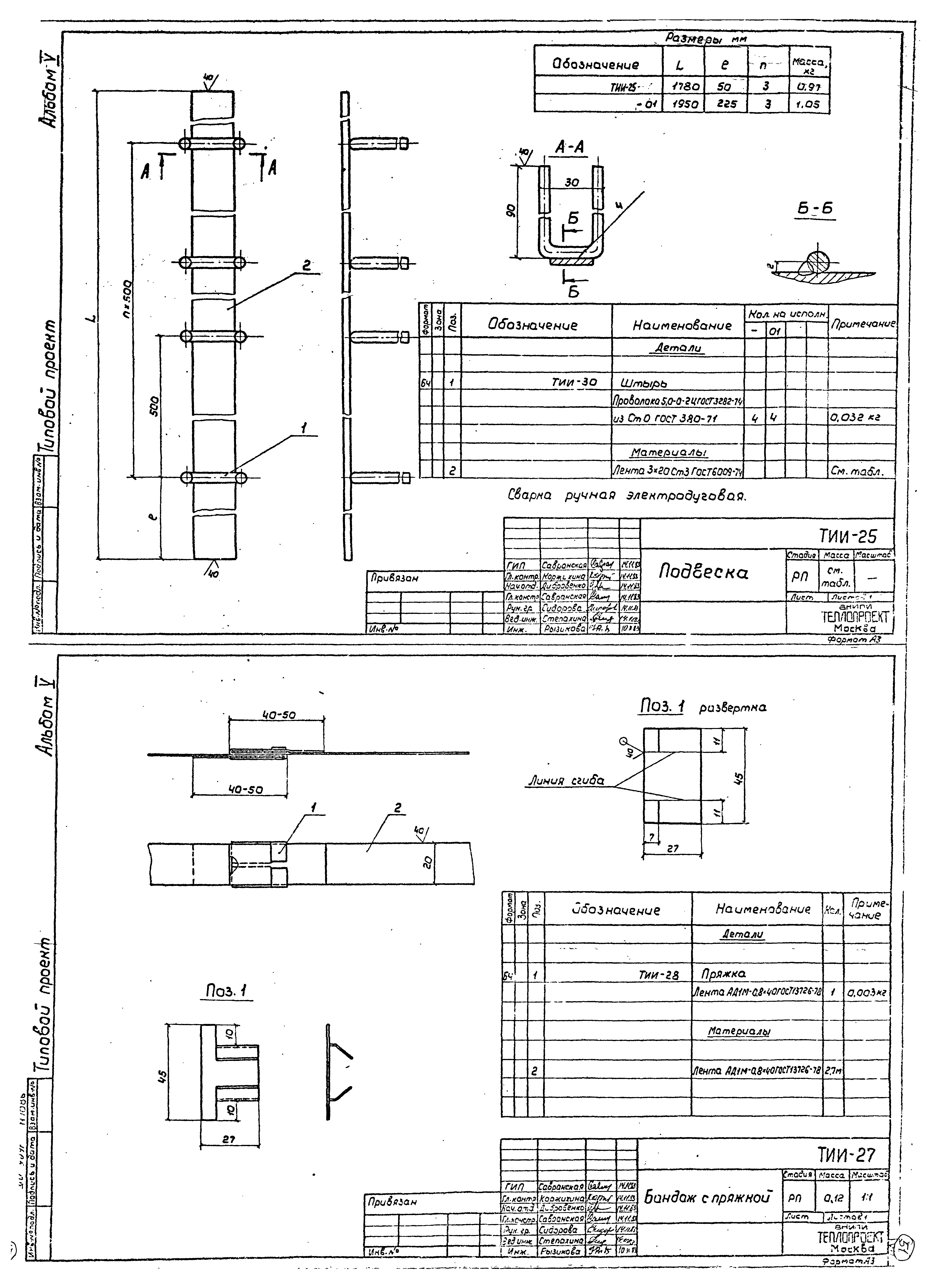
| Оглавление: | Содержание Чертежи основного комплекта марки ТИ Общие данные Изоляция резервуара панелями. Общий вид. Разрез А-А Изоляция резервуара панелями. Разрезы Б-Б - Г-Г. Сечения Д-Д - З-З Размещение приварных деталей для крепления панелей. Развертка стенки резервуара. Разрезы И-И, Л-Л. Вид К-К. Узлы I, II Раскладка панелей на стенке резервуара. Развертка Изоляция резервуара матами минераловатными. Общий вид Изоляция резервуара матами минераловатными. Разрез В-В. Сечения А-А, Б-Б, Г-Г - З-З. Поз. 8 Размещение приварных деталей для крепления изоляции. Развертка стенки резервуара. Разрез М-М. Вид Н-Н. Узел I Размещение приварных деталей для крепления изоляции. Фрагмент 1 Размещение приварных деталей для крепления изоляции. Фрагмент 2. Разрезы К-К, Л-Л. Сечения И-И, П-П Чертежи основного комплекта марки ППР Общие данные Схема организации работ по монтажу изоляции. I вариант. Разрез 1-1 Раскладка панелей по стенке резервуара и порядок их монтажа Схема пооперационной установки одной панели Узел А. Вид 2-2 График производства работ по I варианту Калькуляция трудовых затрат по I варианту Схема организации работ по монтажу изоляции. II вариант. Разрез 3-3 Схема установки стоячих лесов. Развертка наружного ряда лесов. План Развертка внутреннего ряда лесов. Сечение 4-4 - 6-6 Устройство лестничной клетки. Устройство щитового настила. Вид 7-7. Сечение 8-8 - 11-11 Узлы Б, В. Сечение 12-12 График производства работ по II варианту Калькуляция трудовых затрат по II варианту Чертежи основного комплекта марки ТИИ Панель Элемент покрытия Лист профилированный Захват Штырь Кронштейн Козырек Панель ПН-2-300 Элемент покрытия ППН-2-300 Панель ПН-3-300 Элемент покрытия ППН-3-300 Панель Элемент покрытия ППС Упор в сборе Упор Панель Элемент покрытия Фиксатор Подвеска Элемент бандажа Бандаж с пряжкой |
| Разработан: | ВНИПИтеплопроект Минмонтажспецстроя СССР |
| Утверждён: | 17.05.1984 Министерство по производству минеральных удобрений СССР (USSR Ministry of Mineral Fertilizer Production 25-89) |
| Чем заменён: |

















































