Скачать Типовой проект 707-2-20с.85 Альбом I. Технологическая часть. Системы объемоуказания. Электротехнические устройстваДата актуализации: 01.01.2021
|
| Обозначение: | Типовой проект 707-2-20с.85 |
| Обозначение англ: | 707-2-20с.85 |
| Статус: | заменен |
| Название рус.: | Альбом I. Технологическая часть. Системы объемоуказания. Электротехнические устройства |
| Дата добавления в базу: | 01.09.2013 |
| Дата актуализации: | 01.01.2021 |
| Дата введения: | 17.05.1984 |
| Дата окончания срока действия: | 16.12.1993 |
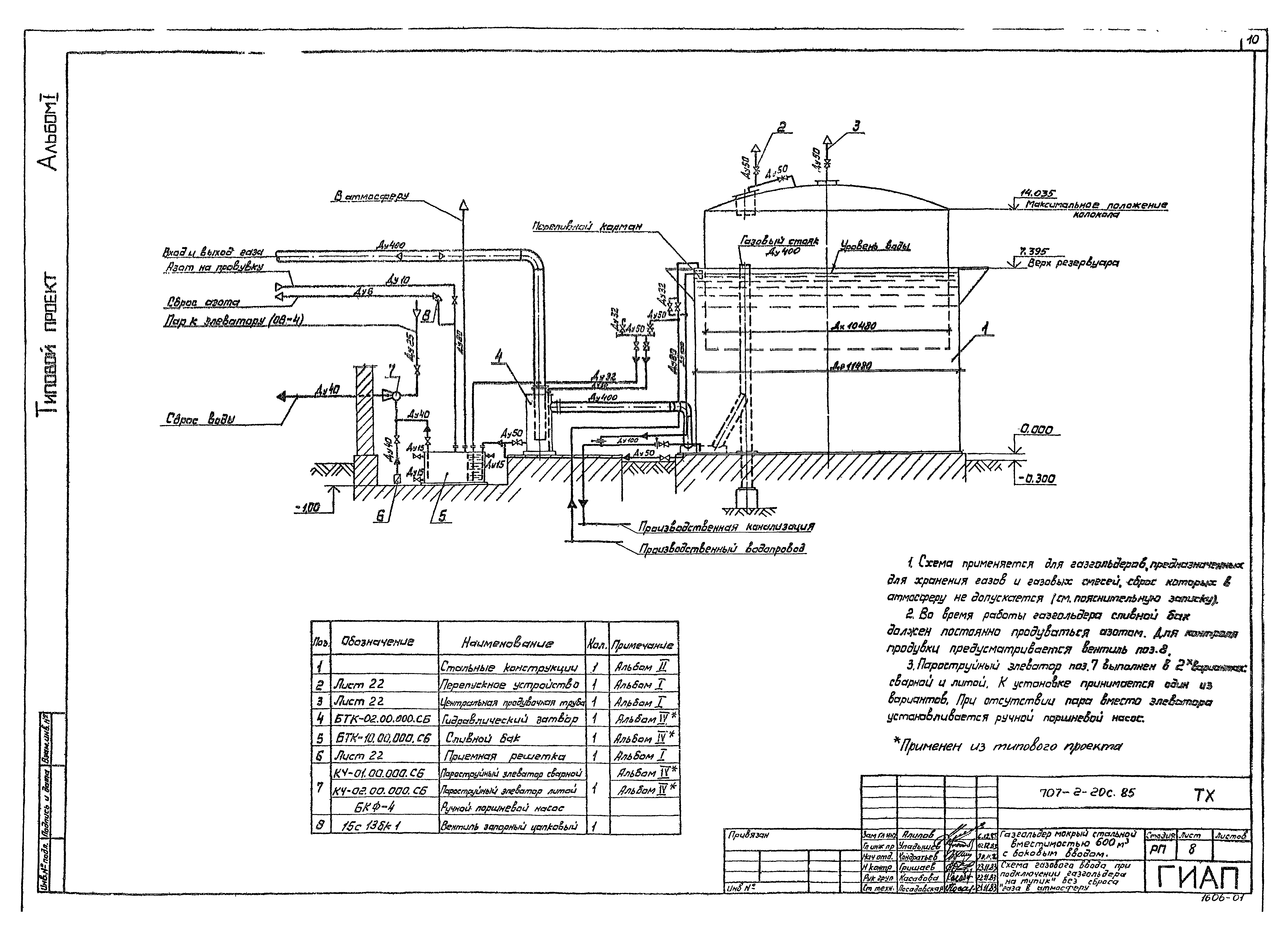
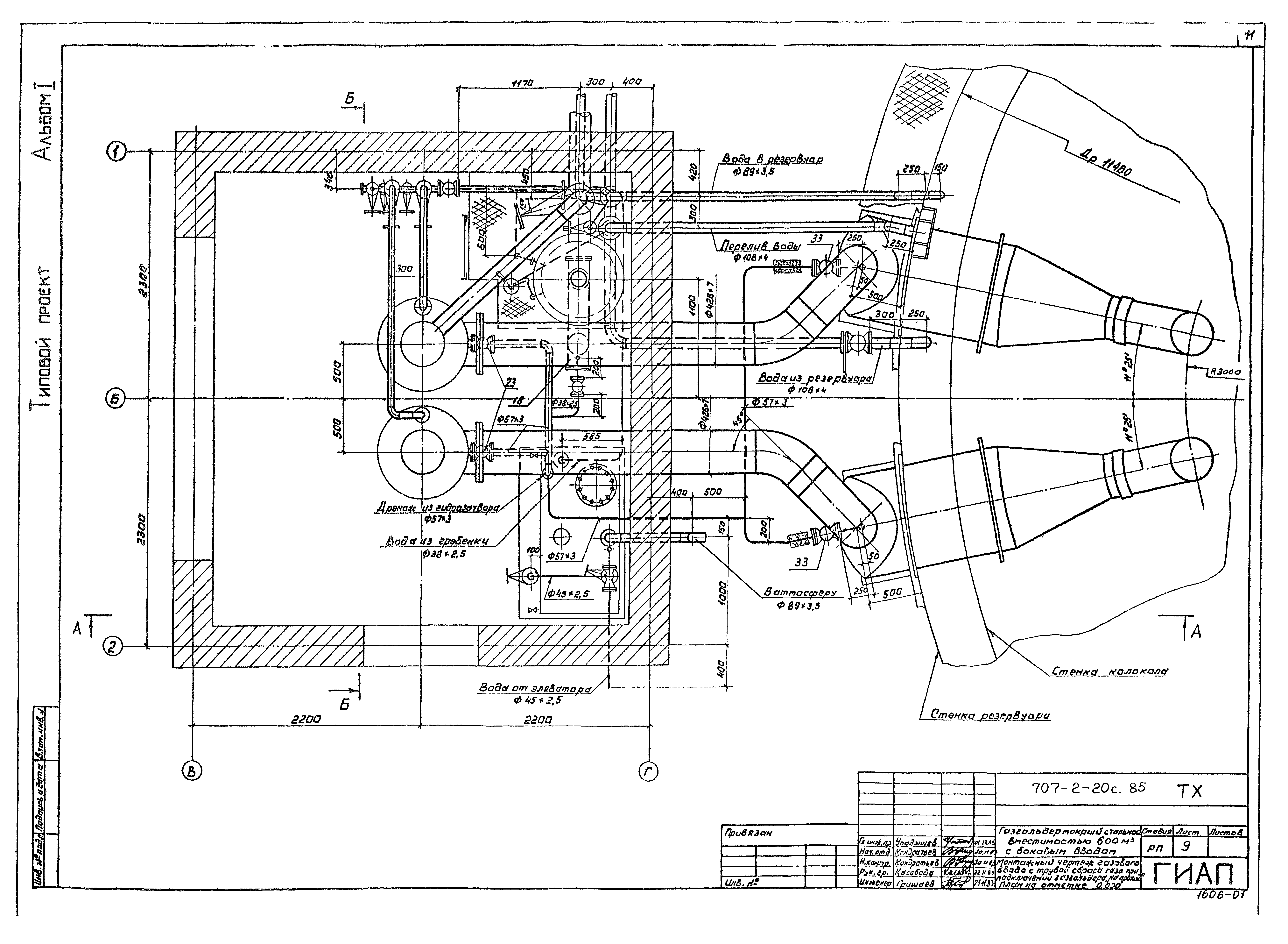
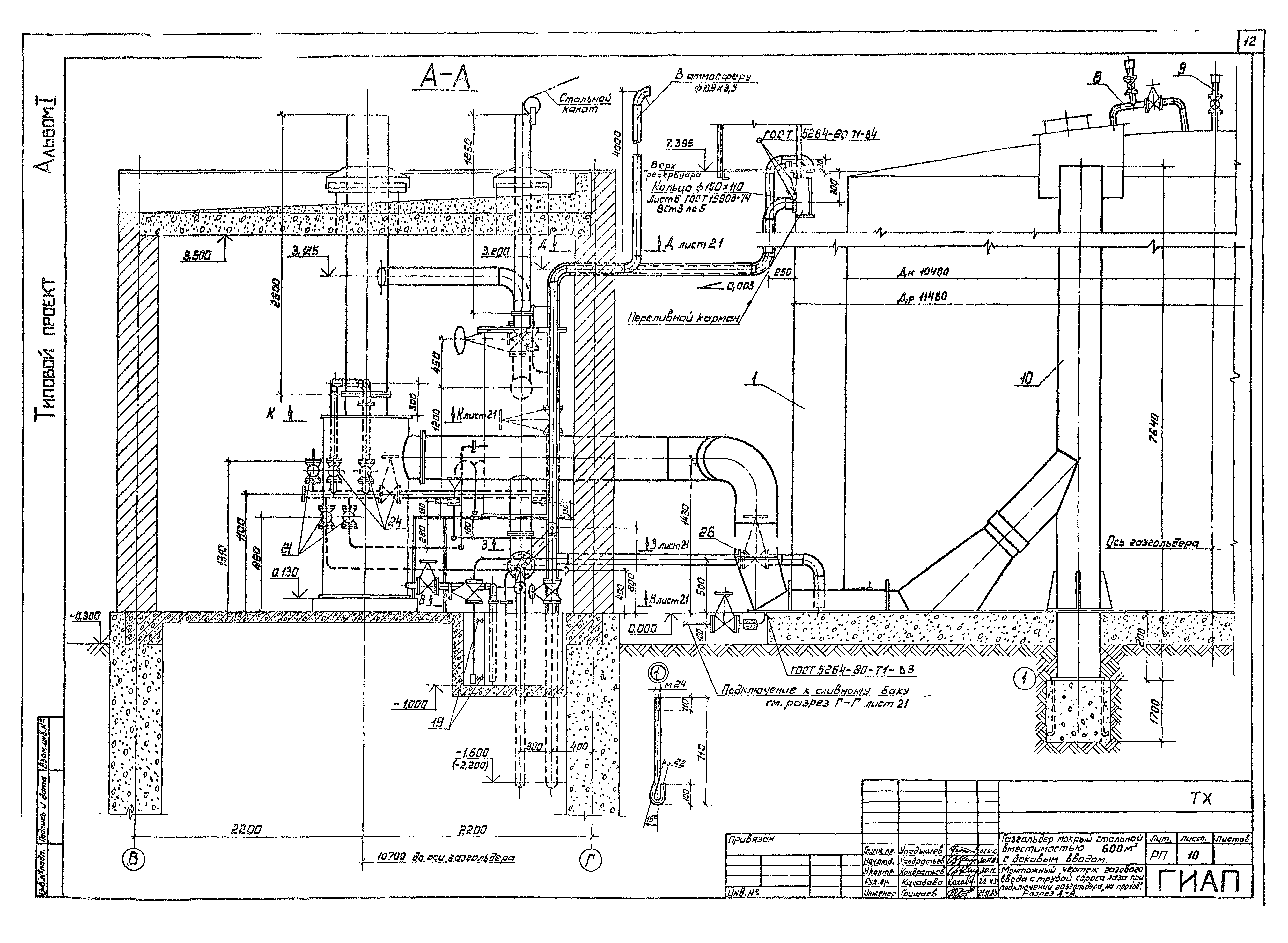
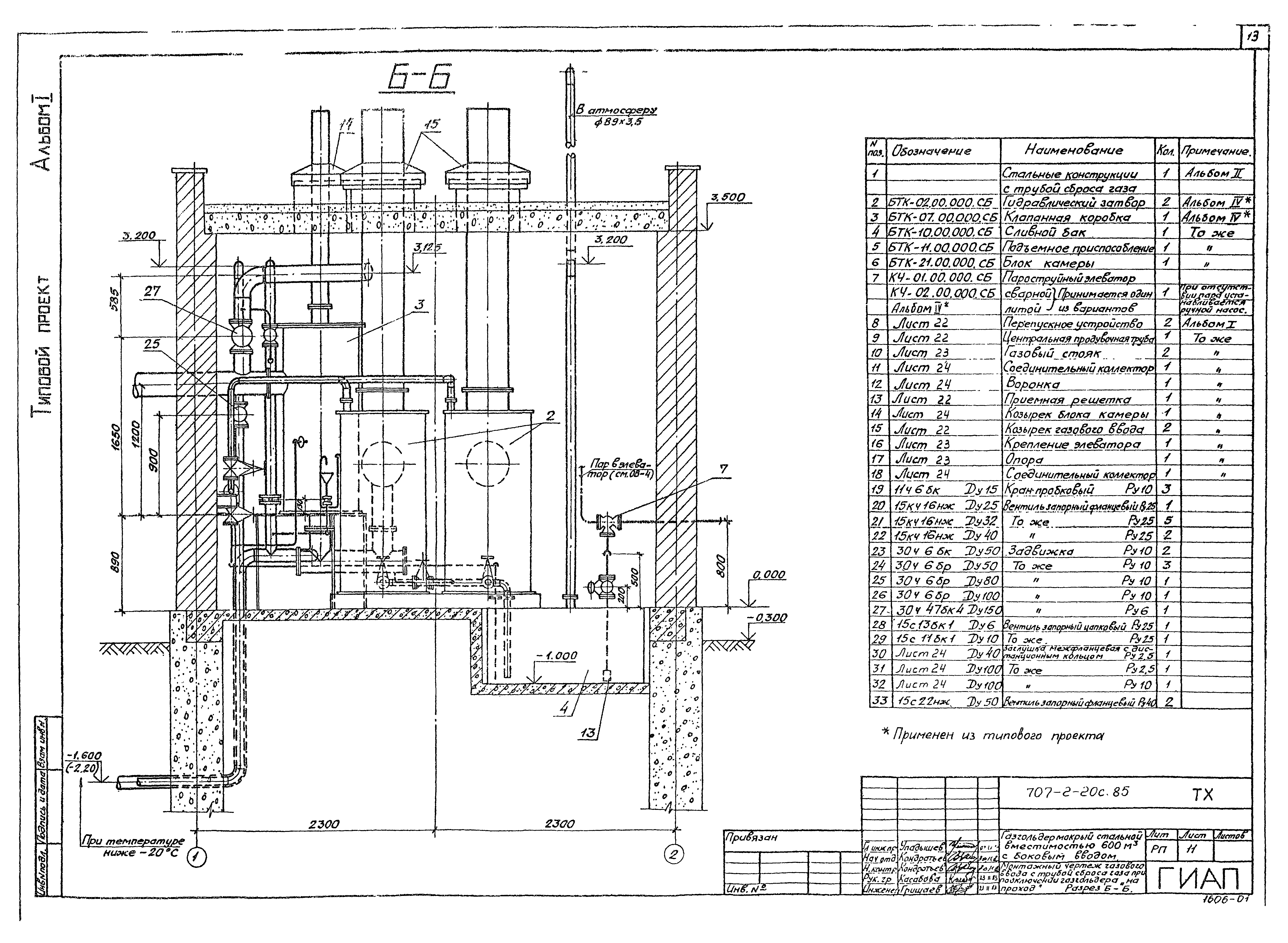
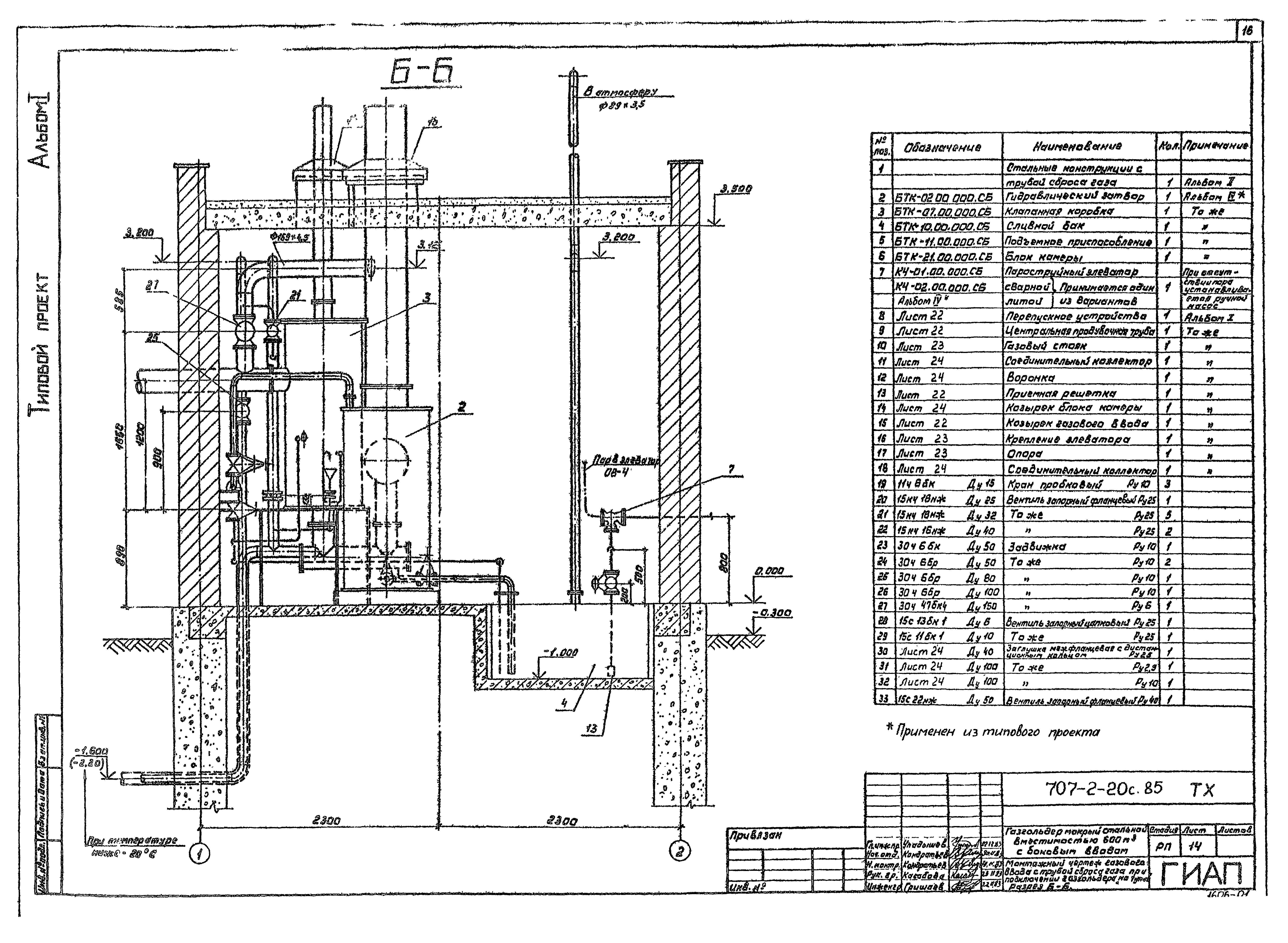
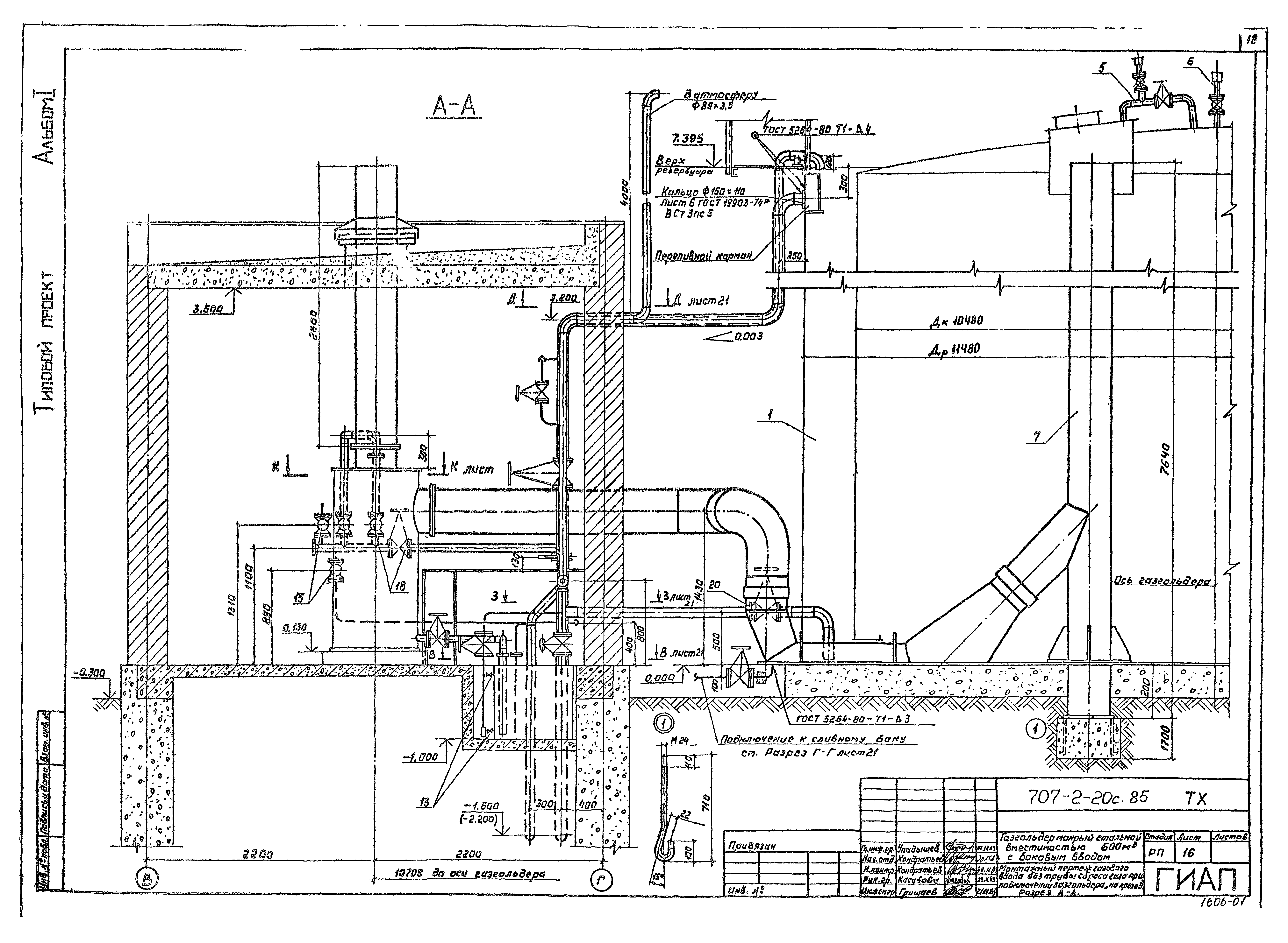
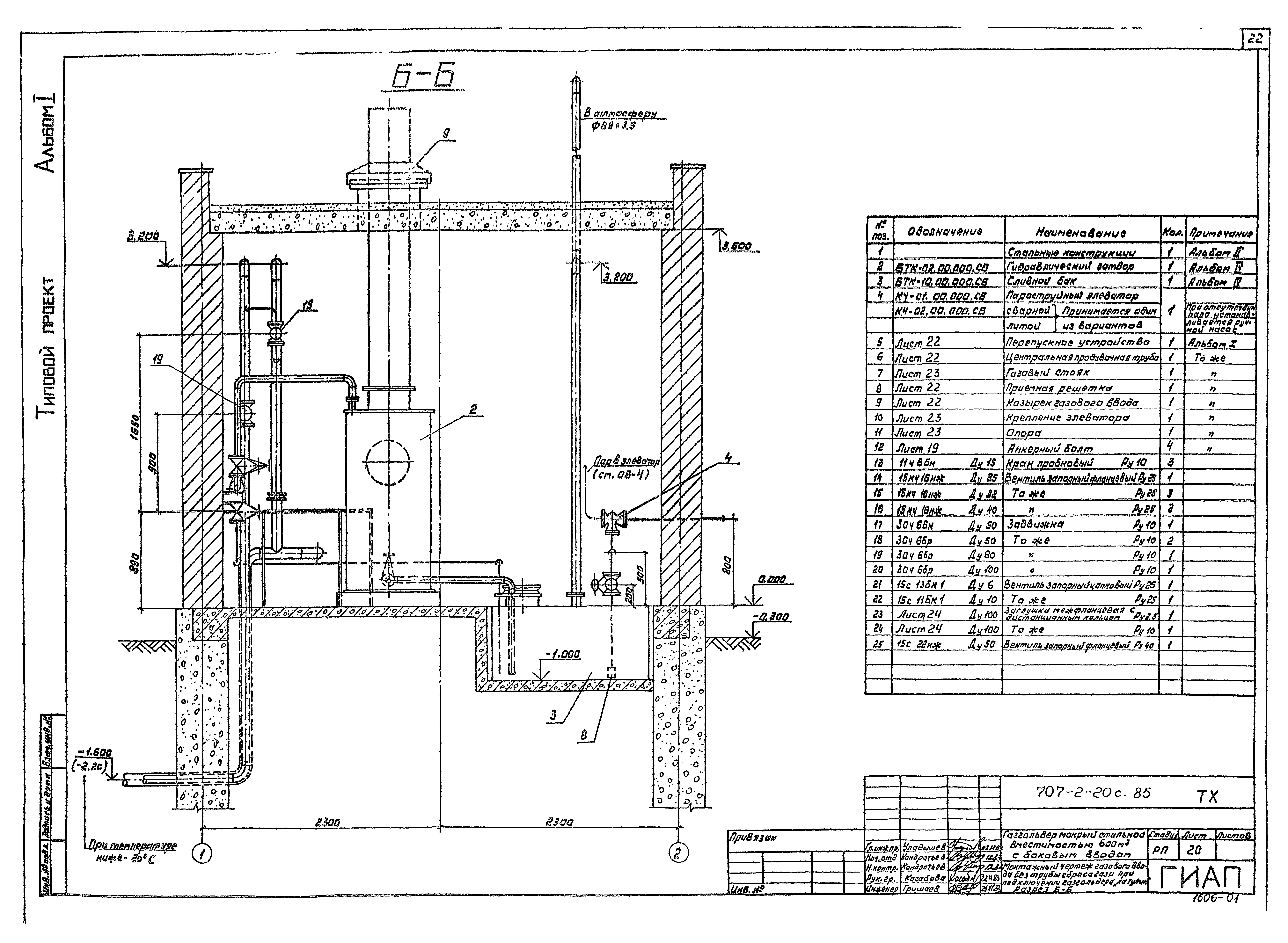
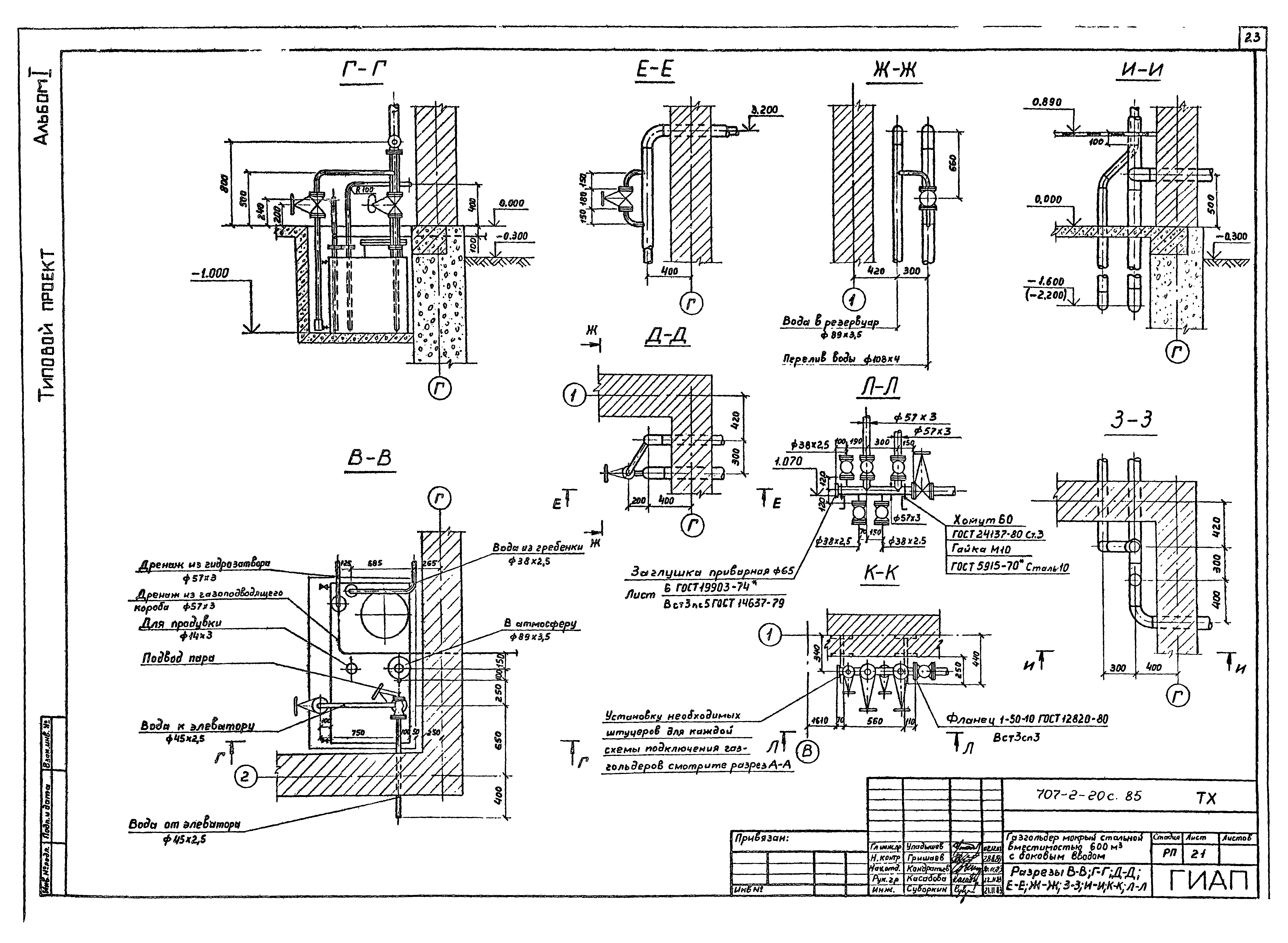
| Оглавление: | Технологическая часть (ТХ) Общие данные Схема газового ввода при подключении газгольдера "на проход" с трубой сброса газа Схема газового ввода при подключении газгольдера "на тупик" с трубой сброса газа Схема газового ввода при подключении газгольдера "на проход" без сброса газа в атмосферу Схема газового ввода при подключении газгольдера "на тупик" без сброса газа в атмосферу Монтажный чертеж газового ввода с трубой сброса газа при подключении газгольдера "на проход". План на отметке 0.000 Монтажный чертеж газового ввода с трубой сброса газа при подключении газгольдера "на проход". Разрез А-А Монтажный чертеж газового ввода с трубой сброса газа при подключении газгольдера "на проход". Разрез Б-Б Монтажный чертеж газового ввода с трубой сброса газа при подключении газгольдера "на тупик". План на отметке 0.000 Монтажный чертеж газового ввода с трубой сброса газа при подключении газгольдера "на тупик". Разрез А-А Монтажный чертеж газового ввода с трубой сброса газа при подключении газгольдера "на тупик". Разрез Б-Б Монтажный чертеж газового ввода без трубы сброса газа при подключении газгольдера "на проход". План на отметке 0.000 Монтажный чертеж газового ввода без трубы сброса газа при подключении газгольдера "на проход". Разрез А-А Монтажный чертеж газового ввода без трубы сброса газа при подключении газгольдера "на проход". Разрез Б-Б Монтажный чертеж газового ввода без трубы сброса газа при подключении газгольдера "на тупик". План на отметке 0.000 Монтажный чертеж газового ввода без трубы сброса газа при подключении газгольдера "на тупик". Разрез А-А Монтажный чертеж газового ввода без трубы сброса газа при подключении газгольдера "на тупик". Разрез Б-Б Разрезы В-В, Г-Г, Д-Д, Е-Е, Ж-Ж, З-З, И-И, К-К, Л-Л Узлы Узлы и детали Детали Системы объемоуказания Общие данные Принципиальные схемы непрерывного объемоуказания и ступенчатой сигнализации Принципиальные схемы подключения сельсинов-датчиков и сельсинов-приемников Диаграмма работы контактов командоаппарата Монтажная схема сельсина-датчика и командоаппарата Монтажная схема щитка сигнализации для нормальных помещений Схема троссового привода датчиков ступенчатой сигнализации блокировки и непрерывного объемоуказания Электротехнические устройства (ЭМ) Общие данные Электрооборудование камеры газового ввода для газгольдера со взрывоопасным газом Электрооборудование камеры газового ввода и будки датчиков для газгольдера со взрывоопасным газом Электрооборудование камеры газового ввода для газгольдера с невзрывоопасным газом Электрооборудование камеры газового ввода и будки датчиков для газгольдера с невзрывоопасным газом Молниезащита и защита от статического электричества газгольдера с трубой сброса газа Молниезащита и защита от статического электричества газгольдера без трубы сброса газа Ведомость объемов электромонтажных работ для газгольдера со взрывоопасным газом Ведомость объемов электромонтажных работ для газгольдера с невзрывоопасным газом |
| Разработан: | ГИАП |
| Утверждён: | 17.05.1984 Министерство по производству минеральных удобрений СССР (USSR Ministry of Mineral Fertilizer Production 25-89) |
| Чем заменён: |














































