Скачать Типовой проект 707-2-20с.85 Альбом IV. Архитектурно-строительные решения. Конструкции железобетонные. Отопление и вентиляцияДата актуализации: 01.01.2021
|
| Обозначение: | Типовой проект 707-2-20с.85 |
| Обозначение англ: | 707-2-20с.85 |
| Статус: | заменен |
| Название рус.: | Альбом IV. Архитектурно-строительные решения. Конструкции железобетонные. Отопление и вентиляция |
| Дата добавления в базу: | 01.09.2013 |
| Дата актуализации: | 01.01.2021 |
| Дата введения: | 17.05.1984 |
| Дата окончания срока действия: | 16.12.1993 |
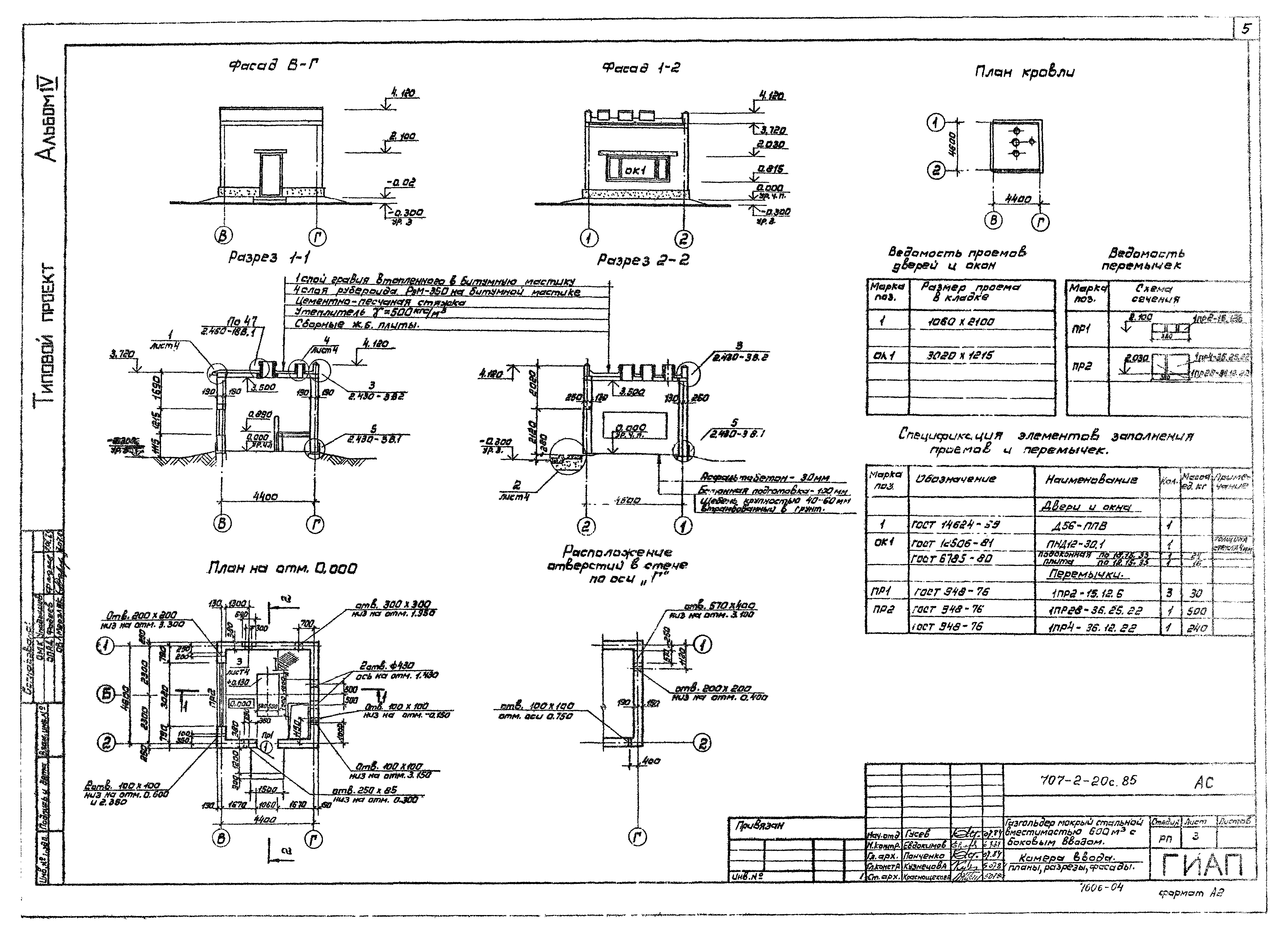
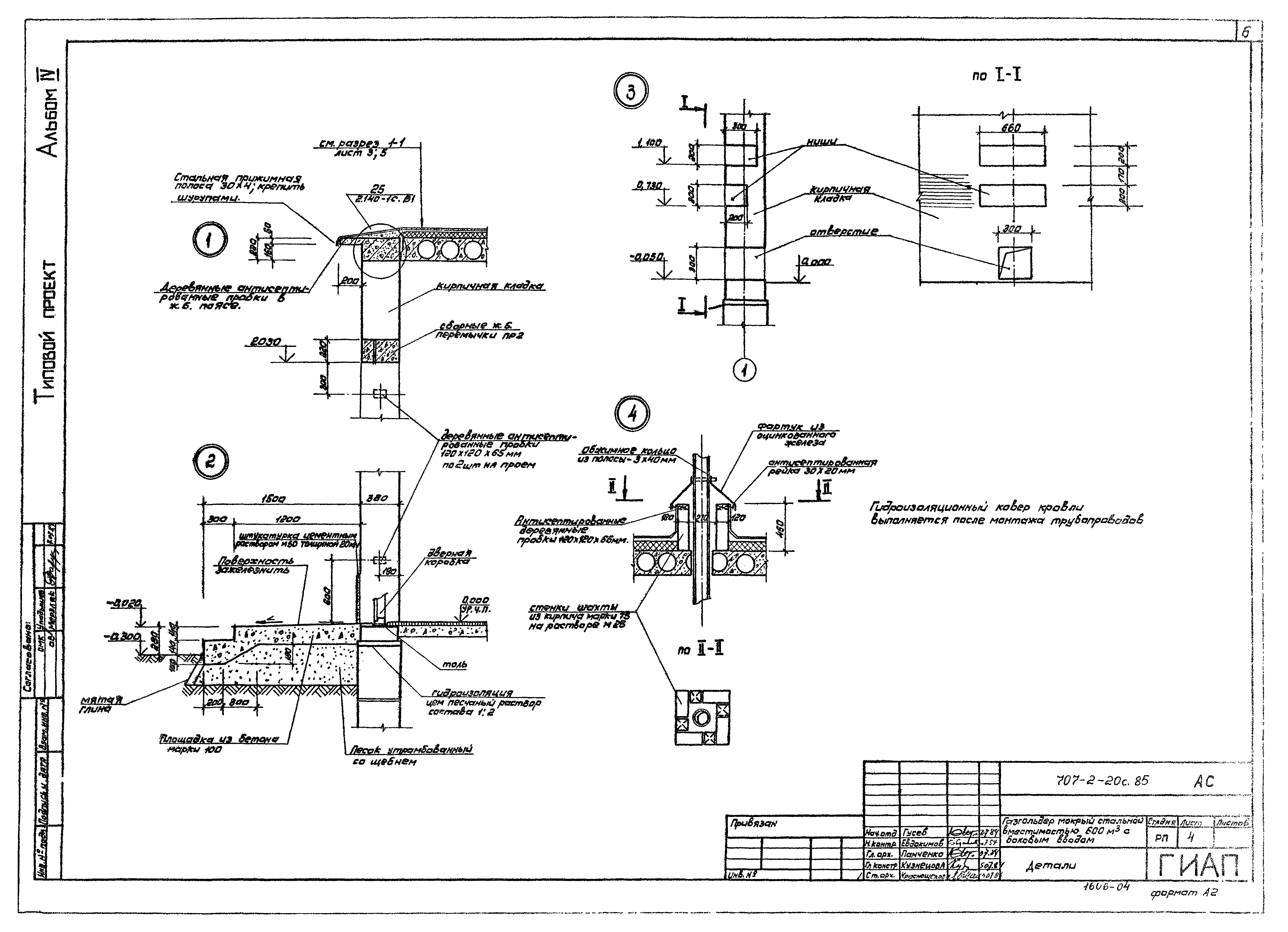
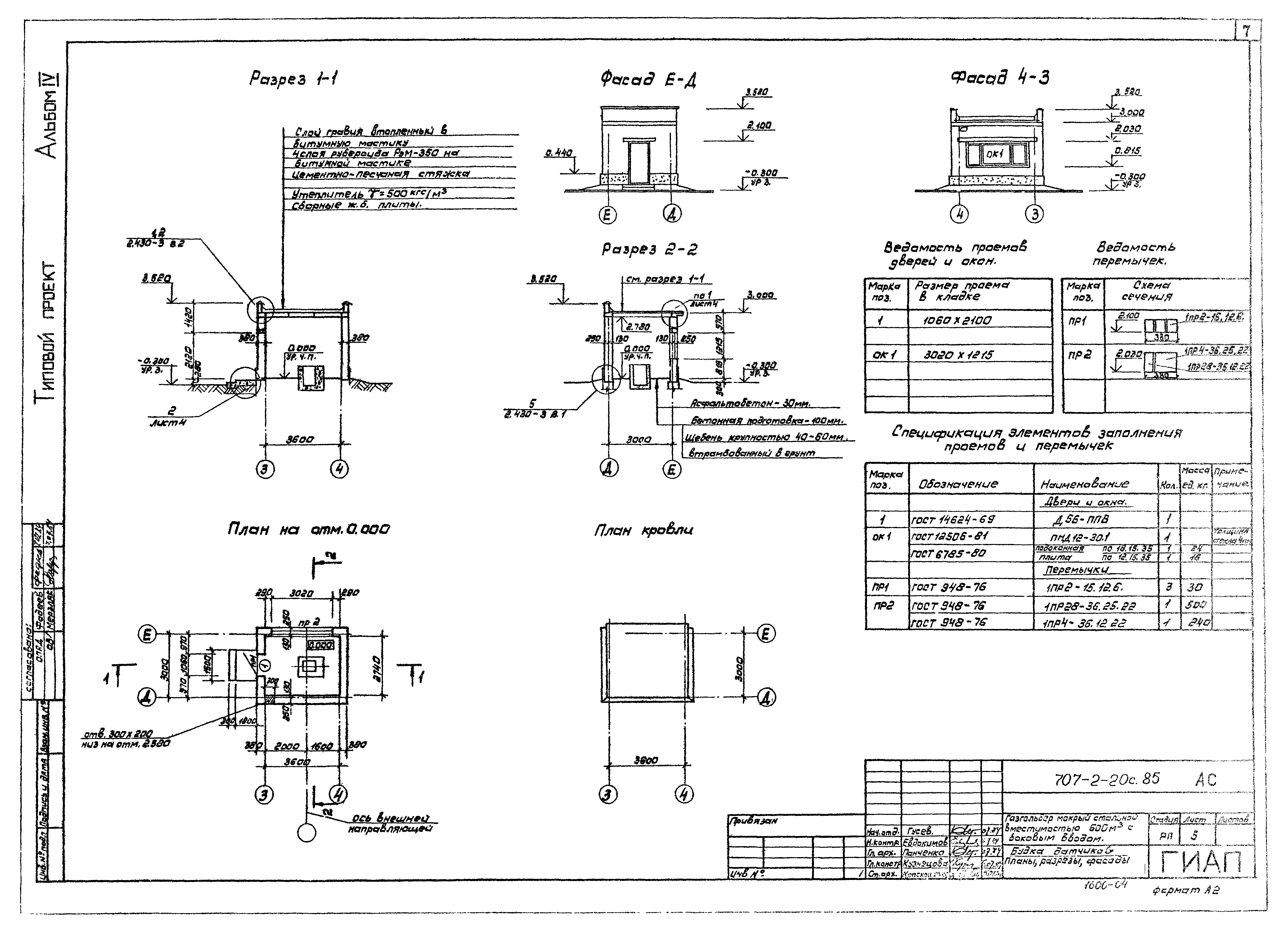
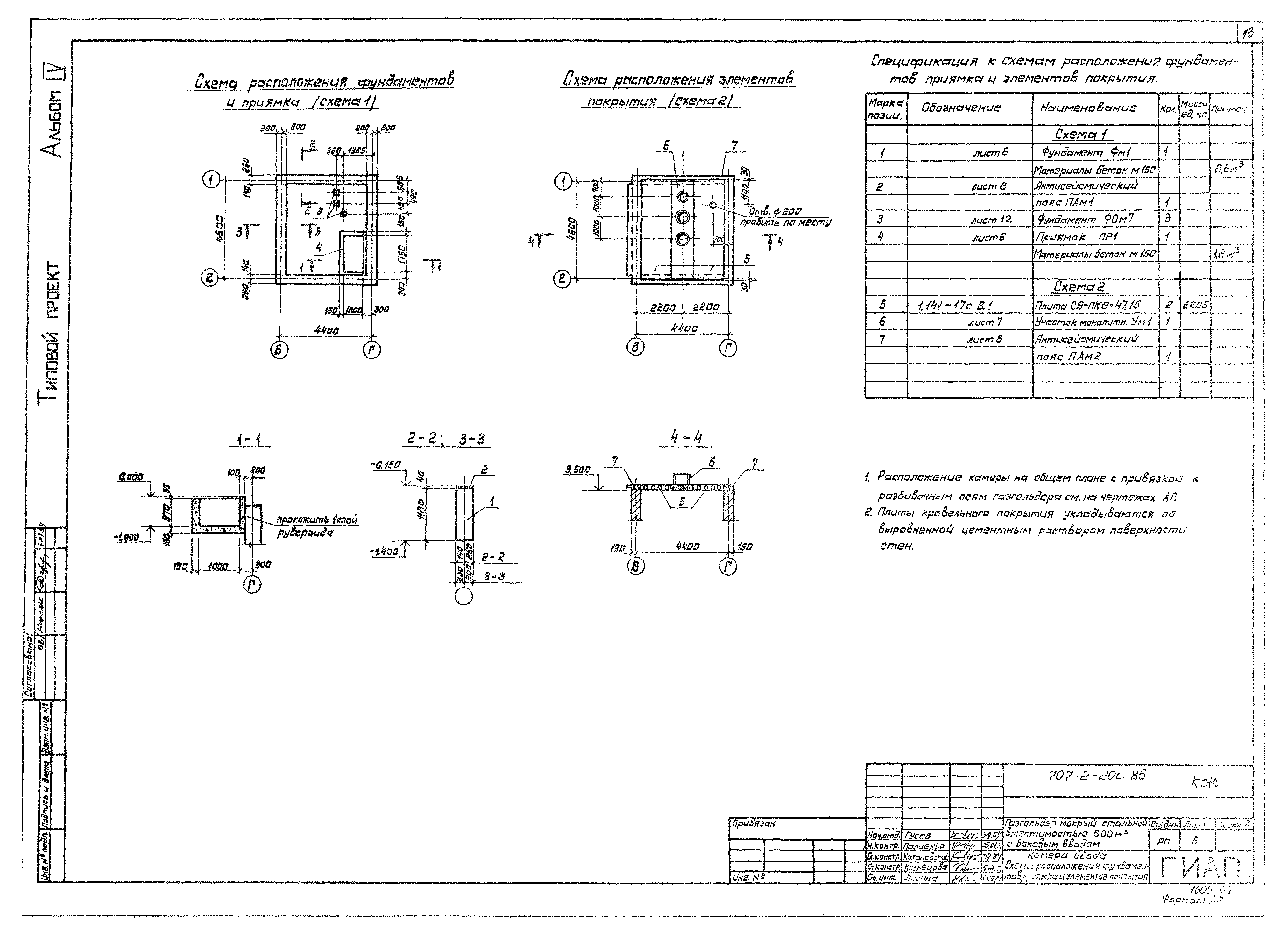
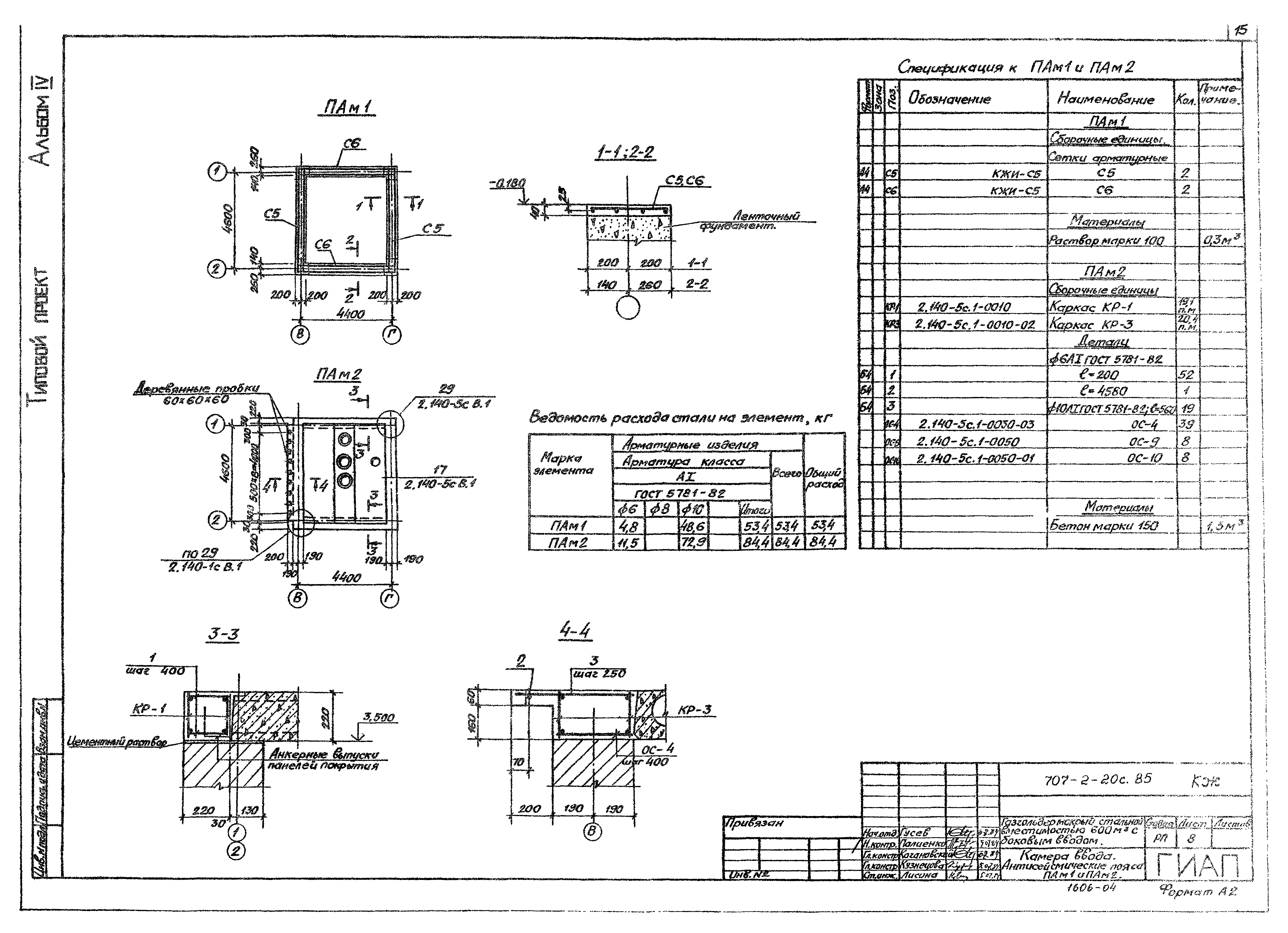
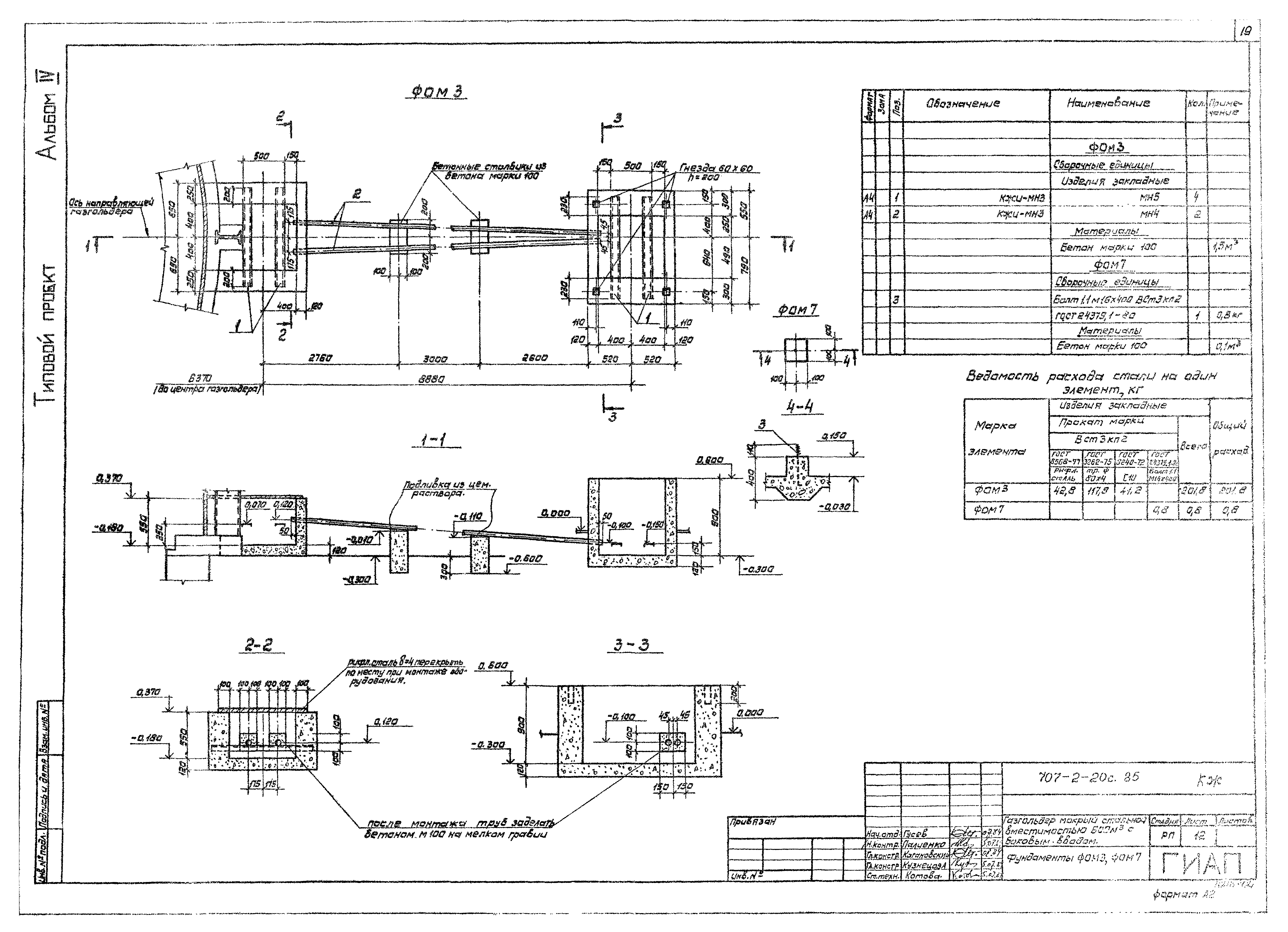
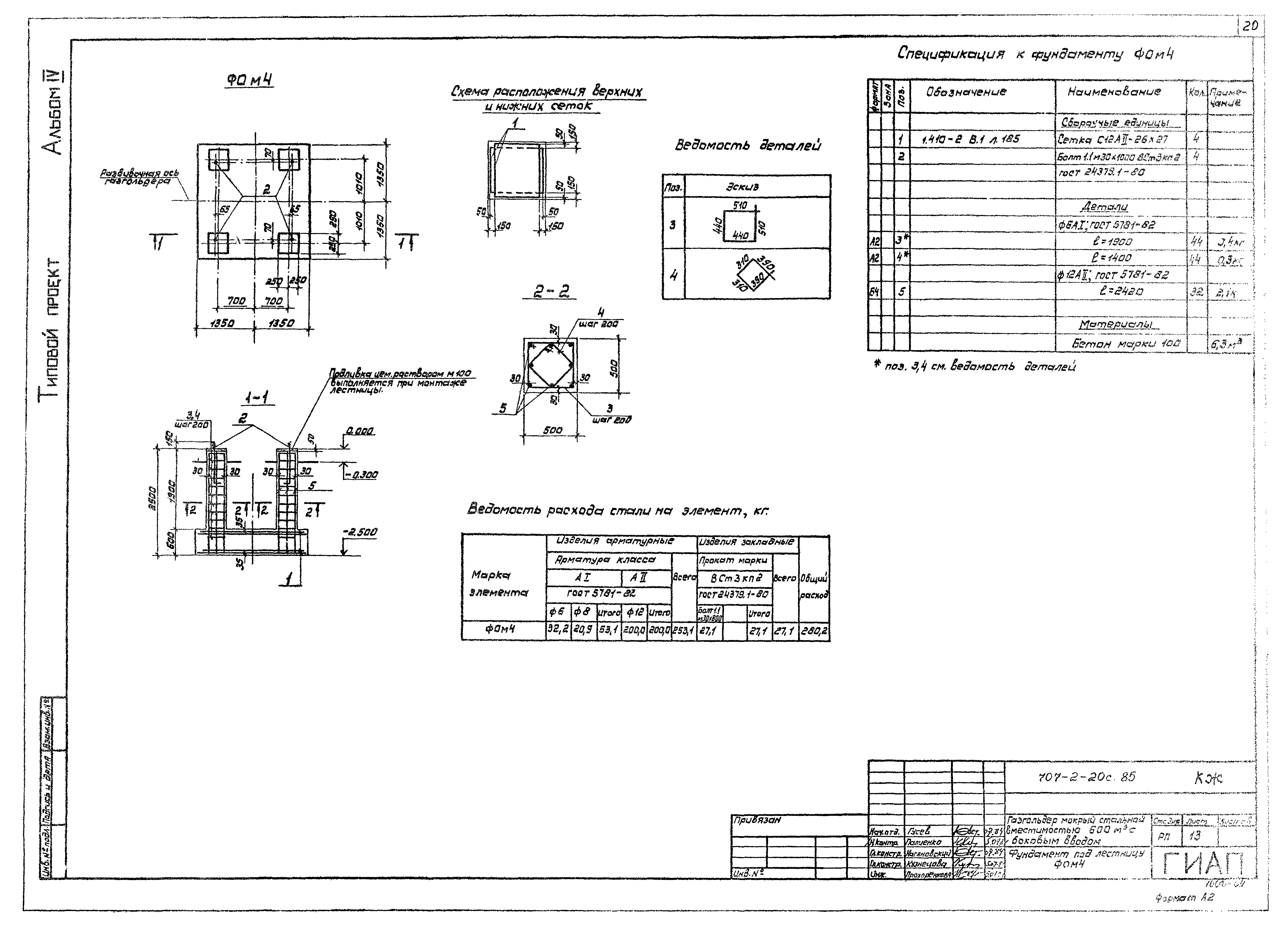
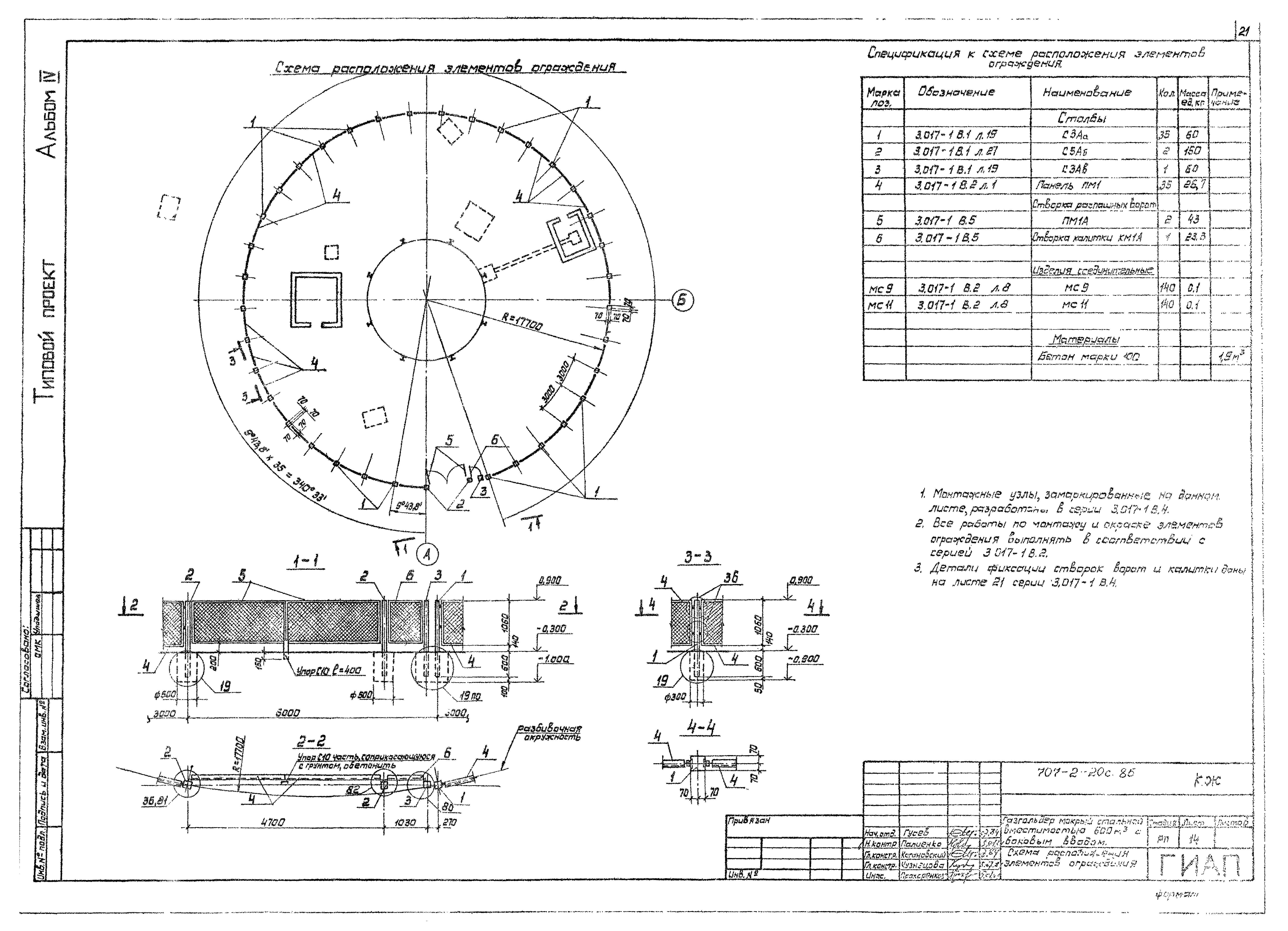
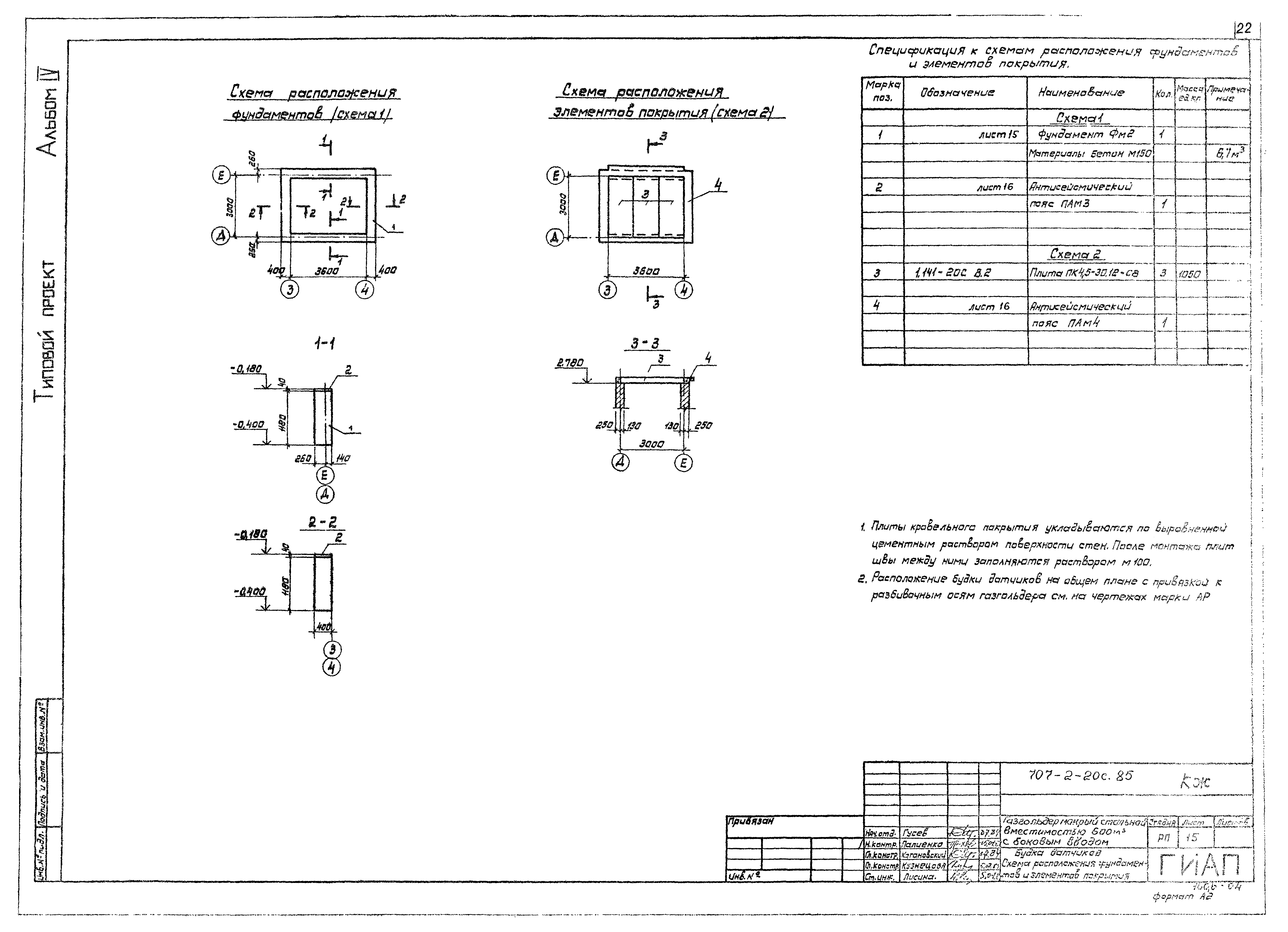
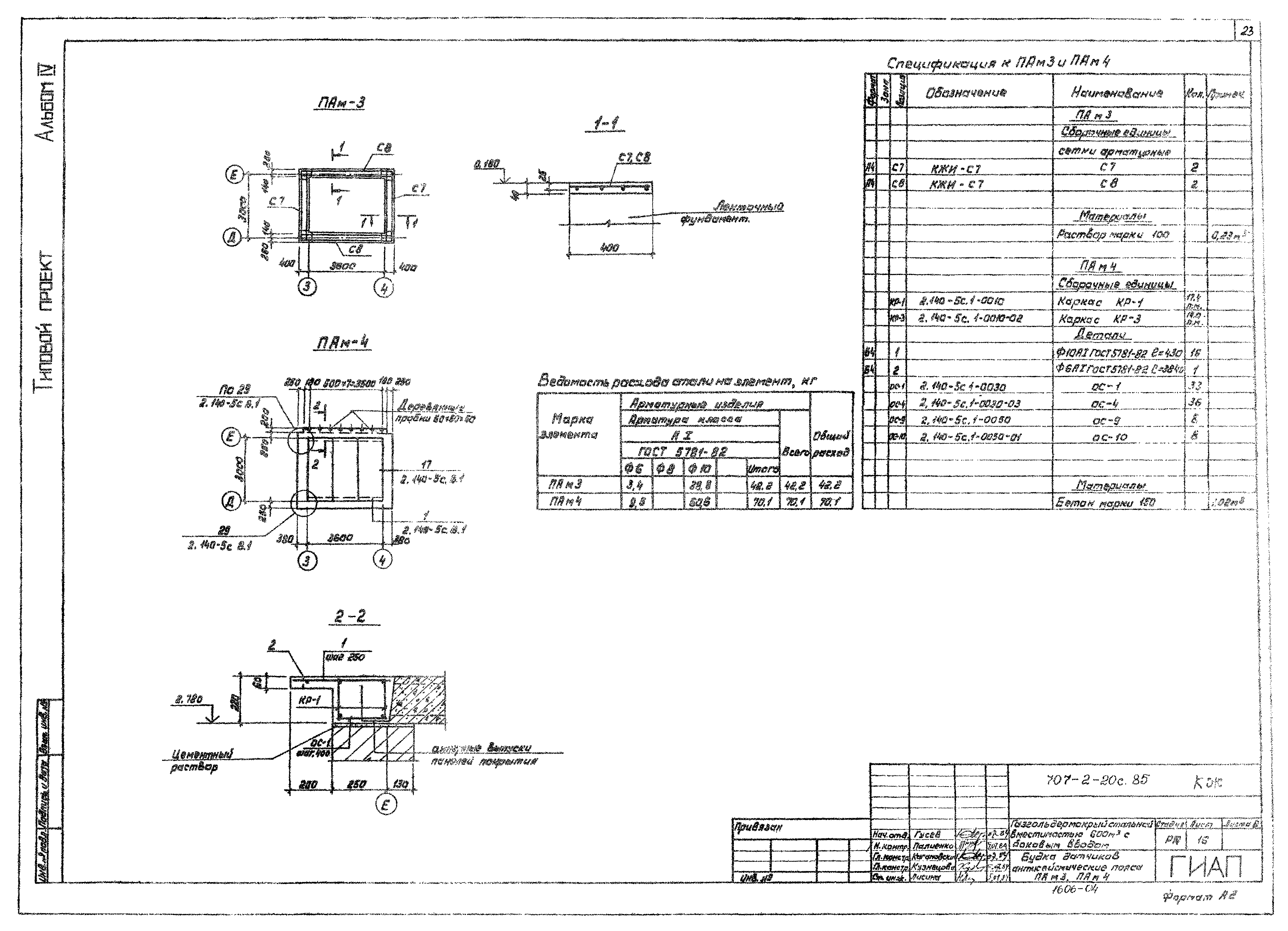
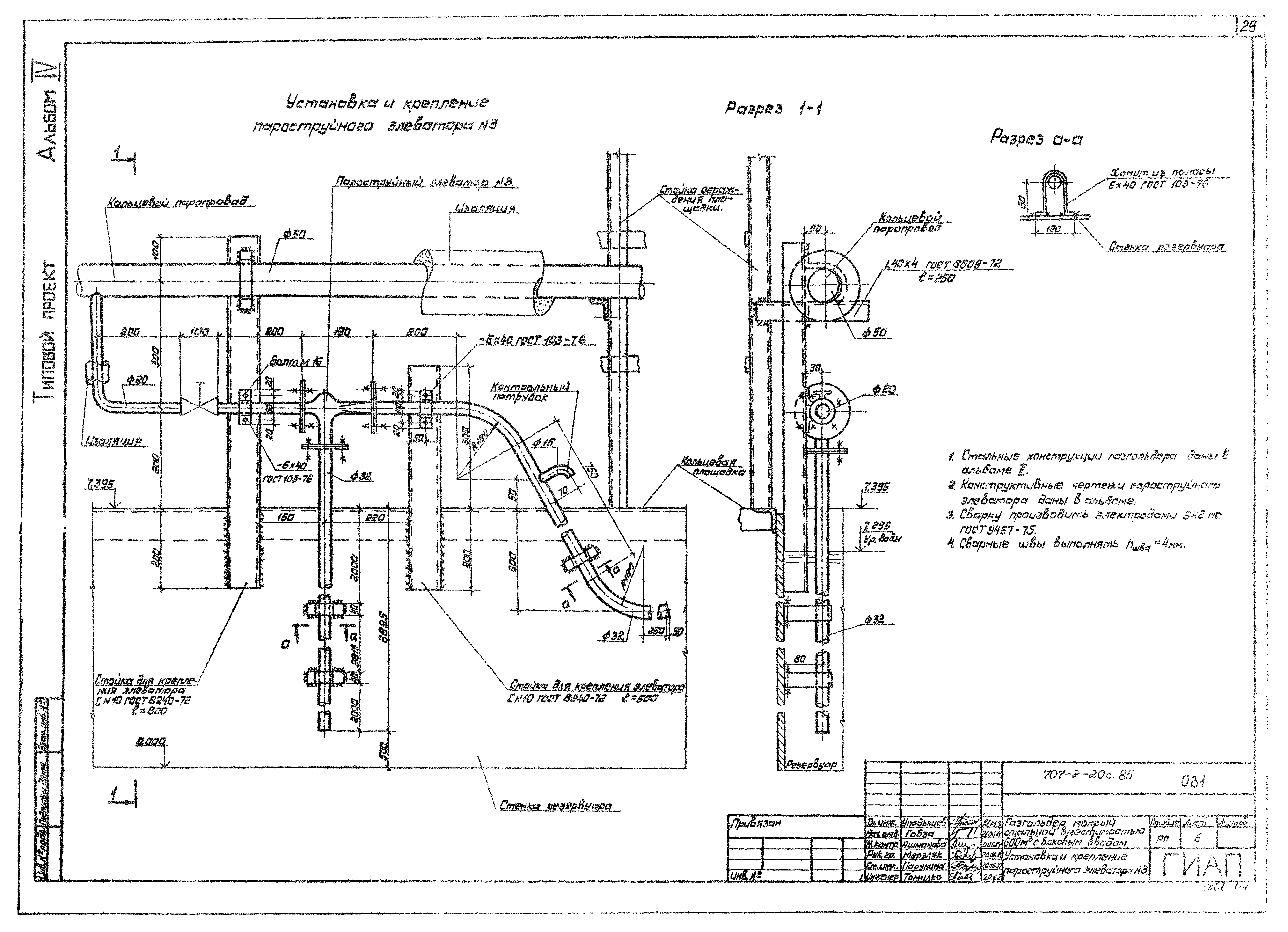
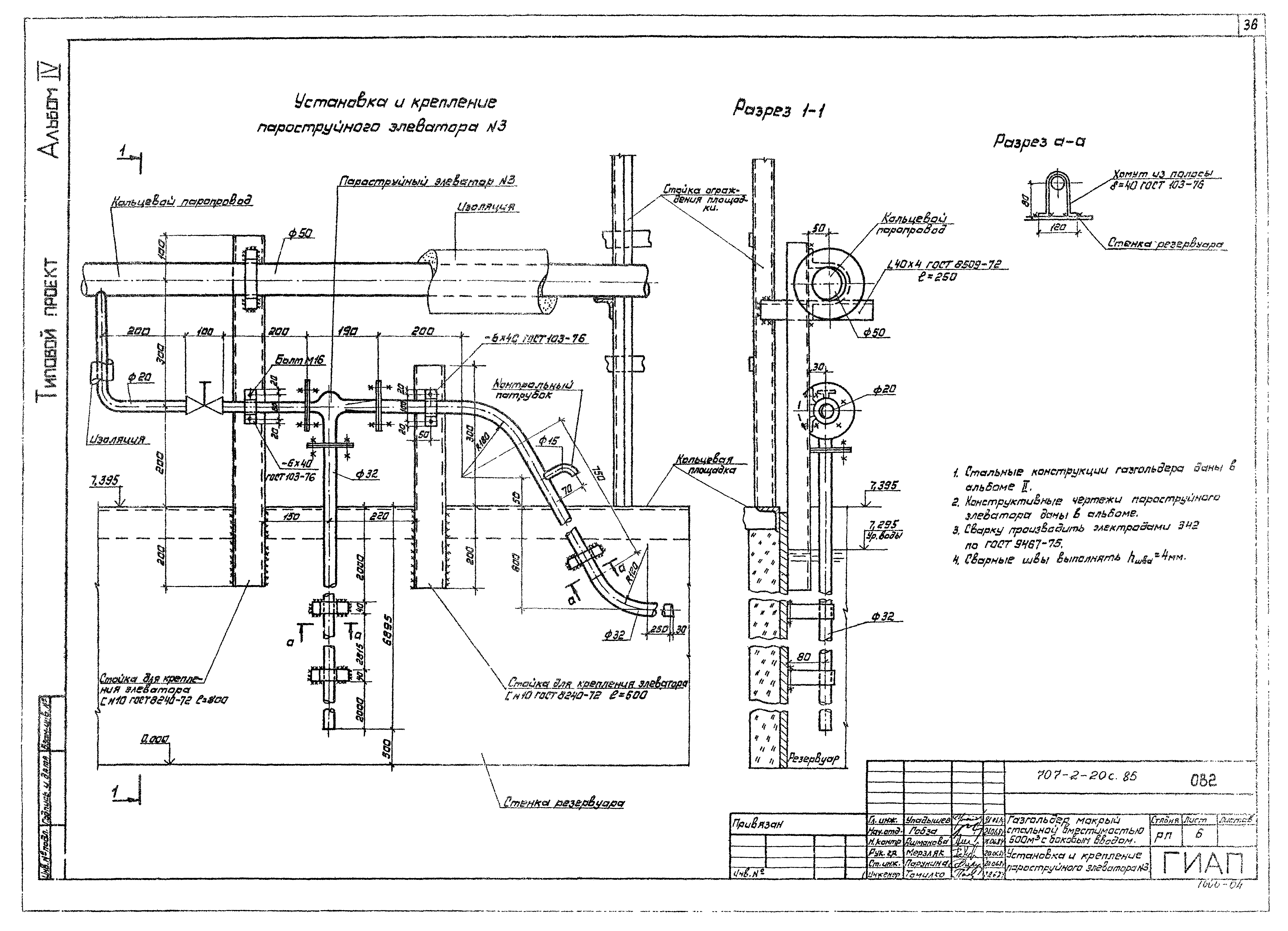
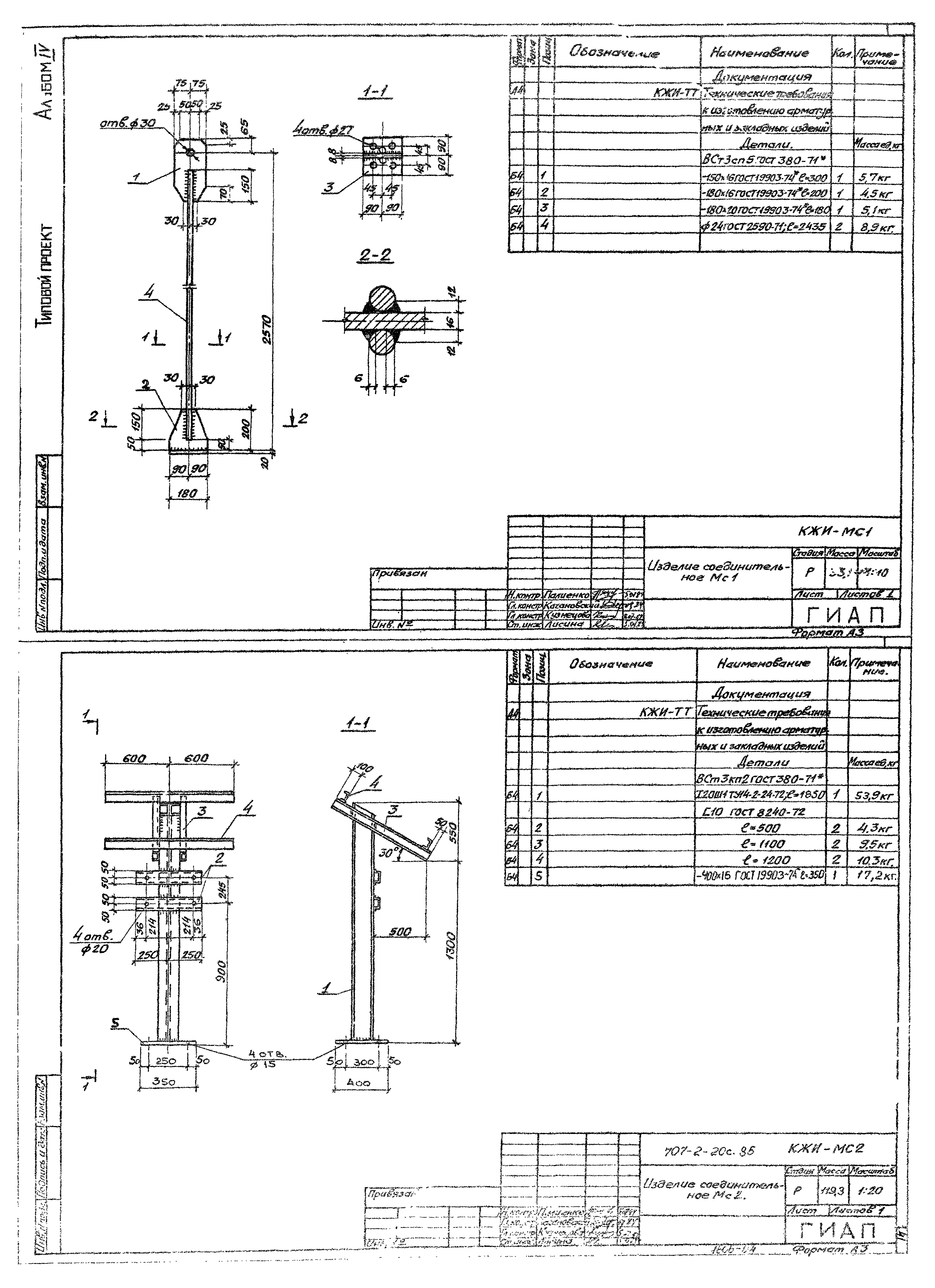
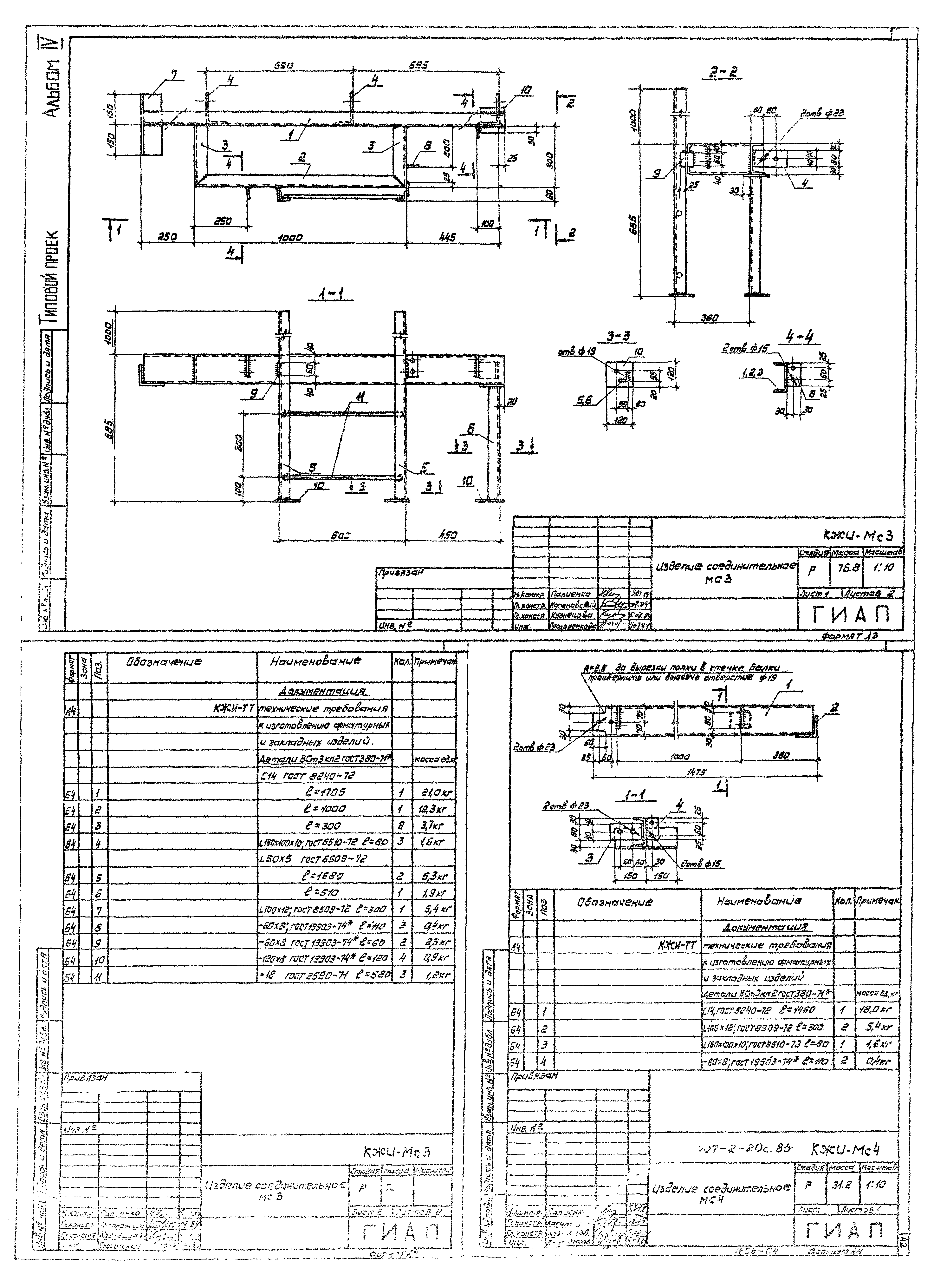
| Оглавление: | Архитектурно-строительные решения АР Общие данные Общий план сооружений Камера ввода. Планы, разрезы, фасады Детали Будка датчиков. Планы, разрезы, фасады Конструкции железобетонные КЖ Общие данные Схема расположения фундаментов газгольдера Фундамент газгольдера КФм1, плита Пм1 Фундамент газгольдера КПм1, армирование Камера ввода. Схема расположения фундаментов приямка и элементов покрытия Камера ввода. Участок монолитный УМ1 Камера ввода. Антисейсмические пояса ПАм1, ПАм2 Схема расположения элементов площадки на отм. 0.890 стальных опор Схема расположения фундаментов под оборудование Фундаменты под оборудование ФОм1, ФОм2, ФОм5, ФОм6 Фундаменты ФОм3, ФОм7 Фундамент ФОм4 Схема расположения элементов ограждения Будка датчиков. Схема расположения фундаментов и элементов покрытия Будка датчиков. Антисейсмические пояса ПАм3, ПАм4 Отопление и вентиляция ОВ ОВ1 Вариант без утепления резервуара Общие данные Резервуар газгольдера. План. Разрезы. Схема отопления Камера газового ввода. План. Разрезы. Схема отопления Будка датчиков объемоуказания газа. План. Разрез. Схема отопления Установка и крепление пароструйного элеватора № Узлы крепления трубопроводов к площадке резервуара газгольдера ОВ2 Вариант с утеплением резервуара Общие данные Резервуар газгольдера. План. Разрезы. Схема отопления Камера газового ввода. План. Разрезы. Схема отопления и вентиляции Будка датчиков объемоуказания газа. План. Разрез. Схема отопления Установка и крепление пароструйного элеватора № Узлы крепления трубопроводов к площадке резервуара газгольдера Арматурные и закладные изделия КЖИ |
| Разработан: | ГИАП |
| Утверждён: | 17.05.1984 Министерство по производству минеральных удобрений СССР (USSR Ministry of Mineral Fertilizer Production 25-89) |
| Чем заменён: |










































