Скачать Типовой проект 901-3-237.87 Альбом I. Пояснительная записка. Технологические решения. Отопление и вентиляцияДата актуализации: 01.01.2021
|
| Обозначение: | Типовой проект 901-3-237.87 |
| Обозначение англ: | 901-3-237.87 |
| Статус: | не определен законодательством |
| Название рус.: | Альбом I. Пояснительная записка. Технологические решения. Отопление и вентиляция |
| Дата добавления в базу: | 01.09.2013 |
| Дата актуализации: | 01.01.2021 |
| Дата введения: | 27.04.1987 |
| Дата окончания срока действия: | 30.06.2003 |
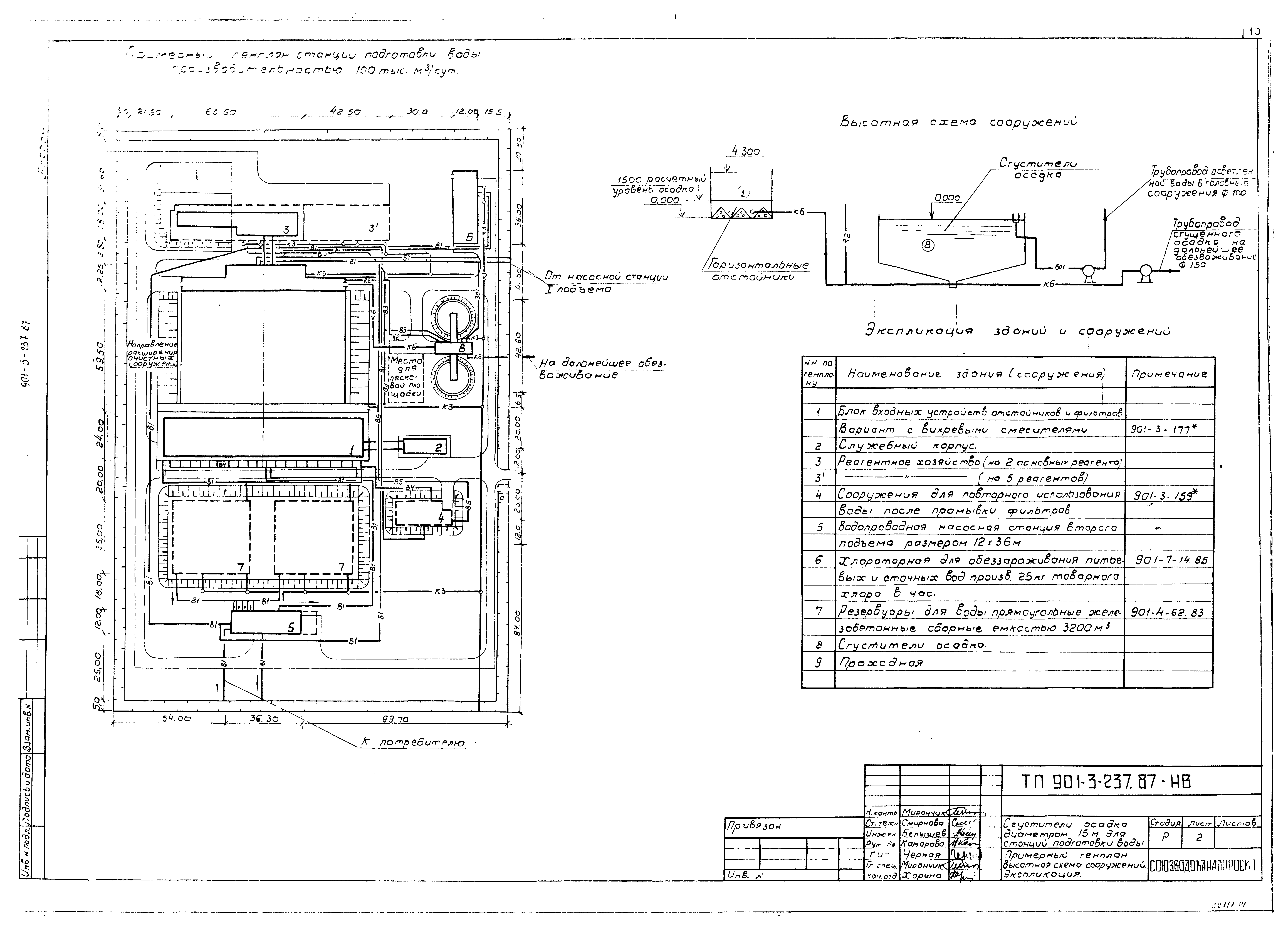
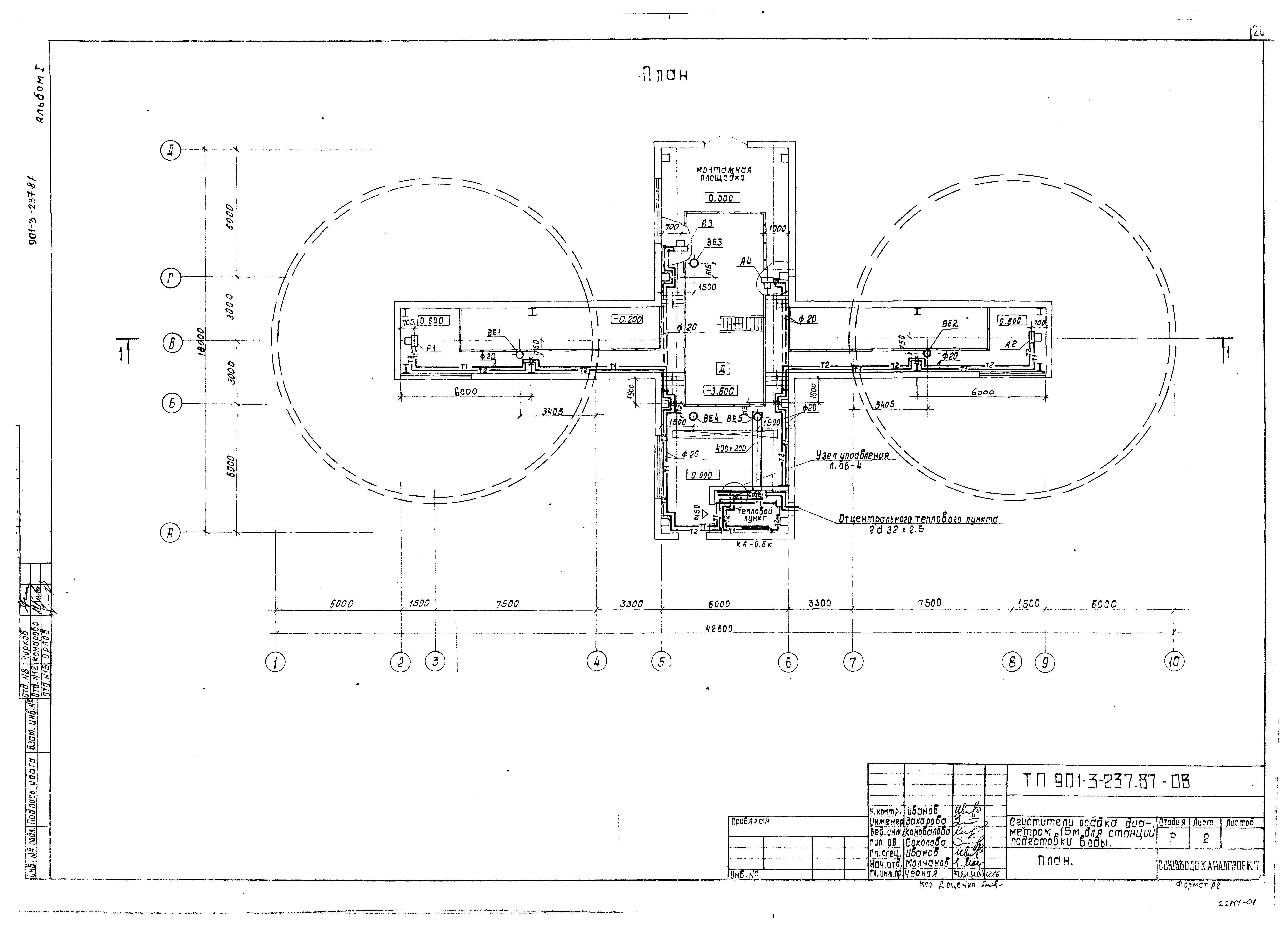
| Оглавление: | Содержание альбома Пояснительная записка Технологические решения Общие данные Примерный генплан. Высотная схема сооружений. Экспликация План. Экспликация оборудования Фрагмент плана Разрезы 1-1, 2-2 Разрезы 3-3, 4-4 Схемы трубопроводов. Разрез 5-5 Отопление и вентиляция Общие данные План Разрез 1-1. Схемы систем вентиляции Схемы системы теплоснабжения установок А1 - А4, системы отопления, узла управления Эскизные чертежи общих видов нетиповых конструкций систем отопления и вентиляции |
| Разработан: | Союзводоканалпроект |
| Утверждён: | 25.12.1986 Госстрой СССР (Государственный комитет Совета Министров СССР по делам строительства) (USSR Gosstroy АЧ-95) |























