Скачать Типовой проект 901-3-237.87 Альбом IV. Электротехнические решенияДата актуализации: 01.01.2021
|
| Обозначение: | Типовой проект 901-3-237.87 |
| Обозначение англ: | 901-3-237.87 |
| Статус: | не определен законодательством |
| Название рус.: | Альбом IV. Электротехнические решения |
| Дата добавления в базу: | 01.09.2013 |
| Дата актуализации: | 01.01.2021 |
| Дата введения: | 27.04.1987 |
| Дата окончания срока действия: | 30.06.2003 |
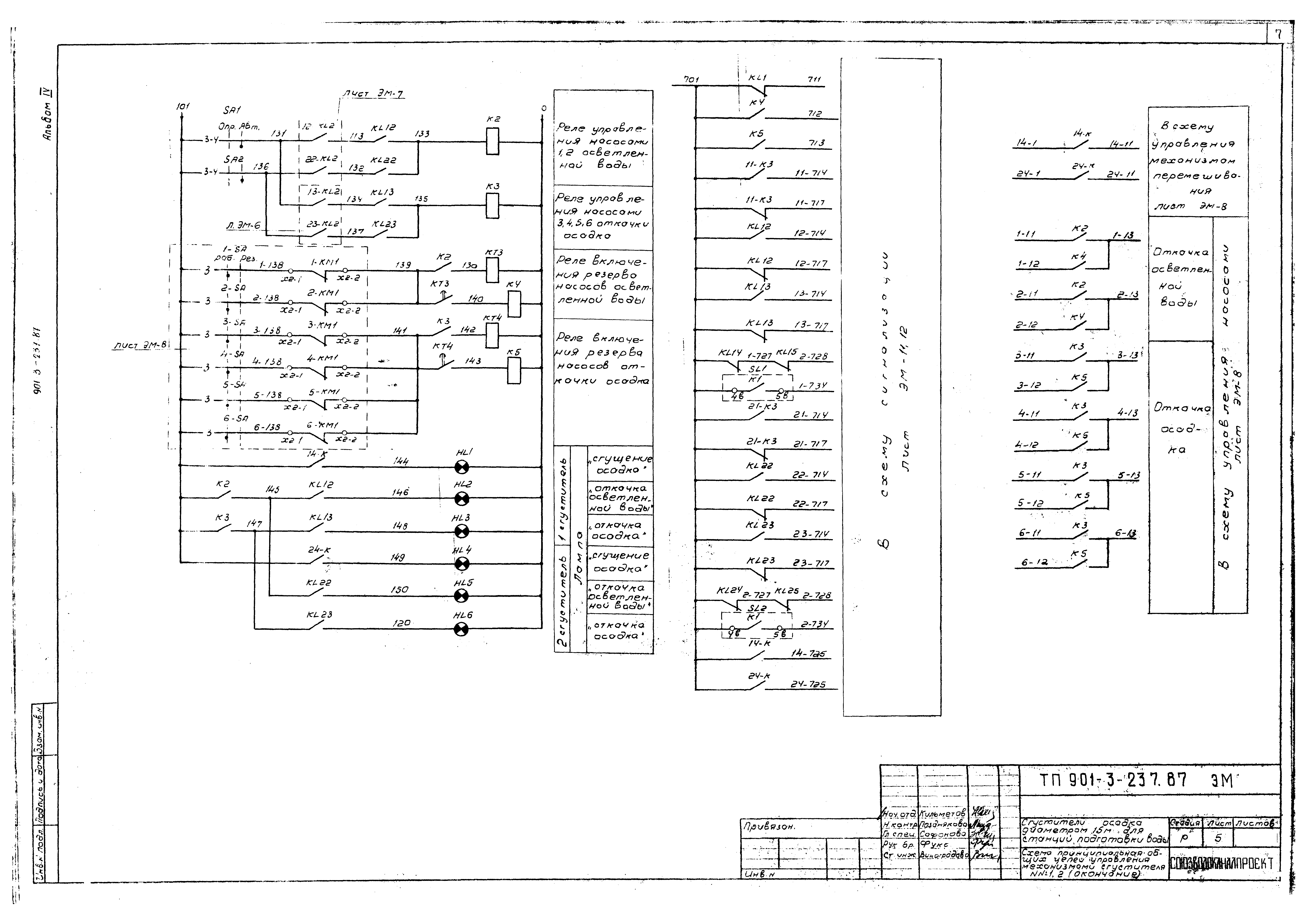
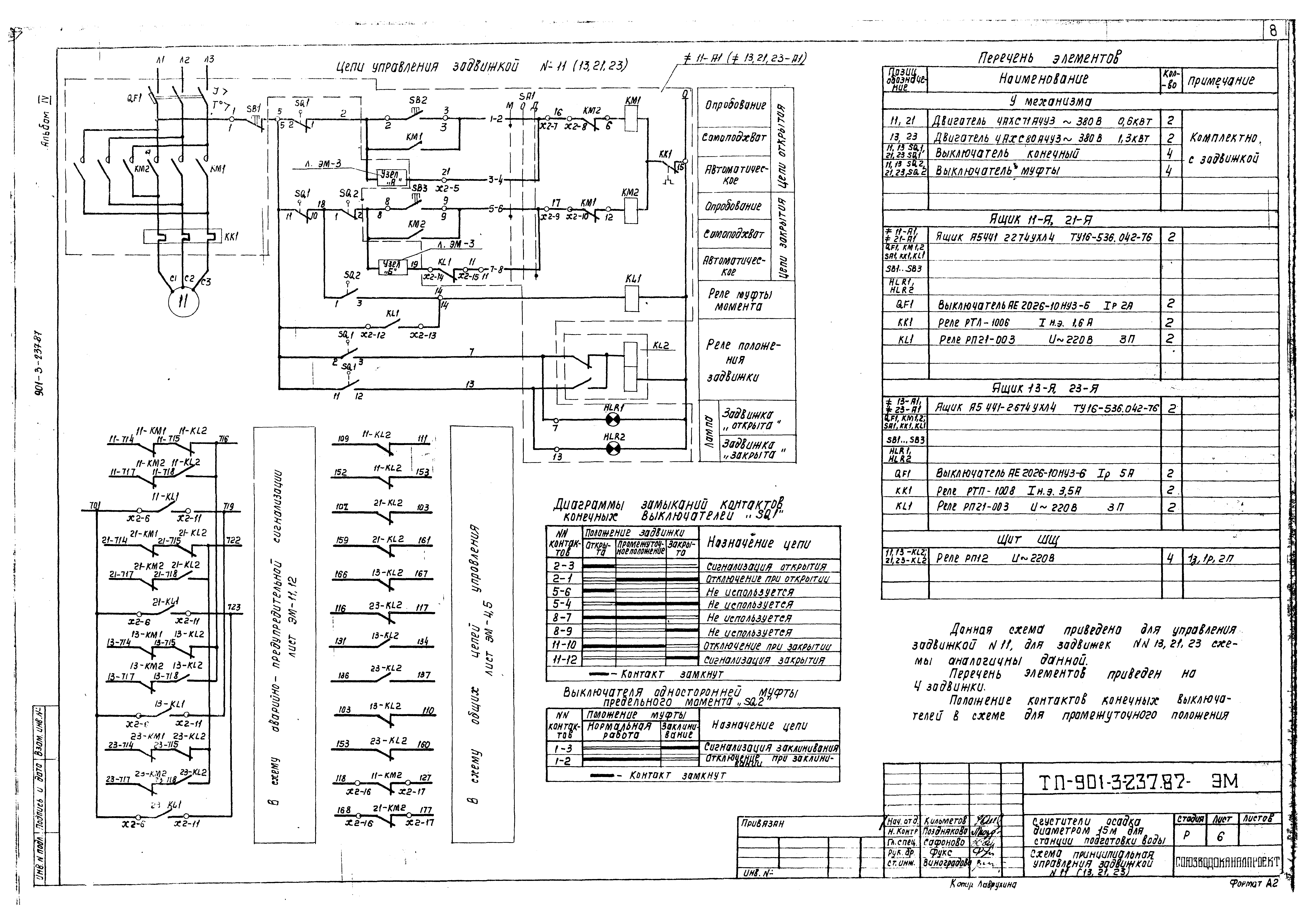
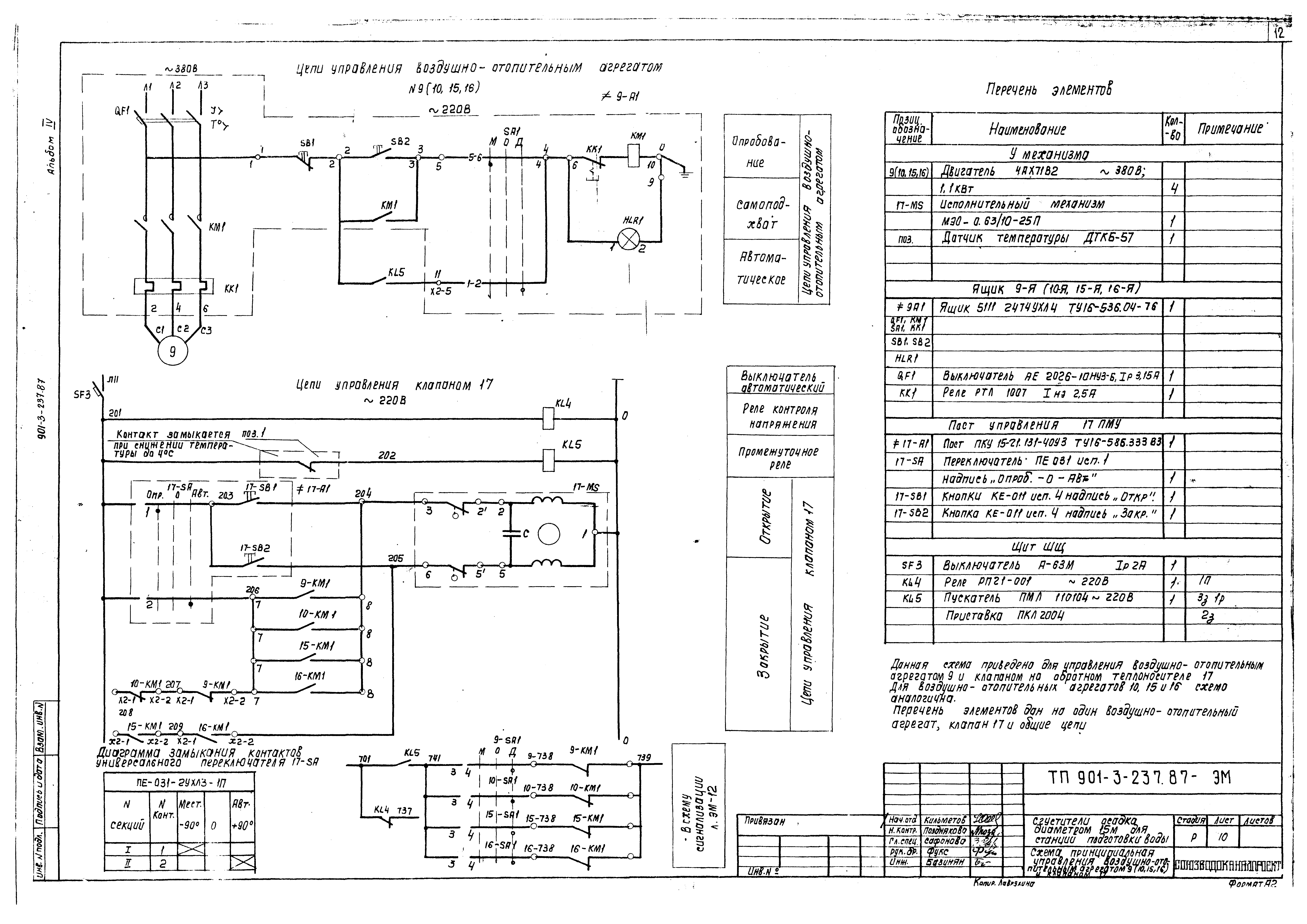
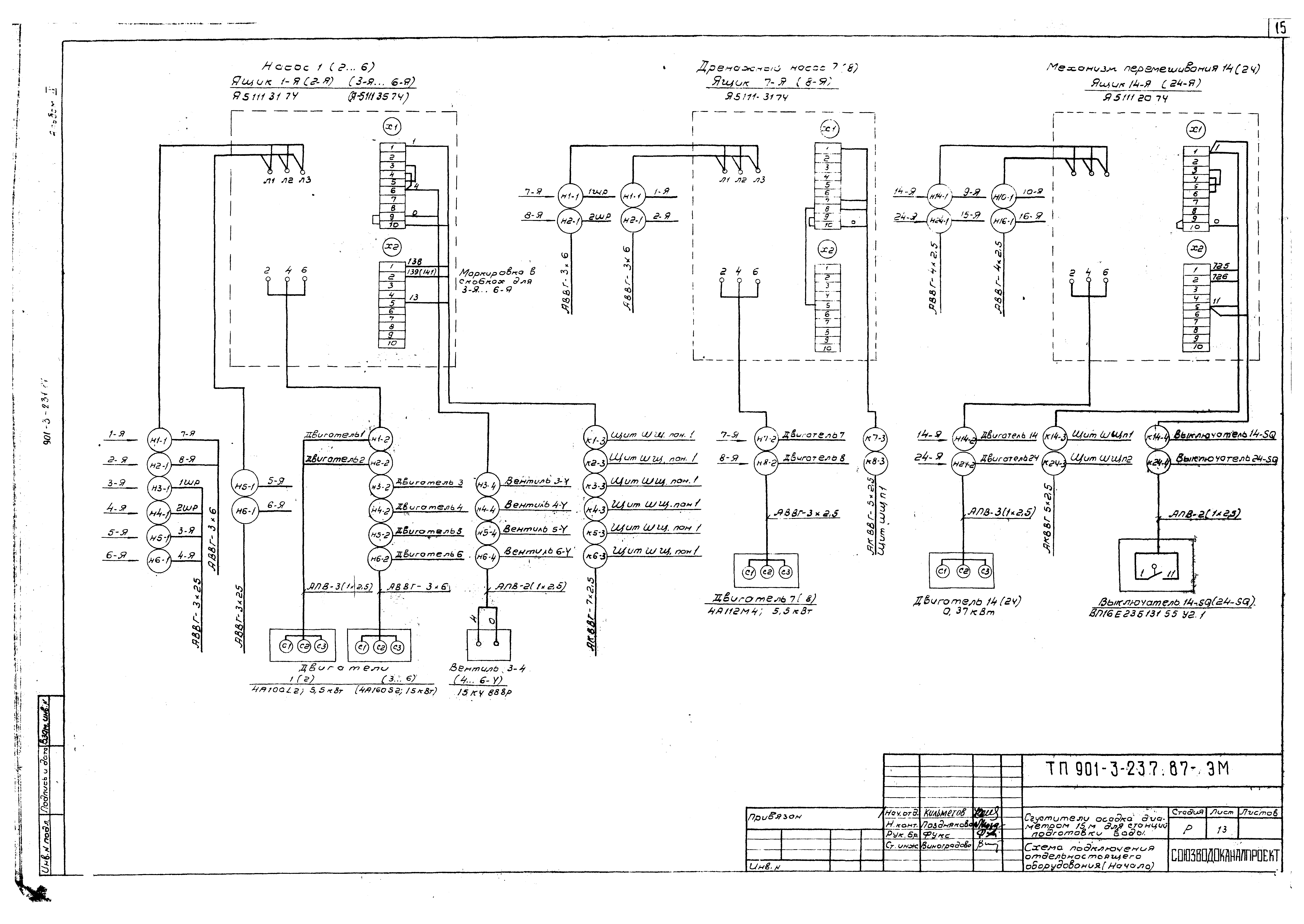
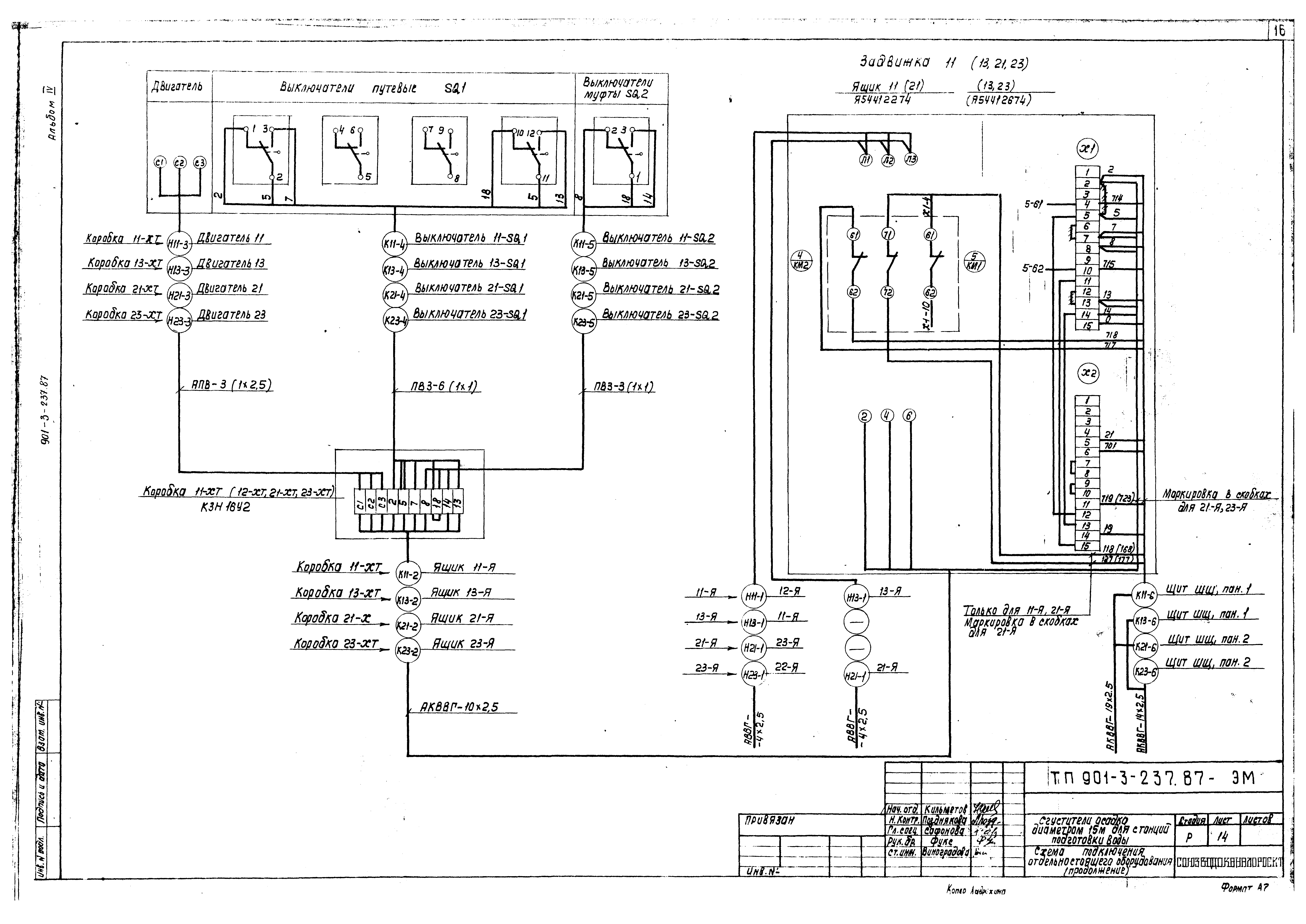
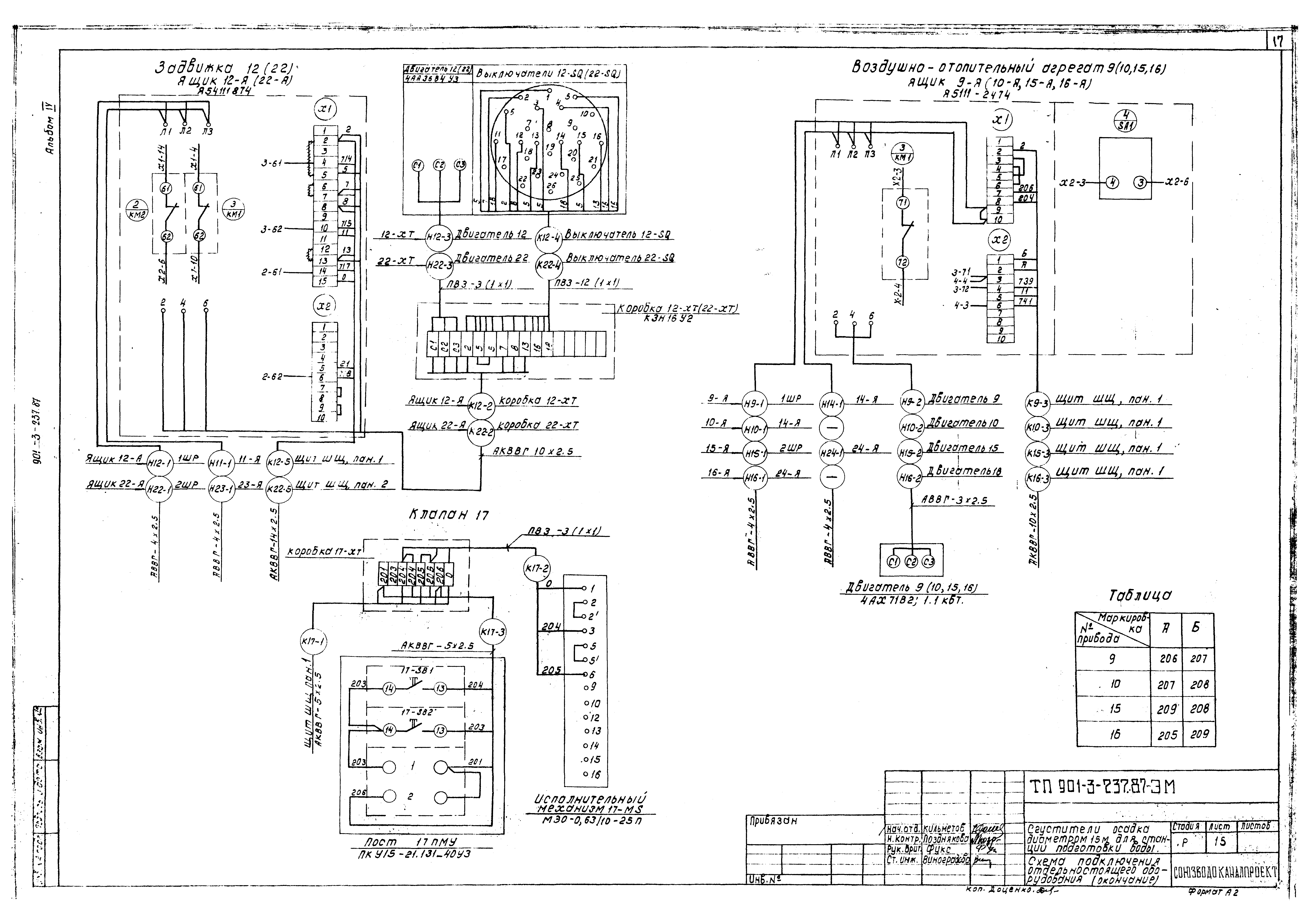
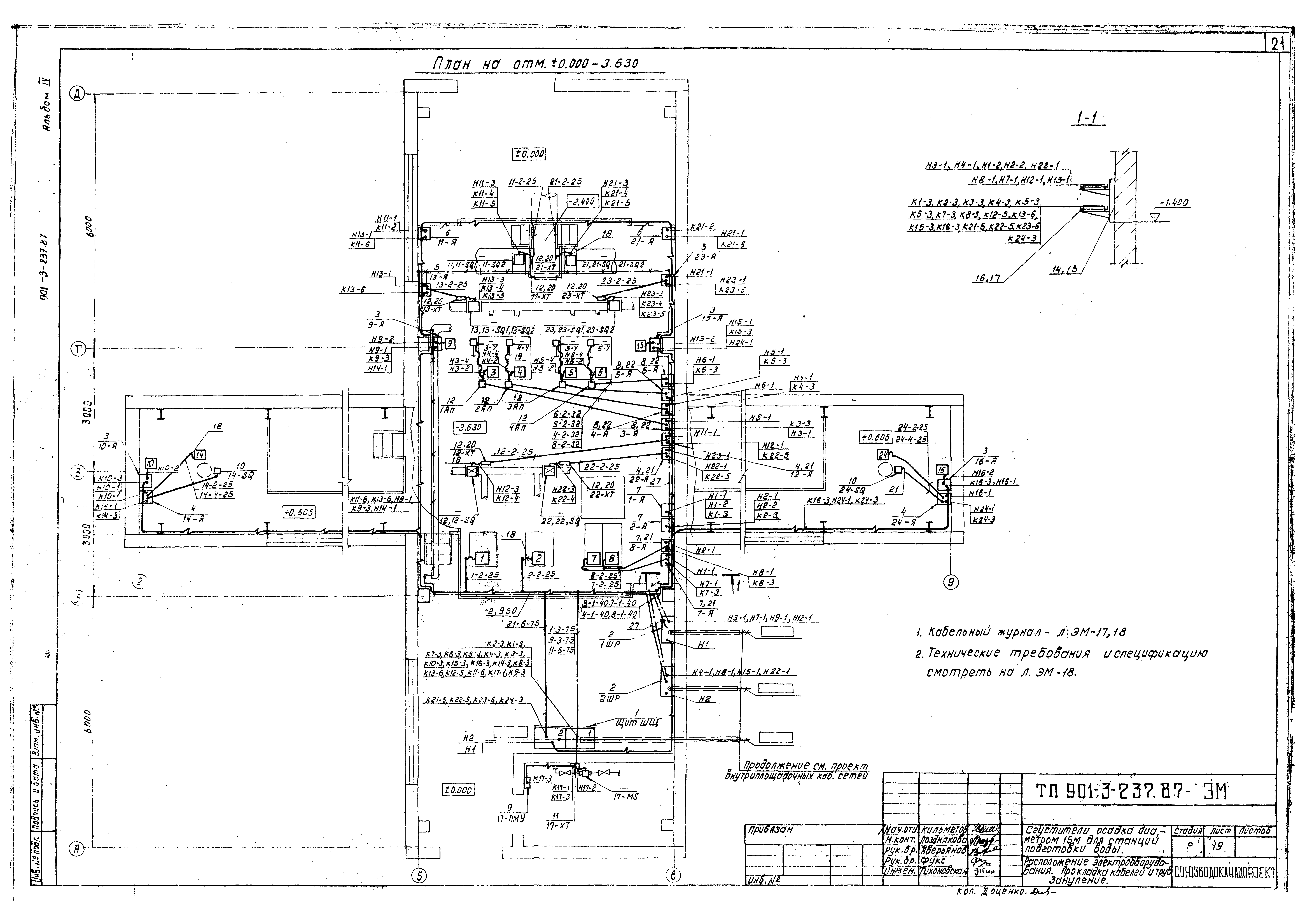
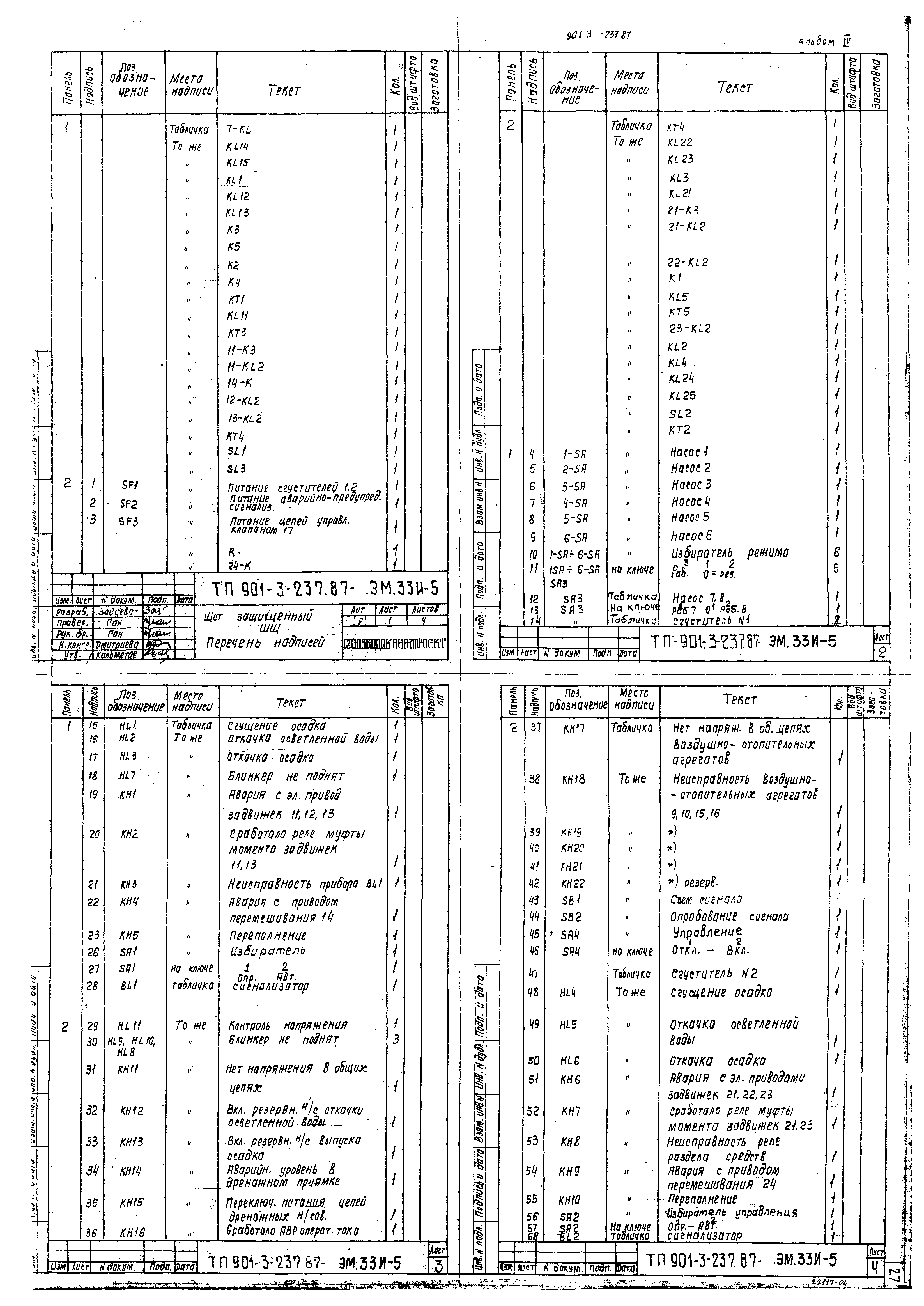
| Оглавление: | Содержание альбома Основной комплект марки ЭМ Общие данные Схема принципиальная однолинейная сети 380/220 В Схема принципиальная общих цепей управления механизмами сгустителей №1, 2 Схема принципиальная управления задвижками №11 (13, 21, 23) Схема принципиальная управления задвижками №12 (22) Схема принципиальная управления насосом №1 (2…6) и механизмом перемешивания №14 (24) Схема принципиальная управления дренажными насосами 7, 8 Схема принципиальная управления воздушно-отопительным агрегатом №9 (10, 15, 16) и клапаном №17 Схема принципиальная сигнализации Схема подключения отдельностоящего оборудования Щит защищенный ШЩ. Схема электрическая соединений панелей 1, 2 Кабельный журнал Кабельный журнал. Спецификация электрооборудования и материалов Расположение электрооборудования. Прокладка кабелей и труб. Зануление Электроосвещение Ведомость объемов электромонтажных и строительных работ Задание заводу-изготовителю марки ЭМ.ЗЗИ Перечень комплектных устройств Щит защищенный ШЩ. Технические данные аппаратов Щит защищенный ШЩ. Общий вид Щит защищенный ШЩ. Перечень надписей Щит защищенный ШЩ. Схема электрическая соединений Основной комплект марки АТХ Общие данные Схема функциональная технологического контроля Схема внешних электрических и трубных проводок Поплавок. Чертеж общего вида Расположение оборудования КИП. Прокладка кабелей и труб |
| Разработан: | Союзводоканалпроект |
| Утверждён: | 25.12.1986 Госстрой СССР (Государственный комитет Совета Министров СССР по делам строительства) (USSR Gosstroy АЧ-95) |



































