Скачать Типовой проект 901-3-237.87 Альбом V. Нестандартизированное оборудованиеДата актуализации: 01.01.2021
|
| Обозначение: | Типовой проект 901-3-237.87 |
| Обозначение англ: | 901-3-237.87 |
| Статус: | не определен законодательством |
| Название рус.: | Альбом V. Нестандартизированное оборудование |
| Дата добавления в базу: | 01.09.2013 |
| Дата актуализации: | 01.01.2021 |
| Дата введения: | 27.04.1987 |
| Дата окончания срока действия: | 30.06.2003 |
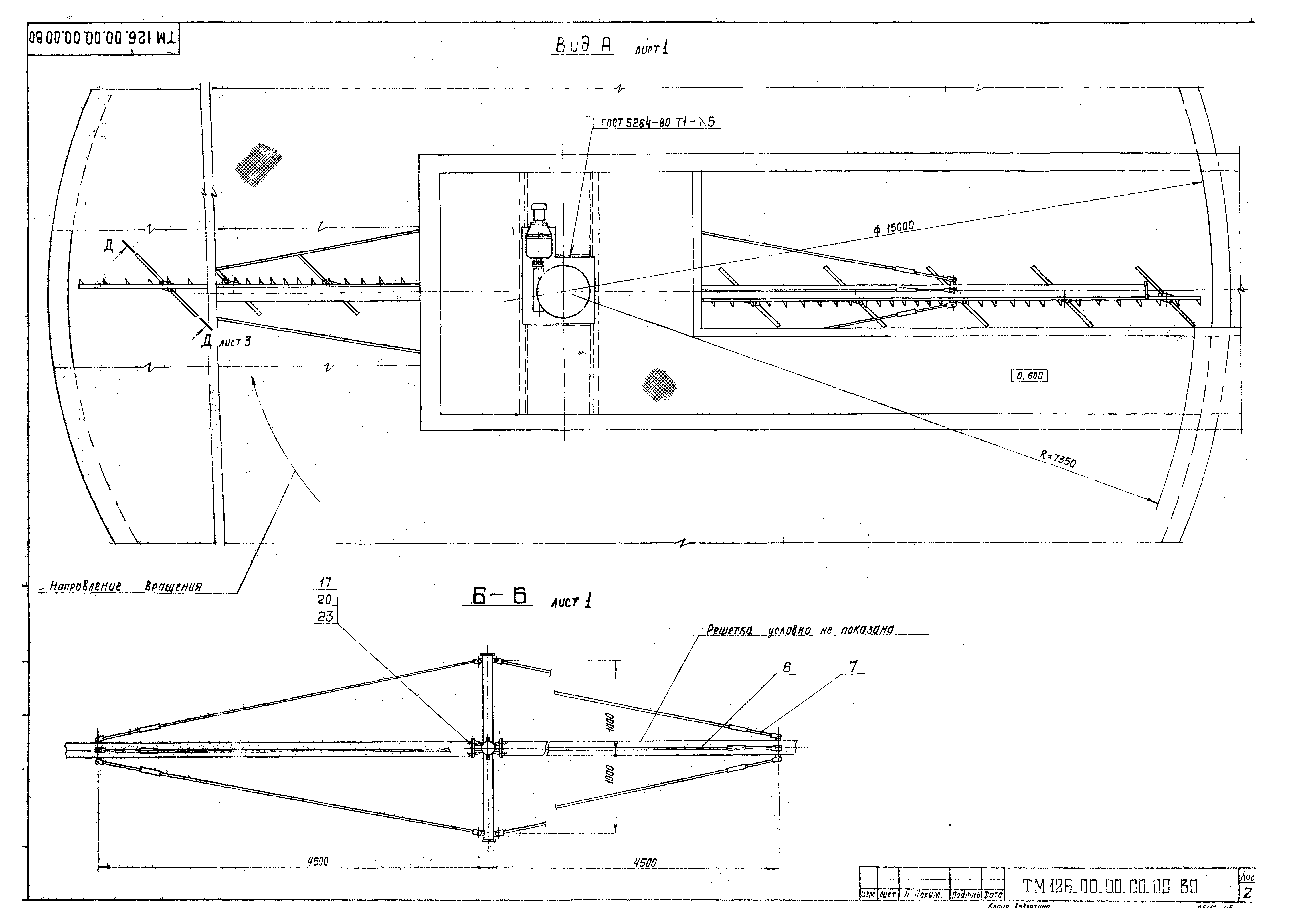
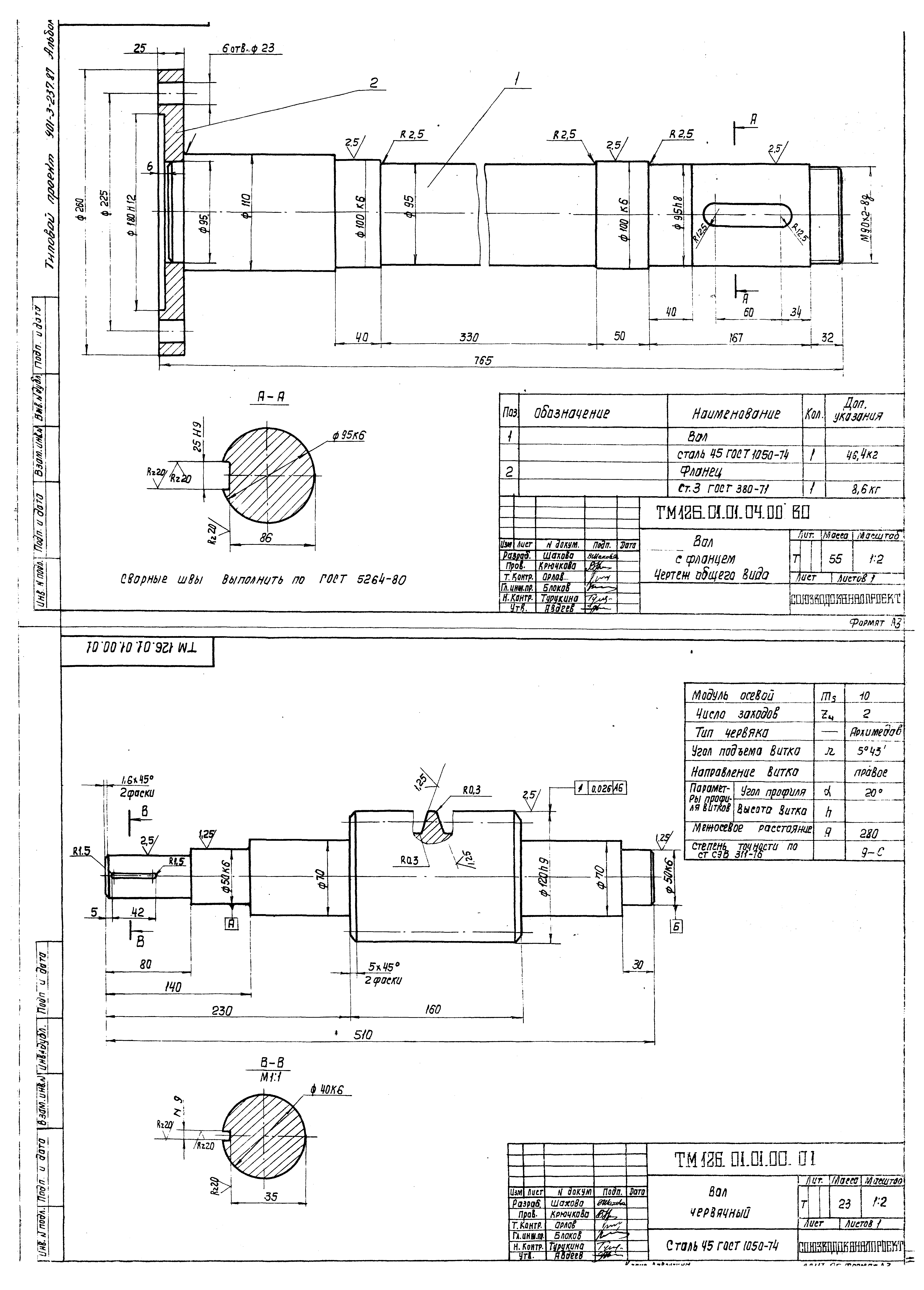
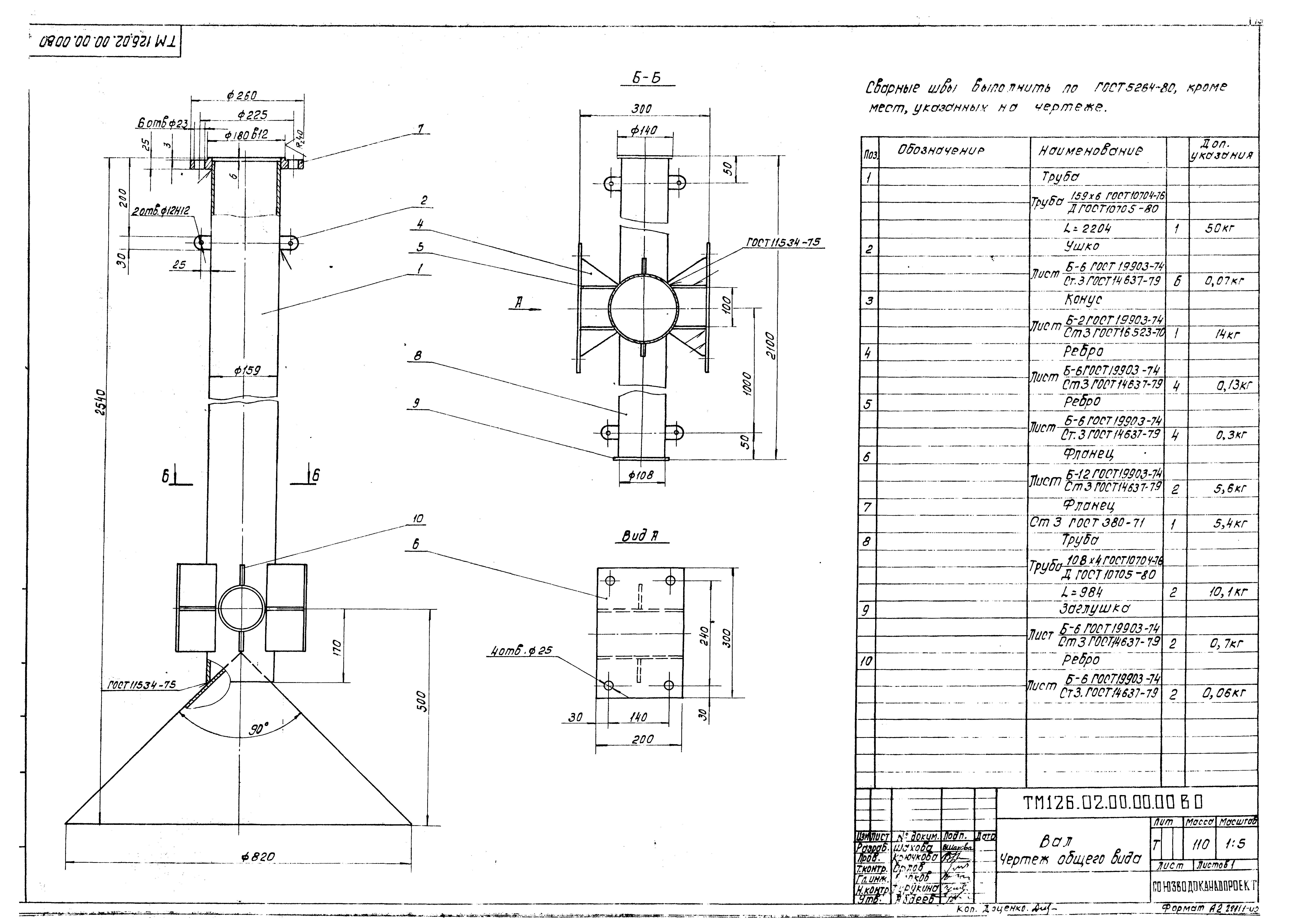
| Оглавление: | Содержание альбома ТМ126.00.00.00.00.ВО Механизм сгустителя осадка диаметром 15 м. Чертеж общего вида ТМ126.01.00.00.00.ВО Привод. Чертеж общего вида ТМ126.01.01.00.00.ВО Редуктор. Чертеж общего вида ТМ126.01.01.01.00.ВО Корпус. Чертеж общего вида ТМ126.01.01.02.00.ВО Колесо червячное. Чертеж общего вида ТМ126.01.01.03.00.ВО Стакан. Чертеж общего вида ТМ126.01.01.04.00.ВО Вал с фланцем. Чертеж общего вида ТМ126.01.01.00.01 Вал червячный ТМ126.01.02.00.00.ВО Платформа. Чертеж общего вида ТМ126.02.00.00.00.ВО Вал. Чертеж общего вида ТМ126.03.00.00.00.ВО Решетка. Чертеж общего вида ТМ126.04.00.00.00.ВО Труба. Чертеж общего вида ТМ126.05.00.00.00.ВО Растяжка. Чертеж общего вида ТМ126.05.01.00.00.ВО Тяга. Чертеж общего вида ТМ127.00.00.ВО Водозаборник поплавковый Ду150. Чертеж общего вида ТМ127.01.00.ВО Поплавок Ду150. Чертеж общего вида ТМ127.02.00.ВО Рама. Чертеж общего вида |
| Разработан: | Союзводоканалпроект |
| Утверждён: | 25.12.1986 Госстрой СССР (Государственный комитет Совета Министров СССР по делам строительства) (USSR Gosstroy АЧ-95) |


















