Скачать Типовой проект 416-9-33.87 Альбом III. Архитектурно-строительные решения. Конструкции железобетонные и металлические. Внутренние водопровод и канализация. Отопление и вентиляцияДата актуализации: 01.01.2021
|
| Обозначение: | Типовой проект 416-9-33.87 |
| Обозначение англ: | 416-9-33.87 |
| Статус: | не действует |
| Название рус.: | Альбом III. Архитектурно-строительные решения. Конструкции железобетонные и металлические. Внутренние водопровод и канализация. Отопление и вентиляция |
| Дата добавления в базу: | 01.09.2013 |
| Дата актуализации: | 01.01.2021 |
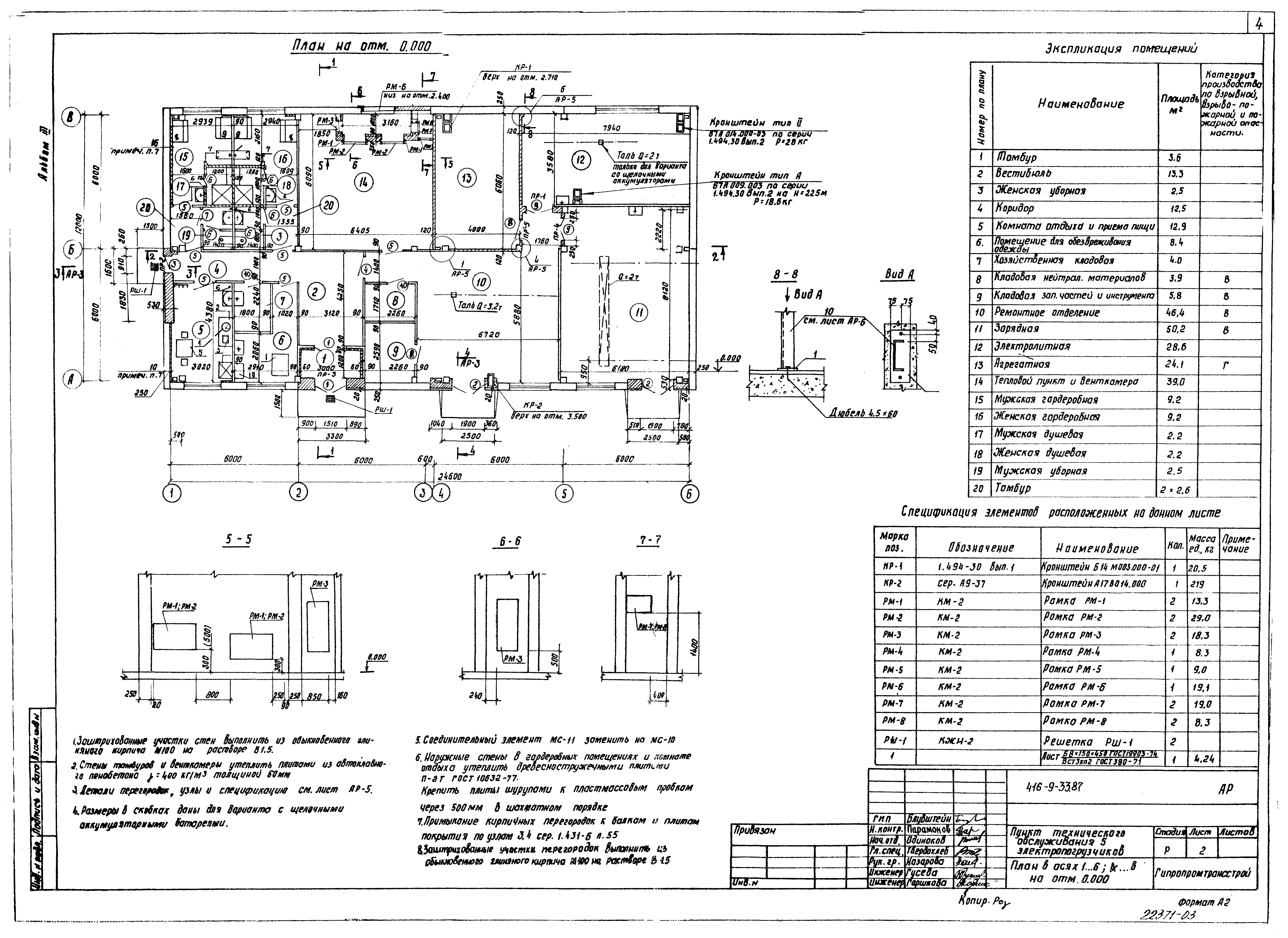
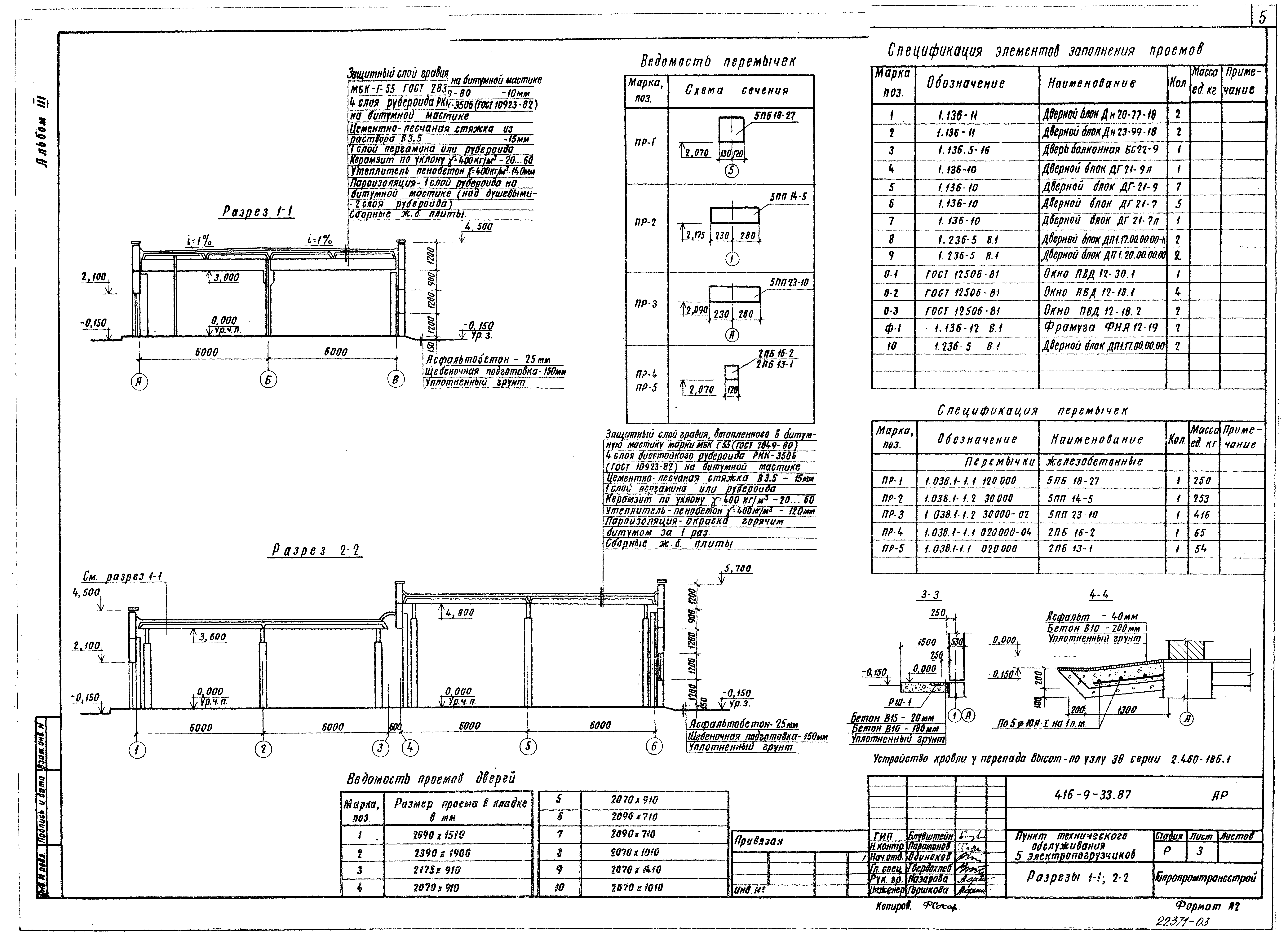
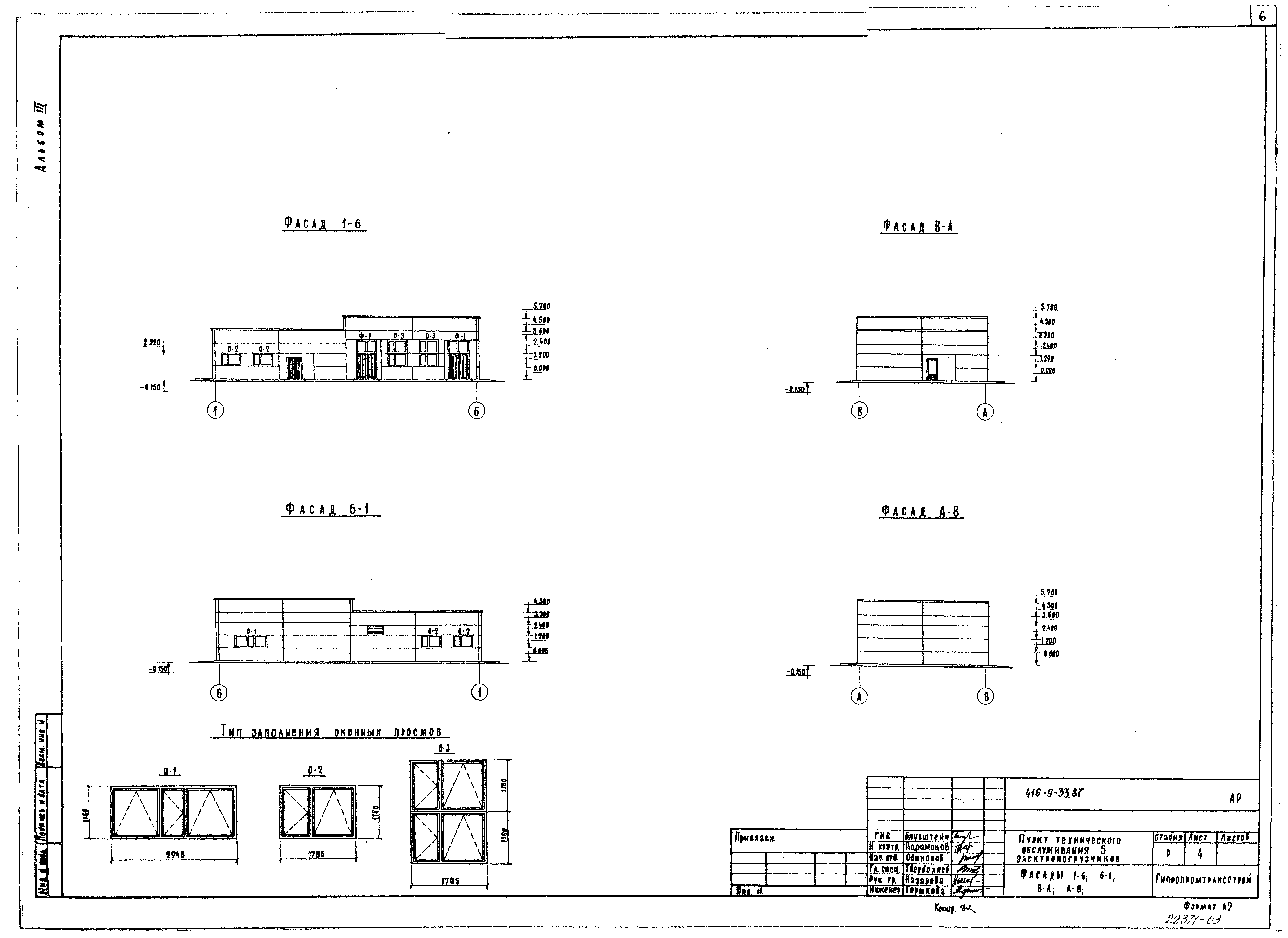
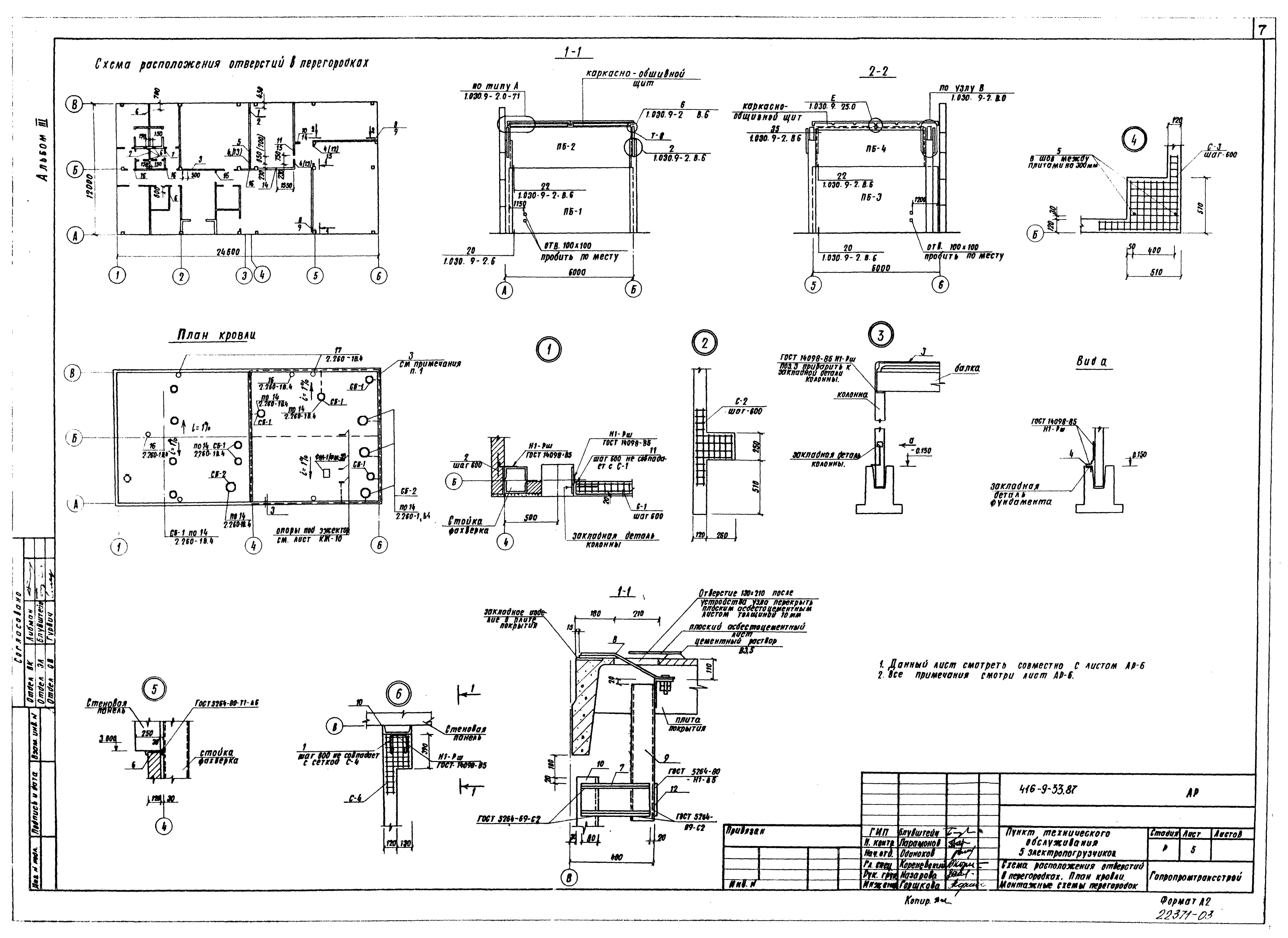
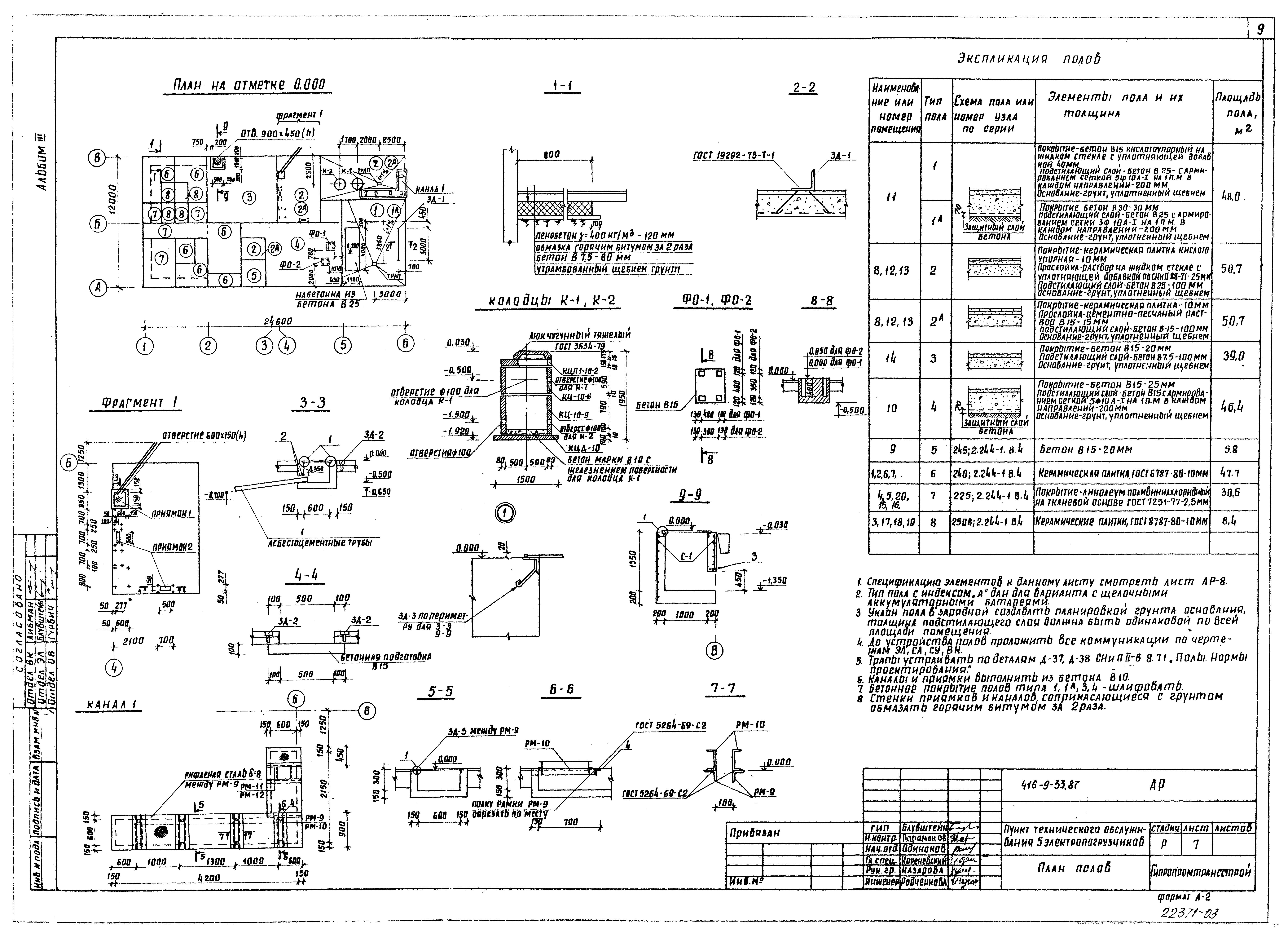
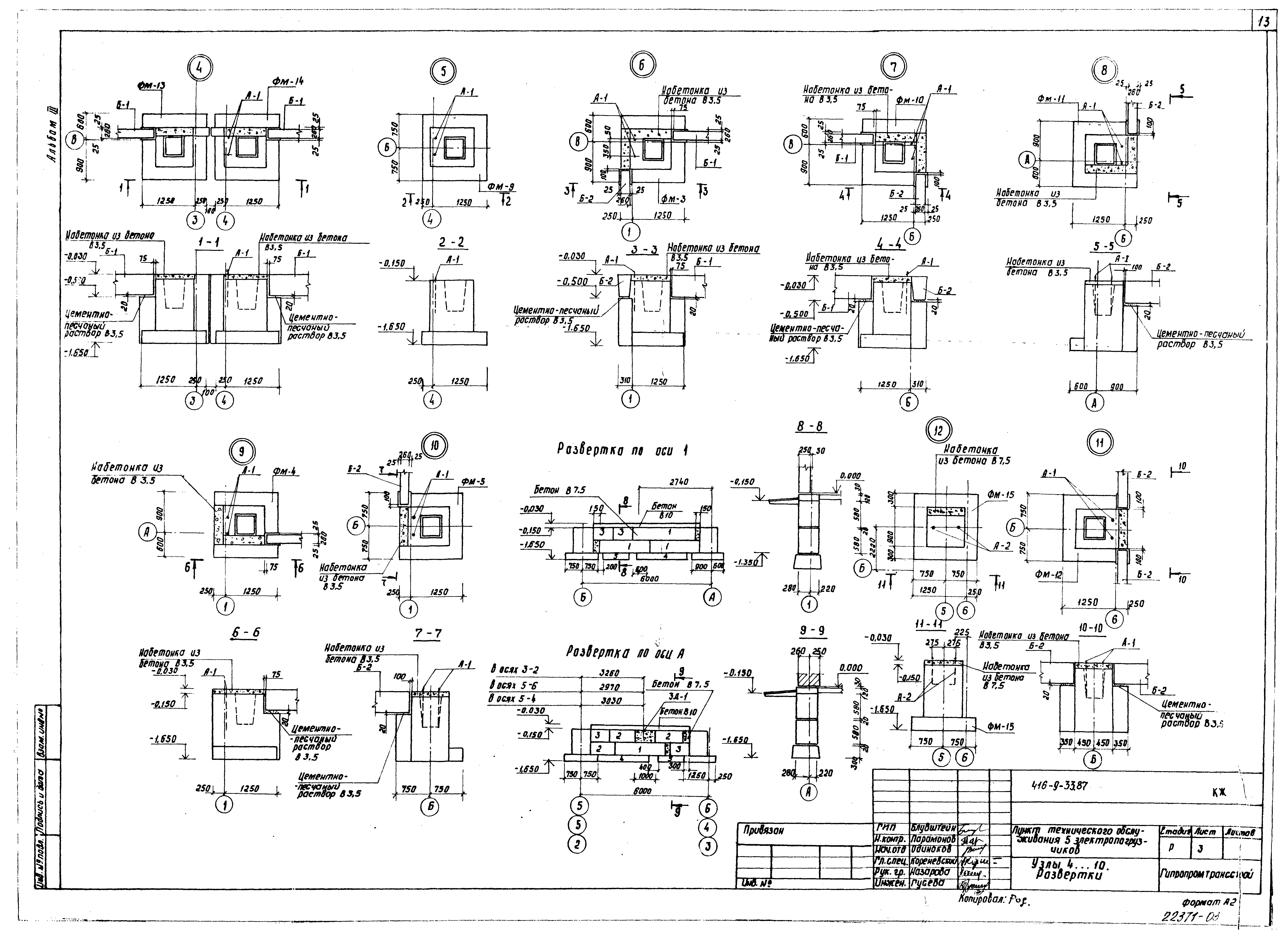
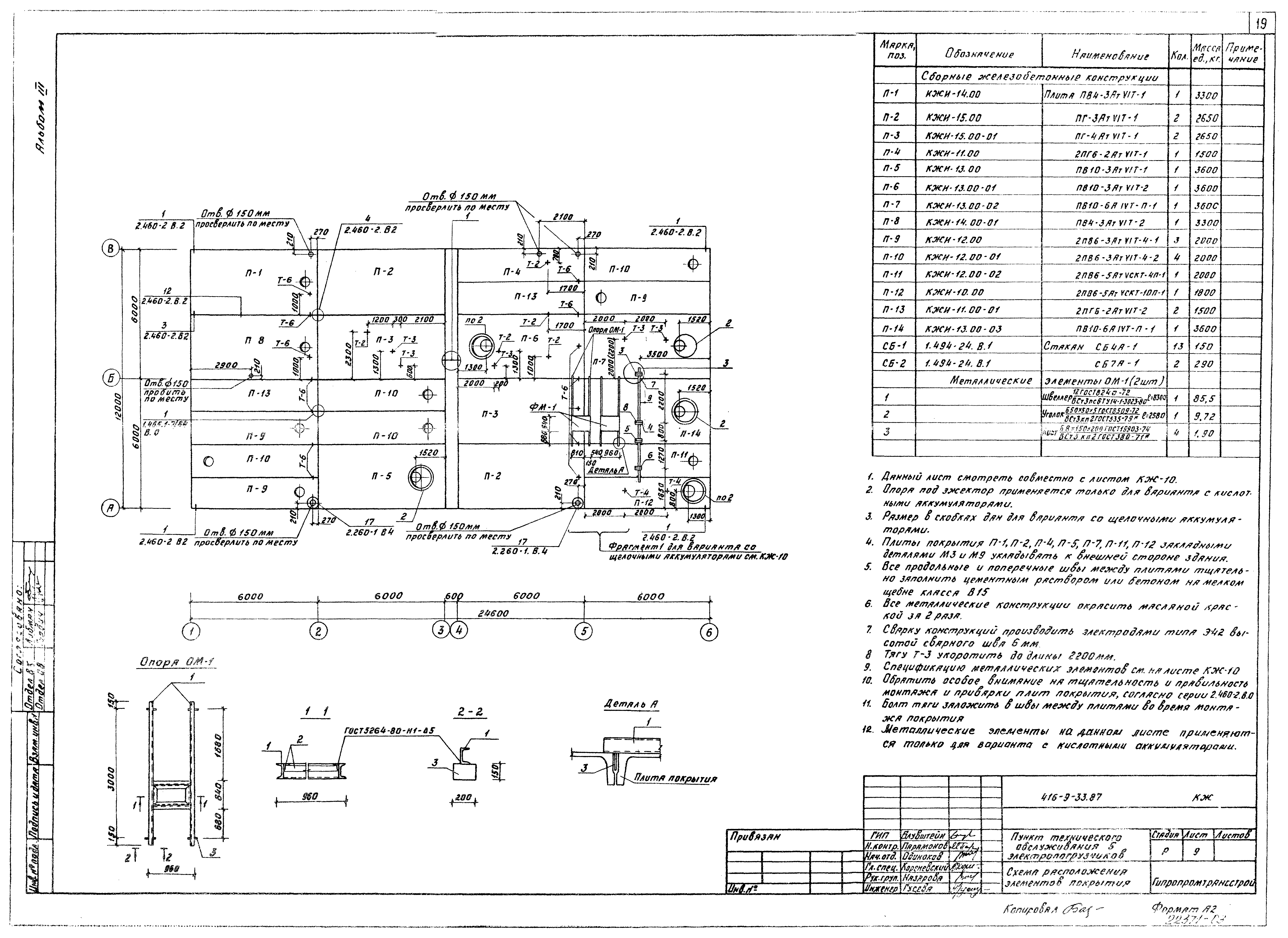
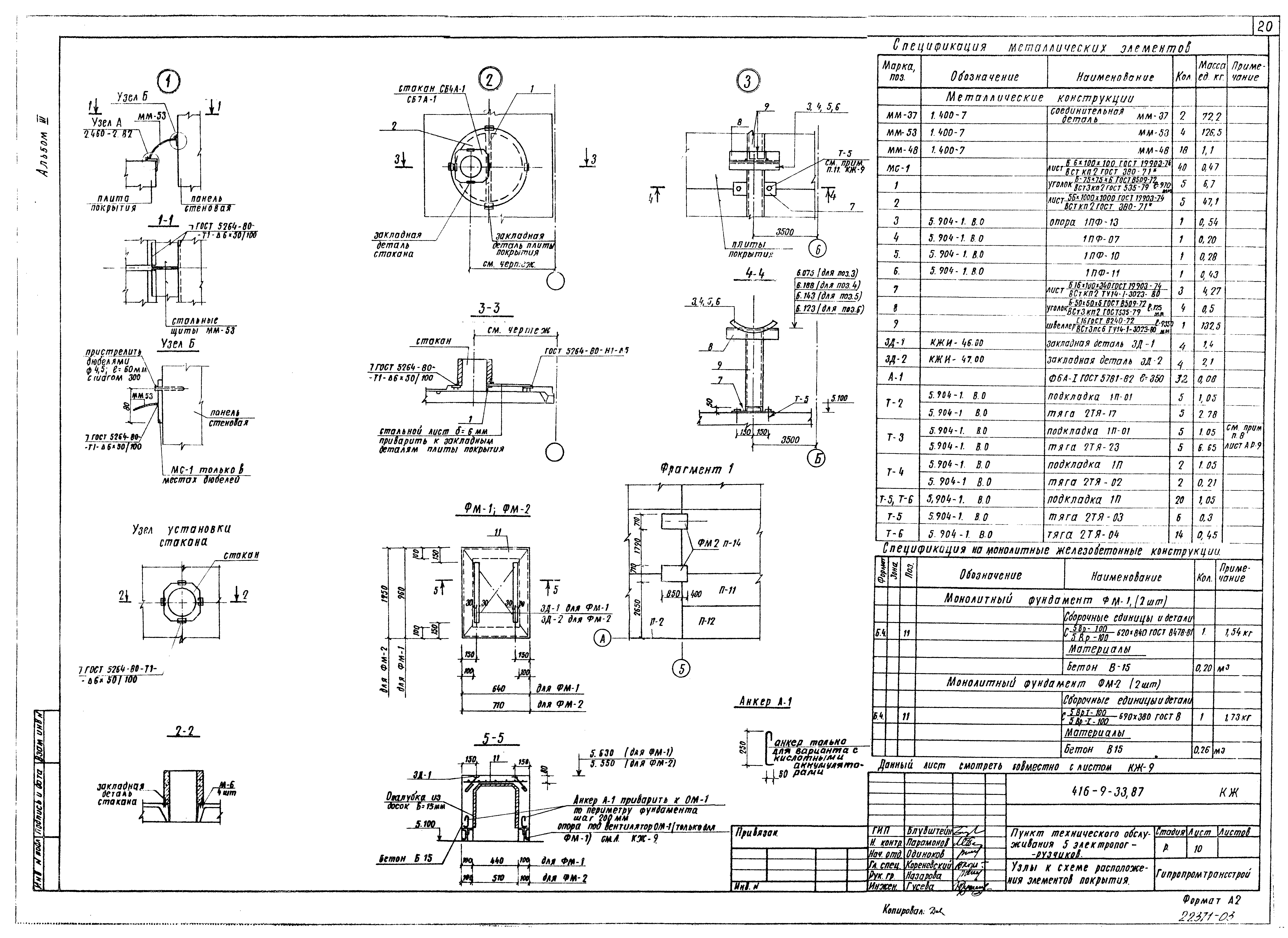
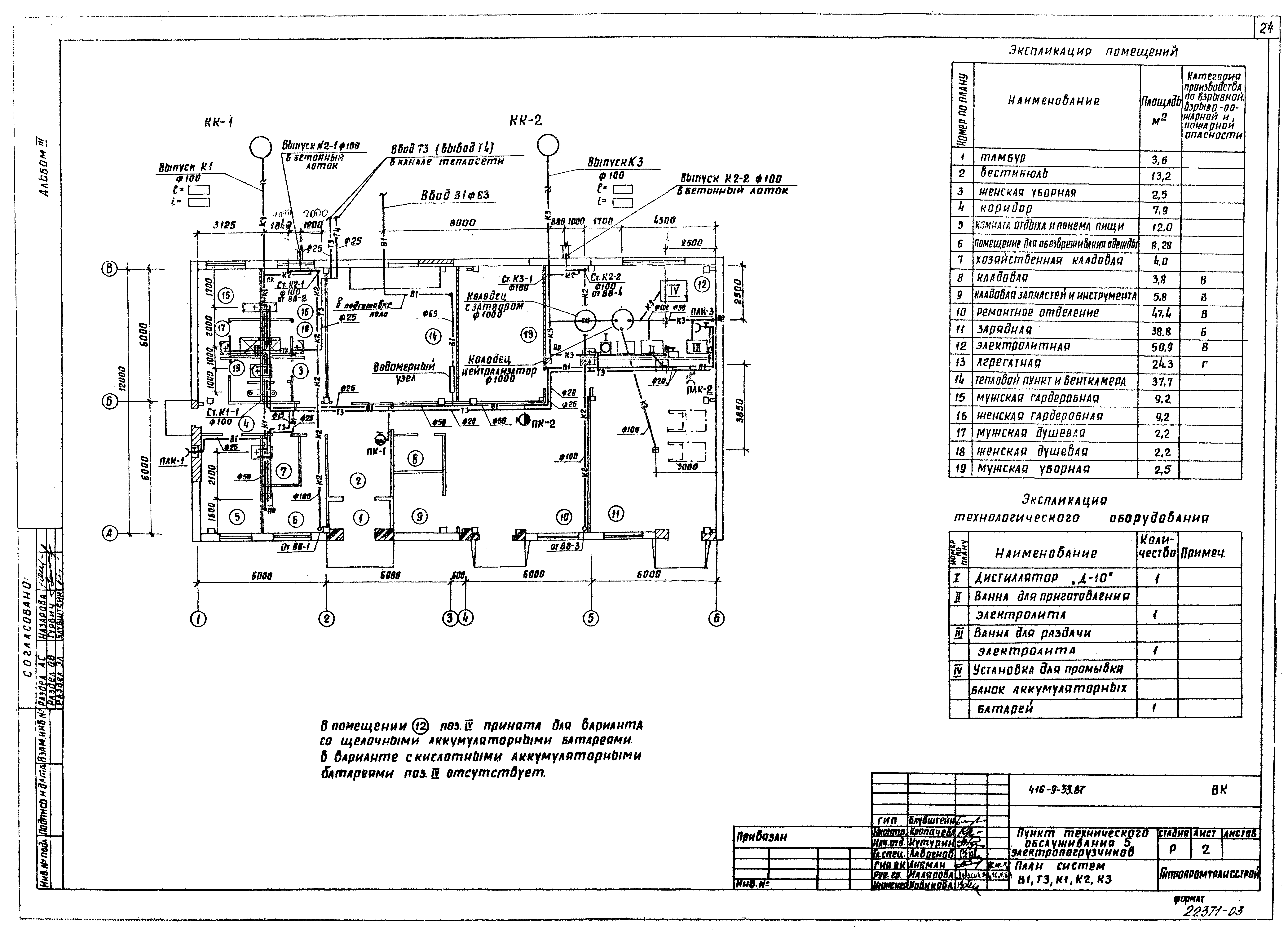
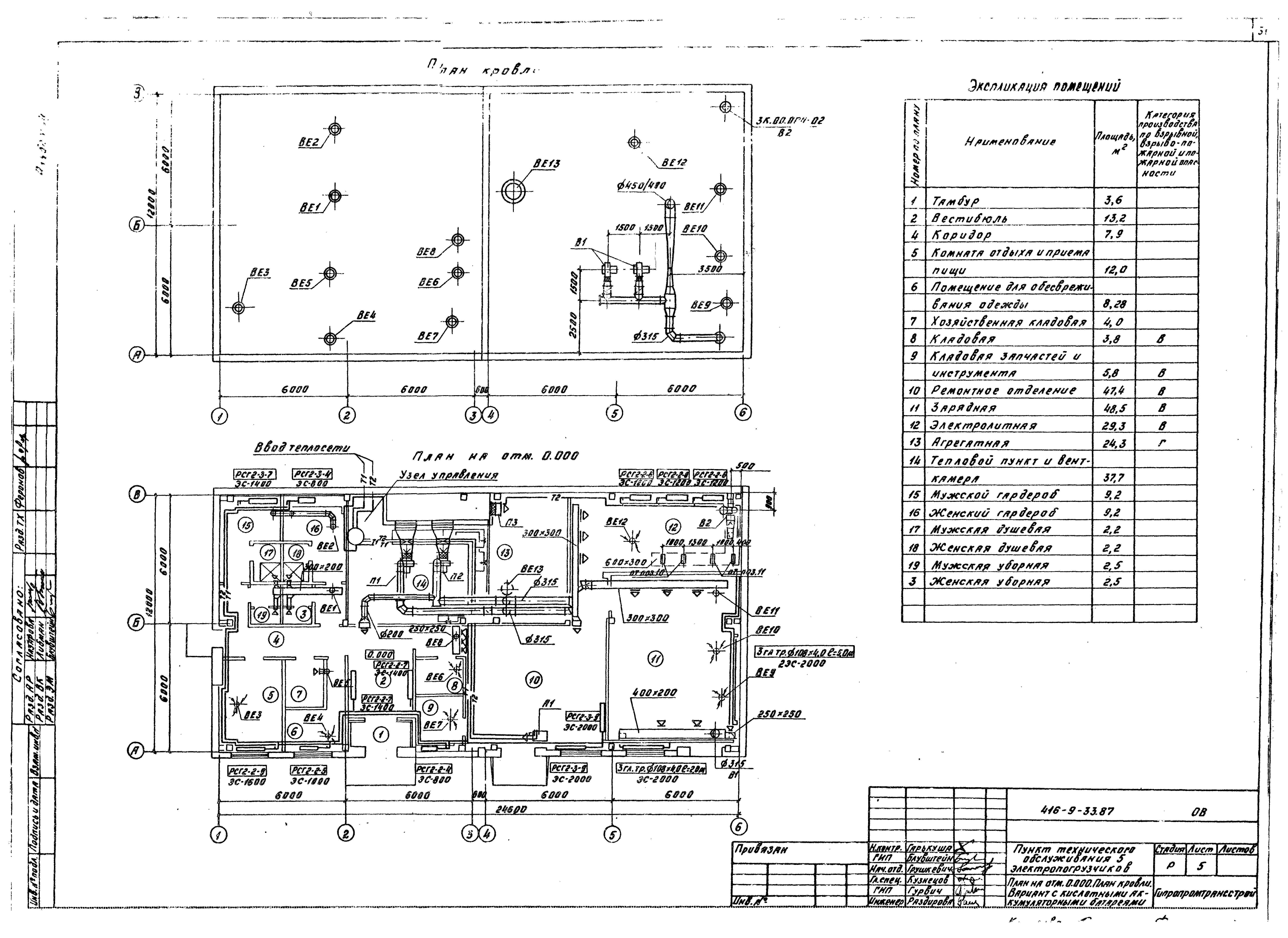
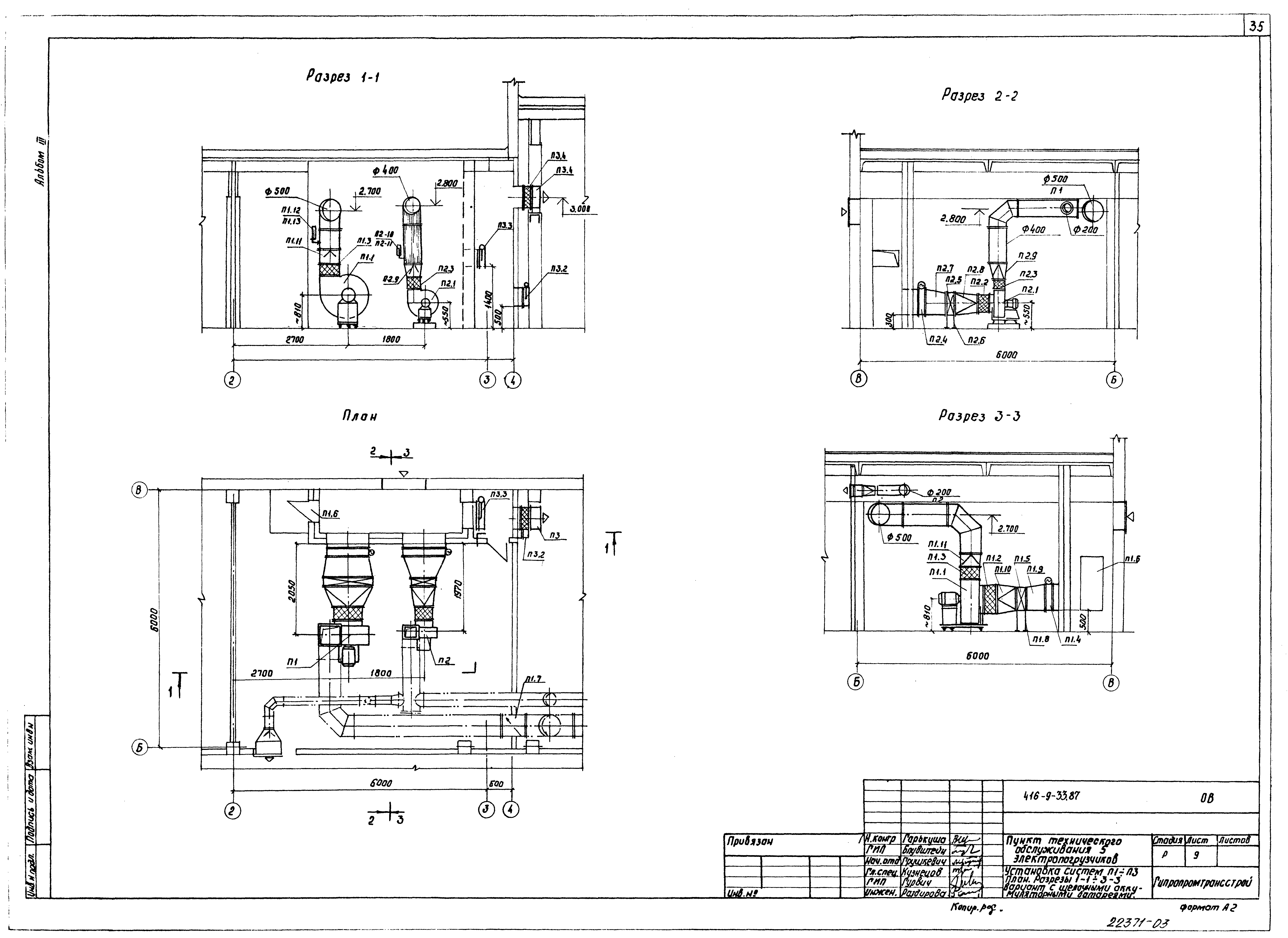
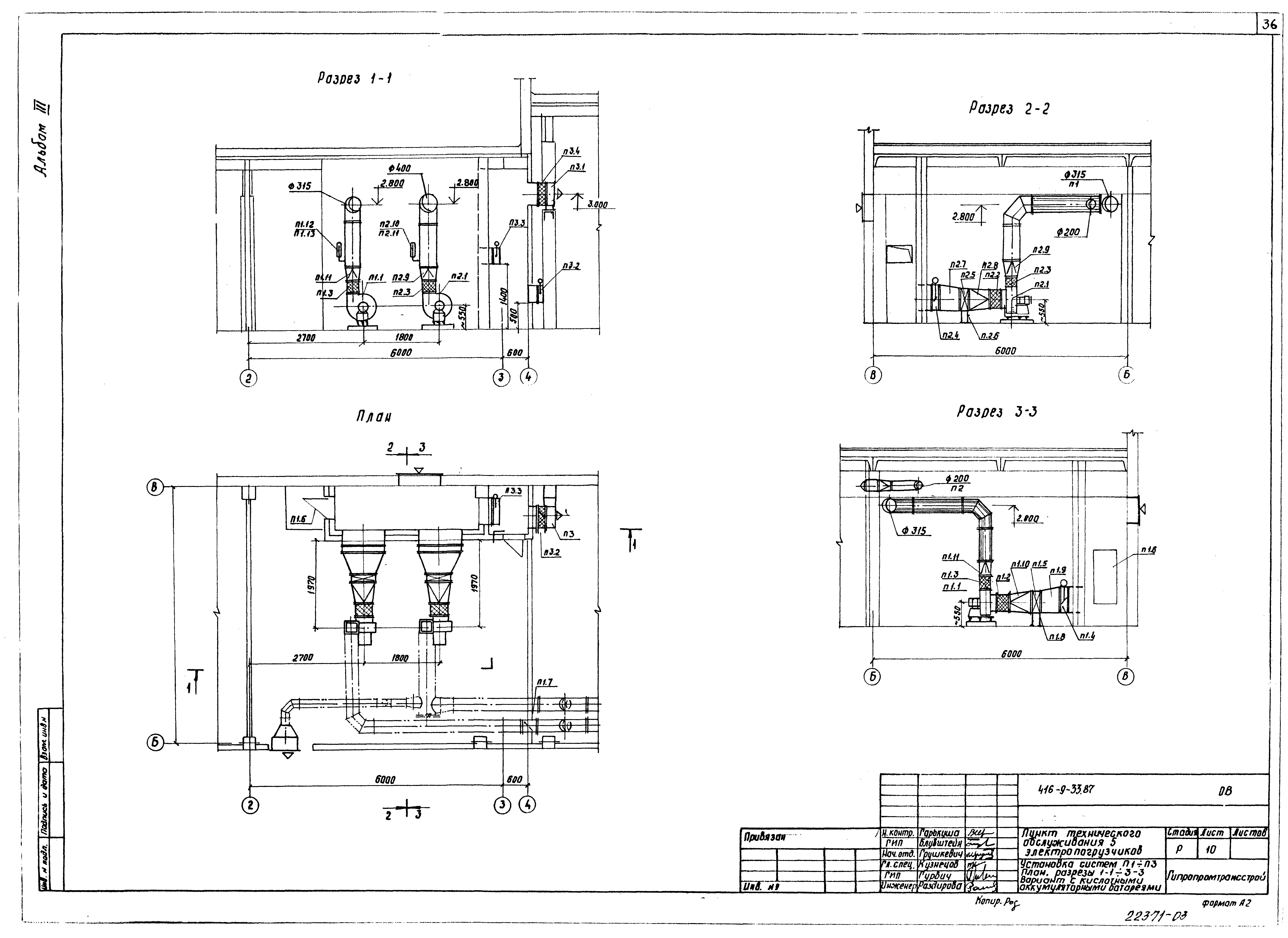
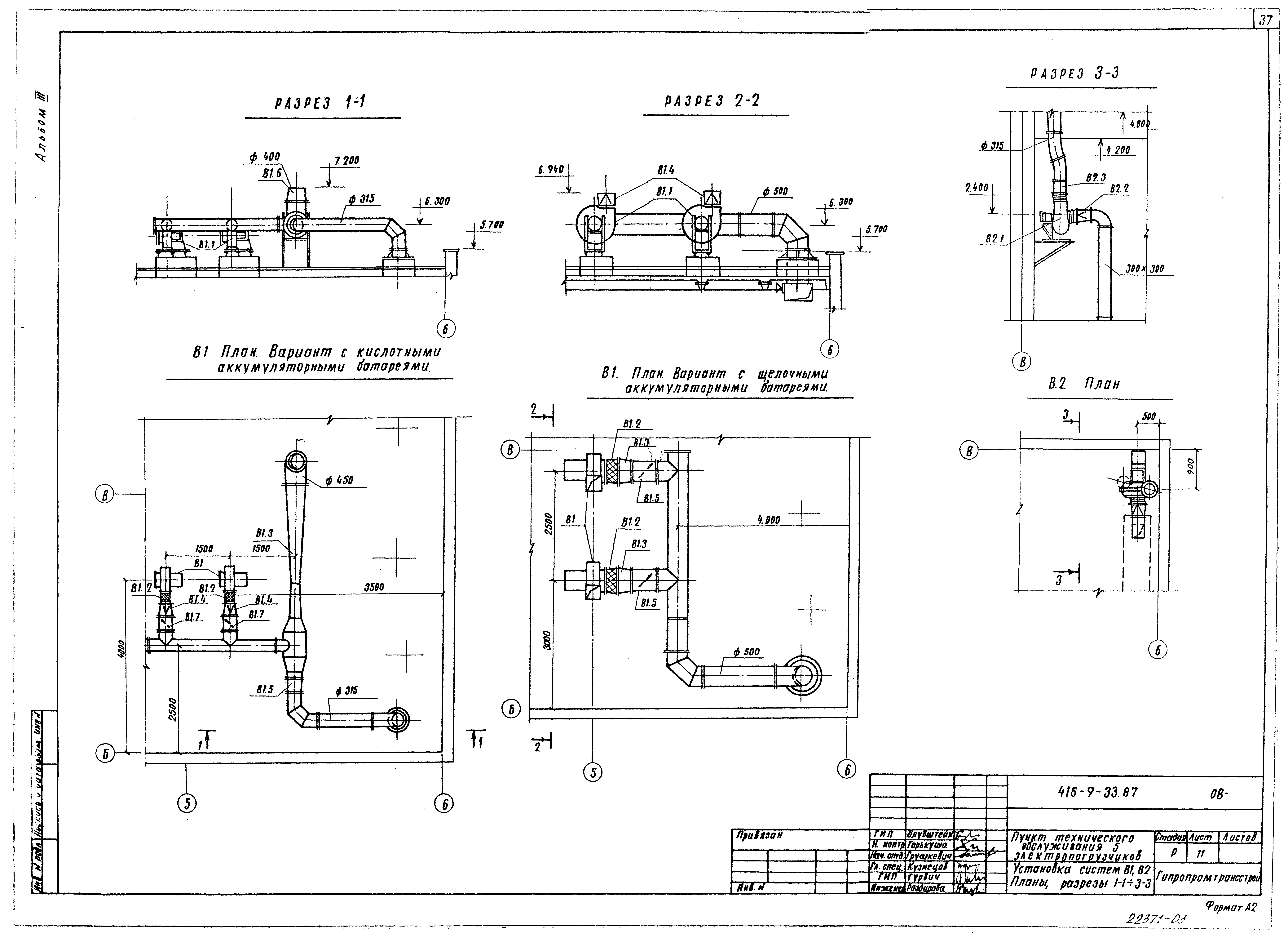
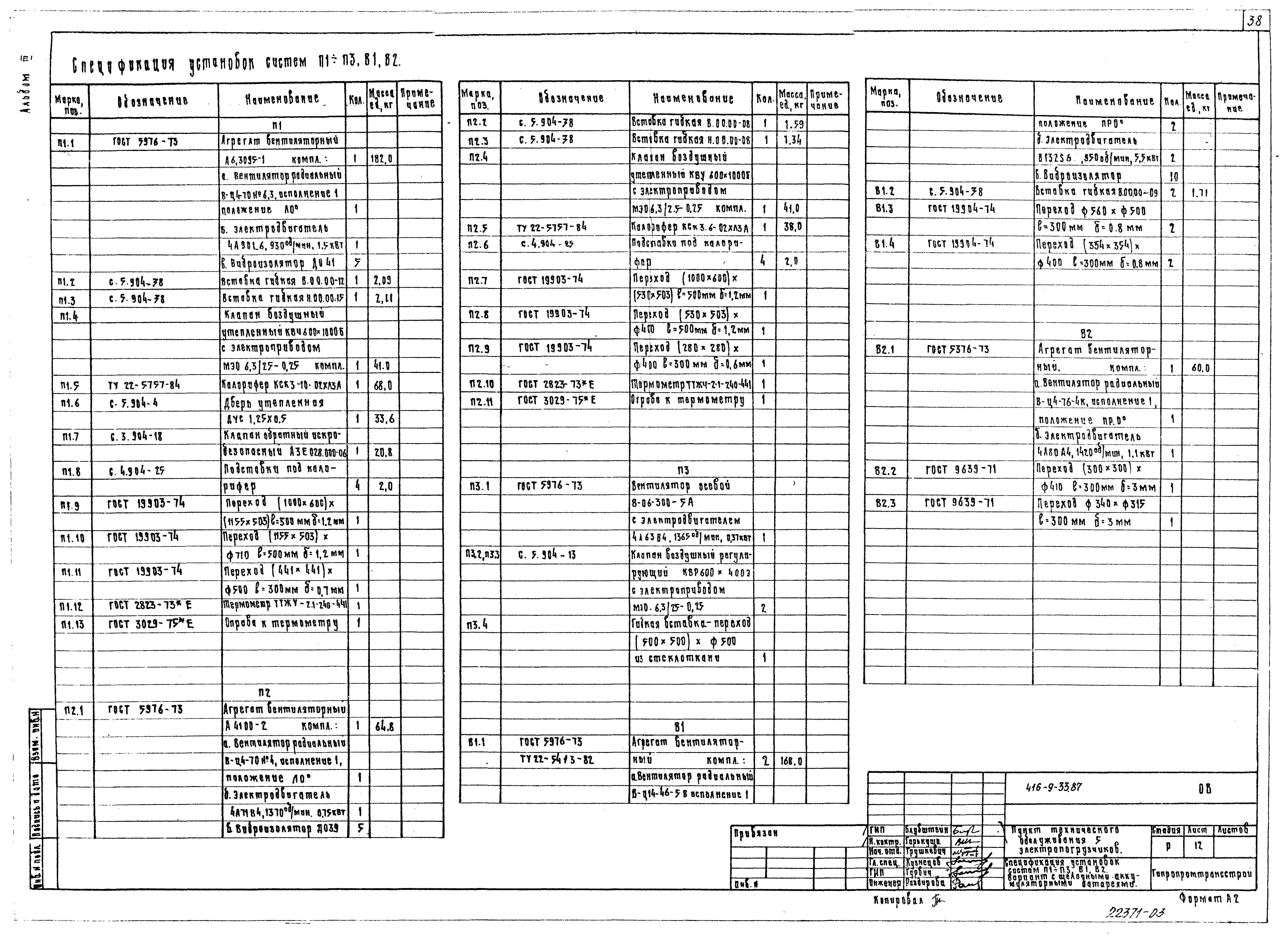
| Оглавление: | Содержание альбома Архитектурно-строительные решения Общие данные План в осях 1…6; А…В на отм. 0.000 Разрезы 1-1, 2-2 Фасады 1 - 6; 6 - 1; В - А, А - В Схема расположения отверстий в перегородках. План кровли. Монтажные схемы перегородок Таблица типов отверстий. Спецификация к схеме расположения перегородок План полов Ведомость отделки помещений. Спецификация элементов к листу АР-7 Конструкции железобетонные Общие данные Схема расположения элементов фундаментов. Узлы Узлы 4…10. Развертки Опалубочные чертежи фундаментов ФМ1…ФМ9, ФМ15 Опалубочные чертежи фундаментов ФМ10…ФМ14. Армирование фундаментов ФМ1…ФМ15. Спецификация Схема расположения элементов каркаса Схема расположения элементов стен по осям "А", "В", "1", "6" Схема расположения элементов стен по оси "4". Узлы. Спецификация Схема расположения элементов покрытия Узлы к схеме расположения элементов покрытия Конструкции металлические Общие данные Схема подвесных крановых путей в осях "5, 6". Схемы монорельсов в осях "4, 5, 6" Внутренний водопровод и канализация Общие данные План системы В1, Т3, К1, К2, К3 Схемы систем В1 и Т3 Схемы систем К1, К2, К3 Отопление и вентиляция Общие данные План на отм. 0.000, план кровли. Вариант с щелочными аккумуляторными батареями План на отм. 0.000, план кровли. Вариант с кислотными аккумуляторными батареями Схемы систем отопления и теплоснабжения установок систем П1, П2, А1 Схемы систем П1 - П3, В1, В2 Схемы систем ВЕ1 - ВЕ13 Установка систем П1 - П3. План. Разрезы 1-1 - 3-3. Вариант с щелочными аккумуляторными батареями Установка систем П1 - П3. План. Разрезы 1-1, 3-3. Вариант с кислотными аккумуляторными батареями Установка систем В1, В2. Планы, разрезы 1-1 - 3-3 Спецификация установок систем П1 - П3, В1, В2. Вариант с щелочными аккумуляторными батареями Спецификация установок систем П1 - П3, В1, В2. Вариант с кислотными аккумуляторными батареями Схема узла управления. Спецификация |
| Разработан: | Гипропромтрансстрой |
| Утверждён: | 02.07.1987 Министерство путей сообщения СССР (USSR Ministry of Railroads 3619У) |
| Издан: | ЦИТП Госстроя СССР (CITP, Gosstroy (USSR) 1988 г. ) |









































