Скачать Типовой проект 902-2-72 Альбом I. Пояснительная записка и чертежиДата актуализации: 01.01.2021
|
| Обозначение: | Типовой проект 902-2-72 |
| Обозначение англ: | 902-2-72 |
| Статус: | действует |
| Название рус.: | Альбом I. Пояснительная записка и чертежи |
| Дата добавления в базу: | 01.09.2013 |
| Дата актуализации: | 01.01.2021 |
| Дата введения: | 01.01.1967 |
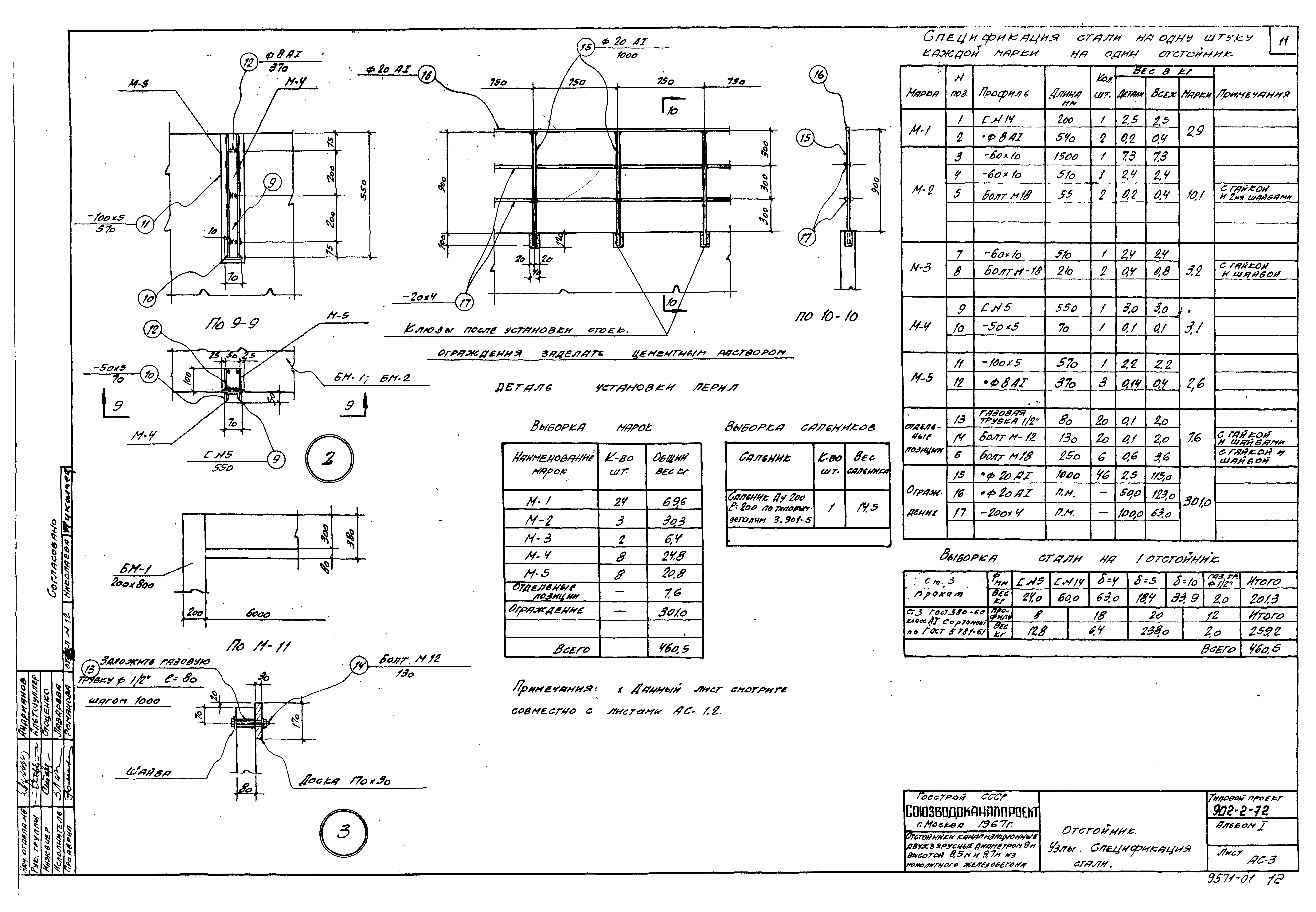
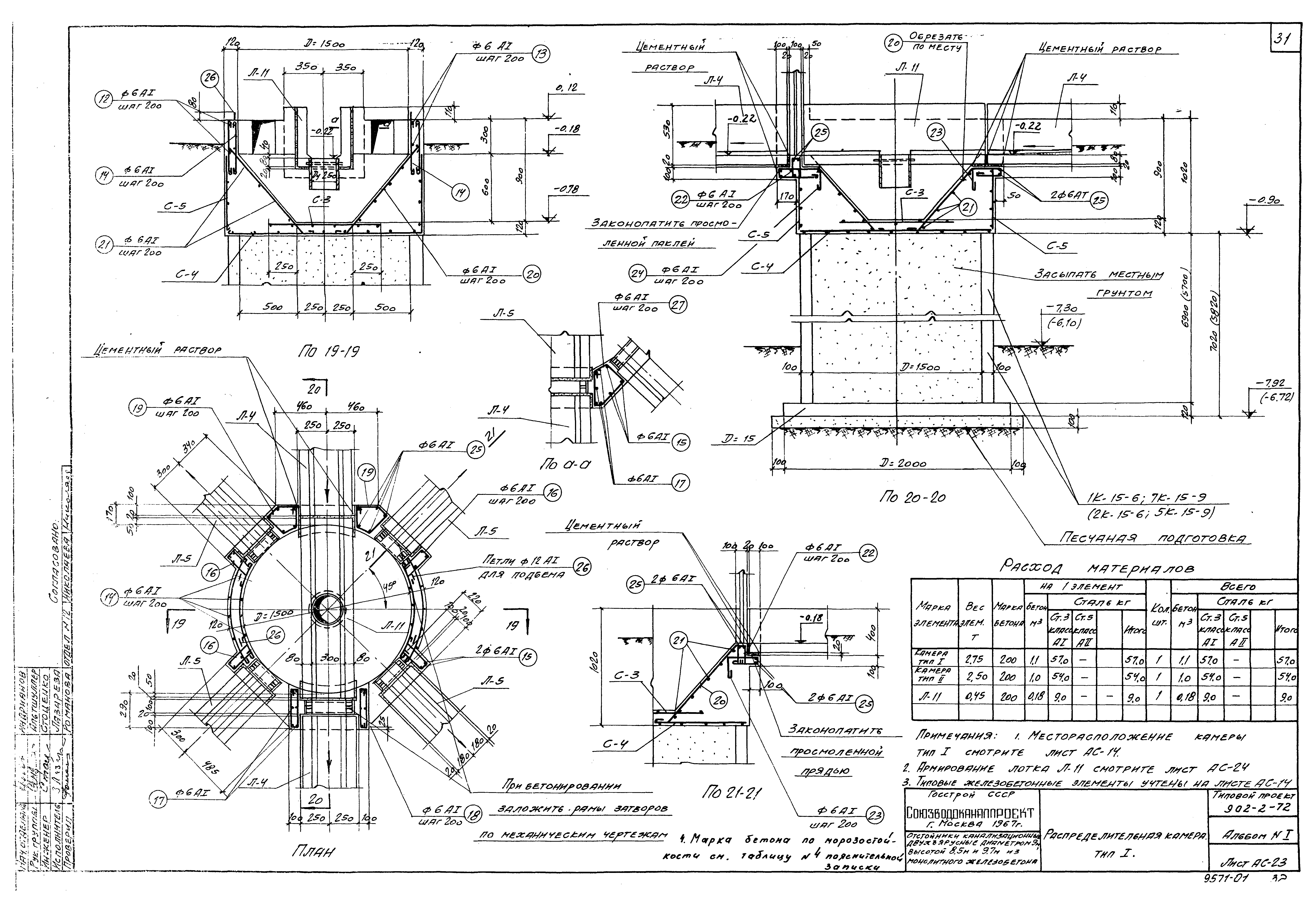
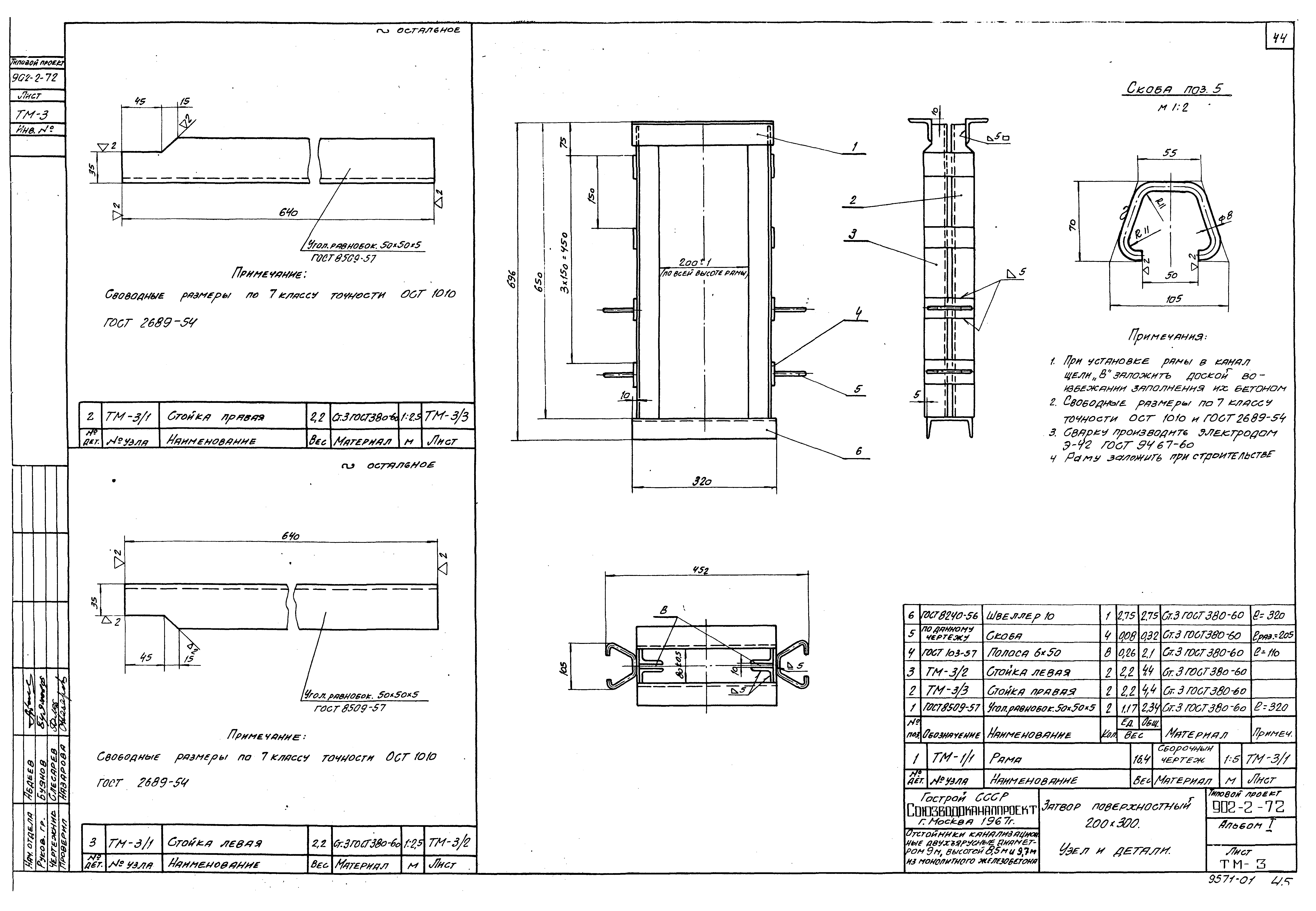
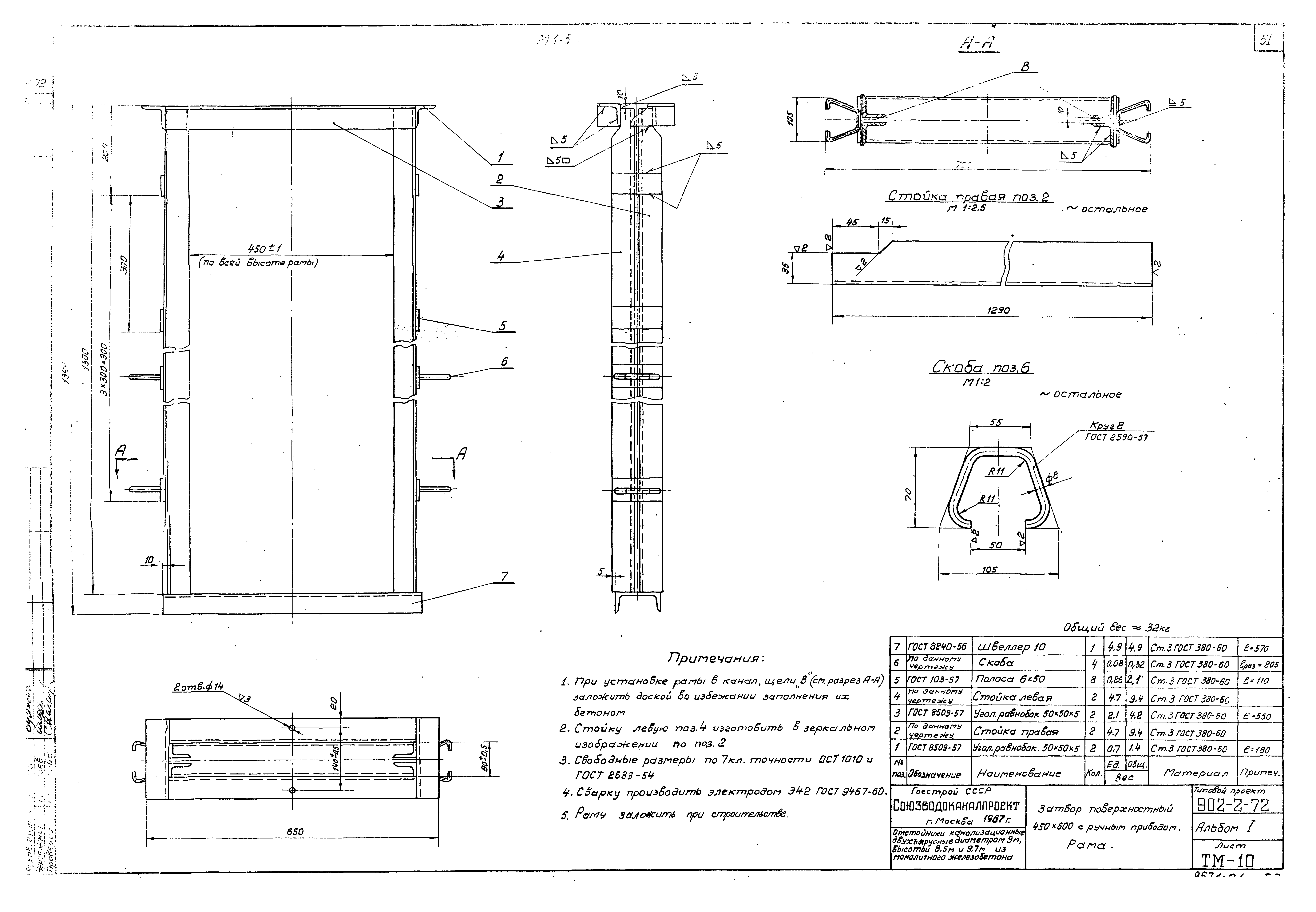
| Оглавление: | Содержание альбома Заглавный лист Пояснительная записка Архитектурно-строительные чертежи Отстойник. План, разрез Отстойник. Сечения. Узлы Отстойник. Узлы. Спецификация стали Деревянные щиты Щ-1 - Щ-4 Отстойник. Опалубочный чертеж. План, разрез, сечения Отстойник. Армирование балок БМ-1, БМ-2. Расход материалов Отстойник. Армирование балок БМ-1, БМ-2 и лотков. Сетки и каркасы. Спецификация и выборка арматуры Арматурный чертеж отстойника. Разрез. Раскладка арматуры в днище для Н = 8500 Арматурный чертеж отстойника. Раскладка внутренних и наружных сеток в стенке для Н = 8500 Арматурный чертеж отстойника. Сетки и спецификация арматуры для Н = 8500 Арматурный чертеж отстойника. Разрез. Раскладка арматуры в днище для Н = 9700 Арматурный чертеж отстойника. Раскладка внутренних и наружных сеток в стенке для Н = 9700 Арматурный чертеж отстойника. Сетки и спецификация арматуры для Н = 9700 Компоновка из 4-х отстойников. План расположения лотков. Спецификация сборных железобетонных элементов Компоновка из 9-и отстойников. План расположения лотков. Спецификация железобетонных элементов Детали узлов Детали узлов. Узел "11" Детали узлов. Узел "19" Колодцы №1, 2, 3, 4 Распределительная камера. Тип I Распределительная камера. Тип II Распределительные камеры тип I и II. Сетки и спецификации арматуры Лотки Л-1, Л-2, Л-3 Лотки Л-6, Л-7 Лотки Л-4, Л-8 Лотки Л-9, Л-10 Лоток Л-5. Муфты Мл-1, Мл-2, Мл-3 Лоток Л-5. Муфты Мл-1, Мл-2, Мл-3. Спецификация арматуры Технологические чертежи План, разрез и сечения отстойника Иловые колодцы. Планы и разрезы. Спецификация Чертежи нестандартного оборудования Затвор поверхностный 200х300. Общий вид и узел Затвор поверхностный 200х300. Узлы и детали Затвор поверхностный 300х450 с ручным приводом. Общий вид Затвор поверхностный 300х450 с ручным приводом. Узел и детали Затвор поверхностный 450х600 с ручным приводом. Общий вид Затвор поверхностный 450х600 с ручным приводом. Рама Затвор поверхностный 450х600 с ручным приводом. Узел и детали Колонка для управления задвижкой 30ч6бр Ру10; Ду200. Общий вид. Детали Колонка для управления задвижкой 30ч6бр Ру10; Ду200. Узлы Колонка для управления задвижкой 30ч6бр Ру10; Ду200. Детали Сборная камера. Сетка для трубы Ду300. Общий вид. Узлы, детали |
| Разработан: | Союзводоканалниипроект |
| Утверждён: | 01.01.1967 Госстрой СССР (Государственный комитет Совета Министров СССР по делам строительства) (USSR Gosstroy ) |


























































