Скачать Типовой проект 416-7-235.86 Альбом II. Внутренние водопровод и канализация. Отопление и вентиляция. Силовое электрооборудование. Электроосвещение. Связь и сигнализация. Автоматизация сантехсистемДата актуализации: 01.01.2021
|
| Обозначение: | Типовой проект 416-7-235.86 |
| Обозначение англ: | 416-7-235.86 |
| Статус: | действует |
| Название рус.: | Альбом II. Внутренние водопровод и канализация. Отопление и вентиляция. Силовое электрооборудование. Электроосвещение. Связь и сигнализация. Автоматизация сантехсистем |
| Дата добавления в базу: | 01.09.2013 |
| Дата актуализации: | 01.01.2021 |
| Дата введения: | 19.08.1986 |
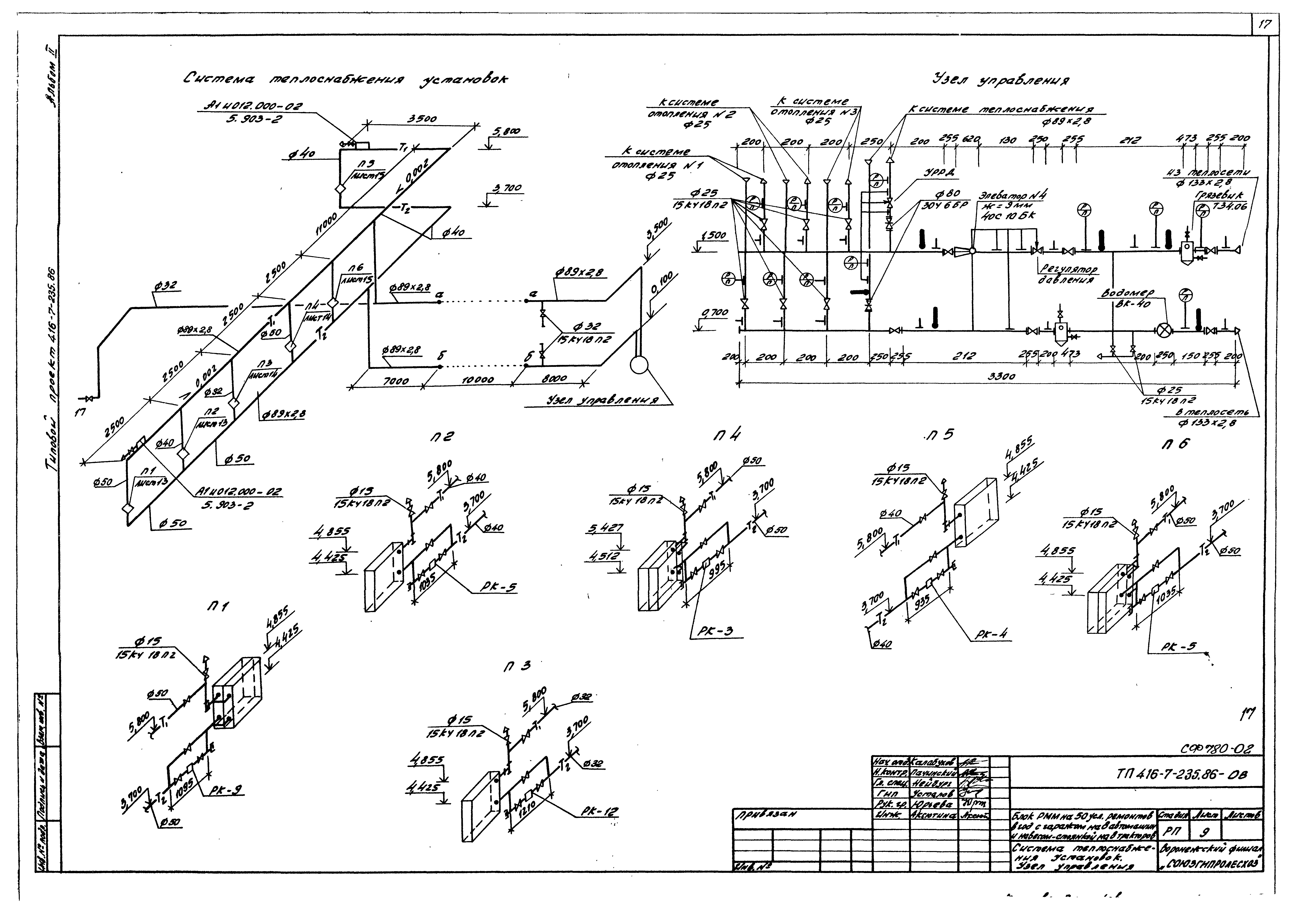
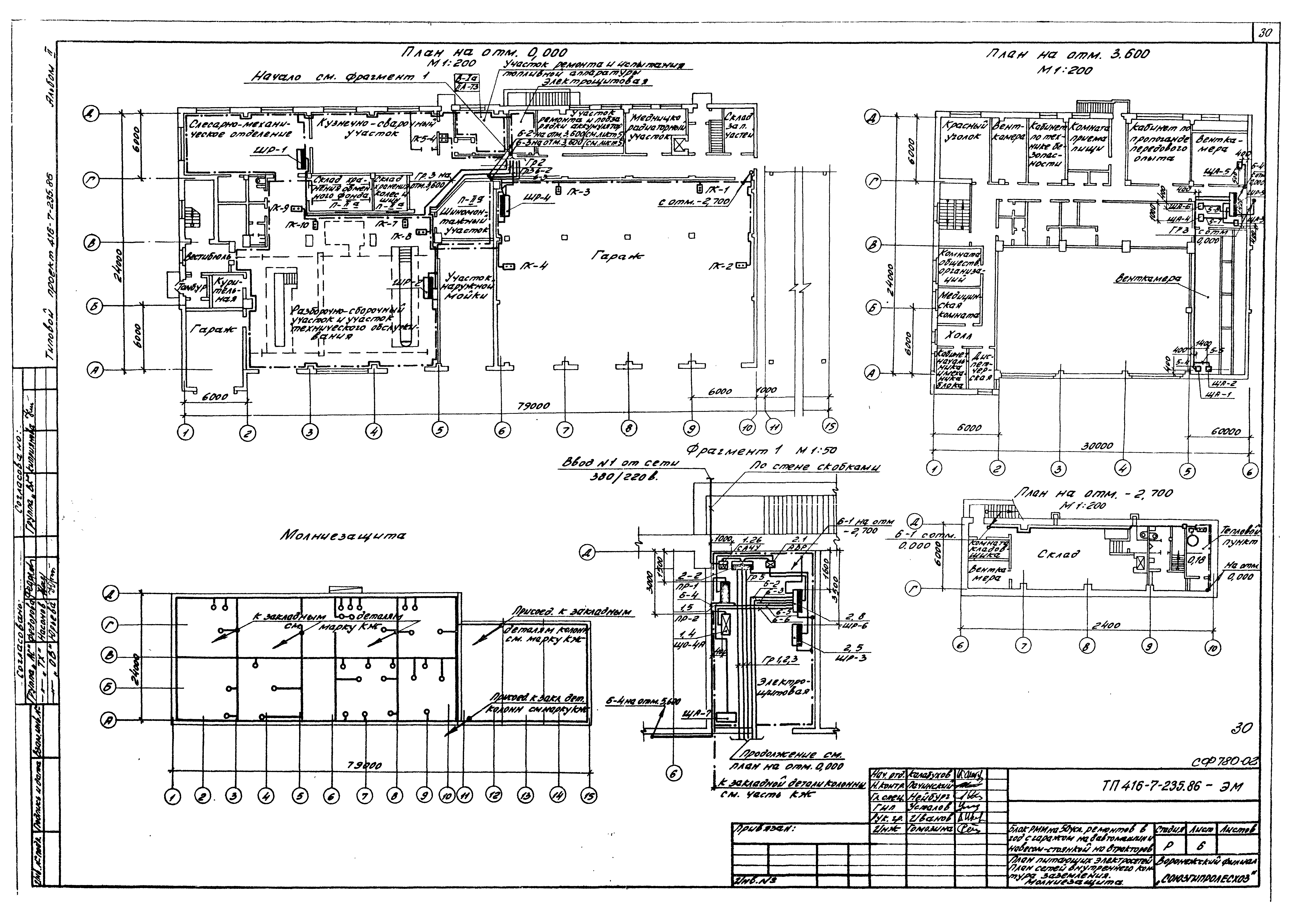
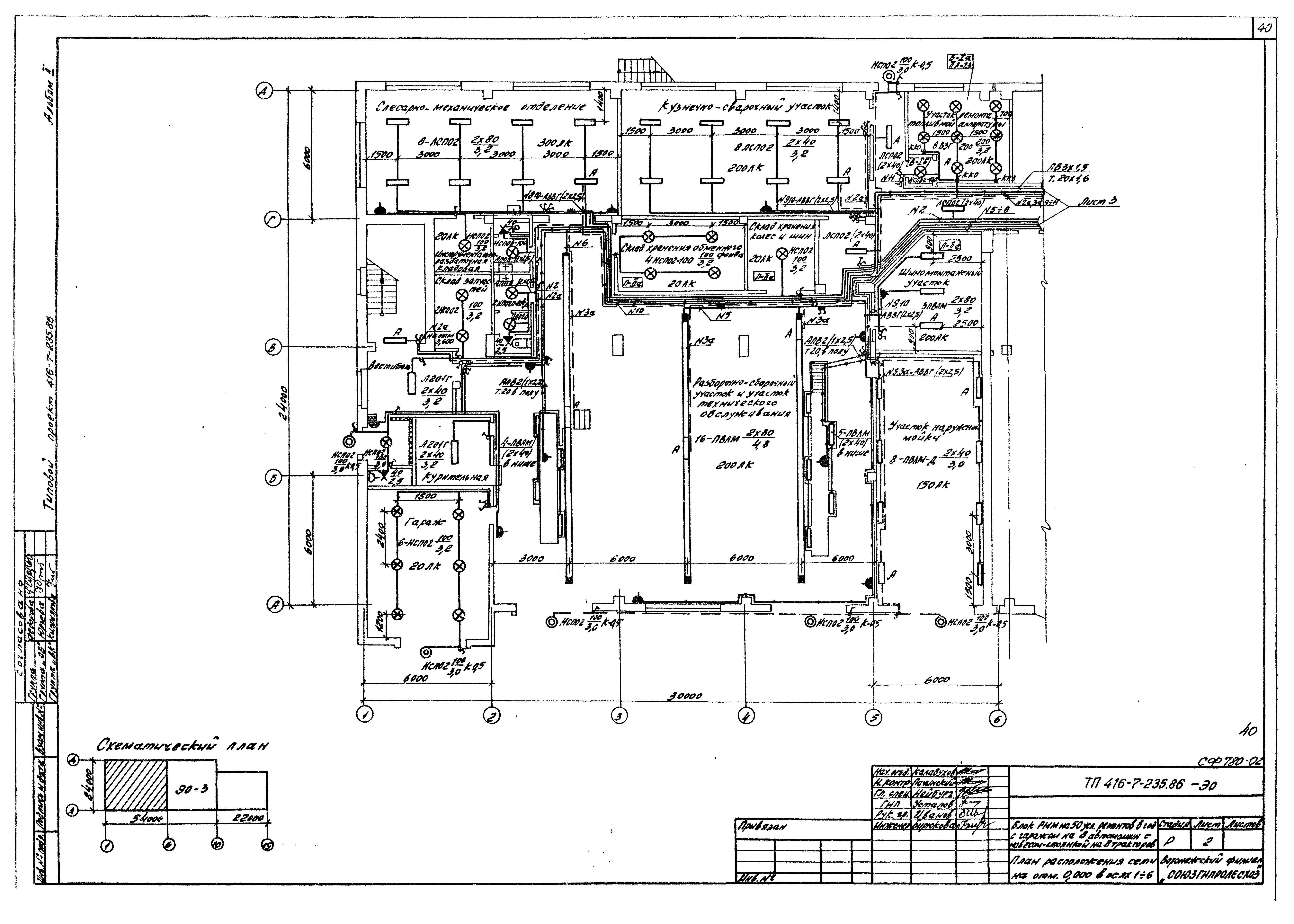
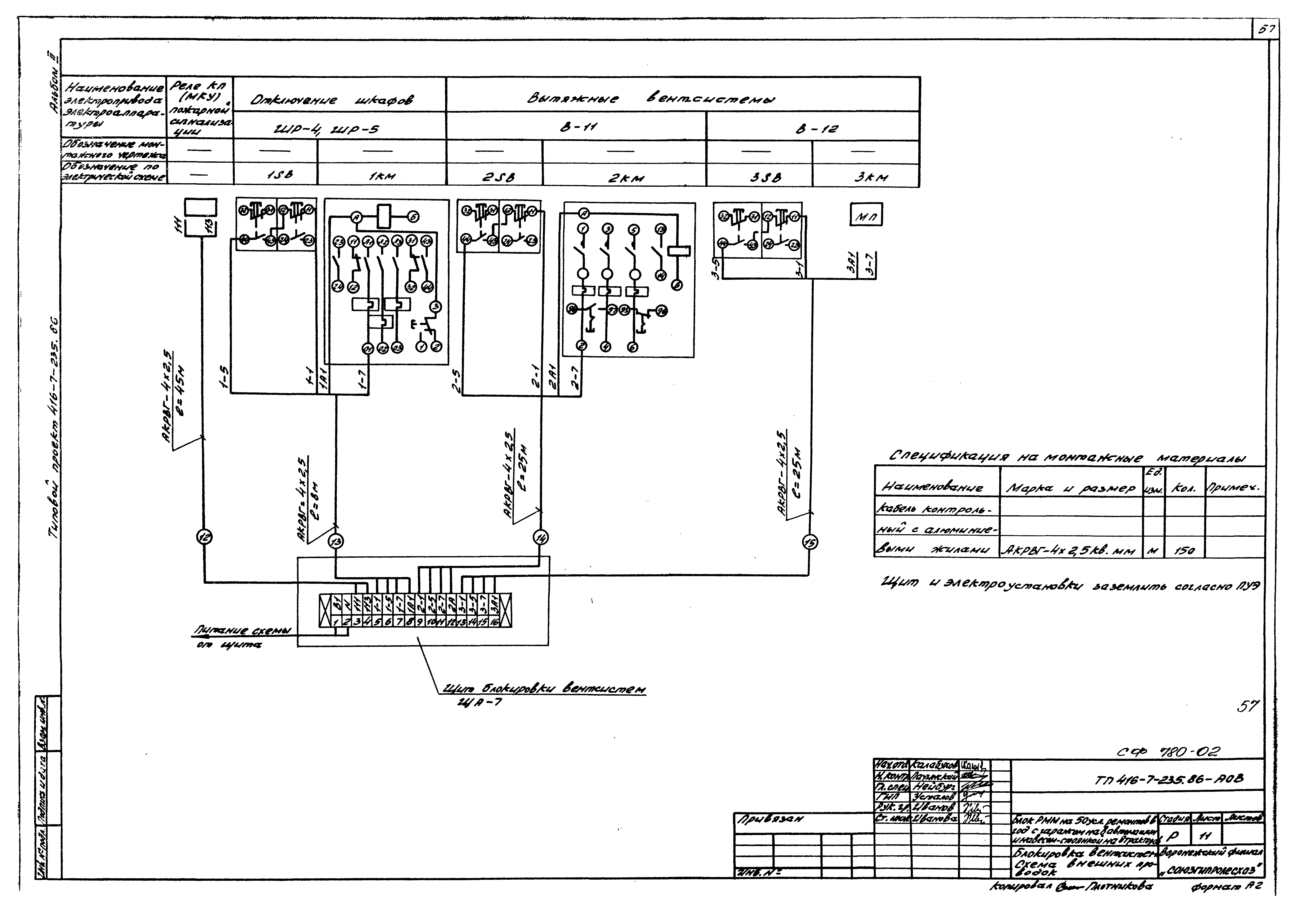
| Оглавление: | Внутренние водопровод и канализация Общие данные План систем на отм. 0.000 между осями 1 - 6 и Д - А План систем на отм. 0.000 между осями 6 - 10 и Д - А и на отм. - 2.700 и - 2.300 между осями 9 - 10 и Д - Г План систем на отм. 3.600 между осями 1 - 6 и Д - А Схемы систем К1, К3, В5, В6 Схемы систем В1, Т3, Т4 Отопление и вентиляция Общие данные Отопление и вентиляция. План на отм. 0.000 в осях 1 - 6 Отопление и вентиляция. План на отм. 0.000; - 2.700 в осях 6 - 10 Отопление и вентиляция. План на отм. 3.600 в осях 1 - 6 Отопление. Схемы систем отопления 1, 2, 3 Система теплоснабжения установок. Узел управления Вентиляция. Разрез 1-1, 2-2, 3-3 Вентиляция. Схемы систем В1…В15, ВЕ3, ВЕ10 Вентиляция. Схемы систем П1, П2, П3, П4, П5, П6 Вентиляция. Установки систем П1, П2 Вентиляция. Установки систем П3, П4 Вентиляция. Установки систем П5, П6 Вентиляция. Установки систем В14, В15 Силовое электрооборудование Общие данные План силового электрооборудования на отм. 0.000 между осями 1 - 6 План силового электрооборудования на отм. 0.000 между осями 6 - 10 План силового электрооборудования на отм. 3.600 План питающих электросетей. План сетей внутреннего контура заземления Молниезащита Расчетная схема сети 380/220 В Принципиальная электрическая схема управления пожарной задвижкой Пожарная задвижка. Схема внешних проводок Силовое электрооборудование. Схема управления зарядным устройством Силовое электрооборудование. Схема управления точильно-шлифовальным станком Электроосвещение Общие данные План расположения сети на отм. 0.000 между осями 1 - 6 План расположения сети на отм. 0.000 между осями 6 - 10 План расположения сети на отм. 3.600 План расположения сети на отм. 0.000 между осями 10 - 15 на отм. - 2.700. Принципиальная схема питающей сети Связь и сигнализация Общие данные Планы расположения сетей Схемы расположения сетей Автоматизация сантехсистем Общие данные Приточная система П1 (П2 - П4, П6). Схема функциональная Приточная система П5. Схема функциональная Приточная система П1 (П2 - П4, П6). Схема электрическая принципиальная управления Приточная система П1 (П2 - П4, П6). Схема электрическая принципиальная регулирования Приточная система П1 (П2 - П4, П6). Схема внешних проводок Приточная система П5. Схема электрическая принципиальная управления Приточная система П5. Схема внешних проводок Блокировка вентсистем. Схема электрическая принципиальная Блокировка вентсистем. Схема внешних проводок Щит блокировки ЩА-7. Общий вид Щит блокировки ЩА-7. Технические данные электрооборудования Щит блокировки ЩА-7. Схема соединений Планы расположения |
| Разработан: | Союзгипролесхоз |
| Утверждён: | 13.08.1986 Гослесхоз СССР (USSR Gosleskhoz 25) |




























































