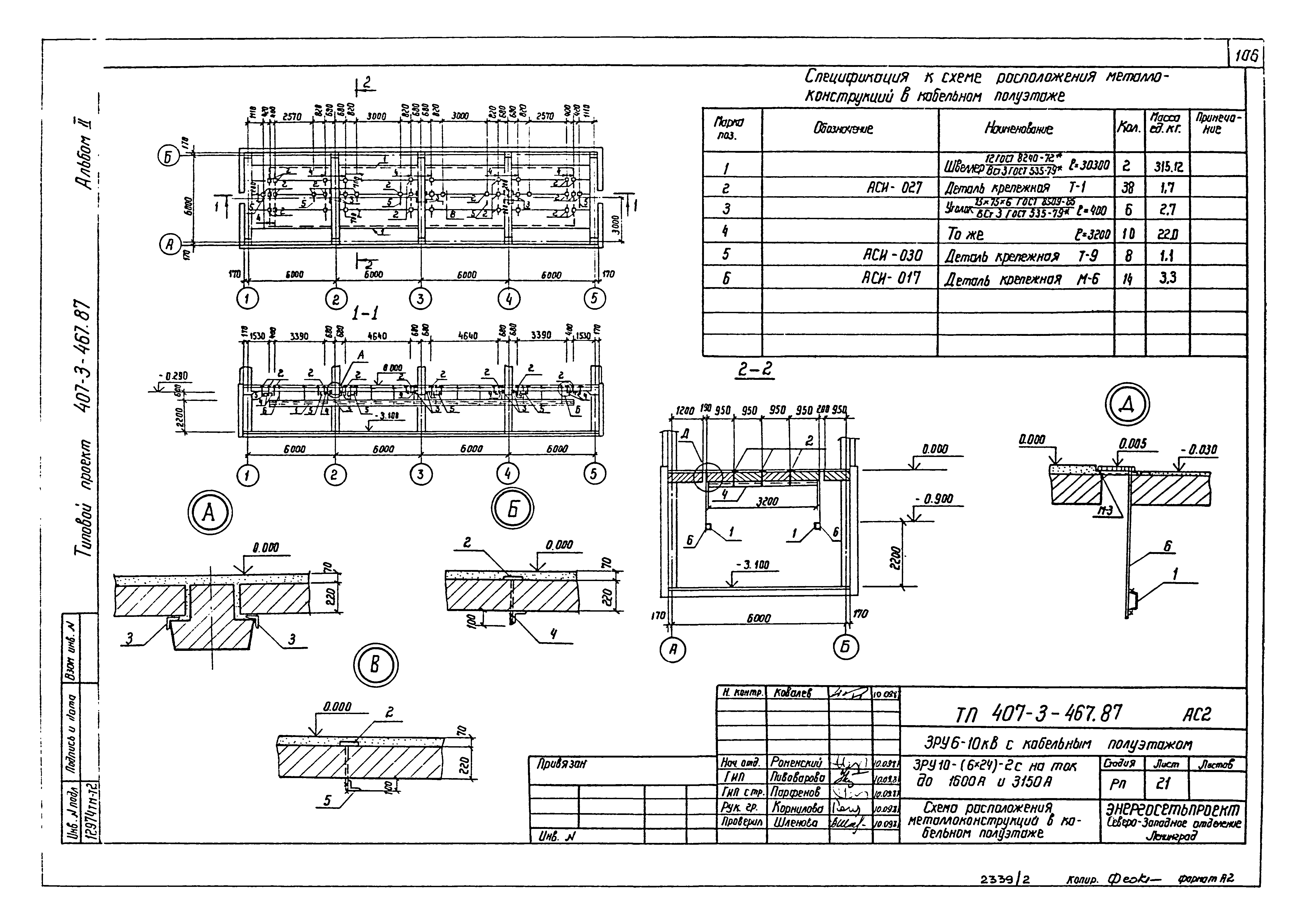
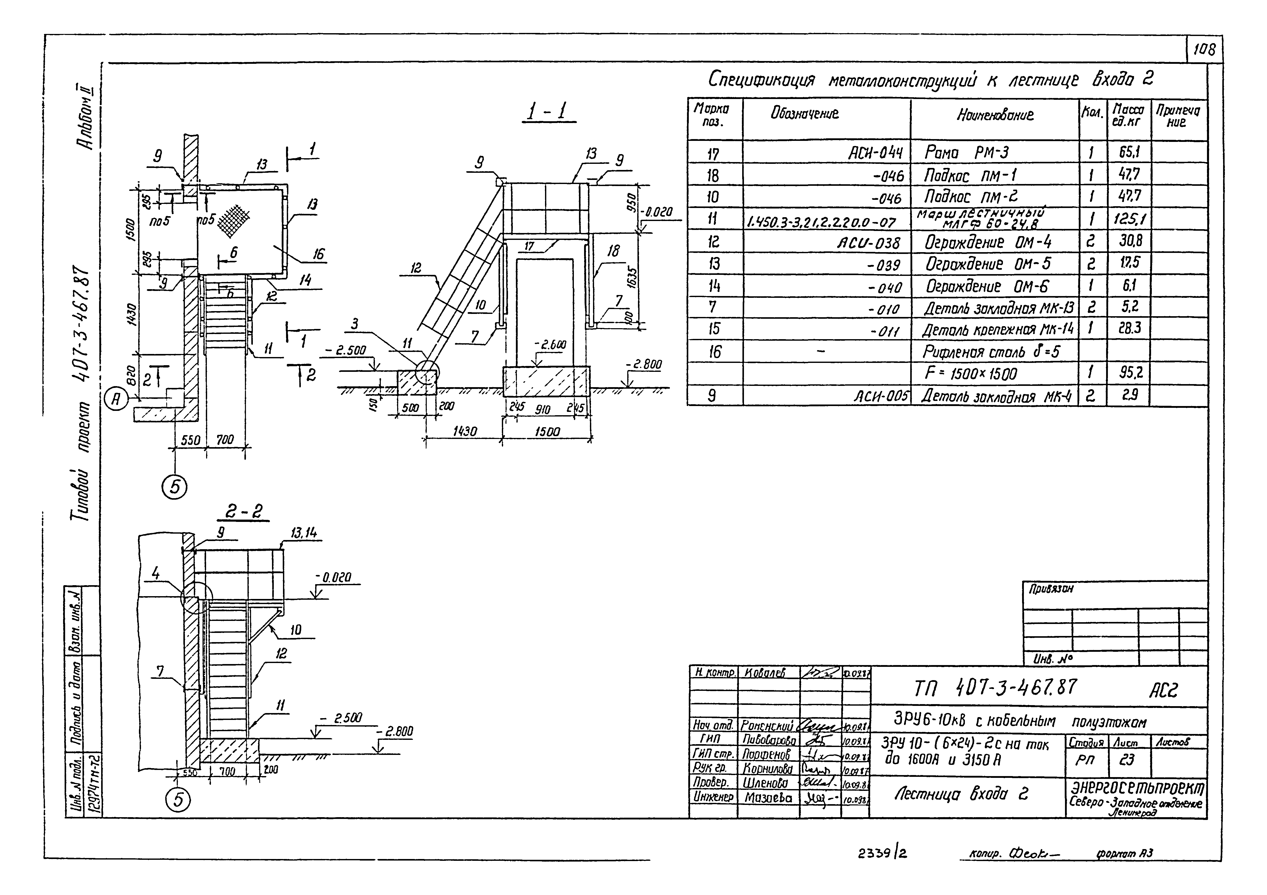
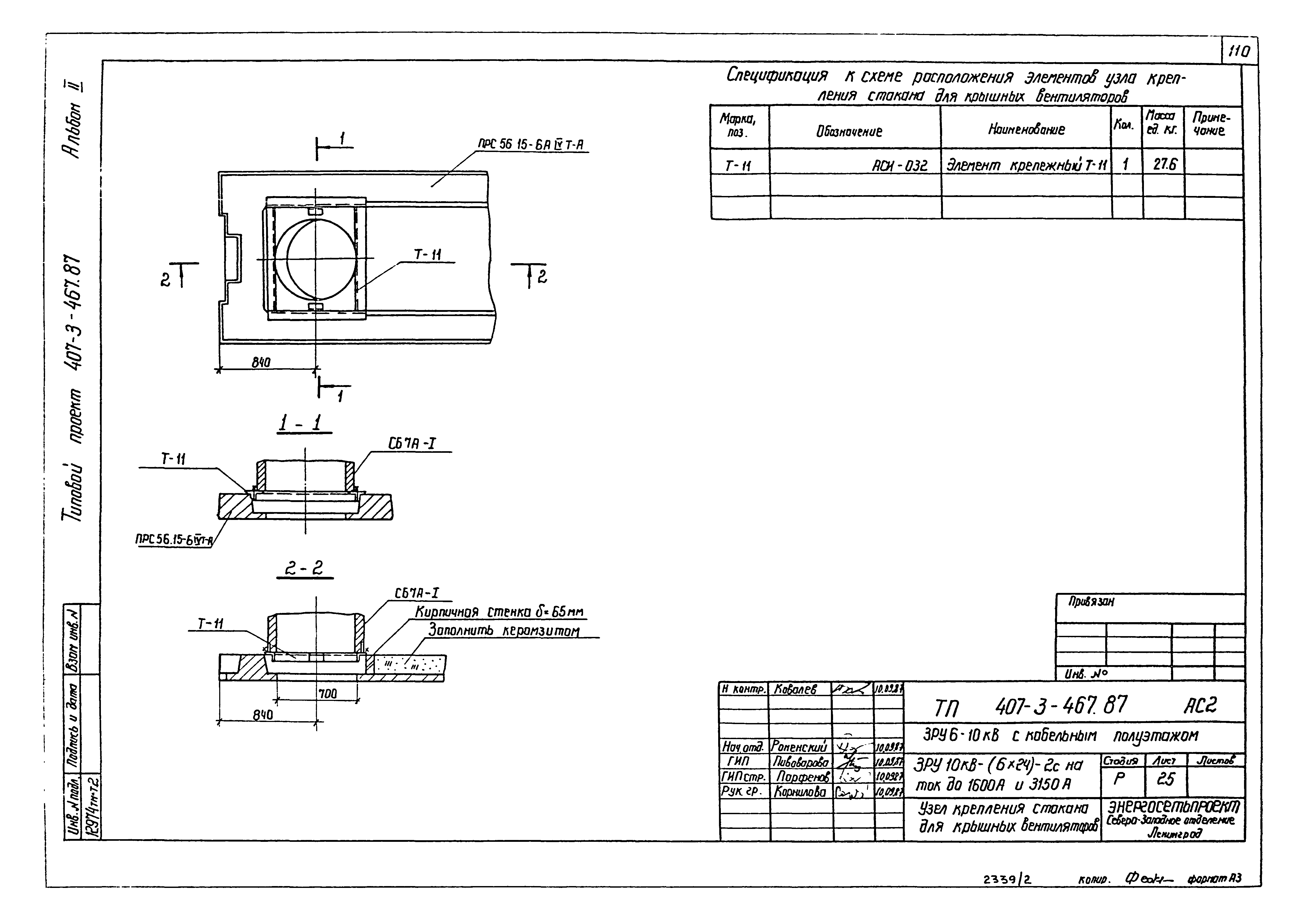
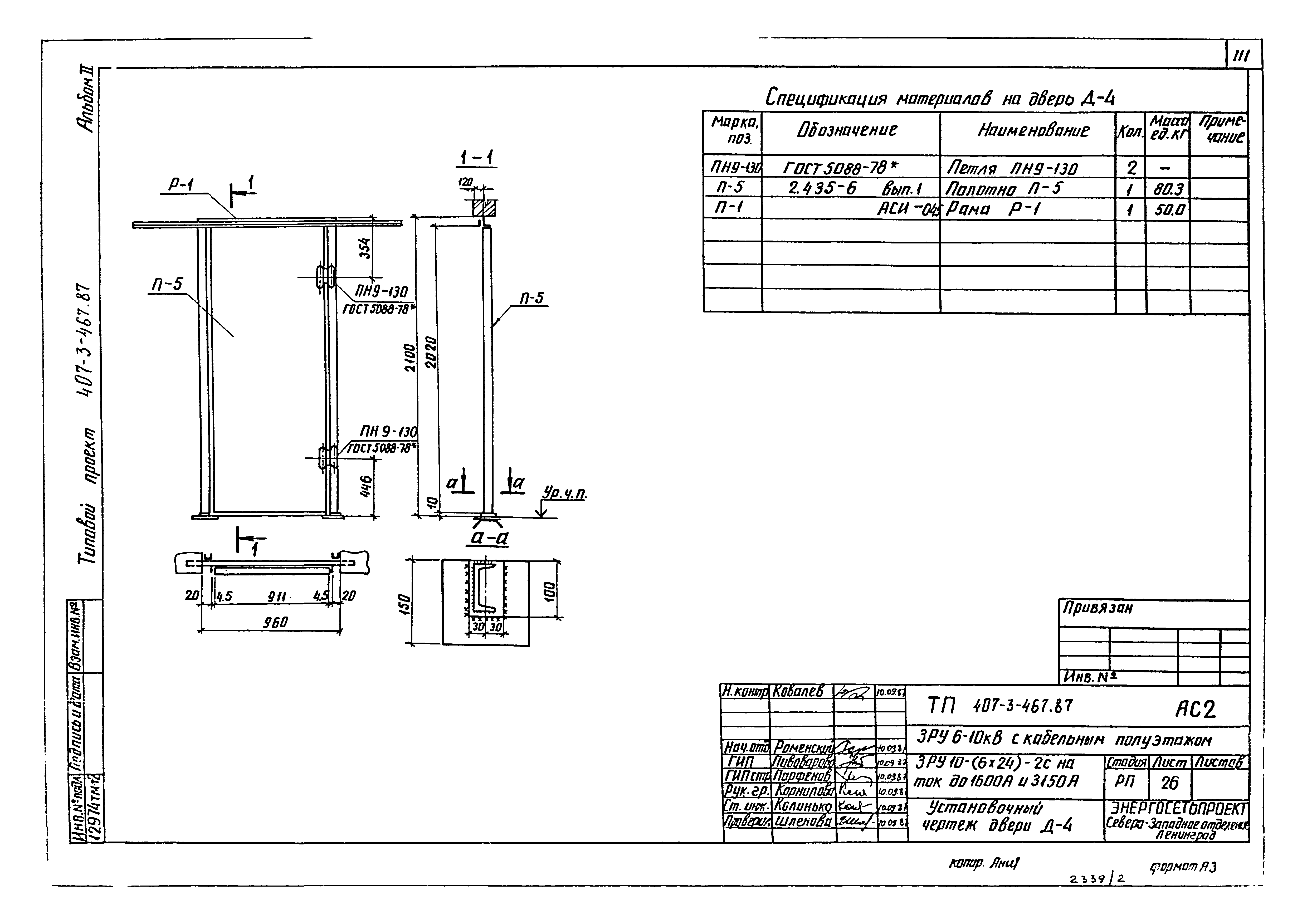
Скачать Типовой проект 407-3-467.87 Альбом II. Электротехнические, строительные и сантехнические чертежиДата актуализации: 01.01.2021 Типовой проект 407-3-467.87
Альбом II. Электротехнические, строительные и сантехнические чертежи| Обозначение: | Типовой проект 407-3-467.87 | | Обозначение англ: | 407-3-467.87 | | Статус: | заменен | | Название рус.: | Альбом II. Электротехнические, строительные и сантехнические чертежи | | Дата добавления в базу: | 12.02.2016 | | Дата актуализации: | 01.01.2021 | | Дата введения: | 04.09.1987 | | Дата окончания срока действия: | 01.04.1992 | | Разработан: | Северо-западное отделение института Энергосетьпроект
| | Утверждён: | 04.09.1987 Минэнерго СССР (USSR Minenergo 38)
| | Заменяет собой: | | | Чем заменён: | |
                                                                                                                        
|