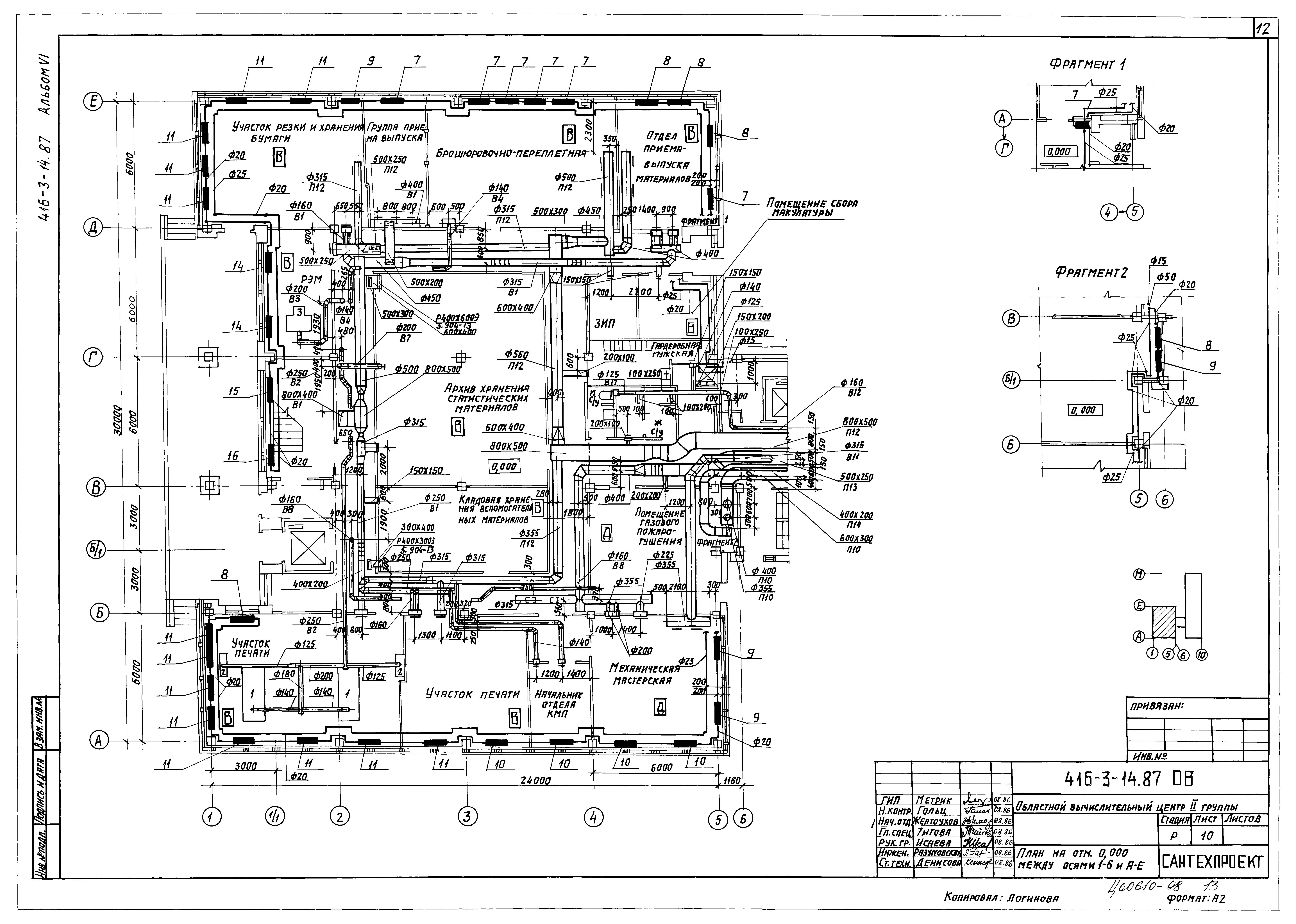
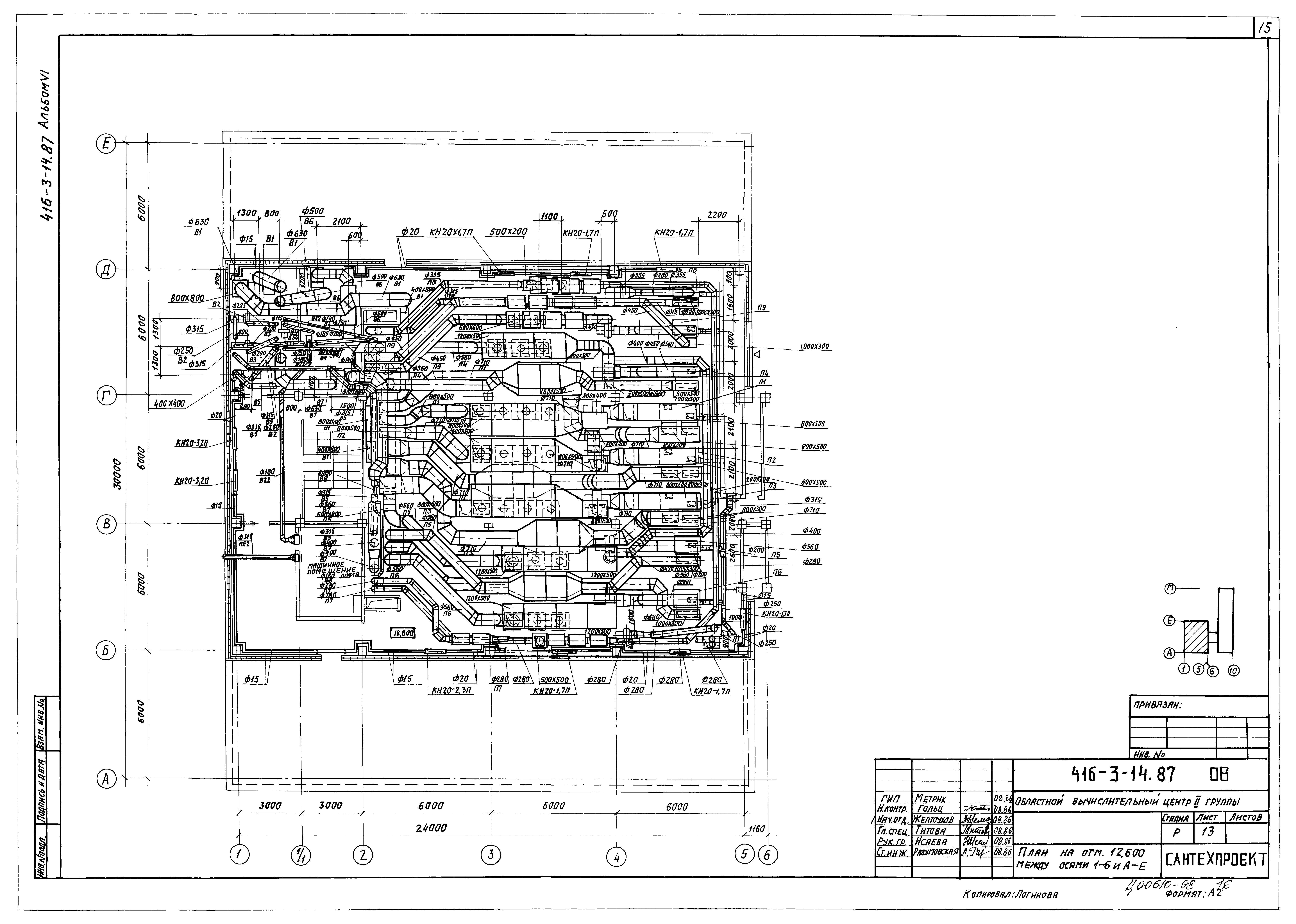
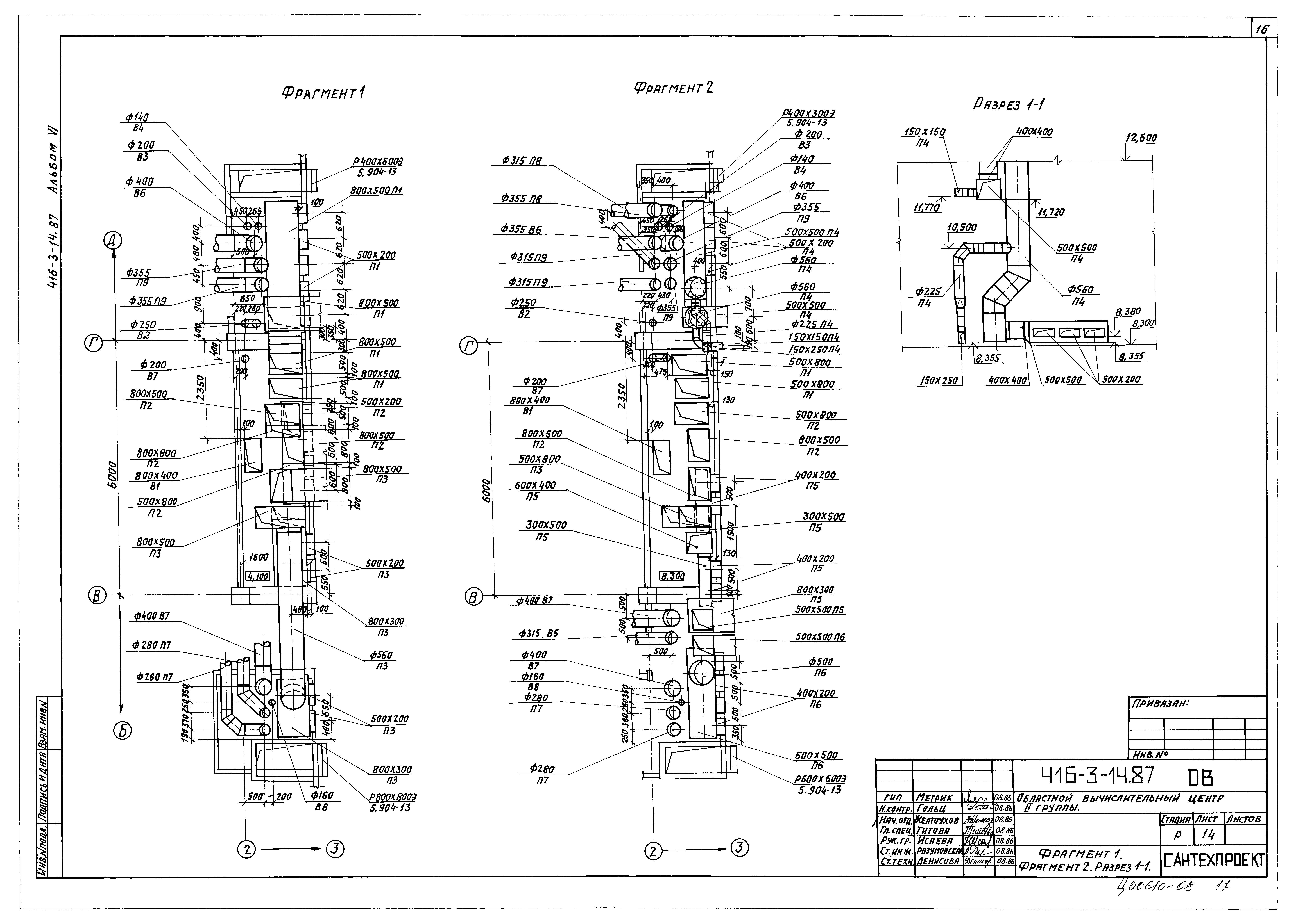
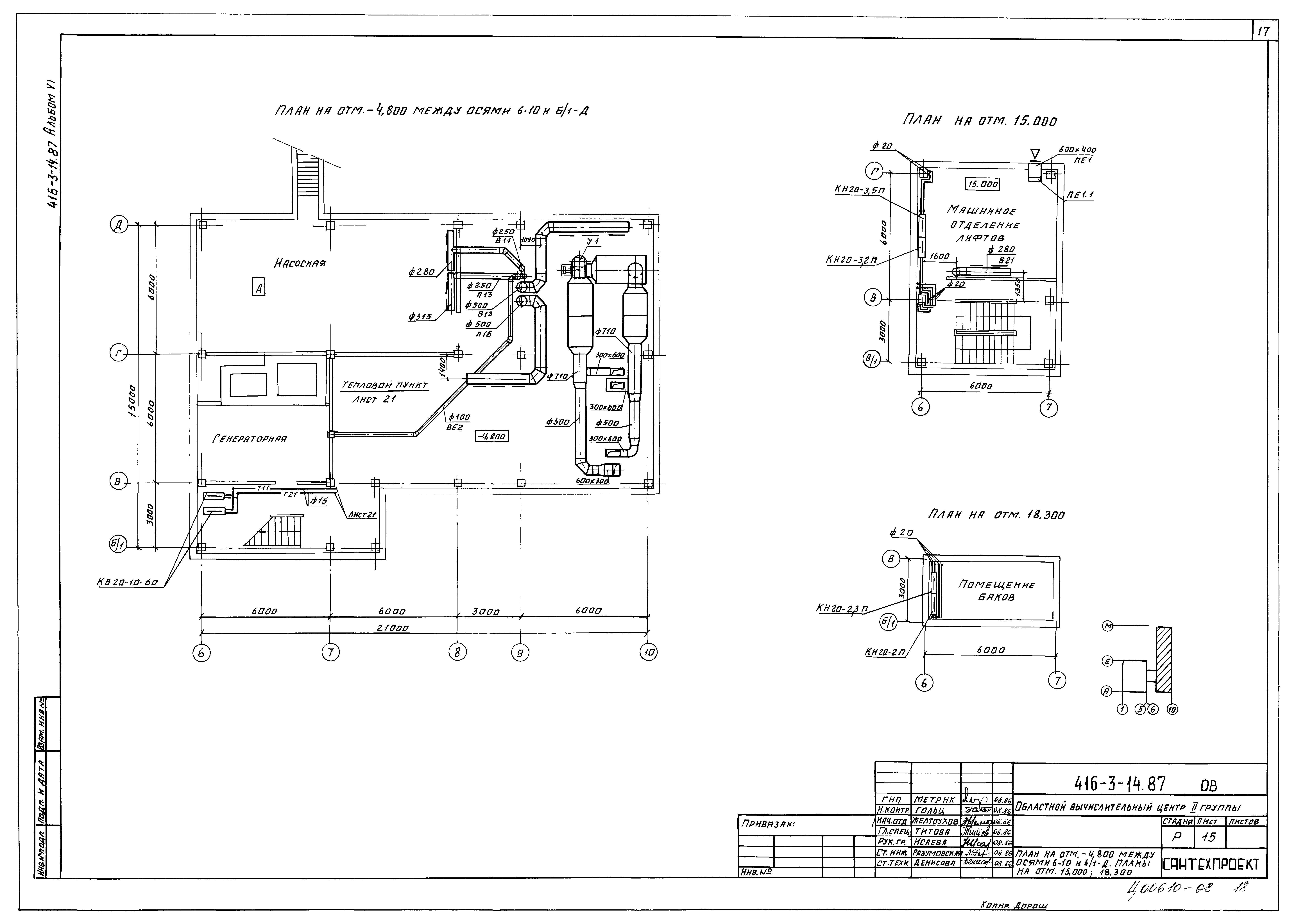
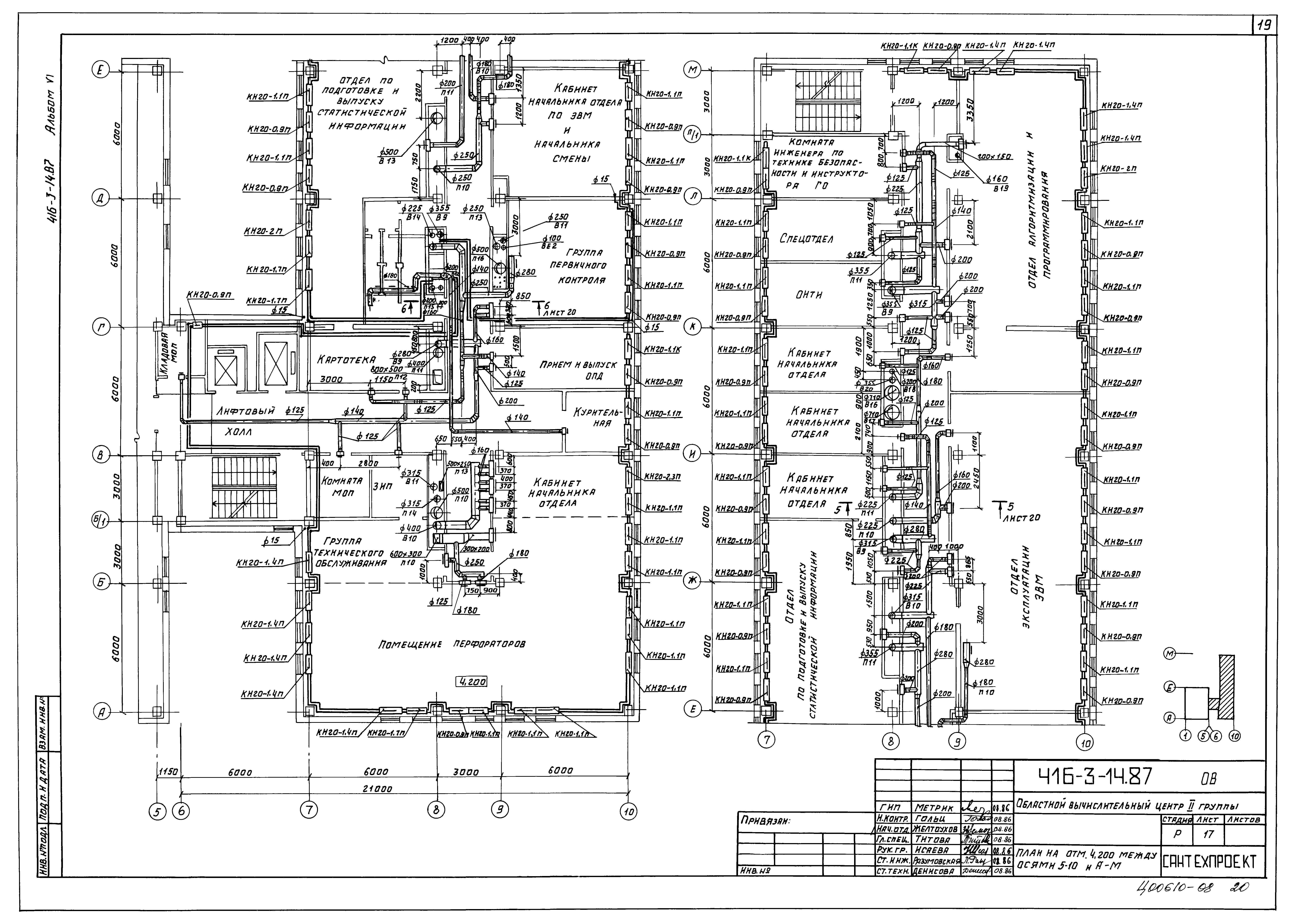
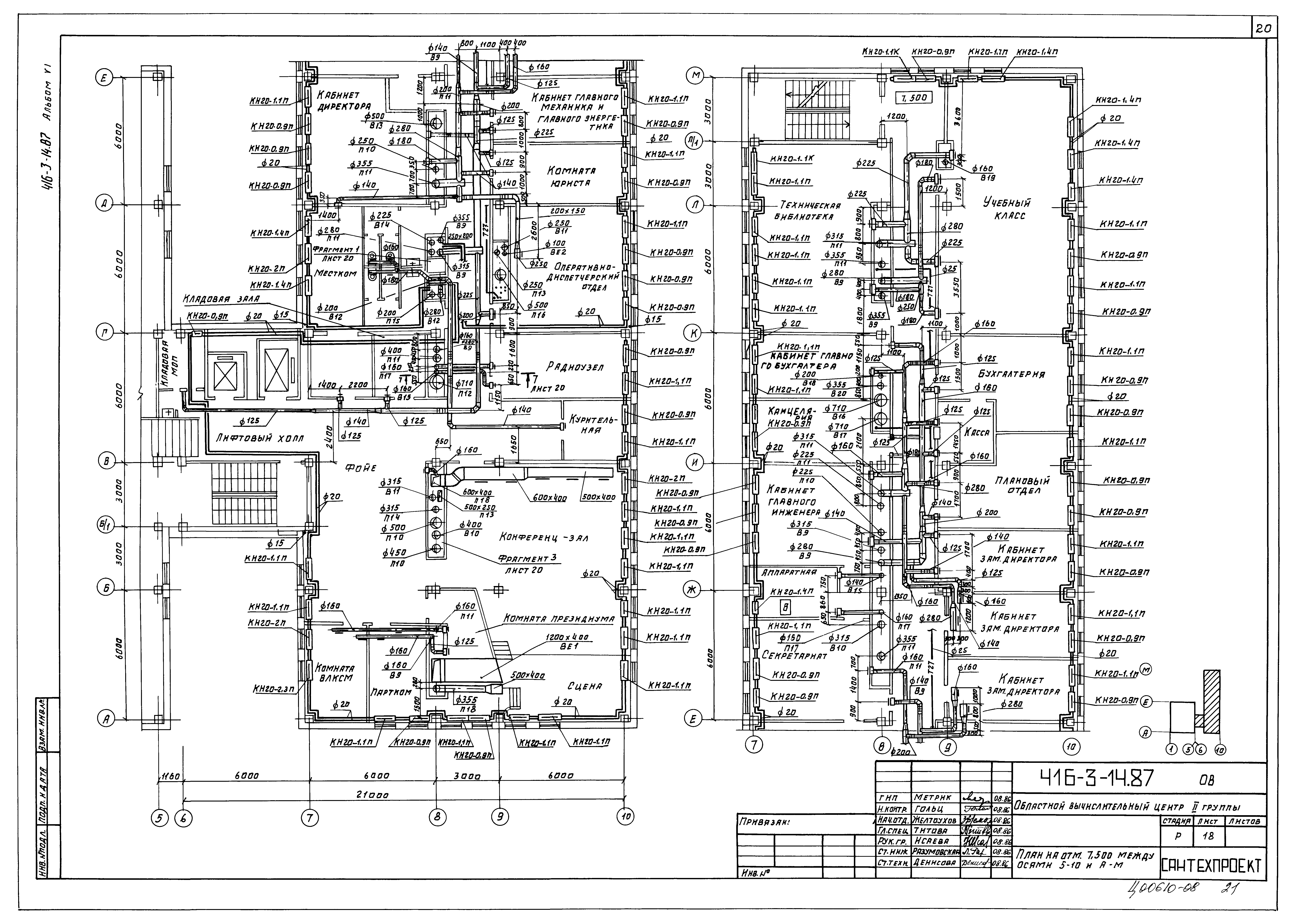
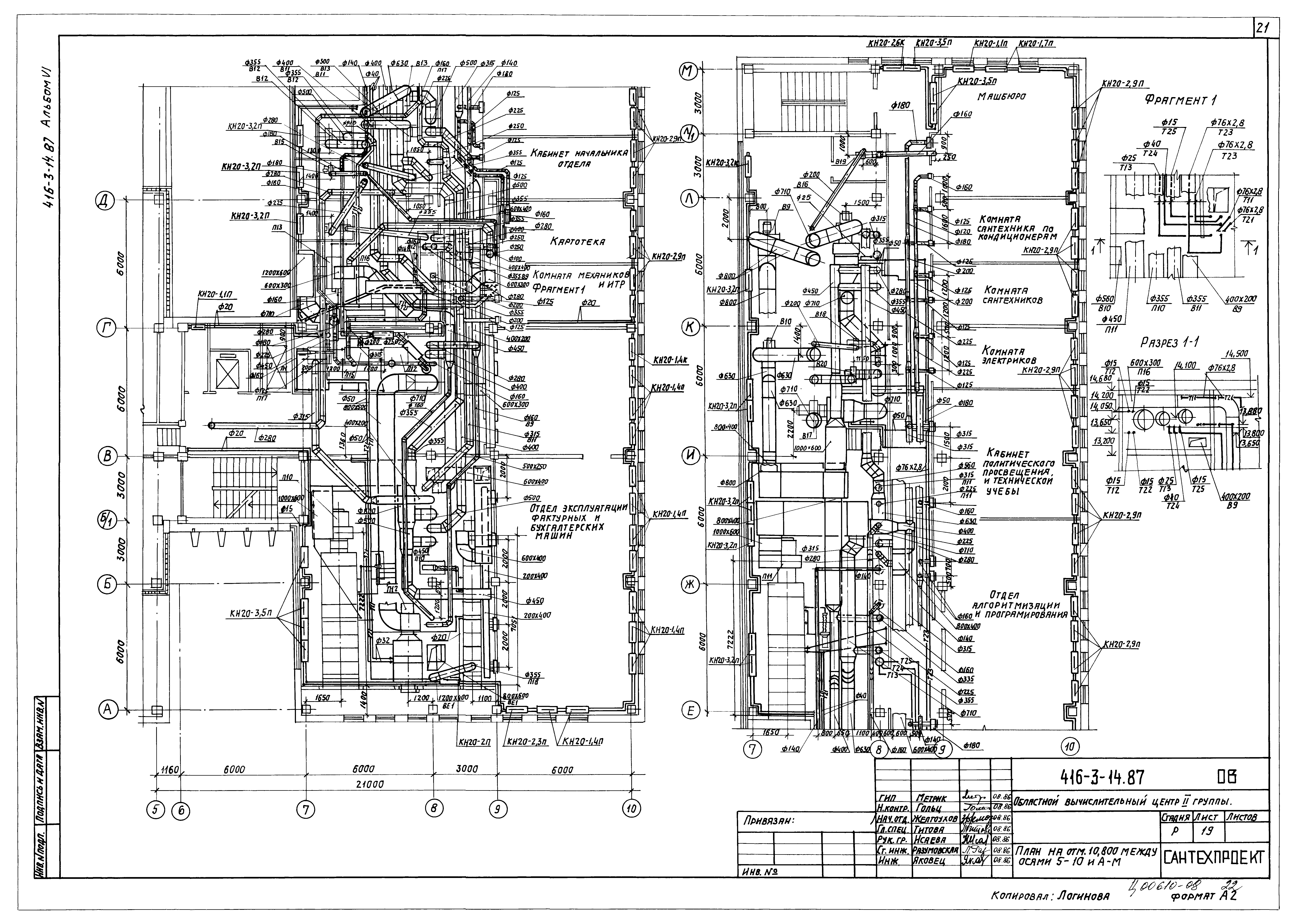
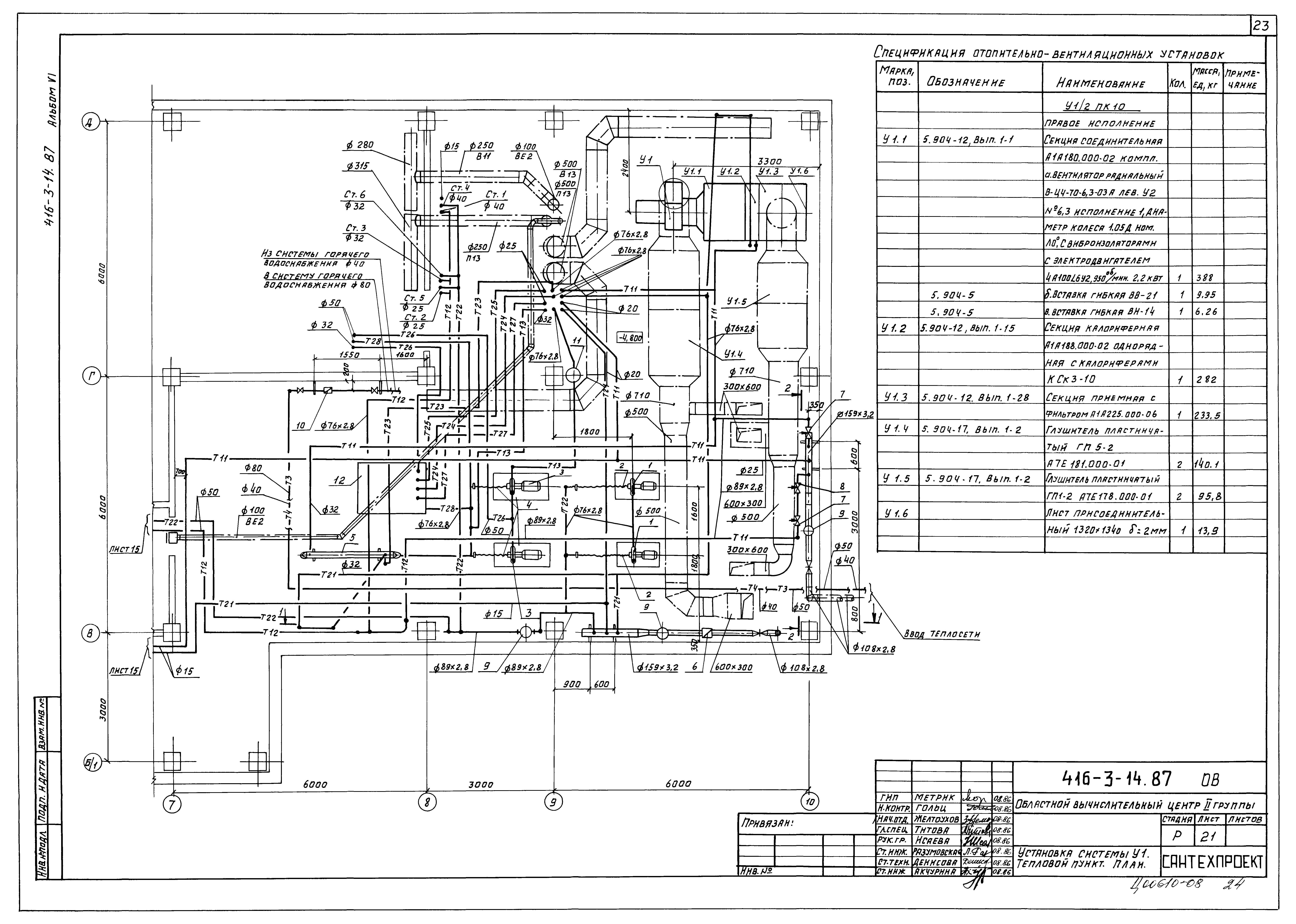
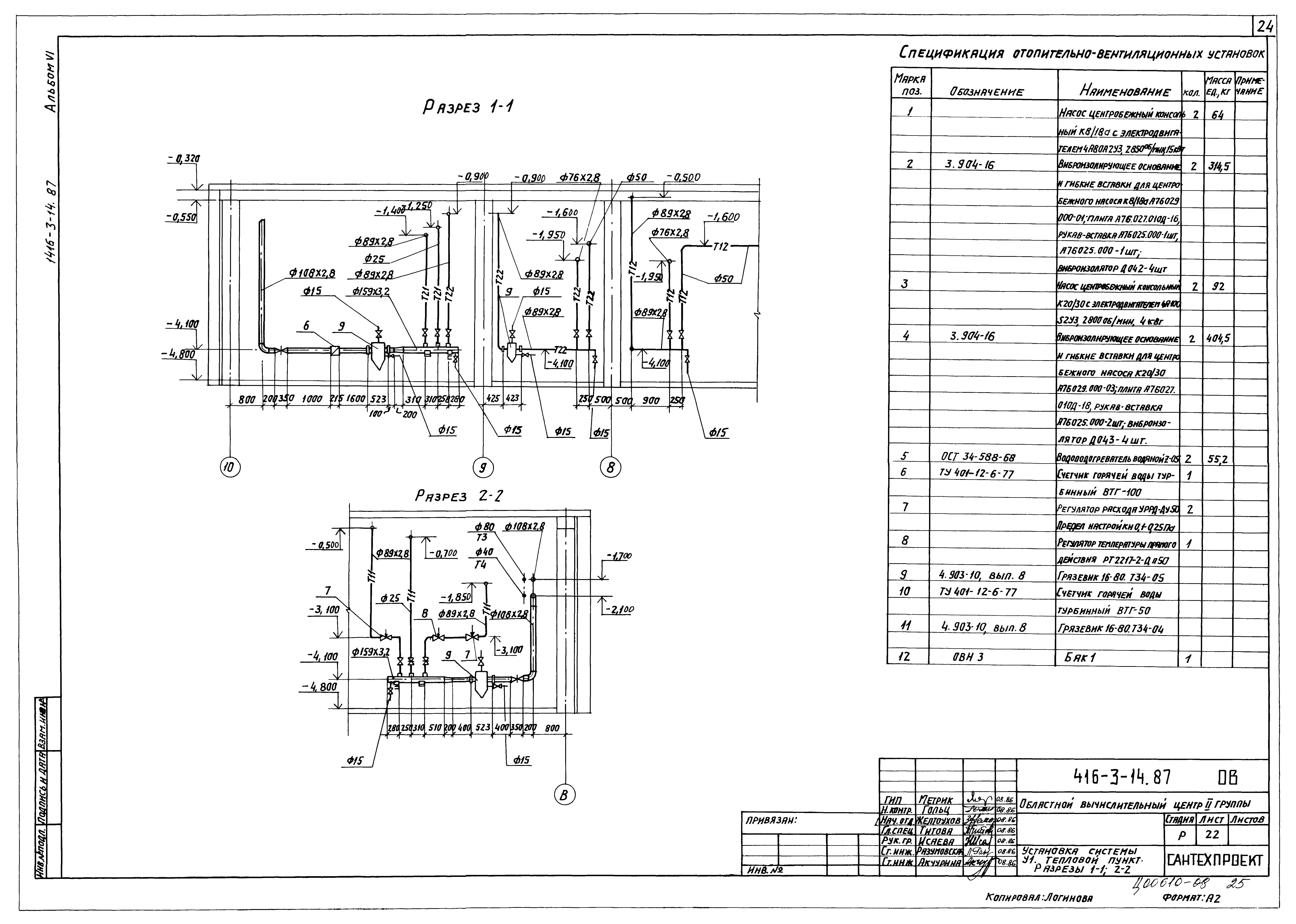
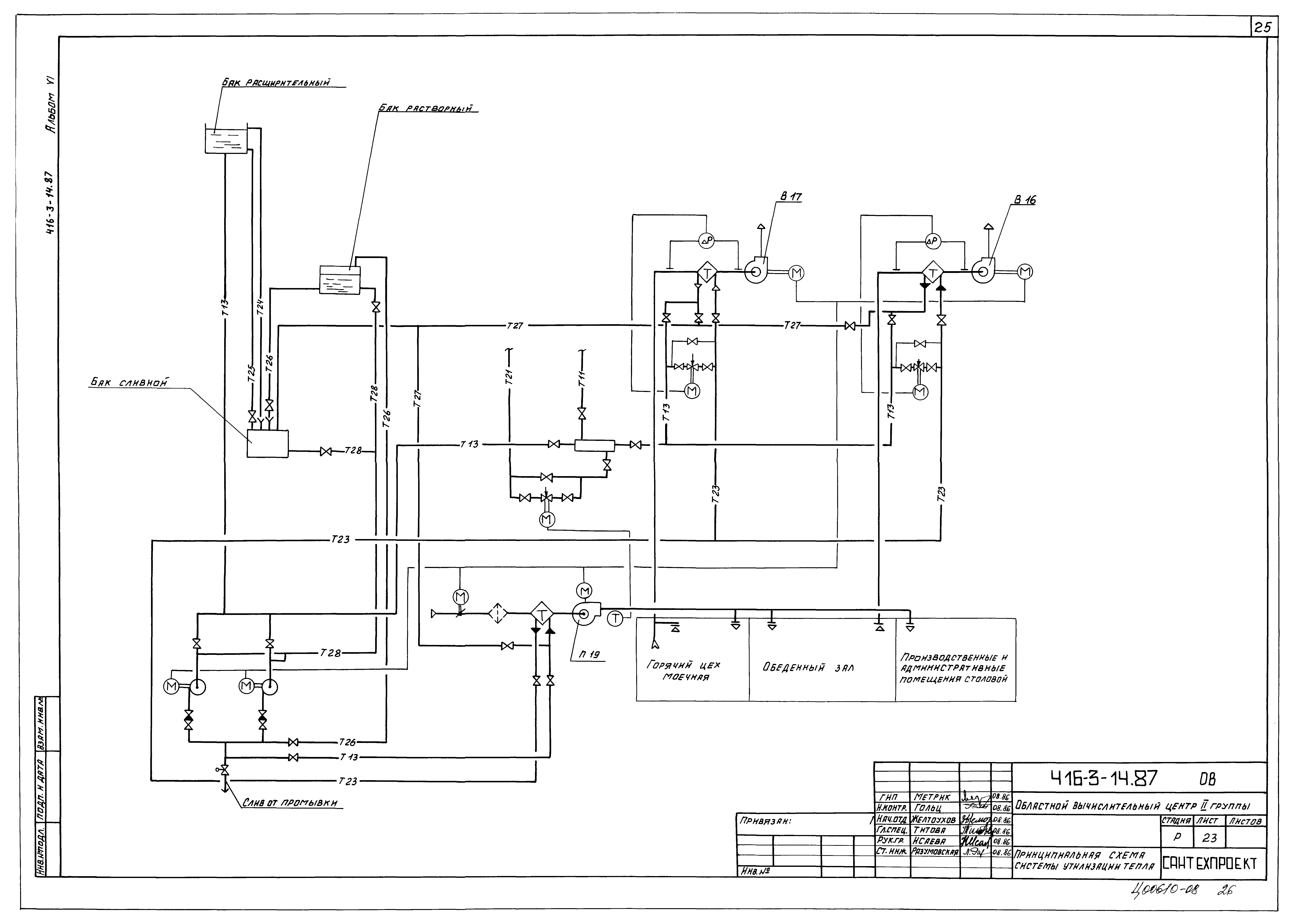
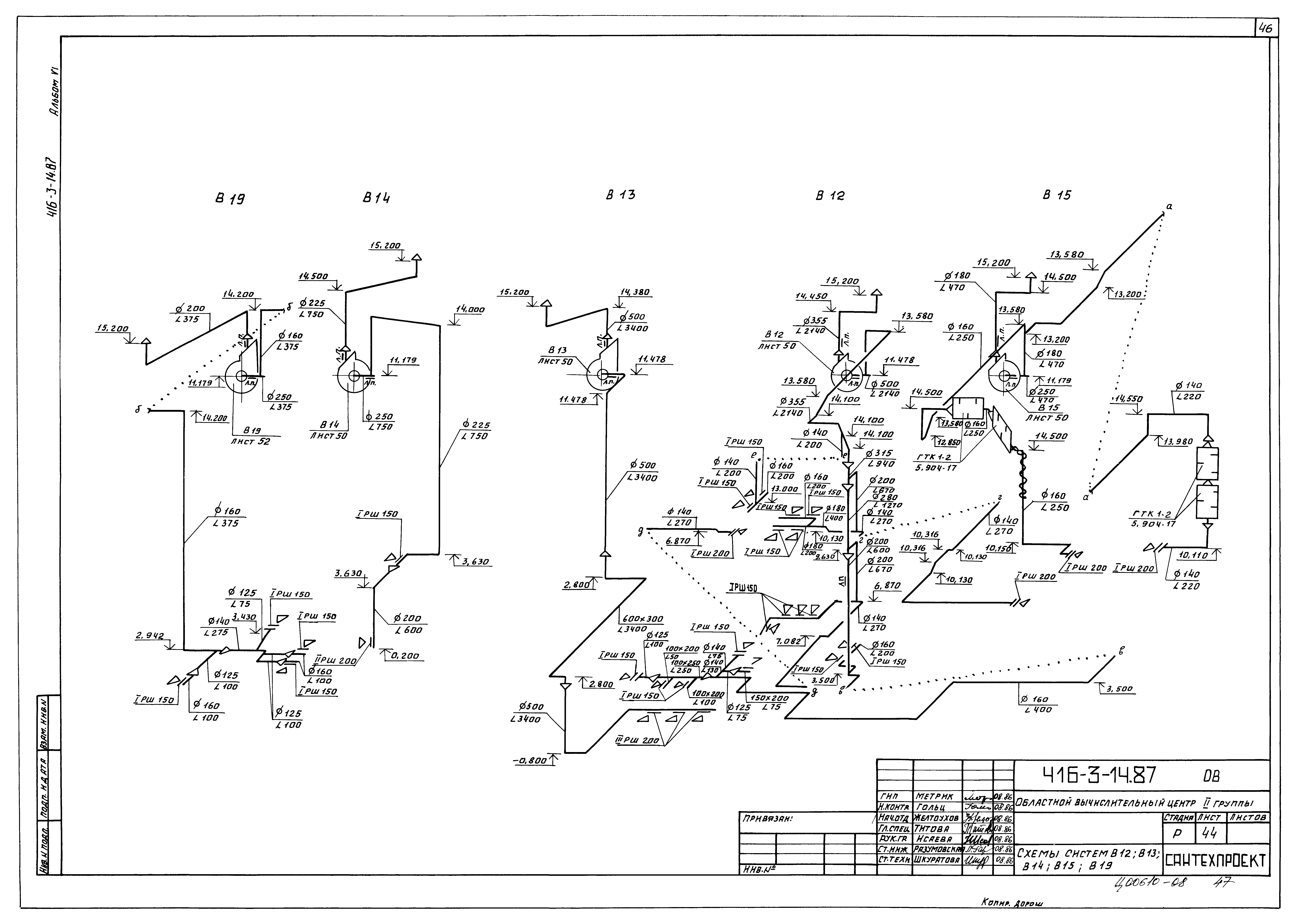
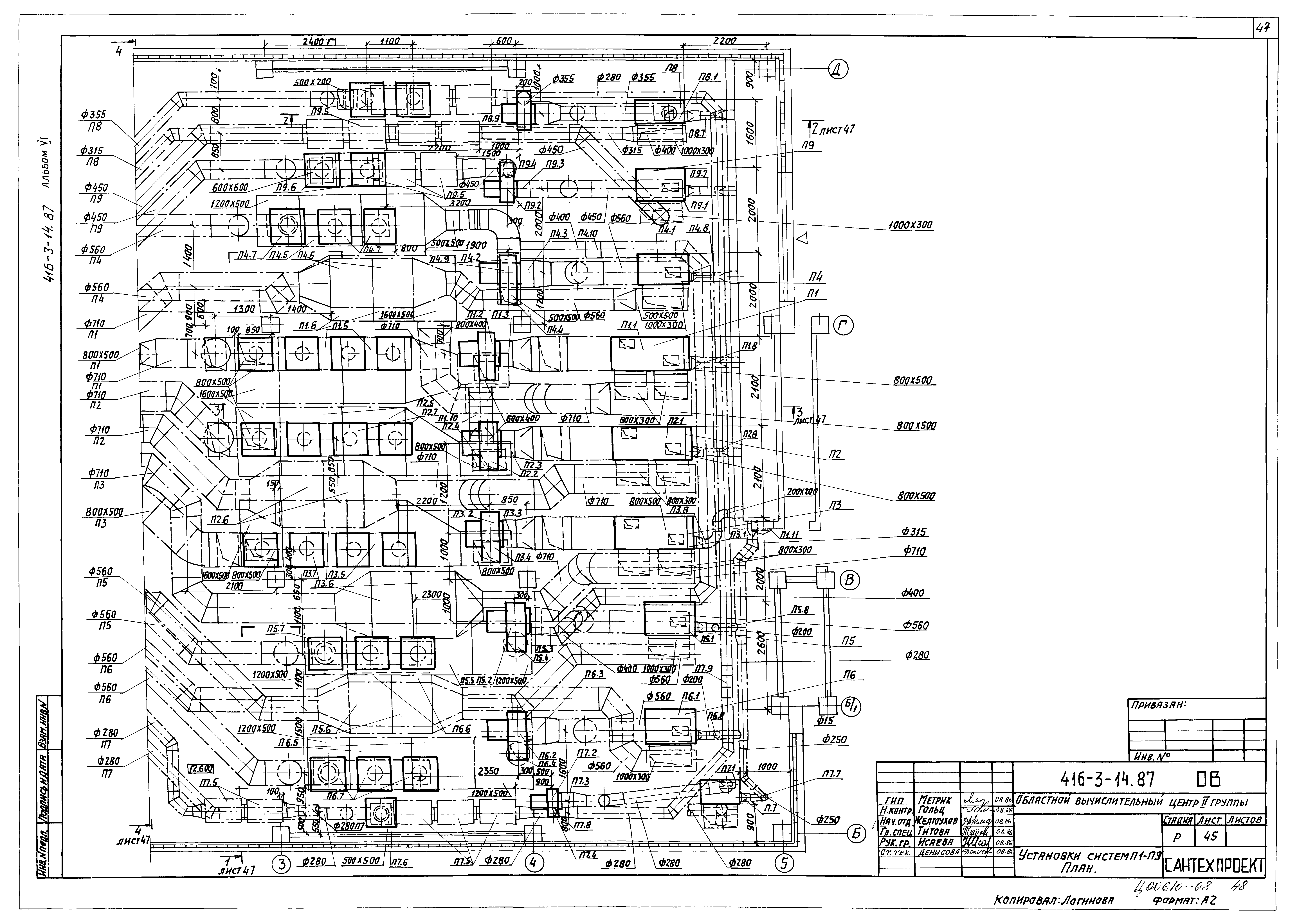
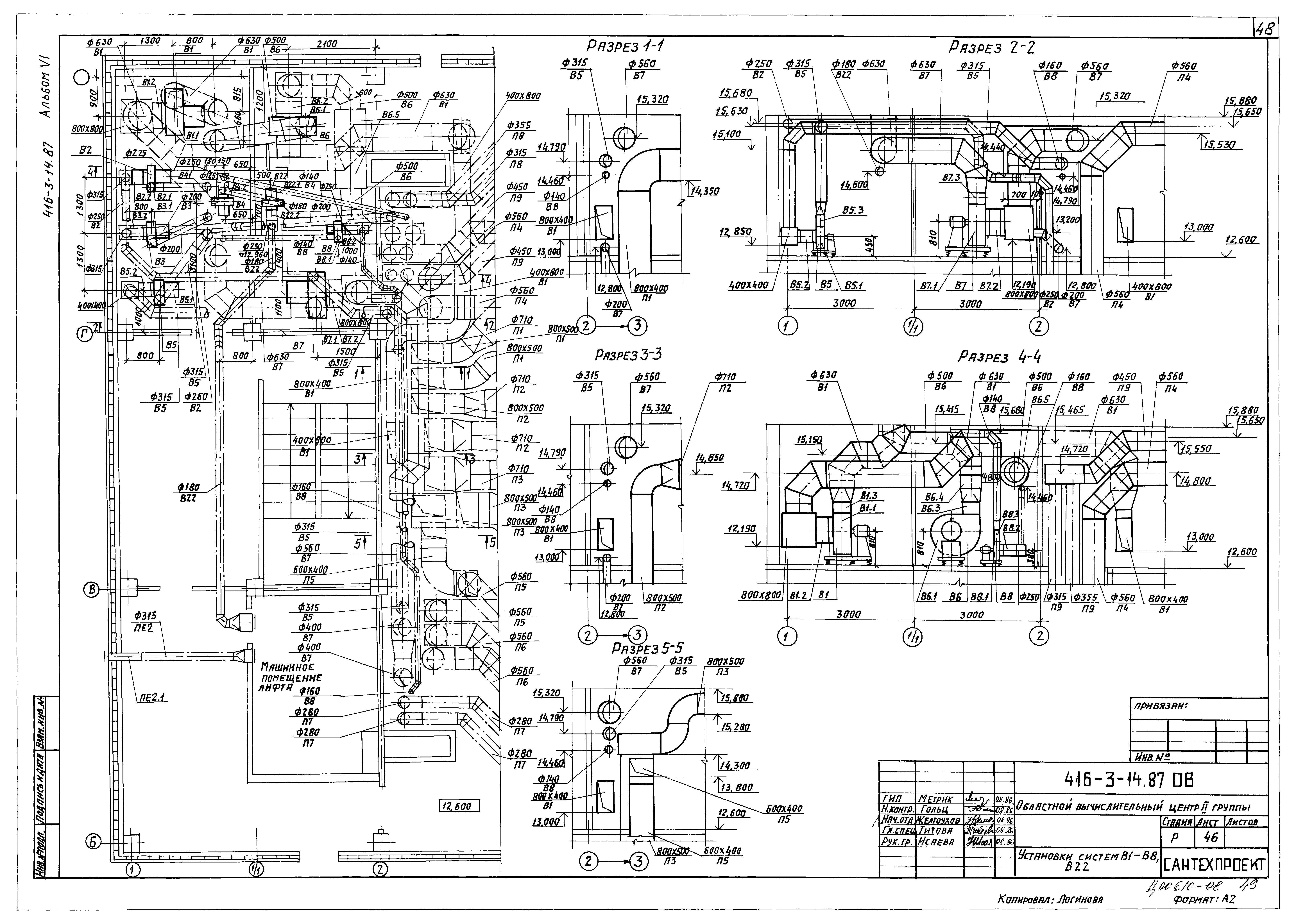
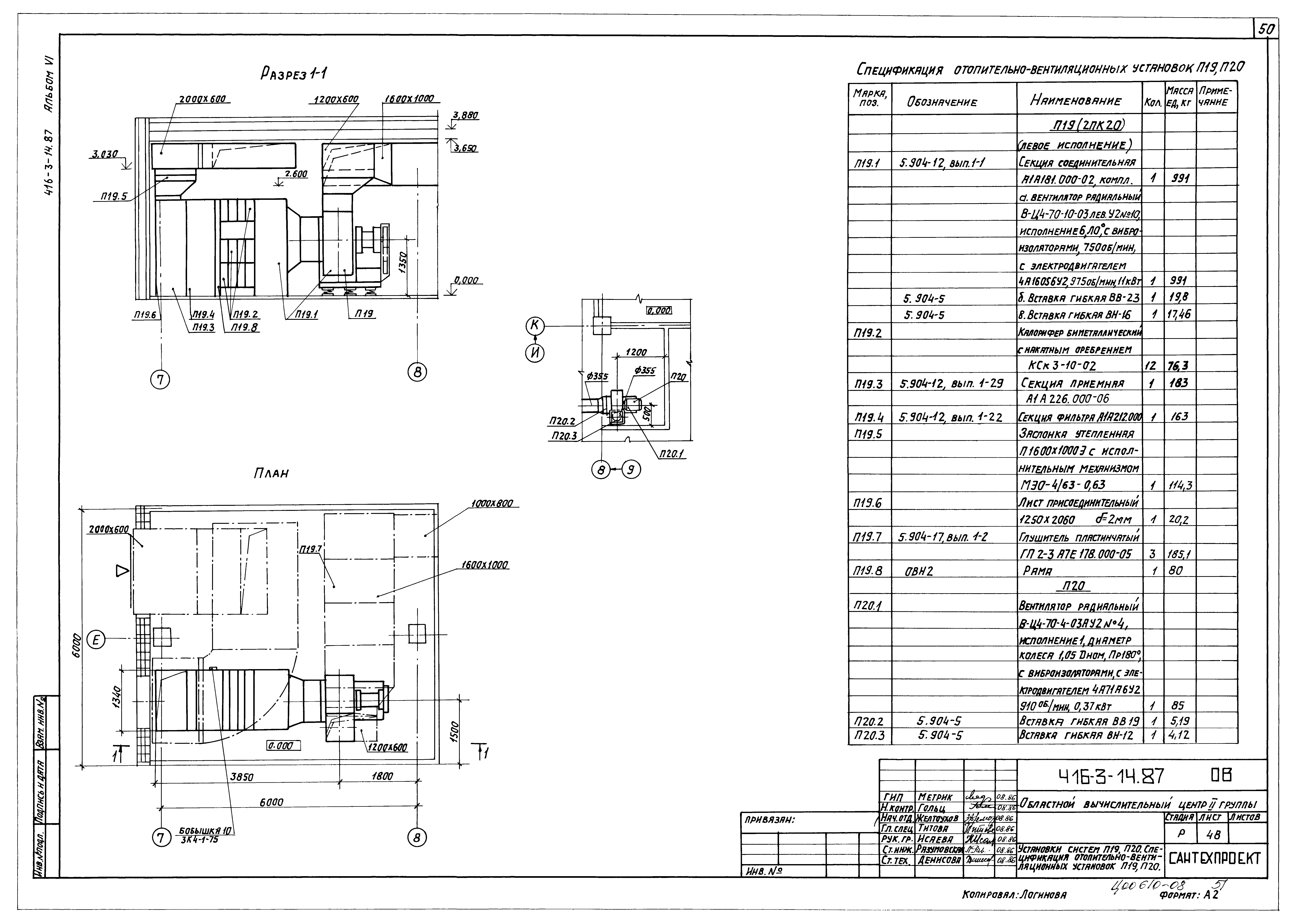
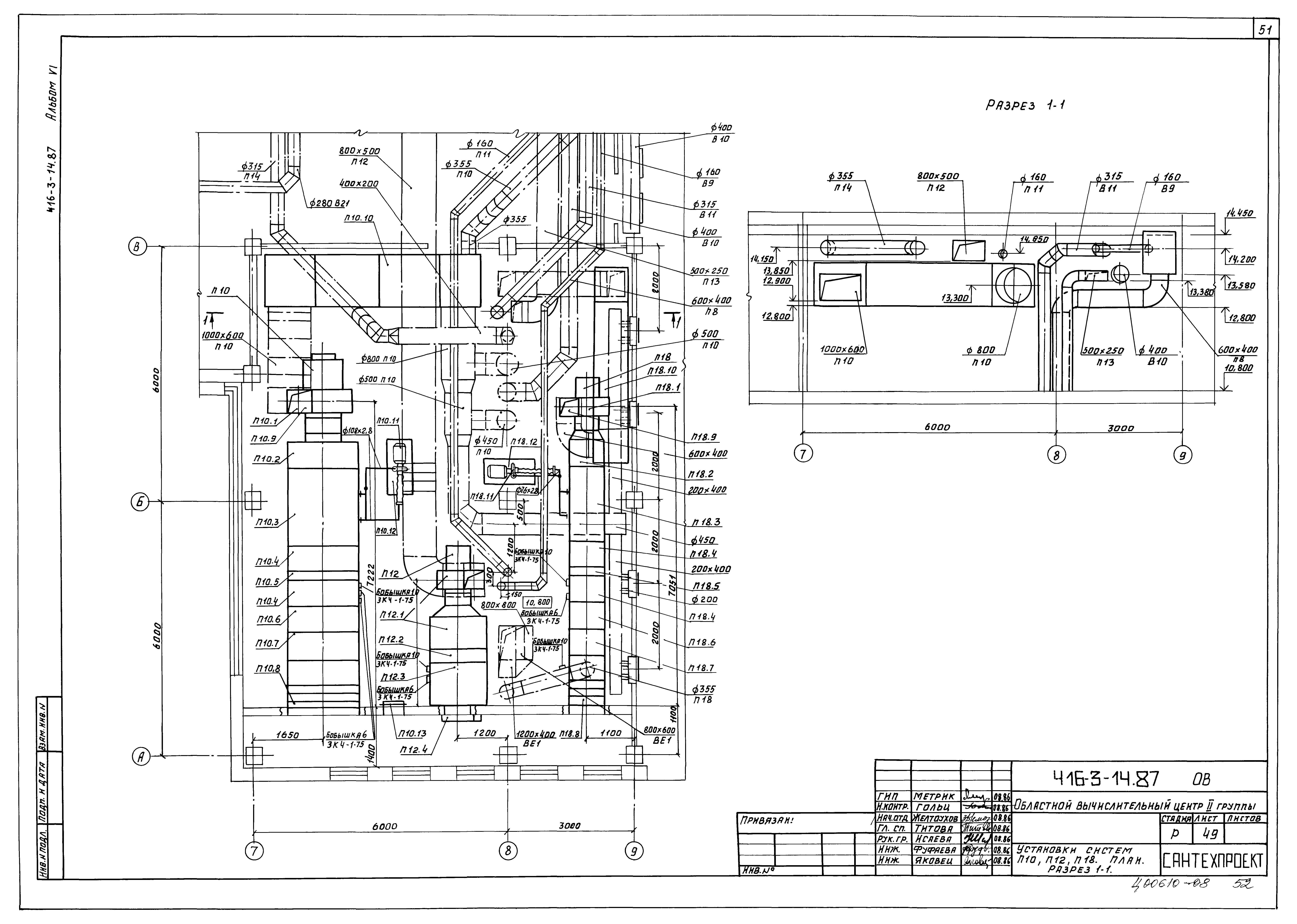
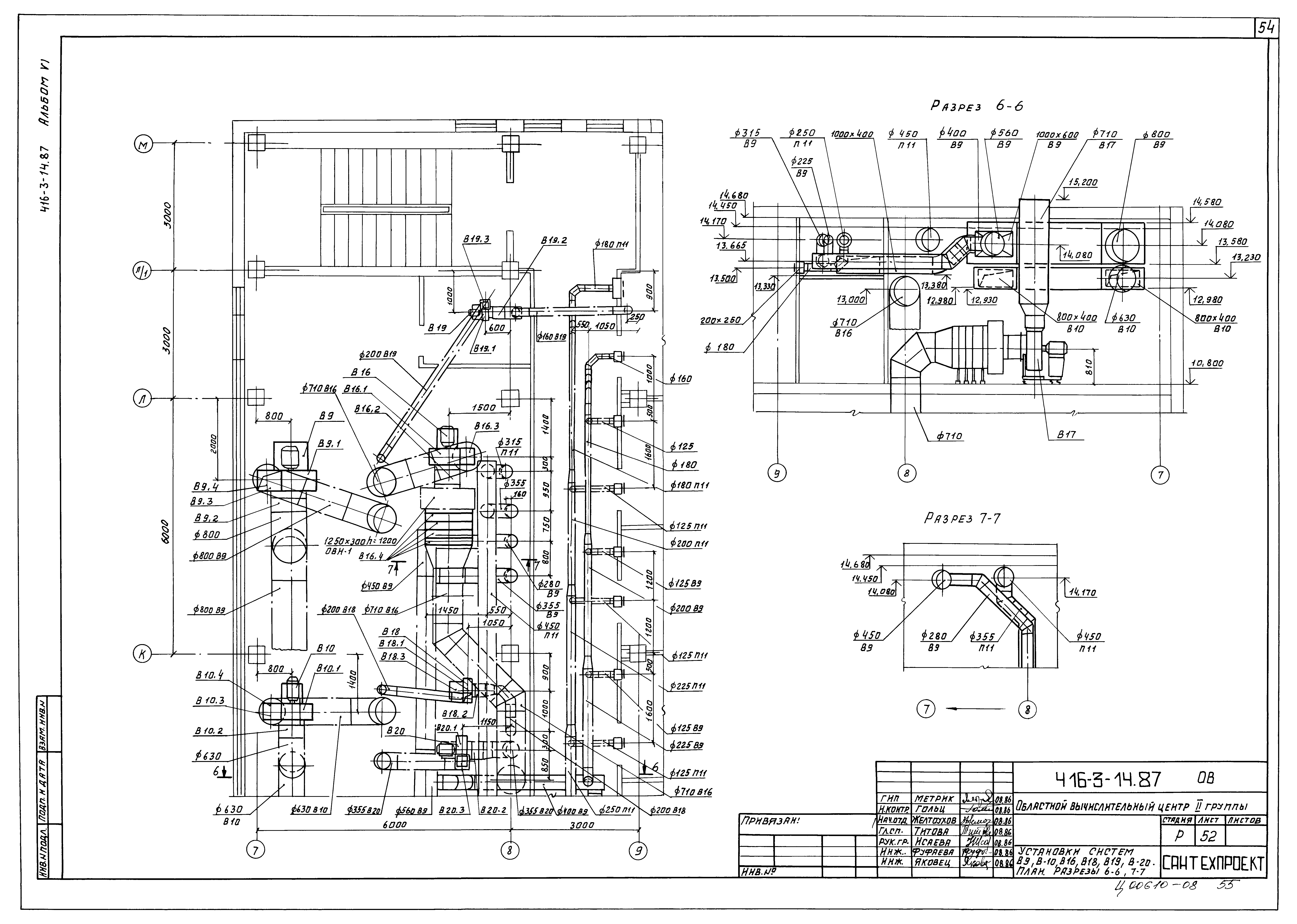
Скачать Типовой проект 416-3-14.87 Альбом VI. Отопление, вентиляция и кондиционирование воздухаДата актуализации: 01.01.2021 Типовой проект 416-3-14.87
Альбом VI. Отопление, вентиляция и кондиционирование воздуха| Обозначение: | Типовой проект 416-3-14.87 | | Обозначение англ: | 416-3-14.87 | | Статус: | не определен законодательством | | Название рус.: | Альбом VI. Отопление, вентиляция и кондиционирование воздуха | | Дата добавления в базу: | 01.02.2020 | | Дата актуализации: | 01.01.2021 | | Дата введения: | 30.03.1987 | | Дата окончания срока действия: | 30.06.2003 | | Разработан: | ВНИПИучет
| | Утверждён: | 30.03.1987 ЦСУ СССР (USSR TsSU 157)
|
                                                                    
|