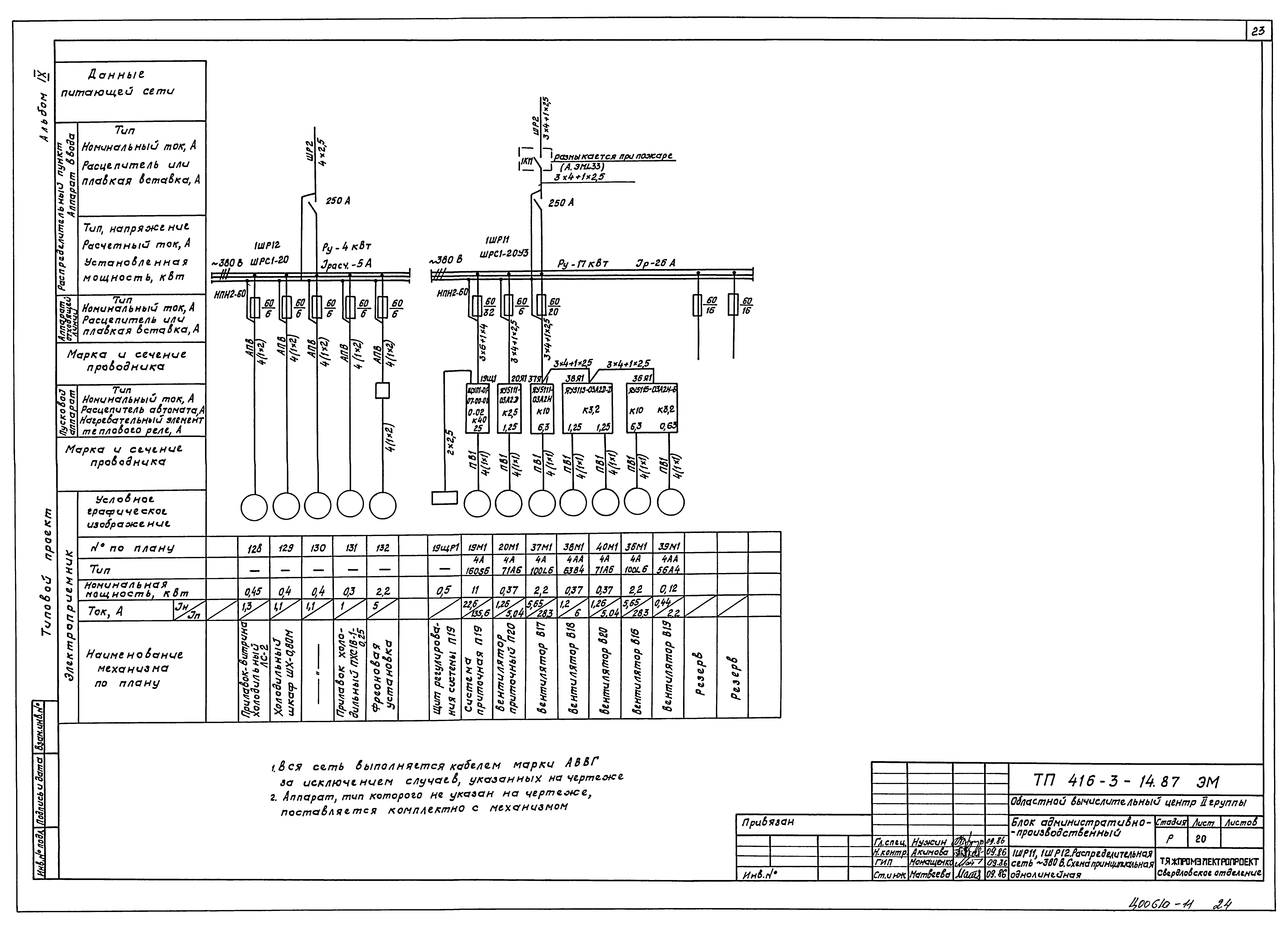
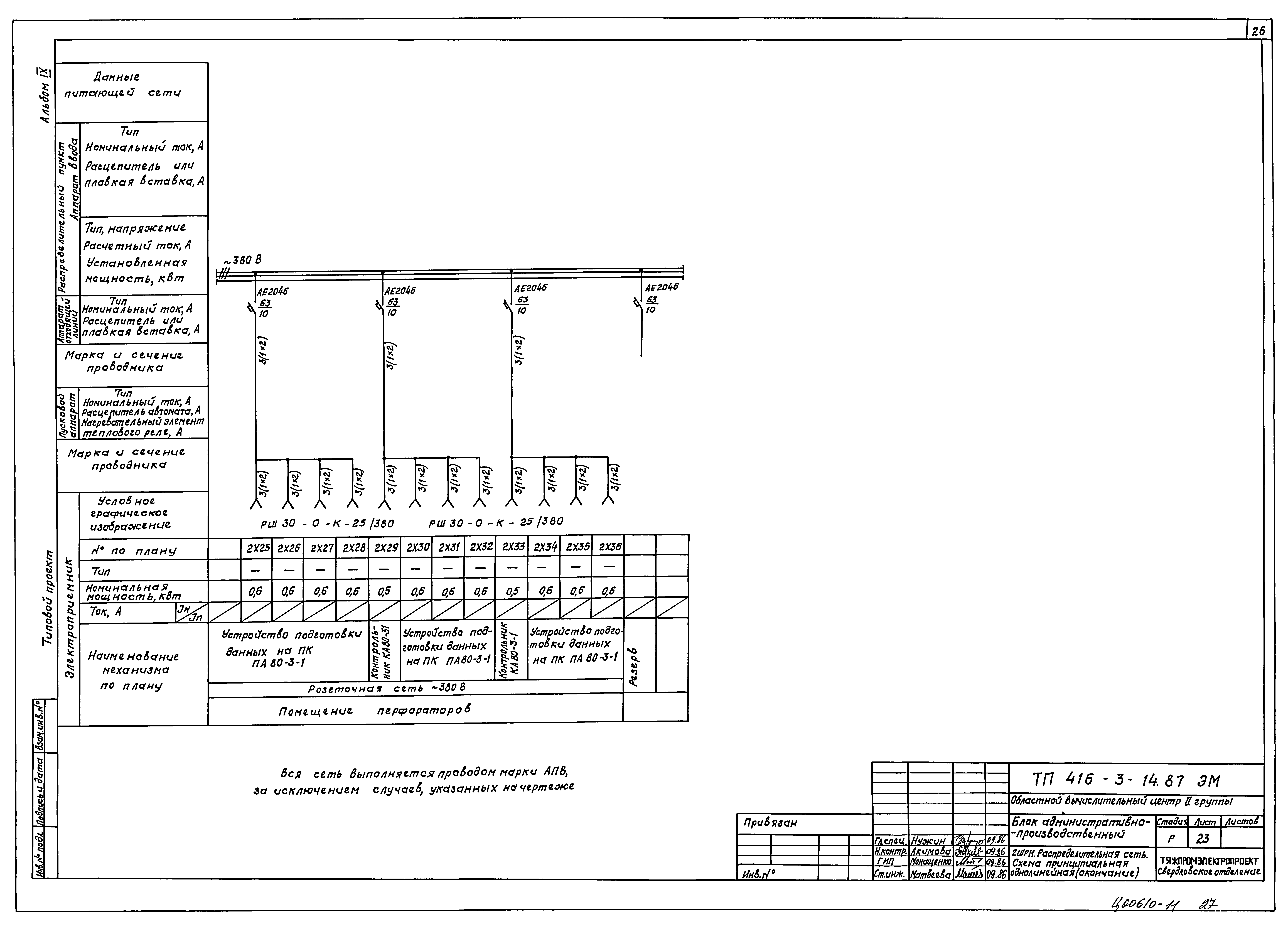
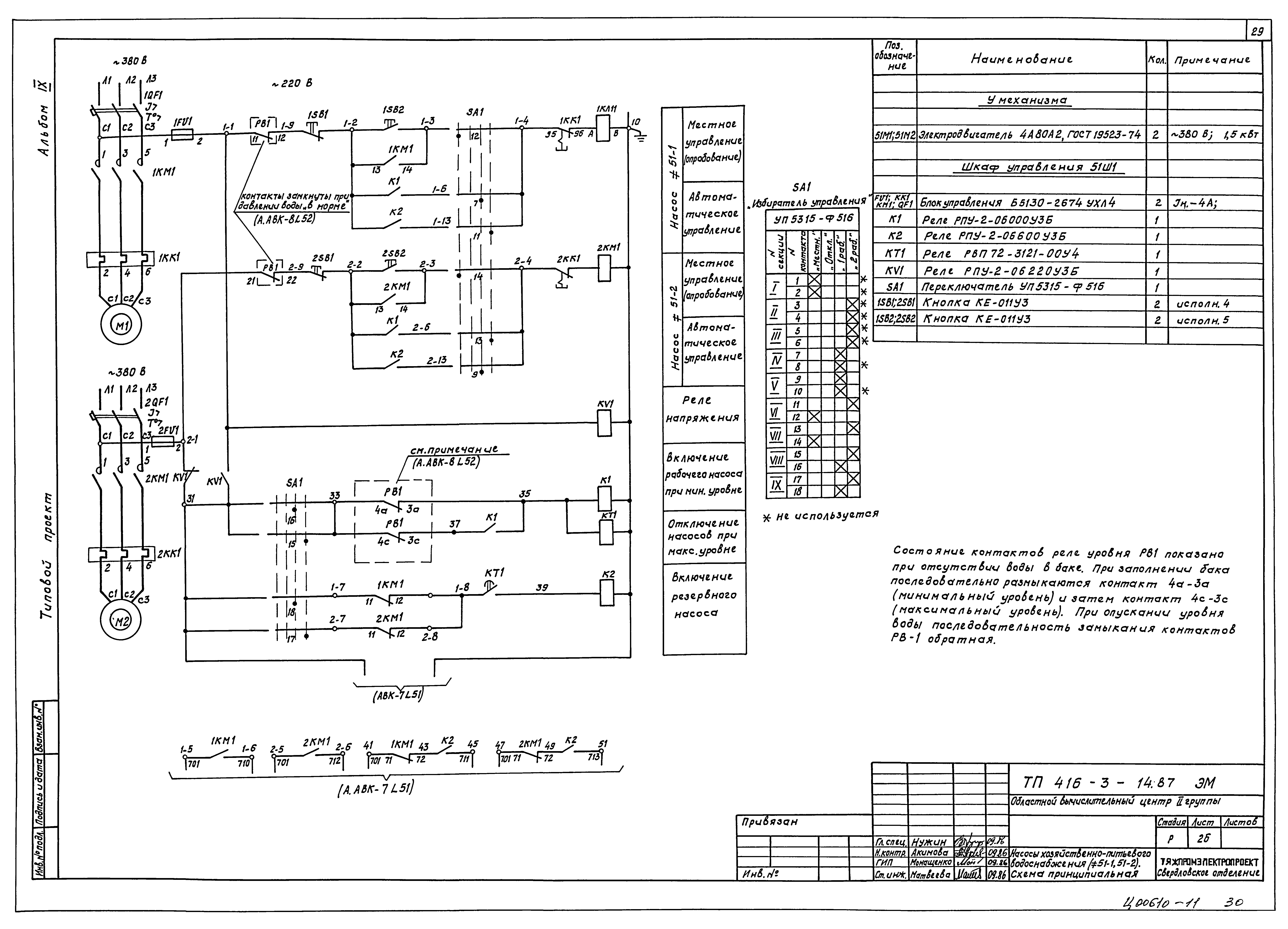
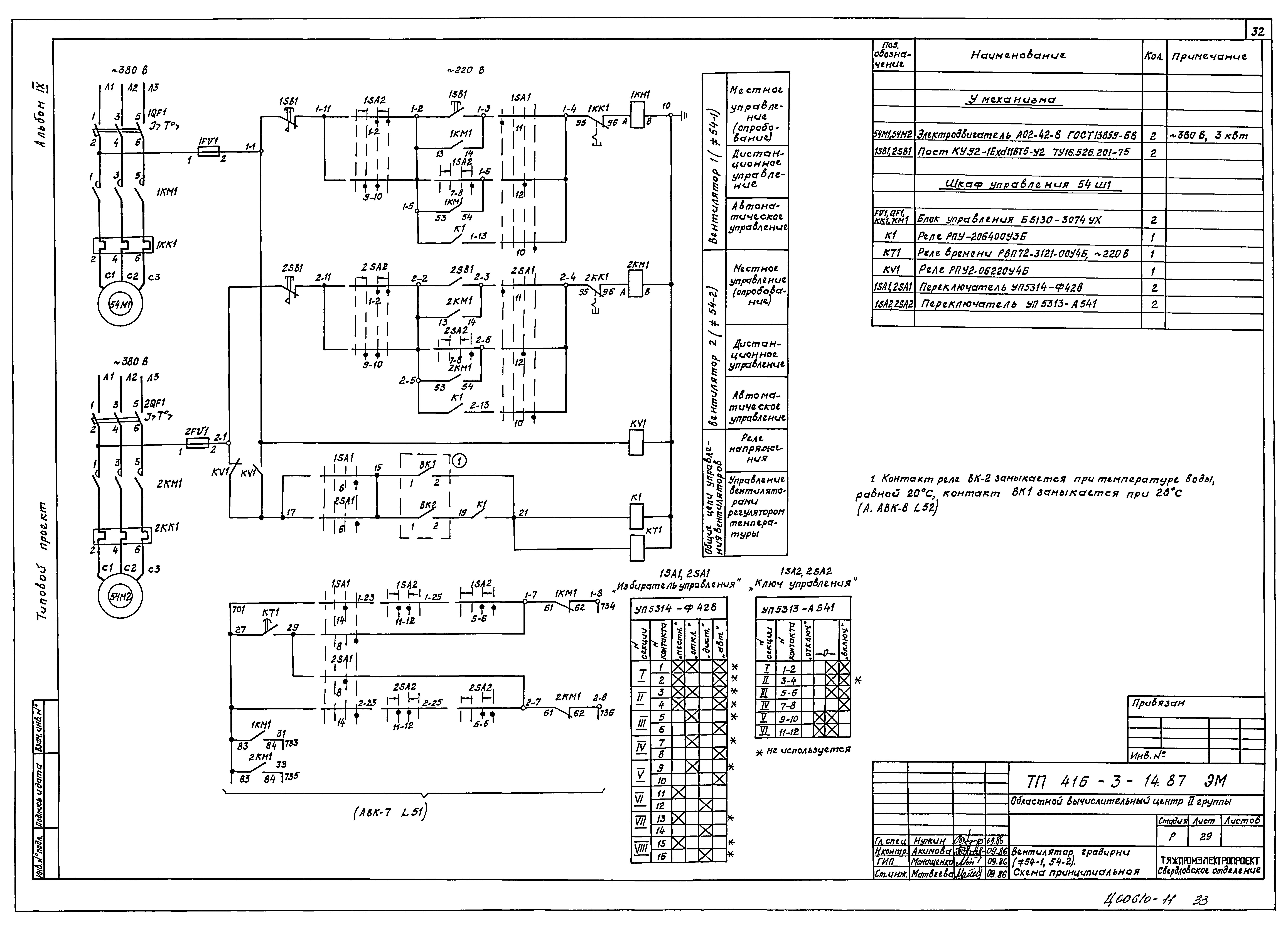
Скачать Типовой проект 416-3-14.87 Альбом IX. Силовое электрооборудование. ЭлектроосвещениеДата актуализации: 01.01.2021
|
| Обозначение: | Типовой проект 416-3-14.87 |
| Обозначение англ: | 416-3-14.87 |
| Статус: | не определен законодательством |
| Название рус.: | Альбом IX. Силовое электрооборудование. Электроосвещение |
| Дата добавления в базу: | 01.02.2020 |
| Дата актуализации: | 01.01.2021 |
| Дата введения: | 30.03.1987 |
| Дата окончания срока действия: | 30.06.2003 |
| Разработан: | ВНИПИучет |
| Утверждён: | 30.03.1987 ЦСУ СССР (USSR TsSU 157) |











































































































