Скачать Типовой проект 901-4-67.83 Альбом IV. Строительные изделия для резервуаров емкостью от 1600 до 20000 куб. м (из ТП 901-4-69.83)Дата актуализации: 01.01.2021
|
| Обозначение: | Типовой проект 901-4-67.83 |
| Обозначение англ: | 901-4-67.83 |
| Статус: | действует |
| Название рус.: | Альбом IV. Строительные изделия для резервуаров емкостью от 1600 до 20000 куб. м (из ТП 901-4-69.83) |
| Дата добавления в базу: | 01.09.2013 |
| Дата актуализации: | 01.01.2021 |
| Дата введения: | 13.07.1983 |
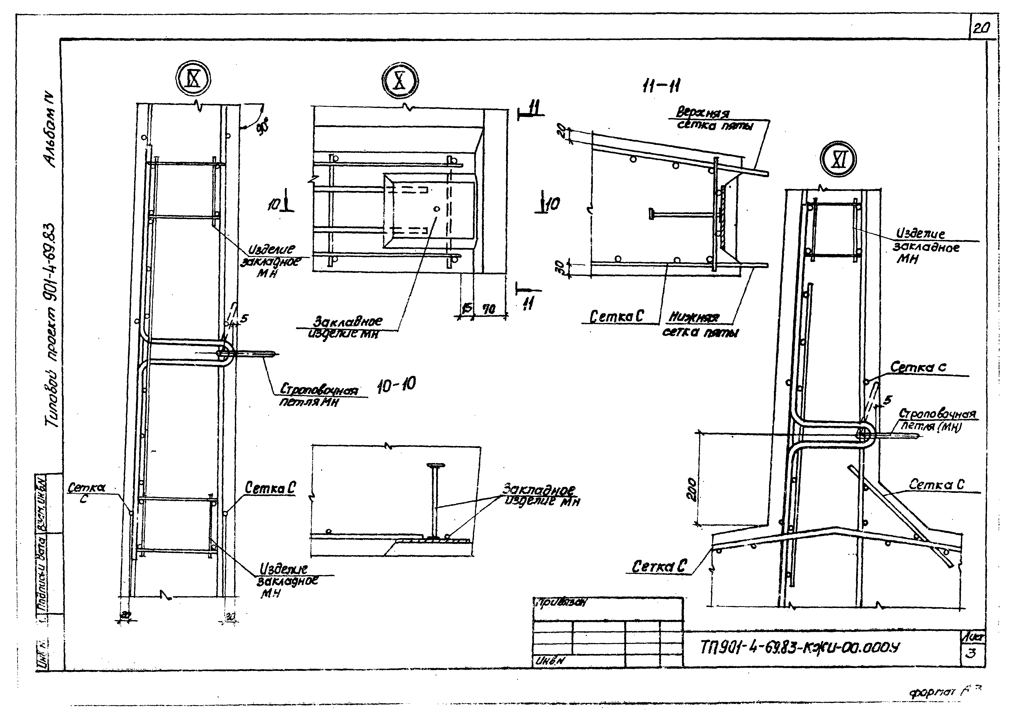
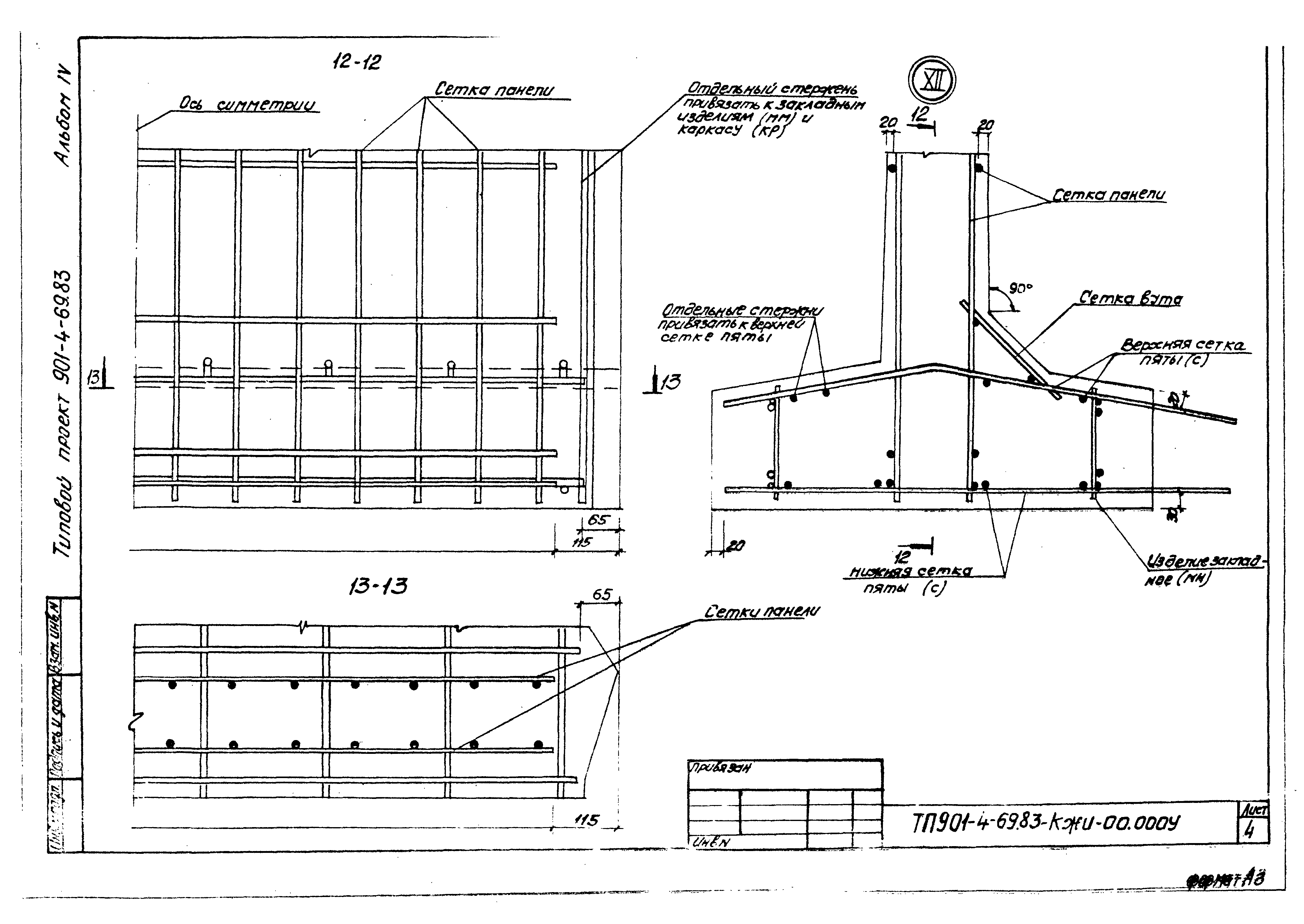
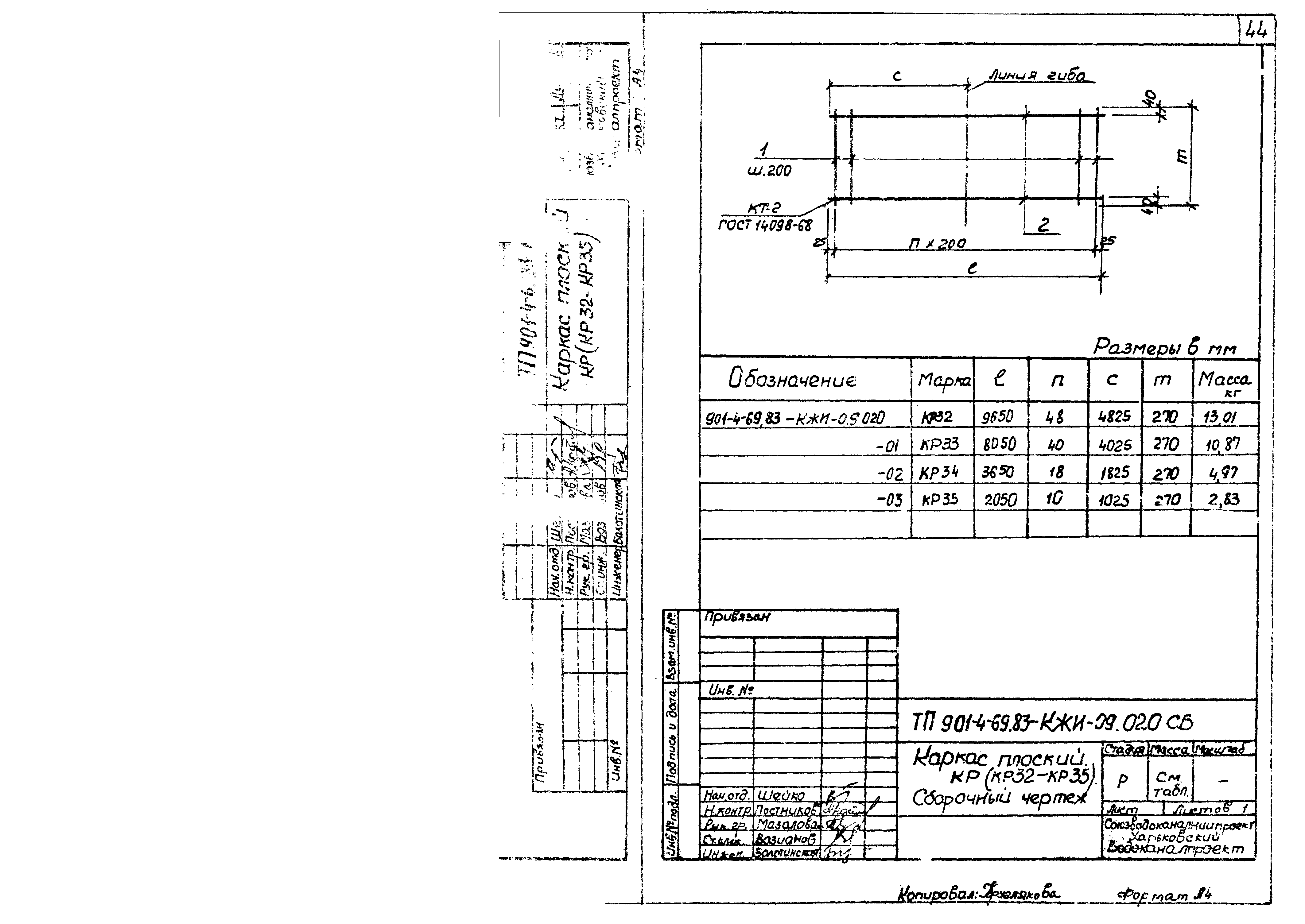
| Оглавление: | 901-4-69.83-КЖИ-00.000ДО Опись документов 901-4-69.83-КЖИ-00.000ТО Техническое описание 901-4-69.83-КЖИ-01.000 Панель стеновая ПС(ПС1 - ПС8) 901-4-69.83-КЖИ-01.000 СБ Панель стеновая ПС(ПС1 - ПС8). Сборочный чертеж 901-4-69.83-КЖИ-02.000 Панель перегородочная ПГР1 901-4-69.83-КЖИ-03.000 Плита покрытия 3ПР (2ПР2б-2ПР-4б; 3ПР-2в-2ПР-4в) 901-4-69.83-КЖИ-04.000 Колпак лаза Кпа,КПб,КПв 901-4-69.83-КЖИ-05.000 Панель стеновая ПСП14,48-Б14-К4лев, ПСП14-48-Б14-К4пр 901-4-69.83-КЖИ-05.000 СБ Панель стеновая ПСП14,48-Б14-К4лев, ПСП14-48-Б14-К4пр. Сборочный чертеж 901-4-69.83-КЖИ-06.000 Панель стеновая ПСП15,15,48-Б14-К4 901-4-69.83-КЖИ-06.000 СБ Панель стеновая ПСП15,15,48-Б14-К4. Сборочный чертеж 901-4-69.83-КЖИ-06.000 ВМС Выборка расхода стали 901-4-69.83-КЖИ-00.000 У Узлы 1 - 12 901-4-69.83-КЖИ-05.100 Изделие закладное МН1 901-4-69.83-КЖИ-05.100 СБ Изделие закладное МН1. Сборочный чертеж 901-4-69.83-КЖИ-05.200 Изделие закладное МН(МН2, МН3) 901-4-69.83-КЖИ-05.200 СБ Изделие закладное МН(МН2, МН3). Сборочный чертеж 901-4-69.83-КЖИ-05.300 Изделие закладное МН(МН4 - МН8) 901-4-69.83-КЖИ-05.300 СБ Изделие закладное МН(МН4 - МН8). Сборочный чертеж 901-4-69.83-КЖИ-05.040 Сетка арматурная С4 901-4-69.83-КЖИ-05.400 Изделие закладное МН(МН9, МН10) 901-4-69.83-КЖИ-05.400 СБ Изделие закладное МН(МН9, МН10). Сборочный чертеж 901-4-69.83-КЖИ-06.100 Изделие закладное МН11 901-4-69.83-КЖИ-06.100 СБ Изделие закладное МН11. Сборочный чертеж 901-4-69.83-КЖИ-06.200 Изделие закладное МН(МН12, МН13) 901-4-69.83-КЖИ-06.200 СБ Изделие закладное МН(МН12, МН13). Сборочный чертеж 901-4-69.83-КЖИ-06.300 Изделие закладное МН(МН14 - МН18) 901-4-69.83-КЖИ-06.300 СБ Изделие закладное МН(МН14 - МН18). Сборочный чертеж 901-4-69.83-КЖИ-06.400 Изделие закладное МН19 901-4-69.83-КЖИ-06.400 СБ Изделие закладное МН19. Сборочный чертеж 901-4-69.83-КЖИ-06.500 Изделие закладное МН20 901-4-69.83-КЖИ-06.500 СБ Изделие закладное МН20. Сборочный чертеж 901-4-69.83-КЖИ-05.110 Каркас плоский КР(КР1, КР2) 901-4-69.83-КЖИ-05.110 СБ Каркас плоский КР(КР1, КР2). Сборочный чертеж 901-4-69.83-КЖИ-05.220 Каркас плоский КР(КР3, КР4) 901-4-69.83-КЖИ-05.220 СБ Каркас плоский КР(КР3, КР4). Сборочный чертеж 901-4-69.83-КЖИ-05.330 Каркас плоский КР(КР5, КР6) 901-4-69.83-КЖИ-05.330 СБ Каркас плоский КР(КР5, КР6). Сборочный чертеж 901-4-69.83-КЖИ-05.440 Каркас плоский КР(КР7, КР8) 901-4-69.83-КЖИ-05.440 СБ Каркас плоский КР(КР7, КР8). Сборочный чертеж 901-4-69.83-КЖИ-06.110 Каркас плоский КР11 901-4-69.83-КЖИ-06.110 СБ Каркас плоский КР11. Сборочный чертеж 901-4-69.83-КЖИ-06.120 Каркас плоский КР12 901-4-69.83-КЖИ-06.120 СБ Каркас плоский КР12. Сборочный чертеж 901-4-69.83-КЖИ-06.210 Каркас плоский КР(КР13, КР15) 901-4-69.83-КЖИ-06.210 СБ Каркас плоский КР(КР13, КР15). Сборочный чертеж 901-4-69.83-КЖИ-06.220 Каркас плоский КР14 901-4-69.83-КЖИ-06.220 СБ Каркас плоский КР14. Сборочный чертеж 901-4-69.83-КЖИ-06.310 Каркас плоский КР(КР16 - КР20) 901-4-69.83-КЖИ-06.310 СБ Каркас плоский КР(КР16 - КР20). Сборочный чертеж 901-4-69.83-КЖИ-06.320 Каркас плоский КР21 901-4-69.83-КЖИ-06.410 Каркас плоский КР22 901-4-69.83-КЖИ-06.510 Каркас плоский КР23 901-4-69.83-КЖИ-09.010 Каркас плоский КР31 901-4-69.83-КЖИ-09.020 Каркас плоский КР(КР32 - КР35) 901-4-69.83-КЖИ-09.020 СБ Каркас плоский КР(КР32 - КР35). Сборочный чертеж 901-4-69.83-КЖИ-05.010 Сетка арматурная С1 901-4-69.83-КЖИ-05.010 СБ Сетка арматурная С1. Сборочный чертеж 901-4-69.83-КЖИ-05.020 Сетка арматурная С2 901-4-69.83-КЖИ-05.020 СБ Сетка арматурная С2. Сборочный чертеж 901-4-69.83-КЖИ-05.030 Сетка арматурная С3 901-4-69.83-КЖИ-06.020 Сетка арматурная С12 901-4-69.83-КЖИ-06.030 Сетка арматурная С13 901-4-69.83-КЖИ-06.040 Сетка арматурная С14 901-4-69.83-КЖИ-06.050 Сетка арматурная С15 901-4-69.83-КЖИ-10.010 Сетка арматурная С31 901-4-69.83-КЖИ-09.030 Сетка арматурная С21 901-4-69.83-КЖИ-09.040 Сетка арматурная С(С22; С27) 901-4-69.83-КЖИ-09.050 Сетка арматурная С(С23 - С26) 901-4-69.83-КЖИ-09.050 СБ Сетка арматурная С(С23 - С26). Сборочный чертеж 901-4-69.83-КЖИ-09.020 Сетка арматурная С(С32 - С35) 901-4-69.83-КЖИ-09.020 СБ Сетка арматурная С(С32 - С35). Сборочный чертеж 901-4-69.83-КЖИ-02.010 Сетка арматурная С41 901-4-69.83-КЖИ-06.070 Изделие закладное МН22 901-4-69.83-КЖИ-06.060 Изделие закладное МН21 901-4-69.83-КЖИ-07.000 Лестница съемная л1 901-4-69.83-КЖИ-08.000 Стремянка СГ8а |
| Разработан: | ЦНИИпромзданий НИИЖБ Союзводоканалниипроект Харьковский Водоканалпроект |
| Утверждён: | 17.11.1978 Госстрой СССР (Государственный комитет Совета Министров СССР по делам строительства) (USSR Gosstroy 2/3-409) |
























































