Скачать Типовые проектные решения 401-011-64.84 Альбом II. Металлоизделия и нестандартизированное оборудование (рабочие чертежи)Дата актуализации: 01.01.2021
|
| Обозначение: | Типовые проектные решения 401-011-64.84 |
| Обозначение англ: | 401-011-64.84 |
| Статус: | справочные материалы, мп, тпр |
| Название рус.: | Альбом II. Металлоизделия и нестандартизированное оборудование (рабочие чертежи) |
| Дата добавления в базу: | 01.09.2013 |
| Дата актуализации: | 01.01.2021 |
| Дата окончания срока действия: | 15.12.1983 |
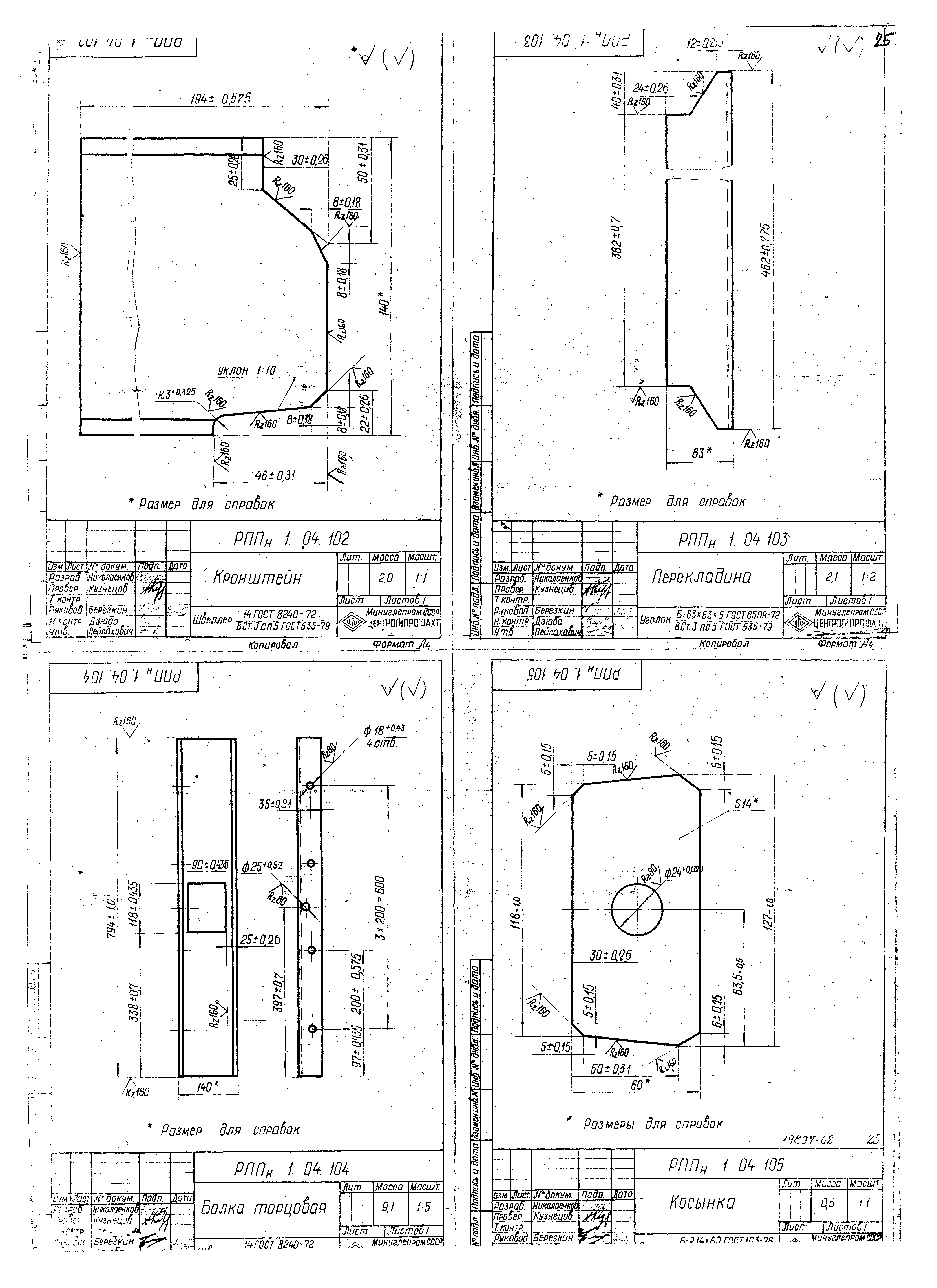
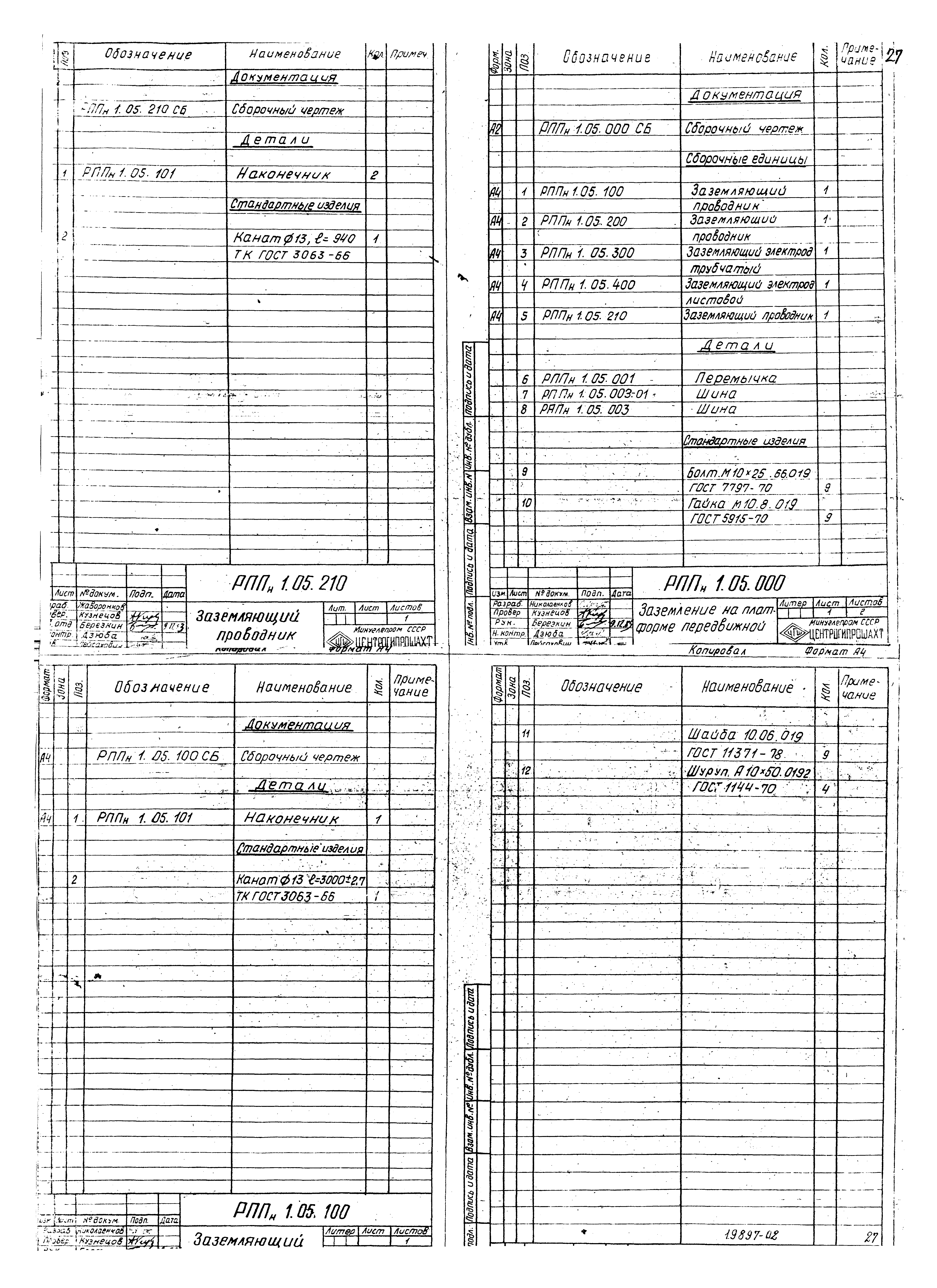
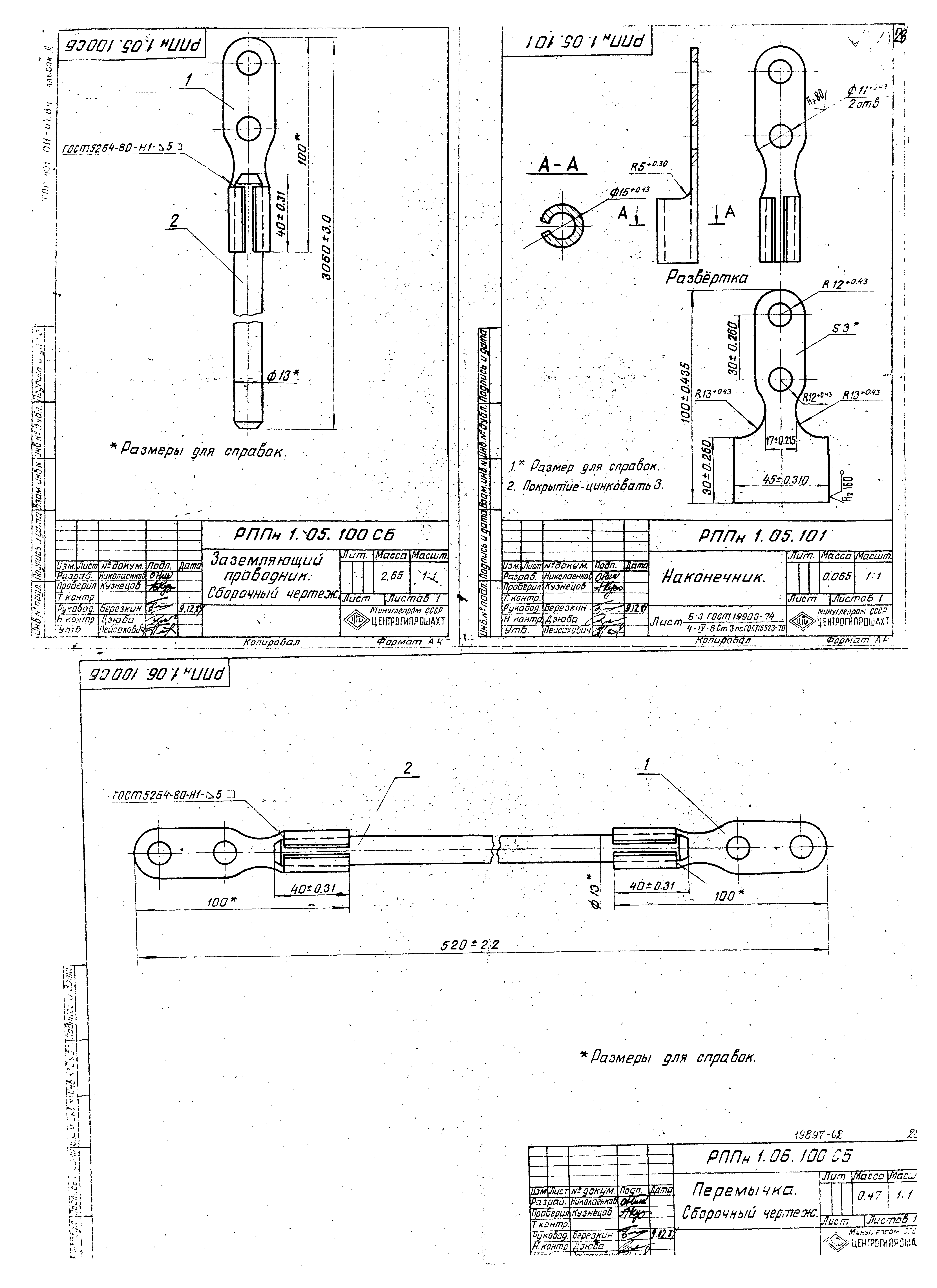
| Оглавление: | Содержание Платформа передвижная L = 1500 Платформа передвижная L = 2000 Платформа колесная для колеи 900 мм Платформа колесная для колеи 600 мм Заземление на платформе передвижной Заземление на платформе колесной Заземление на площадке перегружателя |
| Разработан: | Центрогипрошахт |
| Утверждён: | 13.12.1983 Минуглепром СССР (USSR Minugleprom ) |




































