Скачать Серия Б1.134.1-7 Дополнение к выпуску 1. Для зданий до 16 этажей с различными конструктивными схемами. Вариант армирования с применением гнутых сеток. Рабочие чертежиДата актуализации: 01.01.2021
|
| Обозначение: | Серия Б1.134.1-7 |
| Обозначение англ: | Series Б1.134.1-7 |
| Статус: | организационно-ограниченного применения |
| Название рус.: | Дополнение к выпуску 1. Для зданий до 16 этажей с различными конструктивными схемами. Вариант армирования с применением гнутых сеток. Рабочие чертежи |
| Дата добавления в базу: | 01.09.2013 |
| Дата актуализации: | 01.01.2021 |
| Дата введения: | 01.08.2003 |
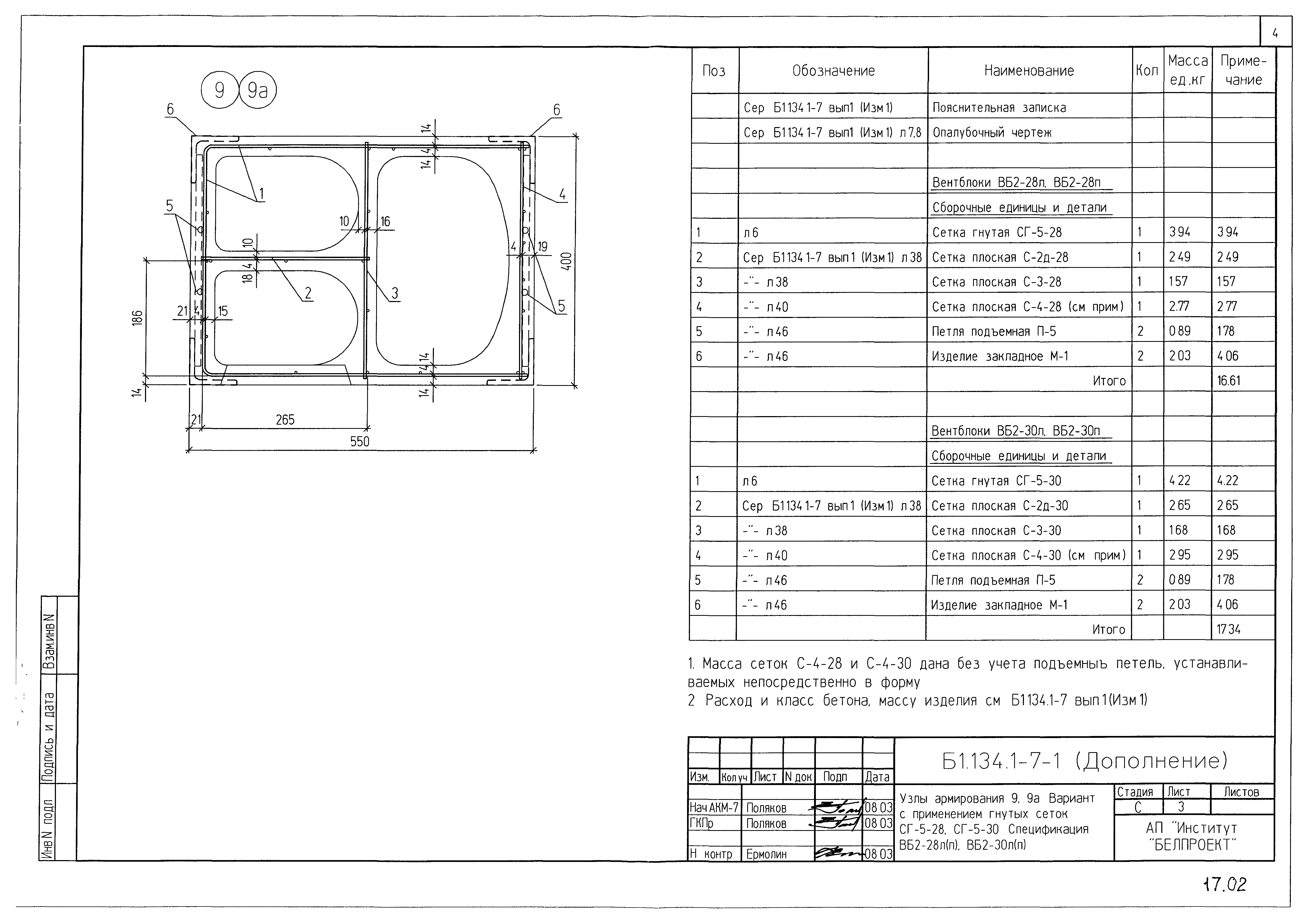
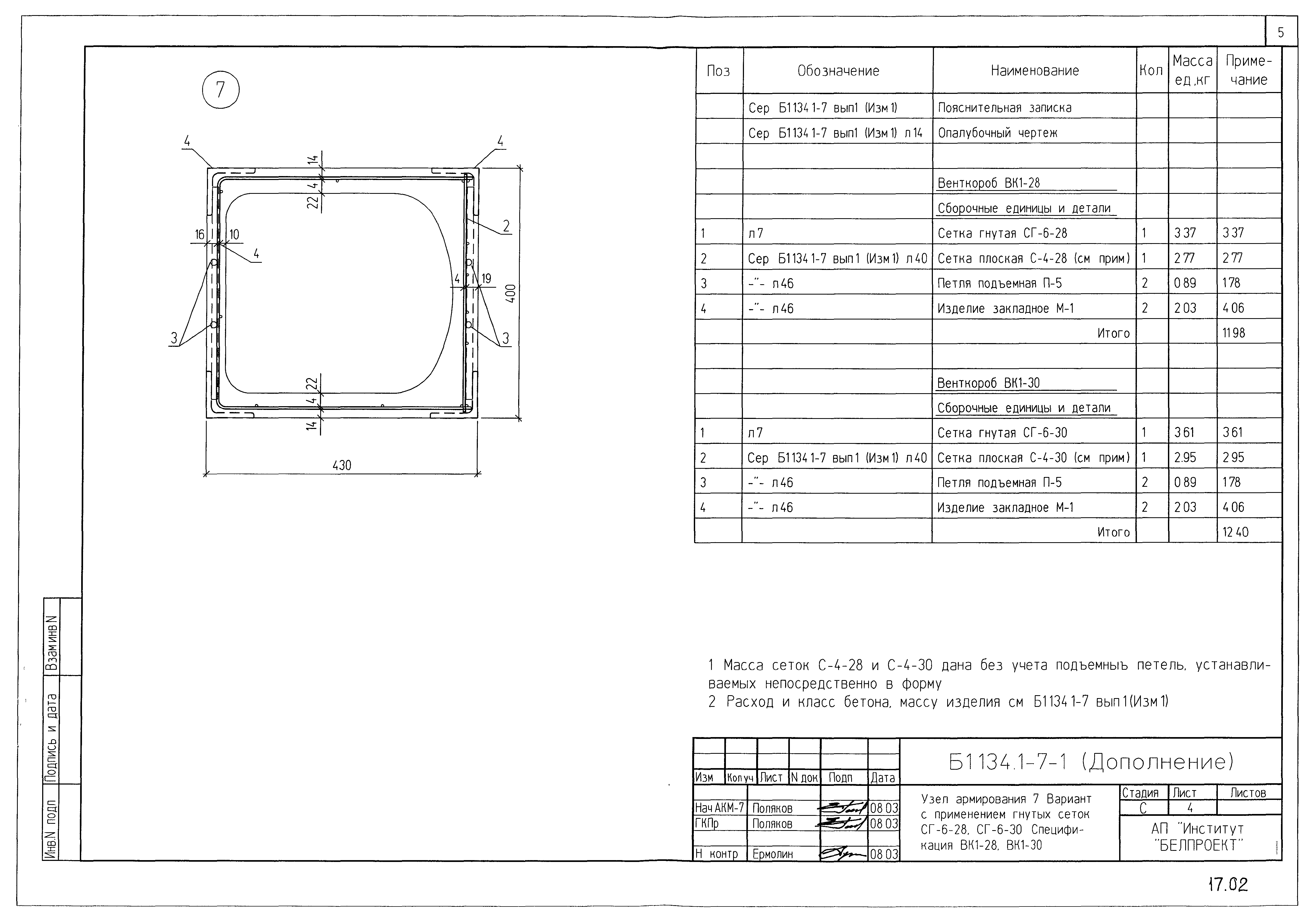
| Оглавление: | Общие данные Узлы армирования. Вариант с применением гнутых сеток. Спецификация Сетки арматурные гнутые |
| Разработан: | Белпроект |
| Утверждён: | 01.08.2003 Минскжелезобетон |







