Скачать Типовой проект 274-20-171.91 Альбом I. Архитектурно-строительные чертежи. Отопление и вентиляция. Водопровод и канализация. Электрооборудование. Связь и сигнализация. Автоматика вентсистем. ТехнологияДата актуализации: 01.01.2021
|
| Обозначение: | Типовой проект 274-20-171.91 |
| Обозначение англ: | 274-20-171.91 |
| Статус: | не определен законодательством |
| Название рус.: | Альбом I. Архитектурно-строительные чертежи. Отопление и вентиляция. Водопровод и канализация. Электрооборудование. Связь и сигнализация. Автоматика вентсистем. Технология |
| Дата добавления в базу: | 01.09.2013 |
| Дата актуализации: | 01.01.2021 |
| Дата введения: | 20.06.1991 |
| Дата окончания срока действия: | 30.06.2003 |
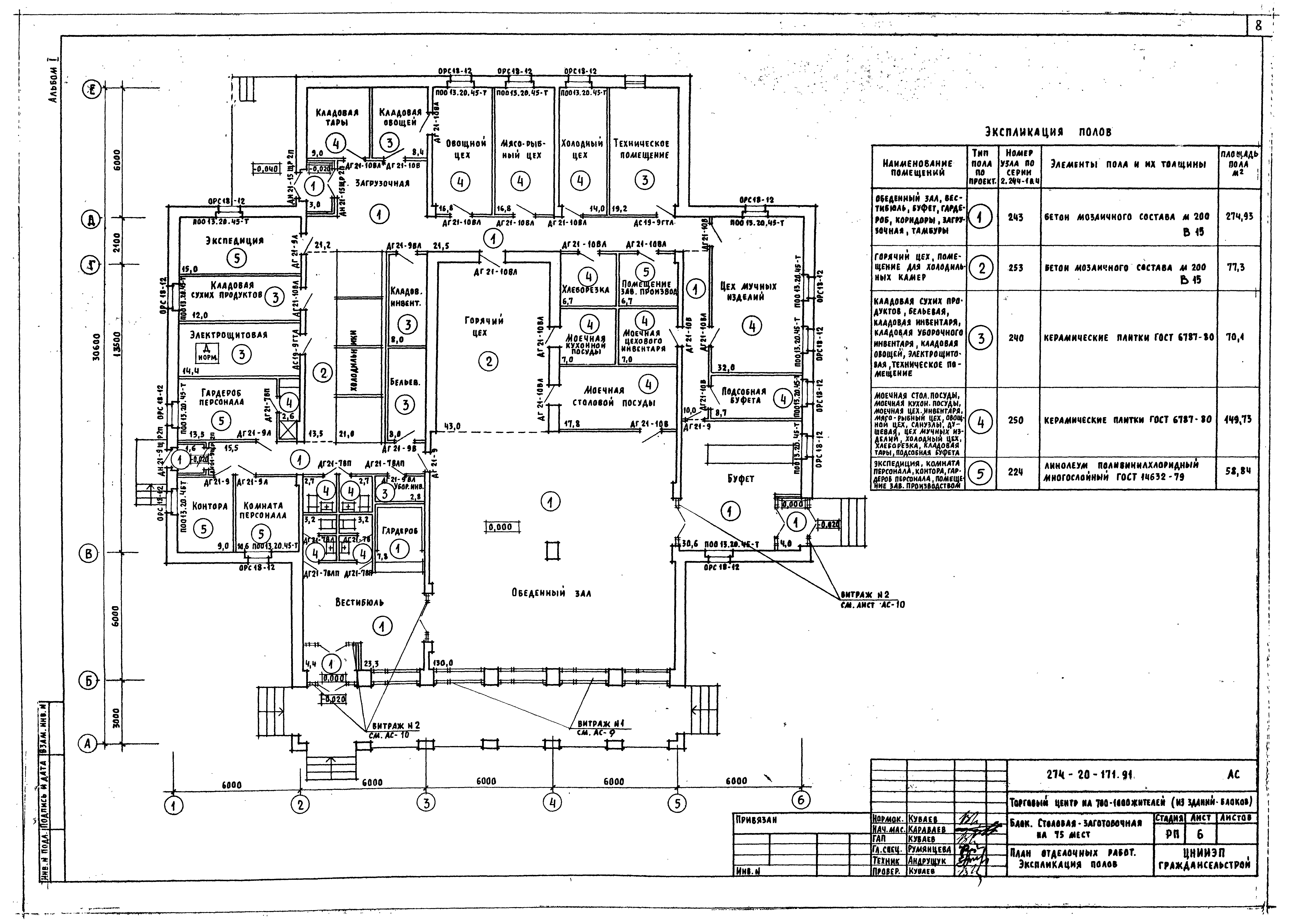
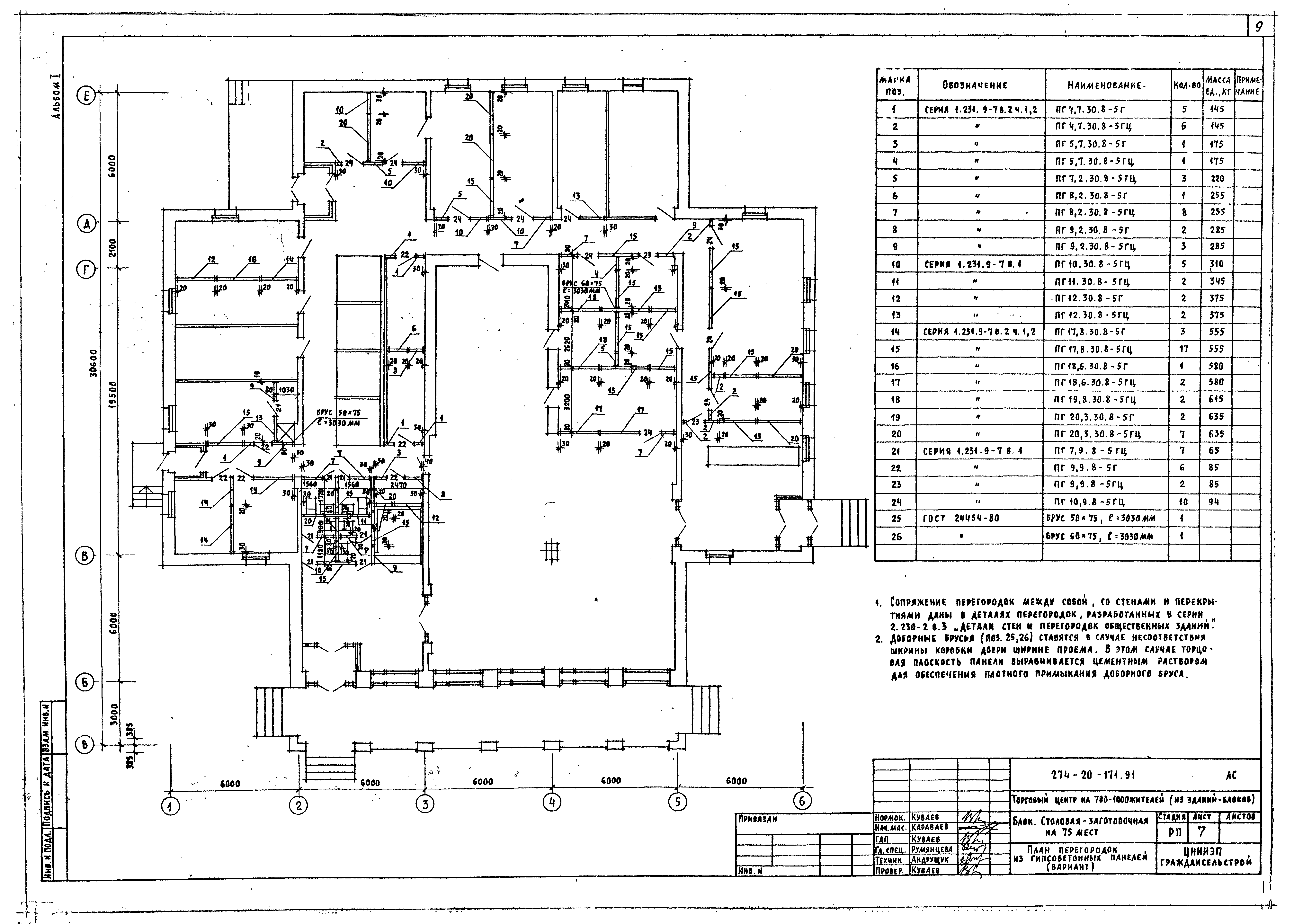
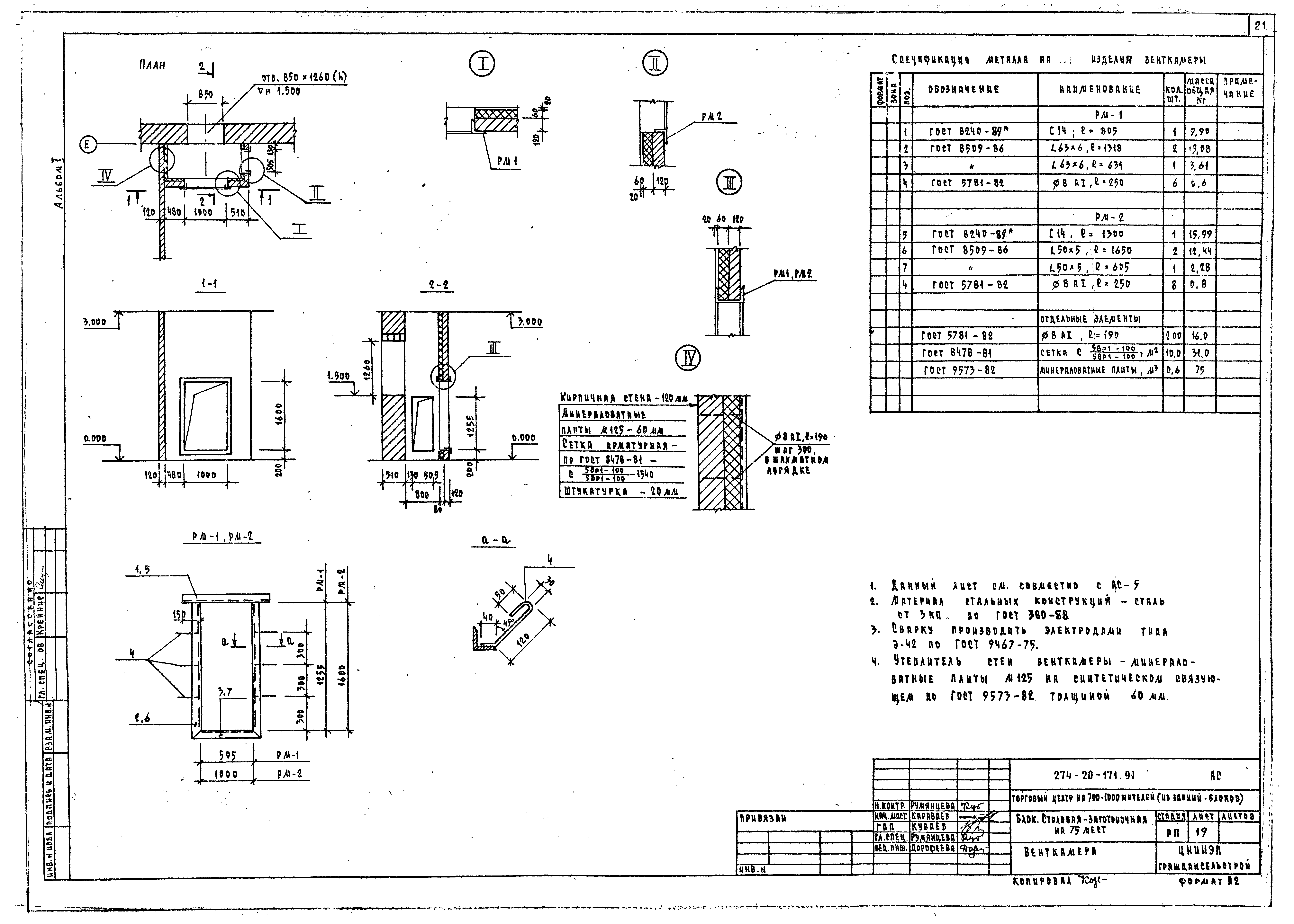
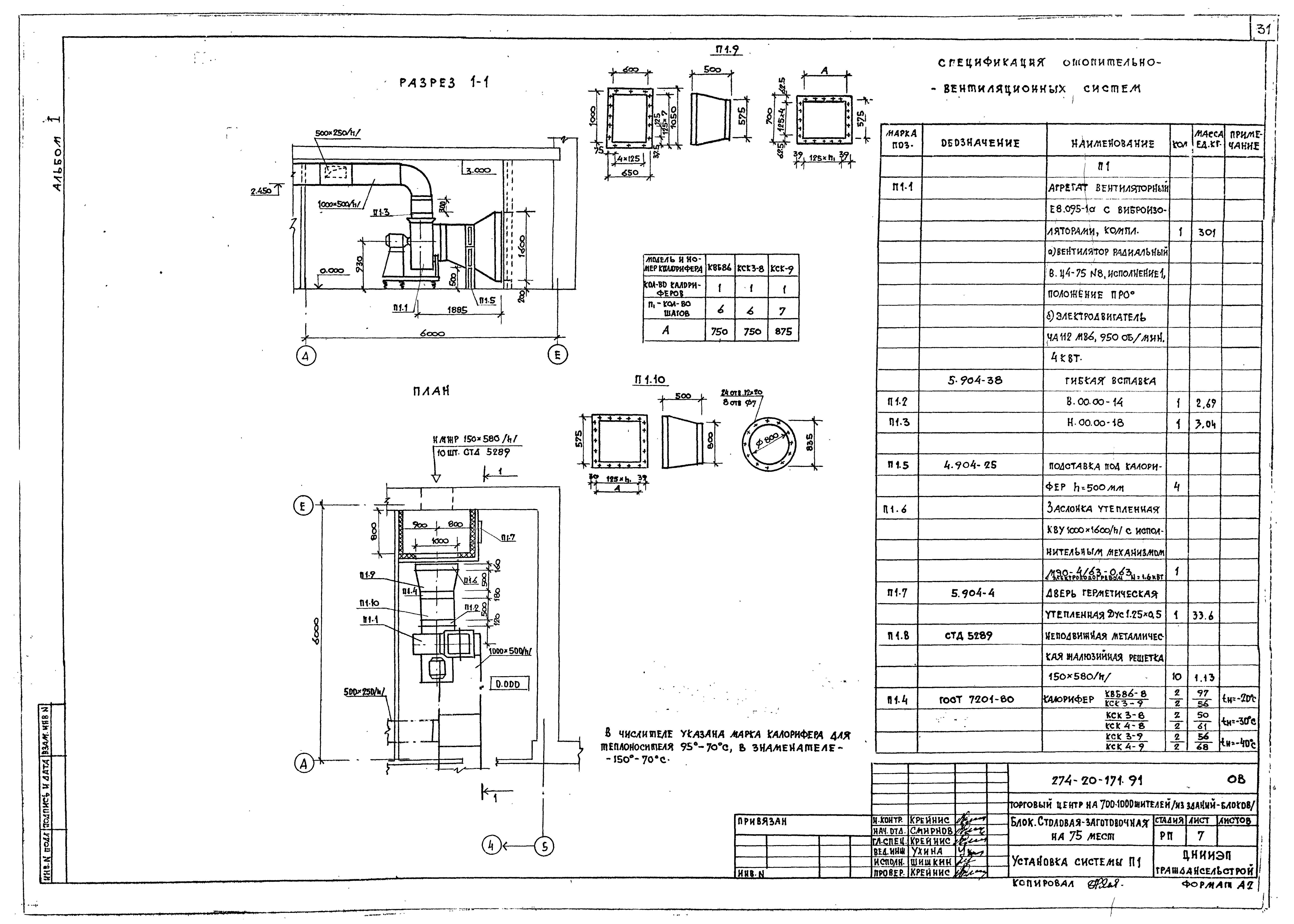
| Оглавление: | Содержание альбома Архитектурно-строительные чертежи Общие данные Фасады 1 - 6; А - Е; Е - А Фасад 6 - 1. Разрезы 1-1, 2-2 Кладочный план План отделочных работ. Экспликация полов План перегородок из гипсобетонных блоков (вариант) Спецификация столярных и железобетонных изделий. Ведомость отделки помещений Монтажная схема витража №1 Монтажная схема витража №2, 2* Фундаменты. Схема расчетных сечений. Спецификации Фундаменты. План Фундаменты. Сечения Схема перемычек Спецификации к схеме перемычек. Сечения. Узлы Схема расположения плит перекрытия на отм. 3.000 и 5.600 Участки монолитные УМ-1 - УМ-4. Сечения План крыши. Шахты Ш1 - Ш6 Венткамера Схема армирования облегченной кладки. Сечения 1-1, 2-2 Схема армирования облегченной кладки. Узлы 1 - 4 Схема армирования облегченной кладки. Узлы 5, 6. Сетки Отопление и вентиляция Общие данные План на отм. 0.000 Схема системы отопления Узел управления. Схема системы теплоснабжения установки П1 Схемы систем П1, В1 - В3, ВЕ1 - ВЕ8 Установка системы П1 Водопровод и канализация Общие данные План Схема систем В1, Т3, Т4, К1, К2, К3 Электрооборудование Общие данные Принципиальная схема питающей сети План расположения осветительных сетей. Данные о групповых щитках Планы расположения силовых и питающих сетей Расчетная схема силовых сетей Опросный лист на вводно-распределительное устройство Связь и сигнализация Общие данные Схема расположения устройств связи. План кровли План расположения сетей связи на этаже План расположения сетей пожарной сигнализации на этаже Автоматика вентсистем Общие данные Вентсистема №1. Схема автоматизации Схема электрическая принципиальная управления Схема подключения П1. Схема расположения П1 Технология Общие данные План. Расстановка и привязка технологического оборудования |
| Разработан: | ЦНИИЭП граждансельстрой |
| Утверждён: | 20.06.1991 Госкомархитектура (ЮШ-2-396) |



















































