Скачать Типовой проект 409-23-56.87 Альбом 1. Пояснительная записка. Технология основного производстваДата актуализации: 01.01.2021
|
| Обозначение: | Типовой проект 409-23-56.87 |
| Обозначение англ: | 409-23-56.87 |
| Статус: | не определен законодательством |
| Название рус.: | Альбом 1. Пояснительная записка. Технология основного производства |
| Дата добавления в базу: | 01.09.2013 |
| Дата актуализации: | 01.01.2021 |
| Дата введения: | 04.12.1985 |
| Дата окончания срока действия: | 30.06.2003 |
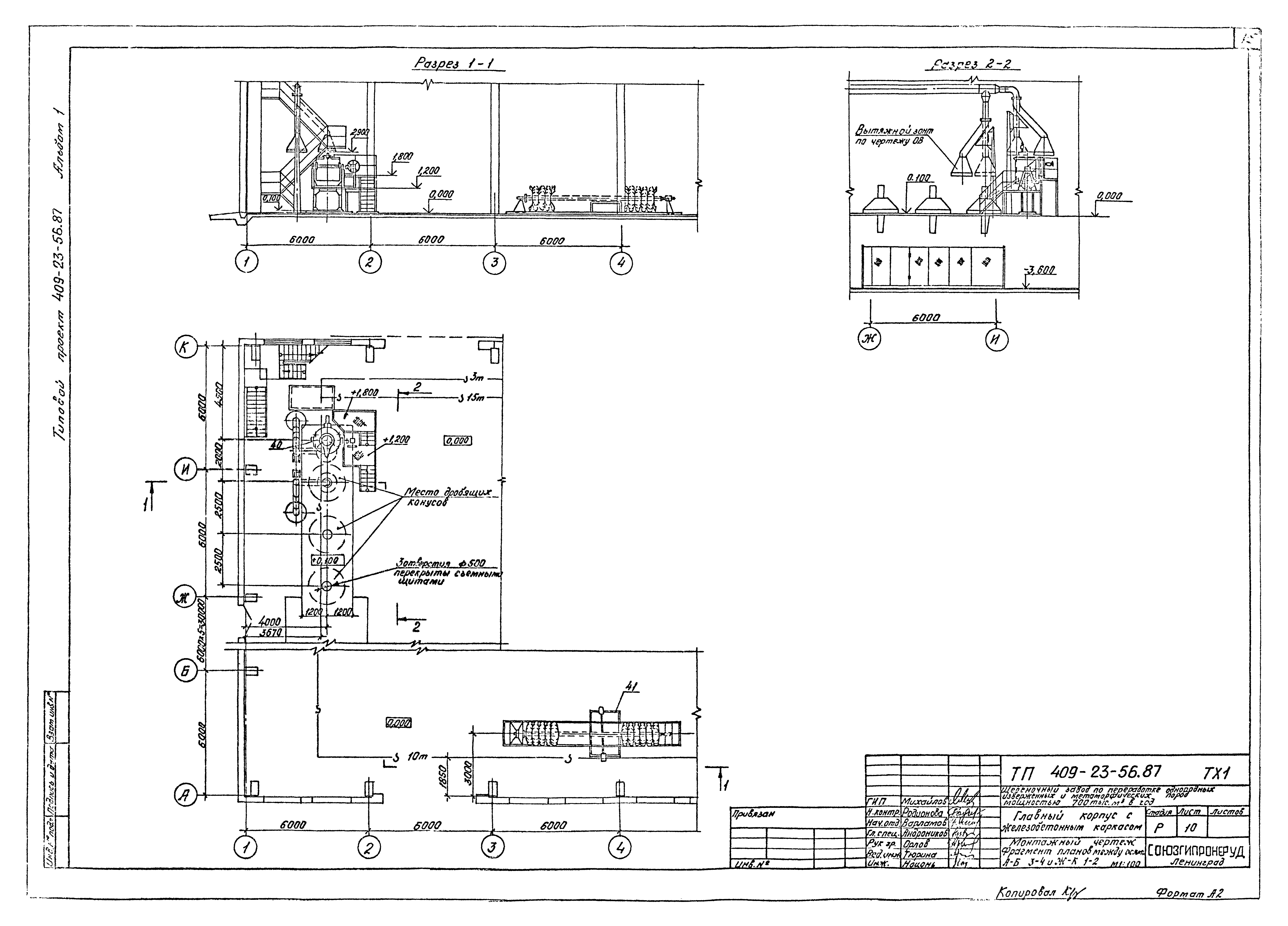
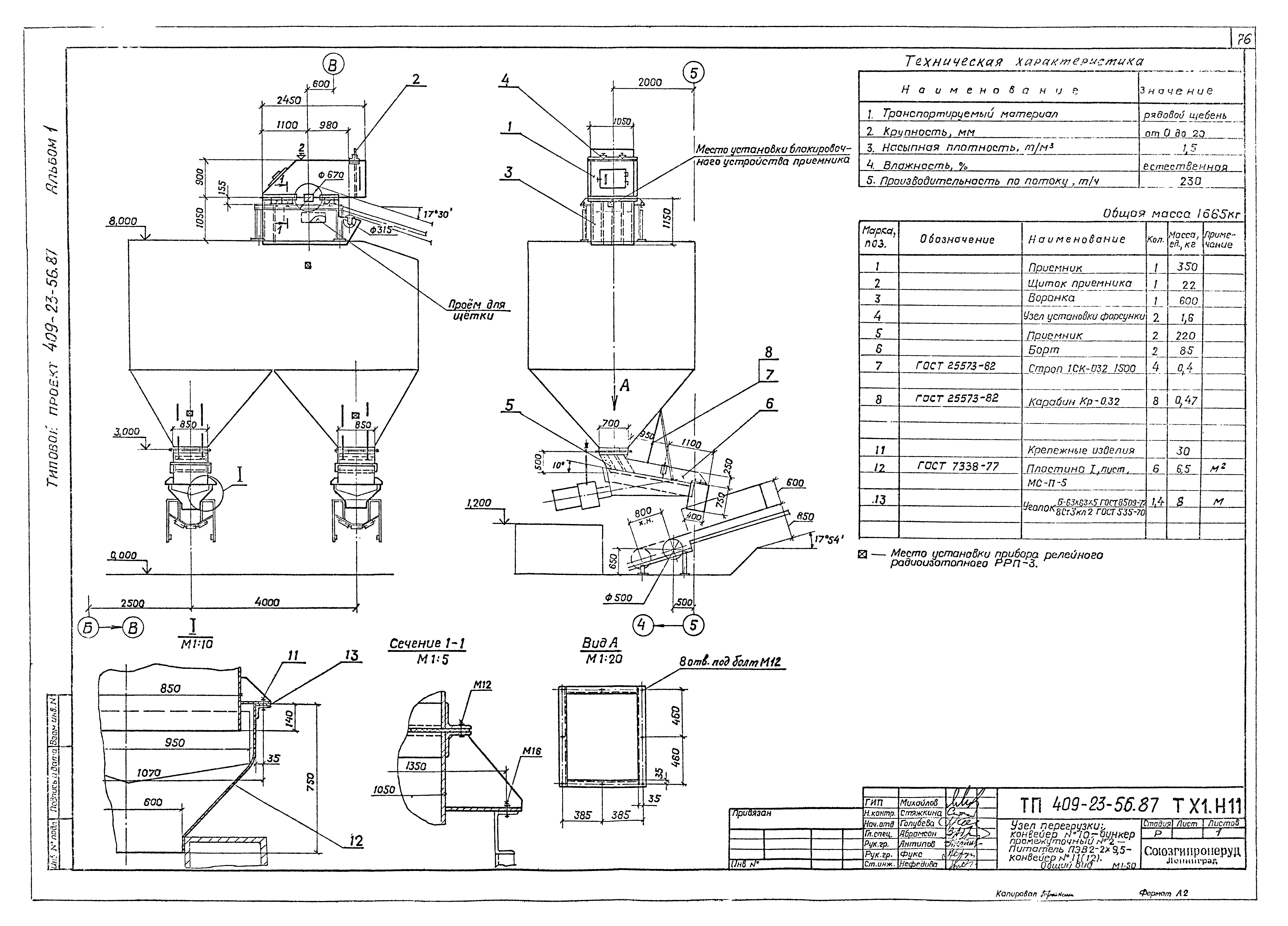
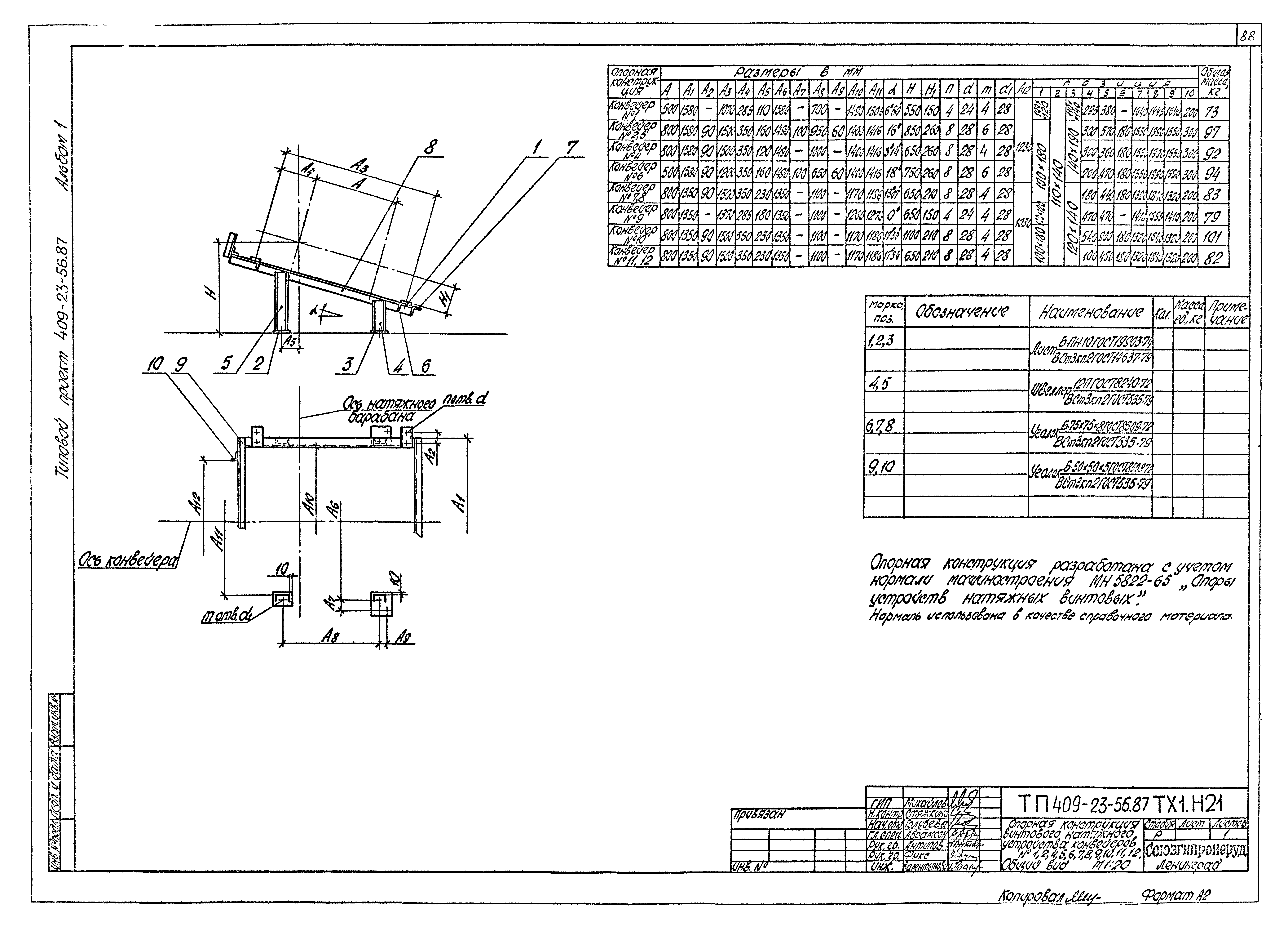
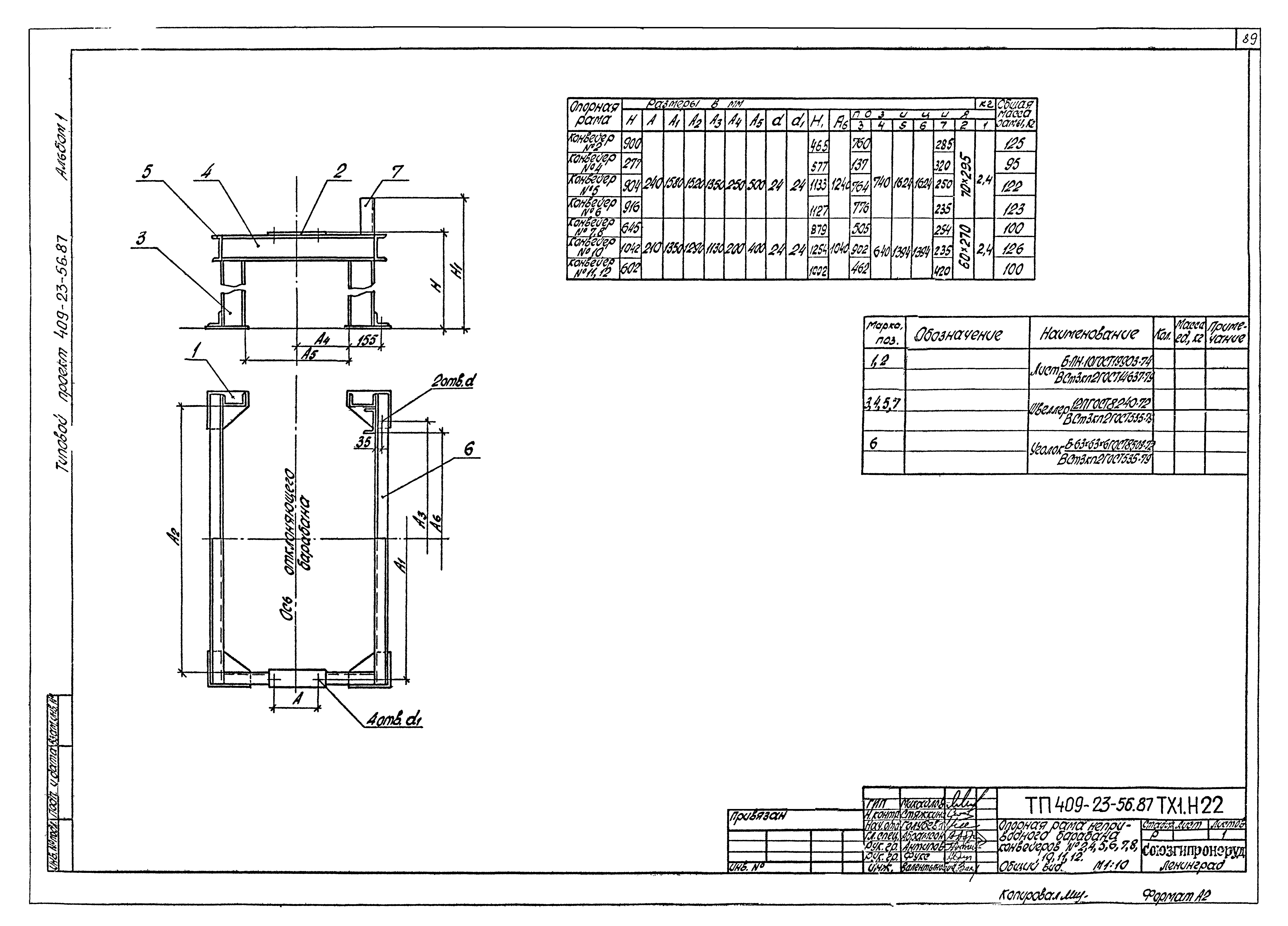
| Оглавление: | Содержание альбома Пояснительная записка Чертежи основного комплекта марки ТХ Общие данные Монтажный чертеж. План площадок Монтажный чертеж. План отм. 0.000 Монтажный чертеж. План отм. - 3.600; - 5.000; - 5.700 Монтажный чертеж. Разрезы 1-1; 5-5 Монтажный чертеж. Разрезы 2-2; 6-6 Монтажный чертеж. Разрезы 3-3; 7-7 Монтажный чертеж. Разрезы 4-4; 8-8 Монтажный чертеж. Фрагмент планов между осями А - Б; 3 - 4 и Ж - К; 1 - 2 Монтажный чертеж. Спецификация Установка питателя пластинчатого 1-15-120 Установка грохота инерционного ГИТ-41 Установка дробилки ЩДП9х12 (СМД-111) Установка дробилки ЩДП9х12 (СМД-111). Разводка маслопроводов Установка дробилки ЩДП9х12 (СМД-111). Станция жидкой смазки производительностью 35л/мин Установка дробилки ЩДП9х12 (СМД-111). Станция двухлинейной централизованной смазки 0075-1-1-1 Установка грохота инерционного ГИТ-52м Установка дробилок КСД-1750Гр-Д, КМД-1750Т-Д. Разрезы Установка дробилок КСД-1750Гр-Д, КМД-1750Т-Д. Планы Установка дробилок КСД-1750Гр-Д, КМД-1750Т-Д. Разводка маслопроводов Установка дробилок КСД-1750Гр-Д, КМД-1750Т-Д. Разводка маслопроводов. Спецификация Установка дробилок КСД-1750Гр-Д, КМД-1750Т-Д. Установка смазочная УС-63 Установка дробилок КСД-1750Гр-Д, КМД-1750Т-Д. Установка сепаратора масла СЦ-3А Установка грохота инерционного СМД-125 №1 (2) Установка грохотов инерционных СМД-125 №3, 4 (№5, 6) Установка классификатора односпирального 1КСН-12 №1 (2) Установка питателя электровибрационного ПЭВ2-4х12 Установка питателя электровибрационного ПЭВ2-2х9,5 Установка виброобезвоживателя на базе ПЭВ2-2х9,5 №1 (2) Установка электроковша для плавки цинкового сплава Установка конвейера №1 10050-80. Монтажная схема. Разрез 1-1. Виды А, Б. Узел I Установка конвейера №1 10050-80. Спецификация Установка конвейера №2 10080-120. Монтажная схема Установка конвейера №2 10080-120. Виды А, Б. Узел I. Разрез 1-1 Установка конвейера №2 10080-120. Спецификация Установка конвейера №4 10080-120. Монтажная схема. Виды А, Б Установка конвейера №4 10080-120. Загрузочное устройство. Разрезы 1-1, 2-2 Установка конвейера №4 10080-120. Спецификация Установка конвейера №5 10080-120. Монтажная схема Установка конвейера №5 10080-120. Разрезы 1-1, 2-2. Виды А, Б. Загрузочное устройство Установка конвейера №5 10080-120. Спецификация Установка конвейера №6 10080-120. Разрез 1-1. Виды А, Б. Загрузочное устройство Установка конвейера №6 10080-120. Спецификация Установка конвейера №7 (8) 8063-100. Монтажная схема. Разрез 1-1 Установка конвейера №7 (8) 8063-100. Виды А, Б. Загрузочное устройство. Разрезы 2-2, 3-3 Установка конвейера №7 (8) 8063-100. Спецификация Установка конвейера №9 8050-80. Монтажная схема. Разрез 1-1. Виды А, Б. Узел I Установка конвейера №9 8050-80. Спецификация Установка конвейера №10 8063-100. Монтажная схема Установка конвейера №10 8063-100. Разрезы 1-1, 2-2. Виды А, Б. Загрузочное устройство Установка конвейера №10 8063-100. Спецификация Установка конвейера №11 (12) 8063-100. Монтажная схема Установка конвейера №11 (12) 8063-100. Виды А, Б. Разрезы 1-1, 2-2. Загрузочное устройство Установка конвейера №11 (12) 8063-100. Спецификация Установка электромагнита М-42В (М-22В) Узел перегрузки: бункер-питатель 1-15-120 - грохот ГИТ-41 - дробилка ЩДП9х12. Общий вид Узел сбора просыпи из-под питателя на конвейер №1. Общий вид Узел перегрузки: конвейер №1, дробилка ЩДП9х12 - конвейер №2. Общий вид Узел перегрузки: конвейер №2 - грохот ГИТ-52М - конвейер №3 - дробилка КСД-1750Гр. Общий вид Узел перегрузки: дробилка КСД-1750Гр и КМД-1750Т - конвейер №4. Общий вид Узел перегрузки: конвейер №4 - конвейер №5. Общий вид Узел перегрузки: конвейер №5 - конвейер №6. Общий вид Узел перегрузки: конвейер №6 - промежуточный бункер - питатель ПЭВ-4х12 - конвейер №7 (8). Общий вид Узел перегрузки: конвейер №7 (8) - грохот СМД-125 - дробилка КМД-1750Т и конвейеры №9, 10. Общий вид Узел перегрузки: конвейер №9 - конвейер №13. Общий вид Узел перегрузки: конвейер №10 - бункер промежуточный №2 - питатель ПЭВ2-2х9,5 - конвейер №11 (12). Общий вид Узел перегрузки: конвейер №11 (12) - грохот СМД-125. Общий вид Узел перегрузки: грохоты СМД-125 №3, 5 (4, 6) - конвейеры №14, 15, 16. Общий вид Узел слива пульты с классификаторов №1, 2 в ЗУМПФ и загрузка классификаторов. Общий вид Узел перегрузки: классификатор - виброобезвоживатель - конвейер №14. Общий вид Стенд для ремонта спирали классификатора 1КСН-12. Общий вид Электроковш для плавки цинкового сплава. Общий вид Опорная рама приводного барабана конвейеров №1, 2, 4, 5, 6, 7, 8, 9, 10, 11, 12. Общий вид Опорная рама приводного механизма конвейеров №1, 2, 4, 5, 6, 7, 8, 9, 10, 11, 12. Общий вид Подрамник опорной рамы приводного механизма конвейеров №1, 4, 6, 10. Общий вид Опорная конструкция винтового натяжного устройства конвейеров №1, 2, 4, 5, 6, 7, 8, 9, 10, 11, 12. Общий вид Опорная рама неприводного барабана конвейеров №2, 4, 5, 6, 7, 8, 10, 11, 12. Общий вид Опорная рама средней части и нижней роликоопоры конвейеров №1, 2, 4, 5, 6, 7, 8, 9, 10, 11, 12. Общий вид |
| Разработан: | Союзгипронеруд |
| Утверждён: | 19.07.1982 Минстройматериалов СССР (USSR Minstroymaterialov 28-154/81) |


























































































