Скачать Типовой проект 409-23-56.87 Альбом 3. Архитектурные решенияДата актуализации: 01.01.2021
|
| Обозначение: | Типовой проект 409-23-56.87 |
| Обозначение англ: | 409-23-56.87 |
| Статус: | не определен законодательством |
| Название рус.: | Альбом 3. Архитектурные решения |
| Дата добавления в базу: | 01.10.2014 |
| Дата актуализации: | 01.01.2021 |
| Дата введения: | 04.12.1985 |
| Дата окончания срока действия: | 30.06.2003 |
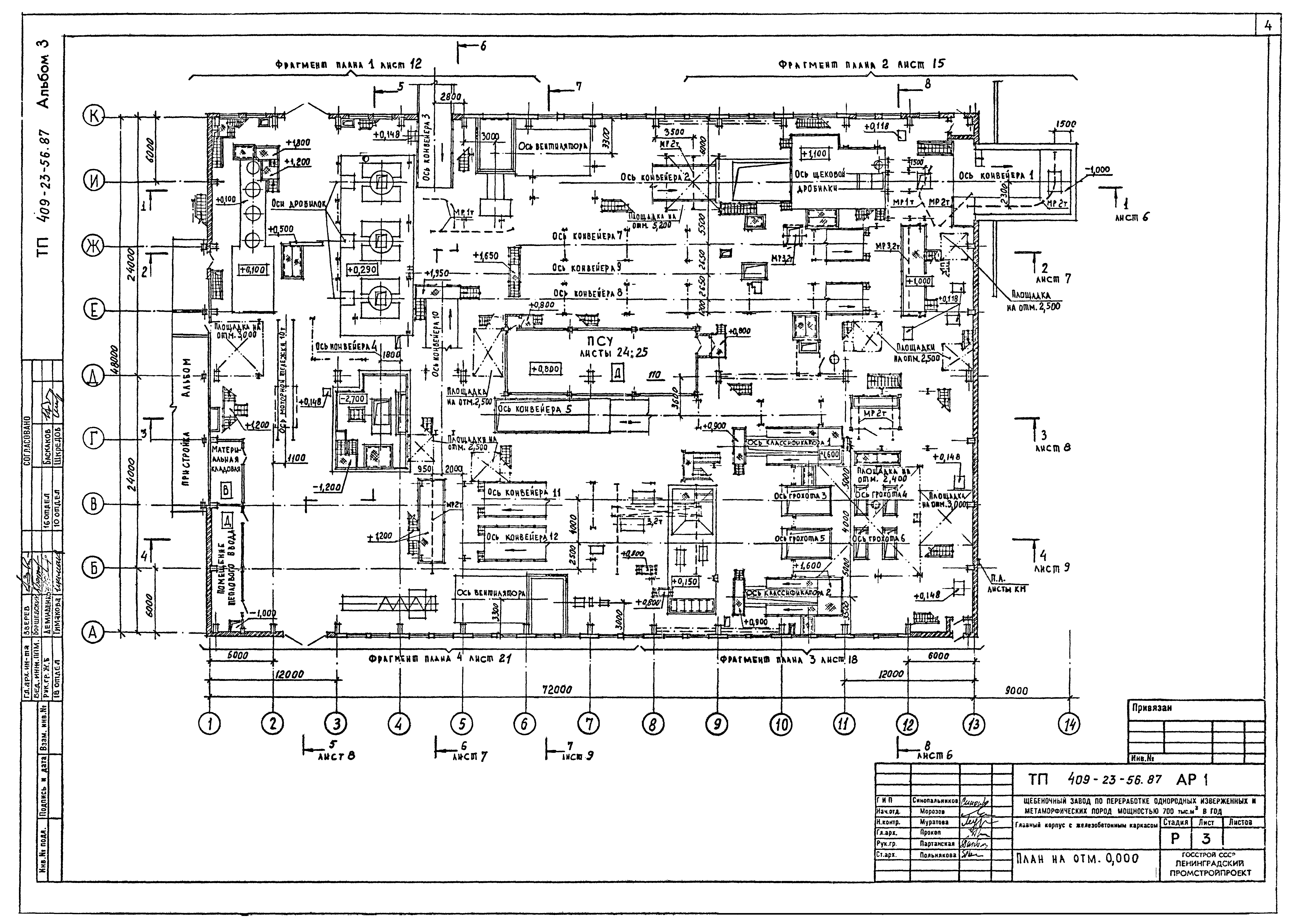
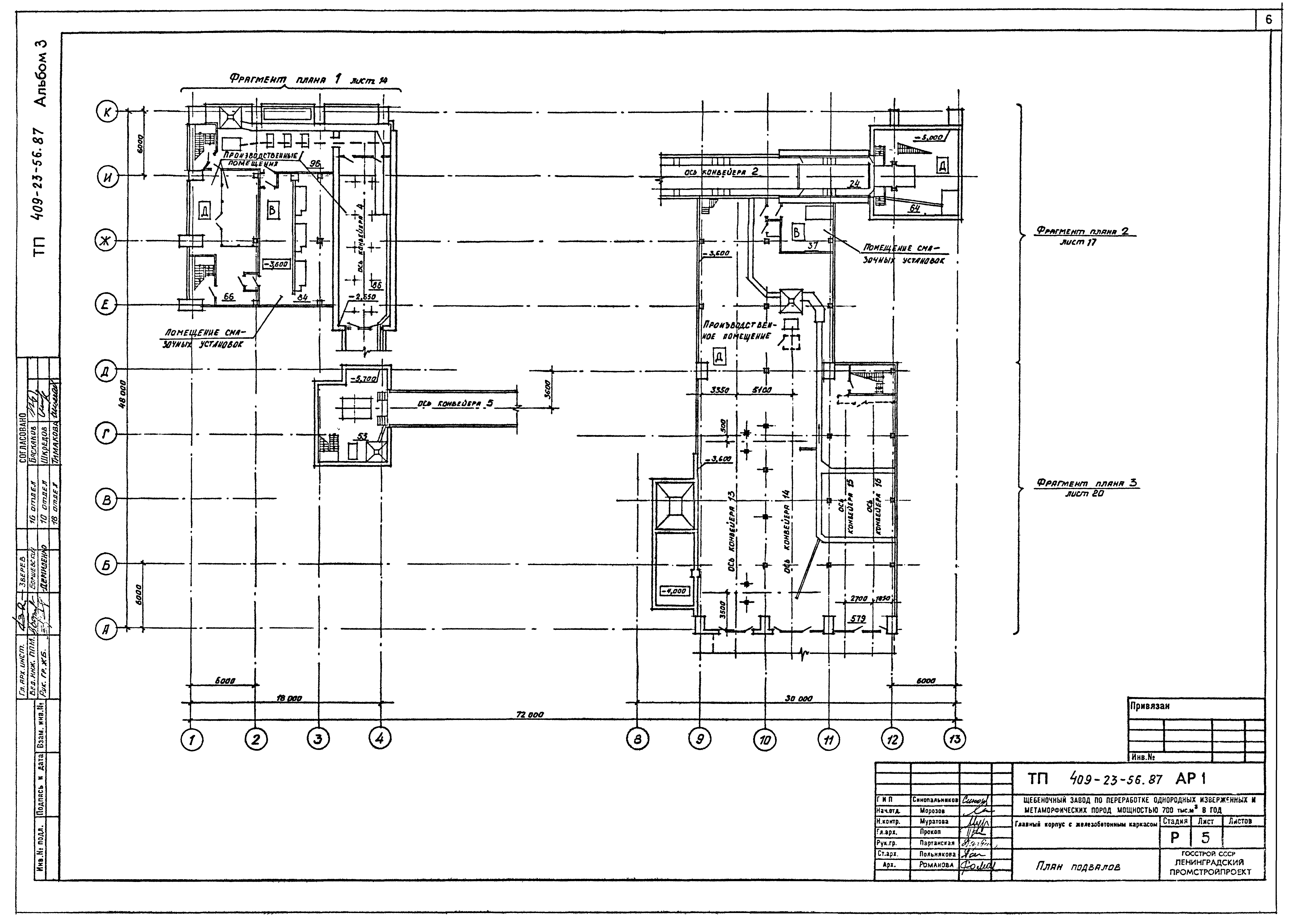
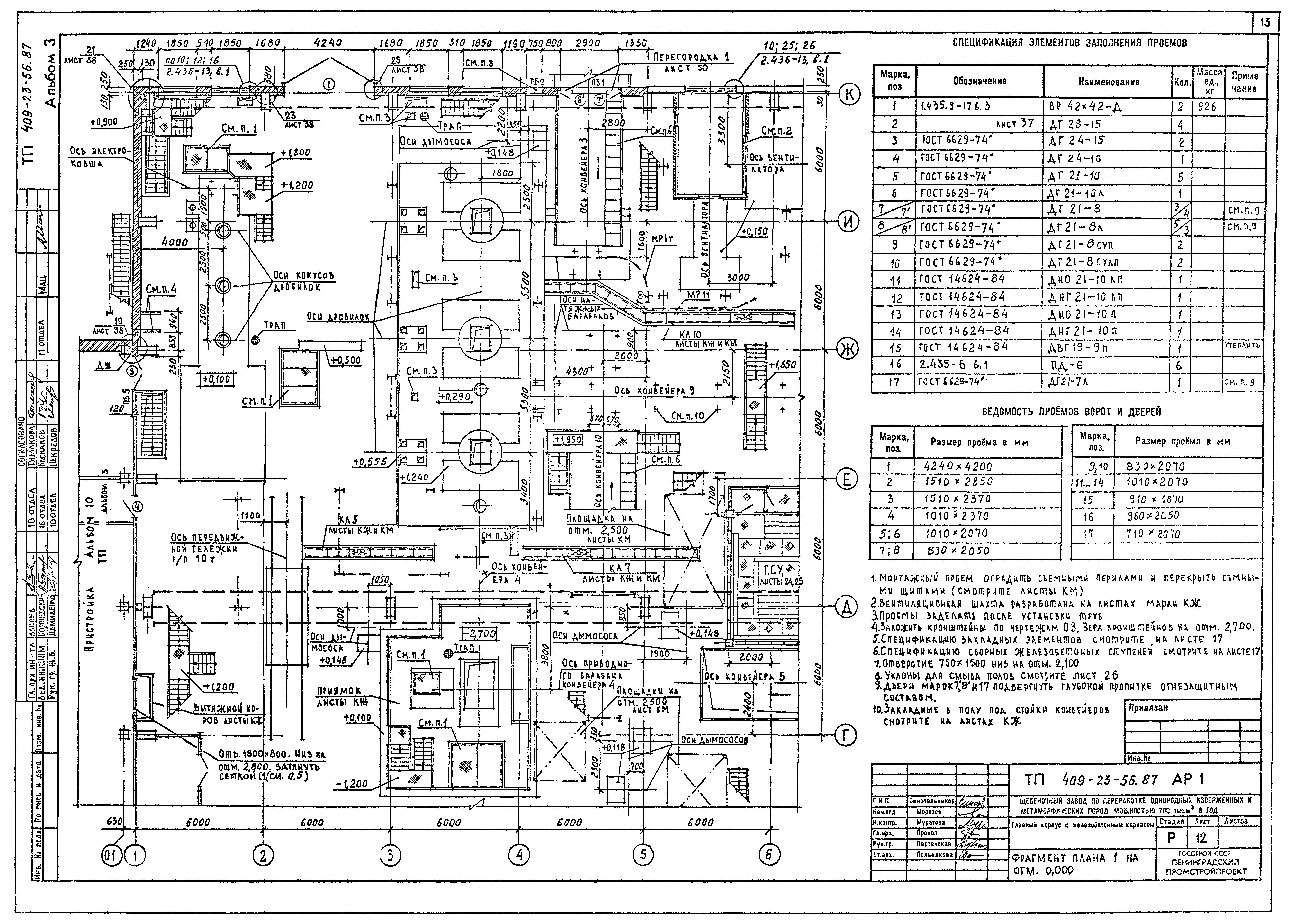
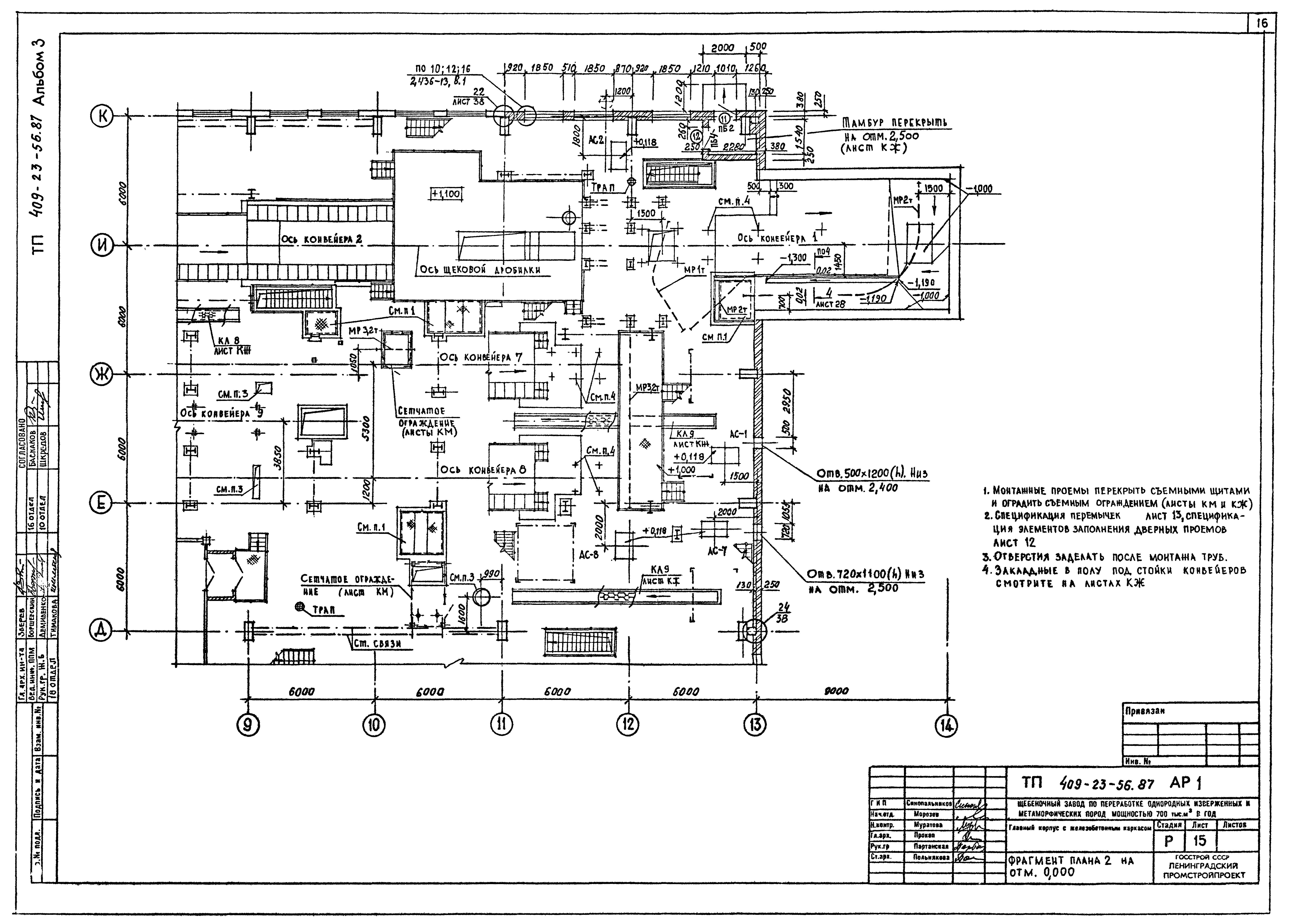
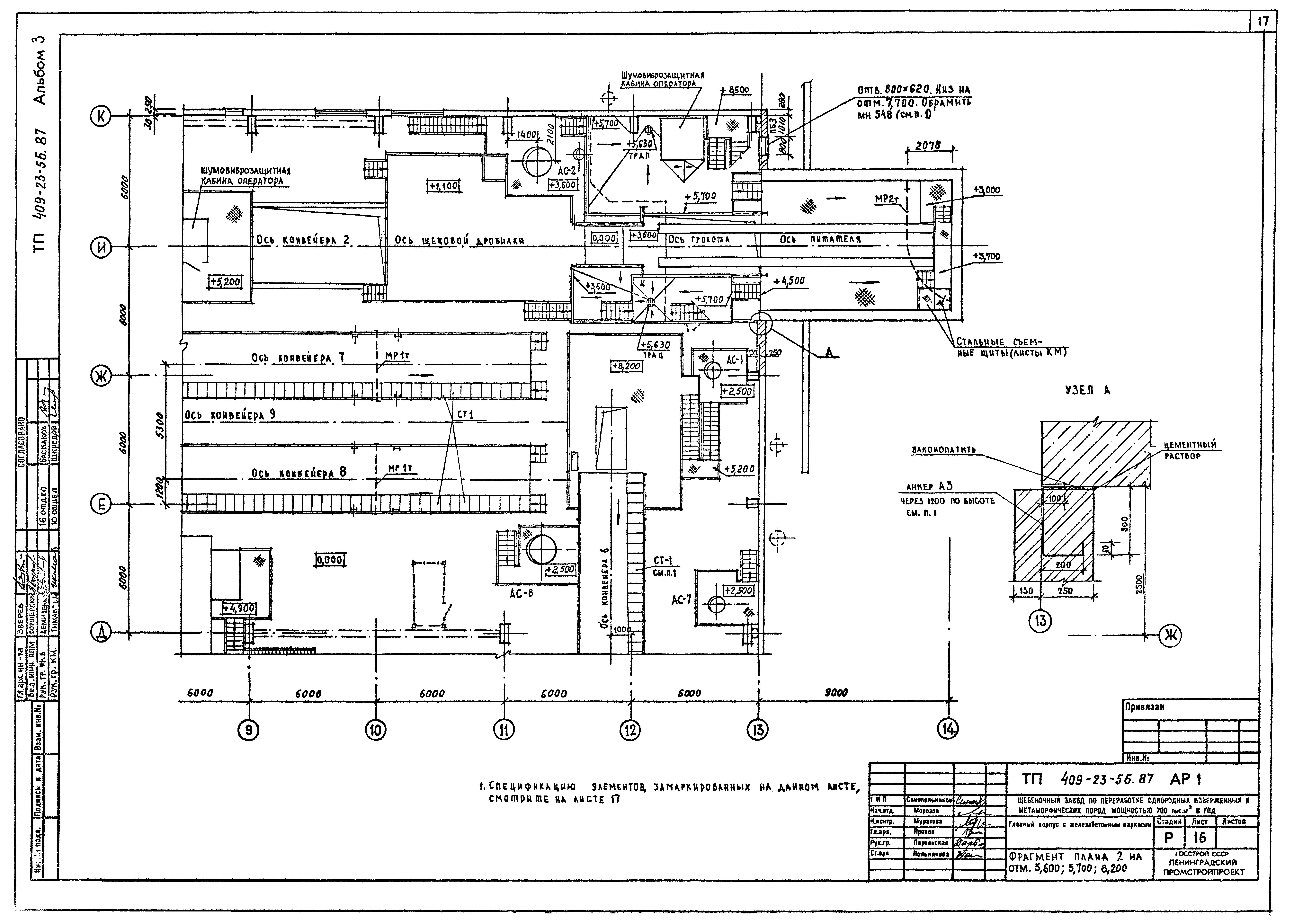
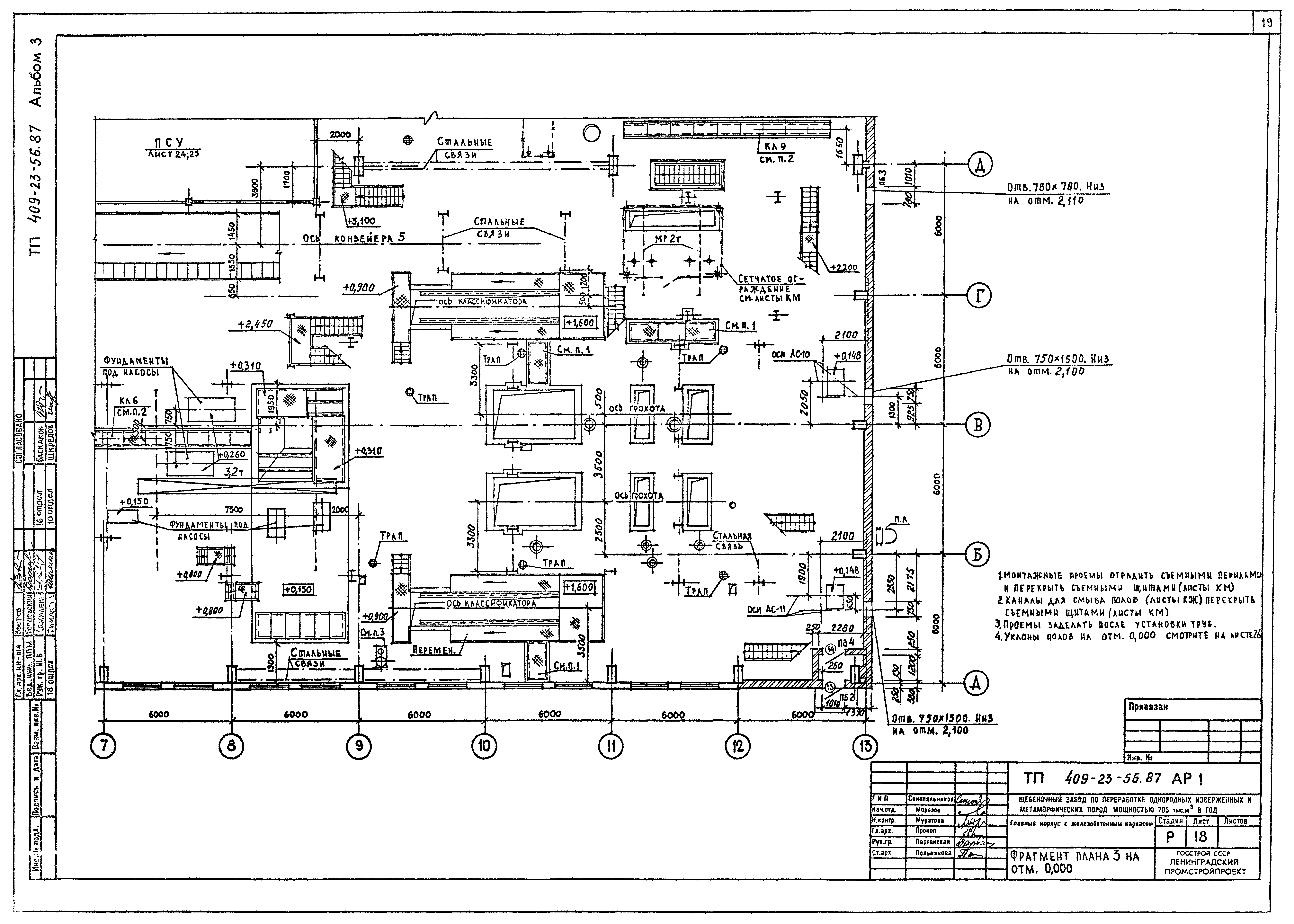
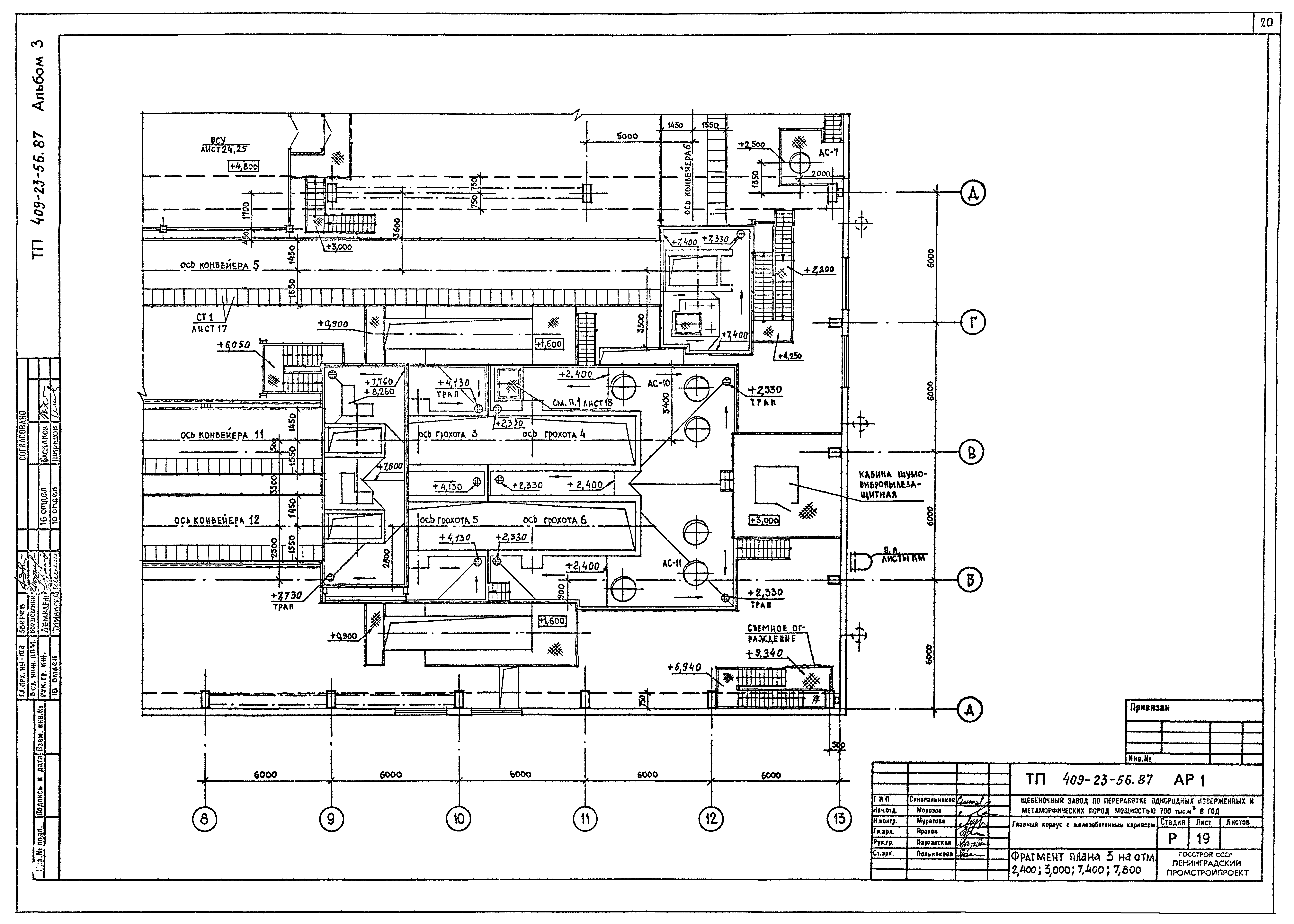
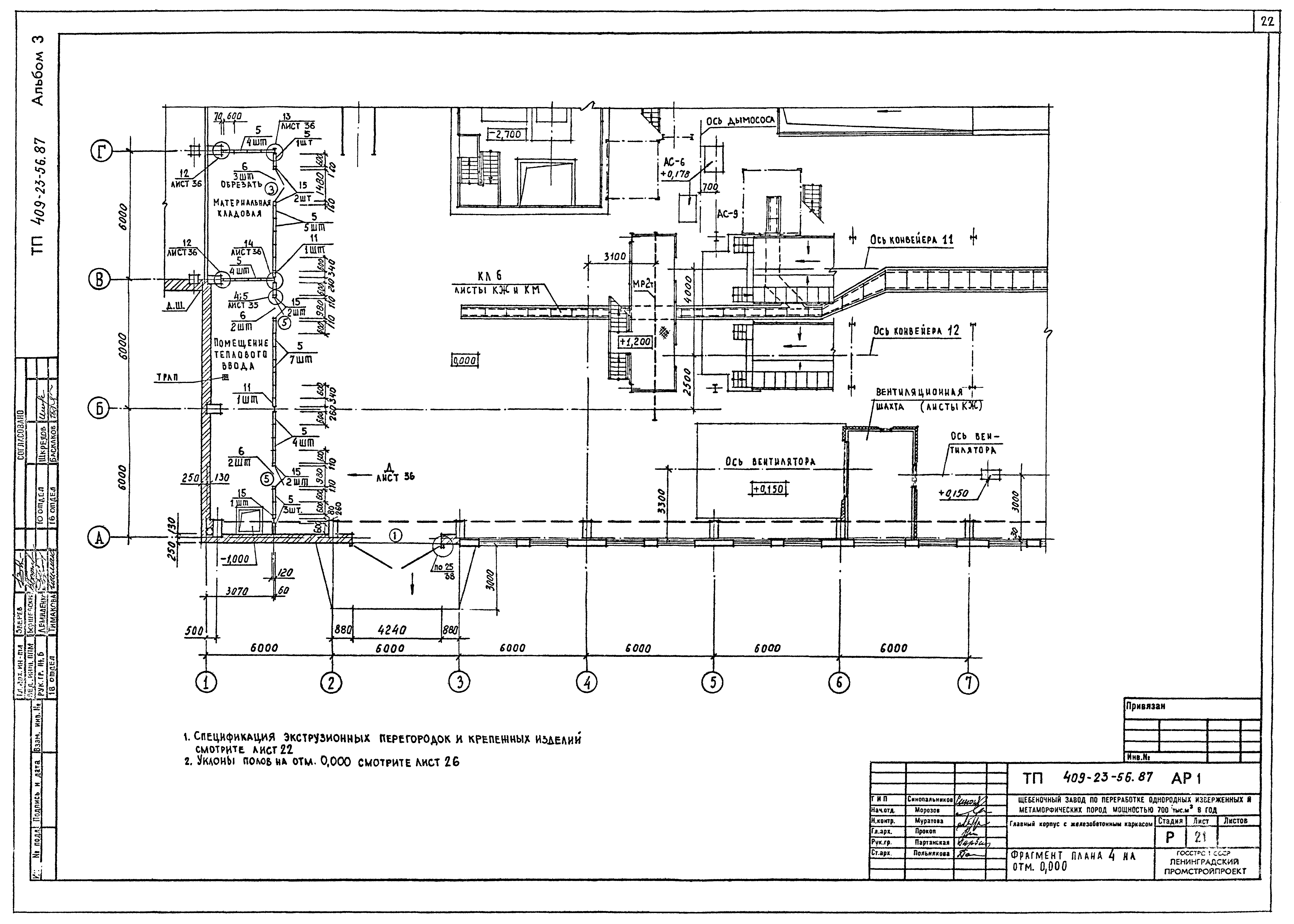
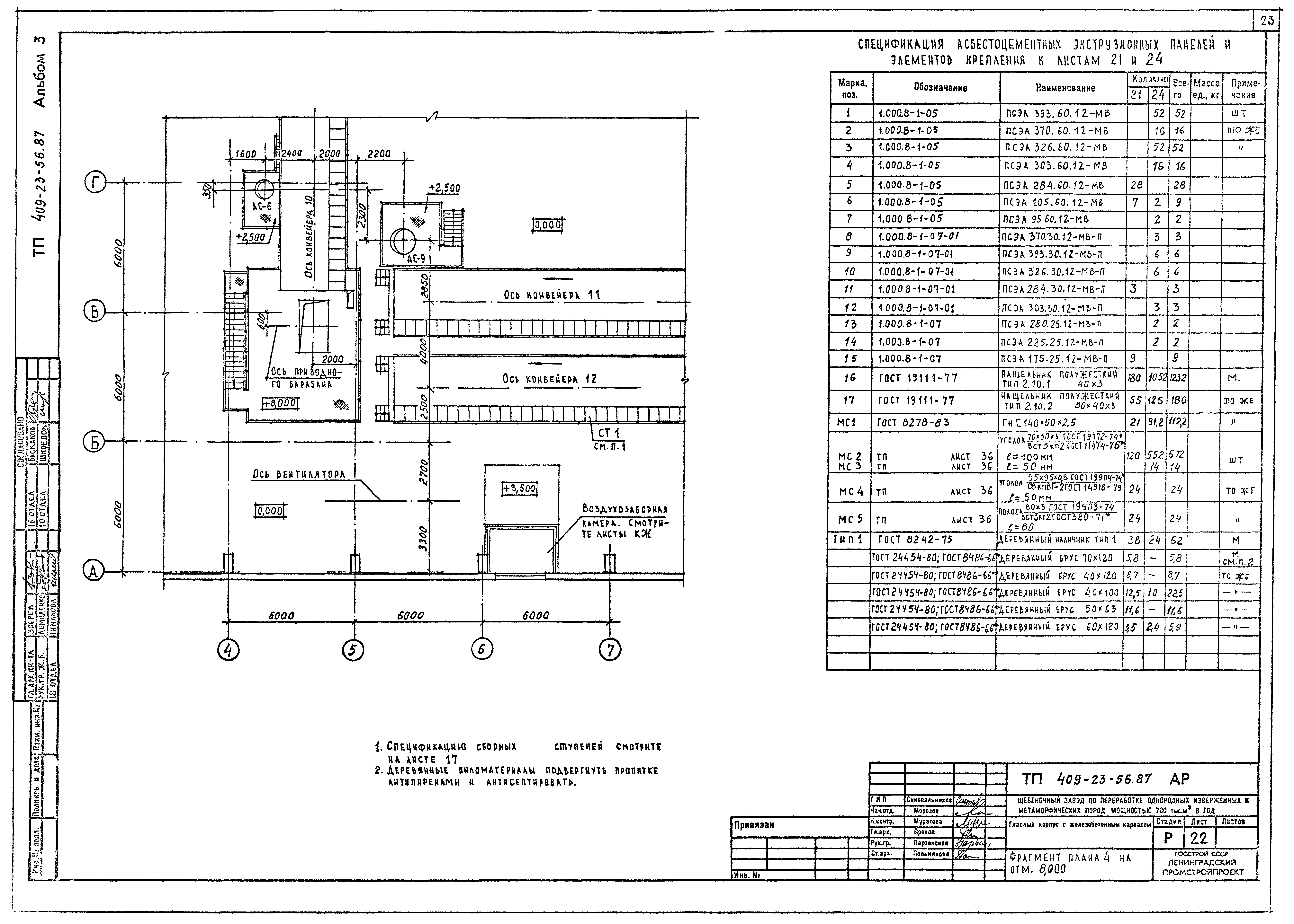
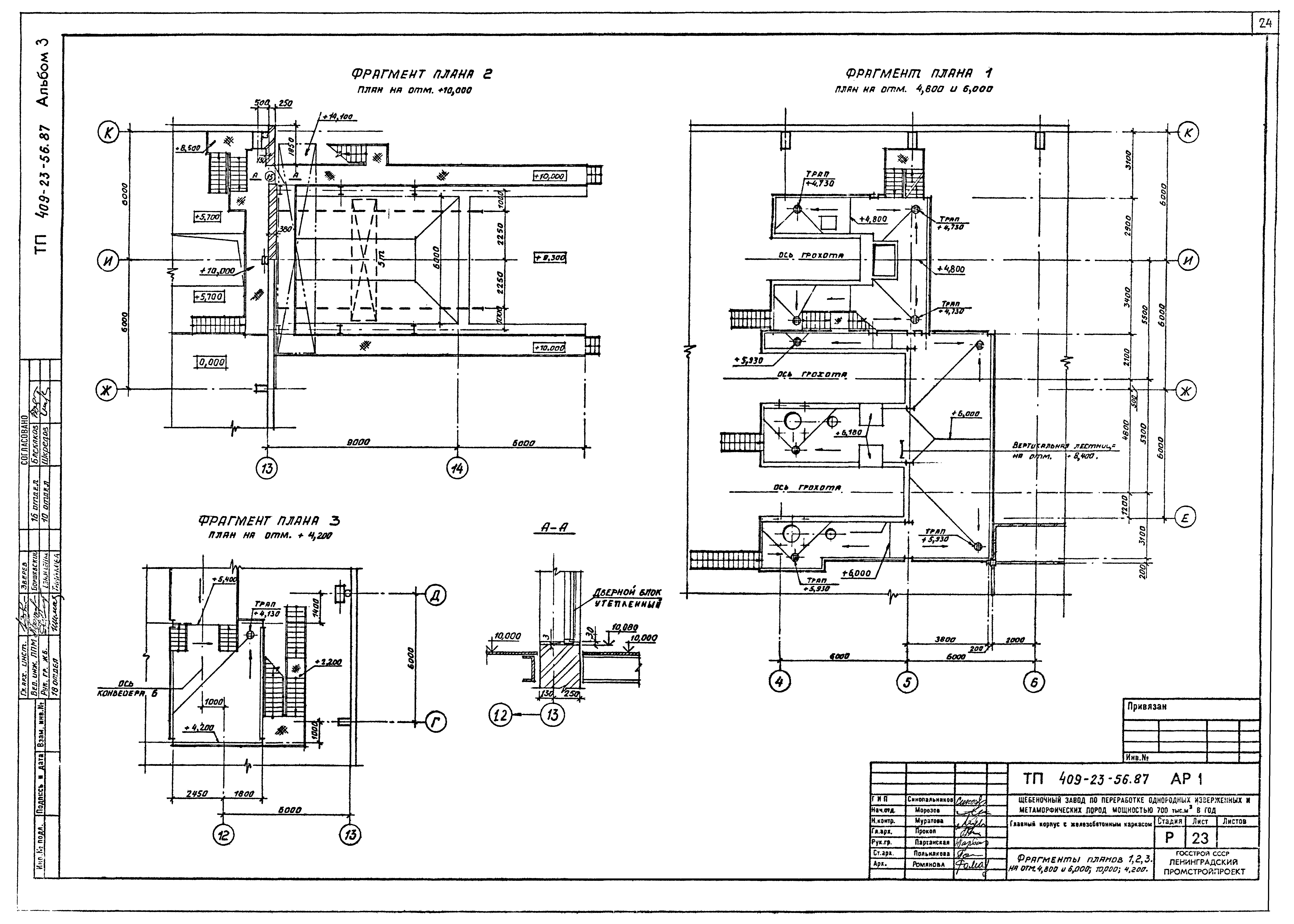
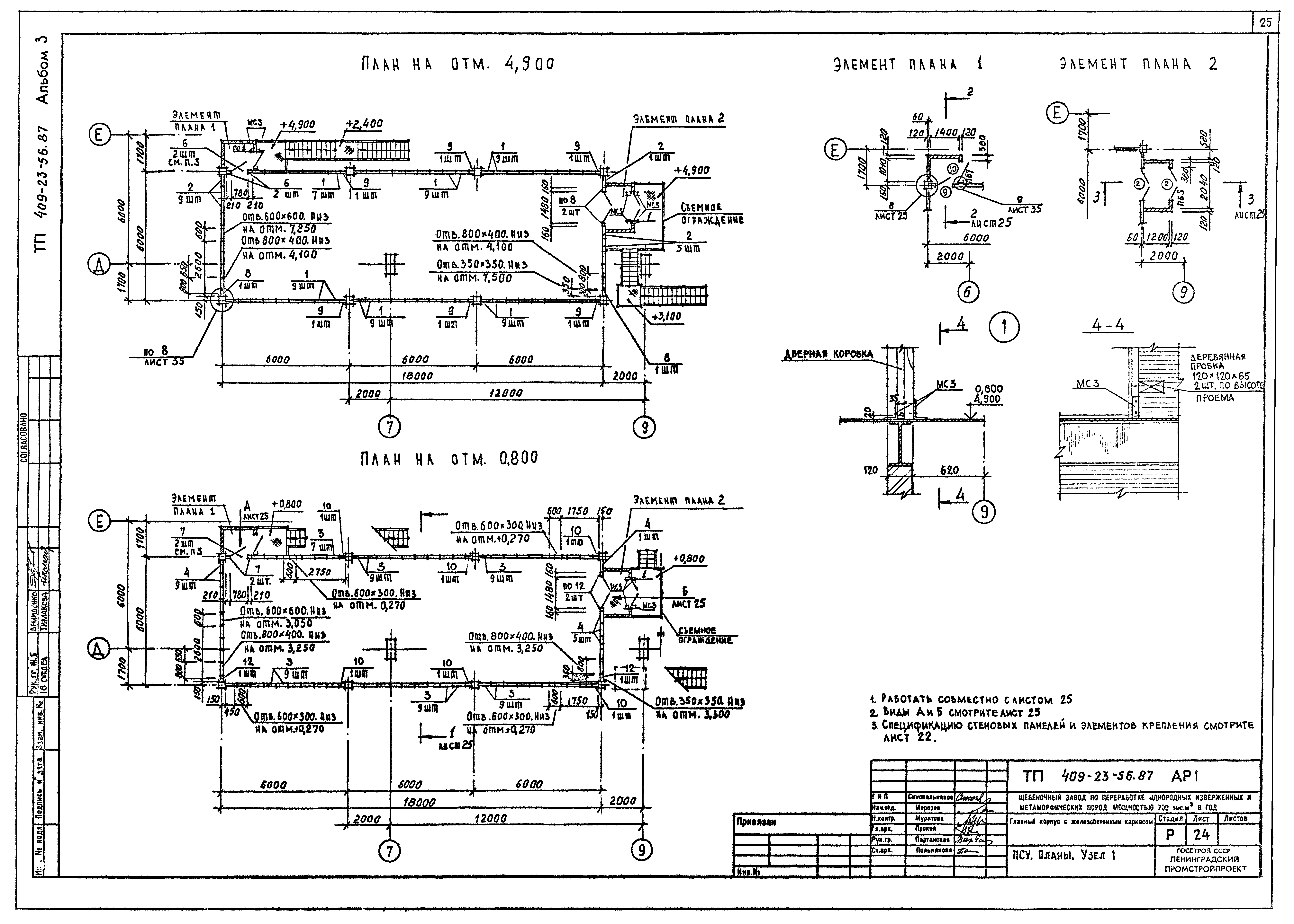
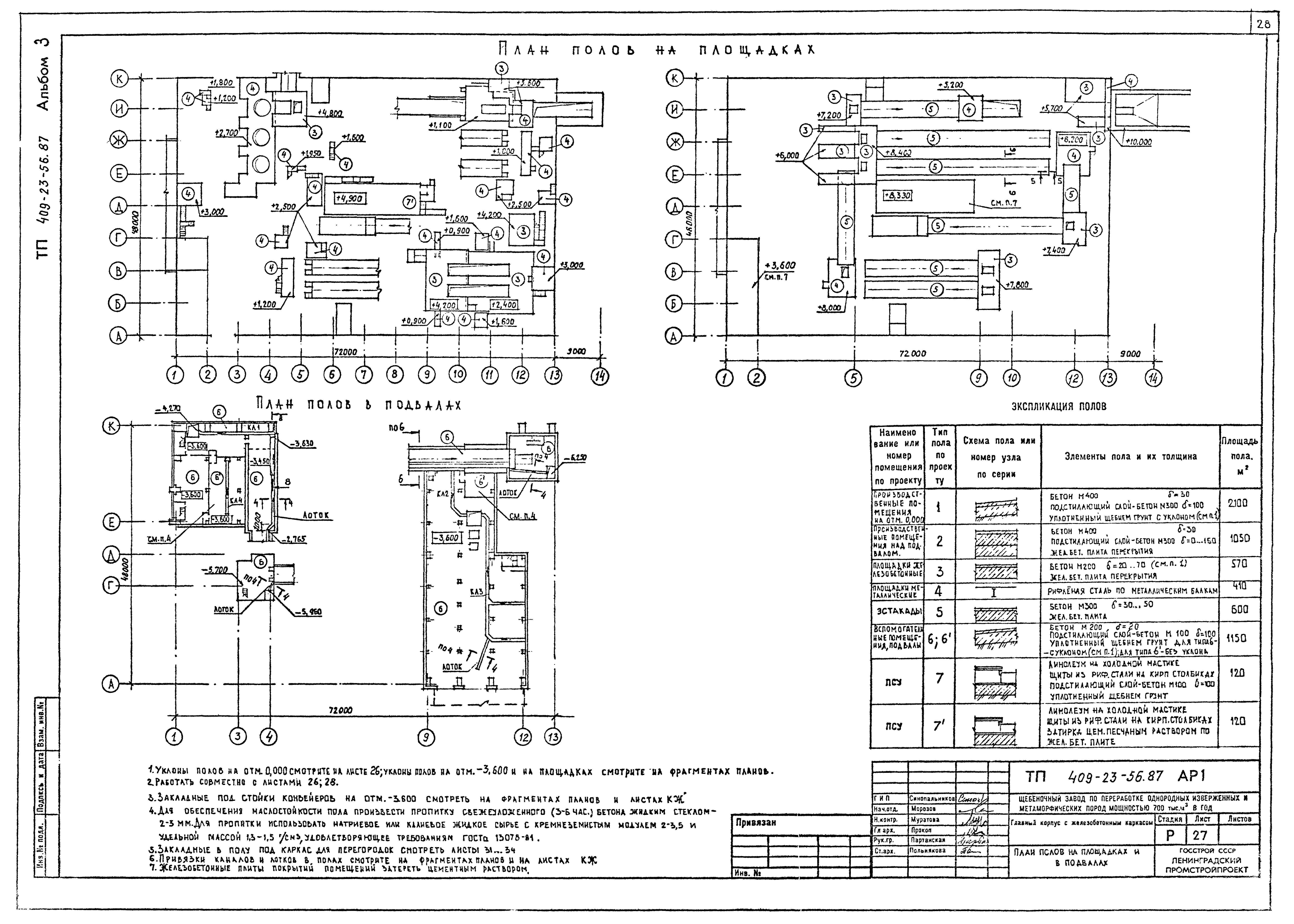
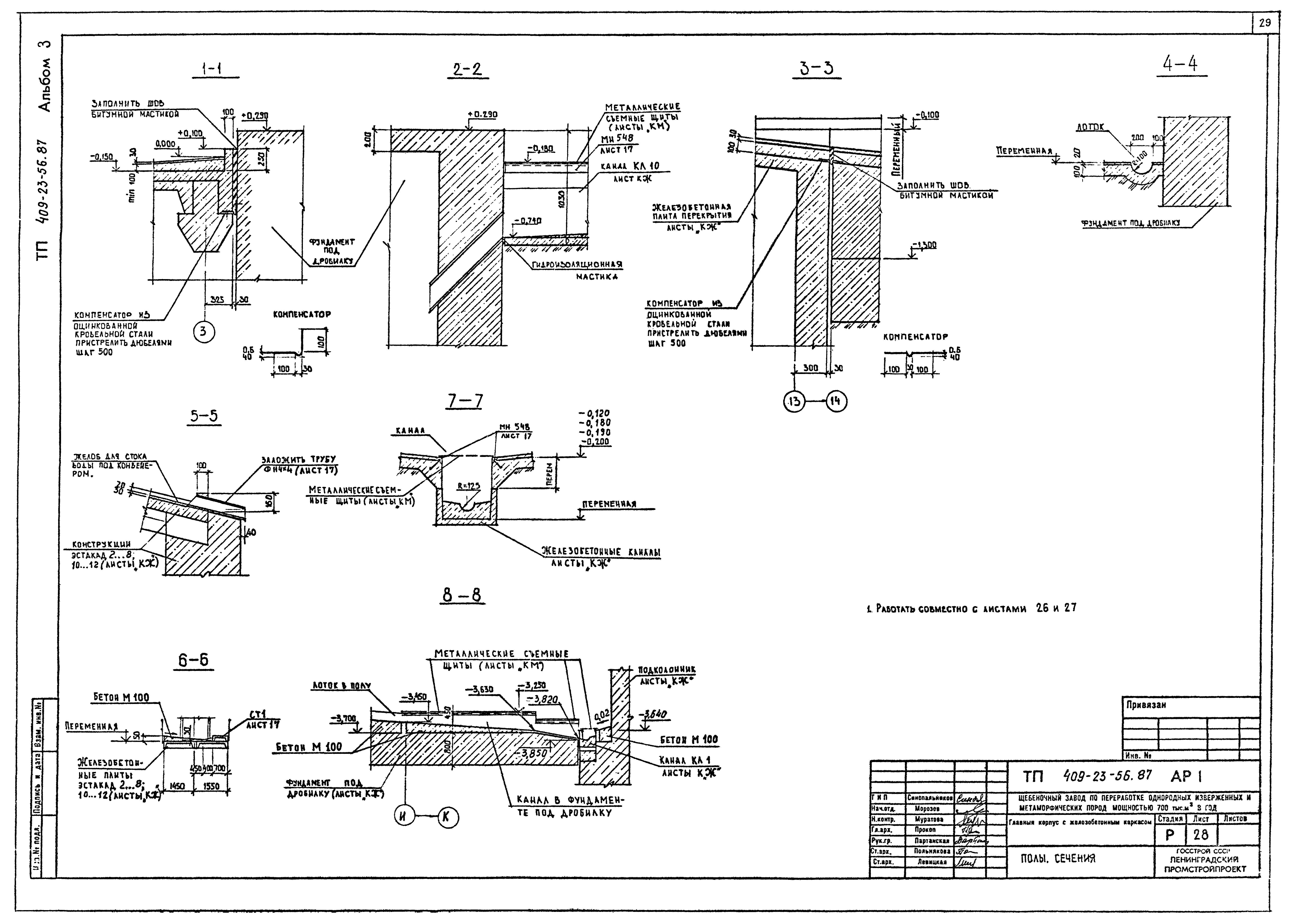
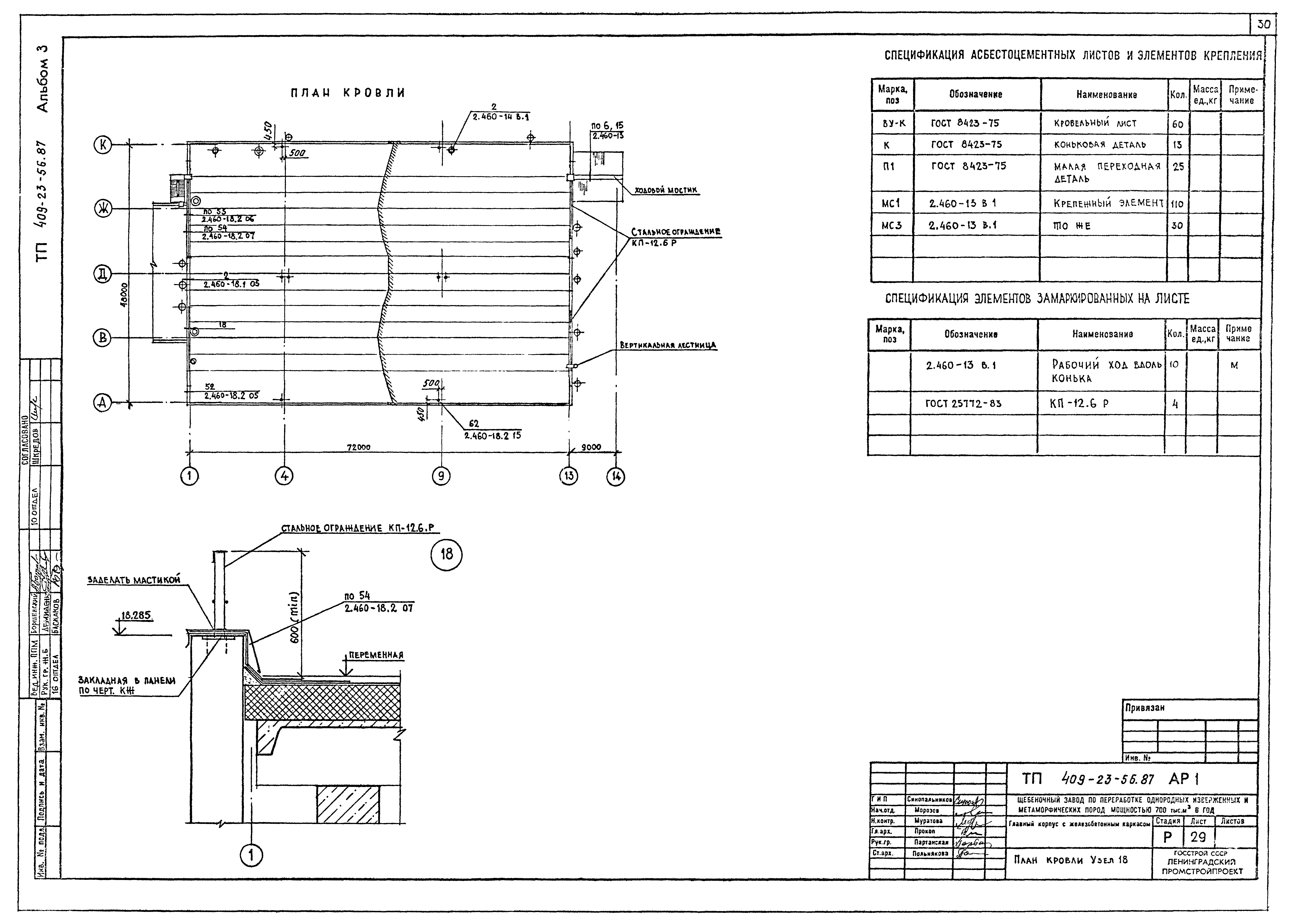
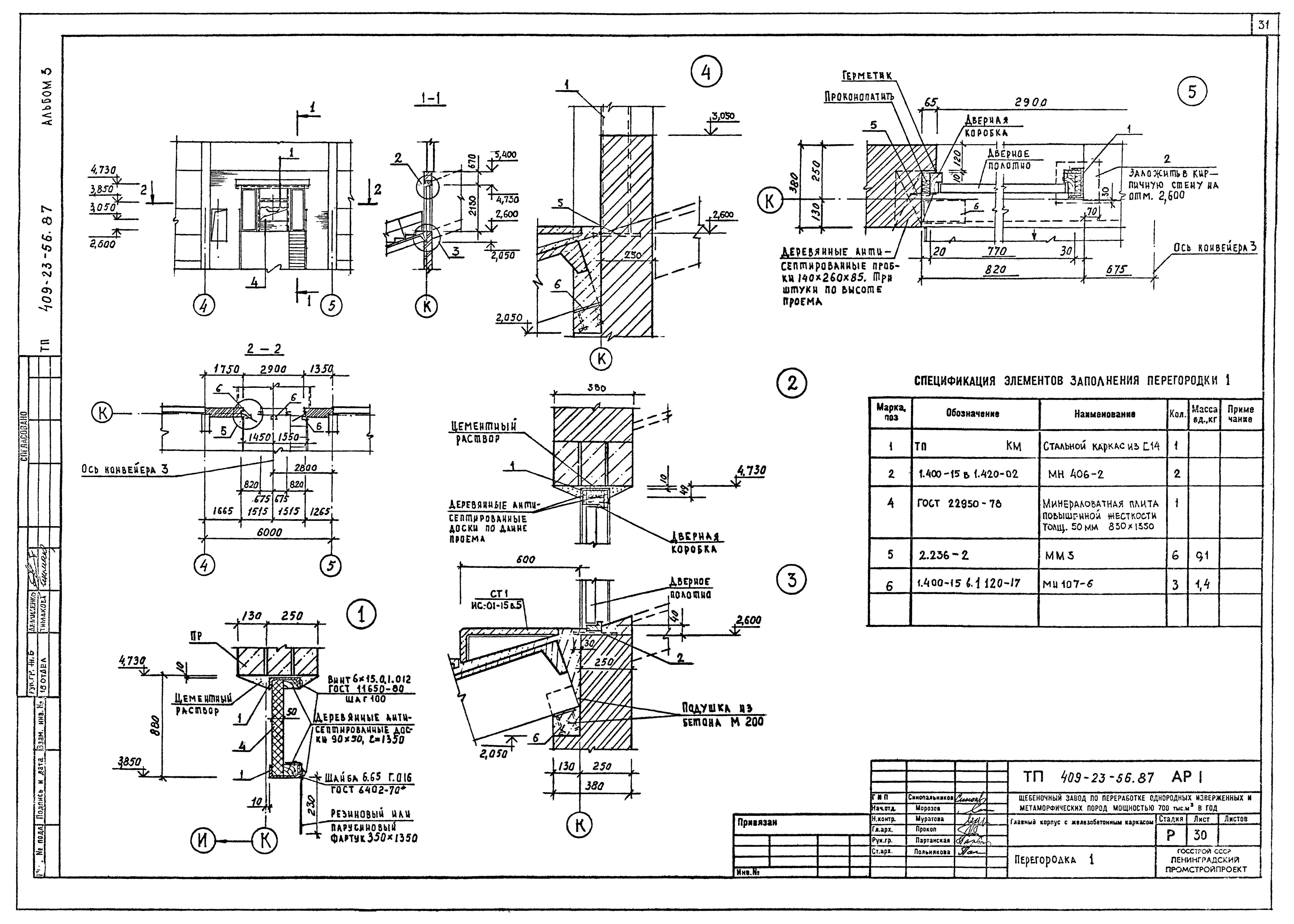
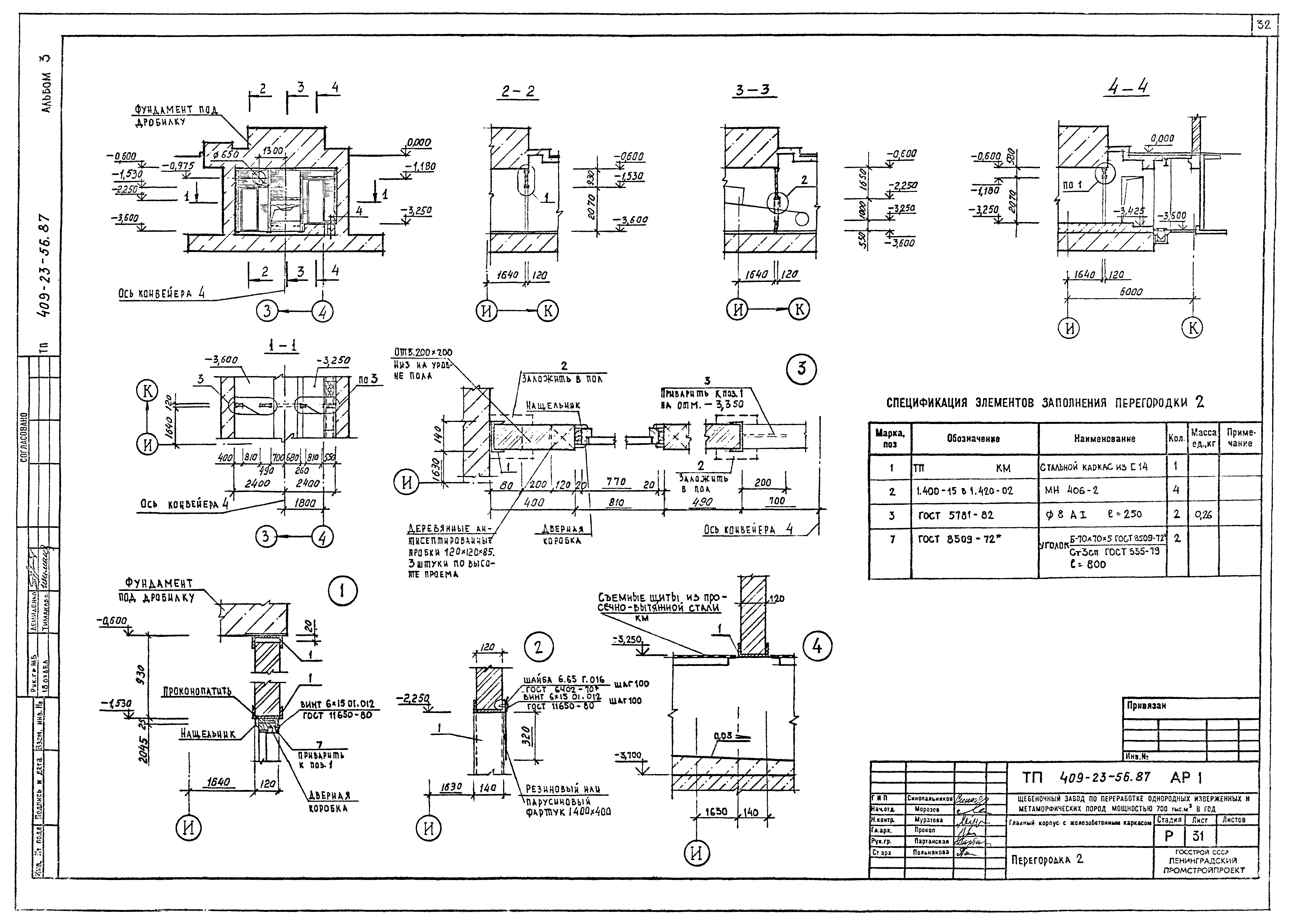
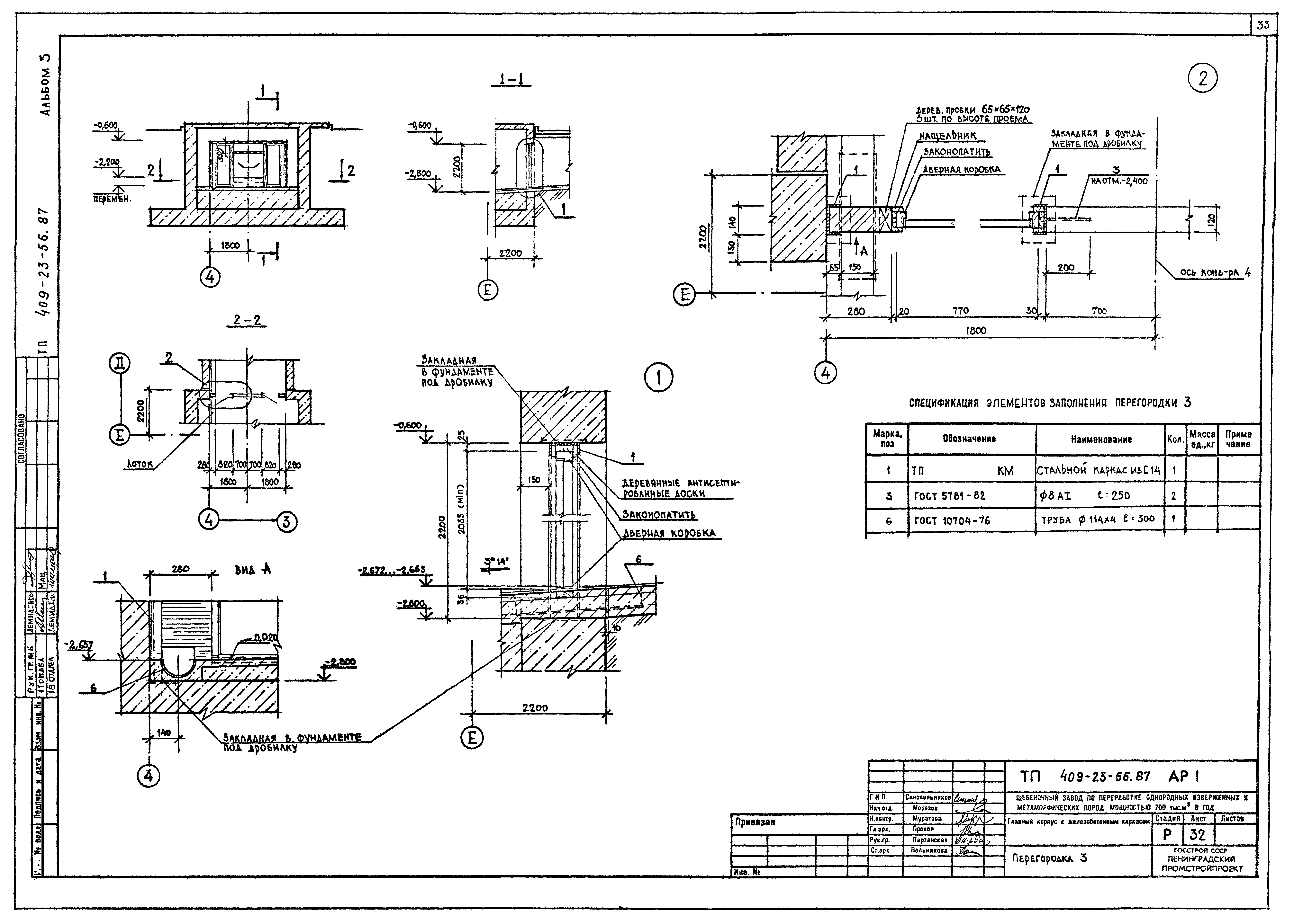
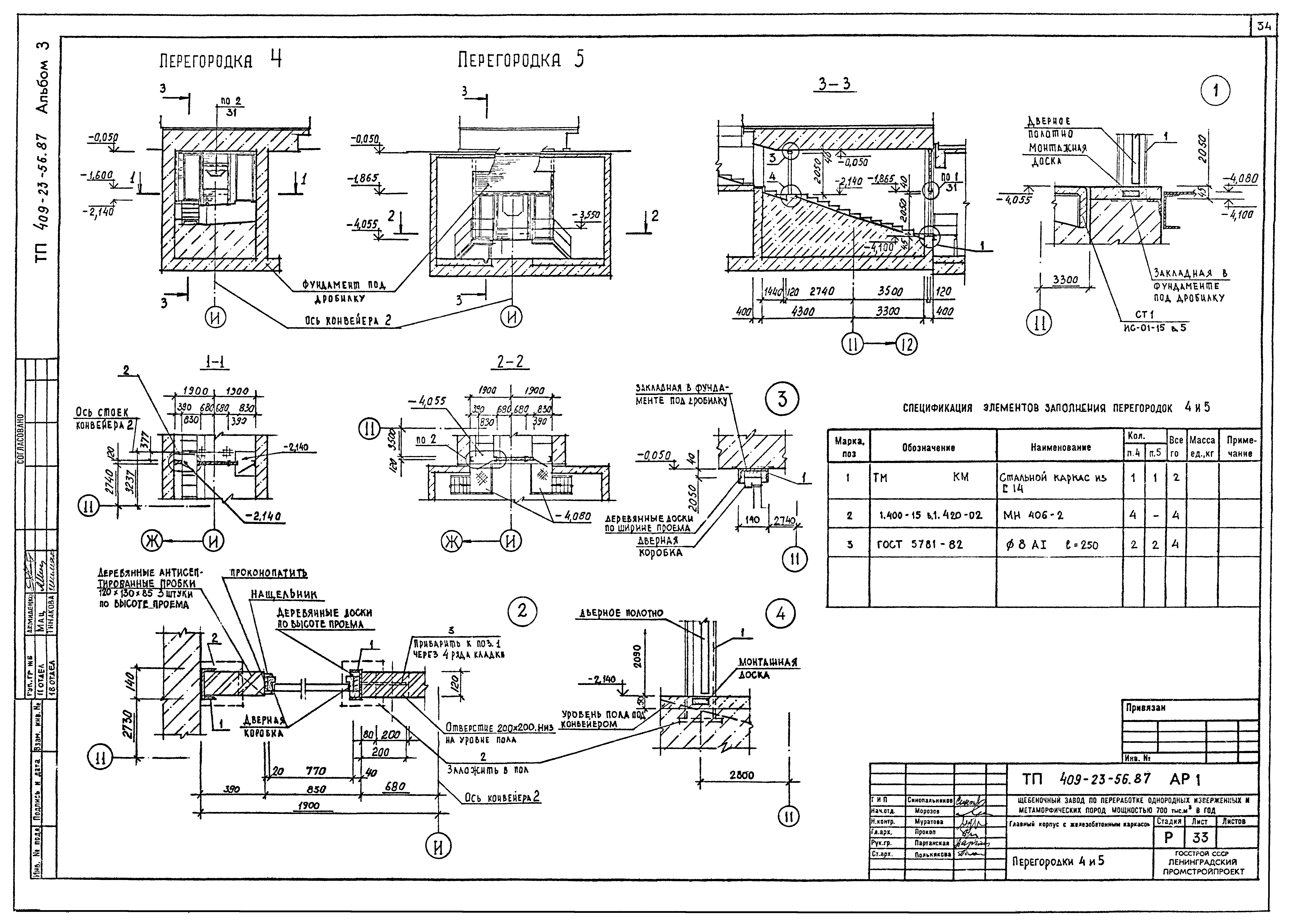
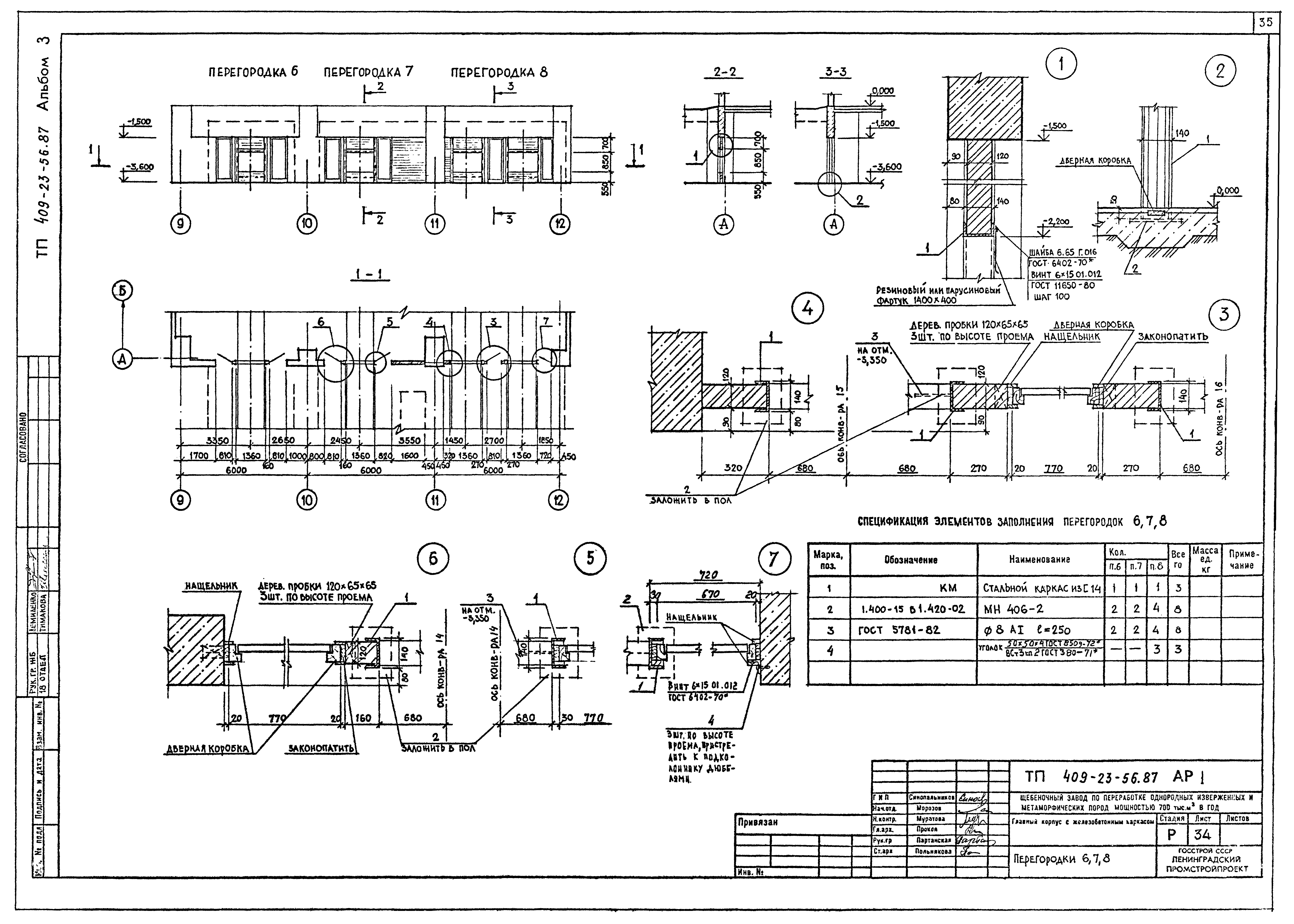
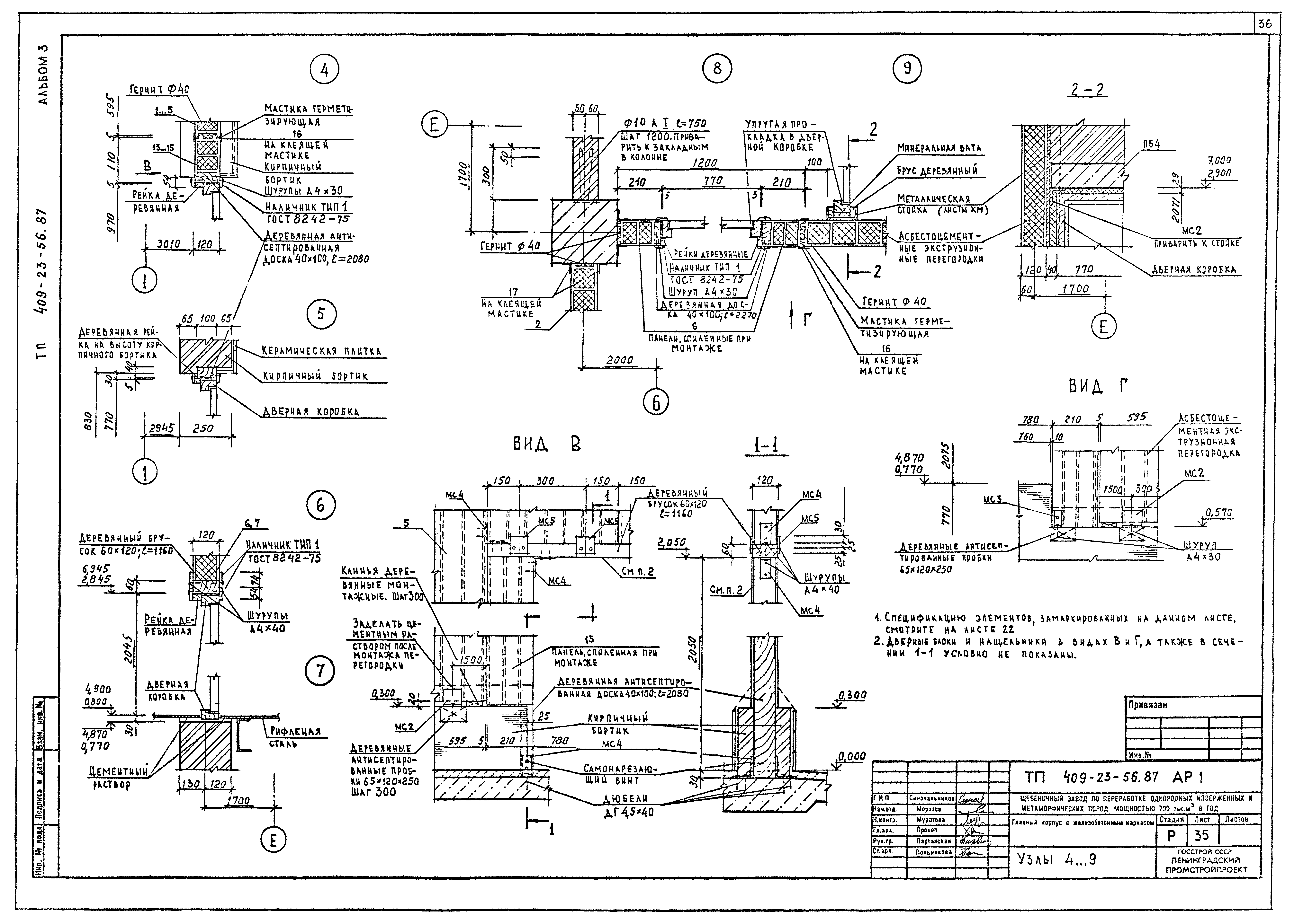
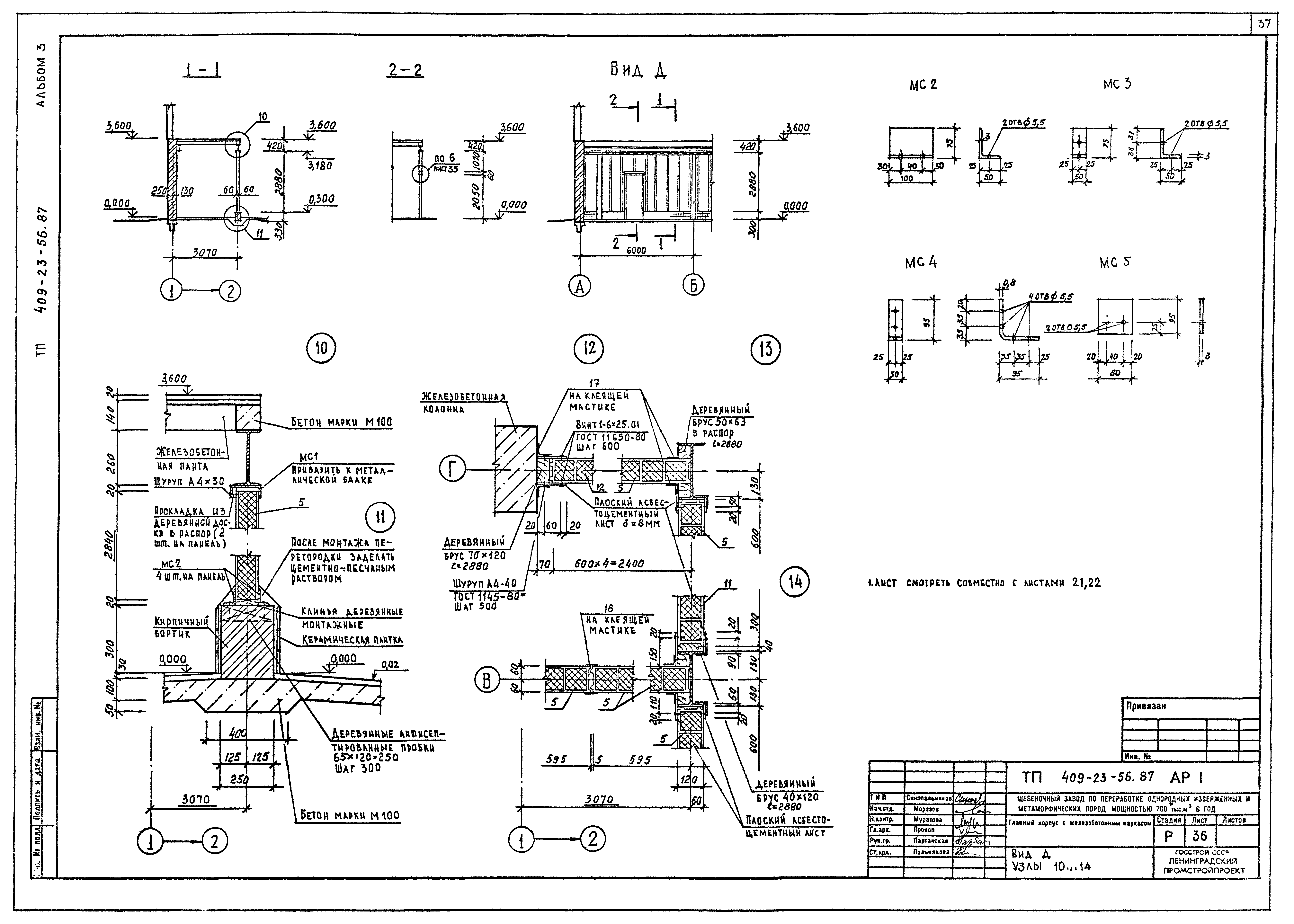
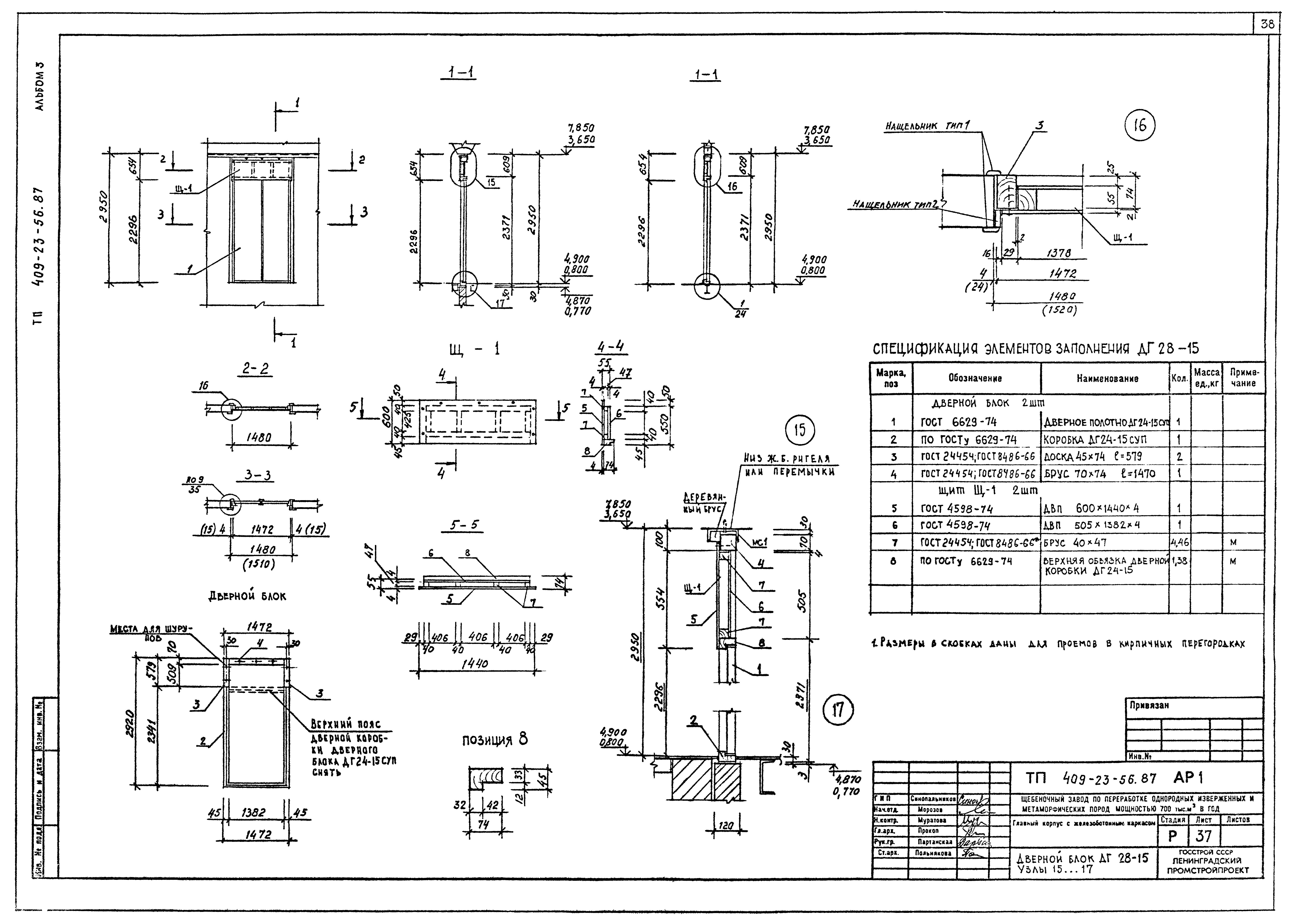
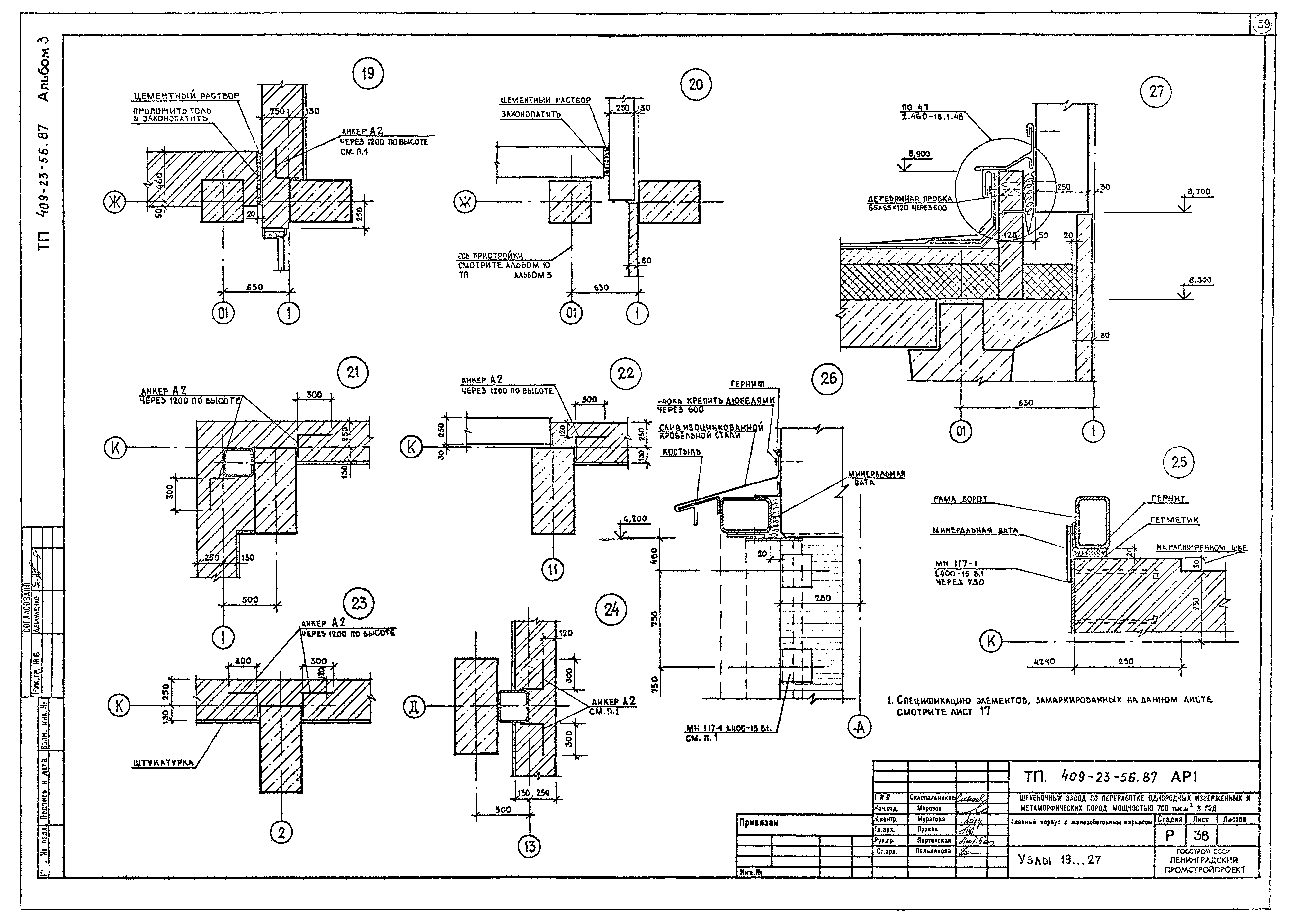
| Оглавление: | Чертежи основного комплекта марки АР Общие данные План на отм. 0.000 План площадок План подвалов Разрезы 1-1, 8-8 Разрезы 2-2, 6-6 Разрезы 3-3, 5-5 Разрезы 4-4, 7-7 Фасады 1 - 14; 14 - 1 Фасады А - К; К - А. Схемы заполнения оконных проемов и жалюзийных решеток Фрагмент плана 1 на отм. 0.000 Фрагмент плана 1 на отм. 2.700; 3.000; 7.200 и 8.400 Фрагмент плана 1 на отм. - 3.600; - 5.700 Фрагмент плана 2 на отм. 0.000 Фрагмент плана 2 на отм. 3.600; 5.700; 8.200 Фрагмент плана 2 на отм. - 3.600 и 5.000 Фрагмент плана 3 на отм. 0.000 Фрагмент плана 3 на отм. 2.400; 3.000; 7.400; 7.800 Фрагмент плана 3 на отм. - 3.600; 4.200 Фрагмент плана 4 на отм. 0.000 Фрагмент плана 4 на отм. 8.000 Фрагменты планов 1, 2, 3 на отм. 4.800 и 6.000; 10.000; 4.200 ПСУ. Планы. Узел 1 ПСУ. Разрезы. Узлы 2, 3 План уклонов полов План полов на площадках и в подвалах Планы полов. Сечения План кровли. Узел 18 Перегородка 1 Перегородка 2 Перегородка 3 Перегородки 4 и 5 Перегородки 6, 7 и 8 Узлы 4…9 Вид Д. Узлы 10…14 Дверной блок ДГ28-15. Узлы 15, 16, 17 Узлы 1-…27 |
| Разработан: | Союзгипронеруд |
| Утверждён: | 19.07.1982 Минстройматериалов СССР (USSR Minstroymaterialov 28-154/81) |







































