Скачать Типовой проект 409-23-56.87 Альбом 10. Архитектурные решения. Конструкции железобетонные. Конструкции металлические. Отопление и вентиляция. Внутренние водопровод и канализация. Электрические подстанции. Внутреннее электрическое освещение. Технология ремонтного хозяйстваДата актуализации: 01.01.2021
|
| Обозначение: | Типовой проект 409-23-56.87 |
| Обозначение англ: | 409-23-56.87 |
| Статус: | не определен законодательством |
| Название рус.: | Альбом 10. Архитектурные решения. Конструкции железобетонные. Конструкции металлические. Отопление и вентиляция. Внутренние водопровод и канализация. Электрические подстанции. Внутреннее электрическое освещение. Технология ремонтного хозяйства |
| Дата добавления в базу: | 01.09.2013 |
| Дата актуализации: | 01.01.2021 |
| Дата введения: | 04.12.1985 |
| Дата окончания срока действия: | 30.06.2003 |
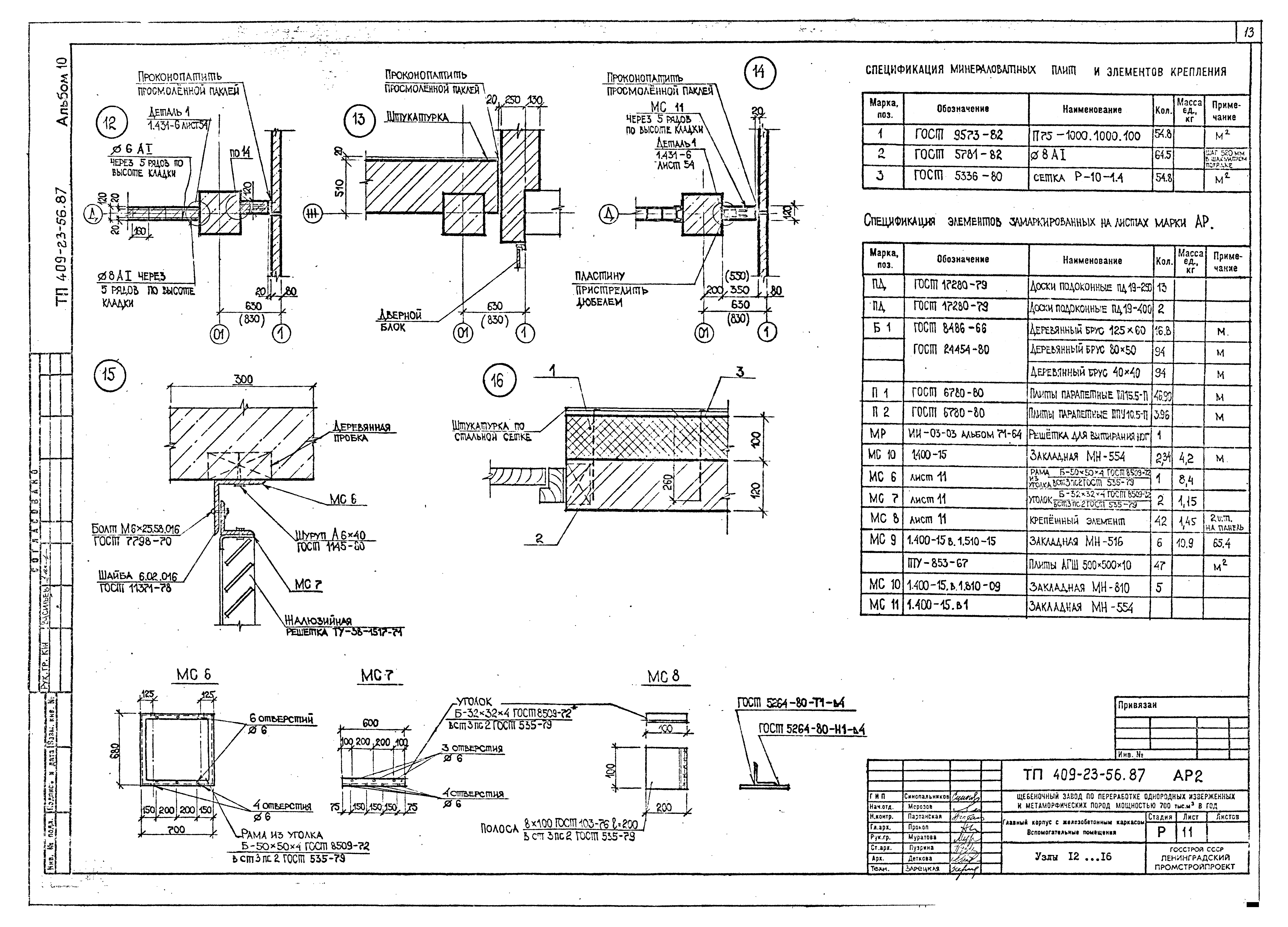
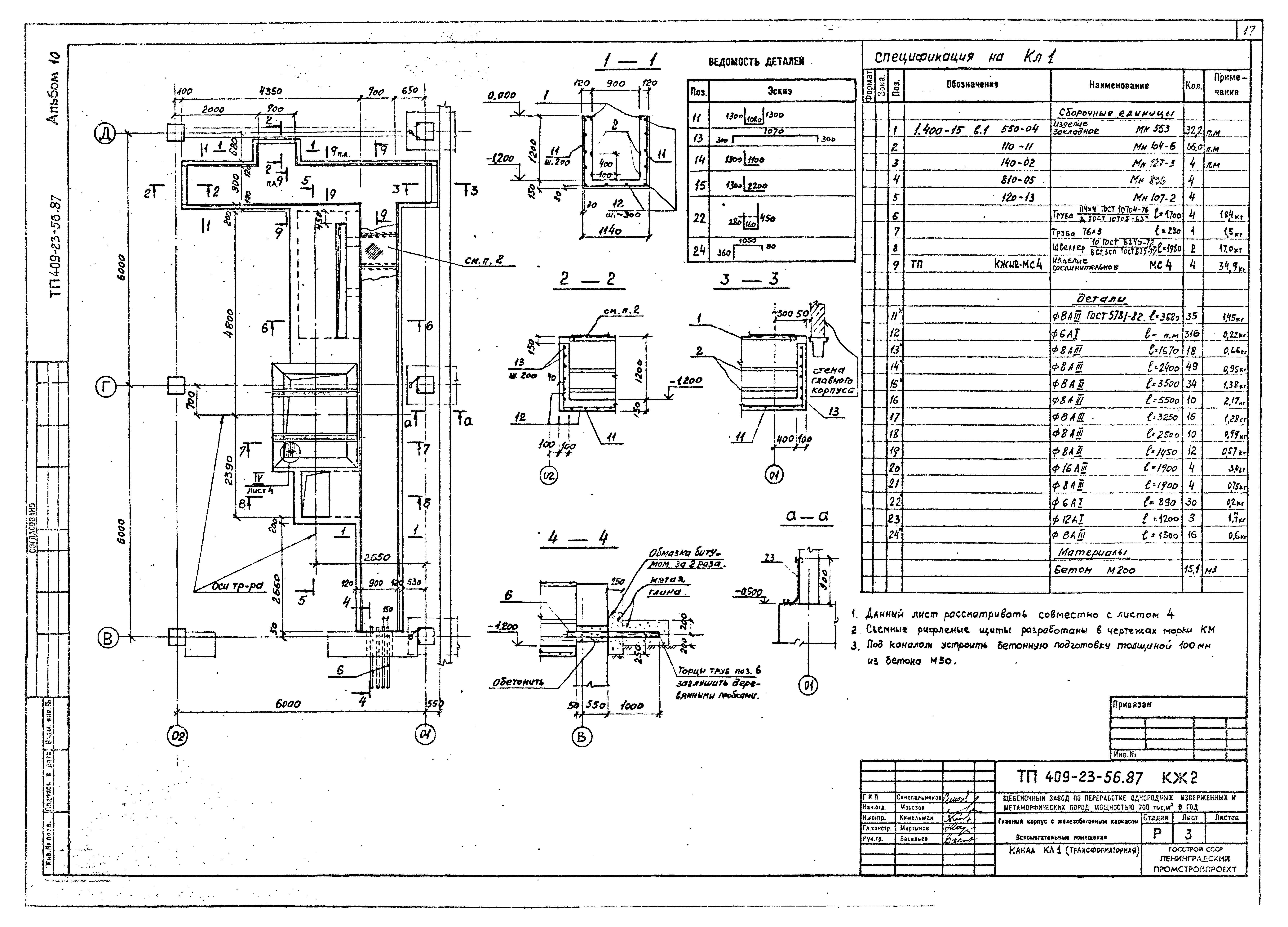
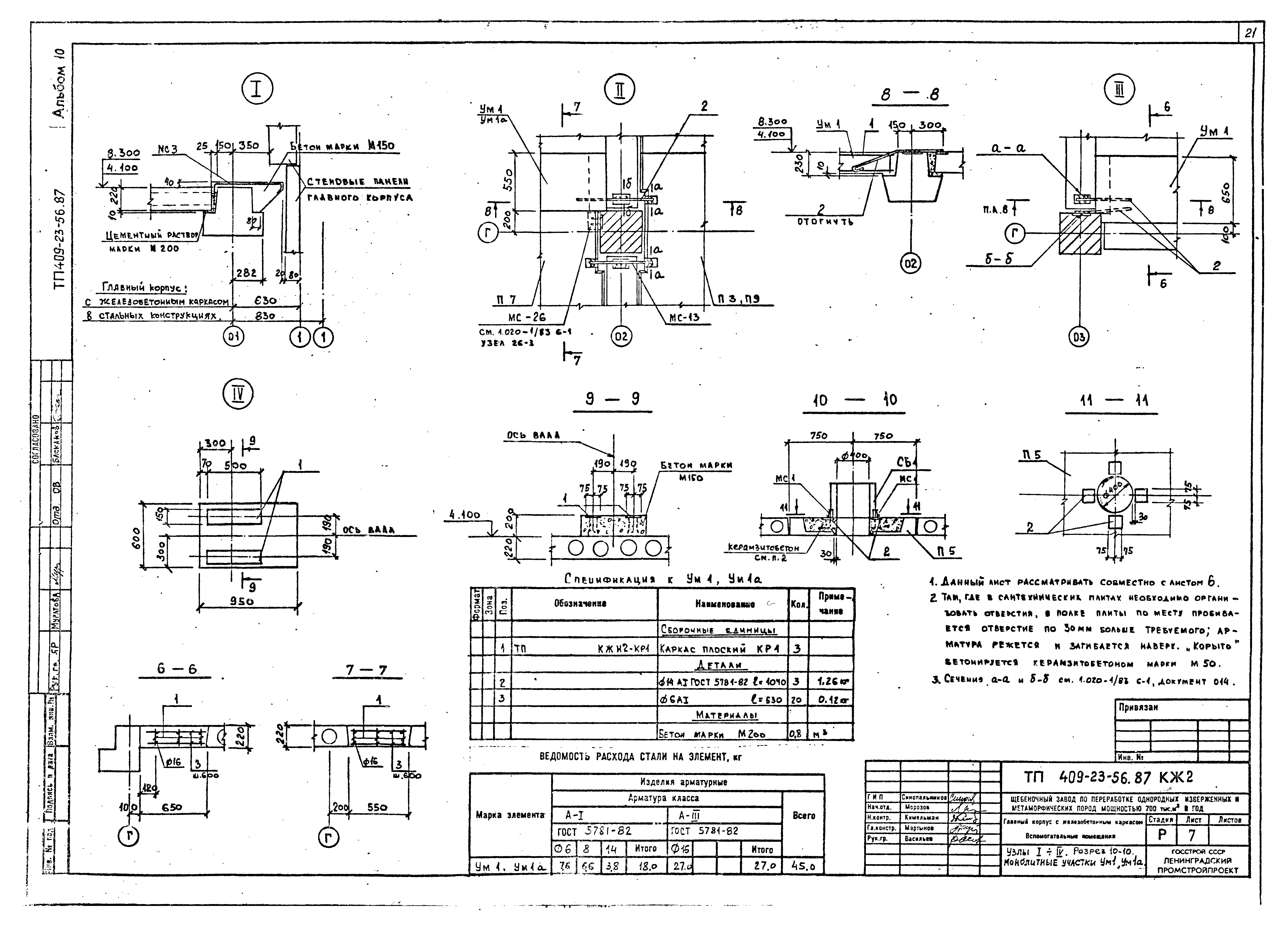
| Оглавление: | Чертежи основного комплекта марки АР2 Общие данные План на отм. 0.000 План на отм. 4.200 Разрезы 1-1, 2-2 Фасады 03 - 01, Ж - В, 01 - 03. Схемы заполнения оконных проемов Раскладка экструзионных панелей на отм. 0.000 Раскладка экструзионных панелей на отм. 4.200. Спецификация Планы полов и кровли Узлы 2 - 11 Узлы 12 - 16 Комната приема пищи Чертежи основного комплекта марки КЖ2 Общие данные Схема расположения фундаментов, каналов Канал Кл1 (трансформаторная) Канал Кл1. Разрезы Схема расположения колонн и ригелей Схема расположения плит перекрытия и покрытия Узлы I - IV. Монолитные участки Ум1, Ум1а. Разрез 10-10 Разрезы 1-1, 3-3, 4-4 Схема расположения элементов лестницы Схема расположения элементов перекрытия ПСУ на отм. 4.800 Узлы 3 - 7. Разрез 1-1 Узлы 8 - 14. Разрезы 2-2…6-6 Схема расположения стеновых панелей и козырьков Фундаменты под оборудование на отм. 0.000 Чертежи основного комплекта марки КМ2 Общие данные Техническая спецификация стали. Ведомость металлоконструкций по видам профилей Схемы съемных щитов и перемычек Узлы 1, 2 Ворота трансформаторные для проема 3,1х3,3 м. Техническая спецификация металла Схема ворот трансформаторных для проема 3,1х3,3 м. Разрезы 1-1, 2-2, 7-7 Разрезы 3-3…6-6. Узлы 1…5 Схема створки левой. Разрезы 8-8…12-12. Узлы 7…11 Схема створки правой. Разрезы 13-13…17-17. Узлы 12, 13 Чертежи основного комплекта марки ОВ2 Общие данные Планы на отм. 0.000; 4.200 Схемы систем П1, В1, В2, ВЕ1, ВЕ2, ВЕ3 Схемы системы отопления, системы теплоснабжения установки П1, системы транзитных трубопроводов Установки систем П1, В1, В2 ОВН1…ОВН4 Чертежи основного комплекта марки ВК2 Общие данные Планы на отм. 0.000; 4.200 Схемы систем В1, К1, К2. План кровли Чертежи основного комплекта марки ЭП Общие данные Однолинейная схема коммутации Таблица расчета максимальных электрических нагрузок План План кабельной разводки. Заземление Кабельный журнал Опросный лист для заказа однотрансформаторной подстанции типа КТП-М-1600-6(10)/0,4 кВ Чертежи основного комплекта марки ЭО2 Общие данные План расположения электрического оборудования и прокладки электрических сетей на отм. 0.000 План расположения электрического оборудования и прокладки электрических сетей на отм. 4.200 Чертежи основного комплекта марки ТХ2 Общие данные Ремонтный участок. План на отм. 0.000 между осями Д - Ж; 01 - 03 Установка станка точильно-шлифовального Э6633 и агрегата вентиляционного пылеулавливающего ЗИЛ-900М Установка станка вертикально-сверлильного модели 2Н125 Установка пресса монтажно-запрессовочного гидравлического модели 2135-1М Установка стеллажа сборно-разборного 2000х610х2400 Поддон для тележки грузоподъемностью 250 кг 630х550х220. Общий вид |
| Разработан: | Союзгипронеруд |
| Утверждён: | 19.07.1982 Минстройматериалов СССР (USSR Minstroymaterialov 28-154/81) |


































































