Скачать Типовой проект 409-23-56.87 Альбом 11. Железобетонные изделияДата актуализации: 01.01.2021
|
| Обозначение: | Типовой проект 409-23-56.87 |
| Обозначение англ: | 409-23-56.87 |
| Статус: | не определен законодательством |
| Название рус.: | Альбом 11. Железобетонные изделия |
| Дата добавления в базу: | 01.10.2014 |
| Дата актуализации: | 01.01.2021 |
| Дата введения: | 04.12.1985 |
| Дата окончания срока действия: | 30.06.2003 |
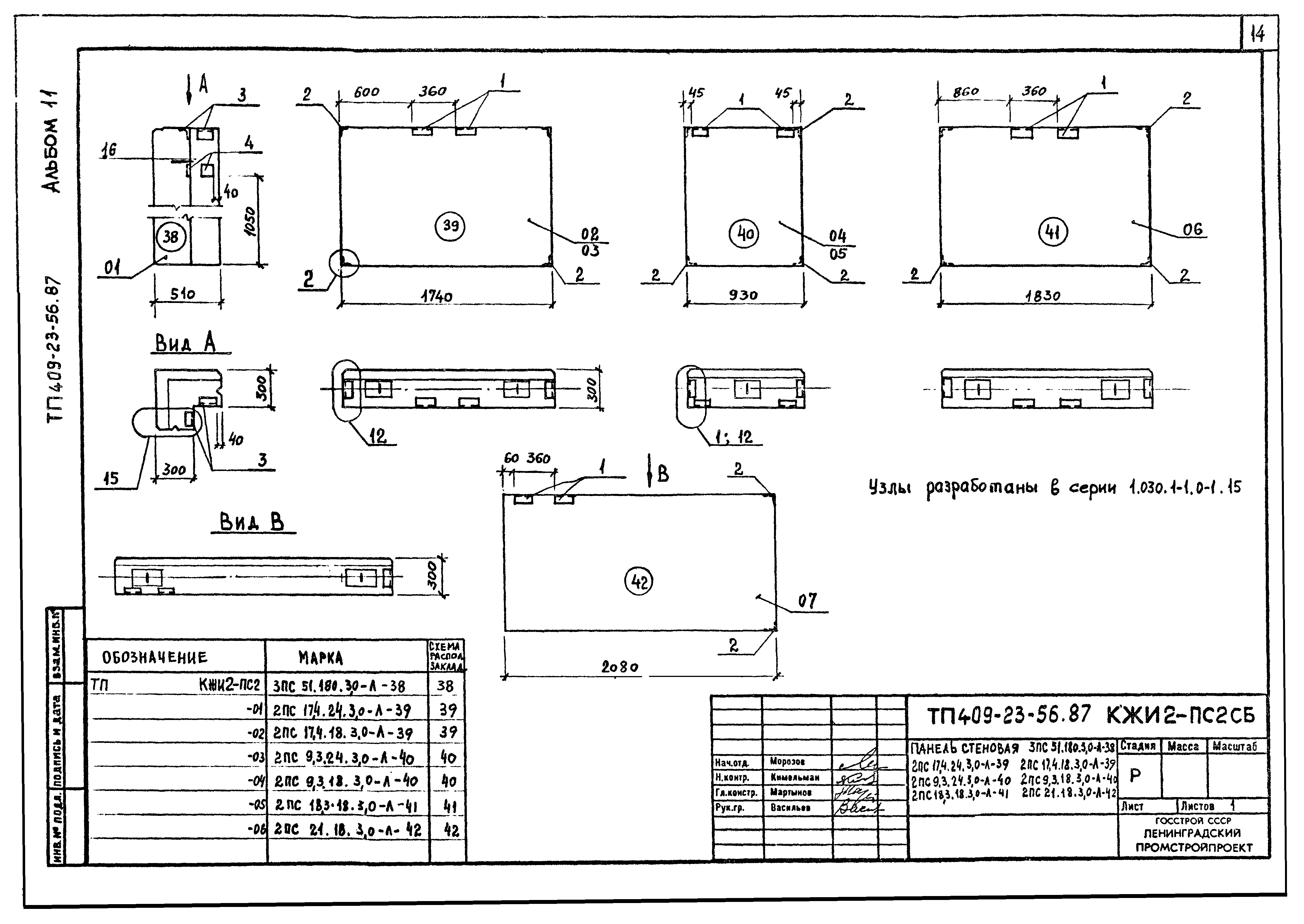
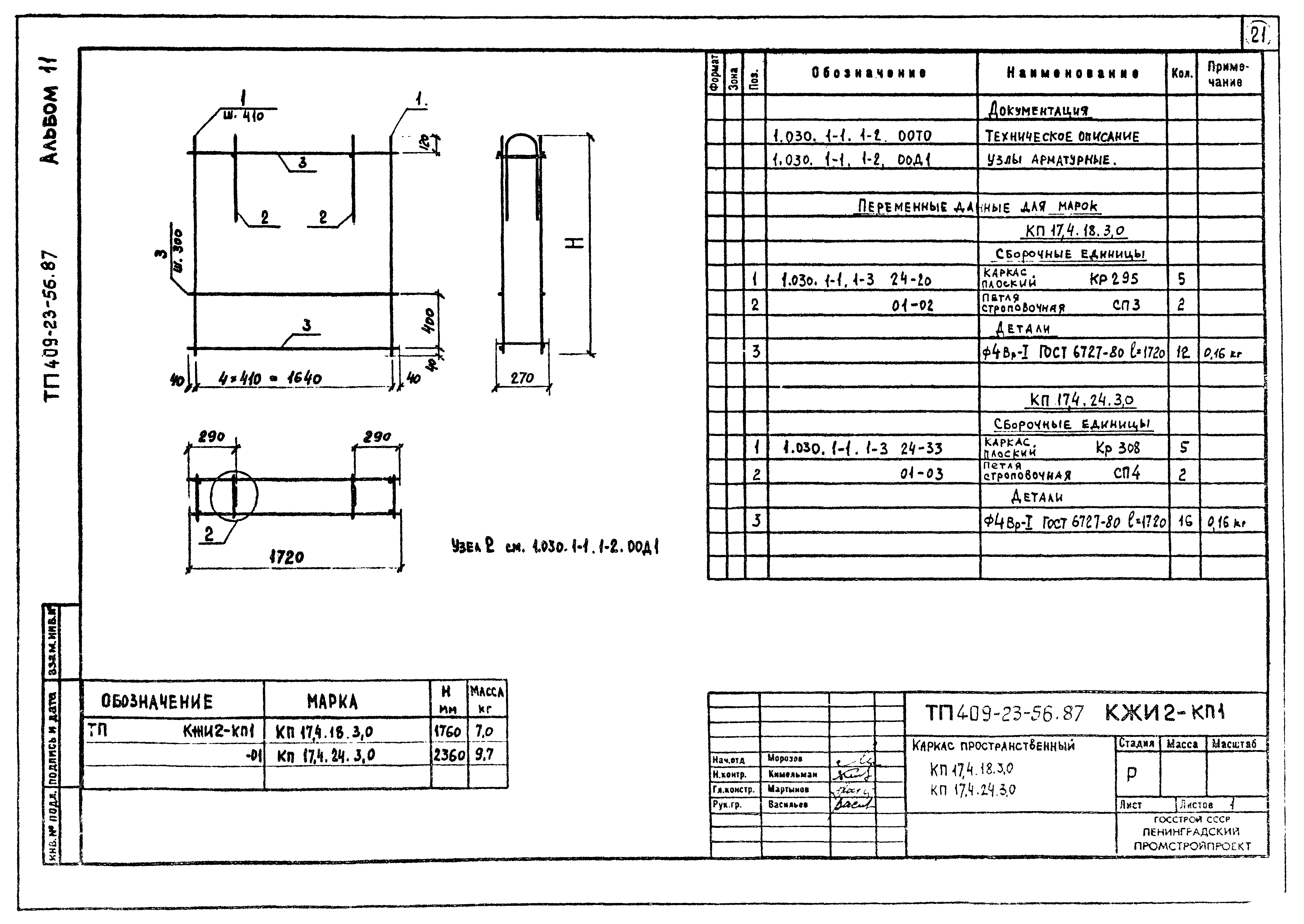
| Оглавление: | Содержание Пояснительная записка Технические требования к изготовлению сборных железобетонных изделий Технические требования к изготовлению арматурных закладных и соединительных изделий Ригель Колонны Ведомость расхода стали на колонны и ригель Панели стеновые Ведомость расхода стали на стеновые панели Перемычки Изделия соединительные Каркас плоский Каркас пространственный |
| Разработан: | Союзгипронеруд |
| Утверждён: | 19.07.1982 Минстройматериалов СССР (USSR Minstroymaterialov 28-154/81) |





















